水闸工作桥课程设计共86页
- 格式:ppt
- 大小:5.75 MB
- 文档页数:86
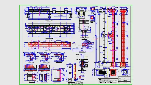
水闸工作桥课程设计第一部:拟定工作桥尺寸一、工作桥纵向布置1、工作桥长度:为便于安装,工桥桥长度=两闸墩中心线距离-20~30mm=7000+500+500-20 =7980mm 但计算时工作桥长度仍用8000 mm计算。
2、横梁位置:为简化计算,我们将地螺栓安装在横梁与纵梁相交处,不考虑其偏移。
横梁尺寸初步拟定为,高:500;宽:250. 横梁上面的机敦取高:250;宽:250.3、活动铺板:为减轻吊装重量,面板做成活动铺板,简支在纵梁上。
活动铺板选用的,宽850;长度:1500+2*80=1660 ;高度:80。
中间共四块面板。
桥两边再一边一块板。
总的横向布置图及个尺寸如图所示:二、工作桥横向布置1、纵梁尺寸:高度:800;宽度:300。
2、悬臂板:高度:端部取100,根部取200;宽度:500尺寸如图所示:三、刚架布置(在此不计算)1、刚架高度计算用的高度:H=31.4-24.0-h实际高度:H+H1,其中:H1为柱插入杯口的高度。
H1需满足:a.大体为1.2~0.8倍柱长边尺寸;b.大于0.05H。
图3:钢桁架布置第二部:配筋一、面板配筋设计1、活动铺板1)安装检修工况: a 荷载计算板自重:0.080.8525 1.7/k g KN m =⨯⨯=1.05 1.71.785/G k g g KN m γ==⨯= 一个绳鼓重: 6.54k G KN =, 6.54 1.05 6.867G k G G KN γ==⨯= 桥面活载不考虑 b 计算简图和内力计算01500801580n l l a mm =+=+= 01500801580n l l h mm =+=+= 0 1.1 1.115001650n l l mm ==⨯=因此计算跨度取1580mmc.跨中弯矩:220011 6.867 1.581.785 1.58 3.268484p l M gl KN m ⨯⨯=+=⨯⨯+=∙2)正常使用工况,持久状况a.荷载:板自重 0.080.8525 1.7/k g KN m =⨯⨯=1.05 1.71.785/G k g g KN m γ==⨯=人群荷载 1.240.85 4.08/G k q q b KN m γ==⨯⨯=b.跨中弯矩:()2011 1.838M g q l KN m =⨯+=∙从以上两种状态可知,安装工况下的弯矩更大,取大值进行计算3)配筋计算:查表得25(),d 302dc mm a c mm==+=二类环境估计钢筋直径为=10mm,050h h a mm =-=由书2-7查k=1.2,采用C25混凝土,查表211.9/c f N mm =,面板用HPB335的钢筋,查表2300/y f N mm =800b mm =,6220 1.2 3.26100.15511.985050s c KM f bh α⨯⨯===⨯⨯,10.1690.850.468b ξξ=-=<=2011.98500.16950285.2300c s y f b h A mm f ξ⨯⨯⨯=== 0min 285.2/0.67%0.15%85050s A bh ρρ===>=⨯查附录3表1,选用6φ8(2302mm s A =)在受力钢筋内侧布置与受力钢筋垂直的分布钢筋,按要求取φ6@250。
编号(学号):水工钢筋混凝土结构课程设计(2013-2014学年第一学期)题目水闸工作桥设计学院水利学院专业姓名指导教师完成日期 2013年 12 月 22 日目录绪论 (1)第一章拟定工作桥尺寸 (3)1.1 工作桥纵向布置 (3)1.1.1 工作桥长度 (3)1.1.2 横梁 (3)1.1. 3活动铺板 (3)1.2 工作桥横向布置 (3)第二章配筋设计 (4)2.1 面板配筋设计 (4)2.1.1活动铺板 (4)2.1.2 悬臂板 (6)2.2 横梁配筋设计 (9)2.3纵梁配筋计算 (11)第三章心得体会 (16)水闸工作桥课程设计第一章拟定工作桥尺寸1.1 工作桥纵向布置1.1.1 工作桥长度为便于安装,工作桥长度=两闸墩中心线距离-20~30mm=7000+500+500-20=7980mm但计算时工作桥长度仍用8000mm计算1.1.2 横梁位置:为简化计算,我们将地螺栓安装在横梁与纵梁相交处,不考虑其偏移。
横梁尺寸初步拟定为,高:500mm;宽:250mm.横梁上面的机墩取高:400mm;宽:250mm1.1. 3活动铺板为减轻吊装重量,面板做成活动铺板,简支在纵梁上。
活动铺板尺寸选用宽:655mm,长度1500+2 80=1660mm;高度:80mm。
中间共四块面板。
桥两边再每边两块。
总的横向布置图及尺寸如图所示:1.2 工作桥横向布置1、纵梁尺寸:高度:800;宽度:300.2、悬臂板:高度:端部取100,根部取200;宽度:500尺寸如图所示第二章 配筋设计 2.1 面板配筋设计 2.1.1活动铺板(1,5) 1)安装检修工况 a .荷载计算 板自重:g k =0.08655.0⨯⨯25=1.31KN/m g =G γ g k =1.0531.1⨯=1.3755KN/m一个绳鼓重:G k =6.54KN ,G=G γG k =6.54⨯1.05=6.867KN桥面活荷载不考虑b .计算简图和内力计算 mm a l l n 158********=+=+= mm h l l n 158********=+=+=mml l n 165015001.11.1=⨯==因此计算跨度取1580mm跨中弯矩:m KN l G gl M ∙=⨯+⨯⨯=⨯+=770.2458.1867.658.13755.18148120202)正常使用工况,持久状况 a .荷载:⨯⨯=655.008.0k g 25=1.31KN/m3755.131.105.1=⨯==k G g g γKN/m人群荷载:mKN b q q k Q /358.2655.032.1=⨯⨯==γb .跨中弯矩165.158.1)358.23755.1(81)(81220=⨯+=+=l q g M KN ·m从以上两种状态可知,安装工况下的弯矩值更大,取较大值 进行计算。
5孔水闸工作桥课程设计一、课程目标知识目标:1. 学生能理解5孔水闸工作桥的基本结构及其在水力工程中的作用;2. 学生能掌握5孔水闸工作桥的运行原理及相关的物理概念;3. 学生能描述5孔水闸工作桥在水利工程中的应用,以及其对水流调控的影响。
技能目标:1. 学生能通过分析案例,设计简单的水闸工作桥模型,并进行功能演示;2. 学生能运用数学和科学知识,进行水闸工作桥相关参数的计算和分析;3. 学生能利用图表、数据和口头报告等形式,清晰表达对5孔水闸工作桥的理解。
情感态度价值观目标:1. 培养学生对于水利工程建设的兴趣和认识,增强环境保护和资源节约意识;2. 培养学生合作探究的科学态度,形成批判性思维和问题解决的自信心;3. 通过对水闸工作桥的学习,激发学生对于现代水利工程技术的尊重和对于工程人员职业的认识。
本课程设计针对学生年级的特点,结合物理、数学等学科知识,注重实践操作和理论知识的结合,旨在提高学生的科学素养和工程实践能力。
课程目标具体明确,易于衡量,为教学设计和评估提供明确的方向。
二、教学内容1. 水利工程概述:介绍水利工程的基本概念、分类及其在我国的应用,以课本第三章第一节为基础,让学生对水利工程有整体认识。
2. 水闸结构及工作原理:详细讲解5孔水闸工作桥的结构组成、工作原理,以课本第三章第二节为主要教材,结合实际案例进行分析。
3. 水闸工作桥的设计与计算:引导学生学习水闸工作桥的设计原则、相关参数计算方法,以课本第三章第三节为参考,通过实例演示和练习,使学生掌握设计方法。
4. 水闸工作桥的应用与影响:分析水闸工作桥在实际水利工程中的应用,以及对周边环境、生态的影响,以课本第三章第四节为依据,培养学生的环境保护意识。
教学内容按照以下进度安排:第一课时:水利工程概述第二课时:水闸结构及工作原理第三课时:水闸工作桥的设计与计算第四课时:水闸工作桥的应用与影响教学内容具有科学性和系统性,与教材紧密关联,旨在帮助学生掌握5孔水闸工作桥的相关知识,为实际应用奠定基础。
水闸工作桥课程设计2..doc摘要:工程师经常需要了解如何设计水闸,这就需要完成一系列逐渐深入的步骤。
本文试图介绍水闸工作桥课程设计的具体流程与步骤,让学生能够有个清晰的设计思路,并可以实现该课程的有效性与效率。
首先,文中将从水闸基本原理入手,探讨水闸基本构造以及作用原理;其次,会详细描述水闸的设计过程,包括设计工作桥的结构及原理,以及计算各项指标的计算方法及原理;最后,将结合一个实例,概述水闸工作桥设计过程。
关键词:水闸π工作桥;设计过程1 引言水闸是一种能有效控制水流强度、减弱水流能量、改变水位的水利设施,是水利枢纽工程的重要部分。
水工枢纽工程的核心设施,功能及其重要,因此此项设施的设计都要经过多方综合考虑以及计算论证。
因此,本文将尝试从基础原理开始,介绍关于水闸工作桥设计过程的原琁及其计算方法,使学生能够有个清晰的认识,并能够完成该课程设计任务。
2 水闸基本原理及作用水闸是一种具有双向控制作用的大型水利工程,具有控制放流和充水两大作用。
它主要由平板闸(室闸和启闭池为代表)、立板闸(单侧开闸和双侧开闸)、碾压闸和活塞闸等可分类设施组成,一般都由底座和活塞闸首先构成,因此也称之为底座闸。
在水面高程变化小的堤防工程中,水闸工作桥形式通常为“棒型”,其主要由底座箱、水阀门、流量室、阀冠、计量池、运动机构、工作室和操作机构等组成,为水利工程中重要组成部分。
由于不同段洪水尺度和水位位移,水闸桥构造及尺度各不相同,其设计流程也多样化。
3 水闸设计过程(1)结构及原理的设计水闸的设计首先要考虑其工作桥的构造及原理,也就是水闸桥水位位移与水利枢纽各个洪水尺度的洪水处理量之间关系。
根据洪水处理量对应不同水位位移的要求,定出各个洪水尺度的处理量和位移水面最大高度,然后从理论上确定底座箱的形状及工作桥的型式,并根据本洱的要求计算水阀门、流量室、阀冠的各个尺寸及计量池、阀室等其他组成部分的尺寸。
(2)指标计算的原理及方法接下来对工作桥的型式与尺寸有一个大致的认识之后,可以通过各种计算方法来确定各个指标,从而满足设计要求。
某水闸工作桥课程设计一、课程目标知识目标:1. 学生能够理解水闸工作桥的基本概念、结构和功能;2. 学生能够掌握水闸工作桥在水利工程中的作用及影响;3. 学生能够了解水闸工作桥设计与施工的基本原理。
技能目标:1. 学生能够运用所学知识分析水闸工作桥的运行原理;2. 学生能够通过实际案例,设计简单的水闸工作桥方案;3. 学生能够运用相关工具进行水闸工作桥的简单施工与维护。
情感态度价值观目标:1. 学生培养对水利工程的兴趣,增强环保意识和水资源保护意识;2. 学生在学习过程中,培养合作精神、探究精神和批判性思维;3. 学生通过了解水闸工作桥在我国水利工程中的应用,增强国家自豪感和社会责任感。
课程性质:本课程为水利工程学科的一节实践性课程,结合学生年级特点,注重理论联系实际,提高学生的实践操作能力。
学生特点:学生具备一定的水利工程基础知识,具有较强的求知欲和动手能力,对实际工程有较高的兴趣。
教学要求:教师应充分运用多种教学手段,如案例分析、小组讨论、现场教学等,引导学生主动参与,提高教学效果。
同时,注重培养学生的创新能力和实际操作能力,使学生在实践中掌握水闸工作桥相关知识。
通过分解课程目标为具体学习成果,为后续教学设计和评估提供依据。
二、教学内容1. 水闸工作桥基础知识:- 水闸工作桥的定义、分类及功能;- 水闸工作桥在水利工程中的重要性;- 水闸工作桥的结构组成及工作原理。
2. 水闸工作桥设计与施工:- 水闸工作桥设计的基本原则与要求;- 水闸工作桥施工工艺及施工组织设计;- 水闸工作桥施工过程中的质量控制及安全管理。
3. 水闸工作桥案例分析:- 国内外典型水闸工作桥工程案例介绍;- 分析案例中的设计、施工及运行特点;- 从案例中提炼经验教训,为今后类似工程提供借鉴。
4. 实践操作与探究:- 设计简单的水闸工作桥方案;- 模拟施工过程,了解施工工艺;- 分析水闸工作桥在实际工程中的应用及效果。
教学内容安排与进度:第一课时:水闸工作桥基础知识;第二课时:水闸工作桥设计与施工;第三课时:水闸工作桥案例分析;第四课时:实践操作与探究。
水闸工作桥课程设计第一部:拟定工作桥尺寸一、工作桥纵向布置1、工作桥长度:为便于安装,工桥桥长度=两闸墩中心线距离-20~30mm=7000+500+500-20 =7980mm 但计算时工作桥长度仍用8000 mm计算。
2、横梁位置:为简化计算,我们将地螺栓安装在横梁与纵梁相交处,不考虑其偏移。
横梁尺寸初步拟定为,高:500;宽:250. 横梁上面的机敦取高:250;宽:250.3、活动铺板:为减轻吊装重量,面板做成活动铺板,简支在纵梁上。
活动铺板选用的,宽850;长度:1500+2*80=1660 ;高度:80。
中间共四块面板。
桥两边再一边一块板。
总的横向布置图及个尺寸如图所示:二、工作桥横向布置1、纵梁尺寸:高度:800;宽度:300。
2、悬臂板:高度:端部取100,根部取200;宽度:500尺寸如图所示:三、刚架布置(在此不计算)1、刚架高度计算用的高度:H=31.4-24.0-h实际高度:H+H1,其中:H1为柱插入杯口的高度。
H1需满足:a.大体为1.2~0.8倍柱长边尺寸;b.大于0.05H。
图3:钢桁架布置第二部:配筋一、面板配筋设计1、活动铺板1)安装检修工况: a 荷载计算板自重:0.080.8525 1.7/k g KN m =⨯⨯=1.05 1.71.785/G k g g KN m γ==⨯= 一个绳鼓重: 6.54k G KN =, 6.54 1.05 6.867G k G G KN γ==⨯= 桥面活载不考虑 b 计算简图和内力计算01500801580n l l a mm =+=+= 01500801580n l l h mm =+=+= 0 1.1 1.115001650n l l mm ==⨯=因此计算跨度取1580mmc.跨中弯矩:220011 6.867 1.581.785 1.58 3.268484p l M gl KN m ⨯⨯=+=⨯⨯+=∙2)正常使用工况,持久状况a.荷载:板自重 0.080.8525 1.7/k g KN m =⨯⨯=1.05 1.71.785/G k g g KN m γ==⨯=人群荷载 1.240.85 4.08/G k q q b KN m γ==⨯⨯=b.跨中弯矩:()2011 1.838M g q l KN m =⨯+=∙从以上两种状态可知,安装工况下的弯矩更大,取大值进行计算3)配筋计算:查表得25(),d 302dc mm a c mm==+=二类环境估计钢筋直径为=10mm,050h h a mm =-=由书2-7查k=1.2,采用C25混凝土,查表211.9/c f N mm =,面板用HPB335的钢筋,查表2300/y f N mm =800b mm =,6220 1.2 3.26100.15511.985050s c KM f bh α⨯⨯===⨯⨯,10.1690.850.468b ξξ=-=<=2011.98500.16950285.2300c s y f b h A mm f ξ⨯⨯⨯=== 0min 285.2/0.67%0.15%85050s A bh ρρ===>=⨯查附录3表1,选用6φ8(2302mm s A =)在受力钢筋内侧布置与受力钢筋垂直的分布钢筋,按要求取φ6@250。
水闸工作桥课程设计摘要一、课程目标知识目标:1. 学生能够理解水闸工作桥的基本概念、结构和功能;2. 学生能够掌握水闸工作桥在我国水利工程中的应用及重要性;3. 学生能够了解水闸工作桥设计与建设的原理及关键参数。
技能目标:1. 学生能够运用所学知识分析水闸工作桥的工作原理及影响因素;2. 学生能够通过实际案例分析,设计简单的水闸工作桥方案;3. 学生能够运用合作交流技巧,完成水闸工作桥模型的制作。
情感态度价值观目标:1. 培养学生对水利工程建设的兴趣和热情,增强环保意识和水资源保护观念;2. 培养学生严谨的科学态度,提高实践操作能力和解决问题的自信心;3. 培养学生团队协作精神,提高沟通与交流能力。
课程性质:本课程属于自然科学领域,结合实际工程案例,注重理论与实践相结合。
学生特点:六年级学生具备一定的观察、思考和动手能力,对水利工程有好奇心,但需加强实践操作和团队协作能力的培养。
教学要求:教师应关注学生个体差异,采用多样化的教学手段和方法,激发学生兴趣,提高学生的参与度和实践能力。
同时,注重培养学生的情感态度价值观,使其在学习过程中形成正确的价值观和科学态度。
通过分解课程目标为具体学习成果,为后续教学设计和评估提供依据。
二、教学内容1. 水利工程概述:介绍水利工程的基本概念、分类及在我国的发展现状,使学生了解水闸工作桥在水利工程中的地位。
参考教材章节:第一章 水利工程概述2. 水闸工作桥结构及功能:详细讲解水闸工作桥的结构组成、各部分功能及工作原理。
参考教材章节:第二章 水工建筑物 §2.3 水闸与工作桥3. 水闸工作桥设计原理:分析水闸工作桥的设计原理,包括选址、结构设计、材料选择等方面。
参考教材章节:第三章 水工建筑物设计 §3.2 水闸设计4. 水闸工作桥施工技术:介绍水闸工作桥的施工工艺、关键技术及质量控制。
参考教材章节:第四章 水工建筑施工 §4.3 水闸与工作桥施工5. 案例分析:分析典型水闸工作桥工程案例,使学生了解实际工程中的应用。
水闸工作桥课程设计新版一、课程目标知识目标:1. 学生能够理解水闸工作桥的基本概念、组成结构及其在水利工程中的作用。
2. 学生能够掌握水闸工作桥的运行原理,包括闸门的开启、关闭及调节水流的过程。
3. 学生能够了解水闸工作桥在我国水利设施中的应用案例,认识其重要性和实际意义。
技能目标:1. 学生能够运用所学的知识,分析水闸工作桥在设计中的关键因素,如选址、结构设计、材料选择等。
2. 学生能够通过小组合作,设计简单的水闸工作桥模型,提高动手操作能力和团队协作能力。
3. 学生能够运用所学知识,解决与水闸工作桥相关的实际问题,提高问题分析解决能力。
情感态度价值观目标:1. 学生能够认识到水利工程在我国社会发展中的重要性,增强对水利工程建设的兴趣和热情。
2. 学生能够培养关爱水资源、保护水环境的意识,提高社会责任感和环保意识。
3. 学生能够在学习过程中,体验科学探究的乐趣,培养严谨、务实的学习态度。
本课程针对初中年级学生,结合学科特点,注重理论与实践相结合,以培养学生的知识运用能力、动手操作能力和团队协作能力为主要目标。
在教学过程中,教师需关注学生的个体差异,提供有针对性的指导,确保学生能够达到预期的学习成果。
通过本课程的学习,使学生能够更好地理解和应用水闸工作桥的相关知识,提高解决实际问题的能力,同时培养对水利工程的兴趣和热爱。
二、教学内容1. 水利工程概述:介绍水利工程的基本概念、分类及在我国的发展现状,使学生了解水闸工作桥在水利工程中的地位和作用。
关联教材章节:第一章 水利工程概述2. 水闸工作桥的组成与结构:详细讲解水闸工作桥的各部分组成,如闸室、闸门、启闭机等,以及各部分的功能和相互关系。
关联教材章节:第二章 水闸工程3. 水闸工作桥的工作原理:阐述水闸工作桥的运行原理,包括闸门的开启、关闭及调节水流的过程,使学生掌握其工作原理。
关联教材章节:第二章 水闸工程4. 水闸工作桥的设计与施工:介绍水闸工作桥的选址、结构设计、材料选择等方面的知识,为学生设计水闸工作桥模型提供理论支持。
编号(学号):水工钢筋混凝土结构课程设计(2009级本科)题目水闸工作桥设计学院能源环境学院专业水利水电姓名指导教师完成日期 2009年 6 月 22 日水闸工作桥课程设计第一部分拟定工作桥尺寸一、工作桥纵向布置1、工作桥长度为便于安装,工作桥长度=两闸墩中心线距离-20~30mm=7000+500+500-20=7980mm 但计算时工作桥长度仍用8000mm计算2、横梁位置:为简化计算,我们将地螺栓安装在横梁与纵梁相交处,不考虑其偏移。
横梁尺寸初步拟定为,高:500mm;宽:250mm.横梁上面的机墩取高:400mm;宽:250mm3、活动铺板为减轻吊装重量,面板做成活动铺板,简支在纵梁上。
活动铺板尺寸选用宽:655mm,长度1500+2 80=1660mm;高度:80mm。
中间共四块面板。
桥两边再每边两块。
总的横向布置图及尺寸如图所示:二、工作桥横向布置1、纵梁尺寸:高度:800;宽度:300.2、悬臂板:高度:端部取100,根部取200;宽度:500尺寸如图所示三、刚架布置(在此不计算)1、刚架高度计算用的高度:H=31.05-24.0-h实际高度:H+H1,其中:H1为柱插入杯口的高度。
H1需满足:a.大体为1.2~0.8倍柱长边尺寸;b.大于0.05H。
第二部分 配筋设计一、面板配筋设计 1.活动铺板 1)安装检修工况 a .荷载计算板自重:g k =0.08655.0⨯⨯25=1.31KN/m g =G γ g k =1.0531.1⨯=1.3755KN/m一个绳鼓重:G k =6.54KN ,G=G γ G k =6.54⨯1.05=6.867KN 桥面活荷载不考虑 b .计算简图和内力计算158********=+=+=a l l n 15808015000=+=+=h l l n 165015001.11.1=⨯==n l l 因此计算跨度去1580mm跨中弯矩:m KN l G gl M ∙=⨯+⨯⨯=⨯+=770.2458.1867.658.13755.1814812020 2)正常使用工况,持久状况a .荷载:⨯⨯=655.008.0k g 25=1.31KN/m 3755.131.105.1=⨯==k G g g γKN/m 人群荷载:m KNb q q k G /358.2655.032.1=⨯⨯==γ b .跨中弯矩165.158.1)358.23755.1(811)(811220=⨯+⨯=+⨯=l q g M KN ·m从以上两种状态可知,安装工况下的弯矩值更大,取大值进行计算3)配筋计算查表得:c=25mm (二类环境),估计钢筋直径为d =10mm ,mm dc a 302=+= mm a h h 500=-=有书查表得:k=1.2,采用C25混凝土,查表2/9.11mm KN f c =,面板用HRB335的钢筋,查表2/300mm N f y =mm b 655=,171.0506559.1110770.22.1262=⨯⨯⨯⨯==o c s bh f KM α 468.085.0189.0211=<=--=b s ξαξ 2053.24530050189.06559.11mm f h b f A y c s =⨯⨯⨯==ξ %15.0%75.05065553.245min 0=>=⨯==ρρbh A s 查附录3表1,选用68φ(2302mm A s =)在受力钢筋内侧布置与受力钢筋垂直分布钢筋,按要求取250@6φ配筋如图所示绳鼓图2-3取1m板宽计算,由根部最大弯矩计算板的钢筋用量。