110KV变电站典型设计图
- 格式:pdf
- 大小:6.36 MB
- 文档页数:68
摘要电力已成为人类历史发展的主要动力资源,要科学合理的使用及分配电力,必须从工程的设计来提高电力系统的安全性、可靠性和运行效率,从而达到降低成本,提高经济效益的目的。
变电站是电力系统配电传输不可缺少的重要组成部分,它直接影响整个电力网络的安全和电力运行的经济成本,是联系发电厂和用户的中间环节,起着变换和分配电能的作用。
电气主接线是发电厂变电所电气部分的主体,电气主接线的拟定直接关系着全厂(所)电气设备的选择、配电装置的布置、继电保护和自动装置方式的确定,对电力系统的安全、可靠、经济运行起着决定的作用。
本设计针对110kV降压变电站进行电气部分设计,电压等级110kV/35kV/10kV;设计内容包括:变压器台数和容量的选择、主接线的选择、短路电流的计算、主要电器设备的选择和校验、继电保护及变电站防雷等。
设计中依据《电力工程设计手册,电气一次部分》、《发电厂、变电站电气部分》,《电力继电保护原理》《中小型变电所实用设计手册》《电气设备设计计算手册》《交流高压断路器订货技术条件》、《交流电气装置的过电压保护和绝缘配合》、《高压配电装置设计技术规程》等国家和电力行业有关110kV变电所设计、标准、规程、规范及国家有关安全、环保等强制性标准。
关键词:降压变电站电气设计目录第一章绪论 (1)第一节选题背景 (1)第二节选题意义 (1)第三节变电站发展概况 (1)第四节设计原始资料 (2)一、变电站的出线 (2)二、负荷情况 (2)三、线路长度 (2)第二章电气主接线设计及短路电流计算 (3)第一节电气主接线设计及主变压器容量选择 (3)一、电气主接线方案初选 (3)二、主接线方案比较 (3)三、主变压器的选择 (4)四、站用变压器的选择 (5)第二节短路电流计算 (5)一、短路电流的计算目的 (5)二、短路电流计算点的确定 (6)三、计算步骤 (6)四、变压器、线路及电抗器的参数计算 (6)五、系统网络化简 (8)K的短路计算 (8)六、110kV母线短路点1K的短路计算 (10)七、35KV母线短路点2K的短路计算 (11)八、10KV母线短路点3K的短路计算 (12)九、10KV出线短路点4第三章电气主设备的选择及校验 (14)第一节选择原则及规定 (14)一、一般原则 (14)二、校核电器的基本使用条件 (14)三、各回路最大持续工作电流 (14)第二节主设备选择及校验 (15)一、断路器的选择及校验 (15)二、隔离开关的选择及校验 (18)三、电流互感器的选择及校验 (21)四、电压互感器的选择 (26)五、避雷器的选择及检验 (28)六、母线的选择及校验 (30)七、熔断器的选择 (32)第四章主变保护整定计算及防雷接地计算 (34)第一节变压器继电保护 (34)一、变压器差动保护计算 (34)二、变压器过流保护及过负荷保护计算 (36)第二节防雷接地计算 (37)一、防雷计算 (37)二、接地计算 (39)总结 (41)致谢 ...........................................................................错误!未定义书签。
目录1 前言 (1)1.1 本文研究背景 (1)1.2 国内外研究现状 (1)1.2.1高压电气设备发展现状 (1)1.2.2变电所一次设备主接线方式的现状 (1)1.2.3变电站综合自动化二次回路现状 (2)1.2.4 变电站综合自动化的发展现状 (2)1.3 研究目的和意义 (2)2 110KV变电所初步设计说明书 (3)2.1主变压器选择 (3)2.1.1变压器绕组与调压方式的选择 (3)2.1.2变压器相数的选择 (3)2.1.3变压器容量和台数的选择 (3)2.1.4变压器的冷却方式 (4)2.2 电器主接线选择 (4)2.2.1主接线设计原则 (4)2.2.2主接线方式选择 (5)2.3 短路电流计算 (6)2.3.1短路电流计算的目的 (7)2.3.3短路电流计算的步骤 (8)2.3.4短路类型及其计算方法 (8)2.4.主变压器的选择 (9)2.4.1电气的选择原理 (9)2.4.2 高压断路器的选择和校验 (9)2.4.3 隔离开关选择 (10)2.4.4母线的选择 (10)2.4.5 电压互感器选择 (11)2.4.6 电流互感器的选择 (12)2.5配置全所的继电保护 (12)2.5.1 110kv侧进出线及母线的继电保护 (13)2.5.2 35kV侧进出线及母线的继电保护 (14)2.5.3 10kV侧出线的继电保护 (15)2.5.4 变压器的继电保护 (15)2.6 变电站自动化 (15)2.6.1变电站自动化的基本概念 (15)2.6.2变电站综合自动化系统应能实现的功能 (16)3 110KV变电所初步设计计算书 (17)3.1短路电流计算 (17)3.2断路器的选择 (18)3.2.1 110kV侧断路器的选择 (18)3.2.2 35kV侧断路器的选择 (19)3.2.3 10kV侧断路器的选择 (20)3.3 隔离开关的选择 (21)3.3.1 110kV侧隔离开关的选择 (21)3.3.2 35kV侧隔离开关的选择 (22)3.3.3 10kV侧隔离开关的选择 (22)3.4电流互感器的选择 (23)3.4.1 110kV进线及母联电流互感器选择 (23)3.4.2 35kV进线及母联电流互感器选择 (24)3.4.3 10kV进线及母联电流互感器选择 (24)3.5 继电保护的配置 (25)3.5.1 线路的继电保护配置 (25)3.5.2变压器的继电保护 (26)3.6 防雷保护计算 (27)4 结论 (27)后记: (27)参考文献: (28)附录: (30)图一总平面布置图图 (30)图二:电气设备接线图 (31)图三:避雷针保护范围图: (33)1 前言1.1 本文研究背景变电站是电力系统中不可缺少的重要环节,它担负着电能传递和电能重新分配的繁重任务,是联系发电厂和用户的中间环节,起着变换和分配电能的作用,对电网的安全和经济运行起着举足轻重的作用。
一、可研阶段1、变电站站址选择应结合系统论证工作,进行工程选站工作。
应充分考虑站用水源、站用电源、交通运输、土地用途等多种因素,重点解决站址的可行性问题,避免出现颠覆性因素。
(常规变电站投资2200~2400万,其中土建部分500万左右,线路投资70万/公里(轻冰),110万/公里(重冰)。
)变电站选择应尽量避开基本农田,无法避让的应优先选用占地少的变电站技术方案。
1.1 基本规定1.1.1 工程所在地区经济社会发展规划及站址选择过程概述。
1.1.2 根据系统要求,原则上应提出两个或两个以上可行的站址方案,如确实因各种难以克服的困难只能提供一个站址方案时,应提供充分的依据并作详细说明。
1.2 站址区域概况1.2.1 站址所在位置的省、市、县、乡镇、村落名称。
1.2.2 站址地理状况描述:站址的自然地形、地貌、海拔高度、自然高差、植被、农作物种类及分布情况。
1.2.3 站址土地使用状况:说明目前土地使用权,土地用途(建设用地、农用地、未利用地),地区人均耕地情况。
1.2.4 交通情况:说明站址附近公路、铁路、水路的现状和与站址位置关系,进所道路引接公路的名称、路况及等级。
1.2.5 与城乡规划的关系及可利用的公共服务设施。
1.2.6 矿产资源:站址区域矿产资源及开采情况,对站址安全稳定的影响。
1.2.7 历史文物:文化遗址、地下文物、古墓等的描述。
1.2.8 邻近设施:站址附近军事设施、通信电台、飞机场、导航台与变电站的相互影响;以及变电站对环境敏感目标(风景旅游区和各类保护区、医院、学校等)影响的描述。
1.3 站址的拆迁赔偿情况应说明站址范围内己有设施和拆迁赔偿情况。
1.4 出线条件按本工程最终规模出线回路数,规划出线走廊及排列秩序。
根据本工程近区出线条件,研究确定本期一次全部建设或部分建设变电站出口线路的必要性和具体长度。
1.5 站址水文气象条件1.5.1 水位:说明频率2%时的年最高洪水位;说明频率2%时的年最高内涝水位或历史最高内涝水位,对洪水淹没或内涝进行分析论述。
110kV变电站典型设计应用实例传统的110kV变电站主要以户外设计和安装为主,占地面积大,且设备容易被腐蚀,尤其在高污秽地区,还极易造成污闪事故的发生。
为了建设坚强电网,发挥规模优势,提高资源利用率,提高电网工程建设效率,国家电网公司在2005年提出“推广电网标准化建设,各级电网工程建设要统一技术标准,推广应用典型优化设计,节省投资,提高效益”。
典型设计坚持以“安全可靠、技术先进、保护环境、投资合理、标准统一、运行高效”的设计原则,采用模块化设计手段,做到统一性与可靠性、先进行、经济性、适应性和灵活性的协调统一。
海阳市供电公司积极响应国家电网公司的号召,积极推广110kV变电站典型设计。
本文就海阳市供电公司110kV变电站典型设计的应用实例予以阐述,以说明推广典型设计的重要意义。
1 110kV变电站典型设计应用实列海阳市供电公司2006年开始采用110kV变电站典型设计,到目前为止,已经完成3座110kV变电站的设计、建设工作。
从实际效果来看,具有较好的经济效益和社会效益,下面以110kV望石变电站为例对典型设计进行分析。
110kV望石变电站位于海阳市新建的临港产业区,该区域规划面积较小,但是电力负荷较为集中。
该区域包括以莱福士造船厂在内的多个用电大户正在兴建中,而山东核电设备制造公司已经投产。
根据该区域负荷预测及用电负荷性质,海阳市供电公司按照安全可靠、技术先进、投资合理、运行高效的原则,结合该站用电负荷集中、土地昂贵、临近海边(Ⅳ级污秽区)、电缆出线多等客观事实,对110kV望石变电站作了如下设计。
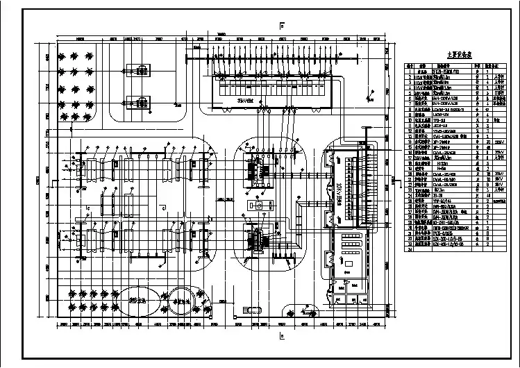
该站为半户内无人值班变电站(半户内布置方式即除主变压器以外的全部配电装置,集中布置在一幢主厂房的不同楼层的电气布置方式),变电站主体是生产综合楼,除主变压器外所有配电装置均安装在综合楼内。
以生产综合楼和主变压器为中心,四周布置环形道路,大门入口位于站区东南角,正对生产综合楼主入口。
综合楼共两层,一层为10kV配电装置室、电容器室、接地变压器室及主控室,二层为110kV GIS室。
南方电网2012年110kV变电站典型设计南方电网公司变电站标准设计() 第三卷110kV变电站第六册110B -G1a方案南方电网公司2012年12月110kV~500kV 一、设计说明目录 1 总的部分............................................................... ..................................................................... ..................................................................... ..................................................................... ..................................................................... ................................................... 1 适用范围............................................................... ..................................................................... ..................................................................... .................................................................................................................. 1 主要技术特点............................................................... ..................................................................... ..................................................................... ..................................................................... ..................................................................... ..................................... 1 使用边界条件............................................................... ..................................................................... ..................................................................... ..................................................................... ..................................................................... ..................................... 1 方案的模块拼接............................................................... ..................................................................... ..................................................................... ..................................................................... ..................................................................... ................................. 1 绿色设计原..................................................................... ..................................................................... ..................................................................... ..................................................................... ..................................... 1 模块的电气二次部分............................................................... ..................................................................... ..................................................................... ..................................................................... ..................................................................... ......................... 2 模块的建构筑物............................................................... ..................................................................... ..................................................................... ..................................................................... ..................................................................... ................................. 2 本模块主要技术经济指标............................................................... .......................................................................................................................................... ..................................................................... ................. 2 2 电气一次部分............................................................... ..................................................................... ..................................................................... ..................................................................... ..................................................................... ........................................... 3 电气主接线............................................................... ..................................................................... ..................................................................... ..................................................................... ..................................................................... ......................................... 3 主要电气设备选择............................................................... ..................................................................... ..................................................................... ..................................................................... .................................................................................................. 3 绝缘配合与设备的绝缘水平............................................................... ..................................................................... ..................................................................... ..................................................................... ..................................................................... ............. 4 电气总平面布置............................................................... ..................................................................... ..................................................................... ..................................................................... ..................................................................... ................................. 5 站用电及照明............................................................... ..................................................................... ..................................................................... ..................................................................... ..................................................................... ..................................... 6 防雷接地............................................................... .......................................................................................................................................... ..................................................................... ............................................. 6 电缆设施............................................................... ..................................................................... ..................................................................... ..................................................................... ..................................................................... ............................................. 6 3 电气二次部分............................................................... ..................................................................... ..................................................................... ..................................................................... ..................................................................... ........................................... 7 系统继电保护............................................................... ..................................................................... ..................................................................... .......................................................................................................... 7 安全自动装置............................................................... ..................................................................... ..................................................................... ..................................................................... ..................................................................... ..................................... 8 调度自动化............................................................... ..................................................................... ..................................................................... ..................................................................... ..................................................................... ......................................... 8 电能采集系统............................................................... ..................................................................... ..................................................................... ..................................................................... ..................................................................... ..................................... 9 二次安全防护.................................................................................................................................... ..................................................................... ..................................................................... ..................................... 9 元件保护............................................................... ..................................................................... ..................................................................... ..................................................................... ..................................................................... ............................................. 9 计算机监控系统............................................................... ..................................................................... ..................................................................... ..................................................................... ..................................................................... ................................. 9 同期............................................................... ..................................................................... ..................................................................... ........................................................................................................................ 11 信号系统............................................................... ..................................................................... ..................................................................... ..................................................................... ..................................................................... ........................................... 11 直流系统............................................................... ..................................................................... ..................................................................... ..................................................................... ..................................................................... ......................................... 12 交流不间断电源系统............................................................... ..................................................................... ..................................................................... ..................................................................... ..................................................................... ..................... 13 时间同步系..................................................................... ..................................................................... ..................................................................... ..................................................................... ................................ 13 电能质量监测系统............................................................... ..................................................................... ..................................................................... ..................................................................... ..................................................................... ......................... 13 视频及环境监测系统............................................................... ..................................................................... ..................................................................... ..................................................................... ..................................................................... ..................... 13 消防及火灾自动报警系统............................................................... .......................................................................................................................................... ..................................................................... ..................................................................... ............. 14 二次设备的布置............................................................... ..................................................................... ..................................................................... ..................................................................... ..................................................................... ............................. 14 抗干扰措施及二次电缆的选择............................................................... ..................................................................... ..................................................................... ..................................................................... ..................................................................... ..... 14 二次系统防雷............................................................... ..................................................................... ..................................................................... ..................................................................... ...................................................................................................... 14 4 电力系统通信............................................................... ..................................................................... ..................................................................... ..................................................................... ..................................................................... .. (15)通信系统业务要求............................................................... ..................................................................... ..................................................................... ..................................................................... ..................................................................... ........................... 15 设备配置原则............................................................... ..................................................................... ..................................................................... ..................................................................... ..................................................................... ................................... 16 通信设备布置要求.................................................................................................................................... ..................................................................... ..................................................................... ........................... 16 5 土建部分............................................................... ..................................................................... ..................................................................... ..................................................................... ..................................................................... ................................................. 17 变电站总体布置............................................................... ..................................................................... ..................................................................... ..................................................................... ..................................................................... ............................... 17 建筑设计............................................................... ..................................................................... ..................................................................... ................................................................................................................ 18 结构设计............................................................... ..................................................................... ..................................................................... ..................................................................... ..................................................................... ........................................... 19 供暖通风与空气调节............................................................... ..................................................................... ..................................................................... ..................................................................... ..................................................................... ....................... 20 给水排水............................................................... ..................................................................... ..................................................................... ..................................................................... ..................................................................... ........................................... 20 消防.................................................................................................................................... ..................................................................... ..................................................................... (21)1 总的部分适用范围本方案适用于远期2台主变建设规模的110kV GIS全户内变电站。
110kV变电站典型设计应用实例传统的110kV变电站主要以户外设计和安装为主,占地面积大,且设备容易被腐蚀,尤其在高污秽地区,还极易造成污闪事故的发生。
为了建设坚强电网,发挥规模优势,提高资源利用率,提高电网工程建设效率,国家电网公司在2005年提出“推广电网标准化建设,各级电网工程建设要统一技术标准,推广应用典型优化设计,节省投资,提高效益”。
典型设计坚持以“安全可靠、技术先进、保护环境、投资合理、标准统一、运行高效”的设计原则,采用模块化设计手段,做到统一性与可靠性、先进行、经济性、适应性和灵活性的协调统一。
海阳市供电公司积极响应国家电网公司的号召,积极推广110kV变电站典型设计。
本文就海阳市供电公司110kV变电站典型设计的应用实例予以阐述,以说明推广典型设计的重要意义。
1 110kV变电站典型设计应用实列海阳市供电公司2006年开始采用110kV变电站典型设计,到目前为止,已经完成3座110kV变电站的设计、建设工作。
从实际效果来看,具有较好的经济效益和社会效益,下面以110kV望石变电站为例对典型设计进行分析。
110kV望石变电站位于海阳市新建的临港产业区,该区域规划面积较小,但是电力负荷较为集中。
该区域包括以莱福士造船厂在内的多个用电大户正在兴建中,而山东核电设备制造公司已经投产。
根据该区域负荷预测及用电负荷性质,海阳市供电公司按照安全可靠、技术先进、投资合理、运行高效的原则,结合该站用电负荷集中、土地昂贵、临近海边(Ⅳ级污秽区)、电缆出线多等客观事实,对110kV望石变电站作了如下设计。
该站为半户内无人值班变电站(半户内布置方式即除主变压器以外的全部配电装置,集中布置在一幢主厂房的不同楼层的电气布置方式),变电站主体是生产综合楼,除主变压器外所有配电装置均安装在综合楼内。
以生产综合楼和主变压器为中心,四周布置环形道路,大门入口位于站区东南角,正对生产综合楼主入口。
综合楼共两层,一层为10kV配电装置室、电容器室、接地变压器室及主控室,二层为110kV GIS室。