12J201平屋面建筑构造 003
- 格式:pdf
- 大小:27.04 KB
- 文档页数:1
12J201平屋面建筑构造图集(完整版)一、图集概述本图集为12J201平屋面建筑构造图集的完整版,旨在为建筑师、设计师、施工人员及业主提供一套全面、系统的平屋面建筑构造解决方案。
图集包含了一系列详细的施工图纸和技术说明,涵盖了平屋面的各个方面,包括屋面防水、保温、隔热、排水、绿化等。
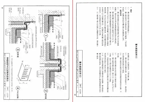
二、图集内容1. 屋面防水系统在本图集中,我们详细展示了平屋面防水系统的构造层次,包括基层处理、防水层、保护层等。
同时,针对不同防水材料(如SBS/APP 改性沥青防水卷材、自粘性防水卷材等)的施工工艺进行了详细说明。
2. 屋面保温隔热系统图集提供了多种保温隔热材料的选用及施工方法,包括挤塑聚苯板、岩棉板、泡沫玻璃等。
针对不同地区的气候特点,我们还提供了相应的保温隔热方案。
3. 屋面排水系统本图集详细介绍了平屋面排水系统的设计原则、构造层次及施工要点。
包括排水坡度、排水沟、排水管、雨水斗等部分的设置与安装。
4. 屋面绿化系统为满足现代建筑绿色环保的需求,本图集提供了多种屋面绿化方案,包括屋顶花园、屋顶草坪等。
从绿化层的构造、植物选择、养护管理等方面进行了详细阐述。
5. 屋面细部构造图集中还包含了平屋面建筑的各种细部构造,如檐口、女儿墙、通风道、采光井等。
这些细部构造的合理设计,有助于提高屋面的整体性能。
三、适用范围本图集适用于新建、改建、扩建的各类平屋面建筑项目,包括住宅、商业、办公、教育、医疗等建筑类型。
使用者可根据项目实际情况,结合本图集进行设计、施工和验收。
四、图集特点1. 实用性强:本图集紧密结合实际工程需求,所有构造细节均来源于丰富的实践经验,确保了设计方案的实用性和可操作性。
2. 更新及时:我们紧跟行业发展,及时更新了最新的材料、技术和规范要求,确保图集内容的先进性和准确性。
3. 图文并茂:图集采用清晰的图纸和详细的文字说明相结合的方式,使读者能够轻松理解各个构造层次和施工要点。
4. 灵活性高:本图集提供了多种构造方案,设计师可根据项目特点和业主需求,灵活选择和调整设计方案。