12J201平屋面建筑构造 083
- 格式:pdf
- 大小:24.71 KB
- 文档页数:1
目录一、编制依据 (2)二、工程概况 (2)三、施工准备 (3)四、施工操作工艺 (4)五、质量标准 (16)六、成品保护 (20)七、安全措施 (21)八、施工注意事项 (22)一、编制依据1、《平屋面建筑构造》12J2012、《屋面工程技术规范》GB50345-20123、《屋面工程质量验收规范》GB50207-20124、108生命医学院配套施工图纸5、《宁波大学科学技术学院迁建工程工程施工组织设计》二、工程概况本工程为108生命医学院,屋面防水等级为Ⅱ级,防水层合理使用年限为15年,屋面构造如下:有保温非上人屋面建筑做法一览表工序建筑做法(从下至上)面层40厚细石混凝土保护层,内配φ6@200双向钢筋网片(分仓缝6m*6m,钢筋网在缝处断开,缝内满填氯丁橡胶油膏,缝上加铺200宽防水卷材)隔离层10厚低强度等级砂浆隔离层防水层4厚SBS改性沥青防水卷材防水层找平层20厚1:2.5水泥砂浆找平层保温层90厚挤塑聚苯板(XPS)保温层找坡层最薄处30厚泡沫混凝土找坡层,随捣随抹平(仅用于建筑找坡屋面)防水层 1.5厚聚氨酯防水涂料找平层20厚1:2.5水泥砂浆找平层结构层钢筋混凝土屋面板,表面扫净有保温坡屋面建筑做法一览表工序建筑做法(从下至上)面层机制平瓦挂瓦条30*30(h),中距按瓦材规格顺水条30*30(h)@500保护层40厚细石混凝土保护层,内配φ6@200双向钢筋网片(分仓缝6m*6m,钢筋网在缝处断开,缝内满填氯丁橡胶油膏,缝上加铺200宽防水卷材)防水层3厚SBS改性沥青防水卷材防水层找平层15厚1:2.5水泥砂浆找平层保温层30厚挤塑聚苯板(XPS)保温层防水层 1.5厚聚氨酯防水涂料找平层20厚1:2.5水泥砂浆找平层结构层钢筋混凝土屋面板,表面扫净三、施工准备1、材料要求非上人屋面保温材料采用90mm厚XPS挤塑聚苯板,坡屋面采用30厚XPS挤塑聚苯板,要求其密度为25kg/m³、导热系数0.03W/(m.k)、蓄热系数0.32W/(m².k)。
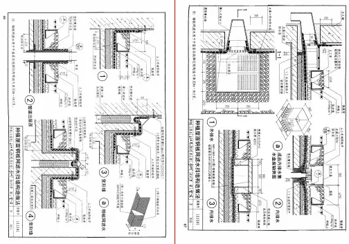
12J201平屋面建筑构造图集(完整版)一、图集概述本图集为12J201平屋面建筑构造图集的完整版,旨在为建筑师、设计师、施工人员及业主提供一套全面、系统的平屋面建筑构造解决方案。
图集包含了一系列详细的施工图纸和技术说明,涵盖了平屋面的各个方面,包括屋面防水、保温、隔热、排水、绿化等。
二、图集内容1. 屋面防水系统在本图集中,我们详细展示了平屋面防水系统的构造层次,包括基层处理、防水层、保护层等。
同时,针对不同防水材料(如SBS/APP 改性沥青防水卷材、自粘性防水卷材等)的施工工艺进行了详细说明。
2. 屋面保温隔热系统图集提供了多种保温隔热材料的选用及施工方法,包括挤塑聚苯板、岩棉板、泡沫玻璃等。
针对不同地区的气候特点,我们还提供了相应的保温隔热方案。
3. 屋面排水系统本图集详细介绍了平屋面排水系统的设计原则、构造层次及施工要点。
包括排水坡度、排水沟、排水管、雨水斗等部分的设置与安装。
4. 屋面绿化系统为满足现代建筑绿色环保的需求,本图集提供了多种屋面绿化方案,包括屋顶花园、屋顶草坪等。
从绿化层的构造、植物选择、养护管理等方面进行了详细阐述。
5. 屋面细部构造图集中还包含了平屋面建筑的各种细部构造,如檐口、女儿墙、通风道、采光井等。
这些细部构造的合理设计,有助于提高屋面的整体性能。
三、适用范围本图集适用于新建、改建、扩建的各类平屋面建筑项目,包括住宅、商业、办公、教育、医疗等建筑类型。
使用者可根据项目实际情况,结合本图集进行设计、施工和验收。
四、图集特点1. 实用性强:本图集紧密结合实际工程需求,所有构造细节均来源于丰富的实践经验,确保了设计方案的实用性和可操作性。
2. 更新及时:我们紧跟行业发展,及时更新了最新的材料、技术和规范要求,确保图集内容的先进性和准确性。
3. 图文并茂:图集采用清晰的图纸和详细的文字说明相结合的方式,使读者能够轻松理解各个构造层次和施工要点。
4. 灵活性高:本图集提供了多种构造方案,设计师可根据项目特点和业主需求,灵活选择和调整设计方案。