柱的钢筋构造
- 格式:ppt
- 大小:1.84 MB
- 文档页数:26
构造柱钢筋一、引言钢筋是混凝土结构中的重要构造材料之一,对于柱来说承载和传递荷载的能力至关重要。
本文将介绍如何构造柱钢筋,包括柱的布置原则、钢筋的直径、间距和截面积等要求,以及一些常见的柱钢筋布置方法。
二、柱钢筋布置原则柱钢筋的布置需要满足以下几个原则:1.合理布置:柱钢筋应按照设计要求合理布置,以确保柱的强度、刚度和稳定性。
2.荷载传递:钢筋应布置在能传递荷载的位置,如柱顶、柱身和柱底部。
3.保护层要求:柱的钢筋应有足够的保护层厚度,以防止钢筋锈蚀,通常保护层厚度为柱直径的1.5倍。
4.纵向钢筋配筋率:柱的纵向钢筋配筋率通常在1%到4%之间,根据具体情况确定。
5.横向钢筋配筋率:柱的横向钢筋配筋率通常在1%到3%之间,根据具体情况确定。
三、柱钢筋直径、间距和截面积要求1.纵向钢筋直径:纵向钢筋的直径一般为12mm、14mm、16mm、18mm等常用规格,根据柱的尺寸和设计要求选择合适的直径。
2.纵向钢筋间距:纵向钢筋的间距取决于柱截面尺寸和承载荷载大小,一般建议在4倍钢筋直径到6倍柱厚之间。
3.纵向钢筋截面积:纵向钢筋截面积的计算可以按照钢筋的配筋率要求进行,或按照承载力设计进行。
4.横向钢筋直径:横向钢筋的直径一般为6mm、8mm、10mm等常用规格,根据柱的尺寸和配筋要求选择合适的直径。
5.横向钢筋间距:横向钢筋的间距一般在柱截面范围内均匀布置,间距的具体要求可以根据设计要求和构造特点来确定。
四、常见的柱钢筋布置方法1.矩形柱布置:矩形柱钢筋布置通常采用四根对角纵向钢筋和横向钢筋进行配筋,纵向钢筋尽量靠近柱角,并在横向钢筋与纵向钢筋交叉处进行交叉绑扎。
2.圆形柱布置:圆形柱钢筋布置通常采用圆形环绕纵向钢筋和横向钢筋进行配筋,纵向钢筋均匀分布于柱周向,并在与横向钢筋相交处进行交叉绑扎。
3.异形柱布置:异形柱钢筋布置根据柱的形状和结构特点进行设计,可以根据设计要求进行合理布置纵向钢筋和横向钢筋,保证柱的强度和稳定性。
柱钢筋的构造要求
柱钢筋是混凝土结构中用于增强和支撑混凝土柱的钢筋。
为了保证柱钢筋的质量和稳定性,需要满足以下构造要求:
1. 柱钢筋应符合设计图纸和规范的要求,包括直径、长度、弯曲度等。
2. 钢筋品种应符合设计规范的要求,例如HRB400 等级的钢。
3. 柱内应设置足够数量的纵向钢筋,以满足设计荷载的要求。
纵向钢筋的间距、直径和层数应符合设计规范的要求。
4. 纵向钢筋应该沿轴线布置,并且应在柱端部延伸进入节点区域并弯钩固定。
5. 端部钢筋的长度和弯钩长度应满足相关规范的要求,以确保柱顶和柱底能充分利用端部钢筋的抗弯和抗剪承载力。
6. 柱横向钢筋的间距、直径和层数应符合规范的要求,以提高柱的整体稳定性和抗震性能。
7. 柱钢筋的弯曲半径应符合规范的要求,以确保在弯曲过程中不会发生裂纹和变形。
总之,柱钢筋的构造要求是为了保证钢筋的质量和稳定性,从而提高混凝土柱的整体力学性能。
柱钢筋的构造要求柱钢筋是建筑结构中不可或缺的一部分,它承受着建筑物的重量和荷载,保证了建筑物的稳定性和安全性。
因此,柱钢筋的构造要求非常重要,下面我们来详细了解一下。
1. 钢筋的种类和规格柱钢筋的种类和规格应根据设计要求和结构荷载来确定。
一般来说,柱钢筋的种类有普通钢筋、高强度钢筋、预应力钢筋等。
而规格则根据柱的截面尺寸和受力情况来选择,一般为直径为12mm、14mm、16mm、18mm、20mm等。
2. 钢筋的数量和布置柱钢筋的数量和布置应根据设计要求和结构荷载来确定。
一般来说,柱钢筋的数量应保证其承受荷载的能力,同时也要考虑到施工的方便性和经济性。
而布置则应根据柱的受力情况和截面形状来确定,一般为纵向钢筋和横向钢筋交错布置。
3. 钢筋的加工和连接柱钢筋的加工和连接应符合相关标准和规范。
一般来说,钢筋的加工应采用机械加工,保证其尺寸和形状的精度。
而连接则应采用焊接、机械连接或螺纹连接等方式,保证连接的牢固性和稳定性。
4. 钢筋的保护和防腐柱钢筋的保护和防腐应根据设计要求和环境条件来确定。
一般来说,钢筋的保护应采用混凝土覆盖、防腐涂料等方式,保证其不受外界环境的侵蚀和损坏。
而防腐则应采用防腐涂料、防腐剂等方式,保证其长期使用不受腐蚀。
5. 钢筋的质量和检验柱钢筋的质量和检验应符合相关标准和规范。
一般来说,钢筋的质量应符合国家标准和行业标准,保证其力学性能和化学成分的合理性。
而检验则应采用非破坏性检测、破坏性检测等方式,保证其质量和性能符合设计要求。
柱钢筋的构造要求非常重要,它关系到建筑物的稳定性和安全性。
因此,在设计和施工过程中,应严格按照相关标准和规范进行,保证柱钢筋的质量和性能符合设计要求,从而保证建筑物的安全和可靠。
构造柱钢筋植筋1. 介绍柱钢筋植筋是建筑工程中常用的一种构造方法,用于加固和增强柱子的承载能力。
本文将详细介绍柱钢筋植筋的定义、作用、施工流程以及注意事项。
2. 定义柱钢筋植筋是指在混凝土柱体内部布置钢筋,以增加柱子的强度和稳定性。
通过将钢筋嵌入混凝土中,可以有效地抵抗柱子在受力时产生的弯曲和剪切力,提高整体结构的稳定性。
3. 作用3.1 增加承载能力钢筋植筋可以增加柱子的承载能力,使其能够承受更大的荷载。
在建筑中,柱子是主要承担纵向荷载和部分横向荷载的结构元素,通过合理布置和连接钢筋,可以提高柱子的抗压、抗弯和抗剪能力。
3.2 提高结构稳定性钢筋植筋可以提高柱子的整体稳定性,减少结构在地震等外力作用下的变形和破坏。
钢筋能够有效地吸收和分散荷载,避免柱子发生严重的弯曲或断裂。
3.3 防止开裂和渗漏柱钢筋植筋还可以有效地防止混凝土柱体出现开裂和渗漏的问题。
钢筋能够增加混凝土的抗拉强度,降低开裂风险;钢筋与混凝土的粘结作用可以阻止水分和气体渗入柱子内部。
4. 施工流程柱钢筋植筋的施工流程包括以下几个步骤:4.1 准备工作施工前需要进行准备工作,包括确定植筋位置、规格和数量,并准备好所需的钢筋材料、模板和支撑等。
4.2 模板安装根据设计要求,安装好柱子的模板,并进行调整和固定,确保模板位置准确无误。
4.3 钢筋加工根据设计图纸要求,对钢筋进行加工。
包括剪断钢筋,弯曲成所需形状,并进行清理和防锈处理。
4.4 钢筋安装将加工好的钢筋按照设计要求布置在模板内,注意保持钢筋的准确位置和间距,并使用绑扎工具将钢筋牢固地绑扎在一起。
4.5 支撑和固定在钢筋安装完成后,需要设置支撑和固定措施,以防止钢筋移位或变形。
可以使用支架、支撑杆等工具进行支撑,并使用绳索、夹具等固定住钢筋。
4.6 混凝土浇注当所有的钢筋安装和固定工作完成后,进行混凝土的浇注。
浇注时要注意控制浇注速度和浇注高度,保证混凝土充分填充到钢筋之间,并通过振捣等方式排除气泡。
构造柱钢筋绑扎规范要求柱钢筋绑扎是土木工程建设中常见的一项工作,对于建筑物的承载力和稳定性起到至关重要的作用。
为了保证钢筋绑扎的质量和安全性,制定了一系列的规范和要求。
以下是关于柱钢筋绑扎的规范要求的详细介绍:一、材料要求:1.钢筋:采用普通碳素结构钢的扭转冷拔圆钢筋或基于GB/T1499.2-2024标准的钢筋。
2. 绑扎线:应采用合格的捆扎线,标准线径为1.6mm,强度不低于1600MPa。
二、钢筋排布要求:1.钢筋芯距:柱的钢筋芯距应符合设计要求,并在施工过程中进行严格的控制,确保准确性和一致性。
2.钢筋质量:钢筋必须完全嵌入混凝土内部,且不得有裂缝、锈蚀、弯曲或其他缺陷。
三、绑扎工艺要求:1.绑扎步骤:钢筋绑扎工艺应按照绑扎图纸上的要求执行,包括钢筋的排布、绑扎工序、节点处理等。
绑扎的起始点和结束点应尽量选择在柱身非受力区域。
2.绑扎密度:柱钢筋绑扎的密度应符合设计要求,钢筋之间的间距不应大于规定的最大间距。
绑扎线的张力应使钢筋之间紧密连接,严禁存在松动或钢筋交叉错绑情况。
3.绑扎长度:每道绑扎的钢筋长度应符合设计要求,两道绑扎的钢筋交错绑扎的长度应符合规范要求。
钢筋末端不得悬浮在混凝土外部。
四、绑扎质量判定:1.钢筋是否牢固:绑扎完成后的钢筋应稳固牢牢地固定在柱体内部,不得存在松动、脱落或突出的现象。
2.钢筋之间的间距和交叉情况:钢筋之间的间距应符合规范要求,不得出现大于规定间距或钢筋之间交叉错绑的情况。
3.绑扎线质量:绑扎线应牢固、紧密地固定在钢筋上,不得存在松动、脱落或断裂的现象。
五、绑扎安全注意事项:1.操作人员必须穿戴好相关的防护用品,包括手套、护目镜等,以保障人身安全。
2.绑扎线和工具使用时应注意防护,避免钢筋绑扎线和其他尖锐工具切割或损坏。
3.绑扎过程中要注意固定绑扎线,避免绑扎线自行松动或脱落,导致钢筋绑扎的松散和不牢固。
综上所述,柱钢筋绑扎的规范要求包括材料要求、钢筋排布要求、绑扎工艺要求、绑扎质量判定和绑扎安全注意事项等。
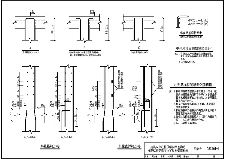
柱变截面纵向钢筋构造柱是建筑结构中起承重作用的构件,其变截面纵向钢筋的布置和构造对于柱的抗力性能起着重要的作用。
下面我们将介绍柱变截面纵向钢筋的构造。
柱的变截面中,纵向钢筋的布置通常按照受力和构造要求进行设计。
起到受力的纵向钢筋一般按正截面的最大弯矩来确定,同时要考虑柱的剪力和轴压力等作用下的应力要求。
在柱的变截面纵向钢筋的构造中,常见的有以下几种形式:1. 矩形交叉型钢筋构造:这是一种比较常见的柱纵向钢筋构造。
在柱的截面中,将一根钢筋分成两段,分别延纵向和横向绕过其他横向钢筋,形成十字交叉型的构造。
这种构造能够增强柱的受力性能和抗震性能。
2. 土字形钢筋构造:在柱的截面中,采用一字型或者口字型的构造布置纵向钢筋。
这种构造通过将纵向钢筋在柱截面中交叉绕制,能够提高钢筋的受力性能和柱的整体刚度。
3. 锁口式钢筋构造:在柱的变截面中,将纵向钢筋的两端通过套筒或者焊接等方式连接起来,形成锁口式钢筋构造。
这种构造能够使得纵向钢筋之间形成一定的联系,增强柱的整体抗震性能和受力性能。
在柱的变截面纵向钢筋的构造中,需要注意以下几点:1. 钢筋的保护层:柱的纵向钢筋应有足够的保护层,以保证钢筋不受腐蚀和损坏。
这样能够有效延长柱的使用寿命和提高柱的耐久性。
2. 纵向钢筋的间距与径向距离:柱的纵向钢筋的间距和径向距离应按照设计要求进行布置。
间距过小会增加工作量和成本,而间距过大则会影响柱的强度和稳定性。
3. 纵向钢筋的连接:柱的纵向钢筋在连接时要注意连接部位的整体性能,避免出现断裂或者拉伸现象。
连接方式可以采用焊接、套筒连接等方式。
4. 钢筋的锚固:柱的纵向钢筋在连接时需要进行良好的锚固,以保证纵向钢筋与混凝土之间的黏结性能。
锚固的方式可以是预埋锚筋或者焊接等方式。