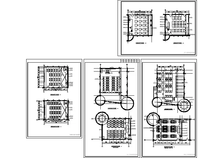
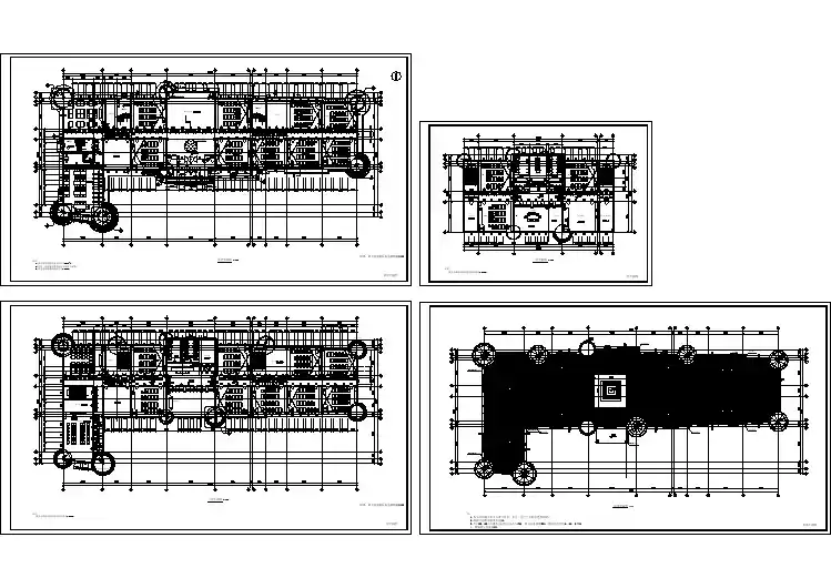
学生食堂河教学楼怡礼堂多功能厅体育馆学生宿舍食堂办公楼教学楼教学楼图书馆锅炉房幼儿园育教工食堂人园田径场街游泳馆变电所水泵房车84%%d0'0"规划路207.5272%%d34'40"后勤服务楼(底层为汽车库)水箱房锅炉房变电所29262827学生公寓D栋学生公寓E栋待建学生公寓F栋待建学生公寓G栋待建学生公寓H栋待建学生公寓J栋待建学生公寓K栋待建学生公寓L栋待建学生公寓M栋212223242517181920体育馆体育场待建体育场1#食堂待建大学生活动中心待建食堂学生公寓A栋学生公寓B栋学生公寓C栋1213141516891011教学主楼教学楼群2号教学楼群3号教学楼群4号学校管理中心图书馆教学楼群1号37654楼号12名称6#自行车停车场5#自行车停车场4#自行车停车场3#自行车停车场XWVU2#自行车停车场1#自行车停车场5#室外停车场4#室外停车场3#室外停车场2#室外停车场1#室外停车场2#球场1#球场PTSRQNMLK器械场枯山水育人河景观塔小公园校训碑下沉广场纪念亭同心广场EJHGFDCBA库1:2000区域位置图圆心%%P0.000120120C1818-0.600上上学生公寓 座A学生公寓 座B学生公寓 座C80120,,4FMA4下值班室下上170主校门路A -40.00B -30.00118.88118.88A 095 9911152T9UABH45V34道90%%d118.44A 0.00A -40.00B 605.00118.44B 555.00干A 475.00B -30.00院118.16学162.03199.0916L740.5261X2J10上67WC8上93PQ411KA 475.00B 605.00117.73市1083.58城5561456155626390%%d5330119.00(%%p0.00)30校医院2728292141C-123124学生宿舍32学术活动中心32泵站泵站31待建学生公寓N栋522222255未来发展教学楼上25.40m10.82m 2 2 221.37m上KPA 807.500B 274.00015mA 859.789B 55.614A 807.500B 208.370A 865.100B 190.29410mGA 806.930B 289.3306HA 807.830B 339.73036E22mA 886.043B 191.644FB 300.130A 880.6906B 339.525B 273.479A 912.657A 887.290B 362.8306B 362.830A 836.230BA 819.930B 436.010B 436.010A 871.890CA 923.330B 425.21066建筑基底总面积ADA 937.9216B 362.830A 939.6306A 906.918B 258.16567.50 15.00 7.50 22.65 17.00 15.00 9.64 19.58 37.74 12.44 10.00 10.00 35.00 10.30 10.00 23.04 7.82 8.18 66435555666宿舍宿舍宿舍宿舍宿舍宿舍宿舍宿舍学生活动中心食堂3101583M20857M10500M总建筑面积名称宿舍食堂学生活动中心666总用地139964.2M132940M37766.1M建设用地道路用地总建筑面积容积率建筑密度绿地率222222177730.3M20.9526593M建筑基地面积219%50.2%NNNA区技术经济指标食品研发食品研发食品研发药物研究药物研究药物研究药物研究博士后工作站66655555552233试验种植用地:60000M实验室厂房22222240549M21767M29790M总建筑面积名称药物研究试验室食品研发实验室博士后工作站实验室222中式快餐实验室厂房6218M214672M29744M2总用地 265421.4M128068M59240M建设用地道路用地总建筑面积容积率建筑密度绿地率222324661.4M20.4834966M建筑基地面积213.2%60.1%B区技术经济指标5845M2244M5213M7992M厂房厂房厂房厂房厂房中心广场主题雕塑2主人口18规划路28学院路60.00 40.00 50.00 60.00 50.00 A区规划界线B区规划界线A区各用房面积表B区各用房面积表规划路17xx大学新校区规划方案(一)}1:2000中国专业人士的网络家园;因为专业,所以完美市场部:ivpmarket@ 技术部:ivptech@网易 NetEase电气在线 编辑部:ivpinfo@==中国专业人士的网络家园;因为专业,所以完美市场部:ivpmarket@ 技术部:ivptech@网易电气在线电气设计信息网 编辑部:ivpinfo@==中国专业人士的网络家园;因为专业,所以完美市场部:ivpmarket@ 技术部:ivptech@网易土木在线电气设计信息网 编辑部:ivpinfo@==中国电气行业网络家园;因为专业,所以完美市场部:ivpmarket@ 技术部:ivptech@网易 NETEASE 网易-电气 编辑部:ivpinfo@==中国电气行业网络家园;因为专业,所以完美市场部:ivpmarket@ 技术部:ivptech@网易 NETEASE 网易-电气 编辑部:ivpinfo@==编辑部:ivpinfo@本图纸由浩辰ICAD软件提供技术支持网易 电气 中国电气行业网络家园;因为专业,所以完美网易 NETEASE ==编辑部:ivpinfo@本图纸由浩辰ICAD软件提供技术支持中国建筑行业网络家园;因为专业,所以完美网易 建筑 网易 NETEASE ==