一建-公路实务-中央分隔带施工技术及桥梁构造
- 格式:pdf
- 大小:1.68 MB
- 文档页数:12
复习提纲第一章公路工程技术四步法复习第一步:全面通读指导用书:粗读,按照复习提纲去读,而不是按书的顺序去读。
第二步:在通读的基础上,掌握知识点。
如果是案例的知识点,前后要联想起来复习。
第三步:习题练习,巩固知识。
建议先读再做。
考试指导用书、配套习题集、近两年真题。
第四步:提前两周,实战模拟,做三套题。
查漏补缺第一节路基工程一.基本知识1.公路分级P480按照功能和适应的交通量,分为高速公路、一级公路、二级公路、三级公路、四级公路。
2.路基类型:P1在最不利季节的干湿状态,划分为干燥、中湿、潮湿和过湿四类。
高速公路应使路基处于干燥或中湿状态。
3.路基相关技术要求★★二.一般路基施工技术1.常见质量控制关键点:P253土方路基工程施工中常见质量控制关键点(1)施工放样与断面测量。
——是关于挖方的,而以下四条是关于填方的。
(2)路基原地面处理,按施工技术合同或规范规定处理,并认真整平压实。
(3)使用适宜材料,必须采用设计和规范规定的适用材料,保证原材料合格,正确确定土的最大干密度和最佳含水量。
——这里易出错(4)每层的松铺厚度,横坡。
(因为只有厚度和横坡是关键)(5)分层压实,控制填土的含水量,确保压实度达到设计要求。
2.测量法和工作要求P34公路高程测量应采用水准测量。
1.控制测量2.高程测量:3.中线放样(1)传统法放样:切线支距法、偏角法、坐标法放样(2)GPS-RTK技术放样测量仪器使用方法公路工程施工常用的测量仪器有水准仪、经纬仪、全站仪、全球定位系统(GPS)等3.原地基处理要求P2砍——填——除——换——压——挖(按照案例去掌握)1).路基用地范围内的树木、灌木丛等均应在施工前砍伐或移植清理,砍伐的树木应移置于路基用地之外,进行妥善处理。
2).路堤修筑范围内,原地面的坑、洞、墓穴等,应在清除沉积物后,用合格填料分层回填,分层压实,压实度应不小于90%;3).原地基为耕地或松土时,应先清除有机土、种植土、草皮等,清除深度应达到设计要求,一般不小于15cm,平整后按规定要求压实。
2023年一级建造师之一建公路工程实务能力检测试卷A卷附答案单选题(共30题)1、中央分隔带路缘石应在()之前完成。
A.纵向碎石盲沟的铺设B.路面铺设C.埋设横向塑料排水管D.防水层施工【答案】 B2、在整个公路工程合同体系中,核心合同是()。
A.勘察合同B.设计合同C.施工合同D.供货合同【答案】 C3、某一级公路,面层为沥青混凝土 AC-16,基层为二灰碎石土,在面层与基层间应设()。
A.粘层B.透层C.反滤层D.垫层【答案】 B4、下面关于冬期路堑开挖的说法()是错误的。
A.挖方边坡应一次挖到设计边坡线位置B.当冻土层破开挖到未冻土后,应连续作业C.每日开工时选挖向阳处,气温回升后再挖背阴处D.路堑挖至路床面以上1m时应停止开挖【答案】 A5、下列关于填隙碎石干法施工部分工艺先后顺序,正确的是()。
A.初压→撒布填隙料→振动压实→摊铺粗碎石B.摊铺粗碎石→振动压实→撒布填隙料→初压C.摊铺粗碎石→初压→撒布填隙料→振动压实D.摊铺粗碎石→初压→振动压实→撒布填隙料【答案】 C6、用于路基地下水排水的设施是()。
A.蒸发池B.拦水带C.渗沟D.跌水【答案】 C7、关于公路桥梁和隧道工程安全风险评估相关要求的说法错误的是()。
A.施工安全风险评估范围,与由各地工程建设条件、技术复杂程度有关B.多跨或跨径大于40m的石拱桥应进行施工风险评估C.桥梁拆除工程可以不进行施工风险评估D.墩高或净空大于100m的桥梁工程应进行施工风险评估【答案】 C8、路基工程施工组织设计重点考虑的是()。
A.土方调配B.路上与基地统筹兼顾C.布置好运料线D.按均衡流水法组织施工【答案】 A9、关于 CFG 桩施工规定的说法中,正确的是()。
A.桩顶超灌高度不宜小于0.3mB.拔管过程中不得反插C.成桩过程中,每个台班应做不少于一组(2个)试块D.施打新桩与己打桩间隔的时间不应少于5d【答案】 B10、先张法预应力筋的张拉过程中,张拉操作时,应对断丝情况进行检查,其要求()。
2020一级建造师《公路工程管理与实务》1B412040 中央分隔带及路肩施工技术1B412041 中央分隔带施工一、中央分隔带的开挖二、防水层施工三、纵向碎石盲沟的铺设1.2.基槽开挖。
沟底坡度应和路面横坡一致。
3.铺设垫层。
垫层采用粒径小的石料,如石屑、瓜子片等,铺设厚度应保持均匀一致,保证垫层顶面具有规定的横坡。
4.埋设塑料排水管。
埋设要求:一端应插入中央分隔带范围内的纵向排水沟盲沟位置,另一端应伸出路基边坡外。
横向塑料排水管的进口须用土工布包裹,防止碎石堵塞。
5.沟槽回填五、缘石安装1.路缘石应在路面铺设之前完成。
2.预制缘石应铺筑设在厚度不小于2cm的砂垫层上,砌筑砂浆的水泥与砂的体积比应为1:2。
【例题12·实务操作与案例分析】背景资料:施工单位承接了一新建高速公路K50+000~K75+000 段路面工程与交通工程的施工,其中包含中央分隔带及路面排水工程,一般路段中央分隔带断面设计如下图所示。
每千米一般路段中央分隔带主要材料数量表:1.图中尺寸除注明外均以cm 计。
2.施工中应确保防水层不漏水。
3.土工布A 重量为250g/㎡,其技术指标按相应要求执行。
4.土工布B 重量为500g/㎡,其技术指标按相应要求执行。
施工单位编制了施工组织方案,部分内容摘录如下:①路基施工完毕后,即可埋设横向塑料排水管;②当路面底基层施工完毕后,即可开挖中央分隔带;③中央分隔带应采用大型机械开挖;④开挖的土料不得直接堆置在已经铺好的路面结构层上,应及时运走;⑤中央分隔带沟槽开挖完毕并经验收合格后,即可铺设防水层;⑥防水层施工范围是中央分隔带开挖沟槽与路基的接触面;⑦应合理安排以下四项工作:a.回填种植土,b.基层施工,c.防水层施工,d.护栏立柱打桩……【问题】1.改正中央分隔带施工组织方案中的错误之处(按“把第×条应改为:……”的描述),并简述埋设横向塑料排水管的施工工艺。
2.指出图中“土工布A”的作用。
一建实务公路桥梁知识点近年来,公路建设在我国的快速发展下,桥梁工程作为重要的交通基础设施扮演着重要的角色。
对于从事建筑行业的一建工程师们来说,熟悉公路桥梁实务知识点是非常重要的。
本文将重点介绍一些关于一建实务中的公路桥梁知识点,旨在帮助读者系统地了解公路桥梁工程。
一、常见公路桥梁类型公路桥梁按照结构形式的不同,可以分为梁桥、拱桥、斜拉桥和悬索桥等几种类型。
其中,梁桥是最常见的桥梁形式,主要由梁体和墩、台构成。
而拱桥则是由拱体承载荷载的结构形式,拱桥可以根据拱形和支座形式的不同进行分类。
而斜拉桥则通过拉索连接梁体和塔墩,起到承重的作用。
悬索桥则是靠主悬索和附悬索受力。
二、桥梁施工工艺桥梁施工是整个桥梁工程的重要环节,不同的桥梁类型需要采用不同的施工工艺。
例如,在梁桥的施工中,首先需要进行模板搭设,然后浇筑混凝土并进行养护。
而拱桥的施工要相对复杂一些,需要采用并行航线施工工艺来确保施工质量。
对于较大的悬索桥和斜拉桥,建设者则需要在施工过程中考虑到索力和荷载平衡等复杂因素。
三、桥梁检测与养护桥梁的持久性和安全性对于公路运输的顺畅至关重要,因此桥梁的定期检测与养护工作非常重要。
在桥梁的使用过程中,由于环境因素和车辆荷载的作用,桥梁可能会受到损坏或产生病害。
因此,定期检测桥梁的各个部位是否存在结构破损或病害是非常必要的。
一旦发现问题,就需要及时采取修复措施。
四、公路桥梁抗震设计在地震频发的我国,公路桥梁的抗震设计尤为重要。
抗震设计的核心是确定桥梁的抗震设防烈度。
在设计过程中,需要考虑到桥梁的自重和荷载重量以及地震力的作用。
同时,也要根据桥梁的形状和结构特点,合理选择抗震措施,如设筋和加固。
五、公路桥梁的环保设计随着环保理念的普及,公路桥梁的环保设计也变得越来越重要。
在桥梁的设计、施工和使用过程中,需要注意环境保护和资源利用的问题。
例如,桥梁的设计应尽量减少对自然环境的破坏,施工过程中要控制噪音和扬尘的污染,使用环保材料和技术,合理利用水、电、气等资源。
2023年一建《公路工程管理与实务》真题及答案解析一、单项选择题(共20题,每题1分。
每题的备选项中,只有1个最符合题意)1.石质路床地面有地下水时,可设置()进行排导。
A.排水路面B.垫层C.渗沟D.土工格栅2.采用刚性桩处理软基时,现浇混凝土大直径管桩和预制管桩施工质量标准中,检查项目不同的是()A.竖直度B.桩距C.单桩承载力D.桩帽位置3.用于疏干潮湿边坡和引排边坡上局部出露的上层滞水,并起支撑边坡作用的排水设施是()A.支撑渗沟B.仰斜式排水孔C.急流槽D.边坡渗沟4.二级以下公路无机结合料稳定基层使用等外石灰时,有效氧化钙含量在20%以上,且()应满足要求。
A.石灰的未消化残渣含量B.石灰的细度C.石灰的氧化镁含量D.混合料强度5.矿料最大粒径为16mm或19mm的沥青混合料为()沥青混合料。
A.细粒式B.中粒式C.粗粒式D.特粗式6.水泥混凝土路面出现严重断裂,板被分割成3块以上,有错台或裂块并且已经开始活动的断板,应采用()的治理措施。
A.压注灌浆B.扩缝漉浆C.条带罩面D.整块板更换7.现浇盖梁施工中,关于模板及支架变形要求的说法,正确的是()A.盖梁侧模板不得超过盖梁跨度的1/250B.钢模板面板变形不得超过2.5mmC.盖梁支架的弹性挠度不大于其结构跨度的1/400D.钢模板的钢材变形不超过计算跨径的1/3008.关于现浇预应力混凝土梁模板和支架拆除的说法,正确的是()A.梁芯模应在混凝土抗压强度达到2.5Mpa时,方可拆模B.支架应在混凝土强度能承受其自重荷载及其他可能的叠加荷载时,方可拆除C.支架的拆除顺序应遵循后支后拆的原则D.支架应在预应力钢束张拉前拆除9.钻孔桩中,适用于淤泥质土钻孔的钻机是()A.冲抓钻机B.螺旋钻机C.冲击钻机D.旋挖钻机10.下列隧道监控量测项目中,属于必测项目的是()A.围岩内部位移B.爆破震动C.拱脚下沉D.地表水平位移11.隧道主洞模板施工应该满足的要求是()A.模筑混凝土衬砌施工不宜采用全断面衬砌模板台车B.台车模板应留振捣窗,振捣窗不宜小于0.45m×0.45mC.全断面衬砌橫模板台车就位应以行车道中线为准,按照路线方向垂直架设D.顶模应设置注浆管但无需设置通气孔12.ETC门架系统在通信网络发生故障时,该系统应该()A.暂停收费工作,并立即报警进行人工收费处理B.独立性工作和存贮部分重要数据,当通信网络恢复正常时,人工上传本地滞留数据C.独立性工作和存贮所有重要数据,当通信网络恢复正常时,自动上传本地滞留数据D.独立性工作和存贮所有重要数据,当通信网络恢复正常时,人工上传本地滞留数据13.高速公路通信系统光纤接续适合采用()A.绑接法B.熔接法C.热可缩管法D.V形槽法14.下列选项中,属于悬臂浇筑梁关键项目的是()A.轴线偏位B.断面尺寸C.顶面高程D.合龙后同跨对称高程差15.重大事故隐患治理方案必须由()组织编制。
1B412025 掌握沥青路面透层、粘层、封层的作用及适用条件一、透层施工技术(一)作用与适用条件1、透层的作用:为使沥青面层与非沥青材料基层结合良好,在基层上浇洒乳化沥青、煤沥青或液体沥青而形成的透人基层表面的薄层。
2.符合下列情况,应浇洒透层沥青:(1)沥青路面的级配砂砾、级配碎石基层;(2)水泥、石灰、粉煤灰等无机结合料稳定土;(3)粒料的半刚性基层上必须浇洒透层沥青。
(二)一般要求1.凡是无机结合料稳定土或粒料的半刚性基层、级配砂砾、级配碎石基层都应喷洒透层油。
2.表面致密的半刚性基层宜采用渗透性好的稀透层沥青;对级配砂砾、级配碎石等粒料基层宜采用软稠的透层沥青。
3.透层油沥青宜采用慢裂的洒布型乳化石油沥青,或者是中、慢裂液体石油沥青或煤沥青。
(三)注意事项1.透层油洒布后应不致流淌,应渗入基层一定深度,不得在表面形成油膜。
2.如遇大风或将要下雨时,不能喷洒透层油。
3.气温低于IO0C时不宜喷洒透层油。
4.应按设计喷油量一次均匀洒布,当有漏洒时,应人工补洒。
5.喷洒透层油后一定要严格禁止人和车辆通行。
6.在摊铺沥青前,应将局部尚有多余的未渗入基层的沥青清除。
7.透层油布洒后应待充分渗透,一般不少于24h后才能摊铺上层,但也不能在透层油喷洒后很久不做上层施工,应尽早施工。
8.对无机结合料稳定的半刚性基层喷洒透层油后,如果不能及时铺筑面层时,并还需开放交通,应铺撒适量的石屑或粗砂,此时宜将透层油增加10%的用量。
用6~8钢筒式压路机稳压一遍,并控制车速。
二、粘层施工技术(一)作用与适用条件1.粘层的作用:使上下层沥青结构层或沥青结构层与结构物(或水泥混凝土路面)完全粘结成一个整体。
2.符合下列情况,应浇洒粘层沥青:(1)双层式或三层式热拌热铺沥青混合料路面在铺筑上层前(规范已修改)(2)旧沥青路面层上加铺沥青层。
(3)水泥混凝土路面上铺筑沥青面层,或桥面铺装前。
(4)与新铺沥青混合料接触的路缘石、雨水进水口、检查井等的侧面。
一级建造师《公路工程》考点汇总(一)考点:中央分隔带施工一、中央分隔带的开挖当路面基层施工完毕后,即可进行中央分隔带的开挖,先挖集水槽后挖纵向盲沟,一般采用人工开挖的方式。
开挖的土料不得堆置在已铺好的基层上,以防止污染并应及时运走。
二、防水层施工沟槽开挖完毕并经验收符合设计要求后,即进行防水层施工,可喷涂双层防渗沥青。
防渗层沥青要求涂布均匀,厚薄一致,无漏涂现象,涂布范围应是中央分隔带范围内的路基及路面结构层。
(PVC防水板)三、纵向碎石盲沟的铺设2.反滤层可用筛选过的中砂、粗砂、砾石等渗水性材料分层填筑,目前高等级公路多采用土工布作为反滤层。
3.(3)土工布的接长和拼幅需采用平搭接的连接方式,搭接长度不得小于30cm。
四、埋设横向塑料排水管1.路基施工完毕后,即可进行埋设横向塑料排水管的施工。
2.基槽开挖。
沟底坡度应和路面横坡一致。
3.铺设垫层。
垫层采用粒径小的石料,如石屑、瓜子片等,铺设厚度应保持均匀一致,保证垫层顶面具有规定的横坡。
4.埋设塑料排水管。
埋设要求:一端应插入中央分隔带范围内的纵向排水沟盲沟位置,另一端应伸出路基边坡外。
横向塑料排水管的进口须用土工布包裹,防止碎石堵塞。
接头处理:当塑料管不足一次埋设的长度时,需用套接。
5.沟槽回填五、缘石安装2.路缘石应在路面铺设之前完成。
3.预制缘石应铺筑设在厚度不小于2cm的砂垫层上,砌筑砂浆的水泥与砂的体积比应为1:2。
考点:路肩施工一、土路肩施工培土路肩施工方案(填方路基):1.准备下承层:即具有经检验合格的底基层面。
2.施工流程:备料→推平→平整→静压→切边→平整→碾压。
二、硬路肩施工硬路肩的设计标高常见的有两种情况:一种是硬路肩与车行道连接处标高一致,可将硬路肩视为行车道的展宽;另一种是硬路肩的顶面标高低于相连的行车道,这种情况应先摊铺硬路肩部分,宽度应比要求的宽5cm左右,保证与行车道路面有一定的搭接,以免搭不上需人工找补。
摊铺行车道表面层时,摊铺机靠硬路肩一侧的端部应使用45°的斜挡板,以减少碾压时边缘坍塌或发生较大的侧移,并尽量使边缘顺直、平齐。
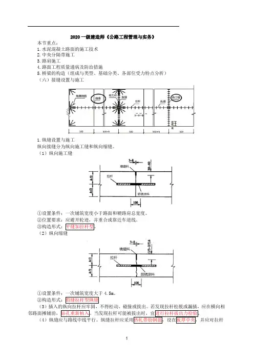
2020一级建造师《公路工程管理与实务》本节重点:1.水泥混凝土路面的施工技术2.中央分隔带施工3.路肩施工4.路面工程质量通病及防治措施5.桥梁的构造(组成与类型、基础分类、各部位受力特点分析)(六)接缝设置与施工1.纵缝设置与施工纵向接缝分为纵向施工缝和纵向缩缝。
(1)纵向施工缝①设置条件:一次铺筑宽度小于路面和硬路肩总宽度。
②位置要求:应避开轮迹,并重合或靠近车道线。
(2①设置条件:一次铺筑宽度大于4.5m。
(3)插入的纵向拉杆应牢固,不得松动、碰撞或拔出。
若发现拉杆松脱或漏插,应在横向相(42.横缝设置与施工横缝从功能上分为横向施工缝、横向缩缝和横向胀缝。
横向施工缝从构造上分为设传力杆平缝型和设拉杆企口缝型;横向缩缝从构造上分为设传力杆假缝型和不设传力杆假缝型。
1)横向缩缝①宜等间距布置(最小板长为板宽,最大板长为6.0m)②切缝原则:宁早勿晚,宁深勿浅。
型。
a)设传力杆假缝形式 b)不设传力杆假缝形式(2)横向胀缝①胀缝位置:临近桥梁或其他构筑物需要设置胀缝。
②胀缝组成:胀缝板、传力杆、钢筋支架【重点提示:钢筋混凝土和钢纤维混凝土路面可不设钢筋支架】③胀缝构造及原理胀缝宽20~25mm,传力杆一半以上长度的表面应涂防粘涂层,端部应戴活动套帽。
④胀缝设置要求(3)横向施工缝①位置要求:宜与胀缝或缩缝重合。
1.摊铺完毕或精整平表面后,宜使用钢支架拖挂1~3层叠合麻布、帆布或棉布,洒水湿润后作拉毛处理。
人工修整表面时,宜使用木抹。
用钢抹修整过的光面,必须再拉毛处理,以恢复细观拉滑构造。
人工拉槽方式。
3.特重和重交通混凝土路面宜采用硬刻槽,凡使用圆盘、叶片式抹面机精平后的混凝土路面、钢纤维混凝土路面必须采用硬刻槽方式制作抗滑沟槽。
(八)混凝土路面养护1.机械摊铺的各种混凝土路面、桥面及搭板宜采用喷洒养护剂同时保湿覆盖的方式养护。
在雨天或养护用水充足的情况下,也可采用覆盖保湿膜、土工毡、土工布、麻袋、草袋、草帘等洒2.养护时间根据混凝土弯拉强度增长情况而定,不宜小于设计弯拉强度的80%,应特别注重的保湿(温)养护。
1B413000公路桥梁工程1B413010桥梁旳构造重要提醒➢桥梁旳构成与类型,理解尺寸名称➢桥梁基础、上部构造、下部构造分类和受力特点重点掌握➢熟悉桥梁设计作用旳分类1B413011桥梁旳构成与类型一、桥梁构成桥梁由上部构造、下部构造、支座系统和附属设施四个基本部分构成。
上部构造一般又称为桥跨构造,是在线路中断时跨越障碍旳重要承重构造;下部构造包括桥墩、桥台和基础;桥梁附属设施包括桥面系、伸缩缝、桥头搭板和锥形护坡等,桥面系包括桥面铺装(或称行车道铺装)、排水防水系统、栏杆(或防撞栏杆)、灯光照明等。
二、有关尺寸术语1、梁式桥净跨径是设计洪水位上相邻两个桥墩(或桥台)之间旳净距,用L0表达。
对于拱式桥是每孔拱跨两个拱脚截面最低点之间旳水平距离。
3.计算跨径对于具有支座旳桥梁,是指桥跨构造相邻两个支座中心之间旳距离,用l表达。
拱圈(或拱肋)各截面形心点旳连线称为拱轴线,计算跨径为拱轴线两端点之间旳水平距离。
5.桥梁高度简称桥高,是指桥面与低水位之间旳高差,或为桥面与桥下线路路面之间旳距离。
桥高在某种程度上反应了桥梁施工旳难易性。
7.建筑高度是桥上行车路面(或轨顶)标高至桥跨构造最下缘之间旳距离,它不仅与桥梁构造旳体系和跨径旳大小有关,并且还随行车部分在桥上布置旳高度位置而异。
公路(或铁路)定线中所确定旳桥面(或轨顶)标高,对通航净空顶部标高之差,又称为容许建筑高度。
桥梁旳建筑高度不得不小于其容许建筑高度,否则就不能保证桥下旳通航规定。
9.矢跨比是拱桥中拱圈(或拱肋)旳计算矢高f与计算跨l 之比,也称拱矢度,它是反应拱桥受力特性旳一种重要指标。
10.涵洞是用来宣泄路堤下水流旳构造物。
一般在建造涵洞处路堤不中断。
为了区别于桥梁,单孔跨径不到5m旳构造物,均称为涵洞。
三、桥梁旳分类(一)按桥梁旳构造分类按构造体系划分,有梁式桥、拱桥、刚架桥、悬索桥等四种基本体系。
1.梁式体系梁式体系是古老旳构造体系。
中央分隔带施工技术方案一、工程概况:宁杭高速公路二期NH-NJ21合同段是由路基一、二、六、七标合并而成。
主线起讫桩号为K0+610.137~K9+800,里程全长9.190公里。
本合同路面工程主要为主线、匝道及服务区广场的路面基层、面层(含服务区广场、收费广场水泥砼路面)、路肩、中分带、桥梁和明通明涵的搭板、桥面防水层、硅芯管、收费岛等施工。
设计行车速度120Km/h,主线桥涵设计荷载标准为汽-超20级,挂-120。
本标段中央分隔带施工净里程约8.4Km。
二、施工组织项目经理:严凯,负责项目全面工作;生产副经理:施爱武,负责工程施工及安全工作;项目总工:汪国专,负责工程技术工作;质检负责人:别佃奎,负责工程的质量检查及工程资料;试验负责人:陈涛,负责工程试验工作;测量负责人:张印,负责工程测量、复核工作;机料负责人:杨海锋,负责机械材料的调度、统计、计划工作;安全员:杨海锋,负责工程安全、文明施工、环境工作。
三、原材料试验情况:首先对所进原材料(碎石、黄砂、水泥、土工布等)进行试验,经项目经理部及监理组验收合格后才能使用。
四、施工总体方案:当水稳碎石左右两侧上、下层均施工完毕后,即可开始中央分隔带施工。
1、首先根据中央分隔带内中心桩和盲沟的设计要求确定盲沟开挖中心线,每10m钉桩放样,根据确定的中心线依次确定盲沟的边线、坡度、平台宽度,确定各部位的控制点,每40m设置1道集水槽(长度1.0m、深20cm);2、进行水平测量:确定各部位的高程、宽度、坡度,以保证各部位尺寸能满足设计施工要求;3、在开挖盲沟过程中,先用铁镐将分隔带两侧二层水泥碎石层按照设计开挖线坡度挖成设计形状,开挖的土方及水泥稳定碎石堆放在彩条布上,运输的拖拉机在装卸开挖的土方时底下需铺设彩条布,以保证路面整洁,开挖的土方可用于两侧路肩培土;4、盲沟、集水槽、人孔开挖好后,铺设防渗土工布和回填碎石;5、其上铺设透水土工布,注意顶面尽量平整;6、然后进行硅芯管敷设及回填中粗砂,铺设透水土工布;7、回填素土,其两侧与路缘石顶面齐平,中间略向上突起呈弧形,正常段顶面高出路缘石6cm;五、施工注意事项:1、测量放样做到勤测、勤核、勤纠偏,确保线形平顺。
2020一级建造师《公路工程管理与实务》1B412030 水泥混凝土路面的施工技术1B412031 水泥混凝土路面用料要求二、粉煤灰和其他掺合料②质量不应低于Ⅱ级要求;不得使用高钙粉煤灰或Ⅲ级及Ⅲ级以下低钙粉煤灰;使用前经试配检验,确保弯拉强度、工作性、抗磨性、抗冻性等技术指标合格。
六、外加剂1.外加剂品种:减水剂;早强剂;缓凝剂;引气剂;阻锈剂等。
2.有抗冰(盐)冻要求地区,各交通等级路面、桥面、路缘石、路肩及贫混凝土基层必须使3.4.处在海水、海风、氯离子、硫酸根离子环境的或冬季洒除冰盐的路面或桥面钢筋混凝土、钢纤维混凝土中宜掺阻锈剂。
七、钢筋各交通等级混凝土路面、桥面和搭板所用钢筋应顺直,不得有裂纹、断伤、刻痕、表面油污工成2~3mm圆倒角。
八、钢纤维1.2.钢纤维长度应与混凝土粗集料最大公称粒径相匹配(粗集料最大公称粒径1/3~2倍);钢纤维长度与标称值的偏差不应超过±10%。
九、接缝材料1.高速公路、一级公路宜采用塑胶、橡胶泡沫板或沥青纤维板;其他公路可采用各种胀缝板。
2.填缝材料应具有与混凝土板壁粘结牢固、回弹性好、不溶于水、不渗水,高温时不挤出、不流淌、抗嵌入能力强、耐老化龟裂,负温拉伸量大,低温时不脆裂、耐久性好等性能。
高速公路、一级公路应优选用树脂类、橡胶类或改性沥青类填缝材料,并宜在填缝料中加入耐老化剂。
十、其他材料养护剂:不得采用水玻璃为主要成分;白色胶体,不宜无色。
【例题4·单选】下列水泥混凝土路面填缝料中,属于加热施工式填缝料的是()。
A.沥青橡胶类B.聚氯乙烯胶泥类C.硅树脂类D.氯丁橡胶类【答案】B【解析】本题考查的是填缝料。
常温施工式填缝料主要有聚(氨)酯、硅树脂类,氯丁橡胶、沥青橡胶类等。
加热施工式填缝料主要有沥青玛蹄脂之类、聚氯乙烯胶泥类或改性沥青类等。
【例题5·单选】特重、重交通水泥混凝土路面不宜采用()水泥。
A.旋窑道路硅酸盐B.旋窑硅酸盐C.普通硅酸盐D.矿渣硅酸盐【解析】特重、重交通路面宜采用旋窑道路硅酸盐水泥、旋窑硅酸盐水泥、普通硅酸盐水泥。
2020一级建造师《公路工程管理与实务》【课前练习】事件一:沥青混凝土下面层施工前,施工单位编制了现场作业指导书,其中部分要求如下:(1)下面层摊铺采用平衡梁法;(2)摊铺机每次开铺前,将熨平板加热至80℃;(3)采用雾状喷水法,以保证沥青混合料碾压过程不粘轮;(4)摊铺机无法作业的地方,可采取人工摊铺施工。
【问题】逐条判断事件一中现场作业指导书的要求是否正确?并改正错误。
【参考答案】(1):错误;改正:改平衡梁法为走线法(或挂线法)。
(2):错误;改正:熨平板加热至不低于100℃。
(3):正确。
(4):正确。
本节重点:1.路面改建施工2.水泥混凝土路面的施工技术(用料要求、施工)3.中央分隔带施工4.路肩施工5.路面工程质量通病及防治措施1B412025 路面改建施工一、水泥路面改造加铺沥青面层1.5cm以上,然后用细石拌制的混凝土混合料填平。
2.3.(1)工艺流程:定位→钻孔→制浆→灌浆→灌浆孔封堵→交通控制→弯沉检测。
(2(3)钻孔:钻孔深度与板厚一致,孔径>压浆头1~2mm。
(4(550cm。
孔应及时用圆状木塞封堵,防止压力过度散失。
(7(8(1)清缝:清除缝内原有的填充物和杂物;(2)灌缝:手持式注射枪进行沥青灌缝;(3)贴缝:改性沥青油毡等材料贴缝,有必要时再加铺一层特殊沥青材料的过渡层。
(二)碎石化法系统进行设置和修复;将路两侧的路肩挖除至混凝土路面基层同一高度(排水)。
2.特殊路段的处理在路面破碎之前对该工程全线可能存在的严重病害的软弱路段进行修复处理,首先清除混凝土路面并开挖至稳定层,然后换填监理工程师认可的材料。
3.构造物的标记和保护证安全。
4.路面碎石化施工的调整时,两幅破碎一般要保证表面凹处在沥青混合料找平,以保证加铺沥青面层的平整度。
5.青面层提供一个平整的表面。
破碎后的路面采用Z型压路机振动压实2~3遍,测标高进行级配碎石调平,检测平整度,光轮压路机振动压实。
【例题1·实务操作与案例分析】背景资料:某三级公路,起讫桩号为K0+000~K4+300,双向两车道,路面结构形式为水泥混凝土路面。
一级建造师《公路工程》经典习题:中央分隔带及路肩施工技术2020年一级建造师《公路工程》经典习题:中央分隔带及路肩施工技术1、进行中央分隔带的开挖一般是紧随( )工作。
A.路面基层施工完毕后B.路面底基层施工完毕后C.路基施工完毕后D.路面面层施工完毕后『正确答案』A『答案解析』本题考查的是中央分隔带及路肩施工技术。
当路面基层施工完毕后,即可进行中央分隔带的开挖,先挖集水槽后挖纵向盲沟,一般采用人工开挖的方式。
开挖的土料不得堆置在已铺好的基层上,以防止污染并应及时运走。
沟槽的断面尺寸及结构层端部边坡应符合设计要求,沟底纵坡应符合设计要求,沟底须平整、密实。
沟底不得有杂物。
2、关于路肩施工,说法错误的是( )。
A.对填方路段来说,采用培路肩的方法施工既经济又简便B.填方路段培土路肩的材料,通常与填筑路堤的材料相同C.挖方路堑段的路肩开挖时,先开挖到路床顶面标高,再采用培路肩的方法施工D.填方路段路肩通常随着路面结构层的铺筑,相应地分层培筑,可以先培土也可以后培土『正确答案』C『答案解析』本题考查的是中央分隔带及路肩施工技术。
路堑段的路肩是开挖出来的,当开挖到设计标高时,路肩部分宜停止开挖,路面部分继续开挖直至路床顶面。
开挖路床时,路床两侧与路肩连接处应开挖整齐,既要保证路面宽度又不要多挖,否则超挖部分摊铺的路面得不到计量与支付;开挖时应尽量使路槽的侧壁为垂直面,以减少麻烦或造成浪费。
3、培土路肩施工流程为:备料→推平→平整→X→Y→平整→碾压,其中X、Y工序分别是( )。
A.回填、切边B.切边、回填C.静压、切边D.切边、静压『正确答案』C『答案解析』本题考查的是中央分隔带及路肩施工技术。
土路肩施工流程:备料→推平→平整→静压→切边→平整→碾压。
4、中央分隔带施工中埋设横向塑料排水管的进口用土工布包裹的作用是( )。
A.增大强度B.增大透水性C.防止漏水D.防止碎石堵塞『正确答案』D『答案解析』本题考查的是中央分隔带的施工。
一级建造师中的道路与桥梁工程技术道路与桥梁工程技术是一级建造师考试中的一个重要科目。
掌握好这门科目的知识和技能,对于从事相关工程的建筑师来说至关重要。
本文将介绍道路与桥梁工程技术的基本概念、设计原则以及应用案例,帮助读者更好地理解和掌握这门科目。
一、道路工程技术道路工程技术是指规划、设计、施工和运营道路的一系列技术方法和工程实践。
它包括道路的选线与布局、路基与路面的设计与构造、交通标志与标线的设置、交通安全设施的建设等。
在一级建造师考试中,道路工程技术是其中的一项重要内容。
1.1 道路选线与布局道路选线与布局是道路规划和设计的第一步。
它涉及到道路的起点、终点、线路走向和宽度等方面。
在进行选线与布局时,需要考虑土地利用、地质地貌、环境保护以及与周边道路和设施的衔接等因素。
合理的选线与布局可以提高道路的通行能力和安全性。
1.2 路基与路面设计与构造路基与路面设计与构造是道路工程的核心环节。
路基是道路的地基部分,承受着车辆荷载并将其传递到支撑层或基础层上。
路面是道路的行车面,直接接触车轮和车辆。
路基与路面的设计与构造要考虑到土壤特性、荷载条件以及交通流量等因素,确保道路的稳定性和安全性。
1.3 交通标志与标线设置交通标志与标线是道路交通管理的重要组成部分。
它们通过图形、文字和颜色等方式向驾驶员传达交通信息和提示,引导驾驶员正确行驶。
在道路设计中,需要合理设置交通标志和标线,保证交通秩序和安全。
1.4 交通安全设施建设交通安全设施是为了防止和减少交通事故而设置的各种设施。
它包括路灯、护栏、交通信号灯、人行天桥等。
在道路工程中,需要根据路段的具体情况设置适当的交通安全设施,提高道路的通行安全性。
二、桥梁工程技术桥梁工程技术是指规划、设计、施工和检测桥梁的技术方法和工程实践。
它包括桥梁结构设计、桥梁施工工艺、桥梁材料与设备的选用、桥梁检测与评估等内容。
在一级建造师考试中,桥梁工程技术是其中的一项重要内容。
2.1 桥梁结构设计桥梁结构设计是桥梁工程的核心环节。
国道321阳朔至桂林段扩建工程中央分隔带、侧分带排水施工方案国道321阳朔至桂林段扩建工程路面排水工程中央分隔带、侧分带排水系统主要由纵向渗沟和横向排水管构成其作用是通过渗沟和横向排水管将中央分隔带内的水排出路基以外。
根据设计要求和有关施工规范制定本方案。
主要工程数量:中央分隔带:排水盲沟21733m,100mm软式透水管21733m,填土39119.4m³,级配碎石9127.86m³,防水土工布80412㎡,透水土工布41292.7㎡,φ110㎜HDPE横向排水管5325m,C20砼431.33m³,挖基479.25m³,110mm三通管852个。
侧分带:排水盲沟67993m,100mm软式透水管67993m,填土16851.6m ³,级配碎石12034.8m³,防水土工布75894.8㎡,透水土工布51287.6㎡,φ110㎜HDPE横向排水管4697m,C20砼380.5m³,挖基422.7m³,110mm三通管1342个。
一、施工准备1.路基路基完工,其主要质量指标符合规范和标准要求,并通过交工验收合格。
2.材料①排水管横向排水管采用φ110㎜HDPE塑料管,纵向排水管采用φ100㎜软式透水管,质量符合要求。
②土工布选用FNG-PP-200型长丝土工布,其技术指标符合《公路工程土工合成材料等九项》的要求。
③水泥选用42.5级普通硅酸盐水泥。
④碎石选用质地坚硬、强度高,耐磨耗、洁净的轧制碎石。
⑤砂选用中粗砂,含泥量<3.0%,细度模数>2.3。
3.混凝土配合比设计横向排水管回填采用C20水泥混凝土,根据要求进行了配合比设计,各项指标符合要求。
4.机械设备HZS90型混凝土搅拌机1台,12m³混凝土运输车6台,φ50mm混凝土振捣棒6个,其他小型施工机具。
5.人员二、施工工艺流程路床施工成型后,开挖中央分隔带渗沟并沿横向排水管方向挖基坑→铺筑天然砂砾、埋设横向排水管→回填C20砼至路床顶面标高→施工底基层及基层→安装路缘石→缆索护栏立柱施工→施工下封层→挖中央分隔带渗沟→渗沟施工→四周铺设防水土工布→回填级配碎石至底基层底标高→铺设透水土工布→中央分隔带内填土→路面面层施工三、施工工艺方案1. 测量放样路基交工验收合格后,恢复中线,确定横向排水管位置,桥梁、明通道和竖曲线底部按设计给定的桩号定位,横向排水管间距参考挡墙沉降缝设置间距。
201*一建考试公路工程实务之桥梁知识点总结公路桥梁工程一、桥梁的构造01、桥梁组成上部结构、下部结构、支座系统和附属设施四个基本部分组成。
1)、上部结构又称为桥垮结构,是在线路中断时跨越障碍的主要承重结构;2)、下部结构包括桥墩、桥台和基础;3)、桥梁附属设施包括桥面系、伸缩缝、桥头搭板和锥形护坡等。
02、桥梁相关尺寸术语1)、梁式桥净跨径是设计洪水位上相邻两个桥墩(或桥台)之间的净距;对于拱式桥是每孔拱跨两个拱脚截面最低点之间的水平距离。
2)、总跨径是多孔桥梁中各孔净跨径的总和。
它反映了桥下宣泄洪水的能力。
3)、计算跨径对于具有支座的桥梁是指桥垮结构相邻两个支座中心之间的距离;拱圈(或拱肋)各截面形心点的连线称为拱轴线,计算跨径为拱轴线两端点之间的水平距离。
4)、桥梁全长简称桥长,是桥梁两端两个桥台的侧墙或八字墙后端点之间的距离。
对于无桥台的桥梁为桥面系行车道的全长。
5)、桥梁高度简称桥高,是指桥面与低水位之间的高差,或为桥面与桥下线路路面之间的距离。
桥高在某种程度上反映了桥梁施工的难易性。
6)、桥下净空高度是设计洪水位或计算通航水位至桥垮结构最下缘之间的距离。
它应保证能安全排洪,并不得小于对该河流通航所规定的净空高度。
7)、建筑高度是桥上行车路面(或轨顶)标高至桥垮结构最下缘之间的距离。
8)、公路(或铁路)定线中所确定的桥面(或轨顶)标高,对通航净空顶部标高之差又称容许建筑高度。
9)、净矢高是从拱顶截面下缘至相邻两拱脚截面下线最低点之连线的垂直距离。
10)、计算矢高是从拱顶截面形心至相邻两拱脚截面形心之间连线的垂直距离。
11)、矢跨比是拱桥中拱圈(或拱肋)的计算矢高与计算跨径之比,也称拱矢度。
它是反映拱桥受力特性的一个重要指标。
12)、为了区别于桥梁,单孔跨径不到5m的结构物均称为涵洞。
03、桥梁按结构体系划分有梁式桥、拱桥、钢架桥、悬索桥等四种基本体系。
还有几种由基本体系组合而成的组合体系。
1B412040 中央分隔带及路肩施工技术1B412041 中央分隔带施工一、中央分隔带的开挖二、防水层施工三、纵向碎石盲沟的铺设土工布的接长和拼幅需采用平搭接的连接方式,搭接长度不得小于30cm。
2.基槽开挖。
沟底坡度应和路面横坡一致。
3.铺设垫层。
垫层采用粒径小的石料,如石屑、瓜子片等,铺设厚度应保持均匀一致,保证垫层顶面具有规定的横坡。
4.埋设塑料排水管。
埋设要求:一端应插入中央分隔带范围内的纵向排水沟盲沟位置,另一端应伸出路基边坡外。
横向塑料排水管的进口须用土工布包裹,防止碎石堵塞。
5.沟槽回填五、缘石安装1.路缘石应在路面铺设之前完成。
2.预制缘石应铺筑设在厚度不小于2cm的砂垫层上,砌筑砂浆的水泥与砂的体积比应为1:2。
【例题12·实务操作与案例分析】背景资料:施工单位承接了一新建高速公路K50+000~K75+000 段路面工程与交通工程的施工,其中包含中央分隔带及路面排水工程,一般路段中央分隔带断面设计如下图所示。
每千米一般路段中央分隔带主要材料数量表:1.图中尺寸除注明外均以cm 计。
2.施工中应确保防水层不漏水。
3.土工布A 重量为250g/㎡,其技术指标按相应要求执行。
4.土工布B 重量为500g/㎡,其技术指标按相应要求执行。
施工单位编制了施工组织方案,部分内容摘录如下:①路基施工完毕后,即可埋设横向塑料排水管;②当路面底基层施工完毕后,即可开挖中央分隔带;③中央分隔带应采用大型机械开挖;④开挖的土料不得直接堆置在已经铺好的路面结构层上,应及时运走;⑤中央分隔带沟槽开挖完毕并经验收合格后,即可铺设防水层;⑥防水层施工范围是中央分隔带开挖沟槽与路基的接触面;⑦应合理安排以下四项工作:a.回填种植土,b.基层施工,c.防水层施工,d.护栏立柱打桩……【问题】1.改正中央分隔带施工组织方案中的错误之处(按“把第×条应改为:……”的描述),并简述埋设横向塑料排水管的施工工艺。
2.指出图中“土工布A”的作用。
3.指出中央分隔带防水层采用的是什么材料。
还可以采用什么材料做防水层?4.写出a、b、c、d四项工作的合理先后顺序。
【参考答案】1.(1)第②条应改为基层施工完毕后开挖;第③条应改为采用人工开挖的方式;第⑥条应改为防水层施工范围是路基及路面结构层。
(2)埋设横向塑料排水管的施工工艺:①路基施工完成后,即可进行埋设横向塑料排水管的施工→②基槽开挖→③铺设垫层→④埋设塑料排水管→⑤沟槽回填。
2.土工布A 的作用作为反滤层,隔离回填土。
3.(1)M7.5水泥砂浆和土工布。
(2)还可采用:双层防渗沥青、PVC 防水板。
4.正确顺序为:b→d→c→a。
1B412042 路肩施工路肩是位于行车道外缘至路基边缘、具有一定宽度的带状结构部分,包括硬路肩和土路肩。
路肩的主要作用有:①保护行车道等主要结构的稳定;②为发生机械故障或遇到紧急情况的车辆需要临时停车提供位置;③提供侧向余宽,有利于安全,增加舒适感;④可供行人、自行车通行;⑤为设置路上设施提供位置;⑥作为养护操作的工作场地;⑦在不损坏公路构造的前提下,也可作为埋设地下设施的位置;⑧改善挖方路段的弯道视距,增进交通安全;⑨使雨水能够在远离行车道的位置排放,减少行车道雨水渗透,减少路面损坏。
一、土路肩施工培土路肩施工方案(填方路基):1.准备下承层:即具有经检验合格的底基层面2.二、硬路肩施工硬路肩的设计标高常见的有两种情况:一种是硬路肩与车行道连接处标高一致,可将硬路肩视为行车道的展宽;另一种是硬路肩的顶面标高低于相连的行车道,这种情况应先摊铺硬路肩部分,宽度应比要求的宽5cm左右,保证与行车道路面有一定的搭接,以免搭不上需人工找补。
摊铺行车道表面层时,摊铺机靠硬路肩一侧的端部应使用45°的斜挡板,以减少碾压时边缘拥塌或发生较大的侧移,并尽量使边缘顺直、平齐。
【例题13·单选】培土路肩的施工流程正确的是()。
【2017真题】A.备料→平整→静压→推平→切边→平整→碾压B.备料→平整→静压→推平→碾压→切边→平整C.备料→推平→平整→静压→切边→平整→碾压D.备料→推平→静压→平整→碾压→平整→切边【解析】培土路肩施工流程:备料→推平→平整→静压→切边→平整→碾压。
【答案】C【例题14·单选】培土路肩施工流程为:备料→推平→平整→X→Y→平整→碾压,其中X、Y 工序分别是()。
【2014真题】A.回填、切边B.切边、回填C.静压、切边D.切边、静压【解析】土路肩施工工作流程:备料→推平→平整→静压→切边→平整→碾压。
【答案】C【例题15·多选】填方路肩施工说法正确的是()。
【2019真题】A.培路肩的方法施工既经济又简便B.土路肩通常随着路面结构层的铺筑,相应地分层培筑C.先培更优于后培D.培土路肩的材料,通常与填筑路堤的材料相同E.后培路肩的缺点是,横断面上易形成一个三角区【答案】ABD【解析】选项A说法正确,对填方路段来说,采用培路肩的方法施工既经济又简便。
选项B 说法正确,土路肩通常随着路面结构层的铺筑,相应地分层培筑。
选项C说法错误,路肩可以先培也可以后培,各有利弊。
选项D说法正确,培土路肩的材料,通常与填筑路堤的材料相同,应在填筑路堤、修整边坡时,将削坡剩余的材料暂存在靠近路肩的边坡上。
选项E说法错误,先培路肩的缺点是,横断面上易形成一个三角区。
1B412050 路面工程质量通病及防治措施1B412051 无机结合料基层裂缝的防治一、原因分析1.2.3.4.5.6.7.二、预防措施过低。
4.铺筑碎石过渡层,在石灰土基层与路面间铺筑一层碎石过渡层,可有效避免裂缝。
5.分层铺筑时,在石灰土强度形成期,任其产生收缩裂缝后,再铺筑上一层,可有效减少新铺筑层的裂缝。
5~10m设一道缩缝。
(二)水泥稳定土基层裂缝的主要防治方法1.改善施工用土的土质,采用塑性指数较低的土或适量掺加粉煤灰或掺砂。
2.控制压实含水量,需要根据土的性质采用最佳含水量,含水量过高或过低都不好。
3.4.束后应及时铺筑下封层。
5.设计合理的水泥稳定土配合比,加强拌合,避免出现粗细料离析和拌合不均匀现象。
【例题16·多选】能有效防治水泥稳定土基层裂缝的措施有()。
【2017真题】A.采用塑性指数较高的土B.控制压实含水量,根据土的性质采用最佳含水量C.在保证水泥稳定土强度的前提下,尽可能增加水泥用量D.一次成型,尽可能采用快凝水泥E.加强对水泥稳定土的养护,避免水分挥发过大【解析】水泥稳定土基层裂缝的主要防治方法:(1)改善施工用土的土质,采用塑性指数较低的土或适量掺加粉煤灰或掺砂。
(2)控制压实含水量,需要根据土的性质采用最佳含水量,含水量过高或过低都不好。
(3)在能保证水泥稳定土强度的前提下,尽可能采用低的水泥用量。
(4)一次成型,尽可能采用慢凝水泥,加强对水泥稳定土的养护,避免水分挥发过大。
养护结束后应及时铺筑下封层。
(5)设计合理的水泥稳定土配合比,加强拌和,避免出现粗细料离析和拌和不均匀现象。
【答案】BE【例题17·单选】造成水泥稳定碎石基层产生裂缝的原因,下列说法不正确的是()。
A.在保证强度的情况下,尽量降低水泥稳定碎石混合料的水泥用量B.碾压时混合料含水量偏大,不均匀C.混合料碾压成型后未及时洒水养护D.增加碎石级配中细粉料的含量【解析】可能造成水泥稳定碎石基层裂缝的原因有:(1)水泥剂量偏大或水泥稳定性差;(2)碎石级配中细粉料偏多,石粉塑性指数偏高;(3)集料中黏土含量大,因为黏土含量越大,水泥稳定碎石的干缩、温缩裂纹越大;(4)碾压时混合料含水量偏大,不均匀;(5)混合料碾压成型后养护不及时,易造成基层开裂;(6)养护结束后未及时铺筑封层。
【答案】A1B412052 沥青混凝土路面不平整的防治原因分析:1.路面不均匀沉降。
2.基层不平整对路面平整度的影响。
3.桥头、涵洞两端及桥梁伸缩缝的跳车。
4.路面摊铺机械及工艺水平对平整度的影响。
5.面层摊铺材料的质量对平整度的影响。
6.碾压对平整度的影响。
1B412053 沥青混凝土路面接缝病害的防治原因分析:(一)横向接缝1.采用平接缝,边缘未处理成垂直面。
采用斜接缝时,施工方法不当。
2.新旧混合料的粘结不紧密。
3.摊铺、碾压不当。
(二)纵向接缝1.施工方法不当。
2.摊铺、碾压不当。
1B412054 水泥混凝土路面裂缝的防治原因分析:(一)横向裂缝1.混凝土路面切缝不及时。
2.切缝深度过浅。
3.混凝土路面基础发生不均匀沉陷(如穿越河道、沟槽,拓宽路段处),导致板底脱空而断裂。
4.混凝土路面板厚度与强度不足,在行车荷载和温度作用下产生强度裂缝。
5.水泥干缩性大;混凝土配合比不合理,水胶比大;材料计量不准确;养护不及时。
6.混凝土施工时,振捣不均匀。
(二)纵向裂缝1.路基发生不均匀沉陷2.由于基础不稳定。
3.混凝土板厚度与基础强度不足产生的荷载型裂缝(三)龟裂1.剧收缩,导致开裂。
2.混凝土拌制时水胶比过大;模板与垫层过于干燥,吸水大。
3.混凝土配合比不合理,水泥用量和砂率过大。
4.混凝土表面过度振捣或抹平,使水泥和细骨料过多上浮至表面,导致缩裂。
【例题18·单选】混凝土浇筑后,表面没有及时覆盖,容易发生()。
A.纵向裂缝B.横向裂缝C.龟裂D.滑坡【解析】龟裂产生的原因:(1)混凝土浇筑后,表面没有及时覆盖,在炎热或大风天气,表面游离水分蒸发过快,体积急剧收缩,导致开裂。
(2)混凝土拌制时水胶比过大;模板与垫层过于干燥,吸水大。
(3)混凝土配合比不合理,水泥用量和砂率过大。
(4)混凝土表面过度振捣或抹平,使水泥和细骨料过多上浮至表面,导致缩裂。
【答案】C1B412055 水泥混凝土路面断板的防治治理措施(一)裂缝的修补裂缝的修补方法有直接灌浆法、压注灌浆法、扩缝灌注法、条带罩面法、全深度补块法。
(二)局部修补1.对轻微断裂,裂缝有轻微剥落时,按画线位置凿开深5~7cm的长方形凹槽,刷洗干净后,用快凝小石子填补。
2.轻微断裂,裂缝较宽且有轻微剥落的断板,应按裂缝两侧至少各20cm的宽度放样,按画线范围开凿成深至板厚一半的凹槽,钻孔,清槽,插筋,回填。
3.较为彻底的办法是将凹槽凿至贯通板厚,打洞,插筋,然后用快凝砂浆填塞捣实,待砂浆硬后浇筑快凝混凝土夯捣实齐平路面即可。
对于严重断裂,裂缝处有严重剥落,板被分割成3块以上,有错台或裂块并且已经开始活动的断板,应采用整块板更换的措施。
【例题19·多选】水泥混凝土路面断板的治理措施有()。
A.直接灌浆B.局部带状修补C.扩缝灌浆D.罩面补强E.整块板更换【答案】ABCE【解析】治理措施:(一)裂缝的灌浆封闭(直接灌浆法、压注灌浆法、扩缝灌浆法);(二)局部带状修补;(三)整块板更换。