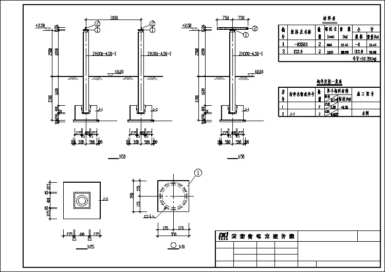
隔离开关基础
- 格式:ppt
- 大小:5.29 MB
- 文档页数:34
断路器及隔离开关培训随着电力设备的不断发展和更新换代,断路器和隔离开关作为电力系统中的重要部件,它们的性能和可靠性直接影响到电力系统的安全运行。
因此,对断路器及隔离开关的培训是非常重要的。
本文将围绕断路器及隔离开关的基本原理、类型、工作原理、操作规程以及维护保养等方面展开培训。
第一部分:断路器基础知识1. 定义:断路器是电气设备中的一种用以实现电气设备开路、短路和过载保护的开关。
2. 构成:断路器主要由断路器本体、操作机构和触发器等部件组成。
3. 工作原理:断路器在电路中的作用是在电路超载或短路时迅速切除故障电流。
4. 类型:常见的断路器主要分为空气断路器、真空断路器和SF6 断路器等。
第二部分:隔离开关基础知识1. 定义:隔离开关是一种用来隔离和切断电气设备的电气开关。
2. 构成:隔离开关主要由隔离刀片、隔离机构和接地开关等部件组成。
3. 工作原理:隔离开关在电气设备维护、检修和分段操作时,能够隔离和切断电气设备与电源之间的电气连接。
4. 类型:根据用途不同,隔离开关主要分为高压隔离开关和负荷隔离开关两种。
第三部分:断路器及隔离开关的操作规程1. 断路器操作规程:包括手动操作、远程操作和自动操作等,操作人员需了解各种操作方式的步骤和注意事项。
2. 隔离开关操作规程:主要包括隔离开关的手动操作和远程操作,操作人员需按照标准操作规程执行操作。
3. 操作安全:操作人员在进行断路器和隔离开关操作时,应严格遵守电气安全操作规程,确保自身和设备的安全。
第四部分:断路器及隔离开关的维护保养1. 定期检查:定期对断路器和隔离开关进行检查和试验,发现异常情况及时处理。
2. 维护保养:对断路器和隔离开关的各部件进行润滑、清洁和检修,确保设备的正常运行。
3. 故障处理:对于断路器和隔离开关出现的故障,需进行及时的处理,保证设备的正常使用。
结语断路器及隔离开关作为电力系统中的重要设备,其性能和可靠性直接关系到电力系统的安全运行。
高压隔离开关基础知识1、高压隔离开关含义高压隔离开关又称隔离刀闸,没有专门的灭弧装置,不能用来切断负荷电流和短路电流,使用时应与断路器配合,只有在断路器断开后才可进行操作。
它的主要作用是配合断路器接通和断开电源,改变设备的运行状态。
2、高压隔离开关的用途1)用来隔离电源,保证检修安全,使检修的电气设备与电源有明显的断开点;2)进行倒闸操作以改变系统运行方式,如在双母线运行的电路中,利用隔离开关将设备或线路从一组母线切换到另一组母线上去;3)在一定情况下,可以用来接通和切断小电流电路。
如利用隔离开关可进行以下操作:(1)分,合电压互感器和避雷器回路。
(2)分,合母线的充电电流。
(3)分,合励磁电流不超过2A的空载变压器和电容电流不超过5A的空载线路。
3、高压隔离开关的分类1)按安装场所分为:户内和户外两种;2)按极数分为:单极和三极两种;3)按绝缘支柱的数目分为:单柱式、双柱式和三柱式三种;4)按结构特点分为:闸刀式,螺旋式和插入式三种;5)按作用不同分为:带接地刀开关和不带接地刀开关两种;6)按配用的操纵机构分为:手动、电动和气动操作机构等类型。
4、高压隔离开关的结构隔离开关主要由支持底座、导电部分、绝缘子、传动机构和操动机构组成。
1)支持底座该部分的作用是起支持和固定作用,它将导电部分、绝缘子、传动机构、操动机构等固定为一体,并使其固定在基础上。
2)导电部分包括触头、闸刀、接线座,该部分的作用是传导电路中的电流。
3)绝缘子包括支持绝缘子、操作绝缘子,其作用是将带电部分和接地部分绝缘开来。
4)传动机构它的作用是接受操动机构的力矩,并通过拐臂、连杆、轴齿或是操作绝缘子,将运动传动给触头,以完成隔离开关的分、合闸动作。
5)操动机构与断路器操动机构一样,通过手动、电动、气动、液压向隔离开关的动作提供能源。
5、高压隔离开关的常见故障及处理1)拒绝分闸(1)隔离开关拒绝分闸的原因:冰冻引起拒分;传动机构卡滞;接触部分卡住。
隔离开关基础知识隔离开关是电力系统中常见的一种电器设备,具有隔离分断电路的功能,用于确保人员和设备的安全。
隔离开关的使用广泛,可以在工业、商业和居民用电中见到。
本文将介绍隔离开关的基础知识,包括定义、结构和作用等内容。
1. 定义隔离开关是一种用于隔离电路的开关设备。
它能够打开或关闭电路,从而将设备与电源隔离,避免电流通过设备和线路。
隔离开关通常由可旋转的刀片和冷隔离柄构成,可以手动操作,也可以通过电动机构控制。
2. 结构隔离开关的主要结构包括刀片、接触、执行机构和隔离柄等部分。
2.1 刀片刀片是隔离开关的重要组成部分,通常呈直形或弯曲形状。
刀片两端有固定接点和移动接点,用于与接触器的触点连接和断开。
刀片的设计需要考虑其可靠性和安全性,确保接触良好,并能承受额定电流和短路电流。
2.2 接触隔离开关中的接触是刀片和触点之间的接头,用于传递电流。
接触通常由铜或银合金制成,具有良好的导电性能和耐久性,可以承受高电流和频繁的操作。
2.3 执行机构隔离开关的执行机构是用于控制开关状态的装置。
它可以是手动操作或电动操作。
手动操作的执行机构通常由隔离柄和旋钮组成,通过人工旋转控制刀片的位置。
电动操作的执行机构通常由电动机和齿轮传动机构组成,可以通过电气信号或远程控制实现开关操作。
2.4 隔离柄隔离柄是隔离开关的可见部分,通常呈塑料或橡胶制成。
它是用于手动操作隔离开关的手柄,有助于操作者正确使用开关。
3. 作用隔离开关的主要作用是安全隔离,保护人员和设备免受电流的危害。
当需要对电路进行维修、检修或更换设备时,可以使用隔离开关将电路与电源隔离,避免电流通过设备和线路。
这样可以保证维修人员的安全,并防止设备受到损坏。
此外,隔离开关还可以用作紧急停机装置,当发生故障或危险情况时,可以迅速切断电路,保护人员和设备。
4. 使用注意事项在使用隔离开关时,需要遵守以下注意事项:4.1 确保合理安装隔离开关应该安装在易于操作和观察的位置,确保操作者能够清楚地看到开关的状态。
单柱式隔离开关民熔单柱式隔离开关是一种主要用于“隔离电源、倒闸操作、用以连通和切断小电流电路”,无灭弧功能的开关器件。
由于隔离开关的使用量大,工作可靠性要求高,所以对变电所、电厂的设计、建立和安全运行的影响均较大。
民熔单柱式隔离开关是采用陶瓷绝缘子浇筑而成,不易老化经久耐用,民熔隔离开关的表面有抗氧化能力,加强零件的抗锈蚀能力,民熔的隔离开关是一体锁扣装置、安全可靠,放心选择。
本文将会介绍关于民熔单柱式隔离开关的基础知识,感觉这篇文章对你有帮助的话,可以关注下小编1、分闸后,建立可靠的绝缘间隙,将需要检修的设备或线路与电源用一个明显断开点隔开,以保证检修人员和设备的安全。
2、可用来分、合线路中的小电流,如套管、母线、连接头、短电缆的充电电流,开关均压电容的电容电流,双母线换接时的环流以及电压互感器的励磁电流等。
3、根据不同结构类型的具体情况,可用来分、合一定容量变压器的空载励磁电流。
民熔单柱式隔离开关在低压设备中主要适用于民宅、建筑等低压终端配电系统。
主要功能:不带负荷分断和接通线路。
1.用于隔离电源,将高压检修设备与带电设备断开,使其间有一明显可看见的断开点。
2.民熔单柱式隔离开关与断路器配合,按系统运行方式的需要进行倒闸操作,以改变系统运行接线方式。
民熔单柱式隔离开关主要用来将高压配电装置中需要停电的部分与带电部分可靠地隔离,以保证检修工作的安全。
民熔单柱式隔离开关无笨重的底座,占地面积小,可直接布置在架空母线的下面,减少配电装置的面积。
单柱式隔离开关需用材料少,成本低。
但在破冰能力和恶劣气候条件下稳定可靠地工作显得还不够理想,且无法装设两组接地刀闸。
由于单柱式隔离开关具有占地面积小的突出优点,近年发展较快。
民熔单柱式隔离开关定义每极的静触头悬挂于母线或独立的支座上,其动触头都用单独的底座或框架支撑,其断口方向与底座平面垂直的隔离开关。
民熔单柱式隔离开关由于隔离开关在架空母线下面直接将垂直空间用作断口的电气绝缘,所以,相对于其它两种来说,有着明显的优点,另外,这种开头还有节约面积,减少引接导线的优点。
隔离开关基础施工方案一、设备基础类型1、隔离开关基础特点功能要求:隔离开关基础主要用于支撑和固定隔离开关设备,确保设备的稳定性和安全性。
基础的设计需满足设备的功能和使用要求。
负荷考虑:考虑隔离开关设备的负荷特性,包括峰值负荷、持续负荷以及可能的冲击负荷。
确保基础的尺寸和强度能够承受这些负荷,保障设备的正常运行。
耐久性:考虑基础的材料选择和施工工艺,确保基础具有足够的耐久性,能够承受气候变化、地下水位变动等外部因素的影响。
2、设备选型和规格基础形式:隔离开关基础可采用桩基础、承台基础或单体基础等形式。
选型需综合考虑地质条件、负荷特点和施工可行性。
材料选择:基础常采用混凝土作为主要材料,需选择强度高、耐久性好的混凝土,并考虑使用添加剂以提高抗渗性和抗冻性。
基础尺寸:根据设备的尺寸和负荷要求,确定基础的长度、宽度和深度。
充分考虑基础的稳定性和承载能力。
锚固件设置:若需要,考虑在基础中设置锚固件以固定隔离开关设备。
锚固件的选择和设置需符合相关标准和规范。
施工工艺:制定基础施工的具体工艺流程,包括挖掘、模板制作、钢筋加工和混凝土浇筑等步骤。
确保施工过程符合设计要求。
质量控制:设立质量控制点,进行混凝土浇筑前的模板验收、钢筋验收等检查,确保基础施工的质量。
二、基础设计1、地基调查和设计参数地质调查:进行详细的地质勘察,获取地下土层的物理性质、水文地质情况、承载能力等信息。
这有助于确定基础设计参数,提前了解可能遇到的地质问题。
设计参数确定:根据地质调查结果,确定设计参数,包括但不限于土壤承载力、基础底面积、基础深度等。
确保设计参数合理、安全。
2、基础类型选择基础形式:根据地质调查结果和设备负荷特性,选择适当的基础形式,如浅基础(承台基础、单体基础)或深基础(桩基础)。
确保基础形式能够满足承载和稳定的要求。
基础尺寸设计:结合设备的负荷要求,使用合适的结构设计方法确定基础的尺寸,包括长度、宽度和深度。
考虑基础与设备的接触面,确保均布荷载。
高压隔离开关概述之宇文皓月创作第一部分隔离开关基本知识第二部分隔离开关分类及运行要点第三部分隔离开关型号暗示方法及含义第四部分隔离开关结构的基本组成第五部分户外隔离开关结构形式第一部分隔离开关基本知识一、隔离开关设备术语1.隔离开关在分位置时,触头间符合规定要求的绝缘距离和明显的断开标记;在合位置时,能承载正常回路条件下的电流及规定时间内异常条件(例如短路)下的电流开关设备。
2.接地开关释放被检修设备和回路的静电荷以及为包管停电检修时检修人员人身平安的一种机械接地装置。
它可以在异常情况下(例如短路)耐受一定时间的电流,但在正常情况下欠亨过负载电流,它通常是隔离开关的一部分。
3.快分隔离开关分闸时间等于或小于0.5s的隔离开关称为快分隔离开关。
4.断口距离隔离开关的主隔离开关在正常分闸位置时,同相两极触头之间的最短距离,对多断口隔离开关而言,最短距离是指全部断口最短绝缘距离之和。
5.合闸分歧期性合闸分歧期性是指两相或多相隔离开关的主隔离开关分歧时接触时的差别,通常以距离暗示。
6.接线端机械负荷在考虑母线的自重、张力、风力、覆冰和雪施加于隔离开关接线端的情况下的最大拉力。
二、隔离开关作用(1)将电气设备与运行中电网隔离,以包管被隔离的电气设备能平安地进行检修维护。
(2)改变运行方式。
在双母线运行的电路中,利用隔离开关可将电气设备或线路从一组母线切换到另一组母线上运行。
(3)接通和断开小电流电路。
三、隔离开关的基本要求(1)隔离开关应具有明显断开点,便于确定被检修的设备或线路是否与电网断开。
(2)隔离开关断开点之间应有可靠的绝缘,以包管在恶劣的气候条件下也能可靠工作,并在过电压及相间闪络的情况下,不致从断开点击穿而危及人身平安。
(3)隔离开关应具有足够的热稳定性和动稳定性,尤其不克不及因电动力的作用而自动断开,否则将引起严重事故。
(4)隔离开关的结构要简单,动作要可靠。
(5)带有接地隔离开关的隔离开关必须有连锁机构,以包管先断开隔离开关后,再合上接地隔离开关,先断开接地隔离开关后,再合上隔离开关的操纵顺序。
隔离开关基础拆除施工方案一、施工准备1、安全措施1.1、制定安全方案a.由专业安全人员编制详细的安全方案,考虑到拆除工程的特殊性。
b.确保方案包括应急预案,以便在发生意外情况时能够迅速、有效地应对。
1.2、个人防护装备a.提供并确保所有工作人员佩戴适当的个人防护装备,包括头盔、手套、安全鞋、耳罩等。
b.定期检查个人防护装备的状态,及时更换损坏或失效的装备。
2、材料和设备准备2.1、工具和设备a.确保所有必需的拆除工具和设备,如挖掘机、拆除锤、切割工具等,均在良好工作状态。
b.对工具和设备进行必要的维护和检修,以确保其在施工期间的可靠性。
2.2、废料容器和材料a.采购足够数量和适当规格的废料容器,以便储存和运输拆除产生的废弃材料。
b.确保所有容器符合环保法规,并具备适当的密封性能,防止废料泄漏。
2.3、施工材料a.预先准备所需的施工材料,如支撑结构、防护覆盖物等,以确保拆除过程中的安全性和高效性。
3、环境准备3.1、施工区域清理a.移除施工区域内的杂物和障碍物,确保施工现场的通畅和安全。
b.在必要时设置合适的围挡和标识,限制未授权人员的进入。
3.2、环境保护措施a.采取措施防止拆除过程中产生的粉尘、废料、噪音等对周围环境的影响。
b.在可能的情况下,选择环保友好型的施工方法和材料。
4、沟通与协调4.1、与相关部门协调a.与当地政府相关部门协调,确保拆除工程的合规性和符合法规要求。
b.与电力公司或其他相关单位协调,确保拆除隔离开关的设备符合相应的拆除标准和程序。
4.2、沟通与培训a.在施工人员中进行必要的沟通,明确拆除工程的施工计划和安全注意事项。
b.进行相关培训,确保施工人员了解和掌握拆除工作的标准操作程序。
二、场地清理1、移除周围的障碍物a.检查拆除工程范围内的周边区域,识别并移除一切可能影响施工的障碍物,如树木、临时建筑物、管道等。
b.针对大型或不易移动的障碍物,采用合适的拆除或移动设备,确保施工区域的清晰和畅通。