电梯800kg设计计算说明书概要教学文案
- 格式:doc
- 大小:272.50 KB
- 文档页数:33
住宅楼800公斤客梯的轿厢尺寸客梯是现代住宅楼中必不可少的设施之一,它为居民提供了便利的交通工具,让他们能够方便快捷地从楼下到楼上。
在设计客梯时,轿厢的尺寸是一个至关重要的因素,因为它直接关系到搭乘体验和安全性。
本文将详细介绍住宅楼800公斤客梯的轿厢尺寸。
首先,我们需要了解一下住宅楼800公斤客梯的标准尺寸。
通常情况下,这类客梯的轿厢尺寸为宽度1.1-1.5米,长度1.4-2.5米,高度2-2.5米。
这个尺寸范围能够满足绝大部分住宅楼的需求,但具体的设计仍需根据实际情况来确定。
在确定客梯轿厢尺寸时,需要考虑的因素有很多。
首先是建筑物的结构设计,包括楼层高度、轿厢井道尺寸等。
其次是客流量和搭乘需求,如果住宅楼人口密集,客流量大,那么轿厢尺寸就需要相应增大。
再者是安全标准,根据相关规定,轿厢的尺寸需要能够容纳轮椅和暂时停留的人员,保证他们的安全和舒适。
对于住宅楼800公斤客梯的轿厢尺寸,需要进行综合考虑。
首先是宽度,一般情况下,1.1-1.5米的宽度已经能够满足绝大部分情况。
如果客流量大或者有较多残疾人需要搭乘,建议选择较宽的轿厢以提高搭乘的舒适度和便利性。
其次是长度,轿厢的长度需要足够满足大部分情况下的搭乘需求,一般情况下1.4-2.5米的长度已经足够。
最后是高度,2-2.5米的高度能够确保轿厢内有足够的空间,同时也符合相关的安全标准。
在确定了客梯轿厢尺寸之后,还需要注意一些细节问题。
比如轿厢内的装饰、照明、通风等设施的设置,都需要考虑到轿厢尺寸的具体情况。
此外,还需要考虑轿厢门的尺寸和开启方式,确保能够方便快捷地进出轿厢。
总的来说,住宅楼800公斤客梯的轿厢尺寸是一个综合考虑的结果,需要充分考虑建筑结构、客流量、安全标准等因素。
在设计过程中,需要与相关专业人员进行充分沟通和协商,确保轿厢尺寸能够满足实际需求,并且符合相关的法规和标准。
只有这样,我们才能设计出安全、舒适、实用的客梯轿厢,为住宅楼的居民提供更好的搭乘体验。
住宅楼800公斤客梯的轿厢尺寸在现代城市生活中,住宅楼已经成为人们最为常见的居住方式之一。
而在这些住宅楼中,客梯作为垂直交通的重要工具,承担着将居民从一楼运送到其他楼层的重要任务。
在众多的客梯中,800公斤承载能力的客梯是最为常见的一种。
800公斤客梯的轿厢尺寸是指其内部空间大小。
为了保证乘坐的舒适度和安全性,客梯轿厢的尺寸需要经过严格的设计和规范。
根据相关标准,在800公斤客梯中,轿厢的最小尺寸应为1100毫米×1400毫米。
在设计800公斤客梯的轿厢时,需要考虑多方面因素。
首先是舒适度。
由于客梯是供人们垂直移动的工具,轿厢的宽度应该足够宽敞,以方便乘客的进出和站立。
根据相关规定,800公斤客梯的轿厢宽度一般为1100毫米,这样的尺寸足够容纳一位乘客竖直站立。
此外,轿厢的深度也应足够,使乘客能够舒适地站立或坐下。
其次,安全性是设计800公斤客梯轿厢尺寸时需要考虑的重要因素。
在设计中,应保证轿厢的尺寸足够大,以确保在运行过程中,乘客进出轿厢时不会受到挤压。
同时,轿厢的高度应适中,避免出现头部碰撞或者身体被夹住的危险情况。
此外,轿厢内部的装饰材料和设施也需要符合相关的安全规范,避免引发火灾或其他安全事故。
在实际应用中,设计800公斤客梯的轿厢尺寸需要考虑到具体的使用环境和需求。
例如,如果住宅楼内居住的多为老年人或残疾人群体,轿厢的尺寸可以适当加大,以方便他们进出和移动。
而如果住宅楼内的使用需求主要是家庭,可能需要考虑婴儿车或购物车等大型物品的进出。
此外,在800公斤客梯的设计中,还应考虑到紧急疏散的问题。
因此,轿厢的尺寸应满足相关的紧急疏散需求,确保在紧急情况下乘客能够快速、安全地离开。
总之,800公斤客梯的轿厢尺寸是一项重要的设计要素。
设计者需要综合考虑乘客的舒适度和安全性,根据相关标准和规范确定合适的尺寸。
同时,还需要根据具体的使用环境和需求进行个性化的设计。
通过合理的尺寸设计,可以提高客梯的使用效率和舒适度,为居民提供更便利、安全的垂直交通方式。
****住宅电梯技术参数技术标必须包含内容:1.装潢质量保证2.二年质保期满后五年保修保养计划和报价表3.相关的鉴定和检验报告4.主要进口配件和零部件清单5.资质文件和维保站点位置6.电梯工程的范围说明7. 提供所有自控系统的微程序软件(包括专利软件、非专利软件)、说明书、系统流程图、数据流程图、控制流程图、程序说明书、指令手册、修改方法、输入方法等以供业主自行安装及修改用(控制程序不得加密)8. 相关的鉴定和检验报告9.选层按钮应带盲文10.减震装置为油压11.电梯部件配置表12.备品备件易损件报价表电梯标准配置基本功能1、全集选控制2、检修运行方式3、召唤功能4、电梯自救运行5、到站自动开门6、自动关门7、对讲机通讯、警铃8、关门按钮提前关门9、开门按钮开门10、故障重开门11、起动补偿12、满载直驶14、故障历史记录15、井道层楼数据自学习16、层楼位置信号的自动修正17、泊梯18、火灾紧急返回运行19、门区外不能开门保护措施20、安全触板(可不选)21、关门受阻保护装置22、超载保护23、超速保护24、运行超时保护25、防溜车保护26、防终端越程保护27、继电器、接触器触点检测保护28、变频器多重保护29、电梯运行次数显示30、欠相保护31、停电照明功能32、防门锁短接33、换站停靠34、逆向运行保护35、反向时自动消指令36、轿内误指令取消功能37、待机定期自检功能38、延长开门时间39、停电自救平层40、光幕保护41、下集选控制42、服务层的任意设置43、司机操作44、司机优先定向45、司机按钮直驶46、专用操作47、消防功能48、到站钟49、语音报站50、防恶作剧功能51、远程监视功能补充功能说明:(1)警铃(2)欠压保护(3)故障历史记录(4)点阵式楼层显示(5)楼层滚动显示(6)磁角度自学习功能(7)楼层显示字符的多样性设定(8)微动平层(9)群管理功能2012.6.6。
800千克1米每秒微机控制变频调压调速乘客电梯设计计算书微机控制变频调压、调速乘客电梯计算书性能参数额定载荷……………………………………Q=800kg,额定速度……………………………………V=1.0m/s,服务楼层数…………………………………15层,提升高度……………………………………45m,计算高度……………………………………50m,空载轿厢重量………………………………G1=1130kg,对重总重量…………………………………C p=1530kg计算项目一. 曳引机功率的计算 (2)二. 速度的计算 (2)三. 曳引条件的计算 (3)四. 曳引钢丝绳的选型计算 (5)五. 钢丝绳的比压计算 (6)六. 绳头组合计算 (7)七. 电梯导轨的选型计算 (8)八. 安全钳的计算 (10)九. 限速器的选型计算 (12)十. 缓冲器的选型计算 (13)十一. 轿厢架的强度计算 (14)一. 曳引机功率的计算电动机的功率可由下面公式求出:N=(1- K平)×Q×V/(102×η)式中,K平—平衡系数,取K平=0.5;Q—额定载荷;V—额定速度;η—机械总效率,对于有齿轮曳引机,钢丝绳绕法为1:1,取效率η=0.6;N=(1-0.5)×800×1.0/(102×0.6)=6.54 (kw)故选用11kw的曳引机,曳引轮直径D=560mm。
二.速度的计算轿厢运行速度可由下面公式求出:V t=(π·D·n)/(1000·60·i1·i2)式中,D—曳引轮直径(节径),取D=560mm;n—电机转速,n=1450r/min;i1—齿轮减速比,i1=44:1;i2—曳引比,i2=1。
V t=(π×560×1450)/(1000×60×44)=0.966(m/s)92%V=0.92×1.0=0.92(m/s)105%V=1.05×1.0=1.05(m/s)∴ 92%V < V t < 105%V,满足要求三.曳引条件的计算根据GB7588-95《电梯制造与安装安全规范》的规定,曳引机工作时,钢丝绳不致于打滑,应满足条件:T1/T2×C1×C2≤e fα式中,T1/T2—表示在载荷有125%额定载荷的轿厢位于最低层站及空载轿厢位于最高层站情况下,曳引轮两边曳引绳中的较大静拉力与较小静拉力之比;其中T1=G1+125%Q+G2 (轿厢一侧)式中,G1—空载轿厢重量(含电缆架、平衡链架),G1=1130kg;G2—轿厢一侧钢丝绳重量(取50m长计算),G2=5×50×0.586=146.5(kg)∴T1=1130+125%×800+146.5=2276.5 (kg)T2=G1+K平Q+G3 (对重一侧)G3—对重侧平衡链的重量,应等于轿厢侧钢丝绳的重量减去井道电缆重量G4,(井道电缆采用2根24芯和1根36芯电缆,每根长25m));G4=2×25×0.44+25×0.66=38.5 (kg)∴T2=1130+0.5×800+146.5-38.5=1638 (kg)C1—与加速度、减速度及电梯特殊安装情况有关的系数;C1=(g+a)/(g-a),按规定,当0.63m/sC2—由于磨损导致曳引机轮槽断面变化的影响系数;对于带切口半圆槽,C2=1;则T1/T2×C1×C2=2276.5/1638×1.15×1=1.598e—自然对数的底;f—曳引绳在曳引轮槽中的当量磨擦系数;对于带切口半圆槽,f=4μ[1-sin(β/2)]/(π-β-sinβ)其中,β—为带切口半圆槽槽形切口角,取β=95°=1.66rad;μ—曳引绳与绳轮槽之间的磨擦系数,取μ=0.09;则f=4×0.09×[1-sin(95°/2)]/(π-1.66-sin95°)=0.195。
菱王800公斤电梯井道参数设置说明(原创实用版)目录1.菱王 800 公斤电梯井道参数设置说明简介2.参数设置的具体步骤3.参数设置的注意事项4.参数设置对电梯运行的影响5.结论正文菱王 800 公斤电梯井道参数设置说明简介:菱王 800 公斤电梯是一款性能优异的电梯产品,其井道参数设置对于电梯的运行效果和安全性至关重要。
本文将为您详细介绍如何进行菱王800 公斤电梯井道参数设置,并说明参数设置的注意事项,以确保电梯能够正常、安全地运行。
参数设置的具体步骤:1.首先,需要对电梯的基本参数进行设置,包括电梯的额定载重、电梯的运行速度、电梯的停层数等。
这些参数将直接影响到电梯的运行性能和使用效果。
2.其次,需要设置电梯的安全参数,包括电梯的超载保护、电梯的限速保护、电梯的紧急停车保护等。
这些参数将直接影响到电梯的安全性能和乘客的乘梯安全。
3.最后,需要对电梯的运行参数进行设置,包括电梯的运行模式、电梯的运行时间、电梯的运行频率等。
这些参数将直接影响到电梯的运行效率和乘客的乘梯舒适度。
参数设置的注意事项:在进行参数设置时,需要注意以下几点:1.所有参数的设置应根据电梯的实际使用情况和乘客需求进行,不得随意更改。
2.参数设置应在专业人员的指导下进行,非专业人员不得擅自进行设置。
3.在参数设置过程中,应注意保护好电梯的控制系统,避免因操作不当导致的电梯故障。
参数设置对电梯运行的影响:参数设置的合理性对于电梯的运行效果和安全性有着重要的影响。
如果参数设置不合理,可能会导致电梯运行不稳定、安全性能下降,甚至发生电梯故障,威胁乘客的安全。
结论:菱王 800 公斤电梯井道参数设置是电梯运行的重要环节,合理的参数设置可以保证电梯的正常运行和乘客的安全。
轿壁厚度25mm 上下封头点焊连接,围壁与围壁之间采用M6螺栓连接,连接紧固可靠,强度和尺寸均符合国标要求。
19、轿顶护栏的设计轿顶护栏设置于轿厢顶部用于对维修人员起保护作用。
在轿顶上部设置轿顶护栏,由国标可知当轿顶与井道壁的自由距离大于850mm时,轿顶护栏高度需做到1100mm ,由土建图可知轿顶与井道壁的自由距离300小于850mm,轿顶护栏做到1100mm符合国标要求,轿顶护栏尺寸为1235×1200同时符合国标要求:轿顶上部有一块不小于0.5m×0.6m的水平净空面积。
设计如图:(1为护脚板,满足国标要求)21、门系统的说明资料(含开锁区域的尺寸说明)a)轿门型式和开门净尺寸本项目选用宁波申菱中分式自动开门变频门机,开门净尺寸800× 2100,规格如图如下:b)层门型式、开门净尺寸宁波申菱中分式层门装置,开门净尺寸800*2100,附图如下:c)轿门与关闭后的层门间的水平距离为L=54mm(最外层)轿厢地坎与层门地坎之间的水平距离为30mmd) 开锁区域的说明图(门刀长度为660mm)开锁区域即为轿厢停靠层站时在地坎上、下延伸的一段区域。
当轿厢底在此区域内时门锁方能打开,使开门机动作,驱动轿门、层门开启。
轿门机通过固定在其上的离合装置碰触厅门机引发两门机同时动作。
开锁区域即离合装置的动作距离57mm。
层门门锁装置的结构安装示意图:e)门板悬挂装置和导向装置简图轿门板悬挂装置厅门板悬挂装置22、电梯轿厢架计算一、计算方法:XJK630/1.0 (VVVF)电梯轿厢部分的主要受力部件,它由上梁、直梁、下梁、拉条以及联接它们的若干紧固件组成。
计算时,视上、下梁均为简支梁,其中上梁作用载荷为电梯额定起重量、轿厢净重(包括附件)补偿装置和电缆重量之和,并作用在上梁中央,下梁则假定5/8的额定起重量和轿厢净重的总各均布于下梁上,再加上补偿装置和电缆重量集中于下梁中央,上下梁均需进行强度和刚度计算,而且梁则进行强度,细长比,惯性矩计算二、基本参数与代号:1.Q1——电梯额定起重量与轿厢净重之和,对本电梯Q1=1800kg2.Q2——补偿装置和电缆重量之和,对本电梯Q2=108kg3.L——上、下梁跨度对本电梯L=155cm4.W X——单根钢对X——X轴抗弯矩对本电梯W X=108.3cm3(上梁)W X=116.8cm3(下梁)5.J——单根钢对X——X轴惯性矩,对本电梯:上梁J=866.2cm4下梁J=934.5cm46.E——材料弹性模量,对钢材E=2.1×107N/cm27.[σ]——许用正应力,对上、下梁[σ]=8788N/cm2对直梁[σ]=10546N/cm28.[Y]——上、下梁许用挠度,对本电梯[Y]=L/960=175/960=0.1823cm9.[λ]——直梁许用细长比,[λ]=160具有拉条,且连接点高度不超过直梁自由长度2/3时[λ]=120其它应情况而定三、轿架计算:1.上梁:将上梁简化为右图形式,由材料力学可知最大弯矩及最大挠度均发生在上梁中央剖面上,其值为:M max=(Q1+Q2)L/4Y max=(Q1+Q2)L3/96EJ最大正应力为:σmax= M max/2W X=(Q1+Q2)L/8W Xσmax=26580×175/8×108.3=5368.8N/cm2<[σ]=8788N/cm2Y max=26580×1753/96×2.1×107×866.2=0.082<[Y]=0.1823cm∴上梁强度与刚度足够.2.下梁:将下梁简化为右图形式,其中q为5/8Q1均布作用于下梁上面引起的载荷集度:q=5/8Q1/L=5×25500/8×175=91.07N/cm由材料力学可知,考虑q单独作用时下梁的最大弯矩与最大挠度分别为:M1max=ql2/8 Y1max=5qL4/768EJ考虑Q2单独作用时,下梁的最大弯矩与最大挠度分别为:M2max=Q2L/4 Y2max=Q2L3/96EJ∴最大正应力:α=M amax/2W X=ql2/16W x+Q2L/8W xmax=(qL2+2Q2L)/16W x代入数据:αmax=(91.07×1752+2×1080×175)/16×116.8=1694.7N/cm2<[α]=8788N/cm2∴下梁强度足够Y max=Y1max+Y2max=5qL4/768EJ+Q2L3/96EJ=L3/96EJ(5Q1/8+Q2)代入数据:Y max=1753/96×2.1×107×934.5(5×91.07×175/8+1080)=0.0314<[Y]=0.01823cm ∴下梁强度足够3.直梁:分别置于轿厢西侧,由于载荷在轿厢内分布不均及直梁与上、下梁为刚性结点特性,直梁受到拉伸与变曲的组合作用,记:P——电梯额定起重量对本电梯P=1000kgB——桥厢内净宽对本电梯B=150cm。
设计计算书TKJ(1350/)目录1 设计(de)目(de)2 主要技术参数3电机功率(de)计算4 电梯运行速度(de)计算5 电梯曳引能力(de)计算6 悬挂绳或链安全系数计算7 绳头组合(de)验算8 轿厢及对重导轨强度和变形计算9 轿厢架(de)受力强度和刚度(de)计算10 搁机梁受力强度和刚度(de)计算11 安全钳(de)选型计算12 限速器(de)选型计算与限速器绳(de)计算13 缓冲器(de)选型计算14轿厢和门系统计算说明15井道顶层和底坑空间(de)计算16轿厢上行超速保护装置(de)选型计算17盘车力(de)计算18操作维修区域(de)空间计算19电气选型计算20机械防护(de)设计和说明21主要参考文献1 设计(de)目(de)TKJ(1350/型客梯,是一种集选控制(de)、交流调频调压调速(de)乘客电梯,额定载重1350Kg,额定运行速度s.本客梯采用先进(de)永磁同步无齿轮曳引机进行驱动,曳引比为2:1,绕绳方式为单绕,采用2导轨结构,用一个主轿架承受轿厢,在曳引绳(de)牵动下沿着2根主导轨上下运行,以达到垂直运输乘客和医疗设备(de)目(de).本客梯(de)轿厢内净尺寸为宽2100mm深1600mm,内净面积为,完全符合GB7588-2003电梯制造与安装安全规范(de)要求.本计算书按照GB7588-2003电梯制造与安装安全规范(de)要求进行计算,以验证设计是否满足GB7588-2003标准和型式试验细则(de)要求.本计算书验算(de)电梯为本公司标准(de)1350kg乘客电梯,主要参数如下:额定速度s 额定载重量1350kg提升高度层站数15层15站轿厢内净尺寸2100mm1600mm 开门尺寸1100mm2100mm 开门方式为中分式本电梯对以下主要部件进行计算:(一)曳引机、承重部分和运载部分曳引机永磁同步无齿轮曳引机,型,15 Kw,绕绳比2:1,单绕,曳引轮节径450 mm,速度s搁机大梁主梁25工字钢轿厢 2100mm1600mm,2导轨钢丝绳 7-φ10,2∶1曳引方式导轨轿厢主导轨T89/B(二)安全部件计算及声明安全钳渐进式AQ11B型,总容许质量3500kg,额定速度s限速器 LOG03型,额定速度s缓冲器YH68-210型油压缓冲器,额定速度~s,总容许质量800-3500 kg,行程210 mm,总高675mm2 主要技术参数3电机功率(de)计算对于交流电梯,功率按下列公式计算:N=(1- K )QV 1 / 102ηi (kW ) 式中:K —平衡系数,K =;Q —额定载荷,Q=1350KgV 1—曳引机节径线速度,V 1=s η—电梯传动(de)总效率,η= i —曳引比 ,i= 2 将各参数代入上式:N=()1350(1022)=考虑到轿厢运行产生(de)附加阻力、满载起动工况及电机温升等情况,选用型,电机功率 ,可以满足设计要求.图1 曳引系统示意图4 电梯运行速度(de)计算电梯(de)运行速度V=πD n1/ 60i式中:D—曳引轮节园直径,D=n1—电机(de)额定转速,n1=149rpmi —曳引比,i =2将各参数代入:V=149 / (602)= m/s对于VVVF控制(de)电梯,只要V大于等于额定速度s,就可以通过改变电机(de)输入频率和电压来调节电梯(de)运行速度,使之在~ 额定速度(de)范围内,从而满足要求.5 电梯曳引能力(de)计算根据GB7588—2003(de)要求,电梯曳引力(de)计算分别按轿厢装载、紧急制动、轿厢滞留3种工况进行.基本参数5.1.1 选用(de) 型曳引机,其曳引轮(de)槽型为半圆槽,槽形(de)几何参数为:槽(de)角度γ=35o= rad下部切口角度β=95o= rad5.1.2 当量摩擦系数(de)计算根据GB7588—2003(de)要求,当量摩擦系数按下式计算:f =μ4 ( cos (γ / 2 )- sin (β/ 2 ) ) /(π-β-γ-sinβ+ sin γ)式中:μ—摩擦系数,对应3种工况分别为:装载工况μ=紧急制停工况μ= / (1 + V1/ 10 )= / (1 + / 10 )=轿厢滞留工况μ=将各参数代入可得3种工况下(de)当量摩擦系数:1) 装载工况f =4 ( cos (35o / 2 )- sin (95 / 2 ) ) /(π + sin 35o)=2) 紧急制停工况f =4( cos (35o / 2 )- sin (95o / 2 ) ) /(π + sin 35o)=3) 轿厢滞留工况f =4( cos (35o / 2 )- sin (95o / 2 ) ) /(π + sin 35o)= 轿厢装载工况根据GB7588—2003(de)要求,按照载有125%额定载荷(de)轿厢在底层平层位置时最不利情况进行计算,此时应满足:T1/ T2≤e f α式中:T1/ T2—曳引轮两边曳引绳(de)较大静拉力与较小静拉力(de)比值e —自然对数(de)底,e =α—曳引绳在曳引轮上(de)包角,α=155o = rad 将相关参数代入可得:T1=(P+Q+W 1)g/i=(1400+1350+51) 2=15379N T2=(G+W 3)g/i =(2008+0) /2=9839 N T1/ T2= 15379/9839= e f α= e =因为T1/T2 =≤e f α= 所以满足曳引条件.紧急制停工况根据GB7588—2003(de)要求,按照空载轿厢在顶层平层位置时最不利情况进行计算,此时应满足:T1/ T2≤e f α将相关参数代入可得:T1=G(g+a max ) /i+ W 1(g+ ia max )=2008+/2+51+2=10892 NT2=(P+W 2+W 3) (g-a max ) /i =(1400++110) NT1/ T2=10892/7105= e f α= e =因为T1/T2 =≤e f α= 所以满足曳引条件. 轿厢滞留工况根据GB7588—2003(de)要求,按照空载轿厢在顶层位置、对重压实在对重缓冲器上时最不利情况进行计算,此时应满足:T1/ T2≥e f α将相关参数代入可得:T1=(P+W 2+W 3)g /i =(1400++110)2=7486 N T2= W 1g=51= N T1/ T2=7486/= e f α= e =因为T1/T2 =≥e f α= 所以满足曳引条件.6 曳引绳(de)安全计算6.1曳引绳(de)直径要求根据GB7588—2003(de)要求,曳引轮(de)节径D 与曳引绳(de)直径d 之比不应小于40.在本系统中,D =450mm,d =10mm,则D/d= 450/10= 45≥40,满足标准要求.曳引绳(de)安全系数计算根据GB7588—2003(de)要求,当装有额定载荷(de)轿厢停靠在最低层站时,曳引绳(de)实际安全系数S 应不小于按标准附录N 规定(de)安全系数计算值S f ,即S ≥S f ,并不小于12. 6.2.1 实际安全系数S(de)计算 S =nF /((P+Q )/i+ W 1)g式中:F -单根曳引绳(de)最小破断载荷,F =44 KN 将相关参数代入可得: S =7441000/(((1400+1350)/2+51))= 6.2.2 标准规定(de)安全系数S f (de)计算根据GB7588—2003标准附录N(de)规定,本系统中滑轮(de)等效数量Nequiv 为:Nequiv = Nequiv(t) + Nequiv(p)式中:Nequiv(t) -曳引轮(de)等效数量,Nequiv(t)= Nequiv(p) -导向轮(de)等效数量Nequiv(p)= K P (Nps +4 Npr )根据标准(de)规定和曳引系统示意图(图1)可得:K P =( D/D 1)4=(450/520)4= Nps=3 Npr=0则Nequiv(p)= (3 +4 0 )=Nequiv =+= 因为 S f =10X X=X 2X 1= log ( 10 6 Nequiv ) / (D / d) )= log ( 10 6 / 45 ) = -X 2= log ( (D / d ) –= log ( 45–= - X=X 2= =所以 S f =10X ==从以上计算可得:S=≥S f =,即实际安全系数S 大于标准规定(de)安全系数S f 并不小于12,所以曳引绳(de)安全系数满足标准要求.7 绳头组合(de)验算采用专业厂生产(de)Φ10mm 型楔块式绳头组合,其型式试验(de)破断力为44kN,大于每根钢丝绳最小破断载荷(de)80%,即4480%=,满足GB7588-2003(de)规定,绳头组合(de)强度足够.8 轿厢及对重导轨(de)计算选用标准JG/电梯T 型导轨规定(de)T89/B 型导轨作为轿厢主导轨.根据标准,相应(de)主要技术参数如下:主导轨数量 n=2 翼缘厚度 C=10mm 截面积 A=1570mm 惯性半径 ix= iy=惯性距 Jx=597000mm 4 Jy=530000mm 4 抗弯模量 Wx=14500mm 3 Wy=11900mm 3抗拉强度Rm =370 N/mm 2 弹性模量E=105 N/mm 2许用应力:正常使用时[σ1]=165 N/mm 2 , 安全钳动作时[σ2]=205 N/mm 2许用变形 [δ]=5mm导轨支架间距 l=2500 mm 细长比λ=l / ix =2500 / =126 弯曲系数 (查GB7588-2003 附录G 表G3) :ω=轿厢尺寸:宽Dx=2000 mm,深Dy=1750mm,高Dz=2400mm 轿厢上下导靴之间距离 h=3550mm导轨受力主要有3种工况:1、安全钳动作时工况,2、装卸载工况,3、运行工况.其中最不利(de)工况为安全钳动作时(de)工况,其次为装卸载工况,所以只需计算这2种工况下导轨(de)受力和变形是否满足要求. 安全钳动作时(de)工况本系统选用渐进式安全钳,其冲击系数为k1=2.本系统为中心导向和悬挂(de)轿厢,其坐标见轿厢布置图 2 (轿厢中心Cd 和轿厢重心Pd 与悬挂中心Sd 重合,额定载荷Q 分别按相对于X 轴和Y 轴、均匀分布在最不利(de)3/4(de)轿厢面积里计算).图2 轿厢布置图额定载荷中心坐标 Xq=325mm Yq=8.1.1 由导向力引起(de)Y轴上(de)弯曲应力Fx=k1QgXq / (2h) =21350325/(23550) = 1211NMy=3Fxl/16 =312112500/16 =567656 Nmmσy= My/ Wy=567656/11900= N/mm28.1.2 由导向力引起(de)X轴上(de)弯曲应力Fy=k1QgYq /h=21350 3550= 8 NMx=3Fyl/16=38 2500/16=655313 Nmmσx= Mx/ Wx=655313/14500= N/mm28.1.3 压弯应力Fk=k1(P+Q)g/n =2(1400+1350)2=26950 Nσk=Fkω/ A=269501570=mm28.1.4 复合应力和翼缘弯曲应力]=205 N/mm2σm=σx+σy=+=mm2≤[σ2σ=σm+Fk / A=+26950/1570=mm2≤[σ]=205 N/mm22]=205 N/mm2σc=σk+σm=+= N/mm2≤[σ2]=205 N/mm2σf=Fx /C2 =1211/102= N/mm2≤[σ2满足强度要求.8.1.5 挠度δx=Fxl3/(48EJy) =121125003 /(48105 530000)=≤[δ]=5mmδy=Fy l 3/(48EJx) =25003/(48105597000)= mm ≤[δ]=5mm 满足许用变形要求. 装卸载工况装卸载时:F S ==1350=5292 N, X 1=1400 mm 8.2.1 由导向力引起(de)Y 轴上(de)弯曲应力Fx= F S X 1/ (2h) =52921400 / (23550) = 1043 N My=3Fxl/16 =312112500/16 =567656Nmm σy= My/ Wy=567656 /11900= N/mm 28.2.2 由导向力引起(de)X 轴上(de)弯曲应力本系统中不存在由导向力引起(de)X 轴上(de)弯曲应力,所以: Fy=0 Mx=0 σx= 0 8.2.3 压弯应力在装卸载时不发生压弯情况,所以:Fk=0 σk=08.2.4 复合应力和翼缘弯曲应力σm=σx+σy=0+= N/mm2≤[σ1]=165 N/mm 2σ=σm+Fk / A=+0= N/mm2≤[σ1]=165 N/mm 2 σf=Fx /C 2 =1211/102= N/mm 2≤[σ1]=165 N/mm 2 满足强度要求. 8.2.5 挠度δx=Fxl 3/(48EJy) =121125003 /(48105 520000)= mm ≤[δ]=5mm δy=0≤[δ]=5mm 满足许用变形要求. 8.2.6对重导轨计算采用T/K5A 导轨,符合JG/电梯对重空心导轨. TK5A(de)技术参数:Wxx=6.30cm 3 x 轴(de)截面积 Wyy=4.82cm 3 y 轴(de)截面积 A =6.17cm 2 导轨(de)截面积Ixx=24.33cm4 x轴(de)截面惯性矩Iyy=18.78cm4 y轴(de)截面惯性矩ixx=1.99cm x轴(de)回转半径iyy=1.74cm y轴(de)回转半径E= 弹性模量ω= ω系数(根据细长比查表求得lk/i=)100σ=正常使用时许用应力perm=最大允许变形量δpermc=1.8mm导轨连接部分宽度L=2000mm导轨支架(de)最大间距n=2支导轨(de)数量Rm=370Mpa导轨抗拉强度(导轨材料力学性能)A5≥% 导轨材料(de)延伸率K1=K2=K3=G=P+rQ=2008kgh=2800mm…上下导靴间距DBG=1450mm…对重架导轨距W=250mm…对重架宽度GB7588-2003电梯制造与安装安全规范规定:对于中心悬挂或对称悬挂(de)对重或平衡重,设定重力(de)作用点偏差在宽度方向为5%,深度方向为10%,DBGy=145mm …重力作用点在y 方向(de)偏移 BTFx=12.5mm …重力作用点在x 方向(de)偏移 M=0.00kg …附加装置(de)质量8.2.6.1正常使用导靴在Y 方向作用在导轨上(de)力 Fx=K2Gg ×BTFx/(2h)=××2008×2×2800= My=3Fxl/16=σy =My/Wy=19766/×1000=8.2.6.2导靴在X 方向作用在导轨上(de)力 Fy=g(gPYp+FsYl)/h=××2008×145/2800=1223N Mx=3Fyl/16=3×1223×2000/16=458577Nmm σx =Mx/Wx=458577/6300= 8.2.6.3弯曲应力在正常使用工况下,不发生弯曲情况. 8.2.6.4复合应力σm =σx +σy =+=<σperm =165Mpaσ=σm +(k3M)/A=+×20/617)=+=<σperm =165Mpa 8.2.6.5翼缘弯曲:σf=C2=××=<σperm =165Mpa8.2.6.6挠度:δx =3/48EIy=××20003/(48×210000×530000)=<σperm=5mm结论:电梯正常使用、运行时对重导轨(de)应力和变形符合要求.9 轿厢架强度和刚度(de)计算轿厢架是电梯(de)主要受力部件,它由上梁、下梁、立梁及连接它们(de)若干紧固件组成,计算时,视上、下梁均为简支梁,其中上梁作用载荷为整个安装在轿厢架上所有零部件(de)总重量(包括轿厢架自身(de)重量)和额定载重量之和,并作用于上梁(de)中央;下梁则假定额定载重量和轿厢上各个部件(de)总重量之和(de)5/8均布于下梁上,其余3/8(de)总重量再加上补偿链及随行电缆(de)重量集中作用于下梁中央.对于立梁,由于载荷在轿厢内分布不均匀,及立梁与上、下梁视为刚性连接等特点,立梁受到拉伸与弯曲(de)组合作用.图3 轿厢架结构示意图1——拉杆 2——上梁 3——直梁4——轿厢 5——轿底6——下梁基本参数(1)T1——电梯满载起动时,上梁所受(de)作用力:T1=(P+Q)(g+a)=(1400+1350)+=28325 N式中:P—整个轿厢(de)重量Q—额定载荷(2)T2——电梯满载起动时,下梁所受(de)均布载荷:T2=(P1+Q)(g+a)5/8=(1200+1350)+ 5/8=16416 N式中:P1—去除上梁、轿顶轮、直梁等辅件后(de)轿厢重量(3)T3——电梯满载起动时,下梁所受(de)集中载荷:T3=(P1+Q)(g+a)3/8+(W2+W3)=(1200+1350)+ 3/8+(+110)=9977N式中:W2—随行电缆(de)重量W3—补偿链(de)重量(4)T4——电梯满载起动时,立梁所受(de)垂直作用力:T4=(P2+Q)(g+a)= (1300+1350)+=27295 N式中:P2—去除上梁、轿顶轮等辅件后(de)轿厢重量(5)在本系统中,上梁采用16a—GB/T707-1988槽钢制作;下梁和直梁采用14a—GB/T707-1988槽钢制作.它们(de)几何特性参数分别为:16a槽钢:Wx=108cm3;Ix=866cm414a槽钢:Wx=;Wy=13cm3;Ix=564cm4; Ix=;A=[σ]——Q235材料(de)许用应力,对于上、下梁及立梁:[σ]=[σ]b/n=375/=150 MpaE——材料(de)弹性模量,对于本系统:E=210GpaLo——上、下梁(de)跨度,对于本系统: Lo =2216 mm[Y]——上、下梁(de)许用挠度,对于本系统:[Y]=Lo/1000=2216/1000= mmH——上、下导靴之间(de)垂直中心距,对于本系统:H=3550 mmL——立梁(de)长度,对于本系统:L=3340 mm上梁强度和刚度(de)计算上梁(de)上梁采用2根16a —GB/T707-1988制作,根据材料力学(de)梁所受(de)分别为:Mmax=T1L/8σmax=Mmax/ WxYmax= T1 Lo3/(248EIx)将有关参数代入:Mmax=283258=7846 Nmσmax=7846 1000/(1081000)= MpaYmax=2832522163/(248210103866104)= mm因为σmax = Mpa <[σ]= 150 MpaYmax= mm <[Y]= mm所以上梁(de)下梁强度和刚度(de)计算下梁(de)意图5,下梁采用2根14a —T707-1988槽钢制作,均布载荷q =T2/ L 0=16416/= 7408 N/m ;根据材料力学(de)下梁所受(de)最大挠度分别为:(a )在集中载荷情况下M 2max=T3L 0/8σ2max =M 2max/ WxY 2max= T3 Lo 3/(248EIx ) 将有关参数代入:M 2max =99778=2764 Nmσ2max =27641000/(1000)= MpaY 2max =998022163/(248210103564104)= (b )在均布载荷情况下M 1max= qLo 2/ WxY 1max=(5qLo 4)/(2384EIx ) 将有关参数代入: M 1max=16= Nmσ1max = 1000/1000)= MpaY 1max=(510-322164)/(2384210103564104)= mm 根据应力(de)叠加原理可得:σmax =σ1max+σ2max=+ = Mpa <[σ]= 150 Mpa Ymax= Y 1max+ Y 2max=+= mm <[Y]= mm 所以下梁(de)立梁(de)强度计算立梁(de)图6,立梁采用2根14a —GB/T707-1988槽钢制作,本系统中:轿厢(de)内净宽度B=;根据材料力学(de)基本理论可知,在受到拉伸和弯曲(de)组合作用下,立梁所受(de)最大应力为:σmax= QgBL/(32WyH)+T4/(2A)将有关参数代入:σmax=1350 /(3213+ 33990 / (2102)= <[σ]= 150 Mpa所以立梁(de)强度足够.10 搁机梁强度和刚度(de)计算搁机梁为2根28a——GB706/T-1988工字钢.按简支梁计算,并按最不利(de)工况计算,即所有受力点都在梁(de)跨度中央.搁机梁受纯弯矩(de)作用,弯矩、许用应力和挠度分别为:M=[2(P +Q+ G)+ Gm]gL/4σ=M/(2Wx)y= [2(P+Q+G)+ Gm]g L3/(248E Ix)式中:Gm——曳引机自重,Gm=500 kgL——搁机梁(de)长度,L= m搁机梁28a 工字钢(de)几何特性参数为:Ix=7110 cm4 Wx=508 cm3将相关参数代入可得:M= [2(1400+1350+2008)+500]4=83433 Nmσ=83433 / (2508)= Mpay = [2(1400+1350+2008)+500]102 /(2482107110)=因为σ= Mpa<[σ]= 150 Mpa y = mm<[y] = mm所以搁机梁(de)强度和挠度符合设计需要.11 安全钳(de)选用选用河北东方富达机械有限公司生产(de)AQ11B型渐进式安全钳,其总容许质量3500kg,额定速度= m/s.本客梯(de)(P+Q)=3200 kg,额定速度为s,在AQ11B型渐进式安全钳(de)适用范围内,符合使用要求.12 上行超速保护装置(de)选型计算本梯选用型无齿轮同步曳引机.额定载重量:1350kg电动机功率:15kw电动机转速:149r/min曳引轮节径:Φ450mm减速箱减速比:1:1曳引轮绳槽:8×φ10 半圆形带切口,β角=95 γ角=35 槽距=16主轴最大静载荷T :6000kg钢丝绳倍率:i=22、本梯(de)额定载重量为:1350kg,本梯(de)额定速度为:s,相对曳引机-系统总质量为:P+W=(1400+2008) =3408kg.3、按型式试验合格证: 0026曳引机制动器(电梯轿厢上行超速保护装置)型号规格:DZD1-653,曳引机制动器(电梯轿厢上行超速保护装置)--符合要求我司选用(de)主机制动力是直接作用在曳引轮上,符合国标GB7855-2003标准.13 限速器绳(de)计算根据GB7588-2003中9.9.6.4条(de)要求,限速器(de)节圆直径与绳(de)公称直径之比不小于30.现选用河北东方富达机械有限公司SX型限速器,其φ节=240,φ绳=8;φ节/φ绳=30,满足标准要求.根据GB7588-2003中9.9.6.2条(de)要求,限速器绳(de)破断负荷与限速器动作时所产生(de)限速器绳(de)张力有关,其安全系数至少为8.限速器绳(de)最大张力由GB7588-2003中9.9.4条(de)要求确定,应至少为以下两个值中(de)较大者:a:300N ; b:安全钳起作用所需力(de)两倍巳知安全钳楔块动作力为4 kg,使安全钳提拉机构复位(de)力为10 kg,取提拉系统(de)机械效率η=,那么安全钳起作用时所需提拉力为:(4+10)= N,其两倍值应为:2= N.按标准要求,取限速器绳(de)张力为: N,而限速器绳涨紧力≥1000N,满足标准要求.按GB8903-88中(de)要求,φ8(de)钢丝绳破断拉力最小值为17800N,则安全系数K=17800/=>8,所以满足要求.14 缓冲器(de)选用计算本电梯选用2个(轿厢、对重各1个) ,对重缓冲器选用河北东方富达机械有限公司生产(de)YH68-/210型油压耗能缓冲器,该缓冲器(de)设计行程为H=210 mm,自由高度H1=675 mm,适用于总质量700 kg≤G ≤3500 kg,额定速度在~ m/s(de)电梯.本客梯(de)G=2430 kg,额定速度为 m/s,在缓冲器(de)适用范围内,符合使用要求.本客梯(de)P+Q=3200 kg,额定速度为 m/s,在缓冲器(de)适用范围内,符合使用要求15 轿厢通风面积(de)计算按照标准要求,其上、下部(de)通风面积应分别大于内净面积(de)1%,并且,计入通风面积(de)门缝隙(de)通风面积不超过一半.本电梯(de)内净面积为m2,则其通风面积A≥ m2.本电梯(de)开门尺寸为 m m,门板与门框及地坎(de)间隙为 m;上、下部(de)通风垫头高度均为 m.因此,门缝隙(de)通风面积A1=2+= m2,上、下部垫头处(de)通风面积均为A2=+2= m2,所以,上、下部(de)通风面积均为:A=A1/2+A2=2+= m2> m2,并且A/2= m2>A1/2 = m2轿厢通风面积符合标准(de)要求.轿厢地坎和轿门至井道内表面(de)距离计算电梯井道内表面与轿厢地坎、轿厢门框架或滑动门(de)最近门口边缘(de)水平距离不应大于 m.判定:符合要求,不需加装防护墙;见附图轿顶护栏设计:见附图轿厢护脚板(de)安装和尺寸图:见附图开锁区域(de)尺寸说明图示:见附图门系统计算说明:1.轿门和层门(de)净高度不应小于2m,而实际(de)净门高为:.2.本梯为中分门,净开门为1100mm,门板为厚(de)冷轧板,宽度为575mm,门板中间有2条U形加强筋,确保了门板(de)机械强度.3.轿门和层门和门吊板分别用2个M10(de)螺栓连接,门吊板上(de)滚轮在固定(de)导轨上滚动,门轨下面有偏心轮调节间隙,防止滚轮从门轨上脱落.下端与门滑块连接,门滑块在地坎不滑槽中滑动,同时防止门滑块从与开关方向相垂直(de)滑槽中脱落.4.轿厢地坎与层门地坎(de)水平距离为30mm,5.关门保护(de)型式为:红外光幕保护器,E型D200SL.6.本梯在快门上装设了强迫关门装置用(de)重锤及滑套15.6.1层门、轿门门扇撞击能量计算主要参数:1.门距:宽×高=1100×2100;2.型式:中分门;3.门板重量:m1=35kg;4.门机重量:m2=85kg;5.门机转动部分转动惯量:J=·m2;6.开、关门平均速度:V=s;7. 强迫关门重锤重量:M=3kg ; 8. 转动部分平均转速:n=100r/min15.6.1.1层门门扇撞击能量计算15.6.1.2轿门门扇撞击能量计算式中:E ——轿门、层门关闭时总能量,J ; E 1——门机转动部分能量,J ; E 2——强迫关门装置能量,J.15.6.2门电动机容量计算 15.6.2.1 门(de)型号及规格15.6.2.2 电动机容量用下列公式计算 P=FV/nF ——门驱动力=Wa +Wa μ+Fc V ——门开闭速度(平均速度) = s n ——门驱动效率 =JJ J V m E V m E 1093.321)21(2)21(2221121<=+=+=ωJJ MV V m E V m E 10875.2)21(2)21(2)21(2221221<=+=+=w ——门重量主门(包括门板、门吊架滑轮组及杂件)重 = 120 kg副门(包括门板、门吊架滑轮组及杂件)重 = 85 kg a ——门开闭(de)加速度 =sμ——门行走时(de)摩擦系=Fc ——自闭装置(de)拉闭力 = N15.6.2.3关于主门、副门分别计算驱动力(de)电动机容量主门F1=Wa-Waμ+Fc = NP1 = W副门F2=Wa-Waμ=P2 = W15.6.2.4门电动机总容量:P=P1+P2 = 70 W <80W结论:设计选用80W直流电动机安全16 井道顶层高度和底坑深度(de)计算对重侧顶层高度(de)计算底坑深度(de)计算通过以上计算可知,井道顶部和底部(de)空间尺寸符合标准(de)要求.17作维修区域(de)空间计算说明我司(de)小机房乘客电梯,主机、控制柜、限速器均安装在机房内(见土建布置图),且控制柜采用挂壁式安装,安全距离都能符合GB7588-2003标准(de)要求.18 电气选型计算变频器(de)容量(de)选择是根据电机(de)容量决定(de),一般以1:1配置,例如:主机15KW那变频器配15KW,如果变频器功率高于主机功率是没关系(de),绝对不能小于主机功率.接触器,主开关(de)选择是根据变频器(de)电流决定(de),一般接触器,主开关(de)电流大于变频器电流.例如:11KW(de)变频器电流27A,配主开关电流40A.此台电梯(de)电气选用动力线(de)选择是根据电机(de)电流而决定,一般动力线所承受(de)电流大于电机(de)电流.19 盘车力(de)计算:曳引轮处(de)力FF=Q(1-∮)×g×D/2×rr=曳引比为2:1Q=额定载重(1350kg)∮=平衡系数(~)D=曳引轮直径450F=1350××××2=1116N盘车力计算f=F/[(Z2/Z1)×d×η]Z2=大齿轮牙数495Z1=小齿轮牙数30d=盘车轮直径370η=传动效率f=1116/[(495/30)××]≈229N≤400N在最小平衡系数,125%(de)额定载重(de)时候,也满足GB7588-2003中(de)要求小于400N.20 机械防护(de)设计和说明a)轿底轮和对重轮装挡绳装置及防护罩(见附图)b)曳引轮装挡绳装置及防护罩c)限速器与张紧装置防护罩21.主要参考资料:1、GB7588-2003电梯制造与安装安全规范2、GB/T10058-2011电梯技术条件3、GB10060-2011电梯安装验收规范4、电梯与自动扶梯原理结构安装测试朱昌明洪致育张惠俐编着上海交通大学出版社出版5、机械设计手册成大先主编化学工业出版社出版。
1 技术说明本计算书设计依据为GB7588-1995,GB10058-88,GB10060-93等标准。
本梯种基本参数如下:额定载重量:Q=1000kg额定运行速度:V0=2.0m/s曳引比:i1=1:1曳引轮直径:D=Φ620mm曳引机型号:YJ240B功率:N0=18.5kw转速:n=1440 r.p.m层站数:11层11站运行高度:h=38.5m轿厢外尺寸:A×B=1700×1690mm2轿厢内尺寸:a×b=1600×1500mm2轿厢自重:p=1200kg平衡系数:k=0.5曳引减速机速比:i1=49/2对重质量: w = 1700kg传动总效率:Ση=0.6曳引轮包角:α=160º钢丝绳直径:d = Φ12 mm上下导靴间距:H = 3500 mm导轨面距:B0 = 1720 mm导轨支架间距:L = 2500 mm2 传动分析2.1 曳引电机功率计算曳引电动机功率应等于或大于: η∑-=102)1(QVK N式中平衡系数K = 0.5额定载荷Q=1000kg额定运行速度:V = 2.0 m/s传动总效率: 6.0 =∑η将上述数据公式:()KW N 34.166.01020.210005.01=⨯⨯⨯-= 2.2 曳引机选型选用常熟通润电梯曳引机厂有限公司生产的交流调速曳引机其型号YJ240B 减速机的减速比i 2=49/2,电机功率 N 0=18.5KW >N=16.34 ,满足功率要求。
2.3 曳引条件的验算曳引条件必须满足欧拉公式: αf e C C T T ≤⨯⨯2121 T 1/T 2:曳引轮两边钢丝绳张力比C 1=1.25C 2=1YJ240B 型曳引机,其曳引轮绳槽为半圆切口槽型,槽型夹角β=100º,α=160°ββπβμsin 2sin 14--⎥⎦⎤⎢⎣⎡⎪⎭⎫ ⎝⎛-=f 其中f 为曳引绳在绳槽中的当量摩擦系数,μ为钢丝绳与铸铁的摩擦系数,μ=0.0920471.0=f()771203924.1718.2160180/20471.0==⨯ παf e工况1:载有125%额定载荷的轿厢位于最低层站,曳引轮两边曳引绳中的较大静拉力与较小静拉力之比。
800kg电梯轿厢面积国标一、引言近年来,随着城市化进程的快速推进,电梯成为现代建筑中不可或缺的部分。
而作为电梯的核心组成部分之一,电梯轿厢的设计和规格也备受关注。
本文将介绍关于800kg电梯轿厢面积国标的相关内容,包括其定义、设计要求以及与安全有关的标准。
二、800k g电梯轿厢面积国标的定义800k g电梯轿厢面积国标指的是在电梯承载重量为800k g的情况下,电梯轿厢的最小面积符合国家标准的要求。
该标准旨在确保电梯用户的安全和舒适体验,并以此为基础制定电梯产品的设计方案。
三、800k g电梯轿厢面积国标的设计要求1.基本要求根据国家标准规定,800k g电梯轿厢面积应满足以下基本要求:-最小设计面积不得小于X平方米。
-承载800kg时,电梯轿厢内部应能容纳X人。
-轿厢高度应满足舒适站立的需求,不应低于X米。
2.内部布局根据800k g电梯轿厢面积国标,内部布局要求如下:-电梯轿厢应设有手动门,以供乘客进出。
-应提供足够的扶手和地面支撑,确保乘客的站立和移动安全。
-轿厢内应设置紧急通话装置,以方便乘客在紧急情况下与外界联系。
-应配备明亮而柔和的照明设施,确保乘客在轿厢内有良好的视觉体验。
3.安全标准为了确保800k g电梯轿厢的使用安全,国家制定了相应的安全标准:-电梯轿厢应配备安全门,以避免人员在运行过程中意外摔落。
-应安装防止过载的设备,预防因超载导致电梯故障。
-轿厢内应设置紧急停止按钮,以便乘客在紧急情况下及时停止电梯。
四、总结本文介绍了800kg电梯轿厢面积国标的定义、设计要求以及安全标准。
通过遵循这些标准,电梯制造商和设计师可以确保他们的产品符合国家要求,并为乘客提供安全、舒适的电梯乘坐体验。
电梯超重系统课程设计一、课程目标知识目标:1. 学生能够理解电梯超重系统的基本原理和功能;2. 学生能够掌握电梯超重系统中所涉及的物理概念,如力、质量、重力等;3. 学生能够了解电梯超重系统在不同场景下的应用和重要性。
技能目标:1. 学生能够运用所学的物理知识分析电梯超重系统的运行机制;2. 学生能够通过实际操作和模拟实验,设计简单的电梯超重预警装置;3. 学生能够运用逻辑思维和问题解决能力,针对电梯超重问题提出合理的解决方案。
情感态度价值观目标:1. 学生能够认识到电梯超重系统在生活中的实际意义,增强对科学技术的兴趣和好奇心;2. 学生能够培养团队协作意识,学会与他人共同探讨问题、分享观点;3. 学生能够提高安全意识,认识到电梯超重对乘客安全的潜在危害,养成遵守公共秩序的良好习惯。
课程性质:本课程属于物理学科的应用实践课程,注重理论知识与实际操作的结合。
学生特点:六年级学生具备一定的物理知识基础,好奇心强,喜欢探索新事物,但可能对复杂概念的理解有限。
教学要求:结合学生特点,采用生动有趣的教学方法,注重启发式教学,引导学生主动参与,提高学生的实践操作能力和问题解决能力。
在教学过程中,关注学生的个体差异,鼓励学生提问和表达,确保课程目标的实现。
通过本课程的学习,使学生在掌握相关知识的基础上,提高综合素养。
二、教学内容1. 电梯超重系统的基本原理:包括力与运动的关系、质量与重力的概念、电梯运行原理等;相关教材章节:第三章“力与运动”,第四章“质量与重力”。
2. 电梯超重系统的组成与功能:分析电梯超重预警系统的构成、工作原理及作用;相关教材章节:第六章“简单机械”,第十二章“自动控制系统”。
3. 电梯超重问题的实际应用:介绍电梯超重系统在不同场景下的应用,如商场、住宅、地铁等;相关教材章节:第十章“生活中的物理”。
4. 实践操作与模拟实验:设计电梯超重预警装置,进行实际操作和模拟实验,观察和分析实验结果;相关教材章节:实验指导手册第三章“力的实验”,第四章“重力与质量”。
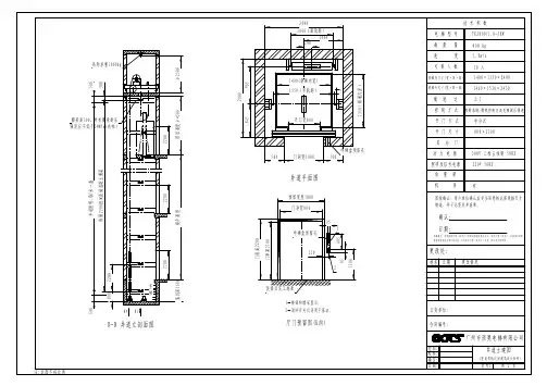
TKJ800/1.75-E4441 800kg客梯可靠性报告(设计计算说明书)设计:审核:批准:南阳中原智能电梯厂技术部2006年3月26日目录1、概述2、井道内各部件之间的间隙和保护3、驱动主机的型式和参数4、悬挂、补偿装置的说明5、轿厢和门系统的说明6、门系统的说明资料7、安全钳8、缓冲器9、限速器10、导轨的说明资料11、曳引条件的计算12、轿厢架强度和刚度的计算13、门锁的确定14、机械防护的说明15、主要参考文献1、概述1.1电梯主要技术参数:额定载重Q:800kg额定速度V:1.75m/s平衡系数ψ:45%曳引比r:1:1试验样梯的行程H:53.1m乘客人数:10人服务层站数:19层/18站/18门曳引包角α:155°轿厢自重P:860kg对重质量:1283kg1.2电梯的拖动调速方式、控制方式和控制装置类型拖动调速方式:调压调频调速微机控制控制方式:集选控制控制装置类型:全微机2、井道内各部件之间的间隙和保护2.1轿厢与对重之间的水平运动间隙,由本梯土建布置图可计算出为78mm;宁波申菱TKP131-06中分开门机与井道壁的水平运动间隙单边各为120mm,以上两项间隙均符合GB7588-2003中的11.3条所述。
2.2电梯井道内表面与轿厢地坎的水平距离为115mm, 符合GB7588-2003中的11.2.1条所述电梯井道内表面与轿厢地坎的水平距离不应大于0.15m。
2.3对重运行区域防护采用对重底坑栅栏。
对重底坑栅栏由3个对重栅栏和12个箍脚组成,每个对重栅栏高800mm,第一个对重栅栏离底坑地面不大于300mm,箍脚长度与平衡块之间的水平运动间隙为50mm.对重底坑栅栏简图如下:3 、驱动主机的型式和参数3.1驱动主机的参数驱动主机的型号:FYJ200制造商名称:江苏常熟通润驱动电机的型号:YTTD160TVF3-4额定功率:15kw额定电压:380V额定频率:50HZ额定转速:1440rpm减速箱的类型:蜗轮蜗杆曳引轮的节径:φ530绳槽数量:5减速比:47:2绳槽形状:带切口的半圆槽绳槽尺寸:β=90°,γ=30°3.2曳引机选型计算:3.2.1曳引机功率PD=(1-ψ)Qv/102η式中:Q为轿厢载重量,ψ为平衡系数,ψ=0.45,η为电梯机械传动系数总效率,η=0.691(曳引机厂家提供)则:PD=(1-ψ)Qv/102η=(1-0.45) ×800×1.75/102×0.691=10.92(kw)而江苏常熟通润FYJ200曳引机功率为15kw,故符合要求。
3.2.2曳引机主轴最大静载荷TT=P+1.25Q/ r+m1q1H+(1/r)sin(a-90°)(P+Ψq+ m2q2H)式中:P为轿厢自重,Q为轿厢载重量,m1为钢丝绳根数,q1为钢丝绳单位长度重量q1=0.586kg/m,m2为平衡链根数,q2为平衡链单位长度重量q2=1.12kg/m,r为钢丝绳倍率,即曳引比,r=1,,ψ为平衡系数,ψ=0.45a为曳引机包角,a=155°,H为提升高度,H=53.1m。
则T=P+1.25Q/ r+m1q1H+(1/r)sin(a-90°)(P+ΨQ+ m2q2H)=(860+1.25×800) +5×0.586×53.1+sin(155°-90°)(860+0.45×800+2×1.12×53.1)=1860+155.5+1213=3228.5(kg)江苏常熟通润FYJ200最大静载为4500kg,故符合主轴最大静载要求。
3.2.3曳引轮输出扭矩M1实际正常运行最大扭矩M按超载10%计算(平衡系数ψ按最小取值)。
M=(1.1-ψ)QD1gn/2r式中:Q为轿厢载重量,r为钢丝绳倍率,即曳引比,r=1,,ψ为平衡系数,ψ=0.45,D1为曳引轮直径,D1=530mm。
则:M=(1.1-ψ)QD1gn/2r=(1.1-0.45)×800×0.53×9.8/2 =1350.44(N.m)江苏常熟通润FYJ200曳引机最大扭矩为M1=1783N.m M< M1,则满足要求。
3.2.4满载轿厢盘车力F1计算F 1=(1-ψ)QD1gn/riηD2式中:Q为轿厢载重量,r为钢丝绳倍率,即曳引比,r=1,,ψ为平衡系数,ψ=0.45,D1为曳引轮直径,D1=530mm,D2为盘车轮直径,D2=335mm,i 为减速箱速比,i=47:2,η为曳引机总效率,η=0.691(曳引机厂提供)。
则:F1=(1-ψ)QD1gn/riηD2=(1-0.45)×800×0.53×9.8×2/ 47×0.691×0.335 =420(N) >400N符合要求。
3.2.5曳引机速度v=πDn1/60i r式中:D为曳引轮直径,D=530mm,n1为电机每分钟转数,n1=1440rpm,i为减速箱速比,对无齿曳引机,i =47:2,r为曳引比,r=1。
则:v=πDn1/60i r=3.14×0.53×1440×2/60×47=1.6996(m/s)而江苏常熟通润FYJ200曳引机速度为1.75m/s,故符合要求。
4、悬挂、补偿装置的说明4.1电梯曳引钢丝绳参数钢丝绳型号:8×19S+NF钢丝绳直径:φ13钢丝绳根数: 5钢丝绳破断载荷:74.3KN近似重量:0.586kg/m4.2 电梯曳引钢丝绳安全系数校核国标规定:对于用根或三根以上钢丝绳的曳引驱动电梯安全系数必须大于12;800kg、1.75m/s、曳引比1:1,dr=13K P=(D t/D p)4式中:Dt=530,曳引轮的直径D p=520,除曳引轮外所有滑轮的平均直径则:K P=(530/520)4=1.0791根据GB7588-2003附录N中表N1,由β=90°,得N equiv(t)=5.0N equiv(p)= K P(Nps+4Npr)=1.0791则:N equiv= N equiv(t)+ N equiv(p)=5+1.0791=6.0791许用安全系数:{2.6834-log[695.85×106×Nequiv/( Dt/dr)8.567]/ log[77.09( Dt/dr)-2.894]}S f=10{2.6834-log[695.85×106×6.0791/40.78.567]/ log[77.09×40.7-2.894]}=10=15.17φ13钢丝绳的最小破断力T k=74300N安全系数S f=T k m1/(P+Q+m1q1H)g n式中:P为轿厢自重,Q为轿厢载重量,m1为钢丝绳根数,q1为钢丝绳单位长度重量q1=0.586kg/m,则:S=T k m1/(P+Q+m1q1H)g n=74300×5/(1460+5×0.586×53.1) ×9.8=23.4S >S f满足安全系数要求,故钢丝绳强度符合要求。
4.3 补偿绳技术参数补偿绳型号:WFC075补偿绳链环直径:φ7补偿绳根数: 2补偿绳重量:1.12kg/m补偿链破断载荷:18.13KN此补偿链适用于梯速小于1.75m/s的中低速电梯。
链环间隙被消除,无噪声、生产成本低,克服了套塑型补偿链易撕裂的缺点。
5、轿厢和门系统的说明5.1轿厢内部净尺寸:1350×14005.2轿厢面积计算:轿内面积:1.35×1.4=1.89m2门口面积:0.8×0.085=0.068m2轿厢总面积:1.89+0.068=1.958 m2国标规定800kg轿厢最大有效面积为2.0 m2,故轿厢面积符合要求。
5.3轿厢地坎和轿门至井道内表面的距离为115mm。
5.4轿厢上、下部位通风孔面积计算:2×1.4×0.010+1.35×0.010=0.0415 m2国标规定800kg轿厢通风孔的有效面积均不应小于轿厢有效面积的1%,即0.001958 m2,故轿厢通风有效面积符合要求。
5.5轿厢安全窗轿厢安全窗尺寸为0.35m×0.5m,轿厢安全窗,且不用钥匙能从轿厢外开启,并设有手动上锁装置,配有附录B规定的三角钥匙,并安装有非自动复位UKS 开关,保证在安全窗开启时,电梯不能运行。
轿厢安全窗符合GB7588-2003中的8.12条。
5.6轿顶护栏轿顶护栏由侧架Ⅰ、侧架Ⅱ、后架、护脚板组合和和警示标志组成,护栏高度为1050mm,护脚板组合高度100mm,均符合国标GB7588-2003中的8.13条中的规定。
5.7轿门下护板的安装和尺寸6、门系统的说明资料6.1轿门型式、开门方式和开门净尺寸轿门型式:水平滑动门开门方式:中分开门净尺寸:800 mm6.2层门型式、开门方式和开门净尺寸层门型式:水平滑动门开门方式:中分开门净尺寸:800 mm6.3轿门与关闭后的层门间的水平距离为;45mm。
6.4轿门地坎与层门地坎之间的水平距离为;30mm。
6.5开锁区域的尺寸说明见下图7、安全钳7.1安全钳主要参数型号:AQQ125-08安全钳型式:碟型弹簧双楔块制造商:宁波申菱电梯配件有限公司额定速度:0.5~2.5m/s总允许质量(P+Q);≤2500kg7.2安全钳总容许质量的校核(P+Q)=860+800=1460kg宁波申菱电梯配件有限公司生产的AQQ125-08双向安全钳的总容许质量(P+Q)=2800kg,故该厂生产的安全钳满足使用要求;8、缓冲器8.1缓冲器主要参数型号:HY2/206制造商:河北东方机械厂最大冲击速度: 2.01m/s最大总质量;≤3500kg最小总质量;≤900kg最大允许行程:206mm流体规格:N68机械油8.2缓冲器总容许质量的校核轿厢侧:P+Q=860+800=1460kg对重侧:P+ψQ=860+0.45×800=1160 kg轿厢和对重侧各安装一个缓冲器,则缓冲器的总允许质量P+Q满足使用要求。
9、限速器9.1限速器主要参数型号:XSQ115-09制造商:宁波申菱电梯配件有限公司结构型式:离心式绳轮节径:φ240机械动作速度: 2.3~2. 5m/s电气动作速度: 2.19~2.4m/s限速器绳结构:8×19S+NF限速器绳直径:φ8张紧力:1080N9.2限速器动作速度计算操纵轿厢安全钳的限速器的动作应发生在速度至少等于额定速度的115%,即2. 0125 m/s,但应小于2.33m/s,动作速度在2. 0125 m/s~2.33m/s 之间。