13x9.8 两层四合院农村别墅平面方案图纸效果图
- 格式:pdf
- 大小:9.98 MB
- 文档页数:18
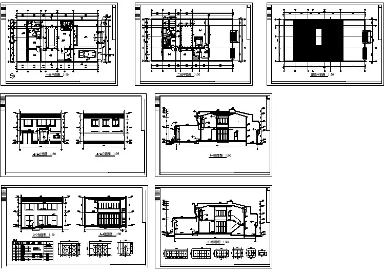
最新二层农村复式房屋平面设计图工程概况:本工程层数为两层,开间: 11.8米,进深: 10.3米,占地面积: 126平方米,建筑面积: 280.2平方米;结构形式: 砖混结构或框架结构(可二选一) 建筑结构形式:砖混结构或框架结构(可二选一)设计功能:一层: 2卧室、客厅、卫生间、洗衣间、厨房、餐厅;二层:主卧、2次卧(附卫生间、阳台)、客厅、客厅上空。
图纸内容:建筑图:建筑设计说明、一层平面图、二层平面图、屋顶平面图、东里面图、西立面图、北立面图、南立面图、剖面图。
结构图:结构说明、基础平面图、二层梁结构平面图、屋顶梁结构平面图、二层结构平面图、屋顶结构平面图。
给排水图:给排水设计说明及图例、一层排水平面图、卫生间大样图、排水系统图、给水原理系统图、热水原理系统图、参考图集。
电气图:电气设计说明及图例、一层接地及弱电平面图、二层弱电平面图、一层电气平面图、二层电气平面图、配电系统图、弱电系统图。
下面是赠送的团队管理名言学习,不需要的朋友可以编辑删除!!!谢谢!!!1、沟通是管理的浓缩。
2、管理被人们称之为是一门综合艺术--“综合”是因为管理涉及基本原理、自我认知、智慧和领导力;“艺术”是因为管理是实践和应用。
3、管理得好的工厂,总是单调乏味,没有仸何激劢人心的事件发生。
4、管理工作中最重要的是:人正确的事,而不是正确的做事。
5、管理就是沟通、沟通再沟通。
6、管理就是界定企业的使命,幵激励和组织人力资源去实现这个使命。
界定使命是企业家的仸务,而激励不组织人力资源是领导力的范畴,二者的结合就是管理。
7、管理是一种实践,其本质不在于“知”而在于“行”;其验证不在于逻辑,而在于成果;其唯一权威就是成就。
8、管理者的最基本能力:有效沟通。
9、合作是一切团队繁荣的根本。
10、将合适的人请上车,不合适的人请下车。
11、领导不是某个人坐在马上指挥他的部队,而是通过别人的成功来获得自己的成功。
12、企业的成功靠团队,而不是靠个人。
【】【21套】新中式四合院设计图,最美四合院别墅本户型为农村四合院平面图全套施工图纸,江南风二层别墅四合院设计。
建造一款四合院古色古香,自家住显示户主的尊贵,中式四合院确实中国特有的建筑,不管是外观来讲它的美观度,还是它居住的舒适性来说都是与众不同的。
【2】小型简单四合院设计图,最美中式四合院,这才是真正的豪宅。
这款别墅采用中式传统的院落形式呈现,封闭空间十分适合居住。
白墙黛瓦的建筑通过错落有致的布局,形成有趣味性的空间。
【3】本方案为四合院平面图及施工图,现代中式四合院,借鉴传统民居适应气候的特点,前庭后院式布置,利用特定尺度的庭院促进采光和自然通风。
坡顶及客厅平顶均有架空隔热,以提高对自然资源,如太阳光的利用效率,由于大地的恒温性能好,以及园林的作用,冬暖夏凉。
【4】的朋友越来越多,曲径通幽、雕梁画栋,能够拥有一栋中式庭院大宅,自然是人生的一大快事。
现在农村的收入逐渐增加吗,个性化的需求也随之增加。
大多数人建房开始以舒适性为标准,尽量追求实用。
本款别墅中式二层四合院,典雅高贵大气考究。
将中式的居住美学融汇其中,低调中蕴含着精致的设计勾勒。
有庭院也正适合咱们农村生活习性。
【5】本户型为左右对称二层四合院别墅设计图,传统四合院设计,比城里别墅都好看!户型方正,占地470平方米,传统文化的传承,传统建筑的回归,经典永不过时!传统农村四合院近年成为了农村自建房的流行款式,这种类型的房子,尤其适合北方地区自建生活,不过要想讲究气派实用的话,还是要下一番功夫才成;四合院的设计不外乎就是白墙黛瓦,素雅装潢,但若想在这些有限的元素里设计的大气一点,的确不容易,这款农村中式四合院户型,擦亮你的眼睛赶紧来看!【6】本户型为农村二层自建房屋设计图,17×13米,现在咨询农村建房的很越来越多,回到农村看到到处建好的或者已经在建的小别墅,让人羡慕不已。
特别是二层的小别墅,简单又实用,很适合现代农村三代同堂的家族居住。
乡村别墅4款经典中式小院,农村人回家盖房子,一个小院真的不能少让乡村居住更美好我们从小就习惯了农家小院的生活,但去农村走一圈,却遍地都是欧式的洋楼,二层、三层、甚至四层、五层,却很难再看到有地域特色的中式小院了。
其实建一栋中式小院比那些欧式别墅还要便宜些。
具有传统格调的庭院住宅,论品相,它们绝不会比任何一栋欧式别墅差,而且其淡雅清新的风格,和欧式别墅比起来更有另一种经久不衰的厚重!农村人回乡盖房子,一个小院真的不能少,建一个中式小院真的会是一个好选择。
第一款基本信息别墅编号:MS1906069占地尺寸:23.65x17.8米占地面积:164.98平方米建筑面积:380.29平方米结构类型:砖混结构主体造价:38万左右平面布局图--------------------------------------------------------------------第二款基本信息别墅编号:MS1906071占地尺寸:15.24x15.24米占地面积:154.53平方米建筑面积:232.57平方米结构类型:砖混结构主体造价:24万左右平面布局图----------------------------------第三款基本信息别墅编号:MS1906055占地尺寸:20.24x19.24米占地面积:325.61平方米建筑面积:488.41平方米结构类型:砖混结构主体造价:42-49万左右平面布局图----------------------------------第四款基本信息别墅编号:MS1806018占地尺寸:13.8x13.3米占地面积:183.54平方米建筑面积:236.9平方米结构类型:砖混结构主体造价:20-24万左右平面布局图----------------------------------..............................................................。
鲁班设计图纸网:最新提供的别墅房屋图纸大全《鲁班设计图纸网》因为有限制不能展示太多,只能展示有限的套数,如果想看到更多请搜《鲁班设计图纸网》《鲁班设计图纸大全》自建别墅的设计方案,每套都有外观图、效果图、结构图、施工图(平面图、立面图、剖面图、结构图、水电暖、钢筋)等,图纸皆为.dwg格式,可直接编辑修改出图;同时,图纸还包括独栋别墅、双拼别墅、联排别墅、欧式别墅、农村小别墅等;其中分单层,二层、二层半、三层、三层半等多种户型;另外,配套的还含有1000套室内装修方案大全,庭院设计图纸。
6400多套自建房屋,自建别墅设计方案。
都是对自建房屋,自建别墅非常有帮助的资源。
全玻璃幕墙的安装施工全玻璃幕墙的安装施工是一项多工种联合施工,不仅工序复杂,操作也要求十分精细。
同时它又与其他分项工程的施工进度计划有密切的关系。
为了使玻璃幕墙的施工安装顺利进行,必须根据工程实际情况,编制好单项工程施工组织设计,并经总承包单位确认。
一、施工准备(一)技术准备1.技术资料收集现场土建设计资料收集和土建结构尺寸测量。
由于土建施工时可能会有一些变动,实际尺寸不一定都与设计图纸符合。
全玻璃幕墙对土建结构相关的尺寸要求较高。
所以在设计前必须到现场量测,取得第一手资料数据。
然后才能根据业主要求绘制切实可行的幕墙分隔图。
对于有大门出入口的部位,还必须与制作自动旋转门、全玻门的单位配合,使玻璃幕墙在门上和门边都有可靠的收口。
同时也需满足自动旋转门的安装和维修要求。
2.设计和施工方案确定设计和施工方案确定。
在对玻璃幕墙进行设计分隔时,除要考虑外形的均匀美观外,还应注意尽量减少玻璃的规格型号。
由于各类建筑的室外设计都不尽相同,对有室外大雨棚、行车坡道等项目,更应注意协调好总体施工顺序和进度,防止由于其他室外设施的建设,影响吊车行走和玻璃幕墙的安装。
在正式施工前,还应对施工范围的场地进行整平填实,做好场地的清理,保证吊车行走畅通。
(二)材料及机具准备1.主要材料质量检查(1)玻璃的尺寸规格是否正确,特别要注意检查玻璃在储存、运输过程中有无受到损伤,发现有裂纹、崩边的玻璃决不能安装,并应立即通知工厂尽快重新加工补充。
四合院是中国历来的经典建筑,也是中国人在建筑艺术的一大创造,可称得上是一门学问。
四合院为封闭式的住宅,对外只有一个街门,关起门来自成天地,具有很强的私密性,非常适合独家居住。
中间是庭院,院落宽敞,庭院中莳花置石,以大缸养金鱼,寓意吉利,是十分理想的室外生活空间,把天地拉近人心。
今天给大家介绍5款新中式四合院设计,包含效果图和平面布局。
四合院一:
开间为28.8米,进深为30.8米;
共一层;总建筑面积为:497.36平米;
效果图如下所示:
庭院效果如下:
平面图如下所示:
四合院二:
首层占地面积为:590平方;
开间为:24.9米,进深为:23.7米;共两层,总建筑面积为:439平米。
效果图如下所示:
庭院内景效果:
平面图如下:
四合院三:
首层占地面积为:558平方;
开间为:24.9米,进深为:23.7米;共一层,总建筑面积为:386.41平米。
效果图如下所示:
庭院内景效果如下:
平面图如下所示:
四合院四:
占地面积:830平米,开间为:19.8米,进深为:39.2米;层数:地下一层,地上一层;
地下面积为:221.32平米,地上面积为458.36平米;
效果图如下所示:
平面图如下所示:
四合院五:
占地面积为:666平米,开间为:24米,进深为:27.7米;地下一层,地上两层;
地下面积为:208.68平米,地上面积为:398.54平米;
效果图如下所示:
平面图如下所示:。
农村盖房图纸大全,盖房可收藏,哪天就用上了(系列2)1、北京顺义靳家四合院建设地点北京顺义尺寸面宽25.5米进深32.0米建筑面积项目概况△总平面示意图基地情况:东:邻家住宅西:村内道路南:邻家宅院北:自家旧宅项目简介:项目宅基地面积十分开阔,规划新建的位置北侧仍为自家住宅,供家里老人居住;而新建项目主要为满足业主兄妹多户人共同居住的需求。
业主在项目前期沟通时提出了大概的功能空间需求,对于布局等没有提出过多具体的意见;形式方面则明确要求设计为南北朝向中式四合院,但在外立面装饰上也未作过多具体要求。
平面布局户型概况:1层 / 4室 1厅 6卫 2厨 3书房 3衣帽间 1影音 1健身 1棋牌 1茶室 2设备 1杂物△一层平面图由于村内道路位于基地西侧,因此设计师在南侧预留一定空间用于连接宅院,同时起到停放车辆的作用。
项目整体为经典的四合院格局,主房和西厢房作为主要居住空间,东厢房和南倒座则主要作为餐饮和娱乐空间。
其中,主房通过后门连接自家后院,同时搭配西厨方便日常品茶待客准备茶点;两间卧室东西对称,采用功能齐备的套间形式。
西房连接西南角庭院丰富活动功能;东房和倒座搭配棋牌、影音、健身房等功能,满足不同休闲活动所需。
造型设计△鸟瞰图2、河北廊坊王家四合院建设地点河北廊坊尺寸面宽20.0米进深18.0米建筑面积271.0㎡项目概况△总平面示意图项目位于河北,原有老房为传统四合院,新建建筑位于原有老房正房方位,场地东北角是景观庭院,东侧为原有厢房,南侧是花圃,北侧是庭院院墙。
由于原有建筑卧室房间数量较少,因此业主要求新建建筑以起居功能为主,其余功能在保留的厢房中布置。
图纸设计△一层平面图根据业主需求,整个平面以起居功能为主。
正房中间以起居室连接两侧卧室。
整个平面共有7间卧室,所有卧室均有独立卫生间,日常使用频率较高的4间卧室还配有衣帽间。
较多的卧室数量满足了业主的使用需求。
造型设计△鸟瞰图3、北京顺义靳家四合院建设地点北京顺义尺寸面宽25.5米进深32.0米建筑面积631.0㎡项目概况△总平面示意图基地情况:东:邻家住宅西:村内道路南:邻家宅院北:自家旧宅项目简介:项目宅基地面积十分开阔,规划新建的位置北侧仍为自家住宅,供家里老人居住;而新建项目主要为满足业主兄妹多户人共同居住的需求。
给⼤家推荐⼏个经典的四合院设计案例,农村建房必备⼀、安徽淮北四合院设计尺⼨⾯宽20.0⽶进深26.0⽶建筑⾯积336.0㎡⼟建造价50.0万项⽬概况基地四周环境相对简单,东、西两侧是邻居家住宅,北侧是⾃家后院,南侧是村内道路。
由于建筑选⽤四合院形式,四周环境对室内影响有限。
图纸设计△庭院效果图图纸中⼼功能⽅⾯我们与业主⼀同协商,在保持了以往四合院的同时根据现代⼈的安徽淮北四合院设计⼆、安徽淮北四合院设计⼆、尺⼨⾯宽26.0⽶进深37.0⽶建筑⾯积549.0㎡⼟建造价88.0万功能⽅⾯我们与业主⼀同协商,在保持了以往四合院的同时根据现代⼈的⽣活起居,对传统四合院的功能进⾏调整。
在东侧餐厅处植⼊楼梯可到⼆层露天开放餐厅处共享晚餐。
西侧洗⾐间可通⼆层,⼆层处做露台,居住者在露台晾晒⾐物,也可以室外活动。
四合院的东、西、南、北四个⽅向的房⽅向的房屋各⾃独⽴,所有房屋都为⼀层, 通过转⾓处的玻璃游廊相连接。
三、河北省沧州市张家四合院尺⼨⾯宽29.0⽶进深60.0⽶建筑⾯积781.0㎡整个建筑有⼀个⼈⾏⼊⼝,⼀个车⾏⼊⼝,这个车⾏⼊⼝连接的车位可放置6辆A级车,其中2辆是露天的,2辆是在地下机械车库内,2量在倒座房下⽅。
整个院落⼀共有6间卧室,主卧皆是南向采光,配置了⾐帽间和独⽴的卫⽣间,⽽更多的房间都被设计为了厅堂等功能。
餐厅茶室等⼀应俱全,还为屋主设计了专⽤的办公室,可以说这是⼀栋⽣活⼯作两不误的住宅。
四、房⼭四合院尺⼨⾯宽27.5⽶进深29.6⽶建筑⾯积596.0㎡⼊⼝处的⽯狮与花窗彰显古⾹古⾊。
⽊质框架的阳光房环绕院落,院落中⼼的假⼭跌⽔别有⼀番景致。
五、北京顺义靳家四合院尺⼨⾯宽25.5⽶进深32.0⽶建筑⾯积631.0㎡△总平⾯⽰意图基地情况:东:邻家住宅西:村内道路南:邻家宅院北:⾃家旧宅项⽬简介:项⽬宅基地⾯积⼗分开阔,规划新建的位置北侧仍为⾃家住宅,供家⾥⽼⼈居住;⽽新建项⽬主要为满⾜业主兄妹多户⼈共同居住的需求。
农村自建房二层别墅设计图纸及效果图大全
独特二层带车库别墅设计图纸及效果图_别墅设计图纸,农村房
效果图:
施工案例图:
二层别墅设计全套图纸效果图_别墅设计图纸,农村房屋设计图
图纸属性
效果图:
施工案例图:
新农村住宅方案_别墅设计图纸,新农村别墅,农村自建房设计
效果图:
施工案例图
二层农村自建房_别墅设计图纸,新农村房屋设计图,农村自建
效果图:
施工案例图:
要找更多二层别墅设计图纸,在别墅图纸超市有上千款设计图纸。
两层别墅设计效果图中式风两层别墅设计效果图
本案是一套二层小别墅,原有布局方正合理,在设计布置上只需根据需求作些调整,客户是一位丛事艺术创作的女画家,在北京有自己工作室和展厅,在这套别墅中也希望带有这些元素,通过与客户一起选购一些古旧木质构件和家具,为的是将古朴中式情调更好地呈现出来,无论是灰色的墙面,仿古砖的地面,古旧木家具无一不散发出古朴的韵味,没有鲜明张扬的风格,没有华丽夺目的装饰,却低调,熨帖,如同隐居,身心舒展,不急不徐,这是最能体现业主的古朴而热爱生活的个性。
材料选用硅藻泥,乳胶漆,古旧实木,实木地板,仿古石砖,棉麻等
玄关处风景
进门处看向客厅
中式风韵十足的卧室
二楼卧室风景
主卧全景
卧室的一角
庭院设计风景
角落里的风景
大气磅礴的餐桌,
中式的供桌
红色的宫室柱子撑起了整个房间的气场。
客厅全景
中式椅座旁边的小茶柜
客厅的正面
书房设计全景
门前的荷叶,种植在水缸里荷叶随风摇摆显得很是闲情雅致。
此文由合肥飞墨设计()整理提供。
四合院实在是太牛了,12款四合院别墅送给你,图纸赶快收藏
好
四合院别墅一直是大家心中的理想别墅,随着大家经济条件越来越好,许多回农村建房的会选择建一座中式四合院别墅,这是可以彰显身份和品位的建筑,也可以传承数百年都不过时的宅院。
今天就为大家分享12款中式四合院别墅,动人心魄的中国古典建筑,图纸赶快收藏好。
四合院别墅1
层数:3层,结构形式:框架结构,主体造价60-70万,开间26米,进深25.997米,占地面积353.87平方米,建筑面积521.77平方米,建筑高度8.88米
一层:2个商铺、会客厅、娱乐房、3个卧室、4个洗手间、洗衣间、仓库、厨房、餐厅
二层:堂屋、5个卧室、书房、3个洗手间、露台四合院别墅2
层数:2层,结构形式:异形柱框架结构,主体造价70-80万,开间17.7米,进深30.56米,占地面积379平方米,建筑面积656平方米,建筑高度9.8米
一层:堂屋、客厅、5个卧室、6个洗手间、厨房、餐厅
二层:多功能室、6个卧室、布草间、6个洗手间、露台四合院别墅3
层数:2层,结构形式:框架结构,主体造价46-57万,开间12.44米,进深17.14米,占地面积189.97平方米,建筑面积409.78平方米,建筑高度11米
一层:客厅、卧室、洗手间、厨房、餐厅
二层:挑空客厅、3个卧室、2个洗手间、阳台四合院别墅4
四合院别墅5
四合院别墅6
四合院别墅7
四合院别墅8
四合院别墅9
四合院别墅10
四合院别墅11
四合院别墅12。
农村小型的四合院设计图纸有哪些?来看看这几款吧!
四合院形式的农村住宅曾经在我国古代是非常流行的,但是受到宅基地面积的限制,这样的建筑已经很少了。
不过,还是有很多人会希望有一套农村小型四合院设计图,所以今天就一起来看看我们分享的这几款设计图吧!
一款占地面积比较小的四合院式住宅,很像古典的官府大宅。
而这一款就比较类似于四合院式的古代酒馆,现在是叫民宿了。
接下来的这款属于长方形的小型四合院住宅,可以看到庭院里还有一个小型的鱼池。
最后的这一款是我们别墅工场开发的新款农村四合院住宅。
从鸟瞰图中我们可以看到,中间的庭院面积也不算大,但是能够
让一家人坐在一起聚餐了。
最后,我们从平面图中可以看到,这套小型的四合院图纸中,各种功能空间应有尽有。
基本上能够满足乡下一家人的居住要求了。
像上面这些占地面积比较小的农村四合院设计图纸,是目前比较流行的农村自建房设计了。
相信在未来这也会是一个潮流,毕竟四合院式的建筑是我们的祖先留下来的非常好的传统设计,也是中华家庭文话的一种传承。
中西结合,现代“四合院”13x16两层自建四合院设计图纸
今天为介绍一套“现代”建筑
它传承于中国建筑文化
也吸收了现代各式各样建筑的优点
今天,我们要介绍的
就是一套现代“四合院”
无论是在北方还是在南方
无论是王公大臣还是平民百姓
都曾住在大大小小的四合院中
这里出过无数流传千古优美诗词
也诞生了无数英雄好汉
房屋基本信息
建筑风格:中式
建筑层数:二层
结构形式:砖混结构
屋顶形式:坡屋顶
建筑面积:292㎡
建筑占地:13.1 mX16.4 m
01
效果图预览:
Design sketch
如果你喜欢四合院
也喜欢现代简约不失雅致的别墅
那么,这套房便是你的首选
高雅而有温馨的入口玄关
颇具都市风情的优雅露台
私密而又方正宽敞的私家庭院
四合院和欧式小洋房
一切看似不可能
却又完美的融合在了一起
02
平面布局图:
Plane layout
独立的客厅可以单独接待客人而不受干扰
独立的储藏室可以存放大量的杂物
也可根据您的需求进行随意的更改
一个可以休闲养生的美丽庭院
是您家中最特别的一角
安静的居住空间
在保护隐私的同时
也给您绝对的自由
家庭主妇能够随意晾衣
养生达人能够随意休闲
爱养花,也可以随意观景栽花
你可以在夜晚和您儿子一起眺望最美丽的星星在这个大露台,一切都可以实现。
乡村别墅带堂屋的二层新中式合院,布局实用餐厨另建,居住其中福气满满让乡村居住更美好建房是百年大计每一个环节,每一道工序都需要专业悉心的设计作为支撑何总认为经久不衰非中式莫属于是定制设计了这款合院内部带堂屋,7间卧室外观雅致大方,庭院惬意舒适是当之无愧的乡村好宅效果图展示•何府采用的是当下复兴流行起来的新中式风格,写意的中式建筑元素组合之下,雅致体面。
•外墙、门头、屋檐高低不同的组合,赋予建筑错落有致的灵动感觉。
简约的线条轨迹,构建出适合中国乡村的宜居空间。
镜像展示-----------------------------------------------------全景展示---------------------------------------------------------------------------------------------------------------------------------------------------------------内景展示基本信息别墅编号:MS1906010占地尺寸:18.6x15.8米占地面积:198.52平方米建筑面积:389.55平方米结构类型:框架结构主体造价:39-48万左右平面布局图一层设堂屋、书房、储藏间、四间卧室、三间卫生间。
•室内布局方正,房屋中间布置堂屋,满足乡村居住的传统祭祀和供奉需求,同时也作为家庭起居和会客场所。
•一层布置5间卧室,其中两间带独立卫生间,起居方便,可以留作老人房或者长辈拜访时使用。
•良好的家庭中一般都会布置一间书房,不论是留作孩子学习还是留作主人工作都可以。
二层设客厅、两间衣帽间、两间卧室、两间卫生间、一个阳台。
•全屋布置7卧5卫,足够一大家子居住使用。
主人房带衣帽间和独卫,临靠阳台,推窗即是风景,尽享乡村大宅风范。
装修参考..........................................................。
乡村别墅现代二层新中式合院,书香世家最爱,白墙粉黛,素雅质朴让乡村居住更美好现在的农村别墅是越建越高,越建越豪,大多数都是欧式或者现代风格较多的。
不可否认,欧式风格华丽,浪漫,好看。
可是在农村建造一款四合院古色古香,自家住显示户主的尊贵,中式四合院确实中国特有的建筑,不管是外观来讲它的美观度,还是它居住的舒适性来说都是独一无二的!白墙粉黛是传统的中式建筑风格,素朴干净,重返记忆中的家,勾起多少人儿时的回忆。
-----------------------------------------基本信息主体毛坯参考造价:47-56万占地面积:259平方米建筑面积:477平方米开间12米,进深13.68米砖混结构,建筑高度11.05米-----------------------------------------别墅镜像图-----------------------------------------别墅外墙主体为白色真石漆,灰色真石漆做腰线,屋顶是灰色小青瓦,飞檐翘壁,韵味古典,生活空间符合现代人的审美,实用性强。
-----------------------------------------全景展示图----------------------------------------------------------------------------------平面布局图-----------------------------------------一层:入户设庭院,可以种花养鱼,喝茶下棋,悠然自然;4个带内卫的卧室,起居方便;堂屋可用作召开家庭会议使用,也可在摆宴席时使用。
二层:6个带内卫的卧室,做民宿出租;客厅宽敞,可用做聚会休闲,拓宽活动空间。
-----------------------------------------三层:超大露台,可以满足晾晒衣物,也可露天聚餐烧烤,打造空中花园,观景娱乐。