施工图库之临水总平面布置示范图
- 格式:dwg
- 大小:81.16 KB
- 文档页数:1
第八章第九章第十章施工现场平面和临时水电布置图第一节施工现场状况1.现场施工进度情况目前华南物联网营运中心项目一期工程项目场地已完成“三通一平”,现阶段进行工程桩施工。
现场进度情况照片2.现场周边道路情况本项目位于广州增城市新塘镇经济技术开发区,南靠创业大道、北靠创优路,东邻沙宁公路。
现场设置两个出入口,主入口为1#门,紧邻创业大道,次入口为2#门紧邻创优路(规划路),主要材料进出口为1#门,周围环境空旷,交通便利。
东:雅瑶河支流南:创业大道西:二期仓库用地北:居民区现场大门位置图3.临时排水、供水及临时用电接驳点位置1)场周边已具备临时排水条件市政排污井分布在南侧创业大道南侧创业大道市政雨水井2)现场可提供1个DN200临时给水接驳点和市政消防栓,位于场区南侧创业大道;3)现场可提供两个变压器,位于场区南侧。
1#变压器(315KvA)2#变压器(630KvA)第二节场地总平面布置1.施工平面布置的依据和原则1.1.施工平面布置依据1)业主所发招标文件、招标图纸及答疑资料;2)国家、广东省、广州增城市有关施工规定、规程及安全文明施工标准和规定;3)现场界线、水源、电源位置、周边道路情况及现场勘察结果;4)中建四局CI形象规定;5)总进度计划及资源需用量计划;6)总体施工部署和主要施工方案。
1.2.施工平面布置原则1)根据工程特点和现场周边环境的特征,充分利用现有施工场地,做好总平面布置规划,满足生产、安全文明施工要求;2)现场平面布置科学、功能分区划分合理,符合政府相关规定;3)紧凑有序,在满足施工的条件下,尽量节约施工用地;4)保证场内道路畅通,最大限度地减少二次搬运;5)按专业划分施工场地,避免各专业相互影响;6)依据各阶段施工管理需要,施工平面分阶段布置和管理,办公区、生产区和加工区分开布置;7)符合施工现场卫生及安全技术要求和防火规范;2.各阶段施工平面布置1)道路基层,1、2、5、6#仓及周围平台基础施工阶段平面布置图(附件4-1)2)1#仓一层钢结构,2、5、6#仓及周围平台一层混凝土结构,3、4#仓及周围平台基础施工阶段平面布置图(附件4-2)3)1#仓装修,2、5、6#仓二层钢结构,3、4#仓及周围平台一层混凝土结构施工阶段平面布置图(附件4-3)4)1、2、5、6#仓装修,3、4#仓二层钢结构施工阶段平面布置图(附件4-4)5)装饰装修施工阶段平面布置图(附件4-5)3.临时生活及办公场地平面布置根据我司同类工程经验,通过对工程量、劳动力的合理估算,结合工期,计算出土建、幕墙工程、机电安装、装修工程及其他专业分包等劳动力高峰值人数约1800人。
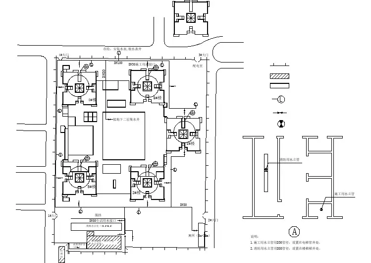
现场临水、临电总平面图第一篇:现场临水、临电总平面图现状道路2#门现状建设单位用房食堂总包办公用房现状建设单位用房1#门料库DN75主上水管1F/3D2F/3DH=77.20mH=8.70m27F/4DH=77.20m5#楼公共服务设施3#住宅楼DN75消防立管图例表:低压电线T2#塔高压电线配电柜配电箱27F/4DH=77.20m电源DN75消防立管4#住宅楼大郊亭路DN75主上水管上水管线消防栓上水闸阀上水水表消防立管T3#塔10F/4DH=31.60m2#住宅楼DN75消防立管T1#塔一、临电说明:1、根据招标答疑,建设单位施工前申请并按照电源,电源容量由中标单位提供数值。
2、经计算约需要800KVA电源。
3、现场共布置7跟电缆,其中高压电缆5根,主要为大型机械设备及工作面机械设备提供电源,电压330V;低压电缆2根,主要提供照明用电,电压220V。
二、临水说明1、根据招标答疑,现场东侧提供管径为DN75的水源,考虑到建筑物超高,现场设置水泵房,保证高层水压。
2、现场设置4处消防栓,建筑物内设置消防立管。
DN75主上水管10F/4DH=31.60mDN75消防立管H=4.20m1#住宅楼DN75主上水管施工道路工人宿舍工人宿舍工人宿舍(首层含食堂)3#门现场临水、临电总平面图第二篇:临水临电管理制度临电检查管理制度为保障安全可靠用电,促进施工安全生产,杜绝触电事故的发生,根据建设部颁发的《施工现场临时用电安全技术规范》(JGJ46—2005)(详见附件),结合本项目施工现场特点,特制定如下规定。
一、每周三进行现场临电巡视检查,巡查时间为上午9:00点,集合地点为现场安全部办公室(如遇特殊情况中建一局项目部提前通知),每日巡检各分包单位自行组织。
二、巡视检查各施工单位临电负责人必须全部参加(人员名单详见临电巡视检查记录表),不得迟到、早退、无故不参加检查,有事请假必须经过中建一局安全部批准,否则一律按未参加检查处理,并且每人次处以100元罚款(罚款当天以现金形式交付中建一局项目综合办)。
施工现场平面和临时水电布置图第八章施工现场平面和临时水电布置图第一节施工现场状况1。
现场施工进度情况目前华南物联网营运中心项目一期工程项目场地已完成“三通一平”,现阶段进行工程桩施工.2。
现场周边道路情况本项目位于广州增城市新塘镇经济技术开发区,南靠创业大道、北靠创优路,东邻沙宁公路。
现场设置两个出入口,主入口为1#门,紧邻创业大道,次入口为2#门紧邻创优路(规划路),主要材料进出口为1#门,周围环境空旷,交通便利。
1311323. 临时排水、供水及临时用电接驳点位置1)场周边已具备临时排水条件2)现场可提供1个DN200临时给水接驳点和市政消防栓,位于场区南侧创业大道;3)现场可提供两个变压器,位于场区南侧。
第二节场地总平面布置面布置的依据和原则 1。
施工平1.1. 施工平面布置依据1)业主所发招标文件、招标图纸及答疑资料;2)国家、广东省、广州增城市有关施工规定、规程及安全文明施工标准和规定;3)现场界线、水源、电源位置、周边道路情况及现场勘察结果;4)中建四局CI形象规定;1335)总进度计划及资源需用量计划;6)总体施工部署和主要施工方案。
1.2。
施工平面布置原则1)根据工程特点和现场周边环境的特征,充分利用现有施工场地,做好总平面布置规划,满足生产、安全文明施工要求;2)现场平面布置科学、功能分区划分合理,符合政府相关规定;3)紧凑有序,在满足施工的条件下,尽量节约施工用地;4)保证场内道路畅通,最大限度地减少二次搬运;5)按专业划分施工场地,避免各专业相互影响;6)依据各阶段施工管理需要,施工平面分阶段布置和管理,办公区、生产区和加工区分开布置;7)符合施工现场卫生及安全技术要求和防火规范;2。
各阶段施工平面布置1)道路基层,1、2、5、6#仓及周围平台基础施工阶段平面布置图(附件4—1)2)1#仓一层钢结构,2、5、6#仓及周围平台一层混凝土结构,3、4#仓及周围平台基础施工阶段平面布置图(附件4—2)3)1#仓装修,2、5、6#仓二层钢结构,3、4#仓及周围平台一层混凝土结构施工阶段平面布置图(附件4-3)4)1、2、5、6#仓装修,3、4#仓二层钢结构施工阶段平面布置图(附件4-4)5)装饰装修施工阶段平面布置图(附件4—5)3. 临时生活及办公场地平面布置根据我司同类工程经验,通过对工程量、劳动力的合理估算,结合工期,计算出土建、幕墙工程、机电安装、装修工程及其他专业分包等劳动力高峰值人数约1800人。