施工平面布置和临时设施布置图
- 格式:doc
- 大小:112.00 KB
- 文档页数:2
第二章施工平面布置和临时设施布置第一节施工平面布置原则我公司根据工程施工范围场地的实际情况,进行施工总平面布置,布置原则如下:1、有利于施工过程中集中管理、组织施工的原则;2、符合文明施工、安全生产的原则;3、按材料集中堆放,节省成本的原则;4、充分利用既有场地,紧凑合理布置的原则;5、应业主单位要求的原则。
第二节临时设施的安排及布置1、项目部、职工宿舍经过现场踏勘,考虑到本工程施工需要,若我单位中标,将及时与当地有关部门取得联系并征得监理、业主的同意,依据管理方便及交通运输方便的原则,修建项目经理部、职工宿舍等。
项目部用地面积约450平方米,其中办公用房约200平方米,包括为业主、监理工程师提供现场办公室。
场地地坪应硬化,并设置排水沟,生活污水排放应按规定办理相关手续。
厕所、浴室及厨房按文明施工要求进行搭设,保证卫生整洁。
职工宿舍面积约150平方米,职工食堂、厕所及浴室按要求设置,并安排专人进行打扫,符合卫生要求。
宿舍内统一布置,标准双层单人床,并保持整洁。
2、材料堆放场根据招标文件、根据需要设置堆放场地,遵循随用随进原则,材料尽量安排紧凑,减少材料堆放空间。
3、水、电和通讯设施本工程施工现场及临建场地用水我方自行采购。
项目部用电为自行购买网电,施工现场用电为自有发电机自行发电。
现场配备性能良好的手机等通讯工具,保持与业主等协作单位的联络。
4、为业主代表和监理工程师提供设施。
在临时场地内布置业主代表和监理工程师办公用房。
配置办公桌、椅、冷暖空调等办公设施和现代化办公设备。
同时提供可供20人开会、面积不小于40㎡的会议室。
施工现场总平面布置图及现场项目经理部布置示意图详见以下附表。
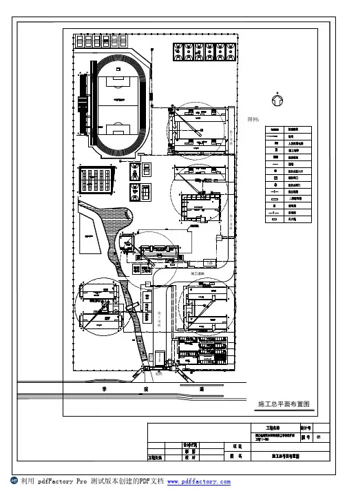
第三节施工平面布置图本工程为路面维修工程,维修区域位置较分散,现根据维修位置分别进行施工平面图的布置。
1、东环路路面维修平面图2、临海路路面维修平面图3、四号路路面维修平面图4、二号路路面维修平面图5、供油东路路面维修平面图第四节临时设施平面布置图住室1住室2住室3住室4住室5住室6住室7住室8住室9住室10监理办公室一监理办公室二业主办公室一业主办公室二综合办公室技术员办公室项目总工办公室项目副经理办公室项目经理办公室45。
6.施工现场总平面布置图和临时设施布置图现场文明施工的程度体现了企业的综合管理水平及工程影响力,整洁文明的施工现场、井然有序的平面布置,给人将是焕然一新的感觉,搞好本工程的现场施工形象、质量、安全、文明施工、进度等具有极大的社会影响力,对业主、监理、施工等各参建单位都有极大的影响力,因此本工程现场安全、文明和形象必须达到一流的水平,必须“高起点、高标准”实施现场文明施工,同时我司结合中国建筑工程总公司CI创优要求及贵州省施工现场安全文明施工标准化要求,要做到“五化”,即亮化、硬化、绿化、美化、净化,建设环保、文明型施工现场。
而临时施工道路、材料场地以及办公、生活区平面布置作为文明施工最直观、最重要的部分,必须进行合理规划和设置,以其作为做好现场文明施工的突破口,从而全面抓好施工现场管理。
6.1施工现场现状(1)工程D区、C区、A区集中商业a1-A~a1-X轴线土方开挖及场地平整还未完全到位,其余区域场地平整基本到位,此次方案只针对场地的东面、北面场地进行平面布置。
(2)现场北面、东面有一临时出入口,其中东面为现阶段土方外运的主要通道,环绕北面、东面路面表层都为回填土道路,回填土平均厚度约为2~10m,且高差很大,基本上不能行走重型车辆。
且道路高低不一,因回填土压缩形变很大,必须采取可靠的加固措施进行基层处理,方可确保道路使用安全。
东面和北面路面分别表述如下:1)东面地面从北坡向南,最高处标高1264.43m,最低处1254.25m,高差约达10m,同时东面约在(a1-U)到(a1-S)轴线位置业主组织的排污口处场地位置全部沉下,土方未回填,故东面施工场地只通畅了一半长度,具体如下所示:现场东面场地东面回填土方很松散东面土方出口东面回填道路未畅通2)北面地面由西坡向东,最高点标高为1289.43m,坡度约为5%,但具体如下所示:北面场地坡度约为5%北面场地回填土很松散(3)根据设计图纸,A区展馆与D区soho公寓之间有一永久性道路,作为日后会展货运通道,靠D区soho公寓南面设计有15m宽规划市政路,处于B区(b2-7)轴线上有21m宽规划市政路,是日后地块的主要出入口,以上道路现阶段由于土方未开挖到位,均不能利用其作为施工临时通道,位置如下图所示北面以后主要出口东面以后主要出口(4)现场围蔽只在场地的东面和北面基本施工完成,西面和南面目前未围蔽,还为敞开场地。
第一章施工现场平面布置图一、施工总平面图二、临时用地表三、布置要求1、现场平面布置要求按工程实施的需要,本工程现场布置分为三个阶段:土方开挖和基础施工阶段、室外工程阶段。
室外工程施工时,除园林和外网单位外各分包材料、设备不再占用室外场地。
办公室移入楼内。
2、施工用地狭小,只能占用本标段范围内的临时用地,承担进场后的场地规划布置、现场临时道路、临时围墙和出入口、临建、临水、临电等临时设施的建设,施工过程中的拆移调整和最后的全部拆除恢复工作。
现场不设置供居住区。
3、做到5个100%:即工地渣土100%覆盖、工地路面100%硬化、出工地车辆100%冲洗车轮、拆除房屋的工地100%洒水压尘、裸露的空地100%绿化或覆盖4、保证满足公共部位的安全和照明,通道照明符合要求,现场(包括各楼层各工作面)排水及时效,保证设备调试和运行的电量、水量储备和提供的接驳点不超过40米,保证提供的临时消防水满足相关要求和足够的水头压力。
5、临电的方案设计从布置上至少满足现场封闭环路,楼内竖向至少满足主体每栋号内隔层布置分配箱,容量设计要满足工程整体需要即满足各独立分包对容量的要求,并在变电站内、各电梯机房处提供临时用电,每处容量不小于50KW并设分配箱。
6、临水的方案设计从布置上至少满足现场封闭环路和相应接驳点,楼内竖向至少满足每栋号内均有一趟竖向消防水并每层设临水接驳口隔层设消防专用接驳口,并配备相应消防器材,容量设计要满足工程整体需要和有关临时消防设施的专项要求。
7、应至少在每四层设置一个配电箱和一个临时水源。
8、工地办公室布置:施工总平面图(基础阶段、主体阶段、装修阶段);施工进度计划网络图;工程施工形象进度图;质量、安全消防、文明施工管理网络图;消防器材布置图。
9、全体现场施工人员应统一佩带工作牌。
10、用钢管脚手架,脚手架走道外侧需设置踢脚板,高度不小于180mm,油漆颜色为红白或黄黑相间色(250mm相间),散水采用硬地坪,外设排水沟。
第二章施工现场平面布置和临时设施、临时道路布置第一节施工平面布置一、施工平面布置的原则1、在满足施工需要前提下,尽量减少施工用地.2、施工现场布置要紧凑合理,充分考虑本工程施工现场的实际情况,合理布置施工现场、临时办公用房、工具房、库房、材料堆放场、临时厕所及临时水电管线布置等,施工总平面布置依据施工要求及环保和消防的要求。
保护好施工现场的原有设施.合理布置各项施工设施,科学规划施工道路.科学确定施工区域,尽量减少交叉作业。
3、尽量降低运输费用,保证运输方便,减少二次搬运。
4、尽量降低临时设施的修建费用,充分利用已有或拟建房屋、管线、道路为施工服务。
5、有利施工、方便生活,居住区到施工区的距离要近。
6、符合劳动保护、技术安全和防火要求.二、施工平面布置的方式1、运输道路的布置:道路应与仓库、料场的位置结合布置,并与场外道路连接.2、仓库的布置:布置接近使用地点,其纵向应与线路平行,装卸时间长的仓库及料场用地要尽量远离道路,以免影响交通。
3、场内临时道路的布置:尽量利用永久道路,必须修建的临时道路,要把仓库、料场和施工点贯穿起来,对过路的管线要先铺设。
4、项目部办公区、生活区的布置:办公区及生活区设在甲方指定位置,生活区和办公区分开布设,食堂布置在生活区为宜。
第二节施工总平面布置图一、施工平面图布置说明1、我公司严格按照施工总平面布置图规划搭设办公室、工人宿舍等临时设施。
2、办公室、职工宿舍配备电脑、设施布置整齐美观、不拥挤、有足够的安全消防通道和良好的采光和通风条件。
3、职工餐厅配备专职的炊事员,确保食堂清洁卫生,炊具干净,室内无蝇鼠,定期对蔬菜、食品进行卫生检查。
炊事员必须身体健康,持有健康上岗证和专用工作服。
4、工人宿舍排出值班表,每日派人清扫,宿舍内不自隔小房间,不乱拉电线,不准留外人住宿.5、生活、卫生区设有专人清理,每周喷洒药剂.6、临时设施采取封闭式管理,并设置值班人员,禁止无关人员随意进出。
施工平面布置和临时设施布置<一>施工总平面布置原则一、平面布置原则平面布置力求科学、合理,充分利用有限的场地资源,最大限度的满足施工需要,确保既定的质量、工期、安全生产、文明施工四大目标。
根据现场条件,结合工程特点,按照经济适用、合理方便的原则,在保证场区交通运输畅通和满足施工要求的前提下,最大限度地减少场内二次运输;在平面交通上,尽量避免各生产单位相互干扰;符合施工现场卫生及安全技术要求和防火规范、满足施工生产和文明施工的需要。
施工现场四周进行全封闭施工。
二、施工现场平面布置图《施工现场平面布置图》附后三、施工道路根据现场平面布置图和现场的实际情况,按场地内原来的排水坡向,对场地进行平整,施工道路采用铺设小石子的方法以满足施工运输的需要。
四、材料堆放为了保证现场材料堆放有序,堆放场地将进行硬化处理,即砂石料、砖、周转料场等浇成一块面积较大的混凝土场地。
材料尽可能按计划分期、分批、分层供应,以减少二次搬运。
主要材料的堆放,应严格按照《施工现场平面布置图》确定的位置堆放整齐。
五、生活设施1、现场需要制定卫生制度,划分现场卫生整洁包干区,并明确到人。
2、厕所派专人负责清扫,消毒和清理。
3、沿现场四周、办公区设置一定数量的垃圾桶,明确废物不乱堆乱放。
六、消防设施1、制定消防管理制度,成立义务消防队,划分现场消防包干区,并落实到人。
2、休息区、办公室设置一定数量灭火器。
3、模板,易燃、易爆物品的堆放区,设置灭火器并设警戒标志。
4、施工通道兼作消防通道,各临时设施、材料堆放不占用通道。
5、定期进行消防检查,灭火器确保可靠,使用灵活。
<二>临设水电一、施工现场临时用电计划总用电容量为120KV A,因施工机械不同时使用,故此用电量可满足要求。
施工现场安排二路供电,施工机械一路,生活区一路。
所有动力线路均地敷设,分别设配电箱控制。
夜间照明采用低压行灯。
二、施工现场临时用水供水:如现场无水源,可采用自行打井的方法来满足施工及生活用水,现场设水池5个供施工用水。
施工现场平面布置和临时设施布置第一节、施工临时设施布置1、施工总体布置原则施工总平面布置严格按照施工合同执行相关标准要求,结合本工程施工现场情况,本着“有利生产、经济适用、安全防火和环境保护”的要求进行布置。
2、项目部、施工队地驻地建设本工程根据现场情况,拟设置一个项目部驻地。
驻地均采用15cm厚C20混凝土硬化,驻地房间采用防火、保温的彩钢板进行搭设。
按施工组织设计划分施工段落,并清理施工现场,对驻地进行施工围挡封闭。
生活区内设置职工宿舍、食堂、洗浴室、医务室等房间,满足职工食宿生活的需要。
2.1、宿舍布置宿舍标准间尺寸为5.4m×3.6m,每个房间内设置4人,床架被褥统一、实行军事化管理。
宿舍内设置生活用品专柜,每层宿舍楼设置三个定点垃圾桶。
2.2、厨房、食堂布置在驻地设置厨房,内配成品、半成品储藏柜、消毒柜、冰柜、蒸箱、炉灶、排风扇等设施,门扇下方设置防鼠挡板,燃气罐单独设置存放间。
灶台及其周边铺贴瓷砖,高度1.8m。
食堂门口设挡鼠板,食堂所用餐具按卫生要求及时消毒。
炊事员持健康证上岗。
2.3、厕所布置在宿舍楼附近,设一处水冲式厕所。
场外设置专用化粪池,专人定期清理。
厕所地面铺设白色瓷砖,由专人进行打扫,保持清洁卫生。
2.4、医务室布置在现场设立专门的临时医务室,配备足够的医疗设施、急救设备、常用药物、传染病预防药物和称职的医务人员,同时配备急救担架,用于一旦发生安全事故时对受伤人员的急救。
2.5、其他设施布置驻地内还设置保安室、探亲房等配套设施。
3、施工道路项目经理部设置在道路一侧外边缘不到20米处,临时道路很少,其他利用现有道路。
为确保生产生活区域周围正常运行的需要,设置施工及生活车辆进出的临时道路。
主便道采用C20硬化混凝土路面,路面厚度为20cm,宽度5m,设单侧排水沟。
硬化场地向四周设2%的排水坡,排入排水沟。
同时在各现有道路路口处修筑局部临时道路(结构形式同上)方便车辆和行人通行。
施工现场平面布置和临时设施布置1、现场平面布置1.1、现场文明施工管理基本要求(1)施工现场应当做到围挡、大门、标牌标准化,材料堆放整齐化,安全设施规范化,生活设施整洁化,职工行为文明化,工作生活秩序化;(2)施工工完场清,施工不扰民、现场不扬尘、运输无遗漏、垃圾不乱弃,营造良好的施工作业环境。
1.2、施工平面布置设计原则(1)按各阶段施工要求分别进行布置;(2)优先布置大型机械设备;(3)尽可能减少临时设施和二次搬运;(4)加强环境保护,减少扰民,文明施工;(5)充分考虑劳动保护、职工健康安全和消防。
1.3、施工总平面设计步骤布置大门位置→引入场外道路→布置大型机械→布置仓库、堆场→布置加工厂→布置内部临时运输道路→布置临时用房→布置临时水电管网和其他动力设施→绘制图例。
1.4、现场平面布置规划施工现场平面布置是保证工程质量与工期的重要条件,是文明、安全施工的必要条件,施工平面布置时首先将施工平面布置图报监理、业主审核批准后,方可进行施工现场进行平面布置。
我们将根据场外道路、场内施工区域施工临时施工道路;大门口设置门卫、雨水沉淀池、冲洗平台及检查区;在现场入口处的醒目位置公示七牌一图:即工程概况牌、组织网络牌、文明施工管理牌、安全管理牌、防火须知牌、环保措施牌、工会组织宣传牌及施工总平面图。
根据甲方提供的电源位置和用电设备等配置配电箱和开关箱,严格按照施工现场用电相关规定设置安全用电保护设施,并确保其完好可靠,电线、电缆的架空与埋设,编制好临时用电施工方案;在现场不同区域分别设置生活和办公区,设置消防器材;搭设好钢筋堆场及钢筋笼制作场地,规划好泵车及吊车的行走路线,以及砼泵车的停靠位置及砼的浇注线路,材料库等;临时道路两旁、大门口插设彩旗,张贴宣传标语。
施工现场平面布置应根据施工现场实际需要,实行阶段性的调整,动态管理,满足现场安全、文明施工的需要。
2、临时设施布置2.1、布置临时设施经过认真阅读招标文件及现场勘察。
施工现场总平面布置图与临时施工便道平面图第一节现场施工平面规划场地和环境情况说明经过现场踏勘,本工程场地基本满足施工要求。
总平面图布置是否合理,直接关系到施工进度的快慢,安全文明施工的达标和体现我公司管理水平的高低,施工平面布置考虑以下因素。
1、确保场内道路通畅,满足施工时对材料堆放场地的要求,减少二次搬运和场内运输。
2、满足安全、文明施工达标对场地的要求,生活区和生产区要分别设置。
3、符合施工现场防火规范要求和城市环境卫生的要求。
4、符合施工现场安全用电规范要求。
5、场地布置中,要避免土建、安装、装饰单位相互干扰,还要满足甲方的有关要求。
6、做到临时设施搭建有序,材料机具设备堆放整齐、生活污水作处理后排放、生活垃圾袋装化、消防设施齐备、并服建设单位的监督与管理。
第一节施工现场平面布置经现场踏勘综合考虑,施工现场分办公区、施工区、加工棚、材料堆放区,设置独立的生活区。
除办公和生活二个区在整个施工过程中基本不变,其它如车间、仓库和堆场根据各个施工阶段做出相应的调整。
1.1.1"三通一平W工作本工程场地基本平整,施工运输可在平面图上设主要的临时通道。
施工用水、用电均可接至现场。
在临时道路场地、运输道路口及砂石材料堆放场地及搅拌机设置部位用适量石子回填压实平整,均采用硅硬化施工,并做出坡度,设好排水沟,并能冲洗,保证工程场地整洁,施工场地排水经过沉淀池直接排入城市污水、雨水管道。
1.2.1临时设施布置施工临时设施从有利于现场管理,合理组织施工,保证安全的总原则下进行。
根据建筑物结构特点,现场条件,施工总工期,人员机具配备计划等综合考虑,临时工棚搭设门卫、现场办公、木工棚、机具、仓库房、钢筋加工棚、钢筋堆场、粒搅拌站等,生活区设职工宿舍、食堂、浴厕间等。
临时设施采用2层活动房和简单仓库,加工间等组成,其中,办公室为彩钢板活动房,现场入口设立门卫、并张挂出入制度、现场管理条例、工程简介、场地周围墙上书写各类标语,以美化环境,凡进场材料、设备必须按指定位置堆放。
施工现场平面布置图及临时设施方案根据《施工总平面图》规划生产和办公临时用地,办公区、生活区在现场附近搭设。
1、施工区平面布置1.1泵站、附属用房基础结构施工阶段的平面布置1.1.1垂直运输机械的布置大型材料设备包括钢筋、模板、混凝土、钢管、土方等,主要通过汽车吊车和混凝土泵车完成。
1.1.2钢筋加工堆放场地本工程钢筋采用现场加工,钢筋加工场地详见《施工总平面图》。
1.2泵站、附属用房主体结构施工阶断的平面布置1.2.1垂直运输机械的布置大型材料设备包括钢筋、模板、混凝土等,主要通过汽车吊车和混凝土泵车完成,位置见《施工总平面图》。
1.3装饰装修施工阶段的平面布置1.3.1垂直运输机械的布置装修阶段垂直运输主要是装修材料的运输。
本工程装修材料的运输用汽车吊车。
1.3.2装修材料堆放场区装修阶段在原钢筋堆放场设置装修材料堆放场区。
1.3.3周转材料堆放场地尽量减少二次搬运,同基础施工阶段1.3.4砂石、砌体堆放场区砂石、砌体堆放场区利用主体施工阶段辅助生产设施区。
1.3.5砂浆搅拌机本工程砂浆采用现场搅拌,现场布置相应数量的砂浆搅拌机。
2、现场办公、生活区设施布置现场搭设,详见《施工总平面图》。
3、现场道路布置详见《施工总平面图》。
4、施工现场临时设施情况:详见附表。
5、施工临时用水设计5.1经计算并根据设计规范,结合现场实际情况,施工用水、临时消防给水采用统一供水管道,给水管道采用DN75焊接钢管。
给水干管由已有市政管道引出,位置见《施工总平面图》。
临建区布置消火栓,间距50M。
消火栓采用DN65,枪口φ19,长25M麻质水龙带。
管道材料及连接方式:全部管道采用焊接钢管焊接,局部需经常拆卸的管件采用丝接或法兰连接。
5.2排水系统5.2.1排水明沟设置沿临建区四周设置300×300MM(B×H)排水明沟,将水流汇集至附近积水坑内,积水坑规划30M3,再由集水坑通过离心泵抽到附近道路雨水管到内。
施工总平面布置图及临时用地表
1、施工总平面布置图
投标人应提交一份施工总平面图,绘出现场临时设施布置图并附文字说明,说明临时设施、加工车间、现场办公、设备及仓储、供电、供水、卫生、生活等设施的情况和布置。
拟定在本标段工程沿线的空旷位置建立项目经理部,负责主持全部工程任务。
项目部包括职工办公区及生活区、民工生活区、钢筋存放及加工区、模板存放及木工加工区、机械设备停放区以及工地库房等,总占地面积约为12125m2。
(1)施工现场总平面布置图
(2)项目部及生活区布置图
(3)项目部平面布置总图
疏散门
大
门
注:1、投标人应逐项填写本表,指出全部临时设施用地面积以及详细用途。
2、若本表不够,可加附页。
2、临时用地表
临时用地表。
2施工现场平面布置和临时设施临时道路布置2.1施工总平面布置根据本工程的地理位置、周边环境以及现场勘察资料,本着实现文明施工、节约的原则,现场平面布置应充分考虑确保交通顺畅、安全生产、文明施工,减少二次搬运以及环保等管理目标的要求,根据本工程施工用地的实际情况及业主对用地的具体要求,顺利实现对现场进行科学、合理布置,同时要优先考虑现场的硬化、绿化、亮化、环保(防尘、降噪、净化排水)及现场管理。
2.1.1施工总平面布置合理与否,将直接关系到施工进度的快慢和安全文明施工管理水平的高低,为保证现场施工顺利进行,确定平面布置原则为:在满足施工的条件下,尽量节约施工临时用地。
满足施工需要和文明施工的前提下,尽可能减少临时建设投资。
在保证场内交通运输畅通和满足施工对材料要求的前提下,最大限度地减少场内运输,特别是减少场内二次搬运。
中小型机械的布置要处于安全范围,避开高空物体打击。
在平面布置上,尽量避免设备安装、绿植绿化及其他施工作业相互干扰。
符合文明施工现场卫生及安全技术要求和防火规范。
根据施工现场阶段的变化做相应调整,具体做到:临时堆场放在工地临时空地;将设备安装、绿化苗木堆场分开管理。
材料堆放挂牌,必要时架空遮盖。
规范现场各项管理工作,按照规定进行施工现场管理,确保文明安全施工,确保工程现场处于整洁、卫生、有序合理的状态,确保该工程在环保、节能等方面成为一个名副其实的绿色环保工程。
2.2施工现场平面布置随着工程施工进度进行布置和安排,阶段平面布置要与该时期的施工重点相适应。
本工程现场场地紧张,施工中要兼顾考虑到各工序的施工均衡,场内必须考虑保证施工道路通畅和保证有部分堆料场地。
同时在平面布置中不同期间应充分考虑好施工机械设备、道路、临时堆放场地等的优化合理布置。
2.2.1现场平面布置应遵循原则由于施工现场用地紧张,办公区域、生活区域、施工区域布局采取分散布置原则。
充分体现环保节能和人文相结合,临时设施布置按业主要求进行建设,标准统一,集中文明管理。
施工平面布置和临时设施布置生产临时设施布置生产临时设施主要包括材料设备堆场、预制加工场及施工人员、材料设备运输通道等。
材料设备及人员的交通组织1 根据总承包的平面布置,现场的道路、出入口等已基本满足机电工程施工的需要。
2 机电工程的人员和材料设备运输(大型设备视安装位置而定)的出入口将主要集中于主出入口。
3 施工人员主要借助总承包的通道进入施工现场,然后通过永久楼梯到达各个施工区域。
4 地下室的材料、设备将主要通过永久车道进行运输,大型设备(如冷水机组等)将利用吊装预留洞进行运输。
5 首层材料设备主要利用现有总承包布置的通道进行运输。
二层以上的材料、设备主要通过总承包设置的施工物料提升机运输到各个楼层的所需区域。
现场加工设施布置由于工程单层面积较大,而且机电施工专业较多,专业分包较多,拟将主要的材料设备堆场、预制加工场等进行分区、分层设置。
1 预制场:在地面一层用彩钢板搭设。
主要为管道加工、风管的拼装等。
经业主、总包许可,在地下室、楼层、室外等指定位置设置加工场地,拟设置200m2/个的预制加工场共计2个,可随施工楼层的改变而改变,560m2/个的预制加工场共计1个,固定设置在地下室内,其中风管生产流水线拟考虑设在地下室内,生产区面积约为40米*16米。
2 电焊机棚:在预制场采用彩钢板搭建电焊机棚。
3 配电箱:根据施工总承包施工现场总配电箱设置情况,从总配电箱分别分出多个分配电箱,这些配电箱分别置于工程不同的地方,施工时再根据需要设多级配电箱。
现场储存设施布置1 材料堆放场:运至现场的材料堆放在此,各类材料按不同种类规格堆放整齐,设置标识牌和检验状态。
施工材料和设备堆场布置。
主要为管道加工、风管的拼装、设备吊装前的临时堆场。
材料仓库设置在总承包的指定位置,并进行型钢、管材、电缆分区堆放。
2 设备卸货区:设置约20米*10米的设备卸货区,用于大型设备的卸货及组装、存储。
3 库房:在材料堆放区用彩钢板搭设一个大型仓库,用于堆放不许露天堆放的材料,设置一个小型库房,主要放置一些小件易丢、易碎物品。
第二章施工现场平面布置和临时设施、临时道路布置一、施工总平面布置原则由于地下部分较大,大基坑开挖,本工程施工场地狭小,需进行科学、合理、紧凑的现场布置和综合管理,克服场地狭小的不利因素对施工带来的不利影响,同时须做好场内及附近地上、地下已有市政设施和管网、邻近建筑等的安全防护保护工作,保证生产施工的顺利进行。
施工总平面布置合理与否,将直接关系到施工进度的快慢和施工的安全文明,为保证现场施工顺利进行,具体的施工平面布置原则为:在满足施工的条件下,尽量节约施工用地;满足施工需要和文明施工的前提下,尽可能减少临时设施搭投;在保证场内交通运输畅通和满足施工对材料要求的前提下,最大限度地减少场内运输,特别是减少场内二次搬运;在平面交通上,要尽量避免土建、安装单位相互干扰;符合施工现场卫生及安全技术要求和防火规范要求。
二、施工平面布置施工现场场地较为狭小,不利于现场临时设施及材料的布置,进场临道路由围墙周边修筑,地下室封顶后,可利用地下室顶堆放临时材料及材料加工场地,走向详见施工现场平面布置图。
1、临时设施布置方案施工现场搭设临时设施及办公室采用活动房。
施工区现场设置钢筋加工棚、模板加工棚、现场搅拌站等临时作业棚采用钢管搭设,上面再搭设两层防护棚,防护棚上满铺竹笆,上面一道防护棚周边防弹栏杆不小于500mm.2、工地及办公室布置1)施工总平面图(场地施工平面布置图).2)我公司将在场地布置上作如下具体的要求:在工地内设置钢筋加工制作工场、木工棚等场内临设,采用脚手钢管搭设,黄黑色间色油漆(500mm黄黑相间);石棉瓦或彩钢瓦顶,内做硬地。
工地设置建筑垃圾中转场地,占地规格6×6m,用彩条布全封闭防护,高度2m.建筑垃圾不得从高处往下抛洒,必须袋装运至建筑垃圾中转场地。
垃圾外运由我公司自行解决。
必要时洒水湿润,防止飞扬。
施工现场各类垃圾做到当天清理。
施工工地建立“十牌二图”,即施工总平面图、卫生包干责任图、施工简介、工程概况、施工现场管理网络、卫生须知、防火须知、安全生产六大纪律、十项安全技术措施、文明施工措施、环境保护措施、安全生产目标.同时我公司将加强对“十牌二图”的管理。
第一章施工平面布置和临时设施布置图
一、布置原则
临时设施按照天津市有关建筑工程文明施工的有关规定进行建设,同时符合本公司关于文明施工及安全生产的要求布置,施工场地的使用服从业主对施工现场的统一安排和协调。
施工总平面布置按照经济适用、合理方便的原则,在保证场内交通运输畅通和满足施工对材料要求的前提下,最大限度地减少场内二次运输,在平面交通上,尽量避免各生产单位相互干扰;符合施工现场卫生及安全技术要求和防火规范、满足施工生产和文明施工的需要。
为保证施工现场布置紧凑合理、现场施工顺利进行,施工平面布置原则确定如下:
(一)合理布置施工机具,规划好施工道路和场地,减少场内二次搬运。
(二)布置符合现场卫生、安全防火和环境保护等要求。
二、布置依据
(一)主要依据各站施工平面示意图以及招标文件对场地的使用要求。
(二)总进度计划及资源需用量计划。
(三)总体部署和主要施工方案。
(四)安全文明施工及环境保护要求。
三、现场平面布置图。