沉井沉降位移观测表格
- 格式:xls
- 大小:25.00 KB
- 文档页数:1
基坑沉降观测测量记录注:如果竣工验收时观测点的沉降、变形尚未稳定,应交待清楚有关继续观测直至稳定为止的事项。
固定水准点应按规定设置、保护好;建筑物上的观测点应布置合理,水平间距符合规定要求,并在平面图上标注其尺寸。
工程名称XXX基坑支护观测日期2019年5月1日观测记录员:工程名称XXX基坑支护观测日期2019年5月15日观测记录员:工程名称XXX基坑支护观测日期2019年5月22日观测记录员:基坑沉降观测测量记录说明:ABC 线在距基坑坡顶线Im 处沿线布置3个观测点,CD 线在距基坑坡顶线Im 处沿线布置3个点,D-J 线 在基坑坡顶线In1处沿线布置3个观测点,-A 线在基坑坡顶线In1处沿线布置3个观测点。
施工单位观测结果:监理(建设)单位核查结论:注:如果竣工验收时观测点的沉降、变形尚未稳定,应交待清楚有关继续观测直至稳定为止的事项。
固定水准点应按规定设置、保护好;建筑物上的观测点应布置合理,水平间距符合规定要求,并在平面图上标注其尺寸。
施工单位项目专业技术负责人:项目专业监理工程师(建设单位项目技术负责监理(建设)项目部(章)年月日工程名称XXX基坑支护观测日期2019年6月5日观测记录员:工程名称XXX基坑支护观测日期2019年6月12日观测记录员:工程名称XXX基坑支护观测日期2019年6月19日观测记录员:工程名称XXX基坑支护观测日期2019年6月26日观测记录员:基坑沉降观测测量记录说明:ABC 线在距基坑坡顶线Im 处沿线布置3个观测点,CD 线在距基坑坡顶线Im 处沿线布置3个点,D-J 线 在基坑坡顶线In1处沿线布置3个观测点,-A 线在基坑坡顶线In1处沿线布置3个观测点。
施工单位观测结果:监理(建设)单位核查结论:注:如果竣工验收时观测点的沉降、变形尚未稳定,应交待清楚有关继续观测直至稳定为止的事项。
固定水准点应按规定设置、保护好;建筑物上的观测点应布置合理,水平间距符合规定要求,并在平面图上标注其尺寸。
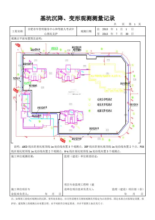
基坑沉降、变形观测测量记录
共页第 1 页
工程名称合肥市车管所服务中心和驾驶人考试中
心基坑支护
观测日期
自 2013 年 1 月 1 日
至 2013 年 7 月 30 日
观测点平面布置图及说明:
说明:ABCD线在距基坑坡顶线1m处沿线布置3个观测点,DEF线在距基坑坡顶线1m处沿线布置2个点,FGH 线在基坑坡顶线1m处沿线布置2个观测点,H-A线在基坑坡顶线1m处沿线布置3个观测点。
施工单位观测结果:
施工单位项目专
业技术负责人:年月日监理(建设)单位核查结论:
项目专业监理工程师(建
设单位项目技术负责人):监理(建设)项目部(章)
年月日
注:如果竣工验收时观测点的沉降、变形尚未稳定,应交待清楚有关继续观测直至稳定为止的事项。
固定水准点应按规定设置、保
第 1 次观测:共 12 页第 2 页
第 2 次观测:共 12 页第 3 页
第 3 次观测:共 12 页第 4 页
第 4 次观测:共 12 页第 5 页
第 5 次观测:共 12 页第 6 页
第 6 次观测:共 12 页第 7 页
第 7 次观测:共 12 页第 8 页
第 8 次观测:共 12 页第 9 页
第 9 次观测:共 12 页第 10 页
第 10 次观测:共 12 页第 11 页
第 11 次观测:共 12 页第 12 页。
建筑物沉降、变形观察丈量记录湘质监统编共页第 1页工程名称自 2021年 1月 1日梅溪湖国际新城二期二标基坑支护观察日期年 7月 30至 2021日观察点平面部署图及说明:说明: ABCD线在距基坑坡顶线1m处沿线部署 3 个观察点, DEF线在距基坑坡顶线1m处沿线部署 2 个点, FGH 线在基坑坡顶线1m处沿线部署 2 个观察点, H-A 线在基坑坡顶线1m处沿线部署 3 个观察点。
施工单位观察结果:监理〔建设〕单位核查结论:工程专业监理工程师〔建施工单位工程专设单位工程技术负责人〕:监理〔建设〕工程部〔章〕业技术负责人:年月日年月日注:假如完工查收时观察点的沉降、变形还没有稳固,应交待清楚相关持续观察直至稳固为止的事项。
固定水平点应按规定设置、保护好;建筑物上的观察点应部署合理,水平间距切合规定要求,并在平面图上标明其尺寸。
建筑物沉降、变形观察丈量记录〔续表〕湘质监统编第 1次观察:共 12页第 2页工程名称梅溪湖国际新城二期二标基坑支护观察日期2021年 1 月 10日观察时施工形象进度:观察点编号1#2#3#4#5# 6# 7# 8# 9# 10#上次观察本次观察本次沉降数累计沉降数观察部位高程高程〔观察高差〕备注〔 m〕〔 m〕〔 mm〕〔 mm〕ABCD剖面ABCD剖面ABCD剖面DEF剖面DEF剖面FGH剖面FGH剖面H-A 剖面H-A 剖面H-A 剖面专职丈量员:监理〔建设〕单位旁站监察人:观察记录员:年月日年月日建筑物沉降、变形观察丈量记录〔续表〕湘质监统编第 2次观察:共 12页第 3页工程名称梅溪湖国际新城二期二标基坑支护观察日期2021年2 月1日观察时施工形象进度:观察点编号1#2#3#4#5# 6# 7# 8# 9# 10#上次观察本次观察本次沉降数累计沉降数高程高程〔观察高差〕备注〔 mm〕〔 m〕〔m〕〔mm〕ABCD剖面ABCD剖面ABCD剖面DEF剖面DEF剖面FGH剖面FGH剖面H-A 剖面H-A 剖面H-A 剖面专职丈量员:监理〔建设〕单位旁站监察人:观察记录员:年月日年月日建筑物沉降、变形观察丈量记录〔续表〕湘质监统编第 3次观察:共 12页第 4页工程名称梅溪湖国际新城二期二标基坑支护观察日期2021年2 月20日观察时施工形象进度:观察点编号1#2#3#4#5# 6# 7# 8# 9# 10#上次观察本次观察本次沉降数累计沉降数高程高程〔观察高差〕备注〔 mm〕〔 m〕〔m〕〔mm〕ABCD剖面ABCD剖面ABCD剖面DEF剖面DEF剖面FGH剖面FGH剖面H-A 剖面H-A 剖面H-A 剖面专职丈量员:监理〔建设〕单位旁站监察人:观察记录员:年月日年月日建筑物沉降、变形观察丈量记录〔续表〕湘质监统编第 4次观察:共 12页第 5页工程名称梅溪湖国际新城二期二标基坑支护观察日期2021年3 月10日观察时施工形象进度:观察点编号1#2#3#4#5# 6# 7# 8# 9# 10#上次观察本次观察本次沉降数累计沉降数高程高程〔观察高差〕备注〔 mm〕〔 m〕〔m〕〔mm〕ABCD剖面ABCD剖面ABCD剖面DEF剖面DEF剖面FGH剖面FGH剖面H-A 剖面H-A 剖面H-A 剖面专职丈量员:监理〔建设〕单位旁站监察人:观察记录员:年月日年月日建筑物沉降、变形观察丈量记录〔续表〕湘质监统编第 5次观察:共 12页第 6页工程名称梅溪湖国际新城二期二标基坑支护观察日期2021年3月30日观察时施工形象进度:观察点编号1#2#3#4#5# 6# 7# 8# 9# 10#上次观察本次观察本次沉降数累计沉降数观察部位高程高程〔观察高差〕备注〔 mm〕〔 m〕〔m〕〔mm〕ABCD剖面ABCD剖面ABCD剖面DEF剖面DEF剖面FGH剖面FGH剖面H-A 剖面H-A 剖面H-A 剖面专职丈量员:监理〔建设〕单位旁站监察人:观察记录员:年月日年月日建筑物沉降、变形观察丈量记录〔续表〕湘质监统编第 6次观察:共 12页第 7页工程名称梅溪湖国际新城二期二标基坑支护观察日期2021年4月20日观察时施工形象进度:观察点编号1#2#3#4#5# 6# 7# 8# 9# 10#上次观察本次观察本次沉降数累计沉降数高程高程〔观察高差〕备注〔 mm〕〔 m〕〔m〕〔mm〕ABCD剖面ABCD剖面ABCD剖面DEF剖面DEF剖面FGH剖面FGH剖面H-A 剖面H-A 剖面H-A 剖面专职丈量员:监理〔建设〕单位旁站监察人:观察记录员:年月日年月日建筑物沉降、变形观察丈量记录〔续表〕湘质监统编第 7次观察:共 12页第 8页工程名称梅溪湖国际新城二期二标基坑支护观察日期2021年5月10日观察时施工形象进度:观察点编号1#2#3#4#5# 6# 7# 8# 9# 10#上次观察本次观察本次沉降数累计沉降数高程高程〔观察高差〕备注〔 mm〕〔 m〕〔m〕〔mm〕ABCD剖面ABCD剖面ABCD剖面DEF剖面DEF剖面FGH剖面FGH剖面H-A 剖面H-A 剖面H-A 剖面专职丈量员:监理〔建设〕单位旁站监察人:观察记录员:年月日年月日建筑物沉降、变形观察丈量记录〔续表〕湘质监统编第 8次观察:共 12页第 9页工程名称梅溪湖国际新城二期二标基坑支护观察日期2021年5月30日观察时施工形象进度:观察点编号1#2#3#4#5# 6# 7# 8# 9# 10#上次观察本次观察本次沉降数累计沉降数高程高程〔观察高差〕备注〔 mm〕〔 m〕〔m〕〔mm〕ABCD剖面ABCD剖面ABCD剖面DEF剖面DEF剖面FGH剖面FGH剖面H-A 剖面H-A 剖面H-A 剖面专职丈量员:监理〔建设〕单位旁站监察人:观察记录员:年月日年月日建筑物沉降、变形观察丈量记录〔续表〕湘质监统编第 9次观察:共 12页第 10页工程名称梅溪湖国际新城二期二标基坑支护观察日期2021年6月20日观察时施工形象进度:观察点编号1#2#3#4#5# 6# 7# 8# 9# 10#上次观察本次观察本次沉降数累计沉降数高程高程〔观察高差〕备注〔 mm〕〔 m〕〔m〕〔mm〕ABCD剖面ABCD剖面ABCD剖面DEF剖面DEF剖面FGH剖面FGH剖面H-A 剖面H-A 剖面H-A 剖面专职丈量员:监理〔建设〕单位旁站监察人:观察记录员:年月日年月日建筑物沉降、变形观察丈量记录〔续表〕湘质监统编第 10次观察:共 12页第 11页工程名称梅溪湖国际新城二期二标基坑支护观察日期2021年7月10日观察时施工形象进度:观察点编号1#2#3#4#5# 6# 7# 8# 9# 10#上次观察本次观察本次沉降数累计沉降数高程高程〔观察高差〕备注〔 mm〕〔 m〕〔m〕〔mm〕ABCD剖面ABCD剖面ABCD剖面DEF剖面DEF剖面FGH剖面FGH剖面H-A 剖面H-A 剖面H-A 剖面专职丈量员:监理〔建设〕单位旁站监察人:观察记录员:年月日年月日建筑物沉降、变形观察丈量记录〔续表〕湘质监统编第 11次观察:共 12页第 12页工程名称梅溪湖国际新城二期二标基坑支护观察日期2021年7月30日观察时施工形象进度:观察点编号1#2#3#4#5# 6# 7# 8# 9# 10#上次观察本次观察本次沉降数累计沉降数高程高程〔观察高差〕备注〔 mm〕〔 m〕〔m〕〔mm〕ABCD剖面ABCD剖面ABCD剖面DEF剖面DEF剖面FGH剖面FGH剖面H-A 剖面H-A 剖面H-A 剖面专职丈量员:监理〔建设〕单位旁站监察人:观察记录员:年月日年月日。
承包监理工程录沉降位移观察记录表合同号:编 号:工程部位: 13#墩铁路边坡日 期:承包监理工程录沉降位移观察记录表合同号:编 号:工程部位: 13#墩铁路边坡日 期:承包监理工程录沉降位移观察记录表合同号:编 号:工程部位: 13#墩铁路边坡日 期:承包监理工程录沉降位移观察记录表合同号:编 号:工程部位: 13#墩铁路边坡日 期:承包监理工程录沉降位移观察记录表合同号:编 号:工程部位: 13#墩铁路边坡日 期:承包监理工程录沉降位移观察记录表合同号:编 号:工程部位: 13#墩铁路边坡日 期:承包监理工程录沉降位移观察记录表合同号:编 号:工程部位: 13#墩铁路边坡日 期:承包监理工程录沉降位移观察记录表合同号:编 号:工程部位: 13#墩铁路边坡日 期:承包监理工程录沉降位移观察记录表合同号:编 号:工程部位: 13#墩铁路边坡日 期:承包监理工程录沉降位移观察记录表合同号:编 号:工程部位: 13#墩铁路边坡日 期:承包监理工程录沉降位移观察记录表合同号:编 号:工程部位: 13#墩铁路边坡日 期:承包监理工程录沉降位移观察记录表合同号:编 号:工程部位: 13#墩铁路边坡日 期:承包监理工程录沉降位移观察记录表合同号:编 号:工程部位: 13#墩铁路边坡日 期:承包监理工程录沉降位移观察记录表合同号:编 号:工程部位: 13#墩铁路边坡日 期:承包监理工程录沉降位移观察记录表合同号:编 号:工程部位: 13#墩铁路边坡日 期:承包监理工程录沉降位移观察记录表合同号:编 号:工程部位: 13#墩铁路边坡日 期:承包监理工程录沉降位移观察记录表合同号:编 号:工程部位: 13#墩铁路边坡日 期:承包监理工程录沉降位移观察记录表合同号:编 号:工程部位: 13#墩铁路边坡日 期:承包监理工程录沉降位移观察记录表合同号:编 号:工程部位: 13#墩铁路边坡日 期:承包监理工程录沉降位移观察记录表合同号:编 号:工程部位: 13#墩铁路边坡日 期:承包监理工程录沉降位移观察记录表合同号:编 号:工程部位: 13#墩铁路边坡日 期:承包监理工程录沉降位移观察记录表合同号:编 号:工程部位: 13#墩铁路边坡日 期:承包监理工程录沉降位移观察记录表合同号:编 号:工程部位: 13#墩铁路边坡日 期:承包监理工程录沉降位移观察记录表合同号:编 号:工程部位: 13#墩铁路边坡日 期:承包监理工程录沉降位移观察记录表合同号:编 号:工程部位: 13#墩铁路边坡日 期:承包监理工程录沉降位移观察记录表合同号:编 号:工程部位: 13#墩铁路边坡日 期:承包监理工程录沉降位移观察记录表合同号:编 号:工程部位: 13#墩铁路边坡日 期:承包监理工程录沉降位移观察记录表合同号:编 号:工程部位: 13#墩铁路边坡日 期:承包监理工程录沉降位移观察记录表合同号:编 号:工程部位: 13#墩铁路边坡日 期:承包监理工程录沉降位移观察记录表合同号:编 号:工程部位: 13#墩铁路边坡日 期:承包监理工程录沉降位移观察记录表合同号:编 号:工程部位: 13#墩铁路边坡日 期:承包监理工程录沉降位移观察记录表合同号:编 号:工程部位: 13#墩铁路边坡日 期:承包监理工程录沉降位移观察记录表合同号:编 号:工程部位: 13#墩铁路边坡日 期:承包监理工程录沉降位移观察记录表合同号:编 号:工程部位: 13#墩铁路边坡日 期:承包监理工程沉降位移观察记录表合同号:编 号:工程部位: 13#墩铁路边坡日 期:记录:计算:施工负责人:监理:设备管理单位:承包监理工程录沉降位移观察记录表G108国道青白江段改扩建工程B段合同号:编 号:工程部位: 13#墩铁路边坡日 期:承包监理工程录沉降位移观察记录表合同号:编 号:工程部位: 13#墩铁路边坡日 期:承包监理工程录沉降位移观察记录表合同号:编 号:工程部位: 13#墩铁路边坡日 期:承包监理工程录沉降位移观察记录表合同号:编 号:工程部位: 12#、13#墩铁路边坡日 期:承包监理工程录G108国道青白江段改扩建工程B段沉降位移观察记录表合同号:编 号:工程部位: 12#、13#墩铁路边坡日 期:承包监理工程录沉降位移观察记录表G108国道青白江段改扩建工程B段合同号:编 号:工程部位: 12#、13#墩铁路边坡日 期:承包监理工程录沉降位移观察记录表合同号:编 号:工程部位: 12#、13#墩铁路边坡日 期:承包监理工程录沉降位移观察记录表合同号:编 号:工程部位: 12#、13#墩铁路边坡日 期:承包监理工程录沉降位移观察记录表合同号:编 号:工程部位: 12#、13#墩铁路边坡日 期:承包监理工程录沉降位移观察记录表合同号:编 号:工程部位: 12#、13#墩铁路边坡日 期:承包监理工程录沉降位移观察记录表合同号:编 号:工程部位: 12#、13#墩铁路边坡日 期:承包监理工程录沉降位移观察记录表合同号:编 号:工程部位: 12#、13#墩铁路边坡日 期:承包监理工程录沉降位移观察记录表合同号:编 号:工程部位: 12#、13#墩铁路边坡日 期:承包监理工程录沉降位移观察记录表合同号:编 号:工程部位: 12#、13#墩铁路边坡日 期:。
附件三:附表附表1 工程沉降变形观测准备工作检查记录表新建合肥至福州铁路(闽赣段)工程沉降变形观测准备工作检查记录表注:本表一式4份,施工、设计、监理和建设单位各1份。
附表2 工程沉降变形观测结果评估验收记录表新建合肥至福州铁路(闽赣段)工程沉降变形观测结果评估验收记录表注:本表一式5份,施工、设计、监理、咨询和建设单位各1份。
附表3 路基沉降水准测量记录表水准测量记录表(路基)附表4 路基沉降观测记录表(沉降观测桩)路基沉降观测记录表(沉降观测桩)工程名称:测量单位:测量负责人:复核:监理:年月日附表5 路基观测桩沉降量记录汇总表沉降观测记录表——路基观测桩沉降量记录汇总表断面里程:第页共页55附表6 路基沉降观测记录表(沉降板)路基沉降观测记录表(沉降板)测量:复核:监理:年月日附表7 路基沉降板观测记录汇总表(沉降板)沉降观测记录表——路基沉降板观测记录汇总表断面里程:第页共页单位:整理:复核:年月日57附表8 路基沉降板观测记录表(剖面管)路基沉降观测记录表(剖面管)填表:复核:监理:日期:58附表9 路基分层沉降观测记录表沉降观测记录表——路基分层沉降观测记录表里程段落:观测日期:第页共页2.每次磁环测量均需重复测量两次,并以磁环下部响声为准。
单位:测量:记录:年月日时59附表10 路基分层沉降观测记录汇总表沉降观测记录表——路基分层沉降观测记录汇总表断面里程:第页共页60附表11 路基边桩位移观测记录表沉降观测记录表——路基边桩位移观测记录表里程段落:观测日期:第页共页年月日时附表12 路基边桩位移观测记录汇总表沉降观测记录表——路基边桩位移观测记录汇总表断面里程:第页共页附表13 过渡段沉降量记录汇总表沉降观测记录表——过渡段沉降量记录汇总表第页共页附表14 桥梁墩台沉降观测汇总表桥梁墩(台)沉降观测汇总表桥梁名称_____桥梁起止里程_____填表___复核___附表15 桥梁墩(台)沉降量记录表沉降观测记录表——桥梁墩(台)沉降量记录表桥梁名称:观测日期: 第页共页附表16 桥梁墩(台)沉降量记录汇总表沉降观测记录表——桥梁墩(台)沉降量记录汇总表桥梁名称:墩(台)编号:墩(台)里程:第页共页附表17 涵洞沉降量记录表沉降观测记录表——涵洞沉降量记录表里程段落:观测日期: 第页共页附表18 涵洞沉降量记录汇总表沉降观测记录表——涵洞沉降量记录汇总表涵洞中心里程:涵洞孔径(m):涵长(m):第页共页附表19 隧道沉降量记录表沉降观测记录表——隧道沉降量记录表隧道名称:观测日期:第页共页附表20 隧道沉降量记录汇总表沉降观测记录表——隧道沉降量记录汇总表隧道名称:断面里程:第页共页附表21 横剖面沉降测试记录表横剖面沉降测试记录表填表: 日期: 复核: 日期: 监理: 日期。
基坑沉降观测记录表
建筑物沉降、变形观测测量记录
湘质监统编施2002—21
注:如果竣工验收时观测点的沉降、变形尚未稳定,应交待清楚有关继续观测直至稳定为止的事项。
固定水准点应按规定设置、保湘质监统编
建筑物沉降、变形观测测量记录(续表)施2002—21
第1次观测:共12页第2页
湘质监统编
建筑物沉降、变形观测测量记录(续表)施2002—21
第2次观测:共12页第3页
湘质监统编
建筑物沉降、变形观测测量记录(续表)施2002—21
第3次观测:共12页第4页
湘质监统编
建筑物沉降、变形观测测量记录(续表)施2002—21
第4次观测:共12页第5页
湘质监统编
建筑物沉降、变形观测测量记录(续表)施2002—21
第5次观测:共12页第6页
湘质监统编
建筑物沉降、变形观测测量记录(续表)施2002—21第6次观测:共12页第7页
湘质监统编
建筑物沉降、变形观测测量记录(续表)施2002—21第7次观测:共12页第8页
湘质监统编
建筑物沉降、变形观测测量记录(续表)施2002—21第8次观测:共12页第9页
湘质监统编
建筑物沉降、变形观测测量记录(续表)施2002—21第9次观测:共12页第10页
湘质监统编
建筑物沉降、变形观测测量记录(续表)施2002—21第10次观测:共12页第11页
湘质监统编
建筑物沉降、变形观测测量记录(续表)施2002—21第11次观测:共12页第12页。