电机安装尺寸表
- 格式:doc
- 大小:449.50 KB
- 文档页数:9
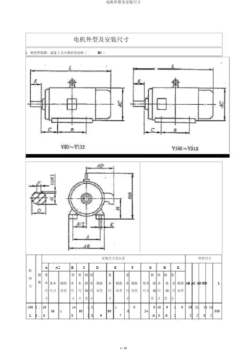
电机外型及安装尺寸1 机座带底脚、端盖上无凸缘的电动机(B3 )安装尺寸及公差外形尺寸A A/2BCDEFGH K机极基基基极基基基极基极基座数本基本极限本本限本极限本极限本极限基本限本限本极限 AB AC AD HD L 号尺尺寸误差尺尺偏尺误差尺误差尺误差尺寸偏尺偏尺误差寸寸寸差寸寸寸差寸差寸100 2 、 1614± 2±0010010202118 24 80±6360824380 L 4 、 00 2 897-0.0-0.25505112 61995 M0132S211326108 M160M2、 25127 1604、 4L6、1808M27139. 18095 L20031159 L8225 4 、S82 35178 225 64 、M6、14706211 50421489380133131780282101048137162582204224±11±1123403142.1827184509±301351205495356028614±15360008314511±14922503631951653324241926400500528272131475050551533332638605055565015670353828435050710394231477755055820194347345381555508458021250 4 、 4020334160825M 6 、 698± 6058 8451214±280 4 、36000S 6 、±1.0 87267.505 820 45228.19280-1.750610280241585803M94 、72067.6 、505495138579300555221000 455584164000010582610124258580 315403S 4 、6817201276 、710020 82614101312585080331550452131274645786 254M 4 、 87 6058 4 5 6 56 、817271134 002082614101312585080 315503L 4 、8817201346 、710020 822 机座带底脚、端盖上有凸缘的电动机(B35 )安装尺寸及公差AA/2 B C D E F GH K极N 凸基基基机极基基基基限基基极基极极缘本本本基座数本本极限本本极限本极限极限本限本限限M号号尺尺尺本极限尺尺误差尺尺偏误差尺误差误差尺偏尺偏偏寸寸寸尺误差寸寸寸寸差寸寸差寸差差寸外形尺寸凸缘A A A HP S T孔LB C D D数10216141020 21 1824、080633800L005505 FF120900002118254±0.±60 ±0.82411611165、19148-011-0-0.500 4 4 24 24 1926 400 95570 237252M6000436.22.54313500513FF222110814893+0.0 801331326 233028 27 2131 4752S65、 6 1342M、1660M 、2512716840L FF318000M27 139 189.5 0L20FF331159 0L508224、0818025000505175158022160501041371633 33 2638 25822005556504130253524±11 ±0.500067011234043142.1835 38 284327184505050710930 1351492035 30 ±4039 42 31 47 775±0.535600016050557528614 ±0.1538205S8FF42351780046 22、5M6、82425、402030M66、FF58200428、45 228 0S67.5、8282600508511 ±0.1494314504362295311653301±841134 16259 8614±0.0505058±1.3600197267.288-10505052.0416 1 0581940 35 ±0.0 450 0 18 019-0.52250 45 ±0.0 5540 0 20 081543 47 34 535 5 505845849 51 38 57 9300 5 5510055 58 41 640 0 001050M950434、07267.6、50552861124 25858043314405S、608172127 671、0020 5286141131 25850804331FF6 4 5045 2131260 55 ±0.0 66 274 64 57 865M 00 、825467 60580 0 22 0 4 4 5 6 58172134 671、00205286141131 258508043314505L、808172134 671、0020 5283 机座不带底脚、端盖上有凸缘的电动机(B5 )安装尺寸及公差外形尺寸机凸D E F G M N P S T凸极基基基基座缘缘数本极限基本极限本极限基本极限基本基本极限基本本本AC AD HF L 号号孔尺误差尺寸误差尺误差尺寸误差尺寸尺寸误差尺寸尺尺数寸寸寸寸100L 2 、215 1 80 2 45 3 80 FF1652860824215 180250112M 4 、600240 1 90 2 65 4 00132S 2 、±15 44475FF26538801033265 230300275 2 10 3 15 132M 4 、515160M 6 、8160L421237FF300300 250350180M48110±14180L400 19 5 200L FF350551649350 300±225S 4 、8 60140±18532 55110±1649FF400400 350±450225M 4 、60140±18536 、8605 335 2 65 3 85650670 380 2 85 4 30710420 3 15 4 80 7 75820815 8 475 3 45 5 358454 机座不带底脚、端盖上有凸缘、轴伸向下的电动机(V1 )安装尺寸及公差外形尺寸机凸D E F G M N P S T 凸极缘座缘基基基基数极限基本极限极限基本极限基本基本极限基本AC AD HF L 号号本本本本孔误差尺寸误差误差尺寸误差尺寸尺寸误差尺寸尺尺尺尺数寸寸寸寸180M 2 、730 FF30048143002503503802 85 5 00180L 4 、+0.002 110±4770 200L FF3506、8 551649350300±4004203 15 5 50 850 225S4、8 60140±18539102 55110±1649905FF4000400350±4504753 45 6 10225M 4 、9356、8 6053218250M 4 、19 55153 85 6 50 1 0356、8 65582280SFF500 280M315S315M FF600 315L 4 、1406 、8752026518584 、075206 、8±26518584 、08017022716 、826514018584 、08017022716 、826514018584 、06 、88017022711120500 450 ±0.020 550580 4 10 7 2011708136013901460600 550 ±0.022 660 24 6645 5 76 9 00149014601490。
机座带底脚、端盖上无凸缘的电动机安装尺寸机座号极数安装尺寸及公差外形尺寸Overall dimensionA A/2BCDEF G1)H K2)ABACADHDL 基本尺寸基本尺寸极限偏差基本尺寸基本尺寸极限偏差基本尺寸极限偏差基本尺寸极限偏差基本尺寸极限偏差基本尺寸极限偏差基本尺寸极限偏差基本尺寸极限偏差位置度公差80M 2、4125±10050 ±19+40 ±60 0 80 1+ф16517515017529092、4、6 1715258 20 9111130S 40 0 00 6 4 00 0 0 80 95 60 95 159 0L1253401 00L160814063±286±2410012+2052151802453801 12M190951407112245240190265400132S2、4、6、8216108140 8938++81331322802752103154751 32M178515160M 254127±210 108±42110±123716015ф3303352653856051 60L254650180M 279241 12148141803553802854306701 80L2797102 00L31815930513355++164920019+395420315475775225S4、8 356178286149±6140±18532254354753455308202 2 351±14825M 11 5 10 6 9 154、6、8 6140±18538452 50M2 406203±34916825024ф490515385575930 4、6、8 6558280S245736819028055058041064010004、6、87522 80M241965180 58 1050 4、6、8752315S25 0825440621665180 583152874464557686512404、6、8、108170220 7112703 15M245765140180 581310 4、6、8、108170220 7113403 15L2 50865140180 581310 4、6、8、8120 7110 0 70 2 1 340=D-GE,GE的极限偏差对机座号80为(+),其余为(+)。
使用NC 电机型名额定容量(30分/连续)额定扭拒(NM)马力HP法兰尺寸法兰定位园直径4个螺丝孔(m~Ф)螺丝孔中心对角直径轴心直径轴心样式电机法兰总长度最高转速安装样式重量E68/64S SJ-PF2.2-01(F) 2.2KW/1.5KW 9.55NM 3.5HP 174mm Ф150mm 4-Ф12mm Ф185mm Ф28mm 光直轴300mm 10000RPM 法兰安装25kg E68/64S SJ-PF3.7-01Z(F)3.7KW/2.2KW14NM5HP174mm Ф150mm 4-Ф12mm Ф185mm Ф28mm 光直轴330mm 12000RPM 法兰安装30kg E68/64S SJ-PF5.5-01Z-S01(F)5.5KW/3.7KW 23.5NM 7HP 174mmФ150mm 4-Ф12mm Ф185mm Ф28mm 光直轴425mm 12000RPM 法兰安装49kg E68/64S SJ-PF7.5-01(F)7.5KW/5.5KW 35NM 10HP 204mm Ф180mm 4-Ф15mm Ф215mm Ф32mm 带键槽440mm 8000RPM法兰安装60kgE68/64S SJ-PF7.5-01Z-S03(F)7.5KW/5.5KW 35NM10HP 204mmФ180mm 4-Ф15mm Ф215mm Ф32mm 光直轴440mm 12000RPM 法兰安装60kg E68/64S SJ-PF11-01Z(F)11KW/7.5KW 47.8NM 15HP 204mm Ф180mm 4-Ф15mm Ф215mm Ф48mm 带键槽490mm 8000RPM 法兰安装70kg E68/64S SJ-V15-01ZM(F)15KW/11KW70NM20HP 266mmФ230mm 4-Ф15mm Ф265mm Ф48mm 带键槽469.5mm 8000RPM 法兰安装110kg E68/64S SJ-V18.5-01ZM(F)18.5KW/15KW 95.5NM 26HP 266mmФ230mm 4-Ф15mm Ф265mm Ф48mm 带键槽469.5mm 8000RPM 法兰安装110kg E68/64S SJ-V22-01ZM-S01(F)22KW/18.5KW 118NM 30HP 266mm Ф230mm 4-Ф15mm Ф265mm Ф55mm 带键槽539.5mm 8000RPM 法兰安装135kg E68/64S SJ-V26-01M(F)26KW/22KW 140NM 37HP 266mm Ф230mm 4-Ф15mm Ф265mm Ф55mm 带键槽585.5mm 6000RPM法兰安装155kgM70/M700SJ-V5.5-14T(F) 5.5KW/3.7KW 23.5NM 7HP 174mmФ150mm 4-Ф12mm Ф185mm Ф28mm 光直轴357mm 10000RPM 法兰安装30kg M70/M700SJ-V7.5-01ZT(F)7.5KW/5.5KW 35NM10HP 204mmФ180mm 4-Ф15mm Ф215mm Ф32mm 光直轴440mm 12000RPM 法兰安装60kg M70/M700SJ-V11-01ZT(F)11KW/7.5KW 47.8NM 15HP 204mm Ф180mm 4-Ф15mm Ф215mm Ф48mm 带键槽490mm 8000RPM 法兰安装70kg M70/M700SJ-V15-01ZT(F)15KW/11KW70NM20HP 266mmФ230mm 4-Ф15mm Ф265mm Ф48mm 带键槽469.5mm 8000RPM 法兰安装110kg M70/M700SJ-V18.5-01ZT(F)18.5KW/15KW 95.5NM 26HP 266mmФ230mm 4-Ф15mm Ф265mm Ф48mm 带键槽469.5mm 8000RPM 法兰安装110kg M70/M700SJ-V22-01ZT-S01(F)22KW/18.5KW 118NM 30HP 266mmФ230mm 4-Ф15mmФ265mmФ55mm带键槽539.5mm8000RPM法兰安装135kg做成:宇松公司谢宏昌09-6-17主轴电机(SJ-PF/V/DJ/D系列)安装规格参数表。
电机外型及安装尺寸1 机座带底脚、端盖上无凸缘的电动机(B3)机座号极数安装尺寸及公差外形尺寸A A/2BCDEFGH KAB AC AD HD L 基本尺寸基本尺寸极限偏差基本尺寸基本尺寸极限偏差基本尺寸极限偏差基本尺寸极限偏差基本尺寸极限偏差基本尺寸极限偏差基本尺寸极限偏差基本尺寸极限偏差100L 2、4、160 80±0.5140 63 ±228+0.009-0.00460±0.378-0.03624-0.100 0-0.12-0.4205 215 180 245 380112M 190 95 140 70 112 245 240 190 265 4006、8-0.052315L 250865 140 18-0.04358 13104、6、8 80 170 22-0.05271 13402 机座带底脚、端盖上有凸缘的电动机(B35)3 机座不带底脚、端盖上有凸缘的电动机(B5)机 座 号凸 缘 号极数 安装尺寸及公差外形尺寸DEFGMNP S T凸缘孔数AC AD HF L基本尺寸极限 偏差 基本尺寸 极限 偏差 基本尺寸极限 偏差 基本尺寸 极限偏差 基本尺寸 基本尺寸 极限 偏差 基本尺寸 基本尺寸 基本尺寸100LFF165 2、4、6 28 +0.009 -0.004 60 ±0.37 8 0 -0.036 24 0 -0.2 215 180 +0.016-0.013 250 15 4 4215 180 245 380 112M 240 190 265 4004 机座不带底脚、端盖上有凸缘、轴伸向下的电动机(V1)机座号凸缘号极数安装尺寸及公差外形尺寸D E F G M N P S T 凸缘孔数AC AD HF L 基本尺极限偏差基本尺寸极限偏差基本尺极限偏差基本尺寸极限偏差基本尺寸基本尺寸极限偏差基本尺寸基本尺基本尺。
机座带底脚、端盖上无凸缘的电动机安装尺寸机座号极数安装尺寸及公差外形尺寸Overall dimensionA A/2BCDEF G1)H K2)AB AC AD HD L 基本尺寸基本尺寸极限偏差基本尺寸基本尺寸极限偏差基本尺寸极限偏差基本尺寸极限偏差基本尺寸极限偏差基本尺寸极限偏差基本尺寸极限偏差基本尺寸极限偏差位置度公差80M 2、4 125 62.5±0.50 100 50±1.519+0.009-0.00440±0.3106-0.030-0.03615.5-0.1080-0.510+0.360ф1.0165 175 150 175 29090S2、4、6 140 7010056 24 50820-0.2090 180 195 160 19531590L 125 340 100L 160 80 140 63±2.0 28 60±0.3702410012+0.430205 215 180 245 380112M 190 95 140 70 112 245 240 190 265 400 132S2、4、6、8 216 10814089 38+0.018+0.00280 10 33 132 280 275 210 315475132M 178 515160M254 127 ±0.75 210108±3.042110 ±0.43012 0-0.04337 16015ф1.5 330 335 265 385605160L 254 650 180M 279 139.5 241 121 48 14 42.5 180 355 380 285 430 670180L 279 710200L 318 159 305 133 55+0.030+0.011 16 49 20019+0.520395 420 315 475 775225S 4、8356 178 286149±4.060 140 ±0.500 18 53225 435 475 345 530820225M231155 110 ±0.430 16 49 8154、6、860140±0.5001853845250M2406 203±1.00349 168 25024ф2.0490 515 385 575 930 4、6、865 58280S2457 228.5 368190 280-0.10550 580 410 64010004、6、8 75 20-0.05267.5280M241965 18-0.043581050 4、6、8 75 20-0.05267.5315S2508 254 40621665 18-0.04358315 28 744 645 576 86512404、6、8、10 80 170 22-0.05271 1270315M245765 140 18-0.04358 1310 4、6、8、10 80 170 22-0.05271 1340315L250865 140 18-0.04358 1310 4、6、8、10 80 170 22-0.05271 13401.G=D-GE,GE的极限偏差对机座号80为(+0.10),其余为(+0.20)。
2.K孔的位置度公差以轴伸的轴线为基准。
机座不带底脚、端盖上有凸缘的电动机安装尺寸机座号凸缘号极数安装尺寸及公差外形尺寸Overall dimensionD E F G1)MNP2)R3)S4)T凸缘孔数AC AD HF L 基本尺寸极限偏差基本尺寸极限偏差基本尺寸极限偏差基本尺寸极限偏差基本尺寸极限偏差基本尺寸极限偏差基本尺寸极限偏差位置度公差基本尺寸极限偏差80MFF1652、4 19+0.009-0.004 40±0.3106-0.03015.5-0.10165 130+0.014-0.011200±1.5 12+0.430ф1.03.5-0.1204175 150 185 29090S2、4、6 24 508-0.03620-0.20195 160 19531590L 340 100LFF215 28 60±0.370 24 215 180 250±2.0 15ф1.54215 180 245 380112M 240 190 265 400 132SFF2652、4、6、8 38+0.018+0.00280 10 33 265 230+0.016-0.013300 275 210 315475132M 515 160MFF30042110 ±0.430 12-0.04337300 250 350±3.019+0.5205335 265 385605160L 650 180M48 14 42.5 380 285 430670 180L 710200L FF350 55 +0.030+0.011 16 49 350 300 ±0.016 400 420 315 480 775225S FF400 4、8 60 140 ±0.500 18 53 400 350 ±0.018 450 ±4.0 8 475 345 535 820225M2 55 110 ±0.430 16 49 8154、6、8 60 140 ±0.500 18 53 8451.G=D-GE,GE的极限偏差对机座号80为(+0.10),其余为(+0.20)。
2.P 尺寸为最大极限值。
3.R 为凸缘配合面至轴伸肩的距离。
4.S 孔的位置度公差以轴伸的轴线为基准。
立式安装,机座不带底脚、端盖上有凸缘,轴伸向下的电动机安装尺寸机座号凸缘号极数安装尺寸及公差D E F G1)MNP3)R4)S2)T凸缘孔数AC AD HD L 基本尺寸极限偏差基本尺寸极限偏差基本尺寸极限偏差基本尺寸极限偏差基本尺寸极限偏差基本尺寸极限偏差基本尺寸极限偏差位置度公差基本尺寸极限偏差180M FF3002、4、6、8 48+0.018+0.002 110 ±0.43014-0.04342.5-0.20300 250+0.016-0.013350±3.019+0.520ф1.55-0.1204380 285 500730180LFF350770200L 55+0.030+0.011 16 49 350 300 ±0.016 400 420 315 550 850225SFF400 4、8 60 140 ±0.500 18 53400 350 ±0.018 450±4.0 8475 345 610910225M2 55 110 ±0.430 16 49 9054、6、860140±0.500 1853935250MFF5002500 450 ±0.020 550515 385 650 1035 4、6、865 58280S2580 410 720 11204、6、8 75 20-0.05267.5280M2 65 18-0.043581170 4、6、8 75 20-0.05267.5315SFF6002 65 18-0.04358600 550 ±0.022 660 24ф2.06-0.150645 576 9001360 4、6、8、10 80 170 22-0.05271 1390315M2 65 140 18-0.04358 1460 4、6、8、10 80 170 22-0.05271 1490315L2 65 140 18-0.04358 1460 4、6、8、10 80 170 22-0.05271 14901.G=D-GE,GE的极限偏差对机座号80为(+0.10 ),其余为(+0.20 )。
Y系列技术数据:。