1、消防泵电气控制原理图说明
- 格式:doc
- 大小:29.50 KB
- 文档页数:2
Design of Fire Pump Linkage Control—Interpretation of Graphical Representation of“Code for Design of Automatic Fire Alarm System ”WANG Hao (China Institute of Building Standard Design &Research ,Beijing 100048,China )汪浩(中国建筑标准设计研究院有限公司,北京市100048)消防水泵的联动控制设计———解读《〈火灾自动报警系统设计规范〉图示》Abstract :The paper gives an introduction to partial contents related to linkage control in the national building standard disign 14X505-1Graphical Representation of“Code for Design of AutomaticFire Alarm System ”,with the linkage control of the automatic wet pipe sprinkler system and the wet fire hydrant system as examples.Keywords :automaticfirealarmsystem ;automatic sprinkler system ;hydrant system ;catenation control ;linkage control ;catenate pump start ;pump startup by linkage control ;direct pump start摘要:以湿式自动喷水灭火系统和湿式消火栓系统的联动控制为例,介绍国家建筑标准设计14X505-1《〈火灾自动报警系统设计规范〉图示》中关于联动控制的部分内容。
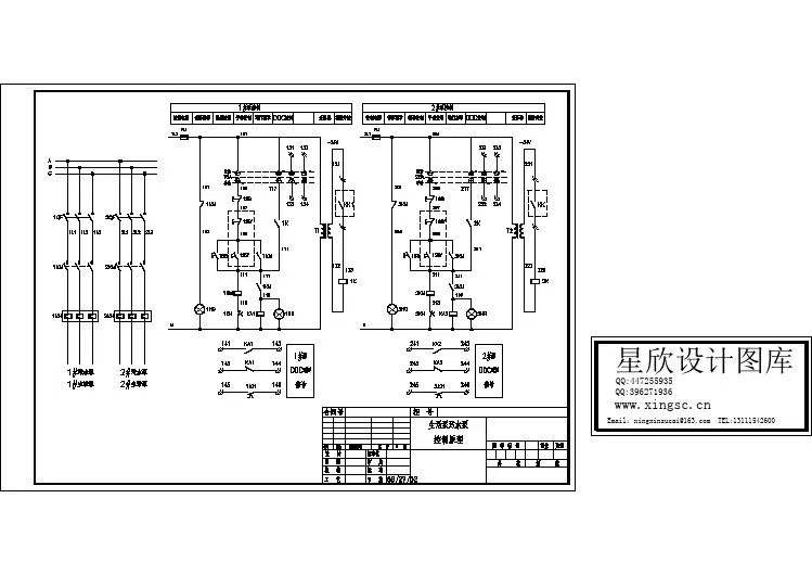
消防泵电气控制原理图说明手动状态1#泵启动:转换开关处在手动状态时,端子(11)和(12)接通。
按下手动启动按钮1SB2,二个继电器、ZJ3、1SJ和二个接触器1KM、3KM的线圈同时得电吸合。
1KM常开点闭合、21和25接通,实现自锁。
电动机实现星接启动。
1#泵启动指示灯UN1点亮。
调整时间继电器1SJ常闭点延时15秒断开,其常开点同时闭合。
1SJ常闭点断开后、3KM线圈失电,其常闭点闭合、端子35和37接通。
2KM线圈得电吸合,其常开点闭合。
端子25和35接通、实现自锁。
其常闭点断开后端子29失电、时间继电器1SJ线圈失电复原。
电动机角接运行。
1#泵运行指示灯RD1点亮。
接触器3KM和2KM利用常闭点互锁、保证两个线圈不能同时吸合。
1#泵停止:按下手动停止按钮1SB1后,ZJ3、1KM、2KM线圈失电,接触器主触点断开,电动机停止运行。
ZJ3线圈失电后,继电器常闭点闭合,1#泵停止指示灯GN1点亮。
2#泵启动:转换开关处在手动状态时,端子(19)和(20)接通。
按下手动启动按钮2SB2后,二继电器ZJ4、2SJ和二接触器1C、3C同时只合。
其动作原理与1#泵相同。
2#泵停止:按下手动停止按钮2SB1后,ZJ4、1C、2C线圈失电,接触器主触点断开,电动机停止运行。
ZJ4线圈失电后,继电器常闭点闭合,2#泵停止指示灯GN2点亮。
自动状态1#泵自动、2#泵备用。
1#泵自动启动:将消火栓按钮或自动报警联动控制器上的控制信号接在控制柜端子3和5上。
按下消火栓按钮或自动报警控制信号触发,端子3和5连通,继电器线圈ZJ1得电吸合,报警信号灯R点亮。
由于转换开关处于1#泵自动位置,端子(9)和(10)连通。
ZJ1吸合后其常开点闭合,端子3、7、(9)、(10)59、25连通。
电动机实现星启动角运转,其动作原理同手动。
消火栓按钮或报警信号复位,端子3和5断开,线圈ZJ1失电,其常开点断开。
线圈ZJ3、1KM、2KM失电,电动机停止运行。
产品型号CDFX-22CDFX-37CDFX-55CDFX-75CDFX-90CDFX-110额定功率22KW 37KW 55KW 75KW 90KW 110KW输入电压外形及安装尺寸消防电气控制装置(消防泵自动巡检控制设备)产品特征消防电气控制装置(消防泵自动巡检控制设备)系统,是目前真正能替代人工工频试水的系统。
完全符合GB16806-2006《消防联动控制系统》国家标准的设计、制造。
我公司消防泵自动巡检控制设备具有以下特点:多状态人机界面——手动巡检、自动巡检多种巡检模式可选。
操作简单,维护方便;电源缺相、错相、断相保护、巡检故障保护、变频状态保护;声光故障报警,并指示故障类型;系统自动检测。
主要用途及适用范围:消防电气控制装置(消防泵自动巡检控制设备)主要适用于高层建筑、宾馆、商厦、各类民用建筑、地铁、火车站、工矿企业以及其他重要部门的消防要求,它既可作喷淋系统、消火栓系统的供水设施,也可广泛使用于生活供水系统。
技术参数380V/50Hz 610mm×800mm×2000mm序号检验项目判定标准1自动运行方式功能实验用功能性试验装置发射24V直流电压,并按照设定值执行预定动作安装程序、方法及注意事项本设备为三相供电,进线端子在塑壳断路器上端,地线及零线端子在设备底部。
对于动力电缆的连接必须按照电工工艺规范进行施工,连接端子的螺栓必须紧固不得虚接,以免发生电气事故。
控制电缆必须使用专用电缆,与端子连接要用专用铜电缆线耳。
设备功能测试及验收检测方法将手自动转换开关旋到自动控制模式,观察并记录试验执行预定动作情况,负载的运行情况,声、光指示情况。
在安装、使用前务必详阅本说明书;接地端子必须可靠接地,否则有触电危险机器搬运时应小心轻放;接线前请确认电源处于关断状态,否则有触电危险;应由专业电气工程人员施工,调试等;设备调试前,必须清理设备内的灰尘和金属异物设备基础、安装条件及安装的技术要求设备应安装在环境温度-10º~+55ºC的场所。
课程设计任务书(B)题目消防水泵PLC电气控制系统设计(OMRON CPM1A)学院(部) 电控学院专业电气工程及其自动化班级32040901学生姓名学号6 月11 日至 6 月17 日共 1 周指导教师(签字)系主任(签字)2012年 5 月26 日目录一.设计内容及要求 (3)二.设计原始资料 (3)三、主电路图、控制电路图、电气原理图及其工作原理 (3)四、计算说明及元件选型 (5)1、接触器的选择 (5)2、热继电器的选择 (5)3、空气开关的选择 (5)4、控制柜的选择 (5)5、信号继电器的选择 (5)6、其他元件的选择 (5)五、PLC的选择及I/O分配表 (6)六、PLC外部接线图 (6)七、梯形图 (7)八、指令系统 (7)九、柜内外安装布置图 (8)十、元件明细表 (8)十一、图纸部分 (8)一.设计内容及要求通过对电气控制系统的设计,掌握电气控制系统设计的一般方法,能够设计出满足控制要求的电气原理图,以及安装布置图、接线图和控制箱的设计,具有电气控制系统工程设计的初步能力。
根据系统的控制要求,采用OMRON CPM1A PLC为中心控制单元,设计出满足控制要求的控制系统。
二.设计原始资料1. 2台消防泵,7.5KW,互为备用。
当工作泵出现故障时,备泵自投。
2. 发生火灾时,打开消火栓箱门,击碎面板玻璃,起动消防泵。
手动停泵。
3. 当消防给水管网水压过高时,停泵并报警。
4. 当低位消防水池缺水,停泵并报警。
5. 自动、手动、检修工作方式。
6. 设置必要的各种电气保护。
三、主电路图、控制电路图、电气原理图及其工作原理根据设计要求绘出电气原理图,见附图1-1,1-2.工作原理:两台泵互为备用,备用泵自动投入,正常运行时电源开关QK1,QK2,S1,S2均合上,S3为水泵检修双投开关,不检修时放在运行位置,SB10~SBn为各消火栓箱消防起动按钮,无火灾时,按钮被玻璃面板压住,其常开触头已经闭合,中间继电器KA1通电,消火栓泵不会起动。
AK200-FJ-I防排烟风机控制器使用说明书单速目录1.产品概述 (1)2.工作条件 (1)3.运输与存储条件 (1)4.产品型号定义 (1)5.产品功能及使用 (2)6.端子定义 (4)7.外形尺寸 (6)8.开孔尺寸 (7)9.典型应用图纸 (9)1.产品概述AK200-FJ-I系列防排烟风机控制器适用于双速风机控制场合,产品设计简单、结构紧凑、安装方便等特点。
控制器与显示面板采用9针连接线进行连接,使用简单方便。
2.工作条件1)环境温度0-+40℃2)相对湿度90%以下(电控部分)3)周围环境无爆炸危险的介质,无腐蚀金属和破坏绝缘的潮湿气体及尘埃。
3.运输与存储条件a)运输在搬运过程中,应小心轻放,严格遵照包装箱上的警示标志;在运输时应严格按包装箱上所标示的方向放置,以免将器件振坏。
b)存储设备存储时放置方向应严格按包装箱上所标示的方向放置;包装箱应垫离地面12cm,距离墙壁、热源、冷源、窗口或空气入口至少50cm。
贮存环境温度为0~60℃,相对湿度为20%~80%,仓库内不允许有各种有害气体、易燃、易爆的物品及有腐蚀性的化学物品,并且应无强烈的机械振动、冲击和强磁场作用。
4.产品型号定义命名规则:AK 200 – FJ – III-双速I-单速FJ-防排烟风机控制器200 200系列AK -控制器5.产品功能及使用面板指示说明:1)电源指示:电源正常时此灯点亮。
2)电源故障:当相序保护器发出故障信号后,此灯点亮。
3)排烟起动:消防排烟起动时点亮。
4)自动指示:自动运行时点亮,手动状态时熄灭。
5)联动指示:当有远程联动信号时,联动指示灯点亮。
6)运行反馈:当排烟起动后有风压反馈信号输入,则此灯点亮。
7)风机故障:风机故障发生故障时此灯点亮。
数码管:用于显示电流和代码。
面板按键说明:1)手动、自动按钮:选择手动/自动控制模式。
2)向上键。
在参数设置界面,按【向上键】键为参数值加1,长按【向上键】键为参数值快速增加;3)向右键: 在参数设置界面,按【向右键】键为切换参数菜单前进;4)排烟起动:排烟起动。
【图集解析】解析国标图集10D303《常用电机控制电路图》——专业技术要求在JGJ 16-2008《民用建筑电气设计规范》中强制性条文第7.6.4条规定:“配电线路的过负荷保护,应在过负荷电流引起的导体温升对导体的绝缘、接头、端子或导体周围的物质造成损害前切断负荷电流。
对于突然断电比过负荷造成的损失更大的线路,该线路的过负荷保护应作用于信号而不应切断电路。
”从第7.6.4条可以看出,针对10D303中的消防风机(消防排烟风机、加压送风机等)和消防水泵(消火栓用消防泵、自动喷洒用消防泵和消防稳压泵),过负荷保护应作用于信号而不应作用于切断电路。
1 消防风机过负荷保护只报警不跳闸的实现图8为两用单速风机(平时和消防均使用的风机,风机不可调速)电路图(10D303第21、22页)XKDF-1。
从图8控制原理中可以看出,风机手动控制和平时DDC自动控制,热继电器常闭触点BB参与控制,风机过负荷后,热继电器常闭触点BB断开,接触器QAC线圈失电,主回路接触器QAC主动合触点断开,切断了风机主电路。
而在消防状态下,无论由消防联动(模块)控制KA1,还是由消防控制室手动旋转开关“SF” 应急控制,热继电器常闭触点BB不参与控制,控制回路躲过热继电器常闭触点BB,风机过负荷,不会使接触器QAC线圈失电,不切断风机主电路。
但风机过负荷时,热继电器常开触点BB闭合,会使声光报警(黄色信号灯PGY 点亮,蜂鸣器PB报警)。
因此在消防状态下,实现了风机过负荷只作用于信号而不作用于切断电路。
图中声响报警可以通过复位按钮“ SR ”解除。
2 消防水泵过负荷保护只报警不跳闸的实现一般工程设计中消防风机无备用风机,而消防水泵一般是一台工作一台备用(或两用一备)。
GB 50055-93《通用用电设备配电设计规范》第2.4.6条的条文说明中有这么一句话:“一、过载是导致电动机损坏的主要原因。
……在为编制原规范而进行的调查中,收集到国内……以至美国《电气建设与维护》杂志称,大约电动机故障的95 % 是由过载产生的过热所致……二、……此外,某些场合下断电的后果比过载运行更严重,如没有备用机组的消防泵,应在过载情况下坚持工作。
【图集解析】解析国标图集10D303《常用电机控制电路图》——专业技术要求在JGJ 16-2008《民用建筑电气设计规范》中强制性条文第7.6.4条规定:“配电线路的过负荷保护,应在过负荷电流引起的导体温升对导体的绝缘、接头、端子或导体周围的物质造成损害前切断负荷电流。
对于突然断电比过负荷造成的损失更大的线路,该线路的过负荷保护应作用于信号而不应切断电路。
”从第7.6.4条可以看出,针对10D303中的消防风机(消防排烟风机、加压送风机等)和消防水泵(消火栓用消防泵、自动喷洒用消防泵和消防稳压泵),过负荷保护应作用于信号而不应作用于切断电路。
1 消防风机过负荷保护只报警不跳闸的实现图8为两用单速风机(平时和消防均使用的风机,风机不可调速)电路图(10D303第21、22页)XKDF-1。
从图8控制原理中可以看出,风机手动控制和平时DDC自动控制,热继电器常闭触点BB参与控制,风机过负荷后,热继电器常闭触点BB断开,接触器QAC线圈失电,主回路接触器QAC主动合触点断开,切断了风机主电路。
而在消防状态下,无论由消防联动(模块)控制KA1,还是由消防控制室手动旋转开关“SF” 应急控制,热继电器常闭触点BB不参与控制,控制回路躲过热继电器常闭触点BB,风机过负荷,不会使接触器QAC线圈失电,不切断风机主电路。
但风机过负荷时,热继电器常开触点BB闭合,会使声光报警(黄色信号灯PGY点亮,蜂鸣器PB报警)。
因此在消防状态下,实现了风机过负荷只作用于信号而不作用于切断电路。
图中声响报警可以通过复位按钮“ SR ”解除。
2 消防水泵过负荷保护只报警不跳闸的实现一般工程设计中消防风机无备用风机,而消防水泵一般是一台工作一台备用(或两用一备)。
GB 50055-93《通用用电设备配电设计规范》第2.4.6条的条文说明中有这么一句话:“一、过载是导致电动机损坏的主要原因。
……在为编制原规范而进行的调查中,收集到国内……以至美国《电气建设与维护》杂志称,大约电动机故障的95 % 是由过载产生的过热所致……二、……此外,某些场合下断电的后果比过载运行更严重,如没有备用机组的消防泵,应在过载情况下坚持工作。
消防泵电气控制原理图说明
手动状态
1#泵启动:转换开关处在手动状态时,端子(11)和(12)接通。
按下手动启动按钮1SB2,二个继电器、ZJ3、1SJ和二个接触器1KM、3KM的线圈同时得电吸合。
1KM常开点闭合、21和25接通,实现自锁。
电动机实现星接启动。
1#泵启动指示灯UN1点亮。
调整时间继电器1SJ常闭点延时15秒断开,其常开点同时闭合。
1SJ常闭点断开后、3KM线圈失电,其常闭点闭合、端子35和37接通。
2KM线圈得电吸合,其常开点闭合。
端子25和35接通、实现自锁。
其常闭点断开后端子29失电、时间继电器1SJ线圈失电复原。
电动机角接运行。
1#泵运行指示灯RD1点亮。
接触器3KM和2KM利用常闭点互锁、保证两个线圈不能同时吸合。
1#泵停止:按下手动停止按钮1SB1后,ZJ3、1KM、2KM线圈失电,接触器主触点断开,电动机停止运行。
ZJ3线圈失电后,继电器常闭点闭合,1#泵停止指示灯GN1点亮。
2#泵启动:转换开关处在手动状态时,端子(19)和(20)接通。
按下手动启动按钮2SB2后,二继电器ZJ4、2SJ和二接触器1C、3C同时只合。
其动作原理与1#泵相同。
2#泵停止:按下手动停止按钮2SB1后,ZJ4、1C、2C线圈失电,接触器主触点断开,电动机停止运行。
ZJ4线圈失电后,继电器常闭点闭合,2#泵停止指示灯GN2点亮。
自动状态
1#泵自动、2#泵备用。
1#泵自动启动:将消火栓按钮或自动报警联动控制器上的控制信号接在控制柜端子3和5上。
按下消火栓按钮或自动报警控制信号触发,端子3
和5连通,继电器线圈ZJ1得电吸合,报警信号灯R点亮。
由于转换开关处于1#泵自动位置,端子(9)和(10)连通。
ZJ1吸合后其常开点闭合,端子3、7、(9)、(10)59、25连通。
电动机实现星启动角运转,其动作原理同手动。
消火栓按钮或报警信号复位,端子3和5断开,线圈ZJ1失电,其常开点断开。
线圈ZJ3、1KM、2KM失电,电动机停止运行。
1#泵停止指示灯GN1点亮。
2#备用泵自动投入启动:当1#泵发生故障时,接触器1KM复位,其常闭点闭合。
端子(7)、(8)、13、15、17连通,时间继电器SJ线圈得电吸合,将其延时闭合常开点调至7-15秒闭合。
端子7、9、11连通,中间继电器线圈ZJ2常闭点断开而失电后,仍能保持其吸合状态。
备用泵投入指示灯Y点亮。
其另一个常开点闭合后,端子7、(15)、(16)、43、45连通。
实现2#泵星启动角运转。
完成2#备用泵自动投入。
2#泵自动、1#泵备用。
2#原自动启动:中间继电器ZJ1吸合后,端子7、(5)、(6)、61、45接通,实现2#泵星启动角运转,其原理同1#原。
1#备用泵自动投入启动:当2#泵发生故障时,接触器1C复位,其常闭点闭合后,端子7、(1)、(2)、75、15、17连通。
时间继电器SJ延时动作后,ZJ2吸合,端子7、(3)、(4)、23、25连通。
实现1#泵星启动角运转。
完成1#备用泵自动投入。
接触器1KM和1C通过其常闭点实现互锁,避免两台泵同时启动。
北京力凌消防工程有限责任公司。