最新矿大采矿学复试题库1-10
- 格式:doc
- 大小:46.00 KB
- 文档页数:21
矿大考研采矿试题及答案一、单项选择题(每题2分,共10分)1. 以下哪个选项是采矿工程中常用的爆破方法?A. 静态爆破B. 动态爆破C. 机械爆破D. 化学爆破答案:B2. 矿井通风的主要目的是?A. 提供照明B. 降低温度C. 排除有害气体D. 增加湿度答案:C3. 以下哪种设备是用于提升矿石的?A. 挖掘机B. 钻机C. 提升机D. 破碎机答案:C4. 矿井支护的主要作用是什么?A. 提高矿石产量B. 降低矿石成本C. 保证矿井安全D. 提高矿井美观答案:C5. 采矿工程中,以下哪个参数是衡量矿石品位的?A. 矿石密度B. 矿石硬度C. 矿石品位D. 矿石体积答案:C二、多项选择题(每题3分,共15分)1. 以下哪些因素会影响矿井通风效果?A. 矿井深度B. 矿井形状C. 矿井温度D. 矿井湿度答案:A, B, C, D2. 在采矿过程中,以下哪些措施可以提高矿石回收率?A. 优化爆破设计B. 增加矿石运输次数C. 使用高效破碎设备D. 改进选矿工艺答案:A, D3. 矿井安全检查中,以下哪些设备是必须检查的?A. 通风设备B. 提升设备C. 照明设备D. 通讯设备答案:A, B, D4. 以下哪些因素是影响矿石破碎效果的?A. 破碎机类型B. 矿石硬度C. 破碎机转速D. 矿石湿度答案:A, B, C5. 在采矿工程中,以下哪些措施可以减少环境污染?A. 采用湿式除尘B. 增加植被覆盖C. 减少爆破次数D. 采用封闭式运输答案:A, B, D三、简答题(每题5分,共20分)1. 简述矿井通风系统的主要组成部分。
答案:矿井通风系统主要由进风井、回风井、通风机、通风管道和通风设施等组成。
2. 描述采矿工程中爆破作业的基本流程。
答案:采矿工程中爆破作业的基本流程包括钻孔、装药、连线、起爆、爆破效果检查和清理。
3. 阐述矿井支护的目的和主要方法。
答案:矿井支护的目的是保证矿井的稳定性和安全性,主要方法包括使用锚杆、锚索、喷射混凝土、钢架支撑等。
《采矿学》题库十一1 国际上通用采煤工作面的开机率计算公式是什么?根据我国具体情况,请分析影响综采工作面开机率的主要因素及提高开机率的主要技术途径有哪些?(15) 答:采煤机日开机率就是采煤机运转时间占每日时间的百分比。
它综合反映机采面的地质条件、管理水平、设备使用情况和采区各生产系统的可靠性。
综采面日开机率可表示为:%100321⨯++=T t t t K d式中:t1——采煤机纯割煤时间,min ;t2——采煤机跑空刀时间,min ;t3——采煤机在工作面端头返向操作和进刀时间,min ; T ——全日时间,1440min 。
采煤班开机率可表示为:%1002321⨯++=T t t t K b , T2——每班时间提高开机率的途径有:提高工作面的检修速度和质量,减少路途时间损失,增加采煤机作业时间;提高采区及全矿生产系统可靠性,降低生产系统事故率;缩短工作面端头移输送机机头(尾)和端头支架时间,使其不影响采煤机端头作业;提高操作和维修水平,降低机电和顶板事故率;加强组织管理,使各工种、各班组之间工作协调,不影响采煤机运转;合理确定工作面参数,最大限度发挥设备效能。
2 煤矿开拓开采的上山开采与下山开采有何区别和主要特点?一般在什么条件下可以考虑应用下山开采?(15)答:1.运输提升方面:上山开采煤(矸)下运,能力大,费用低;全矿有折返运输;下山开采煤(矸)上运,能力低,费用低;全矿无折返运输2.排水:上山开采水自流入仓,系统简单,费用低;下山开采①每个区段设临时水窝,安小水泵排水至大巷②将采区下山一次掘至终深,在采区下部设水仓及硐室,安泵排水,工程量大,费用高3.掘进:上山开采工序简单,容易,成本低;下山开采:工序复杂,装运困难,速度慢,成本高;水大时困难4.通风:上山开采新风、泛风均向上,线路短;漏风少;通风设施少;管理方便,费用低;下山开采①两下山相距近,负压大,漏风大;② 通风线路长,最困难时期比上山采区长一倍; ③通风交叉点和设施多,④管理复杂,CH4大时,费用高。
中国矿业大学研究生考试采矿工程专业复试采矿学试题整理说明:本试题包括01、02、04、06、07、09、11年7套真题,为历届学长复试完毕后凭印象整理,旨在帮助报考矿大采矿的同学更好的准备复试,请勿将此真题用作商用。
2001年1.根据运输方式不同,长壁采煤工作面的区段运输平巷与回风平巷应如何布置。
2.绘图比较上山开采与下山开采的特点,并简述下山开采的应用条件。
3.试述主斜井、副立井综合开拓方式的特点及适用条件。
4.试分析影响采煤工作面长度的技术因素。
煤层5.试述综采工作面工序配合方式及适用条件。
6.试述井田开拓方式及其分类特征。
上山7.名词解释开采水平与辅助水平分区开拓与综合开拓下山与主要下山长壁放顶煤采煤法与水平分段放顶煤采煤法走向长壁采煤法与倾斜长壁采煤法8.如右上图,煤层厚2.5m,倾角15°,顶底板中等稳定,上山布置在煤层底板岩层中,距煤层底板15m左右。
试述该条件下跨上山开采所需采区巷道布置类型及跨上山开采的技术措施。
2002年1.何谓采煤方法?分析走向长壁采煤法与倾斜长壁采煤法的异同点及适用条件。
2.试述长壁采煤工作面回采工艺基本方式的种类及适应性。
3.试述多井筒分区开拓的基本特征及适应条件。
4.你认为低瓦斯矿井、围岩稳定的单一中厚煤层高产高效走向长壁综采工作面的区段运输平巷与区段回风平巷的布置应满足哪些要求。
5.试分析上山开采、下山开采及主要下山开采的特点及适用性。
6.单一薄及中厚煤层采区巷道布置如图(见《采矿学》-杜计平版90页),说明:①巷道名称,并按巷道的作用及服务范围将巷道分类②采煤方法及区段回采顺序③写出运煤、运料及通风(包括硐室及掘进面)系统④试述采区巷道布置的基本规律7.名词解释开采水平与辅助水平矿井生产能力及矿井井型煤田与井田标准煤及能源折算系数长壁放顶煤采煤法与水平分段放顶煤采煤法2004年1.名词解释煤田采区上、下山采区采出率分层同采房式采煤法2.简答1 / 3①条带采煤法的实质②矿井储量可分为哪几种储量③放顶煤长壁采煤法分为哪三种主要类型④新型辅助运输的基本类型⑤辅助水平与开采水平的主要区别3.试述倾斜长壁采煤法的适用条件。
中国矿业大学《采矿学》复试题库《采矿学》题库一一、解释名词(10分)开采水平与辅助水平下山开采与主要下山开采采煤方法与采煤工艺倾斜分层采煤法与长壁放顶煤采煤法DK615-4-12与DX918-5-2019二、回答问题并画图(15分)某普采工作面采用单滚筒采煤机破煤和装煤,单体液压支柱配合金属铰接顶梁支护顶板,正悬臂齐梁直线柱布置,三、四排控顶,梁长与截深相等,采煤机采用单向截割方式。
说明该工作面正生产期间的工艺过程;说明采煤机单向割煤方式的适用条件;画示意图说明普采工作面单滚筒采煤机端部斜切进刀过程。
三、画图并回答问题(25分)以下(一)、(二)两题任选一题:(一)某采区开采缓倾斜近距离煤层两层,上部的M1煤层为中厚煤层,下部的M2煤层是围岩稳定的薄煤层,该采区在走向方向上足够长,沿倾斜划分为四个区段,为该采区服务的运输大巷布置在M2煤层底板岩层中,回风大巷位置或采区风井位置自定。
1、说明该采区巷道布置方案;2、画出采区联合布置的平面图和剖面图,平面图上要反映出第一区段M1煤层正在生产时的工作面和相应的回采巷道,并在相应位置处设置风门和风窗;3、图中用数字标出采区生产时必须开掘的巷道,图外用文字解释数字代表的巷道名称;说明采区运煤、通风和运料系统。
(二)某带区倾斜长度足够长,该带区开采近距离中厚煤层两层,M1煤层在上,M2煤层在下。
阶段运输大巷和回风大巷均布置在开采水平附近,运输大巷布置M2煤层底板岩层中,回风大巷布置M2煤层中,两大巷间的水平投影距离在30m左右。
1、说明该带区巷道布置方案;2、用双线画出该联合布置带区的平面图和剖面图,平面图要上反映出一个或两个同时开采的倾斜长壁工作面及相应巷道,在相应位置处设置风门或风窗;3、图中用数字标出带区生产时必须开掘的巷道,图外用文字解释数字代表的巷道名称;4、说明带区运煤、通风和运料系统。
四、回答问题(20分)试分析确定采煤工作面长度的主要影响因素(要求给出必须用的计算公式)。
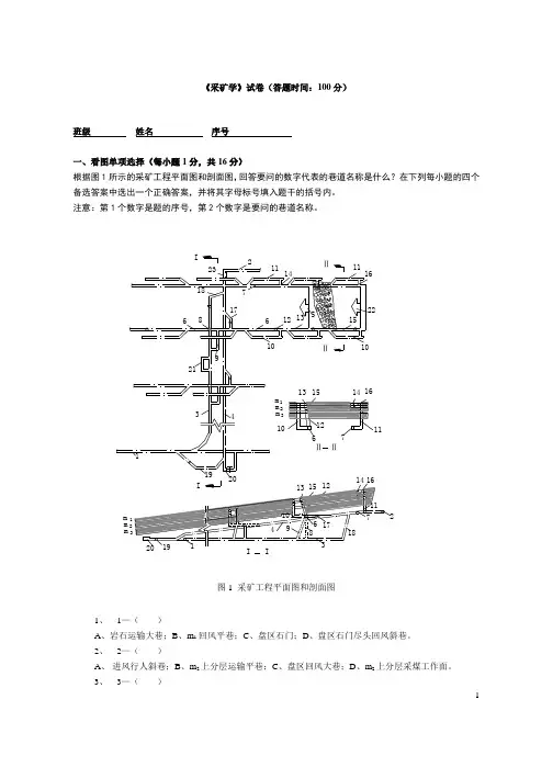
《采矿学》试卷(答题时间:100分)班级 姓名 序号一、看图单项选择(每小题1分,共16分)根据图1所示的采矿工程平面图和剖面图,回答要问的数字代表的巷道名称是什么?在下列每小题的四个备选答案中选出一个正确答案,并将其字母标号填入题干的括号内。
注意:第1个数字是题的序号,第2个数字是要问的巷道名称。
图1 采矿工程平面图和剖面图1、 1—( )A 、岩石运输大巷;B 、m 1回风平巷;C 、盘区石门;D 、盘区石门尽头回风斜巷。
2、 2—( )A 、 进风行人斜巷;B 、m 2上分层运输平巷;C 、盘区回风大巷;D 、m 2上分层采煤工作面。
3、 3—( )42019II I21349102m m m 161781826711I231611151********3176891012310111920m m m 123211106714161315ⅡⅡ12Ⅱ2213145151611ⅡA、盘区石门;B、进风斜巷;C、区段岩石轨道集中平巷;D、区段煤仓。
4、4—()A、采煤工作面;B、回风运料斜巷;C、区段溜煤眼;D、盘区轨道上山。
5、5—()A、m1煤层采煤工作面;B、m2上分层回风平巷;C、无极绳绞车房;D、区段岩石轨道集中平巷。
6、6—()A、回风运料斜巷;B、区段岩石运输集中平巷;C、车场绕道;D、m1煤层回风平巷。
7、7—()A、m2上分层回风平巷;B、m1煤层回风平巷;C、区段岩石轨道集中平巷;D、区段煤仓。
8、8—()A、区段煤仓;B、车场绕道;C、m2煤层上分层运输平巷;D、进风斜巷。
9、9—()A、回风运料斜巷;B、区段进风斜巷;C、溜煤眼;D、材料道。
10、10—()A、进风行人斜巷;B、回风运料斜巷;C、溜煤眼;D、盘区石门尽头回风斜巷。
11、11—()A、回风运料斜巷;B、区段岩石轨道集中平巷;C、m1煤层运输平巷;D、m1煤层回风平巷。
12、12—()A、回风运料斜巷;B、材料道;C、进风行人斜巷;D、溜煤眼。
中国矿业⼤学复试采矿学复习采矿学复习资料注:该资料题型分类并⾮⼗分合理,仅供参考;由于时间仓促,加上作者⽔平有限,错误和疏漏之处在所难免,若同学们发现有错误或是不妥之处,望及时指正以使⼤家共同提⾼,谢谢!⼀、名词解释采煤⽅法:采煤⼯艺与回采巷道布置及其在时间上、空间上的相互配合。
采煤⼯艺:采煤⼯作⾯各⼯序所⽤⽅法、设备及其在时间上、空间上的相互配合。
煤⽥(coal field):同⼀地质时期形成,并⼤致连续发育的含煤岩系分布区。
矿区(mining area):统⼀规划和开发的煤⽥或其⼀部分。
井⽥(矿⽥):划归⼀个矿井开采的⼀部分煤⽥或全部煤⽥。
矿井⽣产能⼒:矿井设计⽣产能⼒,万t /a。
设计中规定矿井在单位时间(年)内采出的煤炭和其它矿产品的数量。
矿井井型:按矿井设计年⽣产能⼒⼤⼩划分的矿井类型。
⼤型矿井:120、150、180、240万t/a 300、400、500、600万t/a及以上;中型矿井:45、60、90万t/a;⼩型矿井:30万t/a以下。
阶段(horizon):沿⼀定标⾼划分的⼀部分井⽥。
⽔平(level ):常指某⼀标⾼的⽔平⾯。
开采⽔平:简称⽔平,运输⼤巷及井底车场所在的位置及所服务的开采范围;⼴义的⽔平:布置⼤巷的某⼀标⾼的⽔平⾯;采区:阶段或开采⽔平内沿⾛向被划分为具有独⽴⽣产系统开采块段。
采煤循环:采煤⼯作⾯完成落煤、装煤运煤、⽀护和处理采空区的周⽽复始的过程。
(P133)循环⽅式:循环进度与昼夜循环数的总称作业⽅式:采煤⼯作⾯⼀昼夜内采煤班和准备班的配合⽅式正规循环:在规定的时间内保质保量地完成了循环作业图中规定任务的循环及时⽀护:采煤机割煤后,先移架,后推移输送机。
(P139)滞后⽀护:采煤机割煤后,先推移输送机,后移架。
(P139)开机率:采煤机实际运转的时间占可利⽤的采煤作业时间的百分⽐。
(P166)倾斜分层:将厚煤层分成若⼲与煤层层⾯相平⾏的分层,然后逐层开采。
《采矿学》题库八1、薄及中厚煤层单层布置和近距离煤层群联合布置两种准备方法各有什么特点?试述两种布置方式和适用范围及优缺点。
答:单层布置:适用条件:层间距较大布置方式、生产系统与单一煤层走向长壁采煤法基本相同。
多煤层联合开采(一)采区集中上(下)山联合布置优缺点巷道布置简单,工程量小。
巷道维护时间长,维护费用高,占用设备多,设备搬家频繁。
(二)集中上(下)山,上层煤无区段集中平巷、下层煤有集中平巷的联合布置1、条件,上层煤为中厚煤,采用单一走向长壁采煤法,下层煤为厚煤层,采用倾斜分层走向长壁下行垮落采煤法,利用运输集中平巷,两层煤共用一组上山,但不共用区段集中平巷。
巷道布置的优缺点及适用条件优点:生产较集中,可布置多个采煤工作面同时生产,采区生产能力大。
各煤层平巷超前掘进,随采随掘,缩短了采煤工作面准备时间,巷道维护工程量小。
占用设备少。
缺点:岩巷工程量大,通风、运输、运料、排矸等系统复杂,生产和准备之间相互干扰大,采区上山、区段集中巷和联络巷等要承受多次采动影响,维护长度大,维护时间长。
维护费用高。
2.什么是工作面开机率?工作面的开机率是如何计算的?根据我国具体情况,请分析影响综采工作面开机率的主要因素及提高开机率的主要技术途径。
(15分) 3.我国对于采煤方法是如何分类的?试说明目前我国常用的采煤方法有几种?其主要特点及发展前景如何? (10分)4.画图并说明工作面自开切眼开始推进后采场矿压显现的一般规律。
并回答开采过程中引起来压现象的原因是什么?5.试分析缓倾斜厚煤层开采有哪几种开采方法?各种开采方法有何特点和适用条件? (15分)6.阶段和开采水平两者有什么区别?为什么开采水平要有一定的服务年限? (10分)答:(1)阶段概念:在井田范围内,沿煤层倾斜方向,按一定标高把煤层划分为若干个平行于走向的长条部分,每个长条部分具有独立的生产系统,称之为一个阶段。
(2)水平概念:通常将设有井底车场、阶段运输大巷并且担负全阶段运输任务的水平,称“开采水平”简称“水平”阶段与水平联系和区别:阶段——井田一部分,强调开采范围和储量;水平——强调巷道布置二者联系是用水平上的巷道开采阶段内的煤炭资源开拓一水平要掘进许多巷道,基建投资大,为了充分发挥这些设施和投资效果,应有合理的水平服务年限。
采矿学一、名词解释(每题4分,共20分)(1)采煤方法(2)井田开拓(3)矿井生产能力(4)水平(5)井底车场二、填空题(每空1分,共10分)(1)综采面液压支架的支护方式有及时支护和两种。
(2)采煤方法按照采煤系统分为长壁式和两类。
(3)矿井开拓方式按水平数目分为单水平和两类。
(4)厚煤层上下两个分层的开采,可采用分层同采或。
(5)双滚筒采煤机的割煤方式有双向割煤和两种。
(6)垂直或斜交煤层走向布置的水平巷道叫。
(7)大型矿井立井煤炭提升主要采用提升。
(8)采用普通胶带输送机提升的斜井坡度一般不应大于度。
(9)在上山采区内常采用的上部车场有平车场和两类。
(10)井底车场按照矿车在车场内的运行方式分为折返式和两类。
三、判断题(请在括号内画对号,或错号。
每题1分,共10分)(1)采区必须布置一条专用回风上山。
()(2)《煤炭工业矿井设计规范》规定,工作面回采率为:薄煤层97%,中厚煤层95%,厚煤层93%。
()(3)若煤层群采用下行式开采,在进行开采部署时无需考虑层间的关系。
()(4)倾斜长壁采煤法的开切眼是沿煤层走向布置的。
()(5)开采水平是布置水平运输大巷和井底车场的一个面。
()(6)综采面双滚筒采煤机都采用双向割煤方式。
()(7)在放顶煤工作面,割一刀煤为一个循环。
()(8)罐笼既可用作矿井辅助提升,也可用作提煤。
()(9)《煤矿安全规程》规定,当采放比大于1︰3时,严禁采用放顶煤开采。
()(10)抽出式通风是一种最常用的矿井通风系统布置方式。
()四、简要回答下列问题(每题5分,共20分)(1)请叙述综采工作面采煤工艺过程。
(2)在阶段内煤层划分方式主要有哪三种?分别适用于什么条件?(3)“采区前进式,区内后退式”的含义?(4)工作面作业方式指采煤工作与准备工作的配合方式。
请问我国目前采用的作业方式主要有哪几种?五、综述(二题任选一题,20分)1.煤巷大量使用解决了煤矿很多问题,请说一说它的使用背景和主要优点。
中国矿业大学采矿学面试问题教授:万志军,男,四川青神县人,博士,教授,硕士生导师,江苏省“333高层次人才培养工程”首批中青年科学技术带头人,校优秀青年骨干教师,现任采矿工程系副主任,专业建设负责人。
1994年毕业于中国矿业大学采矿工程专业,2007年获工学博士学位,从事矿山压力与岩层控制以及高温岩体地热开发方面的研究与教学工作。
主持和作为主要研究者参加在研和完成国家自然科学基金重点项目及企业委托科研课题10多项,参加建成中国矿业大学“211工程”建设项目3项。
在《岩石力学与工程学报》等国内外科技期刊和国际学术会议发表论文40余篇,论文被SCIE 收录1篇,EI 收录9篇,ISTP 收录5篇;出版专著1部;获江苏省科技进步二等奖1项,中国煤炭工业协会科技进步三等奖2项。
方新秋,男,1974年8月出生,浙江省永康市人,中国矿业大学采矿工程博士,东南大学控制工程博士后。
现为中国矿业大学矿业工程学院、煤炭资源与安全开采国家重点实验室教授,硕士生导师,中国矿业大学青年学术带头人,中国矿业大学采矿工程学科优秀创新团队主要成员。
中国煤炭学会会员、中国惯性技术学会会员、南京惯性技术学会理事、国家自然科学基金委员会同行评议专家、浙江省自然科学基金委员会省外评审专家。
2004年8月份博士后出站后作为引进人才回中国矿业大学原能源与安全工程学院工作。
主要从事矿山压力与岩层控制(采场、巷道)、绿色开采、采矿监测监控、采煤自动化、无人工作面开采等方面的科学研究和教学工作。
近五年来,主持国家自然科学基金项目和江苏省博士后基金各1项;主持企业委托项目10国内外核心刊物及国际学术会议上发表论文30余篇,已被EI收录6篇,ISTP收录2篇;正式出版专著1部;获国家实用新型专利8项;研究成果获省部级科技进步二等奖2项,科技进步三等奖3项;校科技进步一等奖1项。
王作棠,男,福建尤溪人。
教授,博士生导师。
1982年大学毕业,1986年获硕士学位,1992年获博士学位。
第1篇一、专业知识与理论部分1. 土力学基础(1)请简述土的三相组成及其相互作用。
(2)解释何为土的有效应力原理,并举例说明其在工程中的应用。
(3)阐述饱和土的渗透系数与哪些因素有关,并解释其计算方法。
(4)请说明土的压缩性、抗剪强度及抗拉强度等基本性质,并解释它们在工程中的重要性。
2. 矿山工程力学(1)什么是矿山工程力学?简述其在矿山工程中的作用。
(2)解释何为地应力,并阐述其分类及影响因素。
(3)请说明岩石的弹性、塑性及脆性破坏特点,并解释其工程意义。
(4)阐述地下工程稳定性分析的基本方法,并举例说明其在实际工程中的应用。
3. 矿山地质(1)请简述矿山地质勘探的基本程序及方法。
(2)解释何为矿床,并列举常见的矿床类型。
(3)请说明矿床成因类型及其分布特点。
(4)阐述矿山地质构造对矿山工程的影响,并举例说明。
4. 矿山开采技术(1)请简述矿山开采的基本工艺流程。
(2)解释何为露天开采,并阐述其适用条件。
(3)请说明地下开采的基本类型及特点。
(4)阐述矿山开采过程中的安全与环境保护措施。
5. 矿山通风与安全(1)请简述矿山通风的基本原理及方法。
(2)解释何为矿井瓦斯,并阐述其成因及危害。
(3)请说明矿井火灾的成因、预防及处理方法。
(4)阐述矿山安全管理的原则及措施。
二、工程实践与创新能力部分1. 工程案例分析(1)请结合实际工程案例,阐述矿山地质勘探的重要性及方法。
(2)请结合实际工程案例,分析矿山开采过程中的安全问题及预防措施。
(3)请结合实际工程案例,阐述矿山通风与安全在设计、施工及运营过程中的关键因素。
2. 创新能力考察(1)请提出一种针对矿山地质勘探的新方法或新技术,并阐述其原理及优势。
(2)请提出一种针对矿山开采过程中的安全与环境保护的新措施,并阐述其可行性及效果。
(3)请结合当前矿山工程领域的研究热点,提出一种具有创新性的研究方向,并阐述其研究意义及预期成果。
三、综合素质与语言表达部分1. 个人陈述(1)请简述你的专业背景及学习经历。
西山煤矿面试题及答案最新1. 请简述您对煤炭行业的基本了解。
2. 您认为在煤矿工作中安全意识的重要性体现在哪些方面?3. 描述一下您对煤炭开采流程的理解。
4. 如果您被分配到一个新项目,您将如何快速适应并贡献自己的专业技能?5. 面对紧急情况,您会如何保持冷静并采取有效措施?6. 您如何看待团队合作在煤矿工作中的作用?7. 请谈谈您对环境保护与煤炭开采之间关系的看法。
8. 您在以往的工作中遇到过哪些挑战,您是如何解决的?9. 您认为技术进步如何影响煤炭行业的未来发展?10. 您如何看待煤矿工作中的职业道德和责任?答案1. 煤炭行业是一个历史悠久且对国家能源安全至关重要的行业。
它不仅涉及到煤炭的开采、加工和销售,还包括对环境的保护和对员工的安全管理。
2. 安全意识在煤矿工作中至关重要,它体现在严格遵守安全规程、及时识别和处理潜在的安全风险、以及在紧急情况下能够迅速采取正确的应对措施。
3. 煤炭开采流程通常包括勘探、设计、开采、运输、加工和销售等环节。
每个环节都需要严格的管理和专业的技术支持。
4. 面对新项目,我会首先了解项目的具体要求和目标,然后结合自己的专业知识和经验,制定适应计划,并与团队成员进行有效沟通,确保快速融入并发挥专业技能。
5. 面对紧急情况,我会首先保持冷静,评估情况,然后根据既定的应急预案采取行动,同时确保自己和他人的安全。
6. 团队合作在煤矿工作中至关重要,它有助于提高工作效率,确保安全,以及促进知识和经验的共享。
7. 环境保护与煤炭开采之间存在一定的矛盾,但通过采用清洁能源技术、加强环境监管和实施可持续发展战略,可以实现两者的和谐共存。
8. 在以往的工作中,我遇到过技术难题和团队协作的挑战。
我通过不断学习、与同事沟通和寻求专家帮助来解决这些问题。
9. 技术进步,如自动化和智能化设备的应用,将提高煤炭行业的生产效率和安全性,同时也推动行业向更加环保和可持续的方向发展。
10. 我认为煤矿工作中的职业道德和责任包括诚实守信、尊重同事、遵守安全规定和保护环境。
一概念解释1.煤田:在地质历史发展过程中,有含炭物质沉积形成的大面积含煤地带,称为煤田。
2.水平开采:将设有井底车场,阶段运输大巷并且负担全阶段运输任务的水平,称开采水平。
3.分层分采:在一个区段范围内,采完一个分层后待顶板垮落稳定后,再掘进区段水平巷开采下一分层,称为分层分采。
4.房式采煤法:只开煤房,不回收煤柱,留设房间煤柱支承上覆岩层的开采方法。
5.辅助水平:辅助水平设有阶段大巷,担负辅助水平的运输,通风,排水等任务,但不设井底车场,大巷运出的煤需下运到开采水平,经开采水平的井底车场再运至地面。
6.掘进率:生产矿井在一定时期内每产一万吨煤所需要掘进的生产巷道总进尺数和开拓总进尺数。
7.井底车场:连接井筒和井下主要运输巷道的一组巷道和硐室的总称,是连接井下运输和井筒提升两个生产环节的枢纽。
8."三下一上"开采:指的是在建筑物下,铁路下,水体下和承压含水层上的煤层的开采。
9.充分开采:地表最大下沉值不再随采空区尺寸增大而增加的开采状态称充分开采。
10.井田:划分给一个矿井或露天矿开采的那一部分煤田称为井田(矿田)。
11.周期来压步距:两次周期来压工作面之间的距离。
12.石门:与地面不直接相通的水平巷道,其长轴线与煤层直交或斜交的岩石平巷。
13.井型:矿井生产能力通常指矿井设计的年生产能力,亦称井型。
14.上山:指在开采水平以上沿倾斜方向向上的巷道。
15.开切眼:形成初始采场的巷道。
16.回采工艺:在采煤工作面内按照一定顺序完成各项工序的方法及其配合17.井田范围:是指井田沿煤层走向的长度和倾斜方向的水平投影宽度。
18.阶段:在井田范围内,沿着煤层倾斜方向,按一定标高把煤层划分为若干个具有独立生产系统的长条,每个长条叫一个阶段。
19.采区:在阶段内沿走向把阶段划分为若干具有独立生产系统的块,每一块为一个系统。
带区式:在阶段内沿煤层走向划分为若干个具有独立生产系统的带区,每个带区布置若干个倾斜分带,分带内布置一个采煤工作面。
采矿学试题及答案解析一、单项选择题(每题2分,共20分)1. 露天矿的开采顺序是()。
A. 由下而上B. 由上而下C. 由内而外D. 由外而内答案:B解析:露天矿的开采顺序一般是由上而下,这样可以保证开采的安全性和效率。
2. 地下矿山的开采方法中,属于空场法的是()。
A. 房柱法B. 充填法C. 崩落法D. 长壁法答案:A解析:房柱法是一种典型的空场法开采方法,通过保留矿柱来支撑顶板,其他方法则不属于空场法。
3. 矿井通风的主要目的是()。
A. 降温B. 提供氧气C. 排除有害气体D. 所有以上答案:D解析:矿井通风的主要目的是降温、提供氧气以及排除有害气体,以保证矿工的安全和健康。
4. 以下哪种岩石不属于沉积岩()。
A. 石灰岩B. 花岗岩C. 砂岩D. 页岩答案:B解析:花岗岩属于火成岩,而石灰岩、砂岩和页岩都属于沉积岩。
5. 矿井火灾的预防措施中,不包括()。
A. 定期检查电气设备B. 保持通风良好C. 使用易燃材料D. 配备消防设施答案:C解析:使用易燃材料会增加矿井火灾的风险,因此不属于预防措施。
6. 以下哪种爆破方法适用于坚硬岩石()。
A. 浅孔爆破B. 深孔爆破C. 硐室爆破D. 预裂爆破答案:B解析:深孔爆破适用于坚硬岩石,因为它可以更有效地破碎岩石。
7. 以下哪种设备不是用于提升矿石的()。
A. 绞车B. 提升机C. 破碎机D. 矿车答案:C解析:破碎机主要用于矿石的破碎,而不是提升。
8. 矿井水害的防治措施中,不包括()。
A. 疏干排水B. 堵水C. 引水D. 随意排放废水答案:D解析:随意排放废水会增加矿井水害的风险,因此不属于防治措施。
9. 以下哪种岩石的硬度最高()。
A. 石灰岩B. 石英岩C. 页岩D. 砂岩答案:B解析:石英岩的硬度最高,因为它主要由石英组成,石英是一种非常硬的矿物。
10. 以下哪种采矿方法适用于薄矿体()。
A. 长壁法B. 房柱法C. 充填法D. 崩落法答案:A解析:长壁法适用于薄矿体的开采,因为它可以有效地开采较薄的矿层。
中国矿业⼤学采矿学试题(A)采矿学试题(A)考⽣姓名学号:成绩(分)⼀、简答题(5×6=30分)1、井⽥是如何划分为采煤⼯作⾯的?2、何谓井⽥开拓⽅式?按井筒(硐)形式,井⽥开拓⽅式分为⼏类?主井开拓⽅式的适⽤条件?3、何谓准备⽅式?按煤层存条件的准备⽅式有⼏类?各适⽤于什么条件?4、何谓采煤⽅法?按采煤⼯作⾯布置及推进⽅向的不同。
长壁体系采煤⽅法分为⼏类?长壁体系采煤法基本特点?5、何谓矿井开采⽔平垂⾼?并说明开采⽔平垂⾼与阶段重⾼的关系?6、根据技术因素如何确定采区⾛向长度?⼆、填空题(2×15=30分)1、根据当前开采技术条件,我国将煤层按倾⾓分为:;;;;2、能源是;标准煤是;能源折算系数是。
3、根据勘探和地质研究程度,将煤炭储量按精度分级有;;;。
其中和为储量;和和为储量;级为储量。
4、煤⽥是。
井⽥是。
5、阶段是。
开采⽔平是。
辅助⽔平是。
6、上⼭是。
采区上⼭是。
主要上⼭是。
7、⽴井的开拓⽅式是。
斜井开拓开⽅式是平硐开拓⽅式是。
8、综合⼯作⾯及时⽀护⽅式是。
它的适有条件是。
综采⼯作⾯滞后⽀护⽅式是。
它的适⽤条件是。
9、普采⼯作⾯、采煤⼯作空间⼀般分为、、。
普采⼯作⾯的采煤循环是以。
为标志完成⼀个采煤循环。
10、矿井⽣产能⼒是。
矿井井型是。
矿井核定⽣产能⼒是。
11、矿井⽤长壁体系开采多个煤层,煤层间的开采顺序有;采区的开采顺序有。
回采⼯作⾯的回采顺序有。
12、布置采区上部车场的关健问题是;采区中部车场解决的关健问题是;采区下部车场解决的关健问题是。
13、DK615—4—12中,“DK”代表,“6”代表,“15”代表,“4”代表,“12”代表。
该型号表⽰向道岔。
14、采区采出率是。
开拓掘进率是。
⽣产矿井的全部掘进率是。
15、按其作⽤和服务范围,矿井井巷可分为巷道,巷道,巷道。
三、论述题(2×10分)1、试述⾼⽡斯矿井综采⼯作⾯区段平巷布置的特点。
2、试述多井筒分区域开拓⽅式的特点及适⽤性。
采矿考研复试笔试面试题库精选一、专业基础知识1. 请简要介绍采矿工程的定义及其在现代工业中的作用。
采矿工程是一门研究如何从地下或地表开采矿物资源的学科。
它涉及到探测矿床、勘察评价、矿山规划、矿山设计与施工、矿山管理和矿山环境保护等方面的内容。
采矿工程的主要目的是高效、低成本地开采矿产资源,为现代工业提供原材料的保障。
2. 请简述地下开采中的常用开采方法,并比较它们的特点和适用场景。
地下开采常用的方法有:采场法、柱节法、矿柱法和峒室法等。
采场法:通过在地下形成连续的开采空间,使矿石连续开采。
适用于矿床规模较大,矿石连续性较好的情况,但容易受地质构造控制。
柱节法:采矿区域划分为许多独立的柱节,采矿时逐个开采和破坏柱节,避免矿山过度变形。
适用于矿石连续性较差,地质条件复杂的情况。
矿柱法:在地下形成一系列的矿柱,保留矿体周围的稳定地层,以支撑矿体的稳定。
适用于矿体较小、地质条件较差的情况。
峒室法:通过在地下开挖一定规模的巨大峒室,使地层坍塌形成固结区域,达到控制地层稳定的目的。
适用于矿床规模大、矿岩破碎度大且矿床厚度较小的情况。
3. 请简要说明采矿工程中常用的地面破碎设备及其工作原理。
常用的地面破碎设备有冲击式破碎机、颚式破碎机和回转破碎机。
冲击式破碎机通过高速旋转的转子将物料抛向破碎室内的反击板,使物料在高速冲击下受力破碎,达到破碎的目的。
颚式破碎机利用活动的颚板周期性地对物料进行挤压破碎,将物料破碎成较小的颗粒。
回转破碎机通过转动的回转圆盘将物料与固定的破碎锤头碰撞和摩擦,使物料逐渐破碎。
4. 请简述采矿工程中的矿石选矿过程及其流程。
矿石选矿是指通过物理或化学方法将矿石中有用矿物与废石进行分离和提取的过程。
其主要流程包括矿石破碎、矿石磨矿和矿石浮选。
矿石破碎:将矿石经过粗碎、中碎和细碎等环节,将矿石破碎为一定粒度的物料,便于后续处理。
矿石磨矿:将矿石放入磨矿机中进行磨矿,使矿石细度适宜浮选,提高固体浮选的效率。
复习资料模拟试题一一、概念3.开采水平4.开拓巷道5.房式采煤法二、填空题1. 采场内为采取煤炭而进行的、、、及采空区处理等一系列工作称为回采工作。
2.综采工作面端部斜切进刀方式分为和两种。
接井下运输和提升两个环节的枢纽。
4.按煤层赋存条件,准备方式分为、、三种。
5.据调车方向,采区上部平车场分平车场和平车场。
三、简答题1.采煤方法分类依据是什么?2.普采面使用单滚筒采机如何确定滚筒旋向?3.说明放顶煤采煤法特点?4.立井开拓方式基本特征是什么?一个回采工作面长度为150米,工作面采用四~五排柱控顶,排距为0.6米,柱距为0.75米,使用单滚筒采煤机单向割煤,端头直接推入法进刀,请绘出“三·八”工作制工作面循环图表。
复习资料模拟试题二一、概念1、矿井核定生产能力2、采区3、普采工艺4、放顶煤采煤法5、沿空掘巷二、填空1. 采煤方法包括和两项主要内容。
2.通常将设有、并且担负全阶段运输任务的水平称为开采水平。
煤和双输送机放煤三种类型。
5.下,下,下和上采煤叫“三下一上”采煤。
三、简答题1、壁式体系采煤法具有哪些主要特点?2、采煤工作面循环作业方式有哪些?3、采煤作业规程的编制内容有哪些?4、倾斜长壁采煤法有哪些主要特点?四、计算题(20分)某普采面,采煤机机面高度为0.8米,机身高度0.4米,摇臂向上最大摆角为30度,摇臂长度为1.5米,滚筒直径为1.2米,试求该回采面的最大采高。
循环图表(20分)五、一个普采工作面长度为165米,工作面采用四排柱控顶,排距为0.6米,柱距为0.75米,使用单滚筒采煤机单向割煤,端头斜切进刀,请绘出“四·六”工作制工作面循环图表。
复习资料模拟试题三1、开拓方式二、简答题2、如何确定开采水平垂高?3、按井筒(硐)形式,井田开拓方式有哪些?4、如何确定采区上山数目及其相对位置?5、为什么现代化大型矿井常采用主斜-副立井综合开拓方式?6、综合开拓的类型及其应用?三、计算题已知矿井工业储量为75Mt,各种保护煤柱的损失量为工业储量的10%,设矿井年生产能力为0.9 Mt,试求该矿井的服务年限。
中国矿业大学(北京)采矿工程专业复试面试专题第一篇:中国矿业大学(北京)采矿工程专业复试面试专题面试完毕,感觉没有想象的那么难。
我自己搜集整理了一些面试问题,希望对以后考采矿的学弟们有所帮助。
1、你为什么要考矿大采矿专业?2、你觉得你所学专业与采矿工程有什么联系?(针对跨考的考生)3、你读研后有什么打算?4、你所知道的导师有哪些,都什么研究方向?5、你想在采矿哪方面发展?6、说说你对采矿学的了解。
7、专业英语词句翻译。
如:滚筒采煤机,回采巷道,水平,阶段,石门等等(网上有采矿专业英语词汇可下,山东科技大学的,就里面的内容)。
8、采矿学分为哪几部分?9、说说倾斜长壁采煤法与走向长壁采煤法的区别。
10、什么是开采水平?阶段呢?二者有什么联系。
11、你大学期间参加过什么活动(义务与科研)?12、说说倾斜长壁采煤法优缺点与适用条件。
13、说说绿色开采都有哪些方法。
14、解释上隅角瓦斯超限机理。
15、读研期间有什么安排?16、沿空留巷与沿空掘巷有什么区别?各自适用条件。
问题还很多啦,我一个人能力有限,以后想起其他问题来再作补充。
复试分为笔试和面试。
根据本人去年的经验,第一天考笔试科目即采矿学,总分100分。
题型为名词解释、简答、填图分析题,概念性较强。
第二天面试,时间10-15分钟,总分150分,流程大致为先用英语作简短的自我介绍,然后一一回答每位面试官们提出的问题(大致是每位面试官一个题,4-5个左右。
自我介绍后会给你纸笔一一记下每位老师提出的问题,稍作思考后再一一回答),题目大致是一个综合性的问题(比如为什么考采矿之类的)、2-3个采矿学专业问题、一个采矿专业词汇(2-3个单词)中译英。
今年的面试流程不一定一成不变,仅供参考。
第二篇:2012中国矿业大学复试须知中国矿业大学2012年硕士研究生复试录取工作日程安排及相关事项通知如下:1.4月4日17时,公布我校相关学院复试分数线。
2.4月5日,考生在我校研究生院网站查询复试资格、选择复试科目、下载相关表格。
中国矿业大学《采矿学》复试题库《采矿学》题库一一、解释名词(10分)开采水平与辅助水平下山开采与主要下山开采采煤方法与采煤工艺倾斜分层采煤法与长壁放顶煤采煤法DK615-4-12与DX918-5-2019二、回答问题并画图(15分)某普采工作面采用单滚筒采煤机破煤和装煤,单体液压支柱配合金属铰接顶梁支护顶板,正悬臂齐梁直线柱布置,三、四排控顶,梁长与截深相等,采煤机采用单向截割方式。
说明该工作面正生产期间的工艺过程;说明采煤机单向割煤方式的适用条件;画示意图说明普采工作面单滚筒采煤机端部斜切进刀过程。
三、画图并回答问题(25分)以下(一)、(二)两题任选一题:(一)某采区开采缓倾斜近距离煤层两层,上部的M1煤层为中厚煤层,下部的M2煤层是围岩稳定的薄煤层,该采区在走向方向上足够长,沿倾斜划分为四个区段,为该采区服务的运输大巷布置在M2煤层底板岩层中,回风大巷位置或采区风井位置自定。
1、说明该采区巷道布置方案;2、画出采区联合布置的平面图和剖面图,平面图上要反映出第一区段M1煤层正在生产时的工作面和相应的回采巷道,并在相应位置处设置风门和风窗;3、图中用数字标出采区生产时必须开掘的巷道,图外用文字解释数字代表的巷道名称;说明采区运煤、通风和运料系统。
(二)某带区倾斜长度足够长,该带区开采近距离中厚煤层两层,M1煤层在上,M2煤层在下。
阶段运输大巷和回风大巷均布置在开采水平附近,运输大巷布置M2煤层底板岩层中,回风大巷布置M2煤层中,两大巷间的水平投影距离在30m左右。
1、说明该带区巷道布置方案;2、用双线画出该联合布置带区的平面图和剖面图,平面图要上反映出一个或两个同时开采的倾斜长壁工作面及相应巷道,在相应位置处设置风门或风窗;3、图中用数字标出带区生产时必须开掘的巷道,图外用文字解释数字代表的巷道名称;4、说明带区运煤、通风和运料系统。
四、回答问题(20分)试分析确定采煤工作面长度的主要影响因素(要求给出必须用的计算公式)。
五、回答问题(10分)试述走向长壁综采工作面的区段运输平巷和回风平巷的布置特点。
六、画图并回答问题(10分)1、画水平切面图并用文字说明阶段运输大巷的布置方式、适用条件和相应的煤层间的联系方式。
2、阶段运输大巷的方向与坡度如何考虑?七、画图并回答问题(10分)1、画出运输大巷采用矿车运输,主井采用箕斗提升,副井采用罐笼提升的立井井底车场线路布置平面图;2、图中标明主井、副井、主井空重车线、副井空重车线、材料车线、绕道线路、调车线或通过线,并说明一般条件下大型矿井中这些线路的长度如何考虑?3、用以下符号在图中标明进入井底车场内的煤列车和矸石列车调车方式。
《采矿学》题库二说出你所知道的采煤方法种类,并分析在我国应用的情况。
(18) 试分析放顶煤开采中影响顶煤冒放性的主要因素有哪些。
(17)你认为根据我国目前的现况,如何进一步提高工作面的开机率。
(20) 煤列车空车矸石车试分析煤矿矿井开拓方式的特点及适用条件。
(20)根据世界煤炭生产和科学技术的发展,你认为我国煤炭企业目前应该在哪些技术方面进行研究和发展(25)《采矿学》题库三根据我国具体情况,请回答常用的采煤方法有哪些种类,并指出其适用条件及发展前途。
(20)简述长臂工作面自开切眼推进后矿压显现的一般规律,并画图说明工作面前后方支撑压力的分布曲线。
(18)矿井开拓主要研究和确定哪些问题?目前国内外矿井开拓发展趋势有何特点?(20)请说出开采厚煤层的主要开采方法与回采工艺有哪几种,各自的特点是什么?(18)你认为当前采矿技术的发展方向是什么?我国应在哪些采矿技术方面加强研究、推广和进一步提高技术水平?(24)lishi发表于2011-3-12 22:12:22《采矿学》题库四我国较广泛采用的有哪几种采煤方法?应用及发展情况如何?(15)什么是工作面开机率?提高工作面开机率的途径有哪些?(15)3、为什么厚煤层放顶煤开采技术在我国能够得到发展,并取得显著成就?(15)答:1、适应性强综放开采实现了缓倾斜特厚煤层的一次采全厚开采和急倾斜特厚煤层的水平分段开采,对地质条件的适应性较分层综采和单一煤层综采更强。
适应于煤层厚度变化大、顶底板起伏不平、断层构造多以及其他地质条件变化的不稳定煤层。
2、产量高综放开采一次开采厚度大幅度增加,煤层开采强度加大,实现了垂直集中生产,而且低位放项煤支架工作面有两个出煤点,在同样工作面长度和工作面推进速度的情况下,综放开采较分层综采和单一煤层综采工作面的单产可以成倍地增长(举例)。
3、成本低综放开采较分层综采的巷道掘进率低,工作面寿命长,搬家次数少,有利于接续,吨煤设备投入费用少;工作面材料、电力消耗少;因而工作面直接成本大大降低。
综放开采的吨煤成本可比分层综采的成本降低10元/t以上,因而矿井的经济效益可以明显提高。
4、薄及中厚煤层单层布置和近距离煤层群联合布置两种准备方法各有什么特点?试述两种布置方式和适用及优缺点。
5、阶段和开采水平两者有什么区别?为什么开采水平要有一定的服务年限?以知矿井井田走向长度12公里,矿井生产能力180万吨/年,煤层倾角18度,共有4个可采煤层,其厚度分别为3.4m;2.6m;2.8m;2.2m,煤的容重为1.3吨/立方米,以保证可采水平有足够的服务年限出发,求合理的水平垂高。
(20)6、根据我国能源发展战略,你认为我们煤炭工业应在哪些技术方面进行公关和加速发展?(20)《采矿学》题库五1根据我国具体情况,试分析影响综采工作面开机率低下的主要因素及提高开机率的技术途径。
(15)2画图说明工作面前、后支撑压力的分布曲线。
并回答回采过程中引起的初次来压和周期来压现象的原因是什么?(15)3煤矿开拓开采的上山开采与下山开采有何区别?什么条件下可以应用下山开采?(15)4试分析长臂采煤工作面的合理长度的选取,影响合理长度考虑的技术因素有哪些?(15)5、请说出开采厚煤层的主要开采方法与回采工艺有哪几种,各自的特点和适用条件是什么?(15)答:主要方法有:a大采高一次采全厚采煤法,适用于缓斜厚煤层(小于5m);b放顶煤采煤法,适用于缓斜厚煤层(大于5m);c倾斜分层长壁采煤法,适用于缓斜、倾斜厚及特厚煤层;d水平分层、斜切分层下行垮落采煤法,适用于急斜厚煤层;e水平分段放顶煤采煤法,适用于急斜特厚煤层;f掩护支架采煤法,适用于急斜厚煤层。
g开采厚煤层及特厚煤层时可把厚煤层分为若干中等厚度的分层来开采。
根据煤层赋存条件及开采技术不同,分层采煤法又可以分为倾斜分层、水平分层、斜切分层三种。
倾斜分层——将煤层划分成若干个与煤层层面相平行的分层,工作面沿走向或倾向推进。
水平分层——将煤层划分成若干个与水平面相平行的分层,工作面一般沿走向推进。
斜切分层——将煤层划分成若干个与水平面成一定角度的分层,工作面沿走向推进。
各分层的回采有下行式和上行式两种顺序。
先采上部分层,然后依次回采下部分层的方式成为下行式;先回采最下分层,然后依次回采上部分层的方式成为上行式。
不同的分层方法、回采顺序以及采空区处理方法的综合应用,可以演变出各式各样的分层采煤方法。
但是,在实际工作中一般采用的主要有倾斜分层下行垮落采煤法、倾斜分层上行充填采煤法、水平或斜切分层下行垮落采煤法。
分层采煤法是当前我国在厚煤层中采用的主要采煤方法,最常用的是倾斜分层,这种分层方法多用于开采缓斜、倾斜厚及持厚煤层,有时也可用于倾角较小的急斜厚煤层;开采急斜厚煤层时,过去常用的水平(或斜切)分层采煤法已部分为掩护支架采煤法所替代,采用较少;急斜持厚煤层条件下,近几年来已在水平分层采煤法基础上成功地采用了水平分段综采放顶煤采煤法,煤厚一般25m以上,分段高度可为10~12m,分段底部采高约3m,放顶煤高度7~9m,取得了显著效果。
随着生产技术的发展,在厚煤层开采中整层开采有了较大发展。
产量比重达到14.75%。
如近几年来,由于综合机械化采煤技术装备的发展、大采高支架的应用,为5m以下的缓斜厚煤层采用大采高一次采全厚的单一长壁采煤法创造了条件,并已得到一定的发展,产量比重已达2.44%。
在缓倾斜、厚度为5.0m以上的厚煤层条件下,特别是厚度变化较大的特厚煤层,采用了综采放顶煤采煤法,产量比重约占12.29%。
在急斜厚煤层条件下,可利用煤层倾角较大的特点,使工作面俯斜布置,依靠重力下放工作面支架,为有效地进行顶板管理创造了条件,在煤层赋存较稳定的条件下,成功采用了掩护支架采煤法,实现了整层开采,并获得了较广泛的应用,产量比重为0.77%,约为急斜煤层产量的1/4。
放顶煤采煤法的实质就是在厚煤层中,沿煤层(或分段)底部布置一个采高2~3m的长壁工作面,用常规方法进行回采,利用矿山压力的作用或辅以人工松动方法,使支架上方的顶煤破碎成散体后由支架后方(或上方)放出,并经由刮板输送机运出工作面。
依据煤层赋存条件的不同,放顶煤长壁采煤法可分为三种主要类型。
(1)一次采全厚放顶煤开采沿煤层底板布置机采工作面,一次采出煤层的全部厚度。
这种方法一般适用于厚度6~12m的缓斜厚煤层,是我国目前使用的主要方法。
(2)预采顶分层网下放顶煤开采首先沿煤层顶板布置一个普通长壁工作面(顶分层开采),而后沿煤层底板布置放顶煤工作面,将两个工作面之间的顶煤放出。
这种方法一般适用于厚度大于12m、直接顶板坚硬或煤层瓦斯含量高,需要预先排放瓦斯的缓斜煤层。
(3)倾斜分段放顶煤开采当煤层厚度超过15~20m以上时,可自煤层顶板至底板将煤层分成8~10m的分段,依次进行放顶煤开采。
这种方法一般适用于厚度大于15m的缓斜煤层。
6、根据当前采矿工程技术的发展趋势,你认为我国在哪些采矿技术方面应该加强研究和进一步提高水平?(25)《采矿学》题库七工作面的开机率是如何计算的?根据我国具体情况,请分析影响综采工作面开机率的主要因素及提高开机率的主要技术途径。
(15)目前我国应用较广的有哪几种采煤方法?试说明其主要特点及发展前景如何?(15)3、画图并说明工作面前、后方支撑压力的分布曲线。
并回答开采过程中引起初次来压和周期来压现象的原因是什么?答:影响因素:a、开采深度。
深度越大,压力越高;b、围岩性质。
煤质越硬,强度越高,压力峰值越高,峰值距煤壁距离越近,分布范围越小;c、采空区残留空间。
开挖的空间越大,压力分布范围越大,空间越宽,峰值越高;d、相邻工作面开采,形成叠加,范围和峰值增大。
e、近距离煤层回采,上下煤层叠加,使前支撑压力峰值和范围增大。
分布规律:4画图说明(矿山压力与岩层控制图2-26 p60)减压区增压区稳压区极限平衡区弹性区煤矿开采中的上山开采和下山开采有何区别和特点?什么情况下应用下山开采是合理的?(15)5、试分析走向长臂开采和倾斜长臂开采各自的优缺点及其适应条件。