半隐框(横隐竖明)设计说明模板
- 格式:doc
- 大小:60.50 KB
- 文档页数:1
横琴万象世界项目(二期)1-7#塔楼幕墙设计说明一、工程概况及设计原则㈠ 工程概况:1.1工程名称:横琴万象世界项目(二期)1.2 工程地点:本项目位于广东省珠海市横琴区。
1.3建设单位:横琴万象世界发展有限公司1.4设计单位:广东德晟建筑设计研究院1.5方案单位:10 DESIGN1.6 工程概况:本项目位于珠海市横琴新区开新三道西侧、香江路南侧、开新五道东侧 、支路一北侧。
总建筑面积为400843.32 m2,其中地上建筑面积为287281.84 m2,地下建筑面积为113561.48 m2。
由1#-6#共六栋超高层塔楼及7#裙楼组成。
1#塔楼高208.6mp;2#塔楼高156.6m;3#塔楼高141.9m;4#塔楼高206.6m;5#塔楼高151.7m;6#塔楼高137.0m;7#裙楼高13.4m。
本项目塔楼采用单元式幕墙结构,裙楼采用框架式幕墙结构。
本设计说明为1-7#裙楼。
土建结构类型: 框架结构结构设计使用年限:50年。
本地区50年一遇基本风压W0=0.85KN/m2;抗震设防烈度为七度。
设计基本地震加速度值 0.10g,建筑结构的类别为甲类,建筑结构安全等级为二级。
地面粗糙度类别B类;建筑构件耐火等级:一级;防水等级: 一级。
1.7 图纸设计阶段:本图纸只作招标使用,施工单位需根据建筑施工图、现场情况进行实际测量后再绘制出用于下料的施工图纸,并经业主、设计院、幕墙顾问审核确认后方可进行现场施工。
㈡ 设计范围1、半隐框玻璃幕墙系统(竖隐横明)2、半隐框玻璃幕墙系统(竖明横隐)3、玻璃雨棚系统4、玻璃栏板系统5、层间铝板造型系统6、铝合金通风百页系统7、钢结构玻璃连廊飘棚系统8、防火玻璃幕墙系统㈢ 结构形式1、半隐框玻璃幕墙系统(竖隐横明)部位:裙楼商铺采光位置分格1000处结构形式:采用钢铝结合形式,先将钢方管竖龙骨通过连接件与预埋件固定于主体结构。
再将铝合金装饰竖框固定于钢方管竖龙骨,铝合金横框通过铝角码固定于幕墙竖龙骨上,横向玻璃板块用铝合金压板固定,再通过螺栓固定于横龙骨上,铝合金压板外扣铝合金装饰扣板。
横明竖隐、隐框、干挂水泥板幕墙系统施工方案范例前言:本文以某项目幕墙施工为载体,讲述了横明竖隐、隐框、干挂水泥板幕墙系统施工工艺。
希望对大家有所助益。
第一节竖明横隐玻璃幕墙系统施工方案1.施工工艺流程2.具体施工方法(1)测量放线:详见本章第4.1节;(2)结构检查根据测量放线结果检查结构是否符合幕墙的安装精度要求,并将测量数据汇总分析,如超出允许偏差范围内则应进行处理,直至达到要求。
(3)顶部铰支座安装A、施工人员搭设施工吊篮作为施工平台,采用汽车吊进行安装顶部铰支座及顶部钢梁的吊装。
顶部铰支座及横梁安装示意图B、采用先焊接后栓接的方法,将顶部钢梁与屋面钢结构进行临时的稳固连接。
(4)钢结构采用汽车吊吊装A、钢立柱吊装幕墙主钢柱吊装示意图B、待构件垂直后,将80T汽车车吊的吊点撤出,使构件处于垂直状态,并采用定位销轴将钢立柱底端与支座连接。
幕墙钢结构吊装示意图C、底部定位销安装完成后,将110T汽车吊的吊点撤出,并采用屋面钢构上的2个手动葫芦进行钢柱顶部的就位安装。
D、采用先焊接后栓接的方法,将立柱与顶部钢梁进行临时稳固连接。
(6)然后进行幕墙主钢架中横梁安装,待幕墙主钢结构安装完毕后,将顶部钢梁处的临时稳固件拆除,施工人员以施工吊篮作为施工平台,进行幕墙钢架面漆施工。
(7)搭设脚手架作为施工平台进行幕墙转接件及幕墙次龙骨的安装。
幕墙次龙骨安装示意图(8)安装幕墙铝合金龙骨后进行玻璃面板的吊装,采用电动葫芦作为玻璃垂直运输、安装机具A、采用叉车将玻璃运输至用于水平运输的滑轨处B、采用滑轨进行玻璃的水平运输C、采用电动葫芦将玻璃垂直运输至待安装区域,玻璃吸盘进行玻璃的就位安装,玻璃从上往下安装。
玻璃面板安装示意图(9)施工人员以室内脚手架及曲臂车作为施工平台,安装前后铝合金扣盖。
第二节隐框玻璃幕墙系统施工方案1.概述X幕墙系统采用隐框幕墙系统,龙骨采用铝龙骨。
拟搭设脚手架作为施工平台进行该部分幕墙的安装。
竖明横隐玻璃幕墙施工技术及工艺规范1.1 施工准备(1)材料与构件1)玻璃的选用:按设计要求选用。
2)铝型材的选用:按设计要求选用。
3)其他材料的选用:按设计要求选用。
4)保护措施如下:①材料、构件要求按设计分类、使用地点存放。
玻璃应倾斜角10°~15°;地面应垫上厚度>150㎜的方木;搬运时要两个抬起,不要推拉,以免损坏表面氧化膜或涂层;②安装前要检查铝型材,要求平直、规方,不得有明显的变形、刮痕和污垢;③构件、材料和零附件要施工现场验收,验收时供货方、监理方和业主应在场。
(2)铝型材的辅助加工现场辅助加工为简单的钻孔、装配立柱活动接头的芯套、安装连接附件等,其加工位置、尺寸应与设计图相符。
(3)后备材料不合格的材料应予以更换,幕墙构件在运输、堆放、吊装过程中有可能变形、损坏等,所以,幕墙安装施工时根据具体情况,对易损坏或丢失的构件、配件、玻璃、密封材料、胶垫等,应有一定的更换贮备数量。
(4)样板在正式施工安装前,我方将按真实材料、构配件和工艺,在现场设置1:1的幕墙单元样板。
样板安装位置按本工程招标文件《工程规范和技术说明》执行。
由业主、监理确认,以此作为施工过程中的检查依据,并作为验收的标准。
(5)玻璃安装前的准备1)包装、运输和贮存玻璃安装前,须运至玻璃中储区保存,以备安装时取用。
鉴于玻璃的材质特性,在玻璃的包装、运输和贮存过程中须注意以下几点:①为了某些功能要求,幕墙玻璃都经过特殊的表面处理,包装时应使用无腐蚀作用的包装材料,以防损害面板表面。
②包装箱上应有醒目的“小心轻放”、“向上”等标志。
③包装箱应有足够的牢固程度,应保证产品在运输过程中不会损坏。
④装入箱内的玻璃应保证不会发生互相碰撞。
⑤用专用车将玻璃运输到安装位进行安装,在运输过程中玻璃应用绳子扎牢,防止玻璃跌倒破损。
运输过程中应避免发生碰撞,轻拿轻放,严防野蛮装卸。
⑥应放在玻璃中储区内的专用玻璃存储架上保存,并安排专人管理。
***幕墙工程设计说明一、工程概况1、工程名称:***幕墙工程2、工程地点:3、建设单位:4、建筑设计单位:**设计公司5、结构形式:支撑框架结构.6、建筑规模:建筑高度南翼61.5米;北翼19.473米。
7、建筑设计使用年限: 50年8、幕墙设计内容及架构形式:A.竖明横隐玻璃幕墙;B.铝单板幕墙幕墙;C.中庭采光顶屋面;D.南翼铝镁锰+铝单板屋面;E.北翼采光顶;二、设计依据1.幕墙设计的原则和依据全部幕墙工程严格遵照中华人民共和国行业标准《玻璃幕墙工程技术规范》(JGJ102-2003)《金属、石材幕墙工程技术规范》(JGJ133-2001)执行,幕墙工程的材料选用、幕墙设计加工制作安装施工及验收及维修均达到并符合中国行业标准规定的优良要求。
风压变形性能、雨水渗透性能、空气渗透性能、平面内变形性能、保温性能、隔声性能、耐撞击性能应符合国家现行产品标准的规定。
铝板及石材幕墙在风荷载标准值作用下,其型钢立柱和横梁的相对挠度不应大于L/300(L为立柱和横梁两支点的跨度)。
绝对挠度不应大于15㎜;铝合金型材的相对挠度不应大于L/180,绝对挠度不应大于20㎜。
幕墙及其边接件应具有足够的承载力、刚度和相对于主体结构的位移能力。
➢设计地区:➢基本风压值:W0=0.40KN/m2。
(50年一遇)➢基本雪压值:S0=0.30KN/m2。
(50年一遇)➢地震设防:6度。
➢地区粗糙度:A类。
➢设计年温差:80度➢幕墙设计耐火等级:二级,幕墙的防火设计应符合现行国家标准《建筑设计防火规范》GBJ50016-2014的有关规定。
防火材料应采用难燃或不燃材料。
➢幕墙设计防雷等级:二级,幕墙的防雷设计应符合现行国家标准《建筑物防雷设计规范》GBT50057-2010(2010年版)的规定。
➢幕墙保温设计:➢幕墙耐久年限:幕墙整体设计使用年限25年以上,幕墙结构设计使用年限50年。
2.幕墙设计采用的主要规范幕墙、门窗设计规范:《铝合金结构设计规范》 GB50429-2007《玻璃幕墙工程技术规范》 JGJ102-2003《建筑幕墙》 GB/T21086-2007《金属与石材幕墙工程技术规范》 JGJ133-2001《铝合金门窗工程技术规范》JGJ214-2010建筑设计规范:《公共建筑节能设计标准》 GB50189-2015《高层建筑混凝土结构技术规程》 JGJ3-2010《混凝土结构后锚固技术规程》 JGJ145-2013《混凝土结构加固设计规范》 GB50367-2013《混凝土结构设计规范》 GB50010-2010《混凝土用膨胀型、扩孔型建筑锚栓》 JG160-2004《建筑材料放射性核素限量》 GB6566-2010《建筑防火封堵应用技术规程》 CECS154:2003《建筑钢结构焊接技术规程》 JGJ81-2011《建筑工程抗震设防分类标准》 GB50223-2008《建筑结构荷载规范》 GB50009-2012《建筑结构可靠度设计统一标准》 GB50068-2001《建筑抗震设计规范》 GB50011-2010《建筑设计防火规范》 GB50016-2014《建筑物防雷设计规范》 GB50057-2010《建筑物电子信息系统防雷技术规范》 GB50034-2010《防雷装置设计技术评价规范》 QX/T106-2009《冷弯薄壁型钢结构技术规范》 GB50018-2002《民用建筑设计通则》 GB50352-2005《钢结构焊接规范》 GB50661-2011《钢结构工程施工规范》 GB50755-2012《钢结构工程施工质量验收规范》 GB50205-2001铝材规范:《变形铝及铝合金化学成份》 GB/T3190-2008《建筑用隔热铝合金型材》 JG175-2011《建筑用铝型材、铝板氟碳涂层》 JG/T133-2000《铝合金建筑型材第1部分基材》 GB5237.1-2008 《铝合金建筑型材第2部分阳极氧化、着色型材》 GB5237.2-2008 《铝及铝合金彩色涂层板、带材》 YS/T431-2009《一般工业用铝及铝合金板、带材》 GB/T3880.1~3-2006 《铝型材截面几何参数算法及计算机程序要求》 YS/T437-2009《变形铝和铝合金牌号表示方法》 GB/T16474-2011金属板及石材规范:《干挂饰面石材及其金属挂件》 JC830.1、2-2005 《建筑装饰用搪瓷钢板》 JG/T234-2008《超薄天然石材复合板》 JC/T1049-2007《铝幕墙板、板基》 YS/T429.1-2000 《铝幕墙板、氟碳喷漆铝单板》 YS/T429.2-2012 《建筑幕墙用氟碳铝单板制品》 JG331-2011《外墙保温用锚栓》 JG/T366-2012《铝塑复合板用铝带》 YS/T432-2000《天然板石》 GB/T18600-2009《天然大理石荒料》 JC/T202-2011《天然大理石建筑板材》 GB/T19766-2005《天然花岗石荒料》 JC/T204-2011《天然花岗石建筑板材》 GB/T18601-2009《天然石材统一编号》 GB/T17670-2008《天然饰面石材术语》 GB/T13890-2008玻璃规范:《镀膜玻璃第1部分:阳光控制镀膜玻璃》 GB/T18915.1-2002 《镀膜玻璃第2部分:低辐射镀膜玻璃》 GB/T18915.2-2002 《平板玻璃》 GB11614-2009《建筑用安全玻璃第3部分:夹层玻璃》 GB15763.3-2009《建筑用安全玻璃第2部分:钢化玻璃》 GB15763.2-2005《建筑用安全玻璃防火玻璃》 GB15763.1-2009《中空玻璃》 GB/T11944-2002钢材规范:《建筑结构用冷弯矩形钢管》 JG/T178-2005《不锈钢冷轧钢板及钢带》 GB/T3280-2007《不锈钢热轧钢板及钢带》 GB/T4237-2007《低合金钢焊条》 GB/T5118-1995《金属覆盖层钢铁制品热镀锌层技术要求》 GB/T13912-2002《碳钢焊条》 GB/T5117-2012《碳素结构钢》 GB/T700-2006《碳素结构钢和低合金结构钢热轧薄钢板及钢带》GB/T912-2008《碳素结构钢和低合金结构钢热轧厚钢板及钢带》GB/T3274-2007《优质碳素结构钢》 GB/T699-1999胶类及密封材料规范:《幕墙玻璃接缝用密封胶》 JC/T882-2001《干挂石材幕墙用环氧胶粘剂》 JC887-2001《建筑密封材料试验方法》 GB/T13477.1~20-2002 《建筑用硅酮结构密封胶》 GB16776-2005《建筑用岩棉、矿渣棉绝热制品》 GB/T19686-2005《建筑装饰用天然石材防护剂》 JC/T973-2005《绝热用岩棉、矿棉及其制品》 GB/T11835-2007《硫化橡胶或热塑性橡胶撕裂强度的测定》 GB/T529-2008《石材用建筑密封胶》 JC/T883-2001《中空玻璃用丁基热熔密封胶》 JC/T914-2003五金件规范:《紧固件螺栓和螺钉通孔》 GB/T5277-1985《紧固件公差螺栓、螺钉、螺柱和螺母》 GB/T3103.1-2002《紧固件机械性能不锈钢螺母》 GB/T3098.15-2000《紧固件机械性能不锈钢螺栓、螺钉、螺柱》 GB/T3098.6-2000《紧固件机械性能抽芯铆钉》 GB/T3098.19-2004《紧固件机械性能螺母、细牙螺纹》 GB/T3098.4-2000《紧固件机械性能螺栓、螺钉和螺柱》 GB/T3098.1-2010《紧固件机械性能自攻螺钉》 GB/T3098.5-2000《螺纹紧固件应力截面积和承载面积》 GB/T16823.1-1997《十字槽盘头螺钉》 GB/T818-2000相关物理性能等级测试方法:《玻璃幕墙工程质量检验标准》 JGJ/T139-2001《玻璃幕墙光学性能》 GB/T18091-2000《建筑幕墙气密、水密、抗风压性能检测方法》 GB/T15227-2007《建筑幕墙抗震性能振动台试验方法》 GB/T18575-2001《建筑幕墙平面内变形性能检测方法》 GB/T18250-2000《建筑装饰装修工程质量验收规范》GB50210-20013.设计及施工中应遵循的强制性条款:(1)、幕墙胶A.隐框和半隐框玻璃幕墙,其玻璃与铝型材的粘接必须采用中性硅酮结构密封胶;全玻幕墙和点支承幕墙采用镀膜玻璃时,不应采用酸性硅酮结构密封胶粘结。
一幕墙分类1、明框玻璃幕墙:1)明框干式装配幕墙。
2)明框湿式装配幕墙。
3)明框混合装配幕墙。
2、隐框玻璃幕墙:1)全隐框玻璃幕墙(外带金属扣件或全用结构胶连接)。
2)半隐框玻璃幕墙(横隐竖明或竖隐横明)。
3、全玻璃幕墙:1)座立式单层全玻幕墙(后置式、骑缝式、平齐式、突出式)。
2)跨层全玻幕墙(突出墙面式、平齐墙面式、内嵌墙面式)。
3)悬挂全玻幕墙(厚度10㎜,高度4m以上;厚度12㎜,高度5m以上;厚度15㎜,高度6m以上;厚度19㎜,高度7m以上。
)4、点支式玻璃幕墙:根据支撑结构可分为:工形截面钢架、格构式钢架、柱式钢桁架、鱼腹式钢架、空腹弓形钢架、单拉杆弓形钢架、双拉杆梭形钢架、拉杆(索)形式一、拉杆(索)形式二。
1)金属结构点支式玻璃幕墙(目前采用最多的结构类型)。
2)点支式全玻璃幕墙(支撑结构是玻璃板)。
3)杆(索)式支撑结构(支撑结构是不锈钢拉杆或拉索)。
4)平面网索结构(支撑结构是拉索)。
5、双层通风玻璃幕墙(以称为呼吸式玻璃幕墙)1)封闭式内通风玻璃幕墙(多用于北方建筑以取暖为主)。
2)敞开式外通风玻璃幕墙(多用于南方建筑以散热为主)。
6、光电玻璃幕墙:(太阳能电池基本单元+太阳能板+光电玻璃幕墙单元+光电玻璃幕墙)。
电池表面形态与光能利用率的关系7、智能玻璃幕墙:广义上分为几部分:热通道幕墙、通风系统、遮阳系统、空调系统、环境监测系统、智能化控制系统。
8、自洁玻璃幕墙(在玻璃外表面上被覆特殊的涂层,达到自行清洁功能)。
9、光致变色玻璃幕墙(随着温度的变化自动从透明变为半透明或到不透明,温低时变成透明,温高时变成不透明的白色)。
10、电致玻璃幕墙(通电后阳光强时玻璃呈现蓝色,阳光弱时玻璃无色)。
11、电热玻璃幕墙(在玻璃之间加上电热丝,吸光后自动变热玻璃,自动减少冰花和水汽,减少玻璃上结露)。
12、玻璃装饰板幕墙:1)镭射玻璃装饰板2)微晶玻璃装饰板3)幻影玻璃装饰板4)彩釉钢化玻璃装饰板5)其它玻璃装饰板(水晶玻璃、珍珠玻璃、彩金玻璃、彩雕玻璃、宝石玻璃)。
第二章:150系列横隐竖明框幕墙(墙角区)单跨结极计算书 1 基本参数1.1 幕墙所在地区:太仓地区;1.2 地面粗糙度分类等级:幕墙属于外围护极件,按《建筑结极荷载规范》(GB50009-2001)A 类:指近海海面和海岛、海岸、湖岸及沙漠地区;B 类:指田野、乡村、丛林、丘陵以及房屋比较稀疏的乡镇和城市郊区;C 类:指有密集建筑群的城市市区;D 类:指有密集建筑群且房屋较高的城市市区;依照上面分类标准,本工程按B 类地形考虑。
1.3 抗震烈度:根据国家规范《建筑抗震设计规范》(GB50011-2001 2008版),太仓地区地震基本烈度为7度,地震动峰值加速度为0.1g ,水平地震影响系数最大值为:αmax =0.08。
2 幕墙承受荷载计算2.1 风荷载标准值的计算方法:幕墙属于外围护极件,按建筑结极荷载规范(GB50009-2001 2006年版)计算:w k =βgz μz μs1w 0 ……7.1.1-2[GB50009-2001 2006年版]上式中:w k :作用在幕墙上的风荷载标准值(MPa);Z :计算点标高:24m ;βgz :瞬时风压的阵风系数;根据不同场地类型,按以下公式计算(高度不足5m 按5m 计算):βgz =K(1+2μf )其中K 为地面粗糙度调整系数,μf 为脉动系数A 类场地: βgz =0.92×(1+2μf ) 其中:μf =0.387×(Z/10)-0.12B 类场地: βgz =0.89×(1+2μf ) 其中:μf =0.5(Z/10)-0.16C 类场地: βgz =0.85×(1+2μf ) 其中:μf =0.734(Z/10)-0.22D 类场地: βgz =0.80×(1+2μf ) 其中:μf =1.2248(Z/10)-0.3对于B 类地形,24m 高度处瞬时风压的阵风系数:βgz =0.89×(1+2×(0.5(Z/10)-0.16))=1.6637μz :风压高度变化系数;根据不同场地类型,按以下公式计算:A 类场地: μz =1.379×(Z/10)0.24当Z>300m 时,取Z=300m ,当Z<5m 时,取Z=5m ;B 类场地: μz =(Z/10)0.32当Z>350m 时,取Z=350m ,当Z<10m 时,取Z=10m ;C 类场地: μz =0.616×(Z/10)0.44当Z>400m 时,取Z=400m ,当Z<15m 时,取Z=15m ;D 类场地: μz =0.318×(Z/10)0.60当Z>450m 时,取Z=450m ,当Z<30m 时,取Z=30m ;对于B 类地形,24m 高度处风压高度变化系数:μz =1.000×(Z/10)0.32=1.3233μs1:局部风压体型系数;按《建筑结极荷载规范》GB50009-2001(2006年版)第7.3.3条:验算围护极件及其连接的强度时,可按下列规定采用局部风压体型系数μs1:一、外表面1. 正压区 按表7.3.1采用;2. 负压区— 对墙面, 取-1.0— 对墙角边, 取-1.8二、内表面对封闭式建筑物,按表面风压的正负情况取-0.2或0.2。
半隐框、隐框、开启扇玻璃板块单元制作半隐框、隐框、开启单元的是通过结构硅胶与铝合金框于工厂粘结成玻璃板块单元。
加工工艺如下:工序:材料到厂→质检→型材下料→加工零件(立柱、竖框、横框等)→安装组框→注结构胶→幕墙单元→质检审查→包装→运输到工地注:每一工序完成转到下一工序时,均有质检人员进行检查签字;注胶七天后,开启单元才可移动。
1.型材的加工尺寸、组装精度玻璃板块单元主要竖向构件及主要横向构件的加工及组装尺寸允许偏差按规范要求。
2. 半隐框玻璃单元制作玻璃切裁、磨边、钻孔、镀膜、钢化等加工工序由玻璃供应厂商负责。
玻璃幕墙单元组框制作、打胶加工均在本公司加工厂内进行。
2.1 铝框的装配铝型材下料后,应在专门的工作台上进行装配。
装配工作台表面应平整。
装配后的铝框应进行下列项目检查:2.2.1.1 高宽长度差;2.1.2 框对角线长度差;2.1.3 料之间的装配缝隙;2.1.4 邻铝料之间的平整度。
量测对边长度和对角线长度应采用钢板尺,不应采用钢卷尺,因钢卷尺较软,在量测时有垂度,产生量测误差。
在大批量装配同一规格的铝框时,应在工作台上设置胎具,按固定胎具装配,保证铝框装配的一致性。
当然,胎具的内尺寸应事先严格检验。
此外,要检查装配时自攻螺丝是否伸入铝框的玻璃槽内,如果自攻螺丝的尖端接触玻璃的边缘,则有可能使玻璃破裂。
2.2 半隐框组件玻璃与槽口的配合尺寸2.2.1 半隐框组件玻璃与铝框之间的空隙在水平力(风力和地震力)作用下,玻璃幕墙随主体结构产生侧向位移,铝框由矩阵变为菱形、平行四边形,如果玻璃与铝框之间的空隙留得过小,则铝框会挤压玻璃而使玻璃破碎。
因此,玻璃与铝框之间周边空隙应符合一下要求:Δ≤2c1(1+h c1/b c2)式中:Δ——分格上下框相对水平位移允许值;b——铝框净宽;h——铝框净高;c1——玻璃与铝框两侧的平均空隙;c2——玻璃与铝框上、下的平均空隙。
2.2.2 密封明框组件玻璃与铝框之间的装配空隙,必须用建筑密封胶(耐候胶)予以密封,要求注胶均匀,密实,无气泡。
竖明横隐玻璃幕墙施工方案本工程竖明横隐玻璃幕墙玻璃采用204*65*3断桥铝合金明框立柱(6063-T6)材质骨架:断桥铝合金幕墙型材骨架(6063-T6),铝型材室外粉末喷涂,平均膜厚≥60um:钢材采用Q235B碳素结构钢,表面均采用热浸镀锌防腐处理:铝型材及型钢断面、规格、中距等详见设计图纸: 面层:中透光双银LOW-E+12A+8双钢化中空玻璃;其它:满足现行施工验收规范和设计施工图说明的主要施工工艺技术要求以及招标要求的规定;施工方法如下1、施工流程幕墙施工顺序:测量放线→埋件处理→安装立柱→安装横梁→避雷安装→安装背板→安装防火封修→安装玻璃板块→打胶→清理2、施工方法2.1放线定位:土建结构施工结束后,施工队伍进场后首先进行测量定位,测量出土建结构偏差,为施工做好准备,测量后需确定安装基准线,包括龙骨排布基准及各部分幕墙的水平标高线,为各个不同部位的幕墙确定三个方向的基准。
2.2埋件处理说明:根据我国现行行业标准《玻璃幕墙工程技术规范》JGJ102-2007规定:幕墙构件与混凝土结构通过埋件连接,埋件分为预埋件和后补埋件,预埋件在主体结构混凝土施工时埋入。
后补埋件现场补打安装。
本工程将安排安装人员配合土建预埋设埋件,待整体土建工程完工并在幕墙安装命令下达后,对埋设部位进行全面检查、校正,对不合格或尺寸误差较大的位置予以调整,以保证预埋质量。
2.3连接件安装:对埋件及钢结构进行全面测量后,进行连接件的安装,其工序如下:2.3.1熟悉图纸:了解前段工序的变化更改及设计变更。
2.3.2熟悉施工现场:施工现场的熟悉包括两方面的内容,一、是对已施工工序质量的验收;二、是对照图纸要求对下步工作的安排。
2.3.3寻准埋件及连接安装位置:安装连接件时首先要寻找埋件及连接安装位置,才能很准确地安装连接件。
2.3.4对照竖梁垂线:竖梁的中心线也是连接件的中心线,故在安装时要注意控制连接件的位置,其偏差小于2mm。
前言玻璃隐框、半隐框幕墙工程结构形式多种多样,多年来都没有得到较好的总结和整理,导致不同系统之间型材的通用性差,开模数量巨大。
给工程加工安装和工程投标设计带来了诸多不利,直接导致工程成本上升。
为满足公司要求优化设计,降低成本,提高设计效率的需要,更好地利用公司现有的技术资源,实现标准化设计。
我室根据2008年开发设计任务书,针对我公司历年来所设计施工的隐框、半隐框幕墙工程,在经过多方比对整理,归纳的基础上,重新设计出本套隐框、半隐框幕墙系统图集,供今后施工工程设计直接选用。
适用范围本图集适用于一般民用与工业建筑外墙玻璃隐框、半隐框幕墙工程,以及既有建筑外墙玻璃隐框、半隐框幕墙装饰改造工程。
本图集供凌云设计人员及工程人员参考使用,实际工程中应按照国家、地方相应标准和规范做出针对该工程的施工图及详细的计算报告。
图集内容本图集将隐框、半隐框幕墙分为普通全隐框、竖明横隐和横明竖隐玻璃幕墙和小单元全隐框、竖明横隐和横明竖隐玻璃幕墙两种系列形式,这样共有五种形式幕墙系列,如下表所示:A全隐框系列1. 普通框架系统:B竖明横隐框系列C横明竖隐框系列2.节能框架系统:D竖明横隐框系列E横明竖隐框系列3.小单元幕墙F隐框\半隐框系列本图集综合说明我公司以往设计施工的隐框、半隐框幕墙中,有相当一部分是没有断热措施的,随着《公共建筑节能标准》的实施,对幕墙的节能设计提出了新的要求,因此,本次图集设计整理时采用了两套方案:一套为普通的不带断热冷桥的幕墙形式,一套为带断热冷桥的幕墙形式。
以方便设计人员根据业主的不同需求来选用。
本图集的两套方案主要的差别在横竖主龙骨,一个加了断热冷桥,一个没有断热冷桥。
其余的构造形式基本一样,这样可以使小的附件最大范围的达到统一,安装和加工工艺也有较好的通用性,有利于标准化运作,因此,对于这两套图纸的选用,采用统一的说明如下:(一)型材和连接设计:1.本图集型材截面的宽度尺寸尽量选用70mm不变。
半隐枢,竖明横隐的施工工艺流程下载温馨提示:该文档是我店铺精心编制而成,希望大家下载以后,能够帮助大家解决实际的问题。
文档下载后可定制随意修改,请根据实际需要进行相应的调整和使用,谢谢!并且,本店铺为大家提供各种各样类型的实用资料,如教育随笔、日记赏析、句子摘抄、古诗大全、经典美文、话题作文、工作总结、词语解析、文案摘录、其他资料等等,如想了解不同资料格式和写法,敬请关注!Download tips: This document is carefully compiled by theeditor.I hope that after you download them,they can help yousolve practical problems. The document can be customized andmodified after downloading,please adjust and use it according toactual needs, thank you!In addition, our shop provides you with various types ofpractical materials,such as educational essays, diaryappreciation,sentence excerpts,ancient poems,classic articles,topic composition,work summary,word parsing,copy excerpts,other materials and so on,want to know different data formats andwriting methods,please pay attention!半隐枢,竖明横隐:精湛施工工艺流程解析在建筑装饰领域,半隐枢和竖明横隐的施工工艺是一种高级而独特的设计手法,它以精细的工艺和巧妙的结构,赋予空间以独特的视觉效果和使用体验。
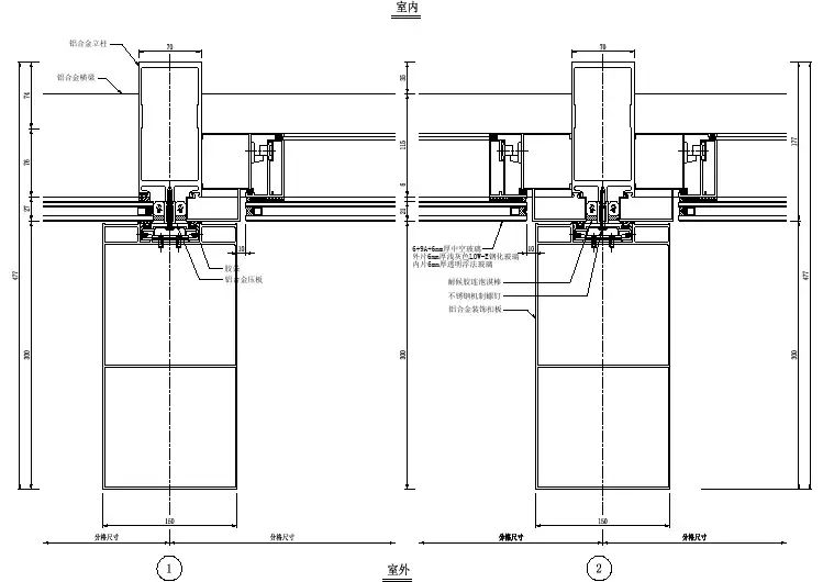
1、半隐框(横隐竖明)玻璃幕墙(幕墙所在的具体楼号、哪个立面、楼层标高均要说明)
面板:TP8 +12A+TP8中空玻璃;
龙骨1:拉栓隔热式铝合金型材;
龙骨2:铝合金型材;
构造设计及其特点:
1)、节能:在冬季,隔热型材能够减少1/3的通过铝框散失的热量,在夏季,如果是在有空调的情况下,能有效地减小能耗,降低空调负荷。
2)、冷凝:隔热型材的内表面温度与室内温度接近,降低室内空气中的水份因过饱和而冷凝在型材表面的可能性。
3)、色彩选择灵活:室外型材与室内型材通过隔热断桥分开,可分别进行表面处理,因而内外型材可根据需要做成不同的颜色。
4)、立柱与主体结构之间采用螺栓连接,通过三维调整消除主体结构及幕墙施工误差的不利影响;横梁与立柱间采用贯通立柱的不锈钢螺栓连接,具有较强的传力能力及抗横梁扭转的能力。
5)、玻璃板块横向通过定距压块与横梁连接,竖向通过铝合金压板、M6不锈钢螺栓与立柱连接,使板块与骨架间处于活动连接状态,保证板块具有较好的变形性能,并可承受较大的荷载。
玻璃板块的承重铝托条与铝合金副框间采用插接及定位螺钉的结构形式,连接可靠性较高。
6)、主次龙骨均采用封闭的腔体,可增强幕墙抵抗由自重产生的扭矩及外力对幕墙作用。
7)、室内采用硬度为邵氏A60±5 的三元乙丙胶条,于加工厂内穿好后进入施工现场,室外采用硬度为邵氏A60±5 的三元乙丙胶条,于面板安装后采用后塞压的密封方式,并在胶条塞好后进行打胶处理,不但提高幕墙的水密性,也加强了幕墙的气密性。
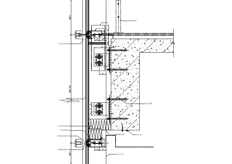
8)、幕墙开启扇的窗扇和窗框都采用45°组角的方式进行加工,并在开启框的角部增加不锈钢组角钢片加强角部连接,提高开启框角部的平整度;不但保证开启
扇及开启框的整体稳定性,也保证其加工的精度,并在组角部位注入组角胶,防
止雨水因组角过程中出现的毛细孔而渗入到室内的现象。
9)、开启扇采用吊挂式,适合于做大板面翻窗,其受力状况比传统铰链合理,变形
小,更是节省了一对铰链,造价更便宜。
为了增加开启扇的安全性,在开启扇上部
设置了通长的开启扇挡板。
10)、开启扇设置两道硬度为邵氏A40±5 的三元乙丙胶条进行密封,并在外侧设
有披水胶条。
11)、玻璃与立柱、玻璃与横梁之间安放隔热胶条,不但起到定位块的做用,还可
以对幕墙的隔热性能、幕墙防水性能以及幕墙的气密性能都有一定的提高。
12)、幕墙的连接部位采取了防摩擦噪音及防腐措施,均在接触部位安装了2mm厚
的橡胶垫片。
13)、由于本工程楼层较高(标准层除外),铝合金幕墙立柱无法满足强度要求,
我公司根据工程需要,采用钢材外包铝型材的处理方式,即满足了幕墙强度的要
求,而且保有了铝型材的质感。
标准幕墙形式及节点图如下:
大样图
纵剖标准节点图
横部标准节点图
开启扇横剖节点图
开启扇纵剖节点图
第4页。