LDA型电动单梁起重机参数
- 格式:docx
- 大小:8.22 KB
- 文档页数:1
LDA型电动单梁起重机参数LDA型电动单梁起重机是一种常用的起重设备,适用于各种场合的重物起吊操作。
它具有结构简单、操作方便、负载能力大等优点,被广泛应用于工厂、仓库、物流中心等场所。
下面我们将详细介绍LDA型电动单梁起重机的参数。
1.负载能力:LDA型电动单梁起重机的负载能力通常为1吨至20吨之间,用户可以根据实际需求选择适合的负载能力。
2.起重高度:LDA型电动单梁起重机的起重高度通常为6米至30米之间,用户可以根据不同场合的需求选择合适的起重高度。
3.起升速度:LDA型电动单梁起重机的起升速度通常为8米/分钟至20米/分钟之间,具有快速、平稳的起升效果。
4.工作级别:LDA型电动单梁起重机的工作级别通常为A3级别,适用于轻型起重作业。
如果需求更高的工作级别,可以选择A5级别的产品。
5.控制方式:LDA型电动单梁起重机的控制方式通常为手动控制和无线遥控两种方式,用户可以根据需要选择适合的控制方式。
6.电动机:LDA型电动单梁起重机采用全封闭式鼠笼式轻型起重电动机,具有低噪音、高效率、低能耗等优点。
7.主要构件:LDA型电动单梁起重机的主要构件包括单梁、起升机构、运行机构、电气设备等,结构简单、运行可靠。
8.安全保护:LDA型电动单梁起重机配备了各种安全保护装置,如超载保护、限位保护、断电保护等,确保操作人员和设备的安全。
9.安装方式:LDA型电动单梁起重机支持多种安装方式,如固定式、悬挂式、悬臂式等,适合不同场合的安装需求。
总的来说,LDA型电动单梁起重机是一种实用的起重设备,具有负载能力大、起升速度快、操作方便等优点,适用于各种场合的起重作业。
用户在选择LDA型电动单梁起重机时,应根据实际需求确定负载能力、起重高度、控制方式等参数,确保选购到适合自己需求的产品。
LD电动单梁起重机使用说明书1、产品简介综述LD-A型电动单梁起重机(以下简称起重机)是按JB/T1306-1994标准设计制造的,与CD1、MD1等形式的电动葫芦配套使用,成为一种油运行轨道的轻型起重设备。
其额定载荷1t~10t;跨度~,适应温度-25℃~+40℃,湿度≤85﹪,无火灾,爆炸危险和腐蚀性介质环境中工作,禁止吊运熔化金属,有毒、易燃、易爆物品。
为方便用户,设有地面和操纵室两种操纵形式,操纵室又设有端面及侧面开门两种形式,供用户选择使用。
本产品广泛用于机械制造,装配,仓库等场所。
机构特点主梁采用钢板压延成形的U型槽,再与工字钢组焊成箱形腹梁,横梁也是用钢板压延成U型槽组焊成箱形横梁,为贮运方便,主、横梁之间用高强度螺栓连接。
本产品是采用分别驱动形式,驱动制动靠锥形电动机来完成,传动是采用“开→闭”“闭→开”式齿轮传动。
本产品所运行电机为单速异步电动机,运行速度:地面操作20 m/min、30 m/min;操纵室作为45 m/min、60 m/min、75 m/min。
起重机设有安全装置,可靠性高。
电动葫芦电动葫芦可起升重物,并沿主梁纵向移动,其结构特征点详见有关电动葫芦说明书。
a)地面操纵、起重量3t、跨度、工作级别A表示方法为:.5表示方法:.b)操纵室操纵、起重量5t、跨度、工作级别A5表1续(一)表1续(二)表1续(三)表1续(四)4.安装图2-1 用于10t图2-2 用于1-5主横梁连接△=8~12mmA)轨道跨度公差:±5mmB)轨道顶面标高差:≤S/1000mmC)轨道接头公差:2~3mmD)轨道弯曲公差:±3mmE)轨道倾斜度:L/1000~L/2000上式:S—起重机跨度 L—轨道长度图3 平面集电器安装图4 软缆供电安装5使用试车在无载荷情况下,接通电源,开动并检查各运转机构控制系统和安全装置均应灵敏准确,安全可靠方可使用。
不准超过起重机额定载荷起重。
L D单梁起重机说明书 Company number:【0089WT-8898YT-W8CCB-BUUT-202108】LD电动单梁起重机使用说明书1、产品简介综述LD-A型电动单梁起重机(以下简称起重机)是按JB/T1306-1994标准设计制造的,与CD1、MD1等形式的电动葫芦配套使用,成为一种油运行轨道的轻型起重设备。
其额定载荷1t~10t;跨度~,适应温度-25℃~+40℃,湿度≤85﹪,无火灾,爆炸危险和腐蚀性介质环境中工作,禁止吊运熔化金属,有毒、易燃、易爆物品。
为方便用户,设有地面和操纵室两种操纵形式,操纵室又设有端面及侧面开门两种形式,供用户选择使用。
本产品广泛用于机械制造,装配,仓库等场所。
机构特点主梁采用钢板压延成形的U型槽,再与工字钢组焊成箱形腹梁,横梁也是用钢板压延成U型槽组焊成箱形横梁,为贮运方便,主、横梁之间用高强度螺栓连接。
本产品是采用分别驱动形式,驱动制动靠锥形电动机来完成,传动是采用“开→闭”“闭→开”式齿轮传动。
本产品所运行电机为单速异步电动机,运行速度:地面操作20 m/min、30 m/min;操纵室作为45 m/min、60 m/min、75 m/min。
起重机设有安全装置,可靠性高。
电动葫芦电动葫芦可起升重物,并沿主梁纵向移动,其结构特征点详见有关电动葫芦说明书。
表示方法为:.a)地面操纵、起重量3t、跨度、工作级别A5b)操纵室操纵、起重量5t、跨度、工作级别A表示方法:.53、性能参数表1续(一)表1续(二)表1续(三)表1续(四)4.安装图2-1 用于10t图2-2 用于1-5主横梁连接△=8~12mmA)轨道跨度公差:±5mmB)轨道顶面标高差:≤S/1000mmC)轨道接头公差:2~3mmD)轨道弯曲公差:±3mmE)轨道倾斜度:L/1000~L/2000上式:S—起重机跨度 L—轨道长度图3 平面集电器安装图4 软缆供电安装5使用试车在无载荷情况下,接通电源,开动并检查各运转机构控制系统和安全装置均应灵敏准确,安全可靠方可使用。
LD A20—16.5电动单梁起重机计算书第一节型式及主要技术参数一.型式及结构特点它的主梁结构由上翼缘板,两侧腹板,斜盖板.工字钢等焊接组成箱形实腹板梁.横梁用钢板压延成U形槽钢,再组焊成箱形横梁.主.横梁之间用高强度螺栓连接而成.起升机构与小车运行机构采用电动葫芦.大车运行机构采用分别驱动形式. 驱制动靠锥形制动电机来完成.其外形见图1.二.主要技术参数起重量Q=20吨; 跨度L=16.5米; 大车运行速度V运= 20 米/分;工作制度中级J C=25%; 电动小车采用20吨电动葫芦. 葫芦最大轮压P max=葫芦起升高度=9米; 葫芦运行速度V小车 =20 米/分; 电动葫芦自重G=2450公斤; 空操.20吨电动单梁起重机基本技术参数第二节主梁计算一.主梁断面几何特性根据系列产品设计资料,初步给出主梁断面尺寸,如图2。
拟采用工字钢I40 b(GB706-88),查得尺寸参数为;h=400mm,b=144m, d=12.5mm, t=16.5mm, F j=94.112cm2, g1=73.878kg/m, I x=22800cm4,I y=692cm41.梁断面面积;F=F盖+F腹+F工+F强=1.2×59.2+2(76.2×0.6)+2(40×0.6)+94.112+12.4×1.2=318cm22.梁断面水平形心轴X-X位置ΣF i·Y ixY1=ΣF i式中;ΣF i--主梁断面的总面积(cm2)ΣF i·Y ix—各部分面积对X'-X'轴的静矩之和(cm3)Y ix--各部分面积形心至X'-X'轴的距离(cm)71.04×130.6+90×92.5+48×39.1+94.112×21.2+14.88×0.6Y1= 318=67. 56(cm)3.主梁断面惯性矩;J X =ΣF xi+ΣF i·Y i259.2×1.23 753×0.6= +59.2×1.2×63.053+2×+2×0.6×75×24.952 +12 122×0.6×(40×cos37.345)312.4×1.2 3+2×0.6×40×28.352+22800+94.112×46.352+12 12+12.4×1.2×66.962=654138.6cm2J y=ΣJ y i+ΣF i·X i21.2×59.23 75×0.630.63×(40×cos37.345)= +2×+2×0.6×75×26.22+2× +12 12 121.2×12.432×0.6×(40×cos37.345)×26.22+692 +12=109773.1cm4二.主梁强度的计算根据这种结构形式起重机的特点,不考虑水平惯性力对主梁造成的应力,及其水平平面内载荷对主梁的扭转作用也可忽略不计。
TIAN SHENG 大连渤海起重机器股份有限公司电动单梁起重机安装使用维护说明书中国·大连目录一、产品简介。
2二、外形总图.。
5三、性能参数.。
9四、结构概述.。
10五、安装与调整.。
12六、运转试验.。
14七、起重机使用要点.。
16八、维护与保养.。
16九、易损件明细表.。
17一产品简介LDA型电动单梁桥式起重机(以下简称起重机)是按JB/T1306-2008标准设计制造的,与CD1、MD1等型号的电动葫芦配套使用,成为一种有轨运行的轻小型起重机。
起重量为1~20吨,使用跨度为5~31.5米,工作温度-250C~+400C,湿度≤84%,在无火灾、爆炸和腐蚀性介质的环境中工作,并禁止吊运液态金属,有毒、易燃、易爆物品。
为方便用户,设有地面和操纵室两种操纵形式。
操纵室又分端面和侧面开门两种,供用户选择使用。
本产品,多用于机械制造,机械装配及仓库等场所,其结构特点如下:1、金属结构部分主梁一般采用钢板压制成型的U形槽或整块钢材拼接成U形,与工字钢组焊成箱形实腹梁。
横梁也是用钢板压制成U形槽,大吨位大跨度采用钢板对焊,在组焊成箱形实腹梁,为方便运输,主、横梁之间用高强度螺栓连接。
2、电动葫芦:电动葫芦用以起升重物,并沿主梁纵向移动,其结构特点详见电动葫芦说明书。
3、运行机构:本产品采用分别驱动形式,由锥形制动电动机来完成,减速装置采用“一开一闭”式齿轮减速传动。
4、电气设备:本公司产品配套运行电动机为锥形制动异步电动机。
电动葫芦及整机运行均设有安全装置,如:起升限位开关、大车终点限位开关等。
5、产品规格型号示例:例:起重量10吨,跨度22.5米,工作级别A5,地面操纵。
LDA 10 -- 22.5 A5 D(S)地面操纵(操纵室操纵)工作级别5级跨度22.5米起重量10吨电动单梁起重机≥30010TH1H2350350600 C2 C1S图一地操外形总图图二地操俯视总图WB6≥30010TH1H2350350600 C2 C1S图三空操外形总图7图四空操俯视总图WB6009008三、性能参数序号名称型号LDA-D LDA-S1 起重量Gn1~20t2 操纵形式地操空操3 大车运行速度V20m/min30m/min45m/min60m/min75m/min4 小车运行速度V20(30)m/min5 起升速度V1 3.5(3.5/3.5)~8(8/0.8)6 起升高度H6、9、12、18、24、30 m7 工作级别A3~A58 电源3相50Hz 380V9 车轮直径mm Ф270 Ф38010 轨道面宽mm 37~7011 H1 mm 490~210012 H2 mm 810~253513 C1 mm 1274~189314 C2 mm 796~129315 W mm 2000 2500 300016 B mm 2500 3000 3500以上参数仅供参考,具体数据以实物或用户要求匹配。
1T挂式480x3104905708605x300x250 31.425b 5x210 16.55X290x3153.6 5x2400x303928 800 337 35568.5 828 358 35669 852 379 35779.5 879 400 358710 903 421 359810.5 931 442 360811 955 463 361911.5 982 484 362912 1006 505 3640 12.5 1077 526 36505x2900x30 0 43513 1101 547 366113.5 1129 569 367114 1152 589 3683 14.5 1278 610 3693595 5x350x300 37.35x340x3404.515 1306 632 370315.5 1337 653 371616 1364 674 372916.5 1395 695 374317 1422 716 3756 17.5 1566 838 3769530 650 5x350x35039.328b 5x235 18.45x340x365 4.95x3400x3047318 1595 862 378318.5 1629 886 379619 1658 910 3809 19.5 1691 934 3822580 7005x350x35041.25x340X415 5.520 1770 968 383520.5 1805 982 384821 1834 1006 386221.5 1870 1030 387522 1899 1054 3888 22.5 1935 1078 39022T挂式480x3104905708605x300X25033.425b 5x21016.55x290x3153.65x2400X300 392 8 816 337 35568.5 844 358 35669 870 379 35779.5 898 400 358710 923 421 359810.5 953 442 360811 978 463 361911.5 1062 484 362959537.35x340x340 4.512 1088 505 364012.5 1162 526 36505x2900x3000 435 13 1190 547 366113.5 1221 569 367114 1248 589 368314.5 1374 694 36935807005x350x35041.2 28b5x235 18.45x340x4155.515 1404 718 370315.5 1439 742 371616 1469 766 372916.5 1504 790 374317 1534 814 375617.5 1790 923 3769560x310660 80013605x400X400 47.130b5x265 20.85x390x495 7.65x3400x400473 18 1824 950 378318.5 1866 976 379619 1900 1003 380919.5 2338 1029 3822785 9006x402X45061.35x325 25.55x390x5949.120 2382 1055 383520.5 2434 1082 384821 2478 1107 386221.5 2530 1135 387522 2574 1161 388822.5 2626 1187 3902LD-A电动单梁起重机参数表(天润报价用)共6页第3页吨位跨度重量工钢配件挂板25 踏面-梁顶总高抽头长U型曹Kg/m 工字钢侧板Kg/2m 隔板Kg/m 端梁规格Kg/m3T 7.5 810 359 3545挂式480x310530 6508605x300X30035.328b5x210 16.5 5x290X365 4.2 5x2400X300 392 8 836 383 35568.5 866 407 35669 892 431 35779.5 922 455 358710 948 479 359810.5 978 503 360811 1004 527 361911.5 1138 551 3629580 700 5x350X35041.2 5x235 18.45x340X4155.512 1167 574 364012.5 1246 598 36505x2900x300435 13 1276 622 366113.5 1311 646 367114 1341 670 368314.5 1526 937 3693560x310 660800 5x400X400 47.130T5x265 20.85x390X4957.615 1560 969 370315.5 1601 1001 371616 1635 1034 372916.5 1677 1066 374317 1711 1098 375617.5 2279 1130 3769560x410 745 90013606x402X45061.3 5x33025.9 5x390X4959.15x3400x400599 18 2323 1163 378318.5 2376 1195 379619 2420 1227 380919.5 2472 1260 3822600x410 820 10006x452X55079.15x330 25.95x440X694 1220 2927 1292 383520.5 2991 1324 384821 3044 1356 386221.5 3108 1389 387522 3161 1421 388822.5 3225 1453 3902LD-A电动单梁起重机参数表(湖南湘起制造公司报价用)共6页第4页吨位跨度重量工钢配件挂板25 踏面-梁顶总高抽头长U型曹Kg/m 工字钢侧板Kg/2m 隔板Kg/m 端梁规格Kg/m5T 7.5 852 485 3545挂式480X3105807208605X300X35039.330T5X235 18.5 5X290X4153.85X2400X300392 8 881 517 35568.5 913 549 35569 943 582 35779.5 975 614 358710 1005 646 359810.5 1038 678 360811 1066 711 361911.5 1241 743 3629660 8005X400X400 47.1 5X265 20.8 5X340X494 6.112 1275 775 364012.5 1357 806 36505X2900X300435 13 1391 840 366113.5 1432 872 367114 1466 904 368314.5 1825 937 3693560X310785 900 6X402X45061.3 5X330 25.95X390X595 9.115 1868 969 370315.5 1921 1001 371616 1964 1034 372916.5 2017 1066 374317 2061 1098 375617.5 2640 1130 3769560X410820100013606X452X550 79.1 5X33025.95X440X694125X3400X400599 18 2693 1163 378318.5 2757 1195 379619 2810 1227 380919.5 2874 1260 3822600X410 875 11006X452X575 81.5 5X400 31.4 5X440X79413.720 3117 1292 383520.5 3187 1324 384821 3244 1356 386221.5 3314 1389 387522 3370 1421 3888LD-A电动单梁起重机参数表(湖南湘起制造公司报价用)共6页第5页吨位跨度重量工钢配件座板16 踏面-梁顶总高抽头长U型曹Kg/m 工字钢侧板Kg/2m 隔板Kg/m 端梁规格Kg/m10T 7.5 1206 485 3890座式560x410745900 860 6x402X45061.330T5x325 25.5 5x390X5947.65x2400X400502 8 1249 517 39058.5 1300 549 39209 1344 582 39359.5 1394 614 395010 1438 646 396510.5 1489 678 398011 1533 711 399511.5 1841 743 4010820 1000 11106x452X550 79.1 5x33025.95x440X6941212 1894 775 402512.5 2006 806 40405x2900X400 550 13 2059 840 405513.5 2123 872 407014 2176 904 408514.5 2385 937 4100600x4108751100 13606x452X576 81.5 5x405 31.8 5x440X79413.715 2441 969 411515.5 2512 1001 413016 2568 1034 414516.5 2638 1066 416017 2695 1098 417517.5 3104 1130 4190975120013606x452X67690 6x40538.25x440X89415.45x3400X400599 18 3168 1163 420518.5 3248 1195 422019 3312 1227 423519.5 3392 1260 4250650x41010251250 1360盖8x550条6x75020.26x380 35.8 5x490X94218.1622 20 4085 1292 426520.5 4182 1324 428021 4260 1356 429521.5 4356 1389 431022 4434 1421 4325LD-A电动单梁起重机参数表(天润报价用)共6页第6页吨位跨度重量工钢配件座板25 踏面-梁顶总高抽头长U型曹Kg/m 工字钢侧板Kg/2m 隔板Kg/m 端梁规格Kg/m16T 7.5 1326 485 3910座式600x410 820 900 1110盖8x5006x442 7330T5x330 26 5x440x59210.25x2400x400512 8 1375 517 39258.5 1435 549 39409 1485 582 39559.5 1544 614 397010 1594 646 398510.5 1654 678 400011 1703 711 401511.5 1958 743 4030650x41087510001360盖8x5506x500825x380 305x490X692 13.3524 12 2014 775 404512.5 2132 806 40605x2900X400 572 13 2188 840 407513.5 2257 872 409014 2313 904 410514.5 2751 1189 412092511501360盖8x5506x570 93.340b条6x430 40.56x490X742 17.115 2818 1230 413515.5 2903 1271 415516 2969 1312 417016.5 3053 1353 418517 3120 1394 420017.5 3768 1435 4215700x4101025 13601360盖8x6006x750118.3 6x405 38.2 5x540842 21.4 6x3400X400666 18 3847 1476 423018.5 3946 1517 424519 4025 1558 426019.5 4677 1599 4275750x410 1125 1350 1360盖10x6506x750 131.76x49046.2 5x590X940 26.1 712 20 4766 1640 429020.5 4881 1681 430521 4970 1722 432021.5 5085 1763 433522 5173 1804 435022.5 5288 1845 4363。
LDA型电动单梁起重机参数1.起重量:LDA型电动单梁起重机的起重量通常为1吨、2吨、3吨、5吨、10吨等。
起重量的选择应根据实际需求和工作场所情况来确定,以保证起重机的工作效率和安全性。
2.起升高度:起升高度是指起重机能够将物体抬升到的最高位置。
LDA型电动单梁起重机的起升高度通常为3米、6米、9米、12米等,同时也可以根据用户需求进行定制。
起升高度的选择需要根据实际工作需求和场地空间来确定。
3.工作级别:LDA型电动单梁起重机的工作级别通常有A3、A4、A5等等。
工作级别是指起重机可以持续工作的时间和频率,通常根据起重物体的重量和工作环境的需求来确定。
A3级别适用于中低强度的起重作业,A4和A5级别适用于中高强度的起重作业。
4.起升速度:LDA型电动单梁起重机的起升速度通常为8米/分钟、7米/分钟、6米/分钟等。
起升速度的大小直接影响到起重机的工作效率,一般需要根据实际使用需求来选择适当的起升速度。
5.运行速度:LDA型电动单梁起重机的运行速度通常为20米/分钟、30米/分钟、40米/分钟等。
运行速度的选择需要综合考虑起重机的起升高度、工作环境等因素,以保证工作效率和安全性。
6.工作环境:LDA型电动单梁起重机的工作环境通常为室内环境。
起重机在使用过程中需要考虑通风、防尘、防潮等因素,避免起重机出现故障或者损坏。
总之,LDA型电动单梁起重机是一种常用的起重设备,它具有多个参数可以根据用户需求来选择和调整。
用户在购买和使用起重机时,应该充分考虑自身需求和工作环境等因素,选择适合的型号和参数,以确保起重机的工作效率和安全性。
LD型电动单梁起重机具有结构合理,整机刚性强的特点。
整机与CD1型、MD1
型电动葫芦配套使用,是一种轻小型的起重机械。
其起重量为1t-20t。
跨度为7.5-28.5m。
工作级别为A3-A4,工作环境温度为-25℃~40℃.
本产品广泛用于工厂、仓库、料场等不同场合吊运货物,禁止在易燃、易爆、腐蚀性介质环境中使用。
本厂品设有地面和操纵室两种操作形式。
操作室有开式、闭式两种,可根据实际情况分别为左或右面安装两种形式,入门方向有侧面及断面两种,以满足用户在各种不同需要的情况下进行选择。
LD电动单梁起重机使用说明书新乡市中原起重机械总厂有限公司1、产品简介1.1综述LD-A型电动单梁起重机(以下简称起重机)是按JB/T1306-1994标准设计制造的,与CD1、MD1等形式的电动葫芦配套使用,成为一种油运行轨道的轻型起重设备。
其额定载荷1t~10t;跨度7.5m~22.5m,适应温度-25℃~+40℃,湿度≤85﹪,无火灾,爆炸危险和腐蚀性介质环境中工作,禁止吊运熔化金属,有毒、易燃、易爆物品。
为方便用户,设有地面和操纵室两种操纵形式,操纵室又设有端面及侧面开门两种形式,供用户选择使用。
本产品广泛用于机械制造,装配,仓库等场所。
1.2机构特点1.2.1金属结构部分主梁采用钢板压延成形的U型槽,再与工字钢组焊成箱形腹梁,横梁也是用钢板压延成U 型槽组焊成箱形横梁,为贮运方便,主、横梁之间用高强度螺栓连接。
1.2.2运行机构本产品是采用分别驱动形式,驱动制动靠锥形电动机来完成,传动是采用“开→闭”“闭→开”式齿轮传动。
1.2.3电气设备本产品所运行电机为单速异步电动机,运行速度:地面操作20 m/min、30 m/min;操纵室作为45 m/min、60 m/min、75 m/min。
起重机设有安全装置,可靠性高。
1.2.4 电动葫芦电动葫芦可起升重物,并沿主梁纵向移动,其结构特征点详见有关电动葫芦说明书。
1.2.5产品型号注解a)地面操纵、起重量3t、跨度10.5m、工作级别A5表示方法为:LD3t-10.5A5D.b)操纵室操纵、起重量5t、跨度16.5m、工作级别A5表示方法:LD5t-16.5A5S.3、性能参数4.安装图2-1 用于10t图2-2 用于1-54.1主横梁连接4.1.1在现场将起重机运行机构的驱动装置安装在横梁上。
4.1.2按图2所示,将主横梁用螺栓连接起来,此螺栓为精制螺栓,其性能可保证主、横梁连接可靠,为更安全允许用户按图2在a、b、c处稍加间断施焊不宜焊得太满,以防变形。
LD型电动单梁桥式起重机一、简单介绍LD型电动单梁桥式起重机(以下简称起重机)是按标准JB1306-2008设计制造的,与CDI、MDI等形式的电动葫芦配套使用,成为一种有轨运行的轻小型起重机,其适用起重量为1-10吨,适用跨度为7.5~22.5米,工作环境温度在-25~+40℃范围内。
为方便用户,设有地面和操纵室两种操纵形式,操纵室又设有端面及侧面开门两种形式,以供用户选择。
本产品为一般用途起重机,多用于机械制造、装配、仓库等场所,其结构特点如下:1、金属结构部分主梁采用钢板压延成形的U形槽钢,再与工字钢组焊成箱形实腹梁。
横梁也是用钢板压延成U形槽钢,再组焊成箱形横梁。
为贮存运输方便。
主横梁之用M20螺栓(45号钢)连接而成桥架。
2、电动葫芦电动葫芦可起升重物,并沿主梁横向移动,其结构特点详见有关电动葫芦说明书。
3、运行机构本产品是采用分别驱动形式,制动靠锥形制动电机来完成,传动是“一开二闭”式三级齿轮传动。
4、电气设备本产品所用运行电动机有单速锥形鼠笼电动机(用于运行速度20、30和45米/分)地操和锥形绕线电动机(用于运行速度45、60、75米/分)驾操二种形式,随操纵形式不同,设有两种电气控制。
电动葫芦及整个起重机均设有安全装置,如起升限位开关,终点限位开关等。
5、本产品规格表示方法如下(1)地面操纵例:起重量3吨,跨度10.5米,运行速度30米/分。
表示方法:LD3-10.5-30(2)操纵室操纵例:起重量5吨,跨度16.5米,运行60米/分。
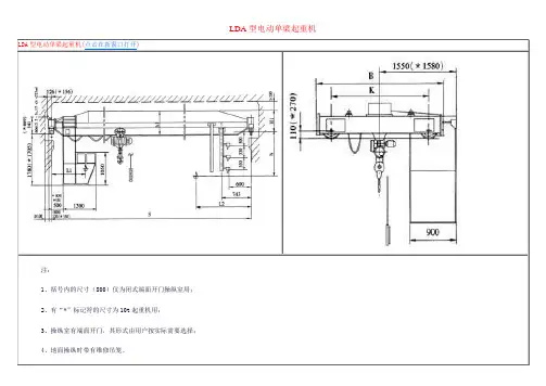
表示方法:LDC5-16.5-60二、外形总图图 1注: 厂房屋顶高度应比起重机最高尺寸≥200mm 括号内尺寸(800)仅为闭式端面开门操纵室用。
三、性能参数表1.技术规格:起 重 量跨 度中级工作制度 JC=25%主 要 尺 寸 起重机运行机构电动葫芦 电 动 机 电 源车 轮直 径 轨 面 宽 度轨面至起重机顶距离吊钩至轨面最小尺寸主梁最大厚度吊 钩 至 轨 道 中 心 距 离地 操 驾 操 驾闭操运行速度电动机 电动葫芦型式起升速度起升高度 运行速度大车轮距起重机最大宽度大车轮距起重机最大宽度大车轮距起重机最大宽度型号 功率 转速 吨L Kυ K Wυ υ1H υ2DH 1h h 1 L 1 L 2 K B K B K B米 米/分千瓦 转/分 米/分 米 米/分毫米 毫米毫 米17.5~12 30 45 60 73 45/22.5Z D Y 21-4 Z D R 12-4 Z D 22-4/81380 1380/680C D C D M D7 8 8/0.86 9 12 18 24 3020 20锥 形 鼠 笼 式3相 50H Z 380Vφ400 φ27037~70500 735 550 2000 2500 2000 2750785 600 796 1274 2500 3000 2500 3120 2500 3120 570 630815 700 3000 3500 3000 3500 3000 350012.5~17 19.5 22.527.5~12 2000 2500 2000 2750500 960 600 2500 3000 2500 3120 2500 3120 570 990 700 871.5 1292.5690 990 820 3000 3500 3000 3500 3000 350012.5~13.514~1719.5~22 3 7.5~12 500 630 2000 2500 2000 2750 3000 3500 570 700 2500 3000 2500 3120 2500 3120 690 1115 820 796 1274 770 900860 990 3000 3500 3000 3500 3000 350012.5~14.515~17 19.5 22.5 5 7.5~10.5 570 700 2000 2500 2000 2750 2500 3120690 1290 820 841.5 1310 2500 3000 2500 3120 850 990 3000 3500 3000 3500 3000 3500 870 1300 101011~12.513~17 19.5 22.5 10 7.5~10.5 705 82011~14.5885 1000 841.5 131015~17 895 1010 2500 3100 2500 3100 2500 3100 19.5 1035 115022.51085 1465 1200 3000 3600 3000 3600 3000 36002.总重及轮压吨位操纵型式跨度(m)吨位(T)7.5 8 10.5 11 13.5 14 16.5 17 19.5 22.51地操总重 1.34 1.38 1.55 1.63 2.07 2.12 2.32 2.36 3.00 3.41最大轮压0.87 0.88 0.92 0.94 1.04 1.06 1.1 1.11 1.45 1.54 驾开操总重 1.75 1.79 2.02 2.04 2.48 2.53 2.73 2.72 3.40 3.81最大轮压 1.18 1.19 1.23 1.25 1.35 1.37 1.41 1.42 1.74 1.84 驾闭操总重 1.77 1.81 2.02 2.00 2.48 2.53 2.73 2.77 3.40 3.81 最大轮压 1.19 1.20 1.24 1.26 2.47 1.37 1.41 1.42 1.74 1.842地操总重 1.60 1.65 1.90 1.95 2.26 2.39 2.64 2.69 3.85 4.60最大轮压 1.46 1.47 1.54 1.55 1.62 1.68 1.74 1.75 2.18 2.38 驾开操总重 2.01 2.06 2.31 2.36 2.67 2.79 3.04 3.09 4.25 5.00最大轮压 1.77 1.78 1.85 1.86 1.93 1.97 2.04 2.05 2.48 2.68 驾闭操总重 2.03 2.08 2.33 2.38 2.67 2.79 3.04 3.09 4.25 5.00最大轮压 1.79 1.80 1.87 1.88 1.93 1.97 2.04 2.05 2.48 2.683地操总重 1.70 1.75 2.00 2.05 2.35 2.58 2.92 2.97 4.28 4.83最大轮压 1.99 2.00 2.07 2.09 2.15 2.22 2.32 3.37 2.80 9.24 驾开操总重 2.11 2.16 2.41 2.46 2.76 2.98 3.32 3.37 4.68 5.23最大轮压 2.30 2.31 2.38 2.40 2.46 2.52 2.62 2.63 3.10 3.24 驾闭操总重 2.13 2.18 2.43 2.48 2.76 2.98 3.32 3.37 4.08 5.23最大轮压 2.32 2.33 2.40 2.42 2.46 2.52 2.62 2.63 3.10 3.245地操总重 2.00 2.05 2.30 2.48 2.88 2.94 3.24 3.30 4.57 5.65最大轮压 3.09 3.12 3.20 3.24 3.34 3.35 3.44 3.46 3.85 4.20 驾开操总重 2.41 2.46 2.71 2.89 3.29 3.35 3.65 3.71 4.97 6.05最大轮压 3.40 3.43 3.51 3.55 3.65 3.66 3.75 3.77 4.23 4.58 驾闭操总重 2.43 2.48 2.73 2.91 3.29 3.35 3.65 3.71 4.97 6.05最大轮压 3.42 3.45 3.53 3.57 3.65 3.66 3.75 3.77 4.23 4.5810地操总重 2.89 2.97 3.40 3.51 4.13 4.22 4.99 5.09 6.14 7.27最大轮压 5.51 5.53 5.64 5.67 5.81 5.83 6.03 6.05 6.32 6.60 驾开操总重 3.29 3.37 3.80 3.91 4.53 4.62 5.39 5.49 6.54 7.67最大轮压 5.81 5.83 5.94 5.97 6.11 6.13 6.33 6.95 6.44 6.71 驾闭操总重 3.39 3.37 3.80 3.91 4.53 4.62 5.39 5.49 6.54 7.67最大轮压 5.81 5.83 5.94 5.97 6.11 6.13 6.33 6.95 6.44 6.71四、安装横梁主梁图2 主梁与横梁连接1、在用户现场上将起重机运行机构的驱动装置安装在横梁上。
LD型电动单梁桥式起重机一、简单介绍LD型电动单梁桥式起重机(以下简称起重机)是按标准JB1306-2008设计制造的,与CDI、MDI等形式的电动葫芦配套使用,成为一种有轨运行的轻小型起重机,其适用起重量为1-10吨,适用跨度为7.5~22.5米,工作环境温度在-25~+40℃范围内。
为方便用户,设有地面和操纵室两种操纵形式,操纵室又设有端面及侧面开门两种形式,以供用户选择。
本产品为一般用途起重机,多用于机械制造、装配、仓库等场所,其结构特点如下:1、金属结构部分主梁采用钢板压延成形的U形槽钢,再与工字钢组焊成箱形实腹梁。
横梁也是用钢板压延成U形槽钢,再组焊成箱形横梁。
为贮存运输方便。
主横梁之用M20螺栓(45号钢)连接而成桥架。
2、电动葫芦电动葫芦可起升重物,并沿主梁横向移动,其结构特点详见有关电动葫芦说明书。
13、运行机构本产品是采用分别驱动形式,制动靠锥形制动电机来完成,传动是“一开二闭”式三级齿轮传动。
4、电气设备本产品所用运行电动机有单速锥形鼠笼电动机(用于运行速度20、30和45米/分)地操和锥形绕线电动机(用于运行速度45、60、75米/分)驾操二种形式,随操纵形式不同,设有两种电气控制。
电动葫芦及整个起重机均设有安全装置,如起升限位开关,终点限位开关等。
5、本产品规格表示方法如下(1)地面操纵例:起重量3吨,跨度10.5米,运行速度30米/分。
表示方法:LD3-10.5-30(2)操纵室操纵例:起重量5吨,跨度16.5米,运行60米/分。
表示方法:LDC5-16.5-602二、外形总图1 图200mm 注: 厂房屋顶高度应比起重机最高尺寸≥(800)仅为闭式端面开门操纵室用。
括号内尺寸3三、性能参数表1.技术规格:42.总重及轮压5装四、安主梁横梁图2 主梁与横梁连接1、在用户现场上将起重机运行机构的驱动装置安装在横梁上。
2、按图2所示,将主梁与横梁用螺栓连接起来,主梁同横梁连接面在组装前应清理干净,主横梁组装后可按标准JB/ZQ8012-88中的有关要求进行检验。
LD型电动单梁起重机技术说明LDA型电动单梁起重机技术要求LDA型电动单梁桥式起重机与电动葫芦CD1型配套使用,是一种有轨运行的轻小型起重机,本产品为一般用途起重机,多用于机械制造、装配车间及仓库等场所。
本产品分司机室和地面操作两种形式,用户可选择使用CD1型电动葫芦具有重量轻、体积小、结构紧凑、品种规格多、运行平稳等特点。
一)、单梁起重机机构起升机构由电动葫芦完成。
1、电动机为起重机专用的ZD锥型电动机,额定电压380V,额定频率50HZ,绝缘等级为F级,防护等级IP44。
2、制动器为锥型制动。
3、减速机采用电动葫芦变速箱。
4、卷筒采用铸造卷筒,钢丝绳偏角<5º,卷筒两端设有3圈安全圈和2圈固定圈。
5、吊钩为起重机专用吊钩。
6、钢丝绳为起重机专用的6×37型,强度高,寿命长。
7、小车运行机构小车运行机构由电动机、车轮组等部件构成。
7.1电动机为起重机专用的ZDY锥型电动机,额定电压380V,额定频率50HZ,绝缘等级为F级,防护等级IP44。
7.2制动器为锥型制动。
7.3减速机采用驱动装置。
7.4车轮为单轮缘。
8、大车运行机构大车运行机构由电动机、变速箱、车轮组等部件构成。
8.1电动机为起重机专用的ZDY锥型电动机,额定电压380V,额定频率50HZ,绝缘等级为F级,防护等级IP44。
8.2制动器为锥型制动8.3减速机采用LD变速箱。
8.4车轮为单轮缘。
二)、电动葫芦机构1、减速机电动葫芦减速器采用斜齿轮三级减速,齿轮及齿轮轴均采用40Cr或20CrMnTi 钢锻制加工,并经热处理,全部用滚动轴承支撑,箱壳用铸铁制造,装配严密,防尘可靠。
2、运行结构2.1电动葫芦的运行机构为电动小车式。
减速齿轮为 40Cr锻制,并经调质处理,装于封闭的减速箱内,全部采用滚动轴承支撑,墙板用钢板制造,保证运转灵活,使用方便,寿命长。
根据起升高度的不同,结构形式也有不同。
2.2运行机构所适用的工字钢轨道应按GB/T706-1998标准选择,起升高度18米以上加平衡梁小车,10吨、16吨以上起升高度6米—30米,采用电动小车二台。
LDA型电动单梁是在“LD”的基础上进行改进设计的,较“LD型”具有结构合理,整机刚性强的特点。
整机与CD1型、MD1型电动葫芦配套使用,是一种轻小型的起重机械。
其起重量为1t-10t。
跨度为,工作级别为A3-A5,工作环境温度为-25-40℃。
本产品广泛用于工厂、仓库、料场等不同场合吊运货物,禁止在易燃、易爆腐蚀性介质环境中使用。
本产品设有地面和操纵室两种操作形式,操纵室有开式、闭式两种。
可根据实际情况分为左或右面安装两种形式,入门方向
有侧面及端面两种。
以满足客户在各种不同需要的情况下进行选择。