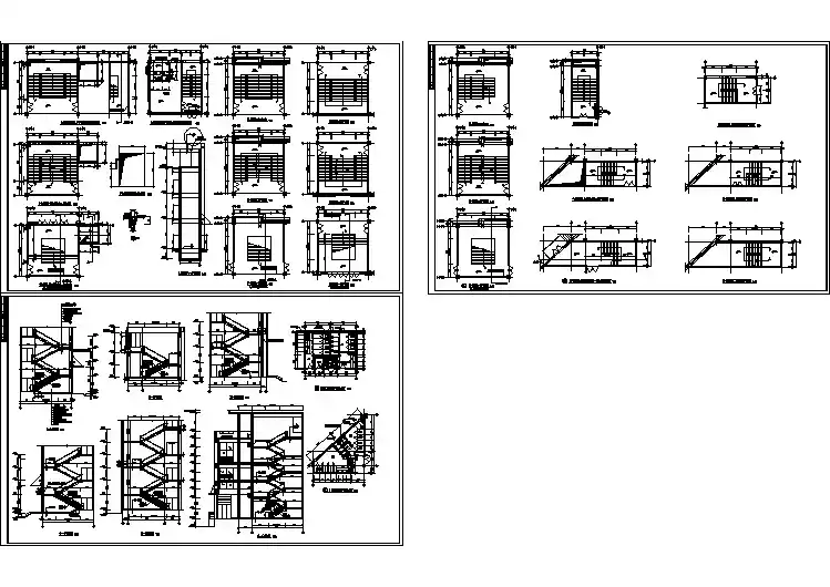
地下室楼梯间图一层楼梯间缓台平面图原有门楼梯间一层平面图大样16块GTB16块GTB说明:1.本图尺寸除标高外均以毫米计.2.本设计钢板采用Q235,焊条E43,焊缝二级,采用钢筋HRB335.3.地下室顶板及一层顶板全部凿除,.4.缓台钢板的接缝必须落在支撑上.5.施工支撑及悬挑踏步板的锚固板M1-M4时,先将混凝土墙保护层刨除,再进行植筋,然后对加工好的钢板按墙上植筋孔洞GB-1GB-2GB-1GB-1666%%13120M1%%13120666%%13120植筋深250mm66M1866480*8855R3780-5.1000.0000.0002.850楼梯板1钢板 厚6mm468210钢板 厚6mm楼梯板2梯板2111原墙梯板1端板22334466778R163010106996%%13120植筋深250mm8%%13120植筋深250mm%%13120植筋深250mm%%13120植筋深250mm888882.8505.7000.000哈尔滨工业大学建筑结构评价及处理咨询事务所审 核校 对制 图专业设计负责人设 计 .人负责术技审 定单 位 名 称责项目设计负责人计总设负人图 名楼板配筋及节点详图结加施-05工 程 编 号图 号2003.7日 期肇州县百货大楼肇州县百货大楼工 程 名 称建 设 单 位 进行开洞,再和钢筋进行塞焊,并用混凝土填实.81.本图钢板采用Q235,焊条E43,焊缝二级,采用钢筋HRB335.说明:2.一层构件尺寸括号内尺寸优先.43.植筋胶应用可焊胶,正式施工前需作施焊前后的抗拔破坏试验,保证钢 筋屈服而不被拔出,施工中抽样三个踏步作悬吊荷载试验,荷载值由设 计单位定.4.落在剪力墙开洞处的楼梯平台板支撑,预埋件M2用M4代替.梯板1植筋280(297.65)16-6M3详图22015060(167.65)(237.65)122545钢板9 厚10mm1167210210575575580R1630钢板4 144X150X6460150钢板1钢板4100钢板1钢板49-910-10平台钢板 厚6mm钢板1 242X150X6植筋4601167116711671M1详图23065钢板51001003楼梯平台支撑布置图钢板3 460X280X161008010050钢板10 250X240X166511065185657-78-8钢板9 钢板945118018035858535M4详图钢板6 270X240X16纵横支撑连接图210150190梯板1梯板2梯板1端板1 厚6mm钢板15021502-23-3R3780R163010060钢板3钢板2钢板3钢板2钢板5 厚6mm钢板5(167.65)(210)145130134134204230梯板1梯板21-1R37803010026810022865钢板2 224X150X6GTB图1451451钢板7 厚10mm8010050100钢板6 270X240X16451804565180457575453520035节点板2457575454518045钢板8 厚10mm8010080120M2详图4-4钢板7 钢板6钢板6 270X240X16钢板8652525728255-5451180X82支撑露出长度大于20mm露出长度大于20mm露出长度大于20mm露出长度大于20mm露出长度大于20mm35.M1应保证垂直及设计位置.钢板1钢板2钢板3压花钢板钢板5-2.550支撑 布置见结加施-08\P楼梯平台支撑布置图支撑 布置间距见结加施-08\P楼梯平台支撑布置图6.GB-2纵横支撑截面形式.间距及各构件连接形式同GB-1.端板1 厚6mm钢板(167.65)(210)4444280X861451梯板1梯板26梯板13垫板 厚10mm4支撑与墙连接图15008垫板 100X40X10间距600mm间距600mm1000M36M22880X826210575垫板 100X40X105801252756215057510018562106端板2 高195mm\P厚6mm84150190端板2 厚6mm楼梯端板与平台板端板连接垫板195210750028854100500090075009005000410090050004100750028859005所以完美市场部:ivpmarket@ 技术部:ivptech@网易 NetEase电气在线 编辑部:ivpinfo@==中国专业人士的网络家园;因为专业,所以完美市场部:ivpmarket@ 技术部:ivptech@网易电气在线电气设计信息网 编辑部:ivpinfo@==中国专业人士的网络家园;因为专业,所以完美市场部:ivpmarket@ 技术部:ivptech@网易土木在线电气设计信息网 编辑部:ivpinfo@==中国电气行业网络家园;因为专业,所以完美市场部:ivpmarket@ 技术部:ivptech@网易 NETEASE 网易-电气 编辑部:ivpinfo@==中国电气行业网络家园;因为专业,所以完美市场部:ivpmarket@ 技术部:ivptech@网易 NETEASE 网易-电气 编辑部:ivpinfo@==编辑部:ivpinfo@本图纸由浩辰ICAD软件提供技术支持网易 电气 中国电气行业网络家园;因为专业,所以完美网易 NETEASE ==编辑部:ivpinfo@本图纸由浩辰ICAD软件提供技术支持中国建筑行业网络家园;因为专业,所以完美网易 建筑 网易 NETEASE ==