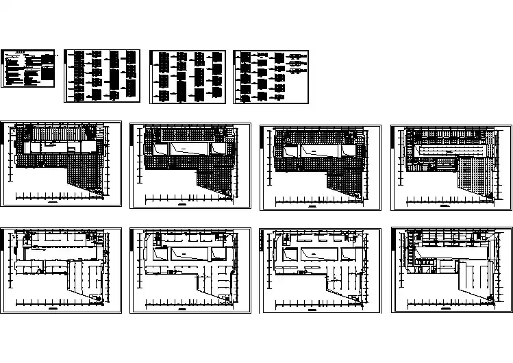
配电站照明安装大样图
- 格式:dwg
- 大小:178.30 KB
- 文档页数:1
怎么看照明系统图和照明平面图空气调节系统图的作用是表明:照明的安装容量、计算负荷;导线的型号、根数、配线方式、管径;配电箱、开关、熔断器的型号、规格等。
照明平面图的作用是表明:线路的敷设位置、敷设方式;灯具、开关、插座、配电室的安装位置、安装方法、标高等。
一、电气系统图系统图是安装图纸中必不可少的一部分,电气系统控制图即电气系统控制图例。
是用来表明巨大作用供电线路与各设备工作原理及其作用,科东俄关系的光茎一种表达方式。
如下图,就是一个系统图。
大家看到图纸,一开始肯定有些脱口而出,信息很多,我们一点点开始讲解。
系统图其实就是把这些组成部分详尽表示出来。
首先把系统图按大块分开。
系统图的展现的就是一个建筑配电箱的电缆线接线情况,如何布线通往的分配电箱以及其它线路。
二、系统图符号识别系统图是进户线→总配电箱→干管→分配电箱→支管→用电设备的过程。
原理大家应该都明白了,但是还是看不懂。
原因安装图纸都是重新安装用符号来表示,对于零基础来说,这些就是天书。
这时就要用到前面我们学习的识图知识。
(1)总配电箱尺寸电气设备安装上的字母符号大概有3000多个,记,肯定是记不住,只要了解常见的重要的字母符号示意也就可以了。
安装图纸都会给图示表,如图6所示。
看不明的找图示就可以了。
首先找到总配电箱的尺寸,如图7所示。
580*600*120是总配电箱尺寸580*600*120(长*高*厚)配电箱名称:AL0(2)总配电箱内电气原件配电箱基本上实际上都是购买的成品,算量时计算个数即可,箱内开关电源大家大概了解就行,不用刻意记忆。
(3)进线电缆前面在讲电线配管时,重要依据讲了它们的符号识别。
现在拿来实践一下,如果你还是认不清,说明前面学习的还是不扎实。
YJV22-4*95-SC100FCYJV:交联聚乙烯绝缘、聚氯乙烯护套、(铜芯)电力电缆22:铠装电缆4*95:四芯,每根95平方毫米SC100:直径为100mm的焊接钢管FC:沿地暗敷设常见电线则表示方法:L——铝T——铜(省略)J——交合Q——轻型R——软型X——镀锌J——加强型(第二个J表示含义)G——钢B——第一次出现,表示布线;第二次出现,表示平型V——第一次出现,表示聚氯乙烯(塑料的)绝缘;第二次出现,表示聚苯乙烯护套L——线芯为铝芯。
电⽓图纸中⼀些配电箱和灯具符号表⽰识别电⽓施⼯图的组成及阅读⽅法1照明灯具及配电线路的标注形式2电⽓施⼯图3Back电⽓施⼯图所涉及的内容往往根据建筑物不同的功能⽽有所不同,主要有建筑供配电、动⼒与照明、防雷与接地、建筑弱电等⽅⾯,⽤以表达不同的电⽓设计内容。
16.1.1电⽓施⼯图的特点及组成(1)建筑电⽓⼯程图⼤多是采⽤统⼀的图形符号并加注⽂字符号绘制⽽成的。
(2)电⽓线路都必须构成闭合回路。
(3)线路中的各种设备、元件都是通过导线连接成为⼀个整体的。
(4)在进⾏建筑电⽓⼯程图识读时应阅读相应的⼟建⼯程图及其他安装⼯程图,以了解相互间的配合关系。
(5)建筑电⽓⼯程图对于设备的安装⽅法、质量要求以及使⽤维修⽅⾯的技术要求等往往不能完全反映出来,所以在阅读图纸时有关安装⽅法、技术要求等问题,要参照相关图集和规范。
(1)图纸⽬录与设计说明包括图纸内容、数量、⼯程概况、设计依据以及图中未能表达清楚的各有关事项。
如供电电源的来源、供电⽅式、电压等级、线路敷设⽅式、防雷接地、设备安装⾼度及安装⽅式、⼯程主要技术数据、施⼯注意事项等。
(2)主要材料设备表包括⼯程中所使⽤的各种设备和材料的名称、型号、规格、数量等,它是编制购置设备、材料计划的重要依据之⼀。
(3)系统图如变配电⼯程的供配电系统图、照明⼯程的照明系统图、电缆电视系统图等。
系统图反映了系统的基本组成、主要电⽓设备、元件之间的连接情况以及它们的规格、型号、参数等。
(4)平⾯布置图平⾯布置图是电⽓施⼯图中的重要图纸之⼀,如变、配电所电⽓设备安装平⾯图、照明平⾯图、防雷接地平⾯图等,⽤来表⽰电⽓设备的编号、名称、型号及安装位置、线路的起始点、敷设部位、敷设⽅式及所⽤导线型号、规格、根数、管径⼤⼩等。
通过阅读系统图,了解系统基本组成之后,就可以依据平⾯图编制⼯程预算和施⼯⽅案,然后组织施⼯。
(5)控制原理图包括系统中各所⽤电⽓设备的电⽓控制原理,⽤以指导电⽓设备的安装和控制系统的调试运⾏⼯作。
电气施工图的组成及阅读方法1照明灯具及配电线路的标注形式2电气施工图3Back电气施工图所涉及的内容往往根据建筑物不同的功能而有所不同,主要有建筑供配电、动力与照明、防雷与接地、建筑弱电等方面,用以表达不同的电气设计内容。
16.1.1电气施工图的特点及组成(1)建筑电气工程图大多是采用统一的图形符号并加注文字符号绘制而成的。
(2)电气线路都必须构成闭合回路。
(3)线路中的各种设备、元件都是通过导线连接成为一个整体的。
(4)在进行建筑电气工程图识读时应阅读相应的土建工程图及其他安装工程图,以了解相互间的配合关系。
(5)建筑电气工程图对于设备的安装方法、质量要求以及使用维修方面的技术要求等往往不能完全反映出来,所以在阅读图纸时有关安装方法、技术要求等问题,要参照相关图集和规范。
(1)图纸目录与设计说明包括图纸内容、数量、工程概况、设计依据以及图中未能表达清楚的各有关事项。
如供电电源的来源、供电方式、电压等级、线路敷设方式、防雷接地、设备安装高度及安装方式、工程主要技术数据、施工注意事项等。
(2)主要材料设备表包括工程中所使用的各种设备和材料的名称、型号、规格、数量等,它是编制购置设备、材料计划的重要依据之一。
(3)系统图如变配电工程的供配电系统图、照明工程的照明系统图、电缆电视系统图等。
系统图反映了系统的基本组成、主要电气设备、元件之间的连接情况以及它们的规格、型号、参数等。
(4)平面布置图平面布置图是电气施工图中的重要图纸之一,如变、配电所电气设备安装平面图、照明平面图、防雷接地平面图等,用来表示电气设备的编号、名称、型号及安装位置、线路的起始点、敷设部位、敷设方式及所用导线型号、规格、根数、管径大小等。
通过阅读系统图,了解系统基本组成之后,就可以依据平面图编制工程预算和施工方案,然后组织施工。
(5)控制原理图包括系统中各所用电气设备的电气控制原理,用以指导电气设备的安装和控制系统的调试运行工作。