10T龙门吊安装与负荷试验技术措施
- 格式:doc
- 大小:468.00 KB
- 文档页数:21
10t电动葫芦门式起重机安装方案一、安装工序1、轨道验收安装门式起重机前应对轨道进行验收, 检查轨道是否固定牢靠,并根据设计及施工规范要求对轨道的间距、标高、水平度、平行度进行检查复测,大车轨道的允许偏差为:两轨道高低差:<3mm两轨道不平行误差:<8mm轨道中心距误差:<8mm车轮中心距范围内轨道对角线之差:<5mm2、设备检查起重机安装前应对所到设备、构件进行认真的检查,看是否有缺损、碰伤现象,清除保管期间堆积之垢物,检查各减速机油箱是否干净,润滑油路是否完好无损,确保各部件没有问题后准备安装。
3、电动葫芦与主梁连接该起重机进厂时为分体结构,首先把电葫芦与主梁连接。
电动葫芦车轮轮缘内侧与主梁工字钢轨道翼缘间的间隙应为3~5mm。
链式电动葫芦的链轮槽应保持在同一铅垂面上。
链条在运行时不应有歪扭、卡住和严重磨损现象。
3、大车运行机构安装该起重机安装前,大车传动机构与操作室在地面与传动侧支梁安装好。
4、门式起重机框架安装根据现场情况及现有吊车情况,吊住主梁,采用8吨液压吊吊住一侧支梁,连接后用8吨液压吊连接另一侧支梁。
(主粱+电葫芦约6吨,吊车回转半径为6m,起升高度为9m,经查25吨液压吊车性能表,回转半径6m,起升高度9m,能吊12.2吨。
完全可以选用此吊车。
)该起重机组装后允许偏差要求如下:起重机跨度:±8mm。
起重机跨度的相对差:±8mm。
主梁上拱度F:+0.4F、—0.1F悬臂端上翘度F0:+0.4F、—0.1F主梁旁弯度f≤15mm。
5、其它附件安装主梁、电葫芦就位后进行梯子,栏杆,电缆滑架、车挡,极限开关等零部件安装。
6、加油起重机机械设备安装完毕后检查各润滑点及油路是否完整,然后将各减速机油箱清洗干净,注入机油,油量应与油尺的刻度相符。
无油尺时润滑油应以能盖住大齿轮最低齿的齿高为准。
所用机油及润滑油的牌号应与设计相符。
二、试车验收通用门式起重机安装后,应即装上夹轨器,并进行试验;试验时,夹轨器应符合下列要求:1、夹轨器各节点应转动灵活;夹钳、连杆、弹簧螺杆和闸瓦不应有裂纹和变形。
北区预制场10T龙门吊安装方案一、概述北区预制场10T龙门吊是新购买的型号为MH10t-34的龙门吊。
用于预制小箱梁钢筋和模板的吊装。
龙门吊轨道全长300米,跨径为34米,龙门吊起升高度13米。
拼装场地情况如下:拼装场地示意图(一)为了本次龙门吊安装工作的安全、有序、高效,特制定本安装方案。
项目部相关技术人员及施工负责人员在拼装工作开始之前,应熟悉了解此拼装方案与相关图纸。
做好拼装前准备工作,拼装过程中如遇到需要改动的地方,施工员可根据现场情况酌情处理。
二、龙门吊参数介绍:龙门吊总重19.5T地梁单个重1T主梁39.25米,重约12T单边支腿组件重2.5T三、准备工作1.辅助设备、工具及材料准备2.人员配置四、安装顺序1.地面拼装左右支腿行走大车。
2.地面拼主梁。
3.立靠石材厂侧支腿4.立靠养猪场侧支腿。
5.吊装主梁,安装天车。
6.安装控制室、爬梯等,电路系统调试。
五、拼装方案1. 地面拼装左右支腿及地梁先拼靠石材厂侧的右支腿。
支腿有两条,每条长度为14米,先将两条支腿连接在承载地梁上。
两条支腿拼接好后,如图1所示立起。
承载地梁和支腿连接为螺栓连接。
2. 地面拼主梁。
主梁共三节(12米两节、15米一节),总重12吨,用螺栓连接,用一台25吨汽车吊在场地内将其沿预制场横向拼接好。
拼接好的主梁放置在龙门吊的跨径内的预制台座上,并把电动葫芦安装好,这样减少高空作业。
因考虑到以后装卸混凝土,主梁悬臂端靠养猪场。
3.立靠石材厂侧支腿用25T汽车吊起吊,如图2所示,龙门吊支腿吊立示意图(2)支腿的固定采用地锚式拉4根风缆固定,如图3所示4.立靠养猪场侧支腿。
与立靠石材厂侧支腿方法一致。
5.吊装主梁主梁用2台25T汽车吊抬吊,两台25T吊车分别在轨道外侧。
主梁两端栓直径Φ16的麻绳做风揽,用来调节主梁的位置,使其比较快速准确地安放到支腿上面。
6.安装控制室、爬梯等,电路系统安装调试。
爬梯、控制室吊装用25T汽车吊吊装.六、施工组织1.施工技术员负责协调现场人员及设备。
10T龙门吊安装技术措施文件名称:10T龙门吊安装技术措施内容:1. 工程范围及工程量重庆金桥水泥有限责任公司熟料新型干法水泥二期技术改造项目-机电安装工程1标段10T龙门吊安装。
共计1台套,工程量约为16.5吨。
2. 主要质量控制点及技术措施2.1安装准备工作:技术交底:安装前由专业主管对施工班组进行交底,交待施工步骤、质量要求、安全事项。
设备开箱点件、验收、质量检查:设备安装前一周内对部件进行检查清点,保证部件齐全,如有质量问题及时向工段负责人或专业主管汇报,确认处理方案。
(注意检查梁、立腿的焊接接质量及各相关尺寸是否与图纸相符,是否因运输等因素产生弯曲、变形、损坏)。
基础验收:道轨应安装在坚实的基础上。
人员组织:起重工:具有从事多年指挥经验(上报其它项目施工阅历),并经质安部认证合格人员方可从事起重作业;施工过程组织:根据现场施工情况,先保证24米轨道系统安装找正完成,即开始进行主体安装。
机具组织:2.2施工计划2.3 施工人员配置2.4基础工作:每隔1米制作一临时支撑砂墩,高差控制在3mm范围内。
2.5 轨道系统安装:✓先将轨道按工艺布置排列,找正标高、跨距、间隙符合规范要求:接头间隙3-4mm,任意10米内标高偏差≤±5mm,Hmax-Hmin≤15mm,同一截面内≤1mm,Δ=L(n)-L理论≤±8mm。
✓轨道安装面纵向偏差为±8mm;轨道之间垂直允差为±5mm;✓在基础垫铁上焊接临时挡块将轨道临时固定,注意不能将轨道与垫铁焊接。
✓将垫板、压块等按图纸要求与轨道联接为一体,且将螺母拧紧。
✓将递交螺栓灌浆,注意浇注前地脚孔要清干净,地脚螺栓底端不应碰孔底;螺母与垫圈间和垫圈与设备间的接触部位均应紧密良好;拧紧螺母后,螺栓应露出螺母2~3扣螺纹,地脚螺栓安装应保证基础垂直度小于10mm/m;地脚螺栓离孔壁的距离不应小于15mm;过程中用注意捣实;灌浆深度要低于基础面30-50mm;灌浆完成后7天内每天3次浇水养生。
10t门式起重机安装施工方案山西工业设备安装有限公司2015年3月1、起重机安装的技术含义及任务范围起重机的安装,就是将从起重机制造厂运到起重机使用现场的起重机的结构、机构、电气设备及控制装置、安全装置及供电设备等各部分,按照起重机的总结构图和安装图装配起来,使起重机立于固定场地装在其工作场地上(固定式起重机)或安装在其运行轨道上(有轨运行式起重机)或安装在其工作场地上(无轨运行式起重机),达到安装规范及技术要求,并通过调试、试运转、移交验收。
起重设备安装工程从设备开箱起,至设备安装完毕,经试运行合格,办理工程验收为止。
本工程共安装2台10吨门式起重机。
2、起重机安装的准备2.1 对要求安装的起重机的性能、参数、构造及动作原理必须清楚。
2.2 对安装现场条件必须详细检查。
如对起重机地面轨道基础、吊车梁和安装预埋件等的平面位置、标高、跨度和表面的平面度、直线度、平行度等应检查是否符合设计要求和安装要求。
2.3 对运到的起重机进行开箱检查。
2.4 经制订了切实可行的吊装施工方案,并对有关人员进行了技术交底,对通过桥式起重机、壁上起重机、治金起重机等,要检查起重机最外轮廓与建筑物之间的最小安全距离是否符合规范中如表1的数值规定。
2.5 对起重机轨道和车挡,要在安装起重机前先进行详细检查,看是否符合JBJ31—96《起重设备安装工程施工及验收规范》(需带资料)第三章的规定,如误差超过规定,应予以调整使之合格后再进行安装起重机。
2.6 对在安装现场装配的联轴器、制动器,应检查是否符合JBJ31-96中第2.0.2和2.0.3条规定。
3、起重机的安装3.1 电动葫芦式起重机的安装特点该起重机是一种轻型门式起重机,它的起重量为10吨,跨度是20米,起重机自重,体积较其它门式起重机轻小得多。
它的主要结构有大车运行机构,下横梁,支腿,主梁,小车,电器等几大部分组成。
大车运行机构安装在下横梁上成一体,小车就是电动葫芦,安装在主梁的工字钢上,在工字钢上运行。
10T起重机械试吊方案
检查起重机械的各个部件是否完好,没有明显损坏和缺陷。
制定试吊计划,确定试吊的高度、距离等关键参数。
组织相关人员,包括起重机械操作人员、安全人员等。
2.进行预试运转,检查起重机械的电气系统、液压系统等是否
正常运作。
2.检查起重机械的起重钩、安全装置等是否处于正常工作状态。
2.操作起重机械将试吊物体缓慢起吊,注意观察起重机械的运
行状态是否正常,是否存在异常噪音等。
3.在试吊过程中,观察起重机械的稳定性和吊绳的状态,确保
试吊过程安全可靠。
4.在试吊到一定高度后,将试吊物体缓慢放下,确保放置位置
正确。
2.针对试吊过程中出现的问题和发现的缺陷,进行记录和整理。
3.根据试吊结果评估,确认起重机械是否满足要求,是否需要
进一步调整或维修。
在试吊过程中,保持通讯畅通,确保操作指令及时传达。
指定专人负责观察起重机械的运行状态,及时发现异常情况并
采取措施。
严格遵守相关的安全操作规程和标准。
以上为10T起重机械试吊方案的详细内容,根据实际情况进行具体调整和补充。
在试吊过程中,务必注重安全,确保试吊操作顺利完成。
10T起重设备试吊方案(一)试吊前的准备工作1.安排专业人员:确保试吊操作的安全性和有效性,必须由经过专业培训的人员进行操作。
试吊现场应有起重机械操作员、监工、安全员等专业人员。
2.检查起重设备:在试吊前,需对起重设备进行检查,确认其正常工作状态。
检查项目包括:起重机械的机构、制动器、限位器、安全装置等的工作情况;起重绳、丝绳、吊具的磨损程度、断裂等情况;起重设备的起吊速度、回转速度等是否符合要求。
3.选择合适的吊具:根据试吊物体的重量、形状和材质等,选择合适的吊具。
吊具的选择应经过计算和验算,确保其安全性和可靠性。
4.做好试吊环境及场地的准备:试吊现场应保持清洁、整齐,确保其平稳、无碍和无阻。
(二)试吊操作步骤1.制定试吊方案:根据试吊物体的特点,制定试吊方案。
试吊方案应包括起吊点的选择、吊具的固定方式、吊装高度和吊点角度等相关信息。
2.试吊前的安全措施:在试吊前,需确保现场的安全。
如对试吊现场进行栅栏或警示线的设置,禁止无关人员靠近试吊区域。
3.试吊现场指挥:试吊现场应有专人进行指挥和协调。
试吊指挥员应根据试吊方案,正确指导和协调吊装过程中的各项操作,确保其顺利进行。
4.试吊操作流程:试吊操作的具体流程如下:(1)确定合适的起吊点,将吊具正确固定在物体上。
(2)确认起重设备的操作人员已熟悉操作,开机前确认机械各项安全装置功能正常。
(3)起重机械操作员根据试吊方案,正确启动起重设备,控制好起吊速度和回转速度。
(4)严格遵守起重操作规范,根据试吊方案指导,平稳起吊试吊物体。
(5)在试吊过程中,保持通讯畅通,及时与指挥员进行沟通交流。
(6)试吊物体起到安全地区后,缓慢放下,确保其稳定。
5.试吊后的检查与评估:试吊结束后,需对试吊现场进行检查和评估。
(1)检查起重设备是否存在故障,是否需要修理或更换配件。
(2)检查试吊物体是否受到损坏,是否需要修复或更换。
(3)根据试吊过程中的记录和观察,评估试吊的效果和安全性。
10吨龙门吊安装作业指导书10吨龙门吊安装作业指导书1 作业项目概况 1.1 简介根据现场施工情况,决定在制作场安装一台10吨龙门吊,主要进行管道制作。
该龙门吊是公司自制产品,额定起重量10吨,跨度15米。
1.2作业内容包括龙门吊轨道的铺设,门架的组合及吊装,天桥的组合和吊装,以及电动葫芦、梯子的安装,安装完成后还要进行负荷试验。
1.3 作业范围组装场地长25米,宽20米。
2 编制依据2.1 10吨龙门吊拆装记录 2.2 《电力建设安全工作规程》2.3 《施工技术文件资料编制管理制度》 3 作业准备3.1 技术条件3.1.1 作业指导书编写完毕并经审核批准。
3.1.2 施工人员进行交底。
3.2 环境安全条件3.2.1 施工场地平整,现场杂物清理干净。
3.2.2 现场孔洞及栏杆未完善区应全部完善。
3.2.3 作业区域用红白绳围住,无关人员不得进入。
4 安装程序及作业方法4.1 作业程序: 4.2 作业方法4.2.1 施工准备4.2.1.1 铺设吊车轨道:根据施工现场规划图,确定吊车轨道位置,然后挖300~400mm深的沟,宽1.5m,然后垫道渣,道渣厚度不少于600mm。
4.2.1.2 在埋设好的轨道外侧埋设钢管,然后用扁铁与轨道连接在一起,测量接地电阻不应大于10Ω。
4.2.2 大车行走机构安装将两组大车行走机构放置在轨道上,测量两组台车的对角线误差不得大于5mm。
4.2.3 安装支腿按编号将四条支腿放置在大车行走机构上,通过螺栓与大车行走机构连接。
然后分别用拖拉绳将四个支腿打住,防止其倾倒,通过倒链调整支腿,使其中心线与水平面垂直。
4.2.4 吊装主梁用枕木将主梁垫起一定高度(约1米左右),将电动葫芦轨道一端的车挡拆除,将电动葫芦吊起,从已拆除车挡的一端穿入,使其行走轮进入轨道,然后将车挡恢复。
用汽车吊将主梁吊起,放置在支腿上,通过螺栓与支腿联接。
4.2.5 导线恢复4.2.5.1 将输电电缆、控制电缆联接好。
负荷试验
1、空载试验
开动各机构沿全行程运行、检查各机构是否正常、各传动部分运行应平稳,不得出现振动和冲击现象,各控制器、限位开关和保护系统要灵活可靠。
2、静载试验
将小车停在跨中,分三次加载直到满载,禁止一次性加满载,当加至额定起重量1.25倍时,将重物调离地面100mm,停留10分钟,重复做三次,卸去载荷,检查桥架不得出现永久变形,油漆剥落或对起重机性能与安全有影响的损坏,连接无松动,试验后的上拱度应不小于0.7S/1000。
3、动载试验
起吊额定重量1.1倍的重物,同时开动两个机构,使起升机构和运行机构按工作级别、循环时间做重复的动作,运转停车等动作,循环试验时间不小于1小时,检查各机构是否正常,各机构不得出现结构损坏、连接处松动和损坏现象。
北庙预制场10T龙门吊试吊试验方案一、MQ10t-28.3m龙门吊主要技术参数1、主钩起重能力:10T3、架设跨径:28.3m4、行走速度:0-5m/min(重载);0-10m/min(空载)5、起升高度:10m二、龙门式起重机试吊试验方法:龙门式起重机试吊试验采用分级加载的方式进行试验,荷载主要由龙门吊试吊底架和钢筋提供。
三.龙门式起重机试验的步骤:龙门式起重机在试吊的过程中,主钩的位置为龙门式起重机横梁的跨中,吊重分级加载。
示意图如下:1、首先进行空载试验。
进行龙门式起重机底车和天车上下水平方向和东西方向的行走、刹车试验,以检验行走系统的完好性。
2、第一次测试龙门式起重机吊起4t钢筋。
重物起吊30cm,下放20cm后刹车,进行底车和天车行走和刹车等各项性能的测试,接着将天车停留在横梁中部,测其横梁的挠度。
3、第二次加载,将钢筋总重量加至10吨。
重物起吊30cm,下放20cm后刹车,在试吊的过程中进行底车和天车行走和刹车等各项性能的测试,接着将天车停留在横梁中部。
测其横梁的挠度。
然后将负重天车开至距离柔性支腿约4m 处,测柔性支腿的挠度。
4、第三次加载,将钢筋总重量加至12吨。
重物起吊30cm,放下20cm后刹车,天车位于横梁中部时持荷10分钟,看其是否会永久变形,测其衡量的绕度;衡量的绕度符合设计则为合格。
四、龙门式起重机试吊注意事项:1、在龙门式起重机试吊过程中特别要注意安全,所有参加试验的人员要做好个人的安全措施,龙门式起重机的横梁下不准站人。
2、龙门式起重机试吊所用的钢丝绳均要检查,各种润滑轮、轴承均要做好保养工作。
3、龙门式起重机在试吊之前对龙门式起重机做最后的检查,检查钢轨上是否有杂物,确保龙门式起重机行走顺利。
五、结构计算模型建立如下:六、试验所需材料设备及人员人员:技术员2名;中队工人6名;质检、安全、机务人员到场机械设备:平板车:1台;试吊底架:1台;钢筋:12t;钢丝绳、卡环、吊具等设备配齐。
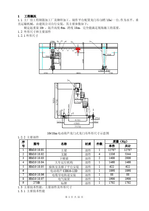
1工程概况1.1主厂房工程钢筋加工厂及铆焊加工、制作平台配置龙门吊(10T/18m)一台,作为水平、垂直运输机械,由建筑公司自行安装,其主要参数如下:10t/18m电动葫芦龙门式龙门吊外形尺寸示意图1.3.1 主要技术性能2.1编制目的本方案是为安装10T龙门吊而编写的,该机械安装过程中的施工方法和安全技术措施,在本方案中都有要求,并以此保证龙门吊的顺利安装。
2.2编制依据2.2.1《主厂房土建专业施工组织设计》;2.2.2《电力建设安全健康与环境管理工作规定》;2.2.3相关资料《建筑施工手册》(第四版),第14章起重设备。
3施工前要求所具备的条件3.1 施工条件3.1.1龙门吊各部件全部到位,并经检修合格,符合安装条件;3.1.2电气材料(包括一次电缆)配备齐全;3.1.3施工人员已经到位,安全考试合格,并已经进行了安全、技术交底。
施工工器具见下表:3.2 相关工序龙门吊轨道施工完,并且轨道跨距、平整度强度达到规范要求。
3.3 机械设备50T履带式起重机1台4施工方案的具体实施程序4.1 根据此龙门吊的结构特点,确定如下施工方案:4.1.1 龙门吊运到后,卸车搬运时,应特别注意避免扭、弯、撞击等事故。
4.1.2 根据现场机械配备情况及龙门吊自重,安装时采用50吨履带吊一台。
起重方式为一机两点抬吊。
主梁自重12.7吨,吊起时捆扎两处,捆扎处须有衬垫物。
主梁吊点位置见下图:50T履带吊吊点4.1.3 存放时应安置平稳,并用枕木放平垫实。
枕木要对称放置,地面应结实防止日久下沉,致使桥架变形。
4.1.4根据技术要求消除由于运输不当或保管不当所产生的误差和缺陷。
特别对金属结构部分的缺陷需校正后才准安装。
4.1.5 门式龙门吊和装卸桥的安装次序是先将支腿、下横梁分别在地面安装好,然后将支腿起吊与下横梁用螺栓连接起来。
吊装就位措施(见下图)轨道堆积固定点单重5T轨道堆积固定点单重5T轨道堆积固定点单重5T枕木均铺横梁下@12004.1.6经计算吊装主梁钢丝绳选用直径大于17.5mm钢丝绳。
10T起重设施试吊方案简介本文档旨在提供一份10吨起重设施试吊方案。
该方案旨在确保设施的顺利吊装和安全操作。
准备工作在进行试吊工作之前,需要做好以下准备工作:1. 设施检查:确保设施结构完整且无任何受损的部分。
2. 吊装设备检查:检查起重设备(如吊车、起重机等)的工作状态和安全性能。
3. 安全周边措施:确保施工现场周边的安全措施已经到位,例如隔离区域、警示标志等。
4. 人员准备:确保吊装人员已经接受过相关培训并具备足够的工作经验。
吊装方案根据设施的特点和实际情况,制定以下吊装方案:1. 设施定位:确定设施的位置,并确保设施周围无障碍物和安全空间供吊装操作。
2. 吊装点选择:选择适当的吊装点位,并确保吊装点在设施结构的强度范围内。
3. 吊装工艺:根据设施的重量和形状,采用适当的吊装工艺和吊装方式。
4. 吊装顺序:制定吊装的顺序和步骤,确保整个吊装过程顺利进行。
5. 通信与配合:吊装人员和指挥人员之间要保持良好的沟通和配合,确保吊装操作的安全性和高效性。
安全注意事项在进行试吊操作时,请注意以下安全事项:1. 空气质量:确保吊装现场的空气质量良好,避免有害气体对人员和设施造成影响。
2. 人员防护:吊装人员应佩戴安全帽、安全绳等防护装备,并遵守相关操作规程。
3. 设施固定:在吊装过程中,确保设施与起重设备之间的固定牢固,防止意外脱落或滑移。
4. 现场监控:在吊装过程中设置必要的监控措施,及时发现异常情况并采取相应的应对措施。
结束语本文档提供了一份10吨起重设施试吊方案,包括准备工作、吊装方案和安全注意事项。
请在实际操作中严格遵循相关规程和安全要求,确保吊装操作顺利进行并保证人员安全。
10T龙门吊试吊方案一、说明此套10T龙门吊用预制场模板及钢筋成品及半成品的吊运。
本次试吊采用空载和荷载试验的方式,用来检验整机机械性能和结构性能是否在设计允许范围内。
二、试验前的准备工作1、对试验环境进行全面检查,确认符合要求和具备试验条件。
1)按照图纸检查全机各构件安装是否符合设计要求:各紧固件是否牢固,各传动机构是否精确和灵活,各杆件有无变形,电路和控制部分是否正常。
2)风力不得大于 5 级;3)电压波动:不大于±20V;4)荷载与标准质差:不大于±3%;2、采取可靠措施,保证试验人员的安全。
1)必须穿戴好个人防护用品;2)试验过程必须有专人指挥;3)试吊期间龙门吊下放严禁站人。
三、空载试验空载试验主要检查龙门吊的控制系统和制动系统是否灵敏和电路是否正常。
1、连续点动行走大车行走一段距离,行走时观察两边车轮行走方向是否一致,平车车轮与钢轨有无啃轨现象,传动有无异声。
最后开向防撞墩,检查大车限位和刹车是否均灵敏有效。
2、分别连续点动天车左右行走、空钩升降,运行方向与按钮箭头方向是否一致,运行是否平稳,天车上下限位、两端防撞限位是否灵敏制动是否有效。
同时检验制动系统是否灵敏有效。
三、荷载试验载荷试验分为静载和动载两部分,静载主要检查主框架的承载能力,动载则检验天车、制动系统、控制系统等。
静载试验1、龙门吊吊重重物10T。
做原地起升试验,以现场钢筋为试吊物,起升离地面约 10cm,10 min的静负荷试验,测量组观察主梁的挠度。
2、如静载正常,则天车进行连续上下左右各三次,大车前后行走。
观察运行是否正常。
3、测试和观测项目1)主梁下挠值应不大于 1/700 跨度,即MH10t-34 ≤48mm;2)各起升、行走机构运转应无异常,钢丝绳符合安全要求,各控制器,继电器、制动器的动作灵敏可靠;3)各焊点是否脱焊。
龙门吊主梁绕度观测表记录人:起重机试吊应当达到相对平稳状况,整个测量下挠值均应≤48mm)。
10T龙门吊安装⽅案10T龙门吊安装⽅案某项⽬经理部20xx年11⽉20⽇⽬录⼀、⼯程概况: (2)⼆、维修及安装主要实物量: (2)三、编制本⽅案的依据: (2)四、安装⽅案: (2)五、运转试验: (6)六、安全措施 (7)七、质量保证措施 (8)⼋、施⼯⼈员 (9)九、施⼯平⾯图 (9)⼀、⼯程概况:本⼯程为唐⼭中某轧钢⼯程制作现场龙门吊的安装。
龙门吊台,起重重量为10T。
由于此吊车是使⽤过的旧吊车,在拆卸和运输过程中零件损坏,结构也可能发⽣了变形。
因此在重新安装恢复使⽤前必须经过精⼼的维修。
起重机⾃⾝重量多达40T,属⼤型设备,安装过程⼯艺复杂,劳动强度⼤,为了使整个维修及安装过程顺利进⾏,提⾼劳动效率,减少不必要的损失,特制定以下安装⽅案。
⼆、维修及安装主要实物量:龙门吊2台,每台的主要实物量如下:1、龙门吊吊车轨道80⽶,每根0.537t,长12.5⽶;2、龙门吊28⽶横梁⼀根;重13.4吨,⾼×宽2.2⽶×1.6⽶3、8.5⽶吊车⽴柱⼆根,每根重3.8吨,长8.5⽶;4、龙门吊⼩车⼀个,重3.3吨,长×宽×⾼=3.2×1.8×2.2;5、龙门吊其他附属设施。
三、编制本⽅案的依据:1、《起重机设备安装⼯程施⼯及验收规范》(GB50238-98)2、《机械设备安装⼯程施⼯及验收通⽤规范》(GB50231-98)3、《安全操作规程》各⼯种安全技术操作规程汇编4、《起重机机械性能⼿册》5、《钢结构施⼯及验收规范》(GB50205-2001)6、《⾼强度螺栓连接副操作技术规程》7、《建筑施⼯⼿册》四、安装⽅案:1、轨道基础铺设1.1轨道铺设的地基要求其承压⼒不得⼩于20N/cm2,因此在轨道铺设前必须注意⽤推⼟机压实并检测其抗压系数,合格后⽅能铺设碎⽯。
碎⽯铺设时也应⽤推⼟机逐层压实,压实后再在碎⽯上铺枕⽊,碎⽯厚度不得⼩于500mm,枕⽊采⽤1250*200*200。
10t龙门吊安装方案龙门吊是一种常见的起重设备,广泛应用于工业生产和建筑领域。
在进行10t龙门吊的安装时,需要根据具体情况制定一个安全可靠的安装方案。
本文将就10t龙门吊的安装方案进行详细论述,确保安装过程顺利进行。
一、准备工作:在开始安装之前,需要进行一系列的准备工作,包括:1. 确定安装地点:根据工作需求和场地条件,选择适合的安装地点,确保地基坚固平整。
2. 检查设备:仔细检查龙门吊的各个部件是否完好,确保安装时没有任何故障。
3. 准备所需工具:准备好所需的安装工具和设备,包括起重工具、电动工具等。
4. 安全措施:提前制定安全计划,确保安装过程中人员的安全,包括佩戴安全帽、安全绳等。
二、安装步骤:1. 搭建基础支架:根据龙门吊的尺寸和要求,在地面上搭建稳定的基础支架,确保支架水平且牢固。
2. 安装横梁:将龙门吊的横梁组装好,并使用合适的起重工具将横梁吊装到支架上,确定其水平并用螺栓固定。
3. 安装立柱:按照龙门吊的设计要求,将立柱按照正确位置安装在基础支架上,并通过紧固螺栓连接好。
4. 安装大车和小车:根据龙门吊的结构,将大车和小车组装好,并安装在横梁上,确保运行畅通。
5. 安装电动机:将电动机按照制造商提供的要求和图纸安装在适当的位置,连接好电源和控制系统。
6. 调试和测试:完成所有组装工作后,进行调试和测试,确保各个部件和控制系统正常运行,在实际工作中能够满足要求。
三、安全注意事项:在龙门吊的安装过程中,需要注意以下安全事项:1. 安装人员必须佩戴好安全帽、安全绳等个人防护装备,并遵守安全操作规程。
2. 在吊装和安装过程中,要确保人员和设备相互配合,严禁操作失误或疏忽大意。
3. 起重工具和设备必须检查合格,并经过专业人员指导操作,确保安全可靠。
4. 在安装过程中,及时清理现场杂物和障碍物,确保作业通畅,避免发生意外。
5. 安装完成后,进行全面的功能测试和负荷测试,确保设备在正常工作范围内运行。
10T龙门吊安装方案首先,在进行10T龙门吊的安装前,必须先制定详细的施工方案和安全措施。
施工方案应包括吊装位置选择、操作步骤、起重机械的选择和安装要求等内容。
安全措施应包括施工现场的管理、工人的安全培训、施工过程中的安全保护等。
在施工现场选择龙门吊安装位置时,应考虑以下因素:吊装距离、地面承重能力、周围环境、通行道路等。
确保吊装位置能够提供充足的空间以容纳龙门吊的安装和操作。
接下来是起重机械的选择。
10T龙门吊是根据工程需求来选择的,具体的规格、载荷和操作特性应符合工程要求。
在选择起重机械时,应考虑到龙门吊的自重和所需的吊装高度、升降速度、移动速度等参数。
然后是龙门吊的具体安装要求。
龙门吊的安装需要专业施工队伍进行操作。
首先,需要对施工现场进行平整和固定。
合理设置支撑点和固定点,保证龙门吊的安装稳定和安全。
龙门吊的安装步骤如下:1.解析龙门吊的组成材料和主要零部件,确保零部件的完好无损。
2.根据施工方案,将龙门吊按照设计要求进行组装,并进行质量检查。
3.使用起重设备将龙门吊举起,将其定位到准备好的支撑点。
4.使用螺栓将龙门吊与支撑点固定。
确保螺栓的紧固力度适当。
5.对龙门吊进行水平调整和垂直校准。
确保龙门吊的位置和姿态符合安装要求。
6.完成吊轮和起重机构的安装、连接和调试。
7.进行试运行和负载测试。
检查龙门吊的运行情况和性能表现。
8.检查龙门吊的安装质量和所有固定连接部位的可靠性。
最后是安全措施的要求。
在安装过程中,施工人员必须全程佩戴安全帽、安全鞋、手套等个人防护装备。
施工现场必须设置防护栏杆和警示标志,确保施工人员的安全。
起重机械的操作必须由经过培训和持证人员操作,不得擅自操作或进行违章操作。
以上是10T龙门吊安装方案的概述,施工人员在具体操作时应严格按照相关要求进行,确保龙门吊的安装质量和施工安全。
10t门式起重机安装技术措施设计:审核:批准:水电七局水工机械厂2008年6月1、起重机安装的技术含义及任务范围起重机的安装,就是将从起重机制造厂运到起重机使用现场的起重机的结构、机构、电气设备及控制装置、安全装置及供电设备等各部分,按照起重机的总结构图和安装图装配起来,使起重机立于固定场地装在其工作场地上(固定式起重机)或安装在其运行轨道上(有轨运行式起重机)或安装在其工作场地上(无轨运行式起重机),达到安装规范及技术要求,并通过调试、试运转、移交验收。
起重设备安装工程从设备开箱起,至设备安装完毕,经试运行合格,办理工程验收为止。
2、起重机安装的准备2.1 对要求安装的起重机的性能、参数、构造及动作原理必须清楚。
2.2 对安装现场条件必须详细检查。
如对起重机地面轨道基础、吊车梁和安装预埋件等的平面位置、标高、跨度和表面的平面度、直线度、平行度等应检查是否符合设计要求和安装要求。
2.3 对运到的起重机进行开箱检查。
2.4 经制订了切实可行的吊装施工方案,并对有关人员进行了技术交底,对通过桥式起重机、壁上起重机、治金起重机等,要检查起重机最外轮廓与建筑物之间的最小安全距离是否符合规范中如表1的数值规定。
2.5 对起重机轨道和车挡,要在安装起重机前先进行详细检查,看是否符合JBJ31—96《起重设备安装工程施工及验收规范》(需带资料)第三章的规定,如误差超过规定,应予以调整使之合格后再进行安装起重机。
2.6 对在安装现场装配的联轴器、制动器,应检查是否符合JBJ31-96中第2.0.2和2.0.3条规定。
3、起重机的安装3.1 电动葫芦式起重机的安装特点该起重机是一种轻型门式起重机,它的起重量为10吨,跨度是20米,起重机自重,体积较其它门式起重机轻小得多。
它的主要结构有大车运行机构,下横梁,支腿,主梁,小车,电器等几大部分组成。
大车运行机构安装在下横梁上成一体,小车就是电动葫芦,安装在主梁的工字钢上,在工字钢上运行。