精装修分户验收自动计算表
- 格式:xls
- 大小:30.50 KB
- 文档页数:1
江苏赛华建设监理有限公司Jiangsu Saihua Construction Supervision CO..LTD 守法、诚信、公正、科学南京市全装修住宅工程质量分户验收管理办法(试行)室内层高、开间净尺寸抽测表注:1、偏差为实测值与推算值之差的绝对值;极差为实测值中最大值与最小值之差,抽测不合格点数据在表内用红笔圈出。
2、室内每户为一个检查单元,每个检查单元填写本表一张,检查完毕及时签字;本表一式四份,建设、监理、总包及装修施工单位各一份。
3、当房间净高的正偏差大于或等于30mm时,应对该房间楼板、顶板钻孔复核板厚。
4、示意图中虚线表示吊顶区域。
H6 H7 H8 H9表示吊顶区域的点。
江苏赛华建设监理有限公司Jiangsu Saihua Construction Supervision CO..LTD 守法、诚信、公正、科学南京市全装修住宅工程质量分户验收管理办法(试行)室内层高、开间净尺寸抽测表注:1、偏差为实测值与推算值之差的绝对值;极差为实测值中最大值与最小值之差,抽测不合格点数据在表内用红笔圈出。
2、室内每户为一个检查单元,每个检查单元填写本表一张,检查完毕及时签字;本表一式四份,建设、监理、总包及装修施工单位各一份。
3、当房间净高的正偏差大于或等于30mm时,应对该房间楼板、顶板钻孔复核板厚。
4、示意图中虚线表示吊顶区域。
H6 H7 H8 H9表示吊顶区域的点。
江苏赛华建设监理有限公司Jiangsu Saihua Construction Supervision CO..LTD 守法、诚信、公正、科学南京市全装修住宅工程质量分户验收管理办法(试行)室内层高、开间净尺寸抽测表注:1、偏差为实测值与推算值之差的绝对值;极差为实测值中最大值与最小值之差,抽测不合格点数据在表内用红笔圈出。
2、室内每户为一个检查单元,每个检查单元填写本表一张,检查完毕及时签字;本表一式四份,建设、监理、总包及装修施工单位各一份。
附件1:
住宅工程质量分户验收记录表
(室内空间、构件尺寸、室内地面与墙面、门窗、护栏和扶手、玻璃安装、防水工程等质量)
注:1、室内以每户为一个检查单元
2、工程中增加或不包含的项目应在验收记录中增加或删除;
3、本表一式一份,在单位工程竣工验收过程中使用后,施工单位存档使用。
住宅工程质量分户验收记录表
(安装工程质量)
注:1、工程中增加或不包含的项目应在验收记录中增加或删除;
2、本表一式一份,在单位工程竣工验收过程中使用后,施工单位存档使用。
住宅工程质量分户验收结果表
注:1、工程中增加或不包含的项目应在验收记录中增加或删除;
2、本表一式一份,住宅工程交付使用时,《住宅工程质量分户分户验收结果表》应当作为《住宅质量保证书》的附
件一并交给业主。
住宅工程质量分户验收记录表
(公共部位质量)
注:1、公共部位以每栋楼的每个单元为一个检查单元、地下室可单独为一个检查单元;
2、工程中增加或不包含的项目应在验收记录中增加或删除;
3、本表一式一份,在单位工程竣工验收过程中使用后,施工单位存档使用。
单位工程质量分户验收汇总表
注:此表应与工程竣工验收报告等有关资料一并在单位工程竣工验收前报送质量监督机构。
项目工程质量分户验收汇总表
注:此表应与工程竣工验收报告等有关资料一并在单位工程竣工验收前报送质量监督机构。
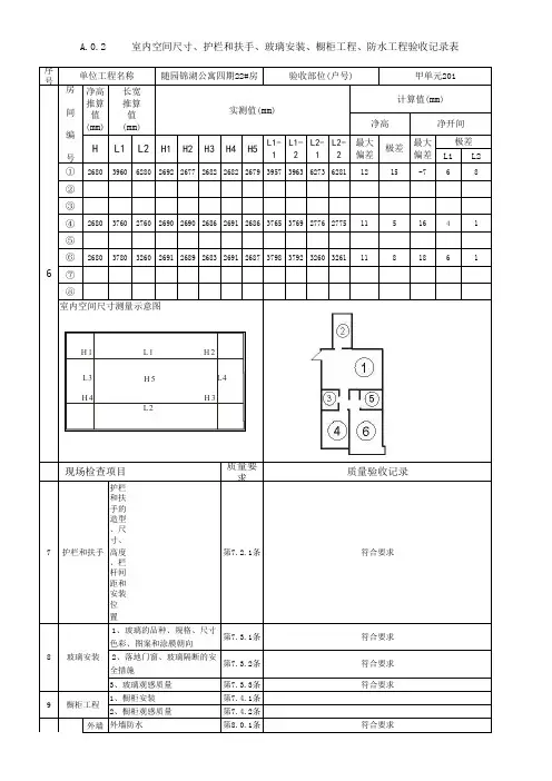
序号L1L2①2680396062802692267726822682267939573963627362811215-768②③④2680376027602690269026862691268637653769277627751151641⑤⑥2680378032602691268926832691268737983792326032611181861⑦⑧护栏和扶手的造型、尺寸、高度、栏杆间距和安装位外墙外窗屋面3、玻璃观感质量第7.3.3条符合要求色彩、图案和涂膜朝向全措施符合要求符合要求质量验收记录现场检查项目质量要求室内空间尺寸测量示意图玻璃安装1、玻璃的品种、规格、尺寸第7.3.1条2、落地门窗、玻璃隔断的安第7.3.2条净高净开间最大偏差极差极差最大偏差A.0.2 室内空间尺寸、护栏和扶手、玻璃安装、橱柜工程、防水工程验收记录表单位工程名称甲单元201随园锦湖公寓四期22#房验收部位(户号)计算值(mm )L1-2L2-1H4H5H2L1-1L2H17护栏和扶手第7.2.1条置H386净高推算值(mm )实测值(mm )HL1L2-2房间编号长宽推算值(mm )屋面防水第8.0.5条符合要求9橱柜工程1、橱柜安装第7.4.1条2、橱柜观感质量第7.4.2条符合要求外窗防水第8.0.2条符合要求10防水工程外墙防水第8.0.1条防水地面厨卫间、开放式阳台等地面符合要求符合要求防水效果厕浴间、厨房和有排水(或第8.0.4条符合要求其他液体)要求的建筑地面面层与相连接各类面层的标高差第8.0.3条H 1H 4H 5H 2H 3L1L2L3L4。
精装分户验收计划及表格
预览说明:预览图片所展示的格式为文档的源格式展示,下载源文件没有水印,内容可编辑和复制
模板说明:
1.此模板作分户验收期间3个阶段的形象看板;采用一张表管理,要求每天必须进行更新、(选用铅笔填写、便于后期数据更新
2.楼层及户位、按照楼栋或单元、按照施工流水段进行划分。
(精确到户)
按照分户验收计划先填写任务栏计划检查时间,完成后按照各项目统一规范检查完成标记。
笔填写、便于后期数据更新)模板进度必须和现场进度相同。
之差,抽测不合格点数据在表内用笔圈出。
2、L,距墙(柱)角为300~500mm各测1点,中心处测1点。
之差,抽测不合格点数据在表内用笔圈出。
2、L,距墙(柱)角为300~500mm各测1点,中心处测1点。
之差,抽测不合格点数据在表内用笔圈出。
2、L,距墙(柱)角为300~500mm各测1点,中心处测1点。
之差,抽测不合格点数据在表内用笔圈出。
2、L,距墙(柱)角为300~500mm各测1点,中心处测1点。
之差,抽测不合格点数据在表内用笔圈出。
2、L,距墙(柱)角为300~500mm各测1点,中心处测1点。
之差,抽测不合格点数据在表内用笔圈出。
2、L,距墙(柱)角为300~500mm各测1点,中心处测1点。
之差,抽测不合格点数据在表内用笔圈出。
2、L,距墙(柱)角为300~500mm各测1点,中心处测1点。
之差,抽测不合格点数据在表内用笔圈出。
2、L,距墙(柱)角为300~500mm各测1点,中心处测1点。
之差,抽测不合格点数据在表内用笔圈出。
2、L,距墙(柱)角为300~500mm各测1点,中心处测1点。
之差,抽测不合格点数据在表内用笔圈出。
2、L,距墙(柱)角为300~500mm各测1点,中心处测1点。
附表A.0.1:
室内地面、楼梯、墙面、顶棚抹灰、门窗工程验收记录表
附表A.0.2
室内空间尺寸、护栏和扶手、玻璃安装、橱柜工程、防水工程
给排水工程、室内采暖系统、电气工程、智能建筑、
附表A.0.4
附录B
住宅工程质量分户验收汇总表
住宅工程质量分户验收合格证
注:1、该合格证置于室内醒目位置,并作为房屋交付时向住户提供的资料。
2、如存在不影响结构安全和使用功能又无法整改的缺陷,应在备注栏中说明。
附表E:
住宅工程竣工验收监督复核单元、户号抽签记录表工程名称:监督注册号
注:1、该表格为质量监督机构在竣工验收监督中对分户验收进行复核抽签记录,记录结果存入监督档案。
见证人应为建设、施工及监理各工程质量主体方,要求见证人为各方项目负责人并加盖项目章。
附录F
果存入监督档案。
备注栏中填写存在问题所违反的验收依据。
2、监督抽查内容中应包括楼梯、地下室及屋面等公共部位。
建设单位:监理单位:
施工单位:验收时间:
监督人员:。
初装修与精装修住宅工程质量分户验收记录表单位工程名称验收部位(户号)
房间编号净高推
算值
(mm)
长宽推算值
(mm)
实测值(mm)
计算值(mm)
净高净开间
H L1L2H1 H2 H3 H4 H5 L1-1L1-2L2-1L2-2
最大
偏差
极
差
最大
偏差
极
差
室内空间尺寸测量示意图
套型示意图贴图区,标注房间编号。
现场检查项目质量要求质量验收记录
室内楼梯1、楼梯尺寸第4.4.1条
2、楼梯面层质量第4.4.2条
护栏和扶手护栏和扶手的造型、尺寸、高度、
栏杆间距和安装位置
第7.2.1条
玻璃1、玻璃的品种第7.3.1条
2、落地门窗、玻璃隔断的安全
措施
第7.3.2条3、玻璃观感质量第7.3.3条
验收意见:测点合格率:建设单位(项目)
负责人:
年月日
监理单位
总监理工程师:
专业监理工程师:
年月日
施工单位建造师:
质量检查员:
年月日。
备注:1、规划部门出具的《×××市建筑工程规划验收合格证》。
2、建设主管部门出具的《×××市建设工程竣工验收备案证明书》。
表上每一项都必须报主管部门备案,如果缺少任何一项的话,这个楼盘还属于“黑楼”,是不能入住的。
3、区级以上质检站核发的《房屋质量合格证明》。
——必须具备。
4、开发商提供的房屋的《住宅质量保证书》——必须取得,要带走。
5、开发商提供的《住宅使用说明书》——开发商据此承担保修责任。
必须取得,要带走。
6、房产管理局或区局直属测绘队出具的《竣工实测表》。
正式测绘报告:《×××市房屋建筑面积测绘报告》。
7、卫生防疫部门核发的生活供水系统《用水合格证》。
8、公安消防部门出具的《建筑工程消防验收意见书》。
9、民防部门出具的《×××市民防工程竣工验收证书》。
10、质量技术监督部门出具的《×××市电梯(扶梯)验收结果通知单》。
11、环保部门出具的《×××市建设工程环保验收合格证》。
12、燃气主管部门出具的《×××市燃气工程验收证书》。
13、城建档案部门出具的《×××市工程验收档案认可书》。
一、验收不合格的处理对策1、对发现的问题要详细在验楼单上予以注明,如果确实属于不能收楼的,要详细写明不予收楼的原因并要求开发商签字、盖章。
2、影响房屋结构安全和设备使用安全的质量问题,必须约定期限由建设单位负责进行加固补强维修,直至合格。
影响相邻房屋的安全问题,由建设单位负责处理。
3、对于不影响房屋和设备使用安全的质量问题,可约定期限由建设单位负责维修,也可采取费用补偿的办法,由接管单位处理。
4、如果发现问题至少要在收楼文件上注明“室内情况尚不清楚”或“楼房状况未明”等字样。