储气罐储气罐图纸(SARQ03-16)
- 格式:dwg
- 大小:170.62 KB
- 文档页数:1
80m3液化石油气储罐设计摘要本文首先介绍了储罐在国内外研究现状和发展趋势,对液化石油气储罐作了简单的介绍。
接着对液化石油气储罐的进行了详细的结构设计,并运用Auto CAD软件绘制了储罐装配图。
本文是关于80m3液化石油气储罐设计,制造中的几个关键技术:球罐选材,结构设计,补强计算及强度校核行了设计。
本文设计的主要内容包括:工艺设计包括设计压力,设计温度,设计储量;结构设计包括筒体与封头的结构设计,接管与接管法兰的设计,人孔,视镜,液面计,压力计,温度计,及安全阀的结构等结构设计,支座结构设计,焊接接头设计;开孔补强计算;强度计算及校核。
关键词:储罐;工艺设计;结构;强度;补强80m3 liquefied petroleum gas storage tank designAbstractThis paper firstly introduces the research status and development trend of tanks at home and abroad, and liquefied petroleum gas tanks are briefly introduced here. Then the liquefied petroleum gas storage tank structure design were studied in detail, and the use of Auto CAD software to draw the tank assembly drawing.This article is about the design of 80m3 of liquefied petroleum gas tank , several key technology in spherical tank manufacturing are: material, structure design, reinforcement calculation and strength check of the line design.The main contents of this paper include: design process design including the design pressure, design temperature, design reserves; structure design including the tube body and head, nozzles and nozzle flange design, manhole, mirror, level gauge, pressure gauge, thermometer, and safety valve structure, structure design, support structure design, welding joint design; opening reinforcement calculation; strength calculation and check. Keywords: tank; process design; structure; strength; reinforcement目录引言 .......................................................................................................................... - 1 - 第1章绪论 .................................................................................................................. - 2 -1.1 卧室储罐的介绍.................................................................................................................. - 2 -1.2 液化石油气贮罐的分类...................................................................................................... - 2 -1.3 液化石油气特点.................................................................................................................. - 2 -1.4 卧式液化石油气贮罐设计的特点...................................................................................... - 2 - 第2章液化石油气的工艺设计及主体材料的选择 .................................................. - 3 -2.1 设计温度.............................................................................................................................. - 3 -2.2 设计压力.............................................................................................................................. - 3 -2.3 设计储量.............................................................................................................................. - 3 -2.4 焊接接头系数...................................................................................................................... - 3 -2.5 主体材料的选择.................................................................................................................. - 3 - 第3章液化石油气结构设计 .................................................................................... - 4 -3.1 筒体和封头的设计.............................................................................................................. - 4 -3.2 计算压力.............................................................................................................................. - 4 -3.3 圆筒厚度的设计.................................................................................................................. - 5 -3.4 椭圆封头厚度的设计.......................................................................................................... - 5 -3.5 接管、法兰垫片和螺栓的选择.......................................................................................... - 5 -3.6 其他附件的设计.................................................................................................................. - 9 -3.7 鞍座选型和结构设计........................................................................................................ - 10 -3.8 鞍座位置的确定.................................................................................................................- 11 -3.9 焊接结构设计.................................................................................................................... - 12 -3.10 焊后处理.......................................................................................................................... - 13 - 第4章开孔补强设计 ................................................................................................ - 14 -4.1 补强设计方法判别............................................................................................................ - 14 -4.2 有效补强范围.................................................................................................................... - 14 -4.3 有效补强面积.................................................................................................................... - 15 -4.4 接管区焊缝截面积(焊角取6.0mm) .............................................................................. - 15 -4.5补强面积............................................................................................................................... - 15 - 第5章容器强度的校核 ............................................................................................ - 16 -5.1 水压试验校核.................................................................................................................... - 16 -5.2 筒体最小厚度校验............................................................................................................ - 16 -5.3 筒体轴向应力计算与校核................................................................................................ - 16 -5.4 封头最小厚度校验............................................................................................................ - 18 -5.5 封头强度校核.................................................................................................................... - 18 -5.6 筒体和封头切向应力校核................................................................................................ - 18 -5.7 筒体环向应力的计算和校核............................................................................................ - 19 - 结论与展望 .................................................................................................................... - 21 - 致谢 ........................................................................................................................ - 22 - 参考文献 ........................................................................................................................ - 23 -附录A:主要参考文献摘要及题录 ............................................................................. - 24 - 附录B:英文原文及翻译 ............................................................................................. - 26 -插图清单图3-1 椭圆形封头 (4)图3-2 接管分布图 (6)图3-3 鞍座结构图 (11)图3-4 坡口基本形式 (12)表格清单表3-1 标准椭圆形封头尺寸图表 (4)表3–2法兰尺寸表 (6)表3–3 管子尺寸表 (7)表3–4 垫片尺寸表 (7)表3-5 螺栓及垫片 (8)表3-6 水平吊盖带颈对焊法兰人孔尺寸表 (9)表3-7 鞍座支座结构尺寸 (11)引言液化石油气作为一种化工基本原料和新型燃料,已愈来愈受到人们的重视。
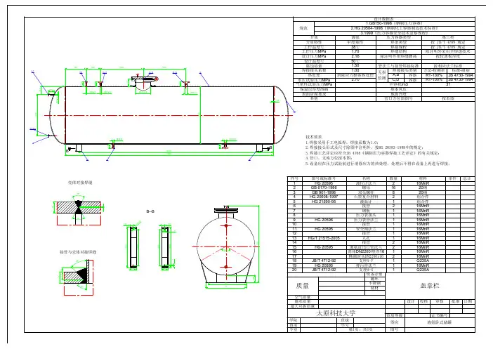
技术要求1.本设备按GBl50-1998《钢制压力容器》进行制造、试验和验收。
2.焊接材料,对接焊接接头型式及尺寸可按GB985-80中规定。
3.焊接采用电弧焊,焊条型号为E4303 。
4.壳体焊缝应进行无损探伤检查,探伤长度为100%。
5.设备制造完毕后,以2MPa表压进行水压试验6.管口及支座方位按本图。
管口表符号公称尺寸DN连接尺寸标准连接面形式用途a1-240HG20592 SO15-1.6 RF突面液面计接管口b1-220HG20592 SO15-1.6 RF突面液面计接管口c450HG20592 SO450-1.6 RF突面人孔d50HG20592 SO32-1.6 RF突面出料口e50HG20592 SO50-1.6 RF突面进料口f25HG20592 SO25-1.6 RF 突面安全阀接口管g20HG20592 SO25-1.6 RF突面放空口h50HG20592 SO50-1.6 RF突面排污口技术特性22GB8163-87出料接管φ38×3.5 L=2001010.5 21HB20592-95法兰SO 32-1.6 RF16MnR1 1.6 20HB20592-95法兰内径φ35其它尺寸按SO32-1.6 16MnR1 1.86 19GB8163-87压料接管φ25×3 L=2750101 4.5 18HB20592-95法兰SO20-1.6 RF16MnR10.94 17GB8163-87排污接管φ57×3.5 L=210101 1.0 16HB20592-95法兰SO50-1.6 RF16MnR1 2.7715JB/T4712-92JB/T4712-92鞍座A2600一FJB/T4712-92鞍座A2600一SQ235-A·F242084014HB20592-95法兰SO25-1.6 RF16MnR1 1.12 13GB8163-87放空管接管φ32×3.5 L=2101010.58 12HB20592-95法兰SO25-1.6 RF16MnR1 1.12 11GB8163-87安全阀接管φ32×3.5 L=2101010.58。
15003m储罐设计全套CAD图纸,联系1538937061 综述长期以来,我国库存轻质油品,广泛采用固定顶油罐和浮顶油罐。
由于固定顶油罐在存贮和收发油品时存在“小呼吸”和“大呼吸”,油品蒸发损耗较大,而且会因为油气逸散到空气中造成环境污染,危害人们身体健康。
因此油品及化学品的蒸发损耗一直是石油、化学工业关心的问题。
人们最初关心的是经济损失和安全,近年来还关心生态、环境保护方面的问题。
为了较经济有效地解决这个问题,世界上发达国家如美国、法国、前苏联早在五、六十年代相继开始研制浮顶油罐。
我国直到70年代末期才开始研制。
由于浮顶罐能降低损耗,减少环境污染,主要用于储存原油、汽油、柴油等介质。
随着内浮顶技术的发展,汽油和航空煤油大多数采用内浮顶罐,新建的外浮顶罐几乎都用于储存原油。
1955年前后,第一次实际采用塑料泡沫浮顶这个充气的救生筏形的构件漂浮在液面上,能减少汽油罐的蒸发损失85%。
法国还研制了由硬聚氯乙烯浮动盖板组成并以同样材料作为浮子支撑的内浮顶罐。
前苏联从1961年起开始使用合成材料做内m容量的储罐装配了合成材料做的内盖。
1962年美浮盖,到1970年末已有3006223国在组瓦克建有世界上最大直径为187ft()的带盖浮顶罐。
到1972年美国已建造了600多个内浮顶油罐。
由于塑料浮顶耐温较差及使用寿命等问题, 从20世纪50年代开始,非钢内浮顶罐开始出现,其材料有铝、环氧及聚酯玻璃钢、聚氯乙烯塑料和聚氨酯泡沫塑料等。
与钢制内浮顶相比,非钢内浮顶具有质轻、耐腐蚀等优点,但强度较差,有的价格较贵,使其应用受到限制。
20世纪80年代以前以钢制内浮顶的应用为主,但此后,耐腐蚀能力和综合力学性能较好的铝合金在内浮顶制造上得以应用,用其制造的装配式铝制内浮顶油罐的降耗率能够达到96%,而且现场安装时的动火量比钢盘式内浮顶减少95%以上,因此得到广泛的推广应用。
为了更好的设计和发展内浮顶储罐,1978年美国API650附录H对内浮盘的分类、设计、安装、检验及标准荷载、浮力要求等作了一系列的修订和改进。
过程装备与控制工程《过程装备设计》课程设计任务书一、设计目的1、复习巩固《过程装备设计》中的理论内容;2、掌握设备设计的步骤、方法。
熟悉常用设备设计的标准。
二、设计题目及设计任书课程设计题目:( 10 )M3( 1.57 )MPaDN(1800 )液化石油气(氨气)储罐设计每人一题,从表中依次选取。
1、液化石油气储罐设计见卧罐参数表,每人一组数据2、设备简图见附件。
3、设计内容与要求(1)概述简述储罐的用途、特点、使用范围等主要设计内容设计中的体会(2)工艺计算根据安装地点的气象记录确定容器的操作温度;根据操作温度、介质特性确定操作压力;筒体、封头及零部件的材料选择;(3)结构设计与材料选择封头与筒体的厚度计算封头、法兰、接管的选型和结构尺寸拟定;根据容器的容积确定总体结构尺寸。
支座选型和结构确定各工艺开孔的设置;各附件的选用;(4)容器强度的计算及校核水压试验应力校核卧式容器的应力校核开孔补强设计焊接接头设计(5)设计图纸总装配图一张A1三、参考文献1. GB150《钢制压力容器》2. HGJ20580-20585一套3. JB4731-2019T+钢制卧式容器4. HG20592-20635钢制管法兰、垫片、紧固件5. HG21514-21535-2019 钢制人孔和手孔6. JB/T 4736 《补强圈》7. JB/T 4746 《钢制压力容器用封头》8. JB/T 4712 《鞍式支座》9. 《压力容器安全技术监察规程》201910. 郑津洋、董其伍、桑芝富.《过程设备设计》.化学工业出版社.2019目录摘要 (I)ABSTRACT (I)第一章绪论 (3)1.1液化石油气储罐的用途与分类 (3)1.2液化石油气特点 (3)1.3液化石油气储罐的设计特点 (3)第二章工艺计算 (4)2.1设计题目 (4)2.2设计数据 (4)2.3设计压力、温度 (4)2.4主要元件材料的选择 (5)第三章结构设计与材料选择 (5)3.1筒体与封头的壁厚计算 (5)3.2筒体和封头的结构设计 (6)3.3鞍座选型和结构设计 (7)3.4接管、法兰、垫片和螺栓的选择 (8)3.5人孔的选择 (10)3.6安全阀安全阀的选型 (10)第四章设计强度的校核 (12)4.1水压试验应力校核 (12)4.2筒体轴向弯矩计算 (13)4.3筒体轴向应力计算及校核 (13)4.4筒体和封头中的切应力计算与校核 (13)4.5封头中附加拉伸应力 (14)4.6筒体的周向应力计算与校核 (14)4.7鞍座应力计算与校核 (14)第五章开孔补强设计 (15)5.1补强设计方法判别 (16)5.2有效补强范围 (16)5.3有效补强面积 (16)第六章储罐的焊接设计 (17)6.1焊接的基本要求 (17)6.2焊接的工艺设计 (18)设计总结 (18)参考文献 (19)摘要本次设计的卧式储罐其介质为液化石油气。
( 安全管理 )单位:_________________________姓名:_________________________日期:_________________________精品文档 / Word文档 / 文字可改天然气的储存-储气罐储气(2020版)Safety management is an important part of production management. Safety and production are inthe implementation process天然气的储存-储气罐储气(2020版)城市燃气用气量不断变化,有月不均匀性、日不均匀性和时不均匀性,但气源的供应量不可能完全按用气量的变化而随时改变,特别是长距离输气管道,为求得最高的效率和最好的经济效益,总希望在某一最佳输量下工作。
这样,供气与用气经常发生不平衡。
为了保证按用户的要求不间断地供气,必须考虑生产与使用的平衡问题。
解决用气和供气之间不平衡问题的途径有三:①改变气源的生产能力和设置机动气源;②利用缓冲用户和发挥调度的作用;③利用各种储气设施。
前两点由于受到气源生产负荷变化的可能性和变化幅度以及供气的安全可靠性和技术经济合理性要求的限制,不可能完全解决供需的不平衡问题。
由于储气设施和储气方法的灵活性,利用各种储气设施是解决用气不均匀性的最有效方法之一。
气体储存根据储存方式可分为地下储存、储气罐储存、液态或固态储存以及输气管道末段储存等。
储气罐储气是地上储气库的主要设备。
根据储气压力和结构,储气罐可分为以下几类。
一、低压湿式罐湿式罐是在水槽内放置钟罩和塔节,钟罩和塔节随着燃气的进出而升降,并利用水封隔断内外气体来储存燃气的容器。
罐的容积随燃气量而变化。
湿式罐按罐的节数分单节罐和多节罐。
按钟罩的升降方式分为在水槽外壁上带有导轨立柱的直立罐和钟罩自身外壁上带有螺旋状轨道的螺旋罐。
单节储气罐一般用于小容量(3000m3以下)储气,钟罩高度等于水槽高度,一般水槽高度为直径的30%~50%。