化粪池报审检验批、之欧阳光明创编
- 格式:doc
- 大小:350.01 KB
- 文档页数:23
表 B.0.7钢化玻璃化粪池沟槽开挖报审、报验表工程名称:贡山县2016 年易地扶贫搬迁项目基础设施配套工程致:贡山县宏益建设工程监理有限责任公司(项目监理机构)我方已完成赤科八组 1-10 户室外钢化玻璃化粪池沟槽开挖工作,经自检合格,现将有关资料报上,请予以审查或验收。
附:□隐蔽工程质量检验资料□检验批质量检验资料□分项工程质量检验资料□施工试验室证明资料□危险性较大的分项工程质量安全检验资料□其他施工项目经理部(盖章)项目经理或项目技术负责人(签字)年月日审查或验收意见:项目监理机构(盖章)专业监理工程师(签字)年月日注:本表一式二份,项目监理机构、施工单位各一份。
土方开挖工程检验批质量验收记录表GB50202-2002A—1单位(子单位)工程贡山县 2016 年易地扶贫搬迁项目基础设施配套工程名称分部(子分部)工程地基与基础(土方工程)验收部位化粪池沟槽开挖名称施工单位怒江谷盛道路桥梁建设工程有限责项目经理和文珠任公司分包单位/分包项目经/理施工执行标准名称及GB50202-2002编号施工质量验收规范的规定允许偏差或允许值( mm)柱挖方场监理 ( 建基地平整地施工单位检查评项目基管(路设) 单位定记录坑人机沟)面验收记录基工械基层槽1标高-50±±-5-50-46 -40 -35 -27 -3630500-45-46-26-40主-25控长度、宽度+20+30+50+1—符合设计要求项(由设计中000002心)线向两-50-10-15目边量)003边坡设计要求√一 1表面平整度202050 2020√般 2基底土性设计要求符合设计要求项目专业工长(施工刘学万施工班组杨安明员)长施工单位检查评定结主控项目全部合格,一般项目符合设计及规范要果求。
项目专业质量检查员:年月日专业监理工程师:监理(建设)单位验(建设单位项目专业技术负责人):收结论年月日表 B.0.7 钢化玻璃化粪池沟槽砂垫层铺设工程报审、报验表工程名称:贡山县2016 年易地扶贫搬迁项目基础设施配套工程致:贡山县宏益建设工程监理有限责任公司(项目监理机构)我方已完成赤科八组 1-10 户室外钢化玻璃化粪池沟槽砂垫层铺设工程工作,经自检合格,现将有关资料报上,请予以审查或验收。
A 3.4 施工测量报验单江苏省建设厅监制工程定位测量、放线验收记录TJ2.2A3.3 工序质量报验单土方开挖工程检验批质量验收记录表A3.3 工序质量报验单碎石地基分项工程检验批质量验收记录TJ4.1.9A3.3工序质量报验单模板分项工程(现浇结构模板安装)检验批质量验收记录A3.3 工序质量报验单现浇结构分项工程(结构施工)检验批质量验收记录A3.3 工序质量报验单混凝土分项工程(混凝土施工)检验批质量验收记录A3.3 工序质量报验单模板分项工程(模板拆除)检验批质量验收记录A3.3工序质量报验单模板分项工程(现浇结构模板安装)检验批质量验收记录A3.3 工序质量报验单钢筋分项工程(原材料、钢筋加工)检验批质量验收记录A3.3 工序质量报验单钢筋分项工程(钢筋连接、钢筋安装)检验批质量验收记录A3.3 工序质量报验单现浇结构分项工程(结构施工)检验批质量验收记录A3.3 工序质量报验单混凝土分项工程(混凝土施工)检验批质量验收记录A3.3 工序质量报验单模板分项工程(模板拆除)检验批质量验收记录A3.3工序质量报验单工程名称:扬州市杉湾花园三期市政配套工程编号:A3.3 —砖砌体分项工程检验批质量验收记录A3.3 工序质量报验单模板分项工程(现浇结构模板安装)检验批质量验收记录A3.3 工序质量报验单钢筋分项工程(原材料、钢筋加工)检验批质量验收记录A3.3 工序质量报验单钢筋分项工程(钢筋连接、钢筋安装)检验批质量验收记录A3.3工序质量报验单工程名称:扬州市杉湾花园三期市政配套工程编号:A3.3 —混凝土分项工程(混凝土施工)检验批质量验收记录A3.3 工序质量报验单模板分项工程(模板拆除)检验批质量验收记录工序质量报验单模板分项工程(现浇结构模板安装)检验批质量验收记录A3.3 工序质量报验单钢筋分项工程(原材料、钢筋加工)检验批质量验收记录A3.3 工序质量报验单钢筋分项工程(钢筋连接、钢筋安装)检验批质量验收记录。
*欧阳光明*创编 2021.03.07《人民防空工程施工及验收规范》GB50134-2004欧阳光明(2021.03.07)(自2004年8月1日起实施)正文部分1 总则1.0.1为了提高人民防空工程(以下简称人防工程)的施工水平,降低工程造价,保证工程质量,制定本规范。
1.0.2本规范适用于新建、扩建和改建的各类人防工程的施工及验收。
1.0.3人防工程施工前,应具备下列文件:1 工程地质勘察报告;2 经过批准的施工图设计文件;3 施工区域内原有地下管线、地下构筑物的图纸资料;4 经过批准的施工组织设计或施工方案;5 必要的试验资料。
1.0.4工程施工应符合设计要求。
所使用的材料、构件和设备,应具有出厂合格证并符合产品质量标准;当无合格证时,应进行检验,符合质量要求方可使用。
1.0.5当工程施工影响邻近建筑物、构筑物或管线等的使用和安全时,应采取有效措施进行处理。
1.0.6工程施工中应对隐蔽工程作记录,并应进行中间或分项检验,合格后方可进行下一工序的施工。
1.0.7设备安装工程应与土建工程紧密配合,土建主体工程结束并检验合格后,方可进行设备安装。
1.0.8工程施工质量验收时,应提供下列文件和记录:1 图纸会审、设计变更、洽商记录;2 原材料质量合格证书及检(试)验报告;3 工程施工记录;4 隐蔽工程验收记录;5 混凝土试件及管道、设备系统试验报告;6 分项、分部工程质量验收记录;7 竣工图以及其他有关文件和记录。
1.0.9人防工程施工及验收,除应遵守本规范外,尚应符合国家现行有关标准规范的规定。
1.0.10人防工程施工时的安全技术、环境保护、防火措施等,必须符合有关的专门规定。
2术语2.0.1人民防空工程为保障人民防空指挥、通信、掩蔽等需要而建造的防护建筑。
人民防空工程分为单建掘开式工程、坑道工程、地道工程和防空地下室。
2.0.2单建掘开式工程单独建设的采用明挖法施工,且大部分结构处于原地表以下的工程。
玻璃钢化粪池检验批质量验收记录号:HFC-01欧阳语创编玻璃钢化粪池检验批质量验收记录号:HFC-01欧阳语创编玻璃钢化粪池检验批质量验收记录号:HFC-01欧阳语创编欧阳语创编玻璃钢化粪池检验批质量验收记录号:HFC-01欧阳语创编玻璃钢化粪池检验批质量验收记录号:HFC-01欧阳语创编玻璃钢化粪池检验批质量验收记录号:HFC-01欧阳语创编玻璃钢化粪池检验批质量验收记录号:HFC-01欧阳语创编欧阳语创编玻璃钢化粪池检验批质量验收记录号:HFC-01欧阳语创编玻璃钢化粪池检验批质量验收记录号:HFC-01欧阳语创编玻璃钢化粪池检验批质量验收记录号:HFC-01欧阳语创编玻璃钢化粪池检验批质量验收记录号:HFC-01欧阳语创编欧阳语创编玻璃钢化粪池检验批质量验收记录号:HFC-01欧阳语创编玻璃钢化粪池检验批质量验收记录号:HFC-01欧阳语创编玻璃钢化粪池检验批质量验收记录号:HFC-01欧阳语创编玻璃钢化粪池检验批质量验收记录号:HFC-01欧阳语创编欧阳语创编玻璃钢化粪池检验批质量验收记录号:HFC-01欧阳语创编玻璃钢化粪池检验批质量验收记录号:HFC-01欧阳语创编玻璃钢化粪池检验批质量验收记录号:HFC-01欧阳语创编玻璃钢化粪池检验批质量验收记录号:HFC-01欧阳语创编欧阳语创编玻璃钢化粪池检验批质量验收记录号:HFC-01欧阳语创编玻璃钢化粪池检验批质量验收记录号:HFC-01欧阳语创编玻璃钢化粪池检验批质量验收记录号:HFC-01欧阳语创编玻璃钢化粪池检验批质量验收记录号:HFC-01欧阳语创编欧阳语创编玻璃钢化粪池检验批质量验收记录号:HFC-01欧阳语创编欧阳语创编欧阳语创编。
表B.0.7 钢化玻璃化粪池沟槽开挖报审、报验表工程名称:贡山县易地扶贫搬家项目基础设施配套工程致:贡山县宏益建设工程监理有限责任公司(项目监理机构)我方已完成赤科八组110户室外钢化玻璃化粪池沟槽开挖工作,经自检合格,现将有关资料报上,请予以审查或验收。
附:□隐蔽工程质量检验资料□检验批质量检验资料□分项工程质量检验资料□施工试验室证明资料□危险性较年夜的分项工程质量平安检验资料□其他施工项目经理部(盖印)项目经理或项目技术担任人(签字)年月日审查或验收意见:项目监理机构(盖印)专业监理工程师(签字)年月日注:本表一式二份,项目监理机构、施工单位各一份。
土方开挖工程检验批质量验收记录表GB50202A—1表B.0.7钢化玻璃化粪池沟槽砂垫层铺设工程报审、报验表工程名称:贡山县易地扶贫搬家项目基础设施配套工程致:贡山县宏益建设工程监理有限责任公司(项目监理机构)我方已完成赤科八组110户室外钢化玻璃化粪池沟槽砂垫层铺设工程工作,经自检合格,现将有关资料报上,请予以审查或验收。
附:□隐蔽工程质量检验资料□检验批质量检验资料□分项工程质量检验资料□施工试验室证明资料□危险性较年夜的分项工程质量平安检验资料□其他施工项目经理部(盖印)项目经理或项目技术担任人(签字)年月日审查或验收意见:项目监理机构(盖印)专业监理工程师(签字)年月日注:本表一式二份,项目监理机构、施工单位各一份。
砂垫层和砂石垫层检验批质量验收记录表GB50209(Ⅲ)A—63表B.0.7 钢化玻璃化粪池装置工程报审、报验表工程名称:贡山县易地扶贫搬家项目基础设施配套工程致:贡山县宏益建设工程监理有限责任公司(项目监理机构)我方已完成赤科八组110户室外钢化玻璃化粪池装置工程工作,经自检合格,现将有关资料报上,请予以审查或验收。
附:□隐蔽工程质量检验资料□检验批质量检验资料□分项工程质量检验资料□施工试验室证明资料□危险性较年夜的分项工程质量平安检验资料□其他施工项目经理部(盖印)项目经理或项目技术担任人(签字)年月日审查或验收意见:项目监理机构(盖印)专业监理工程师(签字)年月日注:本表一式二份,项目监理机构、施工单位各一份。
表B.0.7 钢化玻璃化粪池沟槽启掘报审、报验表之阳早格格创做工程称呼:贡山县2016年易天扶贫搬家名目前提办法配套工程致:贡山县宏益修造工程监理有限责任公司(名目监理机构)尔圆已完毕赤科八组1-10户室中钢化玻璃化粪池沟槽启掘处事,经自检合格,现将有闭资料报上,请给予查看或者查支.附:□湮没工程品量考验资料□考验批品量考验资料□分项工程品量考验资料□动工考查室说明资料□伤害性较大的分项工程品量仄安考验资料□其余动工名目经理部(盖章)名目经理或者名目技能控制人(签名)年月日查看或者查支意睹:名目监理机构(盖章)博业监理工程师(签名)年月日注:原表一式二份,名目监理机构、动工单位各一份.土圆启掘工程考验批品量查支记录表GB50202-2002表钢化玻璃化粪池沟槽砂垫层铺设工程报审、报验表工程称呼:贡山县2016年易天扶贫搬家名目前提办法配套工程致:贡山县宏益修造工程监理有限责任公司(名目监理机构)尔圆已完毕赤科八组1-10户室中钢化玻璃化粪池沟槽砂垫层铺设工程处事,经自检合格,现将有闭资料报上,请给予查看或者查支.附:□湮没工程品量考验资料□考验批品量考验资料□分项工程品量考验资料□动工考查室说明资料□伤害性较大的分项工程品量仄安考验资料□其余动工名目经理部(盖章)名目经理或者名目技能控制人(签名)年月日查看或者查支意睹:名目监理机构(盖章)博业监理工程师(签名)年月日注:原表一式二份,名目监理机构、动工单位各一份.砂垫层战砂石垫层考验批品量查支记录表GB50209-2002(Ⅲ)表B.0.7 钢化玻璃化粪池拆置工程报审、报验表工程称呼:贡山县2016年易天扶贫搬家名目前提办法配套工程致:贡山县宏益修造工程监理有限责任公司(名目监理机构)尔圆已完毕赤科八组1-10户室中钢化玻璃化粪池拆置工程处事,经自检合格,现将有闭资料报上,请给予查看或者查支.附:□湮没工程品量考验资料□考验批品量考验资料□分项工程品量考验资料□动工考查室说明资料□伤害性较大的分项工程品量仄安考验资料□其余动工名目经理部(盖章)名目经理或者名目技能控制人(签名)年月日查看或者查支意睹:名目监理机构(盖章)博业监理工程师(签名)年月日注:原表一式二份,名目监理机构、动工单位各一份.室中排火管沟及井池工程考验批品量查支记录表GB50242-2002表B.0.7 钢化玻璃化粪池回挖报审、报验表工程称呼:贡山县2016年易天扶贫搬家名目前提办法配套工程致:贡山县宏益修造工程监理有限责任公司(名目监理机构)尔圆已完毕赤科八组1-10户室中化钢化玻璃粪池回挖处事,经自检合格,现将有闭资料报上,请给予查看或者查支.附:□湮没工程品量考验资料□考验批品量考验资料□分项工程品量考验资料□动工考查室说明资料□伤害性较大的分项工程品量仄安考验资料□其余动工名目经理部(盖章)名目经理或者名目技能控制人(签名)年月日查看或者查支意睹:名目监理机构(盖章)博业监理工程师(签名)年月日注:原表一式二份,名目监理机构、动工单位各一份.土圆回挖工程考验批品量查支记录表GB50202-2002表B.0.7 钢化玻璃化粪池沟槽启掘报审、报验表工程称呼:贡山县2016年易天扶贫搬家名目前提办法配套工程致:贡山县宏益修造工程监理有限责任公司(名目监理机构)尔圆已完毕赤科八组11-20户室中钢化玻璃化粪池沟槽启掘处事,经自检合格,现将有闭资料报上,请给予查看或者查支.附:□湮没工程品量考验资料□考验批品量考验资料□分项工程品量考验资料□动工考查室说明资料□伤害性较大的分项工程品量仄安考验资料□其余动工名目经理部(盖章)名目经理或者名目技能控制人(签名)年月日查看或者查支意睹:名目监理机构(盖章)博业监理工程师(签名)年月日注:原表一式二份,名目监理机构、动工单位各一份.土圆启掘工程考验批品量查支记录表GB50202-2002表钢化玻璃化粪池沟槽砂垫层铺设工程报审、报验表工程称呼:贡山县2016年易天扶贫搬家名目前提办法配套工程致:贡山县宏益修造工程监理有限责任公司(名目监理机构)尔圆已完毕赤科八组11-20户室中钢化玻璃化粪池沟槽砂垫层铺设工程处事,经自检合格,现将有闭资料报上,请给予查看或者查支.附:□湮没工程品量考验资料□考验批品量考验资料□分项工程品量考验资料□动工考查室说明资料□伤害性较大的分项工程品量仄安考验资料□其余动工名目经理部(盖章)名目经理或者名目技能控制人(签名)年月日查看或者查支意睹:名目监理机构(盖章)博业监理工程师(签名)年月日注:原表一式二份,名目监理机构、动工单位各一份.砂垫层战砂石垫层考验批品量查支记录表GB50209-2002(Ⅲ)表B.0.7 钢化玻璃化粪池拆置工程报审、报验表工程称呼:贡山县2016年易天扶贫搬家名目前提办法配套工程致:贡山县宏益修造工程监理有限责任公司(名目监理机构)尔圆已完毕赤科八组11-20户室中钢化玻璃化粪池拆置工程处事,经自检合格,现将有闭资料报上,请给予查看或者查支.附:□湮没工程品量考验资料□考验批品量考验资料□分项工程品量考验资料□动工考查室说明资料□伤害性较大的分项工程品量仄安考验资料□其余动工名目经理部(盖章)名目经理或者名目技能控制人(签名)年月日查看或者查支意睹:名目监理机构(盖章)博业监理工程师(签名)年月日注:原表一式二份,名目监理机构、动工单位各一份.室中排火管沟及井池工程考验批品量查支记录表GB50242-2002表B.0.7 钢化玻璃化粪池回挖报审、报验表工程称呼:贡山县2016年易天扶贫搬家名目前提办法配套工程致:贡山县宏益修造工程监理有限责任公司(名目监理机构)尔圆已完毕赤科八组11-20户室中钢化玻璃化粪池回挖处事,经自检合格,现将有闭资料报上,请给予查看或者查支.附:□湮没工程品量考验资料□考验批品量考验资料□分项工程品量考验资料□动工考查室说明资料□伤害性较大的分项工程品量仄安考验资料□其余动工名目经理部(盖章)名目经理或者名目技能控制人(签名)年月日查看或者查支意睹:名目监理机构(盖章)博业监理工程师(签名)年月日注:原表一式二份,名目监理机构、动工单位各一份.土圆回挖工程考验批品量查支记录表GB50202-2002表B.0.7 钢化玻璃化粪池沟槽启掘报审、报验表工程称呼:贡山县2016年易天扶贫搬家名目前提办法配套工程致:贡山县宏益修造工程监理有限责任公司(名目监理机构)尔圆已完毕赤科八组21-30户室中钢化玻璃化粪池沟槽启掘处事,经自检合格,现将有闭资料报上,请给予查看或者查支.附:□湮没工程品量考验资料□考验批品量考验资料□分项工程品量考验资料□动工考查室说明资料□伤害性较大的分项工程品量仄安考验资料□其余动工名目经理部(盖章)名目经理或者名目技能控制人(签名)年月日查看或者查支意睹:名目监理机构(盖章)博业监理工程师(签名)年月日注:原表一式二份,名目监理机构、动工单位各一份.土圆启掘工程考验批品量查支记录表GB50202-2002表B.0.7 钢化玻璃化粪池沟槽砂垫层铺设工程报审、报验表工程称呼:贡山县2016年易天扶贫搬家名目前提办法配套工程致:贡山县宏益修造工程监理有限责任公司(名目监理机构)尔圆已完毕赤科八组21-30户室中钢化玻璃化粪池沟槽砂垫层铺设工程处事,经自检合格,现将有闭资料报上,请给予查看或者查支.附:□湮没工程品量考验资料□考验批品量考验资料□分项工程品量考验资料□动工考查室说明资料□伤害性较大的分项工程品量仄安考验资料□其余动工名目经理部(盖章)名目经理或者名目技能控制人(签名)年月日查看或者查支意睹:名目监理机构(盖章)博业监理工程师(签名)年月日注:原表一式二份,名目监理机构、动工单位各一份.砂垫层战砂石垫层考验批品量查支记录表GB50209-2002(Ⅲ)表B.0.7 钢化玻璃化粪池拆置工程报审、报验表工程称呼:贡山县2016年易天扶贫搬家名目前提办法配套工程致:贡山县宏益修造工程监理有限责任公司(名目监理机构)尔圆已完毕赤科八组21-30户室中钢化玻璃化粪池拆置工程处事,经自检合格,现将有闭资料报上,请给予查看或者查支.附:□湮没工程品量考验资料□考验批品量考验资料□分项工程品量考验资料□动工考查室说明资料□伤害性较大的分项工程品量仄安考验资料□其余动工名目经理部(盖章)名目经理或者名目技能控制人(签名)年月日查看或者查支意睹:名目监理机构(盖章)博业监理工程师(签名)年月日注:原表一式二份,名目监理机构、动工单位各一份.室中排火管沟及井池工程考验批品量查支记录表GB50242-2002表B.0.7 钢化玻璃化粪池回挖报审、报验表工程称呼:贡山县2016年易天扶贫搬家名目前提办法配套工程致:贡山县宏益修造工程监理有限责任公司(名目监理机构)尔圆已完毕赤科八组21-30户室中钢化玻璃化粪池回挖处事,经自检合格,现将有闭资料报上,请给予查看或者查支.附:□湮没工程品量考验资料□考验批品量考验资料□分项工程品量考验资料□动工考查室说明资料□伤害性较大的分项工程品量仄安考验资料□其余动工名目经理部(盖章)名目经理或者名目技能控制人(签名)年月日查看或者查支意睹:名目监理机构(盖章)博业监理工程师(签名)年月日注:原表一式二份,名目监理机构、动工单位各一份.土圆回挖工程考验批品量查支记录表GB50202-2002表B.0.7 钢化玻璃化粪池沟槽启掘报审、报验表工程称呼:贡山县2016年易天扶贫搬家名目前提办法配套工程致:贡山县宏益修造工程监理有限责任公司(名目监理机构)尔圆已完毕赤科八组31-40户室中钢化玻璃化粪池沟槽启掘处事,经自检合格,现将有闭资料报上,请给予查看或者查支.附:□湮没工程品量考验资料□考验批品量考验资料□分项工程品量考验资料□动工考查室说明资料□伤害性较大的分项工程品量仄安考验资料□其余动工名目经理部(盖章)名目经理或者名目技能控制人(签名)年月日查看或者查支意睹:名目监理机构(盖章)博业监理工程师(签名)年月日注:原表一式二份,名目监理机构、动工单位各一份.土圆启掘工程考验批品量查支记录表GB50202-2002A—1。
钢筋混凝土化粪池尺寸对照表欧阳光明(2021.03.07)注:本表格为有地下水,池顶有覆土,可过车化粪池化粪池型号长(mm)宽(mm)有效容积(m³)型号代号1号 2950 1350 2 G1-2SQF2号 4800 1350 4 G2-4SQF3号 4800 1600 6 G3-6SQF4号 4800 2100 9 G4-9SQF5号 4800 2100 12 G5-12SQF6号 6000 2600 16 G6-16SQF7号 6000 3100 20 G7-20SQF8号 6000 3100 25 G8-25SQF9号 6000 3100 30 G9-30SQF10号 7400 3100 40 G10-40SQF11号 9000 3100 50 G11-50SQF12号 12000 3200 75 G12-75SQF 13号化粪池应按每人多大设计《化粪池标准图集》注明适应于一般民用建筑生活用的化粪池型号确定如下:住宅类型的:1--15人选用1#化粪池;16--30人的选用2#化粪池;31--45人的选用3#化粪池;46--65人的选用4#化粪池;66--95人选用5#化粪池;96--120人的选用6#化粪池;121--200人的选用7#化粪池;201--260人的选用8#化粪池;261--330人的选用9#化粪池;331--450人选用10#化粪池。
至于楼主选用多大的化粪池,请对号入座。
强烈建议楼主按照化粪池标准图集中的施工。
顺便提醒下,化粪池通常分为:砖砌化粪池、钢筋砼化粪池、预制化粪池(造价低廉)等。
还要区分化粪池上面是否行车,采取加固处理。
1#化粪池容积1.71立方米 2.73*1.49*1.3(0.5--0.8)2#化粪池容积3.12立方米 3.98*1.54*1.3(0.5--0.8)3#化粪池容积4.81立方米 4.68*1.74*1.3(0.5--0.8) 应该参照《化粪池标准图集》制作。
中国核工业二四建设有限公司
欧阳光明(2021.03.07)
核电宣教中心(核电科技馆)建筑安装施工项目
重大环境因素
及控制措施清单
编制:审核:批准:
编制日期:年月日
*欧阳光明*创编2021.03.07
重大环境因素及控制措施清单
单位:中国核工业二四建设有限公司工程名称:核电宣教中心(核电科技馆)建筑安装施工项目安2-2/T
*欧阳光明*创编2021.03.07
控制措施包括:a、制定目标、指标和管理方案;b、执行运行控制程序;c、教育与培训;d、监督检查;e、制定应急预案
*欧阳光明*创编2021.03.07
中国核工业二四建设有限公司
上海市青浦区国核运行研发实验基地项目部
重大环境因素
控制目标、指标和管理方案
编制:审核:批准:
编制日期:年月日*欧阳光明*创编2021.03.07
重大环境因素控制目标、指标和管理方案
单位:中国核工业二四建设有限公司工程名称:上海市青浦区国核运行研发实验基地建设项目安2-2-1/T
*欧阳光明*创编2021.03.07
*欧阳光明*创编2021.03.07。
表B.0.7 钢化玻璃化粪池沟槽开挖报审、报验表工程名称:贡山县2016年易地扶贫搬迁项目基础设施配套工程致:贡山县宏益建设工程监理有限责任公司(项目监理机构)我方已完成赤科八组1-10户室外钢化玻璃化粪池沟槽开挖工作,经自检合格,现将有关资料报上,请予以审查或验收。
附:□隐蔽工程质量检验资料□检验批质量检验资料□分项工程质量检验资料□施工试验室证明资料□危险性较大的分项工程质量安全检验资料□其他施工项目经理部(盖章)项目经理或项目技术负责人(签字)年月日审查或验收意见:项目监理机构(盖章)专业监理工程师(签字)年月日注:本表一式二份,项目监理机构、施工单位各一份。
土方开挖工程检验批质量验收记录表GB50202-2002表B.0.7钢化玻璃化粪池沟槽砂垫层铺设工程报审、报验表工程名称:贡山县2016年易地扶贫搬迁项目基础设施配套工程致:贡山县宏益建设工程监理有限责任公司(项目监理机构)我方已完成赤科八组1-10户室外钢化玻璃化粪池沟槽砂垫层铺设工程工作,经自检合格,现将有关资料报上,请予以审查或验收。
附:□隐蔽工程质量检验资料□检验批质量检验资料□分项工程质量检验资料□施工试验室证明资料□危险性较大的分项工程质量安全检验资料□其他施工项目经理部(盖章)项目经理或项目技术负责人(签字)年月日审查或验收意见:项目监理机构(盖章)专业监理工程师(签字)年月日注:本表一式二份,项目监理机构、施工单位各一份。
砂垫层和砂石垫层检验批质量验收记录表GB50209-2002(Ⅲ)表B.0.7 钢化玻璃化粪池安装工程报审、报验表工程名称:贡山县2016年易地扶贫搬迁项目基础设施配套工程致:贡山县宏益建设工程监理有限责任公司(项目监理机构)我方已完成赤科八组1-10户室外钢化玻璃化粪池安装工程工作,经自检合格,现将有关资料报上,请予以审查或验收。
附:□隐蔽工程质量检验资料□检验批质量检验资料□分项工程质量检验资料□施工试验室证明资料□危险性较大的分项工程质量安全检验资料□其他施工项目经理部(盖章)项目经理或项目技术负责人(签字)年月日审查或验收意见:项目监理机构(盖章)专业监理工程师(签字)年月日注:本表一式二份,项目监理机构、施工单位各一份。
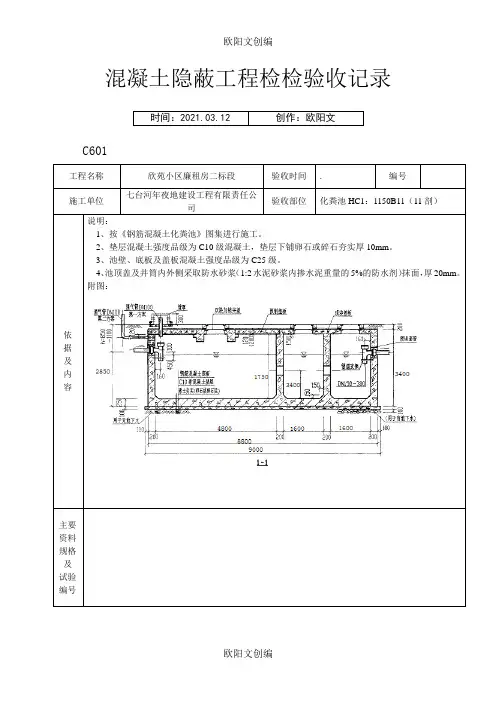
混凝土隐蔽工程检检验收记录时间:2021.03.12 创作:欧阳文C601工程名称欣苑小区廉租房二标段验收时间.编号施工单位七台河年夜地建设工程有限责任公司验收部位化粪池HC1:1150B11(11剖)依据及内容说明:1、按《钢筋混凝土化粪池》图集进行施工。
2、垫层混凝土强度品级为C10级混凝土,垫层下铺卵石或碎石夯实厚10mm。
3、池壁、底板及盖板混凝土强度品级为C25级。
4、池顶盖及井筒内外侧采取防水砂浆(1:2水泥砂浆内掺水泥重量的5%的防水剂)抹面,厚20mm。
附图:主要资料规格及试验编号结论监理工程师施工技术施工(建设单位代表):负责人:质检员:填写人:钢筋隐蔽工程检检验收记录C601工程名称欣苑小区廉租房二标段验收时间.编号施工单位七台河年夜地建设工程有限责任公司验收部位化粪池HC1:1150B11(11正剖)依据及内容说明:1、按《钢筋混凝土化粪池》图集进行施工。
2、钢筋采取HPB235级、HRB335级。
3、钢筋混凝土底板采取Φ16@150、Φ14@150主筋,Φ18@150、Φ16@150散布筋进行铺设。
○3a号:Φ14@75○3:Φ14@150○4a:Φ12@75○4:Φ12@150○5:ф10@150○6:Φ18@150○7:Φ14@150○8:Φ12@150○9:Φ12@150○10:Φ14@150○11:Φ12@150○12:ф10@150○13:Φ12:300○14:Φ18@150○15:Φ16@150○16:Φ16@150○17:Φ14@150○18:Φ12@150见化粪池的配筋图。
附图:主要资料规格及试验编号结论监理工程师施工技术施工(建设单位代表):负责人:质检员:填写人:混凝土隐蔽工程检检验收记录C601工程名称欣苑小区廉租房二标段验收时间.编号施工单位七台河年夜地建设工程有限责任公司验收部位化粪池HC1:1150B11(平面图)依据及内容说明:1、按《钢筋混凝土化粪池》图集进行施工。
深圳市建设工程计价费率标准(2018)欧阳光明(2021.03.07)一、总则(一)本费率标准根据《深圳市建设工程计价规程(2017)》、《建设工程工程量清单计价规范》(GB50500-2013)和《深圳市建筑安装工程费用项目组成》所规定的有关项目的特征及内容编制而成,所公布费率包括参考范围和推荐费率。
(二)本费率标准适用于依据《深圳市建设工程计价规程》等计价标准编制建设工程造价成果文件,确定工程造价。
(三)除另有规定外,编制招标控制价应当依据本费率标准的推荐费率计算。
(四)投标人编制投标报价时不宜超出本费率标准规定的各项目费率参考范围。
(五)部分费用项目未公布推荐费率,使用时应根据招标文件的要求在费率参考范围中确定合适的费率进行计算。
二、分部分项工程费(一)企业管理费1.综合单价构成中的企业管理费计算公式如下:企业管理费:E=(人工费A机械费C×0.1)×企业管理费费率a2.根据目前本市建筑施工企业管理水平的实际情况,不区分专业工程,企业管理费费率参考范围为11%~27%,推荐费率为18%。
(二)利润1.综合单价构成中的利润计算公式为:利润:F=(人工费A+材料费B+机械费C+企业管理费E)×利润率b2.根据国家公布的行业利润率水平和目前本市建筑施工企业的实际赢利情况,不区分专业工程,利润率参考范围为1%~9%,推荐费率为5%。
采用装配式(预制率达到15%以上,装配率达到30%以上)等新技术、新工艺的利润率参考范围和推荐费率可适当提高1%~2%。
三、措施项目费(一)安全文明施工措施费计算公式:安全文明施工措施费I=(X+Y1+Y2+Y3+Y4+Z)×费率i其中:X-分部分项工程费;Y1、Y2、Y3、Y4-分别为措施项目费中的“混凝土/钢筋混凝土模板及支架费”、“脚手架费”、“垂直运输机械费”、“大型机械设备进出场及安拆费”;Z-其他项目费;i-安全文明施工措施费费率,区分专业工程特征如表1所示,需跨专业借用子目时,应统一按发包项目的主体工程相应费率计算。
湖南省第四工程有限公司
沟槽开挖报验申请表表A04
工程名称:邵阳市江北污水处理一期工程(第六标段)编号:001
沟槽开挖检验批质量验收记录
测量复核记录
施记表3
湖南省第四工程有限公司
管道基础报验申请表表A04
工程名称:邵阳市江北污水处理一期工程(第六标段)编号:001
湖南省第四工程有限公司
管道铺设报验申请表表A04
工程名称:邵阳市江北污水处理一期工程(第六标段)编号:001
管道铺设检验批质量验收记录
湖南省第四工程有限公司
管道接口报验申请表表A04
工程名称:邵阳市江北污水处理一期工程(第六标段)编号:001
管道接口检验批质量验收记录
湖南省第四工程有限公司
沟槽回填报验申请表表A04
工程名称:邵阳市江北污水处理一期工程(第六标段)编号:001
沟槽回填检验批质量验收记录
隐蔽工程检查验收记录质检表4
年月日。
目录欧阳家百(2021.03.07)第一章编制依据及原则21.1编制依据21.2编制原则2第二章工程概况42.1工程概况42.2施工的重点及难点4第三章主体专项施工方案63.1开槽:63.2垫层:63.3底板施工:63.4侧墙施工:63.5顶板施工:63.6井筒施工:63.7回填土:6第四章安全目标及安全保证措施74.1安全目标及安全承诺74.2安全保证组织机构74.3安全施工的保证措施7第五章文明施工、环境保护体系及措施105.1文明施工保证体系及保证措施105.2 环境保护的保证措施115.3防扰民措施13第六章雨季施工措施雨季施工方案15 6.1雨季施工方案15第一章编制依据及原则1.1编制依据1.1.1重点实验楼(组团25-A)室外工程招标文件。
1.1.2重点实验楼(组团25-A)室外工程图纸。
1.1.3国家现行的设计标准、规范、规程、规定。
1.2编制原则1.2.1确保工期的原则。
根据甲方对本合同段的工期要求,编制科学的、合理的、周密的施工方案,采用信息化技术,合理安排工程进度,实行网络控制,搞好工序衔接,实施进度监控,确保实现工期目标,满足建设单位要求。
1.2.2优质高效的原则加强领导,强化管理,优质高效。
根据我们在施工组织设计中明确的质量目标,贯彻执行ISO9001 质量体系标准,积极推广、使用“四新”技术,确保创优规划和质量目标的实现。
施工中强化标准化管理,控制成本,降低工程造价。
1.2.3方案优化的原则科学组织,合理安排,优化施工方案是工程施工管理的行动指南,在施工组织设计编制中,对关键工序进行多种施工方案的综合比选,在技术可行的前提下,择优选用最佳方案。
1.2.4安全第一的原则施工组织设计编制始终按照技术可靠、措施得力、确保安全的原则确定施工方案,在安全措施落实到位,确保万无一失的前提下组织施工。
1.2.5科学配置的原则据本合同段的工程量大小及各项管理目标的要求,在施工组织中实行科学配置,选派有丰富施工经验的管理人员和专业化施工队伍,投入高效先进的施工设备,确保流动资金的周转使用,并做到专款专用。
第一章编制依据及原则欧阳歌谷(2021.02.01)1.1编制依据1.1.1建设单位提供的文件;现场调查资料。
1.1.2建设单位提供的有关设计图纸。
1.1.3①、《建筑地基基础工程施工质量验收规范》GB50202-2002;②、《混凝土结构工程施工质量验收规范》GB50204-2001;③、《建筑给水排水及采暖工程施工质量验收规范》GB50242-2002;④、国家建筑标准设计图基03S7021.1.4我单位现有技术管理水平。
1.2 编制原则1.2.1以设计文件及有关规范为依据,紧密结合现场实际情况,编制经济科学、切实可行的施工方案,做到施工部署、施工方案、施工方法及工艺先进、科学。
1.2.2质量目标明确,施工中采用先进技术和设备,严格管理,保证措施完善。
工程完工后,经交工验收,分项、分部、单位工程优良率达到85%。
1.2.3安全目标明确,安全措施可靠,制度完善,确保施工安全。
1.2.4工期目标明确,合理、高效安排施工进度,科学划分施工区段,协调统一。
1.2.5施工中做到保护环境、文明施工。
第二章工程概况2.1工程简介本工程位于苏州太湖国家旅游度假区,是花样年8#地块给排水及道路工程中的化粪池工程。
化粪池的基本参数:1、型号:标准型号为12#,图集号为:03S702,有覆土化粪池顶面可过汽车2、结构尺寸:长*宽*高:7.2*2.9*3.4m,有效容积为50m33、混凝土标号:C25;抗渗要求:达到S6级。
本工程计划工期为20天。
2.2工程数量10#钢筋混凝土化粪池2座;(型号:03S702)2.3本工程的主要特点2.3.1特点2.3.1.1本工程医院楼的化粪池工程。
该工程备受高度重视和关注,我们将竭尽全力,保证本工程按期、优质完工。
2.3.2.2 本工程计划要求工期20天,工期较紧,在保证质量的情况下应抓好施工进度,严格管理、科学安排、精心施工、加大投入、建立健全各种质量保证体系,确保工程质量达到北京市合格标准、确保按期完成施工任务。
玻璃钢化粪池检验批质量验收记录号:HFC-012021.03.09 欧阳法创编2021.03.092021.03.09 欧阳法创编2021.03.09玻璃钢化粪池检验批质量验收记录号:HFC-012021.03.09 欧阳法创编2021.03.09玻璃钢化粪池检验批质量验收记录号:HFC-012021.03.09 欧阳法创编2021.03.092021.03.09 欧阳法创编2021.03.09玻璃钢化粪池检验批质量验收记录号:HFC-012021.03.09 欧阳法创编2021.03.092021.03.09 欧阳法创编2021.03.09玻璃钢化粪池检验批质量验收记录号:HFC-012021.03.09 欧阳法创编2021.03.09玻璃钢化粪池检验批质量验收记录2021.03.09 欧阳法创编2021.03.09号:HFC-012021.03.09 欧阳法创编2021.03.09玻璃钢化粪池检验批质量验收记录号:HFC-012021.03.09 欧阳法创编2021.03.092021.03.09 欧阳法创编2021.03.09玻璃钢化粪池检验批质量验收记录号:HFC-012021.03.09 欧阳法创编2021.03.092021.03.09 欧阳法创编2021.03.09玻璃钢化粪池检验批质量验收记录号:HFC-012021.03.09 欧阳法创编2021.03.09玻璃钢化粪池检验批质量验收记录2021.03.09 欧阳法创编2021.03.09号:HFC-012021.03.09 欧阳法创编2021.03.09玻璃钢化粪池检验批质量验收记录号:HFC-012021.03.09 欧阳法创编2021.03.092021.03.09 欧阳法创编2021.03.09玻璃钢化粪池检验批质量验收记录号:HFC-012021.03.09 欧阳法创编2021.03.092021.03.09 欧阳法创编2021.03.09玻璃钢化粪池检验批质量验收记录号:HFC-012021.03.09 欧阳法创编2021.03.09玻璃钢化粪池检验批质量验收记录2021.03.09 欧阳法创编2021.03.09号:HFC-012021.03.09 欧阳法创编2021.03.09玻璃钢化粪池检验批质量验收记录号:HFC-012021.03.09 欧阳法创编2021.03.092021.03.09 欧阳法创编2021.03.09玻璃钢化粪池检验批质量验收记录号:HFC-012021.03.09 欧阳法创编2021.03.092021.03.09 欧阳法创编2021.03.09玻璃钢化粪池检验批质量验收记录号:HFC-012021.03.09 欧阳法创编2021.03.09玻璃钢化粪池检验批质量验收记录2021.03.09 欧阳法创编2021.03.09号:HFC-012021.03.09 欧阳法创编2021.03.09玻璃钢化粪池检验批质量验收记录号:HFC-012021.03.09 欧阳法创编2021.03.092021.03.09 欧阳法创编2021.03.09玻璃钢化粪池检验批质量验收记录号:HFC-012021.03.09 欧阳法创编2021.03.092021.03.09 欧阳法创编2021.03.09玻璃钢化粪池检验批质量验收记录号:HFC-012021.03.09 欧阳法创编2021.03.09玻璃钢化粪池检验批质量验收记录2021.03.09 欧阳法创编2021.03.09号:HFC-012021.03.09 欧阳法创编2021.03.09玻璃钢化粪池检验批质量验收记录号:HFC-012021.03.09 欧阳法创编2021.03.092021.03.09 欧阳法创编2021.03.09玻璃钢化粪池检验批质量验收记录号:HFC-012021.03.09 欧阳法创编2021.03.092021.03.09 欧阳法创编2021.03.092021.03.09 欧阳法创编2021.03.09。
湖南省第四工程有限公司
沟槽开挖报验申请表表A04
工程名称:邵阳市江北污水处理一期工程(第六标段)编号:001
沟槽开挖检验批质量验收记录
测量复核记录
施记表3
湖南省第四工程有限公司
管道基础报验申请表表A04
工程名称:邵阳市江北污水处理一期工程(第六标段)编号:001
湖南省第四工程有限公司
管道铺设报验申请表表A04
工程名称:邵阳市江北污水处理一期工程(第六标段)编号:001
管道铺设检验批质量验收记录
湖南省第四工程有限公司
管道接口报验申请表表A04
工程名称:邵阳市江北污水处理一期工程(第六标段)编号:001
管道接口检验批质量验收记录
湖南省第四工程有限公司
沟槽回填报验申请表表A04
工程名称:邵阳市江北污水处理一期工程(第六标段)编号:001
沟槽回填检验批质量验收记录
隐蔽工程检查验收记录质检表4年月日。
表B.0.7 钢化玻璃化粪池沟槽开挖报审、报验表欧阳光明(2021.03.07)工程名称:贡山县2016年易地扶贫搬迁项目基础设施配套工程致:贡山县宏益建设工程监理有限责任公司(项目监理机构)我方已完成赤科八组1-10户室外钢化玻璃化粪池沟槽开挖工作,经自检合格,现将有关资料报上,请予以审查或验收。
附:□隐蔽工程质量检验资料□检验批质量检验资料□分项工程质量检验资料□施工试验室证明资料□危险性较大的分项工程质量安全检验资料□其他施工项目经理部(盖章)项目经理或项目技术负责人(签字)年月日审查或验收意见:项目监理机构(盖章)专业监理工程师(签字)年月日注:本表一式二份,项目监理机构、施工单位各一份。
土方开挖工程检验批质量验收记录表GB50202-2002A—1表B.0.7钢化玻璃化粪池沟槽砂垫层铺设工程报审、报验表工程名称:贡山县2016年易地扶贫搬迁项目基础设施配套工程致:贡山县宏益建设工程监理有限责任公司(项目监理机构)我方已完成赤科八组1-10户室外钢化玻璃化粪池沟槽砂垫层铺设工程工作,经自检合格,现将有关资料报上,请予以审查或验收。
附:□隐蔽工程质量检验资料□检验批质量检验资料□分项工程质量检验资料□施工试验室证明资料□危险性较大的分项工程质量安全检验资料□其他施工项目经理部(盖章)项目经理或项目技术负责人(签字)年月日审查或验收意见:项目监理机构(盖章)专业监理工程师(签字)年月日注:本表一式二份,项目监理机构、施工单位各一份。
砂垫层和砂石垫层检验批质量验收记录表GB50209-2002(Ⅲ)表B.0.7 钢化玻璃化粪池安装工程报审、报验表工程名称:贡山县2016年易地扶贫搬迁项目基础设施配套工程致:贡山县宏益建设工程监理有限责任公司(项目监理机构)我方已完成赤科八组1-10户室外钢化玻璃化粪池安装工程工作,经自检合格,现将有关资料报上,请予以审查或验收。
附:□隐蔽工程质量检验资料□检验批质量检验资料□分项工程质量检验资料□施工试验室证明资料□危险性较大的分项工程质量安全检验资料□其他施工项目经理部(盖章)项目经理或项目技术负责人(签字)年月日审查或验收意见:项目监理机构(盖章)专业监理工程师(签字)年月日注:本表一式二份,项目监理机构、施工单位各一份。
室外排水管沟及井池工程检验批质量验收记录表GB50242-2002表B.0.7 钢化玻璃化粪池回填报审、报验表工程名称:贡山县2016年易地扶贫搬迁项目基础设施配套工程致:贡山县宏益建设工程监理有限责任公司(项目监理机构)我方已完成赤科八组1-10户室外化钢化玻璃粪池回填工作,经自检合格,现将有关资料报上,请予以审查或验收。
附:□隐蔽工程质量检验资料□检验批质量检验资料□分项工程质量检验资料□施工试验室证明资料□危险性较大的分项工程质量安全检验资料□其他施工项目经理部(盖章)项目经理或项目技术负责人(签字)年月日审查或验收意见:项目监理机构(盖章)专业监理工程师(签字)年月日注:本表一式二份,项目监理机构、施工单位各一份。
土方回填工程检验批质量验收记录表GB50202-2002表B.0.7 钢化玻璃化粪池沟槽开挖报审、报验表工程名称:贡山县2016年易地扶贫搬迁项目基础设施配套工程致:贡山县宏益建设工程监理有限责任公司(项目监理机构)我方已完成赤科八组11-20户室外钢化玻璃化粪池沟槽开挖工作,经自检合格,现将有关资料报上,请予以审查或验收。
附:□隐蔽工程质量检验资料□检验批质量检验资料□分项工程质量检验资料□施工试验室证明资料□危险性较大的分项工程质量安全检验资料□其他施工项目经理部(盖章)项目经理或项目技术负责人(签字)年月日审查或验收意见:项目监理机构(盖章)专业监理工程师(签字)年月日注:本表一式二份,项目监理机构、施工单位各一份。
土方开挖工程检验批质量验收记录表GB50202-2002表B.0.7钢化玻璃化粪池沟槽砂垫层铺设工程报审、报验表工程名称:贡山县2016年易地扶贫搬迁项目基础设施配套工程致:贡山县宏益建设工程监理有限责任公司(项目监理机构)我方已完成赤科八组11-20户室外钢化玻璃化粪池沟槽砂垫层铺设工程工作,经自检合格,现将有关资料报上,请予以审查或验收。
附:□隐蔽工程质量检验资料□检验批质量检验资料□分项工程质量检验资料□施工试验室证明资料□危险性较大的分项工程质量安全检验资料□其他施工项目经理部(盖章)项目经理或项目技术负责人(签字)年月日审查或验收意见:项目监理机构(盖章)专业监理工程师(签字)年月日注:本表一式二份,项目监理机构、施工单位各一份。
砂垫层和砂石垫层检验批质量验收记录表GB50209-2002(Ⅲ)表B.0.7 钢化玻璃化粪池安装工程报审、报验表工程名称:贡山县2016年易地扶贫搬迁项目基础设施配套工程致:贡山县宏益建设工程监理有限责任公司(项目监理机构)我方已完成赤科八组11-20户室外钢化玻璃化粪池安装工程工作,经自检合格,现将有关资料报上,请予以审查或验收。
附:□隐蔽工程质量检验资料□检验批质量检验资料□分项工程质量检验资料□施工试验室证明资料□危险性较大的分项工程质量安全检验资料□其他施工项目经理部(盖章)项目经理或项目技术负责人(签字)年月日审查或验收意见:项目监理机构(盖章)专业监理工程师(签字)年月日注:本表一式二份,项目监理机构、施工单位各一份。
室外排水管沟及井池工程检验批质量验收记录表GB50242-2002表B.0.7 钢化玻璃化粪池回填报审、报验表工程名称:贡山县2016年易地扶贫搬迁项目基础设施配套工程致:贡山县宏益建设工程监理有限责任公司(项目监理机构)我方已完成赤科八组11-20户室外钢化玻璃化粪池回填工作,经自检合格,现将有关资料报上,请予以审查或验收。
附:□隐蔽工程质量检验资料□检验批质量检验资料□分项工程质量检验资料□施工试验室证明资料□危险性较大的分项工程质量安全检验资料□其他施工项目经理部(盖章)项目经理或项目技术负责人(签字)年月日审查或验收意见:项目监理机构(盖章)专业监理工程师(签字)年月日注:本表一式二份,项目监理机构、施工单位各一份。
土方回填工程检验批质量验收记录表GB50202-2002表B.0.7 钢化玻璃化粪池沟槽开挖报审、报验表工程名称:贡山县2016年易地扶贫搬迁项目基础设施配套工程致:贡山县宏益建设工程监理有限责任公司(项目监理机构)我方已完成赤科八组21-30户室外钢化玻璃化粪池沟槽开挖工作,经自检合格,现将有关资料报上,请予以审查或验收。
附:□隐蔽工程质量检验资料□检验批质量检验资料□分项工程质量检验资料□施工试验室证明资料□危险性较大的分项工程质量安全检验资料□其他施工项目经理部(盖章)项目经理或项目技术负责人(签字)年月日审查或验收意见:项目监理机构(盖章)专业监理工程师(签字)年月日注:本表一式二份,项目监理机构、施工单位各一份。
土方开挖工程检验批质量验收记录表GB50202-2002表B.0.7 钢化玻璃化粪池沟槽砂垫层铺设工程报审、报验表工程名称:贡山县2016年易地扶贫搬迁项目基础设施配套工程致:贡山县宏益建设工程监理有限责任公司(项目监理机构)我方已完成赤科八组21-30户室外钢化玻璃化粪池沟槽砂垫层铺设工程工作,经自检合格,现将有关资料报上,请予以审查或验收。
附:□隐蔽工程质量检验资料□检验批质量检验资料□分项工程质量检验资料□施工试验室证明资料□危险性较大的分项工程质量安全检验资料□其他施工项目经理部(盖章)项目经理或项目技术负责人(签字)年月日审查或验收意见:项目监理机构(盖章)专业监理工程师(签字)年月日注:本表一式二份,项目监理机构、施工单位各一份。
砂垫层和砂石垫层检验批质量验收记录表GB50209-2002(Ⅲ)表B.0.7 钢化玻璃化粪池安装工程报审、报验表工程名称:贡山县2016年易地扶贫搬迁项目基础设施配套工程致:贡山县宏益建设工程监理有限责任公司(项目监理机构)我方已完成赤科八组21-30户室外钢化玻璃化粪池安装工程工作,经自检合格,现将有关资料报上,请予以审查或验收。
附:□隐蔽工程质量检验资料□检验批质量检验资料□分项工程质量检验资料□施工试验室证明资料□危险性较大的分项工程质量安全检验资料□其他施工项目经理部(盖章)项目经理或项目技术负责人(签字)年月日审查或验收意见:项目监理机构(盖章)专业监理工程师(签字)年月日注:本表一式二份,项目监理机构、施工单位各一份。
室外排水管沟及井池工程检验批质量验收记录表GB50242-2002表B.0.7 钢化玻璃化粪池回填报审、报验表工程名称:贡山县2016年易地扶贫搬迁项目基础设施配套工程致:贡山县宏益建设工程监理有限责任公司(项目监理机构)我方已完成赤科八组21-30户室外钢化玻璃化粪池回填工作,经自检合格,现将有关资料报上,请予以审查或验收。
附:□隐蔽工程质量检验资料□检验批质量检验资料□分项工程质量检验资料□施工试验室证明资料□危险性较大的分项工程质量安全检验资料□其他施工项目经理部(盖章)项目经理或项目技术负责人(签字)年月日审查或验收意见:项目监理机构(盖章)专业监理工程师(签字)年月日注:本表一式二份,项目监理机构、施工单位各一份。
土方回填工程检验批质量验收记录表GB50202-2002表B.0.7 钢化玻璃化粪池沟槽开挖报审、报验表工程名称:贡山县2016年易地扶贫搬迁项目基础设施配套工程致:贡山县宏益建设工程监理有限责任公司(项目监理机构)我方已完成赤科八组31-40户室外钢化玻璃化粪池沟槽开挖工作,经自检合格,现将有关资料报上,请予以审查或验收。
附:□隐蔽工程质量检验资料□检验批质量检验资料□分项工程质量检验资料□施工试验室证明资料□危险性较大的分项工程质量安全检验资料□其他施工项目经理部(盖章)项目经理或项目技术负责人(签字)年月日审查或验收意见:项目监理机构(盖章)专业监理工程师(签字)年月日注:本表一式二份,项目监理机构、施工单位各一份。
土方开挖工程检验批质量验收记录表GB50202-2002A—1。