项目十三布置凿井设备
- 格式:doc
- 大小:68.00 KB
- 文档页数:17
井房修建及井设备安装工程施工组织设计目录第一章编制说明 (6)第二章工程概况及工程特点 (7)第一节工程环境 (7)第二节采购内容 (7)第二节工程特点 (7)一、建筑物的特点 (7)二、施工重点及难点 (7)第三章施工组织机构 (8)第一节组建精干高效的项目管理机构 (8)一、项目管理机构的组建 (8)二、项目管理人员岗位职责 (9)第二节项目管理体制 (10)第三节施工组织机构的高效运作 (10)一、明确项目经理部的责、权、利 (10)二、树企业形象,创工程精品 (11)第二节保证施工组织机构运作的措施 (11)第四章工程管理目标 (13)第一节施工总体目标 (13)第二节工程质量目标 (13)第三节工程进度目标 (13)第四节安全生产目标 (13)第五节文明施工目标 (13)第六节技术资料管理目标 (14)第七节施工协调目标 (14)第八节服务目标 (14)第五章施工部署 (15)第一节施工指导方针及目标 (15)一、施工指导方针 (15)二、工程施工目标 (17)第二节、技术准备 (17)第三节、施工准备 (18)一、现场准备 (18)二、施工现场临时用水量确定 (18)第六章质量保证措施和创优计划 (19)第一节质量体系的建立与有效运行 (19)第二节公司质量保证体系组织机构 (20)第三节项目质量保证体系 (21)第四节工程质量监督体系 (22)第五节项目质量计划 (25)第七章主要施工方案及技术措施 (26)第一节井房修建工程施工 (26)一、钢筋砼基础工程 (26)二、主体结构工程 (26)三、砌块墙防护工程 (34)第二节设备安装工程 (37)一、系统概况 (37)二、施工工艺 (37)三、设备安装前的准备工作 (37)四、设备安装工艺 (40)五、工程质量控制流程 (41)第八章工程质量控制措施 (42)第一节施工准备阶段的质量管理 (42)第二节施工材料的质量管理 (42)第三节施工过程中的质量管理 (43)第九章主体质量控制措施 (45)第一节建立质量管理机构 (45)第二节建立质量监督体系 (45)第三节实行全面质量管理 (46)第四节施工质量保证措施 (47)第十章资源配置计划 (50)第一节劳动力计划 (50)第二节主要机具设备配置 (50)第三节主要材料计划及管理 (53)第十一章施工进度计划及保证措施 (55)第一节制定完善的施工进度计划 (55)第二节计划开竣工日期和施工进度计划表 (55)第三节进度控制及保证措施 (56)第十二章成品保护措施 (59)第十三章安全管理体系及措施 (60)第一节安全施工管理的方针、目标和特点 (60)第二节施工安全技术措施的实施 (61)第三节安全检查 (63)第四节施工安全管理制度 (65)第十四章文明施工保证措施 (67)第一节文明施工的概念 (67)第二节文明施工管理的内容 (67)第三节文明施工管理的组织 (68)第十五章环境保护要求及措施 (71)第一节环境保护要求 (71)第二节环境保护措施 (72)第十六章季节施工措施 (74)第十七章新工艺、新材料、新技术、新设备的应用 (76)第十八章竣工验收、交接、保修 (78)第一节工程竣工交付、交接 (78)第二节工程保修 (78)第十九章执行国家强制性条文的措施 (80)附表一:拟投入本工程的主要施工设备表 (82)附表二:拟配备本工程的试验和检测仪器设备表 (83)附表三:劳动力计划表 (84)附表四:计划开、竣工日期和施工进度网络图 (85)附表五:施工总平面图 (86)附表六:临时用地表 (87)第一章编制说明1、XXXXXXXXXXX《竞争性谈判文件》。
基于素质教育的班主任德育工作创新研究素质教育是我国教育事业的重要发展方向,班主任作为德育工作的主要实施者,肩负着培养学生综合素质的重要任务。
由于德育工作的复杂性和多样性,班主任德育工作面临着一系列的挑战和困难。
如何创新班主任德育工作,提高工作效果,已经成为亟待解决的问题。
要创新班主任的角色定位。
传统的班主任角色主要集中在学生学业的管理和学科知识的传授,而忽视了对学生的德育引导和关怀。
在素质教育背景下,班主任应当重新定位,成为学生全面发展的引导者和助手。
班主任应当关注学生的个性特点和兴趣特长,引导学生树立正确的价值观和人生观,从而为他们的未来发展打下坚实的基础。
要优化德育的方法手段。
过去,德育工作主要采用一些传统的方法,如讲座、班会、升旗仪式等。
这些方法往往枯燥乏味,难以激发学生的参与性和主动性。
班主任应当创新德育的方法手段,采用一些活泼有趣的方式进行德育教育。
可以通过课外活动、社团组织、艺术表演等形式,引导学生积极参与,培养学生的团队合作精神和创新能力。
要完善德育的评价体系。
德育工作是一个长期而复杂的过程,不同学生在德育方面的需求和发展程度也不同。
传统的德育评价主要注重学生的道德品质和行为表现,而往往忽视了学生的内在动机和潜能。
班主任应当建立一套科学合理的德育评价体系,将学生成绩、品德修养、综合素质、自身潜能等多个方面纳入评价的范围,以全面了解学生的发展情况,并有针对性地进行引导和提升。
要加强班主任的专业发展。
素质教育的实施需要具备一定的专业素养和能力,班主任作为德育工作的推动者,必须具备丰富的教育理论知识和实践经验。
学校应该为班主任提供专业培训和学术交流的平台,帮助他们提高教育教学水平,掌握最新的教育理念和方法,从而更好地开展德育工作。
基于素质教育的班主任德育工作创新研究涉及多个方面,需要从角色定位、方法手段、评价体系和专业发展等方面进行全面考虑和改进。
只有不断创新和提高,班主任的德育工作才能更好地适应时代需求,实现学生全面发展的目标。
凿井项目实施方案一、项目背景随着城市化进程的加快和人口的增长,水资源的供应已经成为了当前社会面临的一个重要问题。
在一些偏远地区,由于地下水资源的匮乏,居民们的生活用水问题日益突出。
为了解决这一问题,我们决定开展凿井项目,以期为居民提供更加便捷和充足的地下水资源。
二、项目目标1. 提供更加便捷和充足的地下水资源,解决居民的生活用水问题;2. 降低居民取水的成本,提高生活质量;3. 提高地方经济发展水平,促进当地社会稳定和繁荣。
三、项目实施方案1. 地质勘探:首先,需要对项目区域进行地质勘探,确定地下水资源的分布情况和含水层的特点,为后续的凿井工作提供科学依据。
2. 凿井设计:根据地质勘探结果,结合当地的实际情况,制定凿井的具体方案,确定凿井的位置、深度和井径等参数。
3. 凿井施工:选择合适的凿井设备和施工人员,进行凿井的施工作业,确保凿井的质量和进度。
4. 井口装备:完成凿井后,需要对井口进行装备,包括井盖、护栏等设施,确保井口的安全和卫生。
5. 水质检测:对凿井取水进行水质检测,确保地下水资源的安全和卫生,保障居民的用水质量。
四、项目实施步骤1. 制定项目计划:确定项目实施的时间节点和工作任务,合理安排项目进度。
2. 地质勘探:开展地质勘探工作,获取地下水资源的相关数据。
3. 凿井设计:根据地质勘探结果,制定凿井的具体设计方案。
4. 凿井施工:选择合适的凿井设备和施工人员,进行凿井的施工作业。
5. 井口装备:对凿井后的井口进行装备,确保井口的安全和卫生。
6. 水质检测:对凿井取水进行水质检测,确保地下水资源的安全和卫生。
五、项目实施风险1. 地质条件复杂,可能导致凿井工程难度加大;2. 凿井设备故障,可能导致施工进度延误;3. 水质不达标,可能导致地下水资源无法利用。
六、项目实施保障1. 加强项目管理,确保项目进度和质量;2. 严格执行安全操作规程,确保施工安全;3. 加强对水质的监测和管理,确保地下水资源的安全和卫生。
打井工程施工设备表一、土建施工设备1. 发电机:50GF112,产地徐州,制造年份2000.9,额定功率120KW,现场临时供电。
2. 装载机:ZL40C,产地柳工,制造年份2002.10,额定功率140KW,主要用于搅拌站和土方作业。
3. 电弧焊机:BX3-300-2,产地长沙,制造年份2001.4,额定功率24KW,用于钢筋加工。
4. 对焊机:UN1-75,产地长沙,制造年份2000.5,额定功率75KW,用于钢筋加工。
5. 钢筋弯曲机:GW40,产地大连,制造年份2001.2,额定功率3KW,用于钢筋加工。
6. 钢筋切断机:QJ40-1,产地大连,制造年份2000.5,额定功率5.5KW,用于钢筋加工。
7. 钢筋调直机:GJ6-4/8,产地武汉,制造年份2001.4,额定功率5.5KW,用于钢筋加工。
8. 混凝土固定泵:HBT60,产地日本,制造年份2004.5,额定功率90KW,用于混凝土浇灌。
9. 混凝土汽车泵:PY21-30E,产地日本,制造年份2003.5,用于混凝土浇灌。
10. 砂浆搅拌机:JS350,产地山东,制造年份2002.3,额定功率3KW,用于砖砌体施工。
11. 插入式振动棒:ZX50C,产地武汉,制造年份2001.8,额定功率1.1KW,用于混凝土浇灌。
12. 平板式振捣器:ZB11,产地武汉,制造年份2003.7,额定功率1.1KW,用于混凝土浇灌。
13. 施工井吊:SCD200/200,产地沈阳,制造年份2003.5,额定功率20KW,用于垂直运输。
14. 电渣压力焊机:4台,产地大连,制造年份2002.8,额定功率30KW,用于钢筋加工。
15. 扬程40m水泵:IS100-65-20,产地武汉,制造年份2001.3,额定功率22KW,用于降水和排水。
16. 混凝土布料机:HGY13,产地大连,制造年份2005.5,额定功率4.5KW,用于混凝土浇灌。
17. 挖掘机:WL-50,产地日本,制造年份2000.2,用于土方开挖。
凿井工程施工方案一、项目概况凿井工程是指通过机械或化学手段,在地下岩层中开凿出一定直径和深度的井孔,以供给水、气、矿产等资源的开采和利用。
本次凿井工程的目的是为了获取地下水资源,提供给周边居民和农田灌溉使用。
本次施工采用机械凿井的方式进行,在山区地势较为险峻的地方进行。
二、施工前准备1. 设计方案确认:施工前需对凿井项目的设计方案进行确认,包括凿井深度、直径、水源情况等。
2. 地质勘察:对凿井地点周围地质条件进行勘察,了解地层构造、岩石性质等情况,为后续施工提供依据。
3. 施工人员培训:对参与凿井工程的施工人员进行安全培训,确保施工过程中每个人都能遵守相关安全规定。
4. 施工设备准备:准备好所需的凿井机、管材、泵等设备,并对设备进行检查和测试,确保设备正常运转。
5. 安全措施准备:设置安全警示标识、安全防护设施,进行安全演练和应急预案制定,确保施工安全。
三、施工过程1. 设备安装:将凿井机置于准备好的施工基地上,根据设计要求调整机器水平度和方向。
2. 钻头安装:安装准备好的钻头,根据地质条件选择合适的钻头型号,并根据设计要求调整钻头直径。
3. 开孔凿井:启动凿井机,开始进行凿井作业。
根据地质勘察结果,根据设计要求逐步向下凿井,控制凿井速度和方向。
4. 进水处理:当凿至地下水层时,要及时处理水井内的杂质,保持水质清洁。
同时进行地下水的取样分析,确定水质是否符合要求。
5. 凿井完成:当达到设计要求的凿井深度后,停止凿井作业,将泵安装到井中,并进行水源抽取测试,确保水源充足。
四、施工验收1. 施工质量检查:对凿井工程的施工质量进行检查,包括凿井深度、钻孔直径、中间支护、水源水质等情况。
2. 安全检查:对施工现场的安全措施进行检查,确保施工过程中没有发生安全事故。
3. 水质检测:对地下水的水质进行检测,确保水质符合相关标准要求。
4. 竣工验收:经过以上检查合格后,准备进行竣工验收,并颁发竣工验收报告。
五、安全措施1. 施工现场要设置明显的安全警示标识,确保施工人员能够随时了解施工区域的危险情况。
煤矿开采工程施工-拟投入本工程的主要
施工机械设备清单
1. 背景
该文档旨在列出拟投入煤矿开采工程施工的主要施工机械设备
清单,以确保工程施工过程的顺利进行。
2. 施工机械设备清单
以下是拟投入本工程的主要施工机械设备清单:
1. 掘进机 - 用于开采煤矿的主要设备,能够掘进坚硬的煤层并
将其运出矿井。
2. 刮板输送机 - 用于将开采的煤矿从矿井中运出。
3. 钻机 - 用于钻孔和岩石爆破,以便更好地进行开采作业。
4. 提升机 - 用于将煤矿从井下运至地面,使其可以后续处理。
5. 皮带输送机 - 将煤矿从提升机或其他设备传送至指定区域,
提高运输效率。
6. 压实机 - 用于在开采区域压实地面,以确保作业安全和工程
质量。
7. 挖掘机- 用于开采作业中的土方工程和矿石堆场的移动作业。
8. 车辆 - 包括运煤卡车、货车、挖掘机车辆等,用于货物和设备的运输。
以上设备是拟投入煤矿开采工程施工的主要机械设备,它们将为工程的顺利进行提供必要的支持和便利。
3. 备注
此清单仅列出了拟投入工程的主要机械设备,具体的设备选择和数量可能会根据实际情况进行调整。
在采购和使用机械设备时,应遵守相关法律法规并确保设备的质量和安全性。
第七章立井井筒施工设备和布置第七章立井井筒施工设备与布置立井井筒施工时,为了满足掘进提升、翻卸矸石、砌筑井壁和悬吊井内施工设施的需要,必须设置凿井井架、天轮平台、卸矸台、封口盘、固定盘、吊盘、稳绳盘、以及砌壁模板等凿井结构物。
有一些凿井结构物是定型的,可以根据施工条件选取(如凿井井架),有一些则要根据施工条件进行设计计算。
本章重点介绍几个主要凿井结构物的结构特点和设计的原则,以及凿井设备的布置。
第一节凿井井架凿井井架是专为凿井提升及悬吊掘进设备而设立的,建井结束后将其拆除,再在井口安装生产井架。
因此,凿井井架亦称临时井架。
我国凿井时大都采用亭式钢管井架(图7-1),这种井架的四面具有相同的稳定性,天轮及地面提绞设备可以在井架四周布置。
亭式井架采用装配式结构,其优点是:可以多次重复使用,一般不需要更换构件;每个构件重量不大,安装、拆卸和运输都比较方便;防火性能好;承载能力大,坚固耐用,可以满足井下和井口作业的需要。
除亭式钢管井架外,个别地方还使用过三腿式钢凿井井架,在地方小煤矿也使用过木井架。
近年来,一些单位开始利用永久井架或永久井塔代替凿井井架开凿立井,省去了凿井井架的安装拆卸,虽延长了凿井准备期,但对整个建井工期影响不大,提高了投资效益。
最近设计单位又设计出生产建井两用井架,它既服务于建井提升用,又服务于矿井生产提升用,是一种将凿井井架和生产井架的特点相结合的新型井架。
永久井架和永久井塔是专为生产矿井设计的,利用永久井架和永久井塔凿井,必须对其改造或加固,以满足凿井的要求。
两用井架的问世,将此问题彻底解决,显示出极大的优越性,如济宁2号和3号井副井均应用生产凿井两用井架进行立井井筒的施工。
亭式钢凿井井架在目前建井工程中使用最为广泛。
根据井架高度、天轮平台尺寸及其适用的井筒直径、井筒深度等条件,亭式钢管井架共有六个规格,其编号为I、II、III、IV、新IV和V型,分别适用于井深200、400、600、800及1100m。
一、工程概况本工程为某矿山井巷设备安装工程,主要包括井筒、巷道、斜井等井巷工程的设备安装。
工程范围包括:井口、井底、巷道、斜井的通风、排水、供电、通讯等设备的安装。
二、施工准备1. 技术准备(1)熟悉设计图纸,了解工程特点和施工要求。
(2)组织施工人员进行技术交底,明确施工工艺、质量标准和安全要求。
(3)编制施工组织设计,明确施工顺序、施工方法和施工进度。
2. 材料准备(1)设备:通风设备、排水设备、供电设备、通讯设备等。
(2)材料:电缆、管道、支架、连接件等。
3. 人员准备(1)组织施工队伍,明确各工种人员职责。
(2)对施工人员进行专业培训,提高施工技能和安全意识。
三、施工方法1. 井口设备安装(1)根据设计图纸,确定设备安装位置。
(2)安装通风设备,包括风机、风管、风门等。
(3)安装排水设备,包括水泵、排水管、排水沟等。
(4)安装供电设备,包括电缆、开关、配电箱等。
(5)安装通讯设备,包括电话、广播等。
2. 井底设备安装(1)安装排水设备,包括水泵、排水管、排水沟等。
(2)安装供电设备,包括电缆、开关、配电箱等。
(3)安装通讯设备,包括电话、广播等。
3. 巷道设备安装(1)安装通风设备,包括风机、风管、风门等。
(2)安装排水设备,包括水泵、排水管、排水沟等。
(3)安装供电设备,包括电缆、开关、配电箱等。
(4)安装通讯设备,包括电话、广播等。
4. 斜井设备安装(1)安装通风设备,包括风机、风管、风门等。
(2)安装排水设备,包括水泵、排水管、排水沟等。
(3)安装供电设备,包括电缆、开关、配电箱等。
(4)安装通讯设备,包括电话、广播等。
四、质量控制1. 施工过程中,严格执行施工规范和质量标准。
2. 对设备安装进行质量检查,确保设备安装质量。
3. 对施工过程中的隐蔽工程进行记录和验收。
4. 对施工过程中的质量问题和安全隐患进行整改。
五、安全措施1. 严格执行施工现场的安全规章制度。
2. 加强施工人员的安全教育培训,提高安全意识。
第七章立井井筒施工设备和布置第七章立井井筒施工设备与布置立井井筒施工时,为了满足掘进提升、翻卸矸石、砌筑井壁和悬吊井内施工设施的需要,必须设置凿井井架、天轮平台、卸矸台、封口盘、固定盘、吊盘、稳绳盘、以及砌壁模板等凿井结构物。
有一些凿井结构物是定型的,可以根据施工条件选取(如凿井井架),有一些则要根据施工条件进行设计计算。
本章重点介绍几个主要凿井结构物的结构特点和设计的原则,以及凿井设备的布置。
第一节凿井井架凿井井架是专为凿井提升及悬吊掘进设备而设立的,建井结束后将其拆除,再在井口安装生产井架。
因此,凿井井架亦称临时井架。
我国凿井时大都采用亭式钢管井架(图7-1),这种井架的四面具有相同的稳定性,天轮及地面提绞设备可以在井架四周布置。
亭式井架采用装配式结构,其优点是:可以多次重复使用,一般不需要更换构件;每个构件重量不大,安装、拆卸和运输都比较方便;防火性能好;承载能力大,坚固耐用,可以满足井下和井口作业的需要。
除亭式钢管井架外,个别地方还使用过三腿式钢凿井井架,在地方小煤矿也使用过木井架。
近年来,一些单位开始利用永久井架或永久井塔代替凿井井架开凿立井,省去了凿井井架的安装拆卸,虽延长了凿井准备期,但对整个建井工期影响不大,提高了投资效益。
最近设计单位又设计出生产建井两用井架,它既服务于建井提升用,又服务于矿井生产提升用,是一种将凿井井架和生产井架的特点相结合的新型井架。
永久井架和永久井塔是专为生产矿井设计的,利用永久井架和永久井塔凿井,必须对其改造或加固,以满足凿井的要求。
两用井架的问世,将此问题彻底解决,显示出极大的优越性,如济宁2号和3号井副井均应用生产凿井两用井架进行立井井筒的施工。
亭式钢凿井井架在目前建井工程中使用最为广泛。
根据井架高度、天轮平台尺寸及其适用的井筒直径、井筒深度等条件,亭式钢管井架共有六个规格,其编号为I、II、III、IV、新IV和V型,分别适用于井深200、400、600、800及1100m。
第1篇一、工程概况本工程为某地区地下水开发利用项目,主要内容包括凿井、安装井口设施、井筒检查及试抽等。
井深约100米,井径约600毫米。
施工过程中需遵循安全、环保、高效的原则,确保工程质量。
二、施工准备1. 施工组织成立凿井工程领导小组,负责施工过程中的组织、协调、监督和管理工作。
下设施工技术组、安全质量组、材料设备组、后勤保障组等。
2. 施工材料根据工程需要,准备以下材料:井管、钻杆、钻头、钻具、绳索、电缆、井口设施、试抽设备等。
3. 施工设备准备以下设备:钻机、吊车、挖掘机、搅拌机、发电机、水泵等。
4. 施工人员组织施工队伍,明确各岗位人员职责,加强施工人员培训,提高施工技能和安全意识。
三、施工工艺1. 井位放线根据设计图纸,准确进行井位放线,确保井位准确无误。
2. 钻孔施工(1)钻机安装:将钻机平稳地安装在井口,确保钻机与地面垂直。
(2)钻孔:采用旋转钻进法,选用合适的钻头和钻具。
钻进过程中,密切关注钻进速度、扭矩、钻具磨损等情况。
(3)孔径调整:根据设计要求,对孔径进行调整,确保孔径满足设计要求。
3. 井管安装(1)井管加工:根据井深和井径,加工相应规格的井管。
(2)井管连接:将井管连接成整体,确保连接牢固。
(3)井管下放:利用吊车将井管下放到井口,确保井管垂直。
4. 井口设施安装(1)安装井口平台:根据设计要求,安装井口平台。
(2)安装井口设施:安装井口阀门、井口套管、井口电缆等设施。
5. 井筒检查及试抽(1)井筒检查:检查井筒结构、井管连接、井口设施等,确保井筒质量。
(2)试抽:安装试抽设备,进行试抽,检查井筒出水情况。
四、安全措施1. 施工人员需佩戴安全帽、安全带等防护用品。
2. 钻孔施工过程中,确保钻机与地面垂直,防止钻机倾斜或倒塌。
3. 井管下放过程中,确保井管垂直,防止井管倾斜或断裂。
4. 井口设施安装过程中,确保设施牢固,防止设施脱落或损坏。
5. 井筒检查及试抽过程中,确保设备运行正常,防止设备故障。
第1篇一、工程概况1. 工程名称:某地区凿井工程2. 工程地点:某地区3. 工程规模:根据地质条件和水资源需求,本次凿井工程共设计10口井,井深在50-100米之间。
4. 工程工期:预计总工期为6个月。
5. 工程质量标准:达到国家相关标准和规范要求。
二、施工准备1. 组织机构成立项目经理部,下设工程技术部、质量安全管理部、物资设备部、施工管理部、财务部等部门,明确各部门职责和分工。
2. 人员配备(1)项目经理:负责整个工程的全面管理工作。
(2)技术负责人:负责工程技术管理、施工方案编制、施工组织设计等工作。
(3)施工员:负责现场施工管理、技术交底、质量检查等工作。
(4)安全员:负责施工现场安全管理工作。
(5)其他技术人员、施工人员、管理人员等。
3. 材料设备(1)材料:水泥、砂石、钢筋、模板、混凝土、木材等。
(2)设备:挖掘机、装载机、泵车、搅拌车、钢筋加工机械、起重机械、测量仪器等。
4. 施工现场准备(1)施工现场平整、排水、照明、通风等设施完善。
(2)施工便道、临时设施、材料堆场等布置合理。
(3)施工现场安全警示标志、安全防护设施齐全。
三、施工方案1. 施工工艺(1)采用全断面钻进工艺,钻孔直径根据井深和地质条件确定。
(2)采用泥浆护壁,防止坍塌。
(3)采用反循环钻进,提高钻进效率。
(4)采用连续搅拌混凝土,保证混凝土质量。
2. 施工步骤(1)钻孔前,对施工现场进行平整、排水、照明、通风等设施完善。
(2)钻孔过程中,严格控制钻进速度、泥浆质量、钻孔直径等参数。
(3)钻孔过程中,定期进行质量检查,确保钻孔质量。
(4)钻孔完成后,进行孔壁处理,清除孔内泥浆、岩石等杂物。
(5)安装钢筋笼,浇筑混凝土。
(6)混凝土凝固后,进行井筒支护。
3. 施工质量控制(1)严格按设计要求施工,确保钻孔直径、深度、垂直度等符合要求。
(2)严格控制泥浆质量,确保孔壁稳定。
(3)混凝土浇筑过程中,严格控制浇筑速度、混凝土配合比、坍落度等参数。
七、煤炭建设机电安装工程消耗量定额第一章关于《煤炭建设机电安装工程消耗量定额(2007基价)》(以下称本定额)的介绍(一)概述1、编制煤炭专业机电安装工程消耗量定额,顺应当前我国在建设领域进行工程造价管理改革趋势,结合原煤炭机电安装预算定额的基础上,吸取近几年来,我国煤炭行业机电设备新内容新工艺,主要反映当前施工过程组织和管理水平,基本能满足在今后一段时期煤炭行业机电安装工程编制造价文件的需要。
2、在行定额的特点,从整体而言不但适用于煤矿地面通用与专业安装工程,而且也适用于煤矿井下设备、设施安装工程。
包括煤炭矿井地面生产系统、矿井地面、井下运输系统、矿井地面井下排水系统、井下通风压风系统、井下生产系统、全矿井供电、通讯系统、安全检测系统、地面选煤、装车系统等。
基本上体现当前煤炭安装工程的全况。
3、本定额遵从以往预算定额优点和结构,以消耗量形式出现,能满足“清单计价”的模式,也可适用“定额计价”的模式,是建设单位、设计单位、施工企业等编制煤炭机电安装工程造价文件的依据和基础,适用于矿井、选煤厂各类机电安装工程。
(二)、本定额的主要特点:本定额是以突出从井下开采、输出到加工全过程所有机电安装工程,在其内容划分与项目设置上坚持以煤炭专业为中心和以井下安装为重点进行设定的。
本定额的特色主要反映在以下几方面。
1、在安装项目设置上具有行业特色:本定额既有机械设备(含主机、辅机、附件)设施和电气设备、器具、仪器仪表、缆线、信号、通讯、避雷装置安装,又有金属构件、管道和装置性材料安装,还有部分检测、监控装置安装。
而且大都还具有防水、防尘、防火、防爆、防潮、防雷等特殊要求。
2、本定额在安装设备下面砼基础的划分上也有针对性:(1)凡是地面安装对象的砼基础属于土建工程;(2)凡是井下安装对象和地面井架的砼基础属于矿建工程;(3)凡是输电线路杆塔基础属于安装工程。
3、全统定额的工程量计算规则与分项安装内容是与章节说明分列的,而本定额则是全部置在分章说明中,以便减少重复,口径一致,使用方便。
立井施工机械化配置立井施工机械化配置:深孔光暴、锚喷支护、凿岩钻架、0.6立方抓岩机、6立方大吊桶、自动翻矸、大型凿井专用提升机、大吨位凿井绞车、V型凿井井架、高3-4米金属整体液压脱模模板、混凝土输送管、高扬程吊泵、千米激光指向仪、注浆堵水打干井等凿井设备与技术.立井井筒掘进前,先在井口安装凿井井架,在井架上安装天轮平台和卸矸平台。
同时进行井筒锁口施工,安设封口盘、固定盘和吊盘。
另外在井口四周安装好凿井提升机、凿井绞车,建造压风机房和通风机房以及混凝土搅拌站。
竖井是垂直向下掘进的,大量施工设备、管线都要悬挂在井筒内,且随工作面的推进而下放或接长.。
竖井抓岩机械有中心回转抓岩机【HZ型】、环形轨道式抓岩机【HH型】、靠壁式抓岩机【HK型】、钢丝绳悬吊式抓岩机【HS型】.采用哪种机型须根据生产力的计算、井筒类型以及斗容积,根据井筒的深度、井筒直径、围岩稳定性、井架规格以及其它设备配套性选择.凿井设备的布置包括天轮平台布置、井内布置和地面提绞布置3个方面。
布置合理有序与否将直接影响立井施工速度、安全和经济性。
最重点的布置是提升吊桶和竖井抓渣机的布置.凿井井架有亭式钢管架6个型号I型、II型、III型、IV型以及新IV型、新V型.HZ型中心回转抓渣机一般适用于4-6米的井筒直径,井深300-900米的井筒。
它与FJD-6型伞钻和2-6立方吊桶配套使用为宜。
环形轨道式抓岩机不如中心回转抓岩机安装拆迁方便。
环形轨道式抓岩机适用于大型井筒,要求井筒直径在6米以上,可选用单斗HH-6型抓岩机。
靠壁式抓岩机多用在岩石坚硬稳定的金属矿山。
长绳悬吊抓岩机只适用于浅立井施工,一般在50—200米之内。
随着立井深井工程的增加和重型凿岩设备的发展使用,急需解决大吨位凿井绞车,改进技术特征,增加卷筒的容绳量。
改革井内设备、管路悬吊方式,积极推广管线吊挂【井壁固定】技术,完善固定卡具,解决保证混凝土输送管垂直的接头形式,实现凿井管路全部井内吊挂,开发高强轻型管路,实现管路自身悬吊,取消悬吊钢丝绳吊管和单绳悬吊双管,双绳悬吊多路管道,减少井内悬吊钢丝绳和地面凿井绞车的数量.从根本上改变井架结构和井口设施,使之适用高速提升、大型凿井设备的进出和吊放,以及采用立井轨道曲轨提升翻卸吊桶,发展可移动式凿井设备以减少设备安装与拆迁的时间。
一、工程概况本工程为某矿井立井井架安装工程,井架类型为钢制井架,井架高度为69米,重量为840吨。
井架安装地点位于矿井地面,井筒直径为6.5米。
二、施工准备1. 施工组织成立井架安装项目部,负责井架安装工程的全面管理工作。
项目部下设技术组、安全组、材料组、施工组等,确保工程顺利进行。
2. 施工材料(1)井架:钢制井架,包括天轮房、主体架、卸矸台、扶梯、基础等。
(2)吊装设备:起重机、卷扬机、千斤顶等。
(3)辅助材料:钢丝绳、滑轮、吊索具、锚杆、锚索等。
3. 施工工具(1)电焊机、切割机、气割机、电钻等。
(2)测量仪器:经纬仪、水准仪、全站仪等。
三、施工工艺1. 井架基础施工(1)根据设计图纸,对井架基础进行放线,确保基础位置准确。
(2)开挖基础坑,检查坑底平整度,进行基础垫层施工。
(3)安装井架基础,确保基础与坑底紧密结合。
2. 井架组装(1)将井架各部件运至施工现场,按照设计图纸进行组装。
(2)组装过程中,检查各部件尺寸、形状是否符合要求。
(3)组装完成后,进行整体焊接,确保井架结构稳定。
3. 井架吊装(1)选择合适的吊装位置,将井架吊装设备安装到位。
(2)将井架通过起重机吊起,缓慢移至井架基础上方。
(3)利用卷扬机将井架下放至基础,确保井架中心线与基础中心线对齐。
(4)调整井架位置,使其与基础紧密结合。
4. 井架加固(1)在井架与基础连接处安装锚杆、锚索,确保井架稳定性。
(2)检查井架加固情况,确保加固质量。
四、施工质量控制1. 井架基础施工:确保基础位置准确,坑底平整,基础垫层施工质量合格。
2. 井架组装:各部件尺寸、形状符合要求,组装完成后进行整体焊接,确保井架结构稳定。
3. 井架吊装:吊装设备安装到位,井架中心线与基础中心线对齐,确保井架与基础紧密结合。
4. 井架加固:锚杆、锚索安装到位,加固质量合格。
五、安全措施1. 施工现场设置安全警示标志,确保施工人员安全。
2. 施工过程中,严格遵守操作规程,确保吊装设备、施工人员安全。
目录第一章总则第二章安全管理第一节安全监督第二节安全管理制度第三节安全管理职责第四节安全资金第五节安全技术管理第三章矿建工程第一节一般规定第二节立井的开凿和支护第三节平巷与斜巷的掘进和支护第四章通风、瓦斯、防灭火、防尘第一节通风第二节瓦斯防治第三节防灭火管理第四节防尘第五章防治煤与瓦斯突出第一节一般规定第二节区域综合防突措施第三节局部综合防突措施第四节安全防护措施第六章爆破材料和井下爆破第一节爆破材料的贮存第二节爆破材料的管理第三节爆破材料的运输第四节井下爆破第五节爆破材料的销毁第七章地质、测量和防治水第一节一般规定第二节地质第三节测量第四节防治水第八章运输与提升第一节平巷和倾斜巷运输第二节立井提升第三节钢丝绳和连接装置第四节提升装置第九章凿井主要设备第一节空气压缩机第二节凿井井架第三节凿井稳车第四节提升容器、钩头、滑架第五节凿井钻架第六节大型抓岩机第七节吊泵与水泵第十章电气第一节一般规定第二节电气设备和保护第三节井下电缆第四节电气设备保护接地和电气管理第五节照明、通信和信号第十一章土建工程第一节一般规定第二节基坑支护第三节脚手架工程第四节洞口和临边防护第五节临时用电第六节起重机械第七节拆除工程第十二章安装工程第一节一般规定第二节高空和井筒作业第三节吊装作业第四节焊接第十三章安全技术培训第十四章抢险救灾第十五章附则附录计量单位符号与计量单位名称第一章总则第一条为了贯彻执行国家安全生产方针,提高全省煤矿建设安全管理水平,预防各类事故的发生,保障煤矿建设职工的安全,保护国家资源和财产不受损失,保证煤矿建设的正常进行,促进煤炭工业可持续发展,特制定《山西省煤炭工业厅煤矿建设安全规定》,以下简称本规定。
第二条本规定根据《中华人民共和国安全生产法》、《中华人民共和国煤炭法》、《煤矿安全规程》、《建设工程安全生产管理条例》、《煤矿建设项目安全设施监察规定》等有关法律、法规和规章,并参考《国际劳工组织(ILO)施工安全与卫生公约》而编制.第三条本规定适用于本省煤炭行业各级管理部门和各煤矿建设单位、施工单位、监理单位、设计单位、地质勘探单位及其他有关单位实施管理、监督、检查煤矿各类建设工程的安全管理工作。
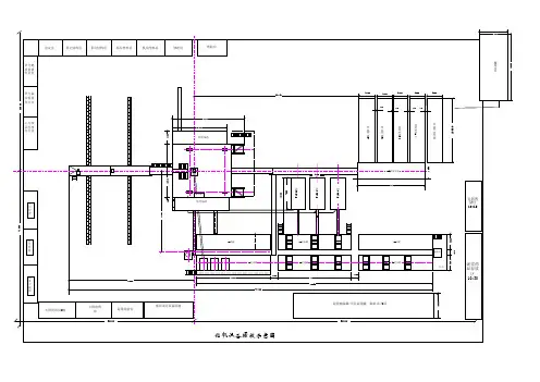
项目十三凿井设备布置凿井设备的布置,是立井井筒施工组织设计的重要容之一。
随着立井施工机械化水平的不断提高,大型钻眼、装岩、砌壁及提升与悬吊等施工设备,在井、井架和井口附近地面等有限的空间中进行协调布置,并满足凿井施工工艺、施工安全、施工成本、施工效率、设备结构与运转等方面的要求,其难度较大。
因此,凿井设备布置是一项技术性很强的工作。
1.凿井设备布置的容凿井设备布置主要包括以下几项容。
(1)井设备布置。
包括吊桶、抓岩机、吊泵、风筒、安全梯、各种管线、稳绳、吊盘悬吊钢丝绳等布置(井筒凿井设备布置断面图);(2)吊盘布置。
吊盘各盘梁布置;吊盘上有关施工设备的布置等(吊盘盘梁结构图等);(3)天轮平台布置。
提升天轮、悬吊天轮及天轮梁的布置等(天轮平台布置平面图、剖面图等);(4)地面提绞设备布置。
提升机、各凿井绞车的布置等(提绞设备布置平面图、立面图等)。
2.凿井设备布置原始资料凿井设备布置之前,必须掌握以下几个方面的资料。
(1)各种设备的技术性能及其规格;(2)井筒施工图;(3)井底车场平面图,井巷过渡期的改装方案;(4)工业场地总平面布置图、井口标高;(5)井筒地质水文资料、井筒施工方案及方法。
3.凿井设备布置的原则(1)吊桶是影响井筒施工速度的主要因素,同时,由于吊桶占用井筒有效面积最大,且因频繁的运转而与其他设备之间必须按规定留出足够的安全距离等原因,所以,在所有凿井设备布置中应以吊桶为主,即首先保证提升设备的布置合理。
(2)井、外设备布置过程中,应首先以保证井设备布置合理为主;天轮平台与地面提绞设备布置时,应首先以保证天轮平台布置合理为主;(3)凿井设备的布置,不仅要满足井筒施工的要求,还要兼顾转入井底车场施工、井筒永久装备施工时利用凿井设备的需要,以尽可能地减少各阶段过渡时期的改装工作量和工期。
4.凿井设备布置的步骤凿井设备一般是从工作面开始,按照自下向上、由而外的顺序进行布置的。
根据凿井设备布置的原则,布置时可参考以下步骤进行。
(1)布置井凿井设备,画出井筒凿井设备布置断面图;(2)根据凿井设备位置及有关安全间隙规定,依次布置吊盘、封口盘、固定盘(盘梁及其上设备等);(3)确定井架与井筒的相对位置及天轮平台主梁的规格尺寸;(4)按照提升及悬吊钢丝绳的出绳点,以及选择的天轮和天轮梁的规格,布置天轮平台;(5)布置翻矸平台;(6)确定提升机及凿井绞车的位置,布置提升机、凿井绞车等设备;(7)布置混凝土搅拌站。
凿井设备布置要受到多方面的牵制,并且井筒外、上下必须协调一致,同时还要兼顾地面工业场地布置、永久建筑与设备的合理利用、相邻井筒的协同施工、巷道施工期间及井筒装备期间对凿井设备的利用等因素。
因此,布置难以一次完成,需要经过反复调整才能做到合理可行。
布置凿井设备时,通常采用硬片模型摆布法,把设备的轮廓外形按照一定比例(一般采用1∶20)用硬纸剪成模型,然后在图纸上摆放布置。
也可以采用相应的计算机软件进行布置。
任务一井凿井设备布置在明确凿井设备布置原则的基础上,熟练识读凿井设备布置图纸。
并能够根据凿井施工需要,参与凿井设备的布置等工作。
一、凿井设备的吊挂方式井布置的凿井设备主要有吊桶、抓岩机、吊泵、安全梯、各种管线、吊盘、模板等。
除吊桶外,通常均以吊挂的方式布置在井筒。
凿井设备的吊挂方式一般有钢丝绳悬吊和井固定两种方式。
1. 钢丝绳悬吊钢丝绳悬吊系统主要由凿井绞车、悬吊天轮、悬吊钢丝绳及绳卡联连接件等组成。
井的管缆设备采用卡子固定在钢丝绳上,并通过布置在天轮平台上的悬吊天轮及井口地面的凿井绞车,悬吊在井筒的指定位置。
井设备悬吊用卡子如图13-1所示。
对于风筒、压风管等直径和质量均较大的设备,一般使用双绳悬吊;而对于放炮电缆等,可以使用采用单绳悬吊。
这种吊挂方式,随着井筒工作面向下掘进延伸,管路的接长工作可以在地面封口盘(或固定盘)上进行,简单方便,并且对井掘砌施工影响也较小。
2. 井固定井固定是采用锚杆、卡子等部件,将管缆固定在井壁或钢梁上,如图13-2所示。
井壁固定,接长管路需要在井吊盘上进行,但这种方式节省了悬吊系统设备设备,简化了凿井的设备布置,特别是由于各种管路靠井壁布置,尽可能少地占用井筒断面,为加大吊桶的容积创造了有利条件。
二、吊桶的布置井凿井设备的布置以吊桶为核心,吊桶在井筒断面中的位置确定后,抓岩机等其他设备则围绕吊桶分别进行布置。
吊桶应按照以下要点布置:1.井巷过渡期需要改装为临时罐笼提升的井筒,其吊桶的位置尽可能与临时罐笼的位置一致,吊桶的悬吊点应位于临时罐笼的提升中心线上,以减少改装的工作量。
对于双卷筒提升机用于单钩提升时,吊桶应布置在固定卷筒一侧。
2.吊桶的位置尽量布置在永久提升间,并避开永久罐道(罐道梁)的位置。
以便在井筒安装时能够保持吊桶的正常运转。
3.采用临时提升机提升时,确定吊桶的位置时要考虑地面设置提升机的可能性。
4.当采用两套提升设备时,两个吊桶应布置在井筒的相对两侧,以使井架受力均衡,并方便布置卸矸溜槽。
5.为了不影响测量工作,吊桶应离开井筒中心,并且其外缘与井筒中心的距离为:采用激光指向仪测量时不小于500mm;采用锤球挂线测量时不小于100mm;采用环形轨道抓岩机装岩时不小于800mm。
6.吊桶外缘与永久井壁之间的距离不小于450mm。
7.当掘进使用环形轨道抓岩机、环形钻架等设备时,吊桶外缘与环轨、环架缘的间距不小于300mm。
8.吊桶两侧的稳绳与提升钢丝绳应布置在同一个垂直平面,并与提升和卸矸方向垂直。
两条稳绳的间距应与所选用的滑架相适应。
9.两个吊桶(或其他提升容器)相邻的两条稳绳之间的间距,当井筒深大于300m时不小于200+H/3mm(H为提升高度);当井筒深度小于300m时不小于300mm;双钩提升时,可以将上述规定的最小距离加大40~50mm,以方便喇叭口的设置。
10.吊桶最突出部分与所通过的孔口之间的安全间隙不小于200mm;滑架与空口的安全间隙大于100mm。
布置吊桶时,可以分别依照吊桶距离井筒中心和永久井壁之间的最小规定间距,在井筒断面分别画出两个圆,两个圆之间即为吊桶布置的空间。
然后再按照上述要点,确定提升出绳方向和吊桶位置。
见图13-3。
三、抓岩机的布置抓岩机的位置应与吊桶的位置相适应,以方便抓岩和向吊桶投放矸石。
1.除环形轨道式抓岩机外,其他抓岩机外缘距离井筒中心不小于100mm。
2.当抓岩机停止工作时,抓斗悬吊时的最突出部位与运行的吊桶之间的距离不小于200mm。
3.为了有利于扩大抓岩围,并避免吊盘过于偏重,中心回转抓岩机在满足距离井筒中心间隙要求的条件下,尽量靠近井筒中心布置。
中心回转抓岩机固定在吊盘梁上,同时在地面设置凿井绞车悬吊。
固定抓岩机的吊盘梁的布置尺寸与联系固定方式见图13-4。
4.工作面布置多台抓岩机时,要协调好各抓岩机的工作区域,并使其大致相当。
5.采用吊泵排水时,抓岩机应远离吊泵分别布置在井筒断面的两侧,以减少吊泵对抓岩区域的影响。
采用中心回转和环形轨道抓岩机时,井筒工作面不宜布置两台吊泵同时工作。
6.使用NZQ2-0.11小抓岩机时,每台担负的抓岩区域面积一般为12~15m2。
布置在吊盘上的悬吊风动绞车,应考虑不使吊盘偏重,必要时可设置导向轮。
四、其他凿井设备布置1.下放或和提升伞钻时,伞钻突出部分(收拢后)与井各盘通过口的间隙不小于400mm;工作面时,支撑臂距离吊桶、吊泵外缘不小于300mm。
2.吊泵应靠近井壁,与吊桶对称布置在井筒断面的两侧,吊泵外缘与井壁的距离不小于300mm;布置两台吊泵时,其外缘的距离不小于500mm;吊泵外缘与井各盘通过口之间的间隙不小于50mm。
3.安全梯应避开吊盘圈梁,并靠近井壁布置,与井壁的间距不大于500mm;与井各盘通过口边缘的间隙不小于150mm.4.各管路和电缆最突出部分与井筒中心之间距距离不小于100mm;与永久井壁之间距距离不小于300mm。
5.管、线最突出部分与提升容器之间距,当井深在400m以时不小于500mm;当井深在400~500m时不小于600mm;当井深超过500m以时不小于800mm。
6.管、线及其卡子的最突出部分与各盘、台通过孔口的间距不小于100mm。
7.照明、动力电缆与通信、放炮电缆的间距不小于300mm;放炮、信号电缆与压风管的间距不小于1000mm。
8.放炮电缆应单独悬吊。
其他电缆在满足安全距离的条件下,可以与吊盘悬吊绳或管路悬吊绳联合悬吊。
9.风筒、压风管、混凝土输送管在井的位置,应分别与地面的通风机房、压风机房、混凝土搅拌站的位置一致。
10.各管线及悬吊钢丝绳的位置,应避开卸矸溜槽、井口运输及伞钻移挂通道。
11.井凿井设备布置要兼顾考虑井各盘盘梁结构布置、天轮平台上的天轮布置及井架的受力均衡等问题。
根据凿井设备布置原则,阅读、讨论井筒凿井设备布置断面图纸。
任务二吊盘的布置明确吊盘梁格、孔口、盘面及吊盘上凿井设备等布置的原则,熟练识读有关吊盘结构与布置图纸。
并根据掘砌施工工艺的需要布置吊盘。
一、吊盘的结构吊盘是重要的凿井结构物,通常采用钢丝绳和凿井绞车悬吊在井筒中,作为井壁砌筑、井筒安装的工作台,同时,也作为安装和悬吊抓岩机等掘进设备、拉紧稳绳和保护掘进工作面安全之用。
(一)吊盘的组成吊盘一般由梁格、盘面、立柱、喇叭口、盖板、活页、固定装置、悬吊装置等组成。
根据施工工艺需要,吊盘有单层、双层和多层之分,一般多使用双层吊盘。
如图13-5所示。
1.梁格与盘面吊盘的梁格由主梁、圈梁、副梁和构造梁组成。
见图13-6。
主梁是吊盘的主要承载梁,一般采用工字钢(Ι16~Ι28a)对称布置在吊盘两侧,作为吊盘悬吊绳的生根梁;圈梁多采用槽钢([16~[20a)呈封闭圆形布置;副梁多采用工字钢(Ι16~Ι25a)或槽钢([16~[28a),并根据吊盘结构受力计算、设备通过孔口、盘面布置及安置抓岩机等凿井设备的需要进行布置。
盘面为铺设在梁格之上的防滑网纹钢板(厚4mm)。
2.立柱立柱是上、下层吊盘之间的连接件,通常采用4~6根无缝钢管(Ф114×5~6)或型钢([16~[20a),均布在两层吊盘之间,并尽量联接在主梁上。
吊盘的层间距一般为4~6m。
3.喇叭口与盖板喇叭口是各层吊盘的吊桶通过口,并在孔口周围用钢板围成的一圈安全保护围栏。
其高度在盘面以上一般为1~2m,盘面以下为0.5m。
风筒等其他管路的通过口也可以采用喇叭口,其高度不应小于0.2m。
吊盘上的吊泵、安全梯、测量孔等通过孔口,因为不经常使用,则应采用盖门封闭。
4.固定装置与活页为了使吊盘在装岩、砌壁等施工过程中不至于晃动,在各层盘的周边设置不少于4个撑紧固定装置,使吊盘撑紧在井壁上而稳固吊盘。
吊盘固定装置通常采用液压千斤顶、螺旋撑紧装置、或可伸缩固定插销或大木楔等。