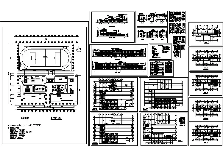
某中学十二班教学楼全套图纸设计方案
- 格式:pdf
- 大小:866.37 KB
- 文档页数:12
房屋建筑学教学楼设计《房屋建筑学》课程设计任务书十二班中学教学楼方案设计一、目的要求为配合《房屋建筑学》建筑设计部分的理论教学,进行一次建筑方案设计,培养学生综合运用建筑设计原理去分析问题和解决问题的能力,从中了解方案设计的方法和步骤,进一步训练和提高绘图技巧。
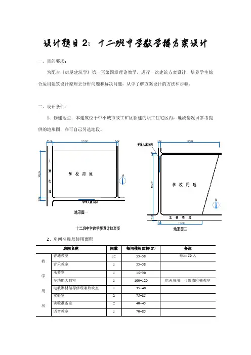
二、设计条件1.修建地点:本建筑位于中小城市或工矿区新建的职工住宅区内,地段情况可参考图1,亦可自己另选地段。
2.房间名称及使用面积(见1)。
图1改为滨水公园总用地面积:4478平方米用地红线3.总平面设计(1)教学楼。
(2)运动场:设250m环形跑道(附100m直跑道).田径场1个,篮球场2个,排球场1个。
(3)绿化用地(兼生物园地):300~500m2。
4.建筑标准(1)建筑层数:1~4层。
(2)层高:教学用房3.6~3.9m;办公用房3.0~3.4m。
(3)结构:混合结构或钢筋混凝土框架结构。
(4)门窗:木门、铝合金窗(或塑钢窗)。
(5)装修:根据当地社会经济状况,自行确定。
(6)走道宽(轴线尺寸):2.4~3.0m(中间走道),1.8~2.1m(单面走道)。
(7)采光:教室窗地比为1/4,其他用房为1/8~1/6。
(8)卫生:设室内厕所(蹲式大便器、小便槽或小便斗),数量按男女学生各半计算。
男厕所:40~50人一个大便器.两个小便斗(或1m长小便槽)。
女厕所:20~25人一个大便器。
三、设计内容及深度本设计按方案设计深度要求进行,采用2号绘图纸、工具线,手工绘制完成下列内容:1.总平面图;比例为1:500,可根据情况由学生选做。
2.平面图:各层平面,比例为1/200~1/100。
(1)底层各入口要绘出踏步、花池、台阶等。
(2)尺寸标注为两道,即总尺寸与轴线尺寸。
(3)确定门窗位置、大小(按比例画,不注尺寸)及门的开启方向。
(4)楼梯要按比例尺寸画出梯段、平台及踏步,并标出上下行箭头。
(6)注明房间名称。
(7)标图名及比例。
3.立面图:入口立面及侧立面,比例1/200~l/l00。
设计题目2:十二班中学教学楼方案设计一、目的要求:为配合《房屋建筑学》第一至第四章理论教学,进行一次建筑方案设计,培养学生综合运用建筑设计原理去分析问题和解决问题,从中了解方案设计的方法和步骤。
二、设计条件:3、总平面设计:(1)教学楼:占地面积按设计(2)运动场:设250米环形跑道(附100米直跑道),田径场1个,篮球场2个,排球场1个。
(3)绿化用地(兼生物园地):300~500㎡4、建筑标准:(1)建筑层数:1~4层(2)层高:教学用房3.6~3.9m办公用房3.0~3.4m(3)结构:混合结构或钢筋混凝土框架结构(4)门窗:木门、铝合金窗(或塑钢窗)(5)装修:根据当地社会经济状况,自行确定。
(6)走道宽(轴线尺寸):2.4~3.0m(中间走道),1.8~2.1m(单面走道)。
(7)采光:教室窗地比为1/4,其他用房为1/6~1/8。
(8)卫生:设室内厕所(蹲式大便器、小便槽或小便斗),数量按男女学生各半计算。
男厕所:40~50人一个大便器,两个小便斗(或1m长小便槽)。
女厕所:20~25人一个大便器。
三、设计内容及深度本设计按方案设计深度要求进行,用AutoCAD软件计算机制图,2#图纸两张。
完成下列内容:1、平面图:各层平面,比例1/100~1/200(1)底层各入口要画出踏步、花池、台阶等。
(2)尺寸标注为两道,即总尺寸与轴线尺寸。
(3)确定门窗位置、大小(按比例画,不注尺寸)及门的开启方向。
(4)楼梯要按比例尺寸画出梯段、平台及踏步,并标出上下行箭头。
(5)标出剖面线及编号。
(6)注明房间名称。
(7)标图名及比例。
2、立面图:入口立面及侧立面,比例1/100~1/200。
(1)外轮廓线画中粗线,地坪线画粗实线,其余画细实线。
(2)注明图名及比例。
3、剖面图:1~2个剖面,比例1/100。
(1)剖切部分用粗实线,看见部分用细实线;地坪为粗实线,并表示出室内外地坪高差。
(2)尺寸标两道,即各层层高及建筑总高。
城市十二班中学教学楼方案设计说明清晨的阳光透过窗帘,洒在了设计图纸上,笔尖轻轻滑过,思路如同涌动的溪流,一幕幕设计方案在脑海中浮现。
今天,我将用十年的经验,为城市十二班中学教学楼的设计献上一份心力。
一、设计理念我们要确立一个清晰的设计理念:绿色、环保、人文、实用。
这四个关键词将贯穿整个教学楼的设计过程,从选址、规划到施工、使用,每一个环节都要严格遵循这一理念。
二、选址与规划1.选址城市十二班中学教学楼选址位于城市边缘,交通便利,环境优美。
周边配套设施齐全,有利于学生全面发展。
同时,考虑到地形的起伏,我们选择了地势较高的地块,以保证教学楼的通风、采光和排水。
2.规划教学楼占地面积约为10000平方米,建筑总面积约为30000平方米。
建筑风格以现代简约为主,强调线条的美感和空间的合理性。
规划中,我们将教学楼分为教学区、办公区、活动区三个部分,实现功能的分区与融合。
三、教学区设计1.教室教室是教学区的重要组成部分,我们采用小班制教学,每个教室容纳40人。
教室内部采用环保材料,保证空气质量。
墙面采用隔音板,避免干扰。
每个教室都配备多媒体教学设备,满足现代化教学需求。
2.实验室实验室是培养学生实践能力的重要场所。
我们设立物理、化学、生物三个实验室,每个实验室可容纳20人。
实验室内部设备齐全,满足各类实验需求。
3.图书馆图书馆是学生自主学习的重要场所,我们设立一个面积为500平方米的图书馆,藏书量为5万册。
图书馆内部采用智能化管理系统,方便学生借阅。
四、办公区设计1.教师办公室教师办公室分为独立办公室和公共办公室两种。
独立办公室面积为20平方米,配备空调、电脑等办公设备。
公共办公室面积为40平方米,可供多名教师共同使用。
2.行政办公室行政办公室分为校长办公室、教导处、总务处等,每个办公室面积为20平方米。
办公室内部采用环保材料,保证空气质量。
五、活动区设计1.体育馆体育馆位于教学楼一侧,占地面积约为1000平方米。
城市十二班中学教学楼方案设计说明城市十二班中学教学楼方案设计说明第一章建筑一、工程概况本教学楼为四层砖混结构,位于城市市区内,建筑面积约220m2,建筑总高度13.8m,建筑耐火等级为二级。
二、设计依据1.建筑设计防火规范GBJ16-872.住宅设计规范GB50096-19993.民用建筑设计通则JGJ37-874.设计单位的设计委托书5.有关现行设计规范及规定6.建设单位提供的场地现状图及规划图7.建设单位认定的建筑设计方案图三、功能布置教学楼房间及使用面积普通教室12间12×54m2生物实验室1间1×72m2物理实验室1间1×72m2化学实验室1间1×72m2微型计算机教室1间1×72m2音乐教室1间1×72m2语言教室1间1×72m2办公室4间4×15m2教研室120m2门卫室1间1×15m2厕所120m2四、立面及造型设计1.造型整体建筑采用南低北高的体块,从外部尤其由校园西入口进入后能产生丰富的层次感,从内部使用又可给庭院带来足够丰富的阳光。
考虑到教学楼位置比较重要,因此对各个立面均做了精心的设计,以满足各个方向的视觉需求。
体块的穿插组合,材质的虚实对比,光影的斑剥错落,使得整个建筑富有现代感。
2.表皮教学楼立面关键因素之一便是开窗形式,为避免普通做法中常会带来的眩光问题,本方案将教室两端黑板对应位置做成毛玻璃,并与内墙齐平,其余部分做成一般玻璃与外墙平,本是出于功能使用的需要,但也带来了意外的效果。
3.色彩规划要求建筑色彩应满足教学建筑的特征,不必过于花俏,但也应在平淡中略加提神之处,起到“点睛”的作用。
因此本方案中外墙面整体采用红色调,在檐口处凹入一白色的色带,局部用暗红色,意体现中国通中的浓淡相宜的意境,显得清新淡雅。
五、技术经济指标总建筑面积:220平方米其中:一层建筑面积:1794.1平方米二层建筑面积:1794.1平方米三层建筑面积:1794.1平方米四层建筑面积:422.8平方米建筑总高度:13.8米基地面积:1248.1平方米建筑容积率: 1.52建筑密度:0.36第二章结构一、拟建场地抗震设防烈度为7度,设计基本地震加速度值为0.10g 第一组。
设计题目2:十二班中学教学楼方案设计一、目的要求:为配合《房屋建筑学》第一至第四章理论教学,进行一次建筑方案设计,培养学生综合运用建筑设计原理去分析问题和解决问题,从中了解方案设计的方法和步骤。
房间名称间数每间使用面积(㎡)备注语言教室准备室或控制室 1 25~40教师阅览室 1 30~40可合并为一间学生阅览室 1 40~60书库 1 30~40科技活动室 3 15~20行政 用房党支部办公室 1 12~16校长办公室 1 12~16教务办公室 1 12~16 包括文印档案室 1 12~16总务办公室 1 12~16体育器材室 1 12~16会议室 1 30~40广播室 1 6~14传达值班室1~2 6~15教师办公室 6 12~16体育办公室 1 12~16工会办公室 1 12~16团、队、学生会办公室 1 12~16生 活 辅 助杂物储藏室24开水房20厕所按规定标准计算见第4点3、总平面设计:(1)教学楼:占地面积按设计(2)运动场:设250米环形跑道(附100米直跑道),田径场1个,篮球场2个,排球场1个。
(3)绿化用地(兼生物园地):300~500㎡4、建筑标准:(1)建筑层数:1~4层(2)层高:教学用房3.6~3.9m 办公用房3.0~3.4m(3)结构:混合结构或钢筋混凝土框架结构(4)门窗:木门、铝合金窗(或塑钢窗)(5)装修:根据当地社会经济状况,自行确定。
(6)走道宽(轴线尺寸):2.4~3.0m(中间走道),1.8~2.1m(单面走道)。
(7)采光:教室窗地比为1/4,其他用房为1/6~1/8。
(8)卫生:设室内厕所(蹲式大便器、小便槽或小便斗),数量按男女学生各半计算。
男厕所:40~50人一个大便器,两个小便斗(或1m长小便槽)。
女厕所:20~25人一个大便器。
三、设计内容及深度本设计按方案设计深度要求进行,用AutoCAD软件计算机制图,2#图纸两张。
完成下列内容:1、平面图:各层平面,比例1/100~1/200(1)底层各入口要画出踏步、花池、台阶等。
设计题目2:十二班中学教学楼方案设计一、目的要求:
为配合《房屋建筑学》第一至第四章理论教学,进行一次建筑方案设计,培养学生综合运用建筑设计原理去分析问题和解决问题,从中了解方案设计的方法和步骤。
房间名称间数每间使用面积(㎡)备注
语言教室准备室或控制室 1 25~40
教师阅览室 1 30~40
可合并为一间学生阅览室 1 40~60
书库 1 30~40
科技活动室 3 15~20
行政 用房党支部办公室 1 12~16
校长办公室 1 12~16
教务办公室 1 12~16 包括文印档案室 1 12~16
总务办公室 1 12~16
体育器材室 1 12~16
会议室 1 30~40
广播室 1 6~14
传达值班室1~2 6~15
教师办公室 6 12~16
体育办公室 1 12~16
工会办公室 1 12~16
团、队、学生会办公室 1 12~16
生 活 辅 助杂物储藏室24
开水房20
厕所按规定标准计算见第4点
3、总平面设计:
(1)教学楼:占地面积按设计
(2)运动场:设250米环形跑道(附100米直跑道),田径场1个,篮球场2个,排球场1个。
(3)绿化用地(兼生物园地):300~500㎡
4、建筑标准:
(1)建筑层数:1~4层
(2)层高:教学用房3.6~3.9m 办公用房3.0~3.4m
(3)结构:混合结构或钢筋混凝土框架结构
(4)门窗:木门、铝合金窗(或塑钢窗)
(5)装修:根据当地社会经济状况,自行确定。
(6)走道宽(轴线尺寸):2.4~3.0m(中间走道),1.8~2.1m(单面走道)。
(7)采光:教室窗地比为1/4,其他用房为1/6~1/8。
(8)卫生:设室内厕所(蹲式大便器、小便槽或小便斗),数量按男女学生各半计算。
男厕所:40~50人一个大便器,两个小便斗(或1m长小便槽)。
女厕所:20~25人一个大便器。
三、设计内容及深度
本设计按方案设计深度要求进行,用AutoCAD软件计算机制图,2#图纸两张。
完成下列内容:
1、平面图:各层平面,比例1/100~1/200
(1)底层各入口要画出踏步、花池、台阶等。
(2)尺寸标注为两道,即总尺寸与轴线尺寸。
(3)确定门窗位置、大小(按比例画,不注尺寸)及门的开启方向。
(4)楼梯要按比例尺寸画出梯段、平台及踏步,并标出上下行箭头。
(5)标出剖面线及编号。
(6)注明房间名称。
(7)标图名及比例。
2、立面图:入口立面及侧立面,比例1/100~1/200。
(1)外轮廓线画中粗线,地坪线画粗实线,其余画细实线。
(2)注明图名及比例。
3、剖面图:1~2个剖面,比例1/100。
(1)剖切部分用粗实线,看见部分用细实线;地坪为粗实线,并表示出室内外地坪高差。
(2)尺寸标两道,即各层层高及建筑总高。
(3)标高:标注各层标高,室内外标高。
(4)标图名及比例。
4、总平面设计作与否,可以酌情掌握。
5、主要技术经济指标:总建筑面积、生均建筑面积(校舍总面积/学生总人数)、平面系数K(使用面积/建筑面积)等。
四、设计基础知识
中小学教学楼设计基础
五、设计方法与步骤
1、分析研究设计任务书,明确目的要求及条件,根据题目所给条件,算出各类房间所需数目及面积和厕所蹲位数。
2、带着问题学习设计基础知识和任务书上所提参考资料,参观已建成的同类建筑,扩大眼界,广开思路。
3、在学习参观的基础上,对设计要求、具体条件及环境进行功能分析,从功能角度找出各部分、各房间的相互关系及位置。
4、进行块体设计,即将各类房间所占面积粗略地估计平面和空间尺寸,用徒手单线画出初步方案的块体示意(比例1:500或1:200)。
在进行块体组合时,要多思考,多动手(即多画),多修改。
从平面入手,但应着眼于空间。
先考虑总体,后考虑细部,抓住主要矛盾,只要大布局合理就行了。
5、在块体设计基础上,划分房间,进一步调整各类房间和细部之间的关系,深入发展成为定稿的平、立、剖面草图,比例为1:100~1:200。
六、参考资料
1、《建筑设计资料集》(第二版)(3) 本书编写组 中国建筑工业出版社 1994
2、《托幼、中小学校建筑设计手册》张宗尧、赵秀兰主编 中国建筑工业出版社 1999
3、《中小学建筑设计》 张宗尧、李志民主编 中国建筑工业出版社 2000
4、《建筑学报》各期
5、民用建筑设计通则 JGJ 37-87
6、中小学校建筑设计规范 GBJ99‐86。