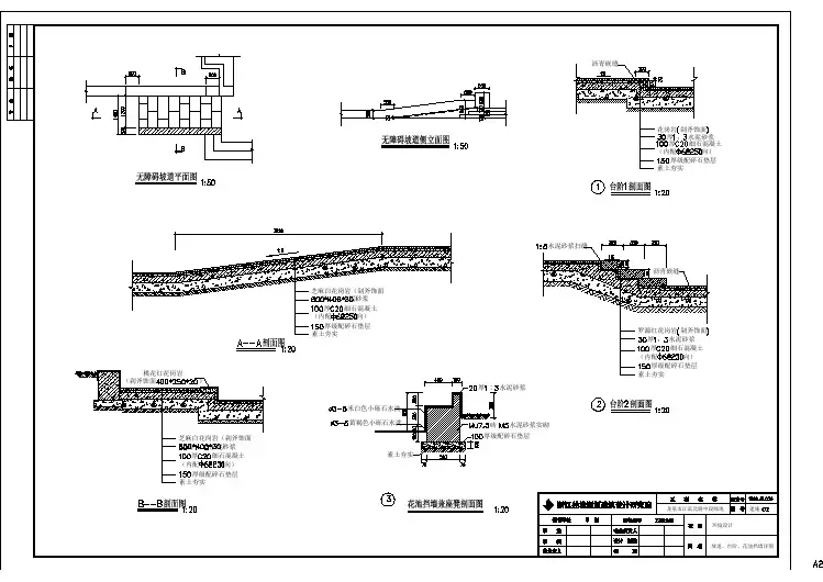
土 建绿 化电 暖规 划给排水1-10.51.1.1.51.59.14.2003.07剖面图 1:3030厚樱花红花岗岩(400*400*30)150厚碎石垫层素土夯实120厚C15砼垫层30厚1:2.5干硬性水泥砂浆找平层11430厚樱花红花岗岩150厚碎石垫层素土夯实120厚C15砼垫层420厚1:2水泥砂浆找平层3.080AA成品定制扁铁花顶(白色)C25钢砼603604490300*2=600120*3=36028003102100500291012201220R1430素土夯实基础剖面图 1:150.360C10砼垫层6φ\Ftxt.shx,hztxt.shx-0.7509001002001507601110100150100100150100∅200AA剖面图(L1) 1:15 1:10Z-1150*6预埋扁铁6φ\Ftxt.shx,hztxt.shxφ\Ftxt.shx,hztxt.shx6φ\Ftxt.shx,hztxt.shxφ\Ftxt.shx,hztxt.shx320360600150∅20060°60°60°60°60°60°700700R1400基础平面图 1:306214Z-1(余同)5380100405040100505060021:100.360扁铁花顶(黑色)成品定制1414立面图 1:3021扁铁锥(黑色)白色柱}3.0800.360%%p0.0003.2704.4905001220122036036031021002910R1430600449028006上35底层平面图 1:3012%%p0.00030.3604Z-1(余同)屋面L1布置60°60°60°60°60°60°R1400R1700R2000R230011:103030305030500305030305020303018030904350; 7.主次梁相交处,若无特殊情况,则次梁上下纵筋均应分别放在主梁纵筋的上方. 6.梁内纵向受力钢筋若需现场搭接时,下部钢筋应在支座处搭接;上部钢筋应在跨中三分之一跨度范围内搭接.9.除注明者外,梁支座钢筋的锚固长度La为40d。梁底钢筋在中间支座附近锚固,其长度等于La;在端支座的水平 8.梁柱箍筋必须作135%%d弯钩(图一).段锚固长度不足La时,须将钢筋上弯。 梁.柱%%P0.000标高以其所处位置的铺装地面标高为准;二、焊接采用手工电弧焊, 级钢焊条E , 级钢E一、本图中除标高以M计外,其余均以MM计;三、预埋扁铁与箍筋焊接连接; 4.钢筋接长应符合规范的要求,对于直径d≥16的钢筋,应优先采用闪光接触对焊接头或采用可靠的机械连接接长. 5.现浇混凝土应按施工规范要求的拆模时间,一般说来,悬挑构件应待混凝土强度达到100%后再拆模,其余构件应待混梁柱为25,基础及基础粱有垫层时为35,无垫层时70. 3.受力钢筋的混凝土净保护层,除图中注明者外,一般室内正常环境下,对于 1.结构主体各部分混凝土强度等级均为C25(包括基础).凝土强度达到80%以上方可拆模.2.设计图中的钢筋,%%130表示I级钢,%%131表示II级钢.四. 钢筋混凝土结构部分: 一般要求说明:取得联系以便共同磋商解决.10d图一 封闭箍筋示意套管及预留孔,并核对预埋件位置是否准确.对专用设备需留孔洞必须在楼板施工前2.施工时应严格按施工图和有关规范规定进行,不得擅自更改,如发现问题请及时与设计人员 1.本结构施工图应与建筑.工艺.电气等专业的施工图密切配合,及时铺设各类管线五. 其它确定预留,避免日后打凿主体结构.0.06color8color9other0.060.18yellowbluewhitemagentagreencyan打印线宽red0.180.180.180.180.180.180.1850;φ6@100(至0.360标高以上600)6φ8(双向)