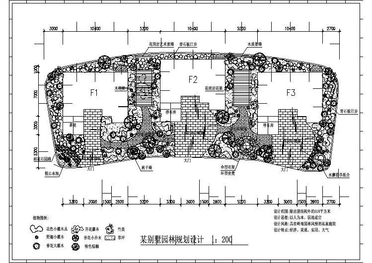
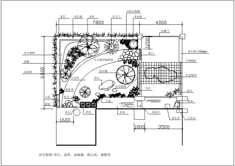
555040100401409005050603606010050012520060603.8501-1-30x47.450%%c12通长离踏步高2%%c6 h=100-80x80x570x150异色橡皮防滑条-40x465011圆钢,每步两根%%c25硬木扶手起步筋L=1000%%c32通长泰格板吊顶11.1007.4503.8502%%c8 h=120100x100x6扁铁钢管%%C60钢管@180%%C30楼梯靠墙扶手节点嵌入墙内150#每步一根2%%c6 L=120%%c25圆钢80x80x6钢管%%c60R80%%c50钢管离踏步高1:10钢管900混凝土圆钢%%c20%%c60屋面排汽孔1:10b-b11.500bb剖面内配C20%%c6@120细石混凝土盖板双向钢筋网剖面胶水泥砂浆细石砼压顶3%%c8,%%c6@200%%c60%%c20扁钢2%%c6 L=12080x80x650x50a~a80x80x52%%c6 L=120方钢50x50扁钢-40x5-40x5扁钢钢管%%c30R80每步一根C20内配22.750aa107方钢钢管圆钢窗套做法见窗套详图2%%c6 L=12040x250x5圆钢详图C15bb遮阳板R975107胶水泥砂浆22.800%%c12a方钢a圆钢%%c1650x50ff25.50024.50025.500扁钢22.8002%%c6 L=12080x80x5扁钢扁钢50x50方钢-40x5扁钢-40x5b~bf~f剖面eedd19.800a~a剖面4.8004.7507.75010.75013.75016.75019.75019.80016.80013.80010.8007.8004.800剖面R15024.00019.800e~e剖面d~d19.800R250R350cc19.75016.75013.75010.7507.7504.750R420R500遮阳板胶水泥砂浆107c~c剖面22.800R420R50022.800D1~13注:除 轴交 轴间的窗设遮阳板外,其余均不设窗套详图107胶水泥砂浆22.800R500R4204.8007.80010.80013.80016.80019.800扁钢2%%c6 L=12040x250x5圆钢%%c12注:()内数据为楼梯间出屋面女儿墙高度(11.300)8.60010251254.800胶水泥砂浆107细石混凝土压顶4%%c10 %%c8@200内配C2011.3001078.600胶水泥砂浆2%%c8,L=15080x80x63.200内配C204%%c10 %%c8@200细石混凝土压顶@300钢管%%c60%%c50钢管(0.600)0.9001泰格板吊顶6.3006.3002.2窗套详图9.300a(R600)R750a11.4a-a(9.300-10.350)9.300-10.4603.0009.000栏板做法见节点扁钢R450<5.700>5.7007.2004.200[1.800]<3.900>2.700(2.700)8.700[2.700]11.49.3003.30012.2预制混凝土栏杆扁钢80x80x52%%c6 L=120详见节点@30092%%c6 L=120扁钢80x80x53.3006.300R2732扁钢80x80x52%%c6 L=1203%%c8 %%c6@200细石混凝土压顶内配C206.30080x80x52%%c6 L=1203.300~8.530112.52.7002厚钢化玻璃3.30010厚热弯钢化玻璃106.3008.7006.300扁钢2%%c6 L=12080x80x5详见节点预制混凝土栏杆@30010扁钢2%%c6 L=12080x80x5细石混凝土压顶3%%c8 %%c6@200C20内配3.3003.3004%%c4膨胀螺丝自攻螺丝拧固铝合金型材25x40铝合金压条12x12橡皮条3.300余同钢管%%c50扁钢通长厚钢化玻璃40x410硬木扶手1620 (1470)3601001003601620 (1470)12080150080120509002515801525805050666 (984)666 (984)220801208068218012012080801201201801201208080420601756017542030202012030802008080100175808017510030503090193193105090012050150010030803012015018036012020010060120200180120360100357035120505060200100120103012030101201001801050900552595801648012080200150100850150505050120360120801200100602001001801201200750600750801001001008501100100011004001201002015050210017003006080060010020808001001001001008741001770100596100270025008006012010010060120120505015010010060100100505012020014030080040060400100120100120601202501001001001001201001501201201801001002051151201001001204001206012012010035030010030010013008001205050100601201500 (1200)160060050500 (300)35010012020012010060100150350100120300500120025020020050100300360240708012036024024036036040010050100100800150200200250100120115205602051151505003001201203005002001201500 (1200)120100500 (300)12018080602006010009751100400100200110060806060100600400100125950505025中国专业人士的网络家园;因为专业,所以完美市场部:ivpmarket@ 技术部:ivptech@网易 NetEase建筑在线 编辑部:ivpinfo@==150150100090015026015014014010046025025060100801008090030080150604006060295295236029529529529529529580250802502509106608050080150601906060504001501251251501401401200 (600)20803102006025010251251110250806033025060090065050035050150250