第八章桩基础沉降的计算416页
- 格式:ppt
- 大小:285.00 KB
- 文档页数:16
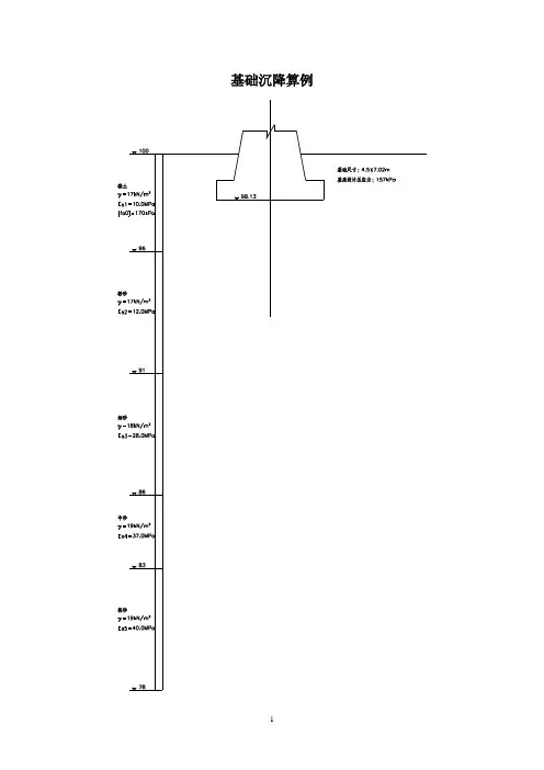
基础沉降算例基础资料和地质资料如上图。
计算依据规范为《公路桥涵地基与基础设计规范》JTG D63——2007(以下简称规范)。
TB100002.5—2005h p p γ-=0 《规范》4.3.4 (3.2.2)=157-17*1.87=125.21kPa56.15.4/02.7/(/==基础短边)基础长边b l第一层土:13.29613.98010=-==z z47.05.4/13.2//==基础短边)(土层底距基底距离b z938.0110==αα第二层土:13.79113.9813.221=-==z z58.15.4/13.7/==b z600.0938.021==αα第三层土:13.128613.9813.732=-==z z70.25.4/13.12/==b z412.0600.032==αα第四层土:13.158313.9813.1243=-==z z 36.35.4/13.15/==b z346.0412.043==αα第五层土:13.207813.9813.1514=-==z z47.45.4/13.20/==b z272.0346.054==αα 以上n α根据b l /及b z /可查询《规范》附录M 桥涵基底附加系数α、平均附加系数α,(附录B )也可按本算例提供的Excel 表查询。
按《规范》4.3.7估算n z )ln 4.05.2(b b z n -=54.8)5.4ln 4.05.2(5.4=-⨯=m所以计算时取至基底下第三层土。
按《规范》4.3.4 (3.2.2))(11100--=-=∑i i i i n i si z z E p s αα =125.21*[(2.13*0.938-0*1)/10+(7.13*0.600-2.13*0.938)/12+(12.13*0.412-7.13*0.600)/28]=52.02(mm )查《规范》表4.3.6 Δz 值 (表3.2.2—1)Δz=0.8m 33.118.013.12'2=-=z 52.25.4/33.11/==b z435.0'2=α28/)435.033.11412.013.12(21.125⨯-⨯⨯=∆n s )(3.1025.002.52)(31.0mm mm =⨯<=故以上取基底以下三层计算满足规范要求。
桩基沉降量计算(一)荷载传递法1、荷载传递法的原理荷载传递分析法是指,承受竖向压力的单桩通过桩侧摩阻力和端摩阻力将荷载传递扩散到地基土中,根据桩侧摩阻力和端阻力分布函数求解单桩沉降。
因此,确定荷载传递函数就成为此法的关键步骤,即确定桩侧摩阻力q与桩侧λ移S的函数,称作荷载传递函数。
根据确定的桩侧和桩底荷载的传递函数,得出荷载传递法的函数方程:其中:U——单桩截面周长;Ap、Ep——单桩截面面积和弹性模量;——桩侧摩阻力。
2、分析评价及改进荷载传递法概念清晰,适用范Χ广,计算简单方便,担它不能计算土体由桩侧荷载在桩端平面以下产生的压缩量,因而无法确定由于土体压缩而产生的桩端沉降S1 ,阳吉宝在[文献1]中提出了一种改进方法,按照该方法,即可弥补现有荷载传递法δ考虑桩侧摩阻力对桩端沉降的贡献的不足。
该法计算简单方便,相互之间有可比性,降低了因土体参数选取不同所产生的人为误差。
(二)弹性理论法1、弹性理论法基本原理弹性理论法假设地基土是均匀、连续、各向同性的线弹性半空间体,根据弹性理论方法来研究单桩在竖向荷载作用下桩土之间的作用力与λ移之间的关系,进而得到桩对土,土对桩的共同作用模式。
2、分析评价及改进弹性理论法认为桩身λ移等于毗邻土体λ移,桩--土之间不存在相对λ移。
但大量工程实践表明,单桩在外荷载作用下,由于桩侧摩阻力和桩端摩阻力对半无限空间土体的作用使土体产生了弹性压缩,从而使桩伴随着周Χ土体产生了共同的弹性压缩变形,当荷载达到使桩侧土体处于塑性变形的临界值时,桩端阻力发挥作用并产生桩端刺入沉降。
此时桩-土沿桩长产生相对滑移,又增加一项桩土相对滑移沉降。
所以弹性理论法认为桩-土之间?有滑移,是不符合实际的。
刘绪普在[文献2]中,由弹塑性理论建立了桩端阻力与桩端刺入沉降的关系公式,使单桩P—S曲线的全过程得以完整地描述。
(三)剪切λ移法1、基本原理图1为Cooke(1947)提出的剪切λ移法计算单桩沉降的物理模型,他认为,在工作载荷作用下,桩和桩侧土的λ移相等,桩沉降时周Χ土体亦随之发生剪切变形,剪应力从桩侧表面沿径向向四周扩散到周Χ土体中,剪应力随离开桩侧距离的增大逐渐减小,剪切λ移相对减少,在单桩周Χ形成?斗状λ移分布。
筒仓桩基沉降计算计算依据1、《建筑桩基技术规范》(JGJ94-20082、《益海嘉里(哈尔滨)食品工业有限公司项目场地岩土工程勘察报告》(详细勘察)核工业工程勘察院,2010.6一、荷载1、恒载229600kN2、粮食328000kN准永久组合459200kN等效作用面积筏板BC27.92mLC65.3m桩长l25m承台厚度h2m承台底面荷载效应准永久组合附加值p259.4681685等效作用面以上土重911588kN等效作用面底的土自重应力450kPa等效作用面底的附加应力P0259.4681685kPa2、沉降计算2.1计算深度确定根据桩基规范5.5.8条бz≤0.2бc计算深度Z240.2бc176.4将等效作用面划分为4个矩形a=Lc/232.65b=Bc/213.96a/b 2.3Z/b 1.7根据规范附录D,附加应力系数а0.14335查表бz=4*а*б=148.7790478满足要求2.2桩基等效沉降系数桩总数n400nb=(n*Bc/Lc)^0.513.07769222根据附录ESa= 1.5d=0.5Sa/d=3L/d=50Lc/Bc= 2.3查表确定,C0,C1,C2C00.0792C1 1.7637C29.7756ψe=C0+(nb-1)/(C1*(nb-1)+C2)=0.4678373272.3中点沉降计算按照5#钻孔进行计算计算深度范围内土层12土性粉质粘土粉砂厚度(m)420等效作用面底的附加应力P0259.4681685259.4681685等效作用面底的土自重应力450450土层底土自重应力522882土层底土自重应力+附加应力781.46816851141.468169Es(MPa) 5.5513.8a32.6532.65b13.9613.96a/b 2.3 2.3Z/b0.3 1.7查表,该层土附加应力系数а0.24650.15455Ai0.986 2.7232Ai/Es0.1776576580.197333333计算深度内ES的当量值 9.891437632沉降经验系数ψ为 1.2查表,该层土平均附加应力系数ā00.2491380.2049754*ā00.9965520.8199考虑第2组筒仓,平均附加应力系数00总的平均附加应力系数0.9965520.8199Zi*āi 3.98620819.6776Z i*āi-Z i-1*āi-1 3.98620815.691392(Z i*āi-Z i-1*āi-1)/Es0.0007182360.001137057Σ(Zi*āi-Zi-1*āi-1)/Es0.001855293总沉降量s=ψ*ψe*P0*Σ(Zi*āi-Zi-1*āi-1)/Es270.2543689mm。
&2垂直荷载地基应力σp(一)计算图式如图[1]1.空心桩外荷载P=40547(KN )i.50m T 梁支座反力 P 1=36960(KN ) ii.长16.60m 冒 梁 P 2=2291 (KN ) iii. φ2.30m 双桥墩柱 P 3=1296 (KN )2.空心桩自重G 桩=31490(KN )G 1=15 4×2=308×[25KN/方]=7700(KN )G 2=6 8 ×2=136×[25KN/方]=3400(KN )G 3=62.7×4=250×[25KN/方]=6270(KN )G 4=50.1×4=200×[25KN/方]=5000(KN )G 5=9 5 ×4=380×[24KN/方]=9120(KN )3.桩底垂直荷载(恒载)总和∑G 0=P+G=40547+31490=72037(KN )(二)按土壤扩散角计算桩底应力1.如图4-2 土坡扩散角θ=4ϕ=154︒=3.75° 桩长16m 扩散角锥体底面直径如下:D=d+h ·tan θ=11+(16×0.0655) ×2=11+(1.05×2=2.10)=16.10(m )A D =16.102×4π =204(m 2)2.地层不同深度的允许应力(JTGD63-2007)[f a ]=[ f a 0]+k 1r 1(b-2)+ k 2r 2(h-3) --(3.3.4)粉粘土承载力基本容许值[ f a 0]=0.20(MPa )=200(KN/m 2)宽度修正系数k 1=0 深度修正系数k 2=1.5基底埋置深度h=16(m )[ f a h ]=0.200+1.5×1.97×(16-3)=0.200+0.38=0.58(MPa )=580(KN/m 2)3.挖孔桩外形体积∑V g =1957(方)V 1=φ1 4 ×2=154×2=308(方)V 2=φ13.5×2=143×2=286(方)V 3=φ1 3 ×4=133×4=531(方)V 4=φ1 2 ×4=113×4=452(方)V 5=φ1 1 ×4=9 5×4=380(方)4.桩长h=16m 中锥体体积V 0=141615420416286422φφ++=⨯=(方)土的体积V 土= V 0-V g =2864-1957=907(方)土重G 土=907 ×[19.7t/方]=17868(KN)5.桩端水平线上桩自重,垂直重量在直线D=16.10(m )中的应力∑Q g =G 桩+ G 土=31490+17868=49358(KN)应力σg =gDQA ∑=49358204=242(KN/m 2)6.考虑桥墩及上部构造恒载后应力∑Q p = ∑Q g + P=49358+40547=89905(KN)σp = p D Q A ∑= 89905204=441(KN/m 2) <[580 KN/m 2]故安全。
附录R 桩基础最终沉降量计算R.0.1 桩基础最终沉降量的计算采用单向压缩分层总和法:∑∑==∆=mj n i isj ij i j p jE h s 11,,,σψ (R.0.1)式中:s ——桩基最终计算沉降量(mm);m ——桩端平面以下压缩层范围内土层总数;E sj,i ——桩端平面下第j 层土第i 个分层在自重应力至自重应力加附加应力作用段的压缩模量(MPa);n j ——桩端平面下第j 层土的计算分层数;Δh j,i ——桩端平面下第j 层土的第i 个分层厚度(m);σj,i ——桩端平面下第j 层土第i 个分层的竖向附加应力(kPa),可分别按本附录第R.0.2条或第R.0.4条的规定计算;ψp ——桩基沉降计算经验系数,各地区应根据当地的工程实测资料统计对比确定。
R.0.2 采用实体深基础计算桩基础最终沉降量时,采用单向压缩分层总和法按本规范第5.3.5条~第5.3.8条的有关公式计算。
R.0.3 本规范公式(5.3.5)中附加压力计算,应为桩底平面处的附加压力。
实体基础的支承面积可按图R.0.3采用。
实体深基础桩基沉降计算经验系数ψps 应根据地区桩基础沉降观测资料及经验统计确定。
在不具备条件时,ψps 值可按表R.0.3选用。
注:表内数值可以内插。
图R.0.3 实体深基础的底面积R.0.4 采用明德林应力公式方法进行桩基础沉降计算时,应符合下列规定:1,采用明德林应力公式计算地基中的某点的竖向附加应力值时,可将各根桩在该点所产生的附加应力,逐根叠加按下式计算:()∑=+=nk k zs k zp i j 1,,,σσσ (R.0.4-1)式中:σzp,k ——第k 根桩的端阻力在深度z 处产生的应力(kPa):σzs,k ——第k 根桩的侧摩阻力在深度z 处产生的应力(kPa)。
2,第k 根桩的端阻力在深度z 处产生的应力可按下式计算;k p k zp I l Q,2,ασ=(R.0.4-2)式中:Q ——相应于作用的准永久组合时,轴心竖向力作用下单桩的附加荷载(kN);由桩端阻力Q p 和桩侧摩阻力Q s 共同承担,且Q p =αQ ,α是桩端阻力比;桩的端阻力假定为集中力,桩侧摩阻力可假定为沿桩身均匀分布和沿桩身线性增长分布两种形式组成,其值分别为βQ 和(1-α-β)Q ,如图R.0.4所示; l ——桩长(m);I p,k ——应力影响系数,可用对明德林应力公式进行积分的方式推导得出。
桩基沉降计算
桩形状:圆形
桩直径d或边长b:0.70m
桩面积Ap:0.385m2
下承台底的平均附加压力F:270450KN
天然地基平均附加应力P0:601Kpa
地上层数32地下层数1
实际承台长度Lc:30m
实际承台宽度Bc:15m
承台总面积A:450.00m2
基础长宽比Lc/Bc: 2.00
总桩数n:70
桩长L:50m
桩距Sa: 3.00m
是否规则布桩?是附加应力σz:距径比Sa/d: 4.3自重应力0.2σc:
长径比L/d:71.4沉降计算长度Zn判断:短边布桩数nb:6
C0:0.063
C1: 1.811
C2:10.381
桩基等效沉降系数ψe:0.320
平均压缩模量Es:25.2Mpa
桩基沉降计算经验系数ψ:0.598
桩基中心点沉降量S:35.93mm
注:1、对于采用后注浆施工工艺的灌注桩,桩基沉降计算经验系数
应根据桩端持力土层类别,乘以0.7(砂、砾、卵石)~0.8(黏性土、粉土)折减系数;
2、饱和土中采用预制桩(不含复打、复压、引孔沉桩)时,
应根据桩距、土质、沉桩速率和顺序等因素,乘以1.3~1.8 挤土效应系数,
土的渗透性低,桩距小,桩数多,沉降速率快时取大值。
土层沉降计算表格
162.75Mpa
162.83Mpa
OK
(z。
即上部结构荷载327.8250.174各圆环内的桩数kIpIsαki Ip(1-α) ki Isσz121.3 3.367 3.70622.781142019.386 3.0400014.888 2.9200010.159 2.51402 6.506 2.117 2.264088 3.4972841 4.084 1.7720.710616 1.4636722 2.586 1.4480.899928 2.3920962 1.127 1.0780.392196 1.78085640.5710.8130.397416 2.68615280.1970.4630.274224 3.05950490.1230.3040.192618 2.25993680.0970.2170.135024 1.433936240.0830.1640.346608 3.251136300.0640.1010.33408 2.50278420.0490.0650.358092 2.25498290.0360.0430.181656 1.03002210.1927530.393521.28667即上部结构荷载327.8250.174各圆环内的桩数kIpIsαki Ip(1-α) ki Isσz1 5.395 1.4870.938731.2282620 5.269 1.471000 4.912 1.427000 4.391 1.35902 3.787 1.274 1.317876 2.1046481 3.174 1.180.5522760.974682 2.605 1.0830.90654 1.7891162 1.6910.8980.588468 1.4834964 1.0840.7390.754464 2.441656单桩沉降计算荷载 Q ( 取长期效应作用下的单桩平均附加荷附加应力计算表 μ=0.4桩侧摩阻力沿桩身线性增m = 1.2 (m = z / L ,L 为桩长 , z 为自承台底算起的计算点的深度 )桩端阻力比α单桩沉降计算荷载 Q ( 取长期效应作用下的单桩平均附加荷载)L桩端阻力比α桩基沉降计算m = 1.1 (m = z / L ,L 为桩长 , z 为自承台底算起的计算点的深度 )L单桩沉降计算荷载 Q ( 取长期效应作用下的单桩平均附加荷载)80.4030.4670.560976 3.08593690.1990.3160.311634 2.34914480.1280.2270.178176 1.500016240.0960.1710.400896 3.389904300.0670.1060.34974 2.62668420.050.0690.3654 2.393748290.0370.0460.186702 1.1018847.41187826.4691717.76993即上部结构荷载327.8250.174各圆环内的桩数kIpIsαki Ip(1-α) ki Isσz1 2.440.9040.424560.7467040 2.4150.899000 2.3420.886000 2.2260.86602 2.0770.8380.722796 1.3843761 1.9070.8050.3318180.664932 1.7250.7680.6003 1.2687362 1.3650.6890.47502 1.1382284 1.0470.6080.728712 2.00883280.5210.4340.725232 2.86787290.2780.3120.435348 2.31940880.170.2310.23664 1.526448240.1180.1760.492768 3.489024300.0730.110.38106 2.7258420.0520.0720.380016 2.497824290.0390.0490.196794 1.1737466.13106423.8119315.7045即上部结构荷载327.8250.174各圆环内的桩数kIpIsαki Ip(1-α) ki Isσz1 1.4020.6290.2439480.5195540 1.3940.627000 1.370.622000 1.3320.613002 1.2810.6010.4457880.9928521 1.220.5870.212280.484862m = 1.3 (m = z / L ,L 为桩长 , z 为自承台底算起的计算点的深度 )单桩沉降计算荷载 Q ( 取长期效应作用下的单桩平均附加荷载)L桩端阻力比αm = 1.4 (m = z / L ,L 为桩长 , z 为自承台底算起的计算点的深度 )单桩沉降计算荷载 Q ( 取长期效应作用下的单桩平均附加荷载)L桩端阻力比α2 1.150.570.40020.9416420.9990.5320.3476520.87886440.8450.4890.58812 1.61565680.5220.3830.726624 2.53086490.3180.2930.497988 2.17816280.2040.2260.283968 1.493408240.140.1770.58464 3.508848300.0820.1130.42804 2.80014420.0560.0750.409248 2.6019290.040.0520.20184 1.2456085.37033621.7923614.24629即上部结构荷载792.8240.16各圆环内的桩数kIpIsαki Ip(1-α) ki Isσz10.9180.4720.146880.3964800.9150.4710000.9050.4690000.8890.4640000.8680.4580000.8410.4510020.810.4420.25920.7425620.7380.4210.236160.7072860.660.3970.6336 2.0008880.4690.3310.60032 2.22432140.320.2680.7168 3.15168150.220.2150.528 2.709260.1560.1730.64896 3.77832300.090.1140.432 2.8728370.060.0770.3552 2.39316370.0430.0540.25456 1.678324.8116822.654837.80456即上部结构荷载792.8240.16各圆环内的桩数kIpIsαki Ip(1-α) ki Isσz10.6540.3720.104640.3124800.6520.3710000.6470.3700m = 1.6 (m = z / L ,L 为桩长 , z 为自承台底算起的计算点的深度 )L桩端阻力比αm = 1.5 (m = z / L ,L 为桩长 , z 为自承台底算起的计算点的深度 )单桩沉降计算荷载 Q ( 取长期效应作用下的单桩平均附加荷载)L桩端阻力比α单桩沉降计算荷载 Q ( 取长期效应作用下的单桩平均附加荷载)00.6390.3680000.6290.3640000.6150.360020.5990.3550.191680.596420.5620.3430.179840.5762460.5190.3280.49824 1.6531280.4040.2850.51712 1.9152140.3010.2410.67424 2.83416150.2210.20.5304 2.52260.1640.1650.68224 3.6036300.0970.1130.4656 2.8476370.0640.0790.37888 2.45532370.0450.0560.2664 1.740484.4892821.054635.15831即上部结构荷载792.8240.16各圆环内的桩数kIpIsαki Ip(1-α) ki Isσz10.4920.3030.078720.2545200.4910.3030000.4890.3020000.4850.30000.4790.2990000.4710.2960020.4620.2930.147840.4922420.4410.2850.141120.478860.4160.2750.39936 1.38680.3440.2470.44032 1.65984140.2730.2150.61152 2.5284150.2120.1840.5088 2.3184260.1640.1560.68224 3.40704300.1020.1110.4896 2.7972370.0680.0790.40256 2.45532370.0480.0570.28416 1.771564.1862419.5493232.66936即上部结构荷载792.8240.16L桩端阻力比αm = 1.8 (m = z / L ,L 为桩长 , z 为自承台底算起的计算点的深度 )单桩沉降计算荷载 Q ( 取长期效应作用下的单桩平均附加荷载)L桩端阻力比αm = 1.7 (m = z / L ,L 为桩长 , z 为自承台底算起的计算点的深度 )单桩沉降计算荷载 Q ( 取长期效应作用下的单桩平均附加荷载)各圆环内的桩数k Ip Is αki Ip (1-α) ki Isσz10.3860.2530.061760.2125200.3860.2530000.3840.2530000.3820.2520000.3780.250000.3740.2490020.3690.2460.118080.4132820.3560.2410.113920.4048860.340.2350.3264 1.184480.2930.2150.37504 1.4448140.2440.1920.54656 2.25792150.1980.1680.4752 2.1168260.1590.1450.66144 3.1668300.1040.1070.4992 2.6964370.070.0780.4144 2.42424370.050.0570.296 1.771563.88818.093630.25523即上部结构荷载792.8240.16各圆环内的桩数kIpIsαki Ip(1-α) ki Isσz10.3130.2160.050080.1814400.3120.2160000.3120.2150000.310.2140000.3080.2140000.3050.2120020.3020.2110.096640.3544820.2930.2070.093760.3477660.2830.2030.27168 1.0231280.2520.1890.32256 1.27008140.2170.1710.48608 2.01096150.1820.1530.4368 1.9278260.1510.1350.62816 2.9484300.1030.1030.4944 2.5956370.0720.0770.42624 2.39316370.0520.0580.30784 1.802643.6142416.8554428.17424即上部结构荷载792.8m = 1.9 (m = z / L ,L 为桩长 , z 为自承台底算起的计算点的深度 )单桩沉降计算荷载 Q ( 取长期效应作用下的单桩平均附加荷载)单桩沉降计算荷载 Q ( 取长期效应作用下的单桩平均附加荷载)L桩端阻力比α240.16各圆环内的桩数kIpIsαki Ip(1-α) ki Isσz10.2590.1860.041440.1562400.2590.1860000.2590.1860000.2580.1860000.2560.1850000.2540.1840020.2520.1830.080640.3074420.2460.180.078720.302460.2390.1770.229440.8920880.2180.1670.27904 1.12224140.1920.1540.43008 1.81104150.1660.1390.3984 1.7514260.1420.1250.59072 2.73300.1010.0980.4848 2.4696370.0720.0750.42624 2.331370.0530.0570.31376 1.771563.3532815.64526.14902m = 2.0 (m = z / L ,L 为桩长 , z 为自承台底算起的计算点的深度 )桩端阻力比αL即上部结构荷载842.8240.16各圆环内的桩数kIpIsαki Ip(1-α) ki Isσz10.2190.1630.035040.1369200.2190.1630000.2190.1630000.2180.1630000.2170.1620000.2160.1610020.2140.1610.068480.2704820.210.1590.06720.2671260.2050.1560.19680.7862480.190.1480.24320.99456140.1710.1380.38304 1.62288150.1510.1270.3624 1.6002260.1320.1150.54912 2.5116300.0980.0930.4704 2.3436370.0720.0730.42624 2.26884370.0530.0560.31376 1.740483.1156814.5429225.83797即上部结构荷载842.8240.16各圆环内的桩数kIpIsαki Ip(1-α) ki Isσz10.1880.1440.030080.1209600.1880.1440000.1880.1440000.1880.1440000.1870.1430000.1860.1430020.1850.1420.05920.2385620.1820.1410.058240.2368860.1780.1390.170880.70056m = 2.2 (m = z / L ,L 为桩长 , z 为自承台底算起的计算点的深度 )取长期效应作用下的单桩平均附加荷载)表 μ=0.4线性增长分布单桩沉降计算荷载 Q ( 取长期效应作用下的单桩平均附加荷载)L桩端阻力比αm = 2.1 (m = z / L ,L 为桩长 , z 为自承台底算起的计算点的深度 )单桩沉降计算荷载 Q ( 取长期效应作用下的单桩平均附加荷载)L桩端阻力比α降计算80.1670.1330.213760.89376140.1530.1250.34272 1.47150.1380.1160.3312 1.4616260.1220.1070.50752 2.33688300.0940.0870.4512 2.1924370.0710.070.42032 2.1756370.0540.0550.31968 1.70942.904813.536624.05697即上部结构荷载842.8240.16各圆环内的桩数kIpIsαki Ip(1-α) ki Isσz10.1640.1290.026240.1083600.1640.1290000.1640.1280000.1630.1280000.1630.1280000.1620.1280020.1610.1270.051520.2133620.1590.1260.050880.2116860.1570.1250.150720.6380.1480.120.189440.8064140.1370.1140.30688 1.34064150.1250.1060.3 1.3356260.1130.0990.47008 2.16216300.0890.0820.4272 2.0664370.0690.0670.40848 2.08236370.0530.0540.31376 1.678322.695212.6352822.43147即上部结构荷载842.8240.16各圆环内的桩数kIpIsαki Ip(1-α) ki Isσz10.1440.1160.023040.0974400.1440.1150000.1440.1150000.1440.1150000.1430.1150000.1430.11500单桩沉降计算荷载 Q ( 取长期效应作用下的单桩平均附加荷载)L桩端阻力比αm = 2.4 (m = z / L ,L 为桩长 , z 为自承台底算起的计算点的深度 )L桩端阻力比αm = 2.3 (m = z / L ,L 为桩长 , z 为自承台底算起的计算点的深度 )单桩沉降计算荷载 Q ( 取长期效应作用下的单桩平均附加荷载)20.1420.1140.045440.1915220.1410.1140.045120.1915260.1390.1120.133440.5644880.1320.1090.168960.73248140.1240.1040.27776 1.22304150.1140.0980.2736 1.2348260.1040.0910.43264 1.98744300.0840.0780.4032 1.9656370.0670.0640.39664 1.98912370.0520.0520.30784 1.616162.5076811.793620.92555即上部结构荷载792.8240.16各圆环内的桩数kIpIsαki Ip(1-α) ki Isσz10.1280.1040.020480.0873600.1280.1040000.1280.1040000.1280.1040000.1270.1040000.1270.1040020.1260.1030.040320.1730420.1250.1030.040.1730460.1240.1020.119040.5140880.1190.0990.152320.66528140.1120.0950.25088 1.1172150.1040.090.2496 1.134260.0960.0840.39936 1.83456300.080.0730.384 1.8396370.0640.0610.37888 1.89588370.0510.0510.30192 1.585082.336811.0191218.38294即上部结构荷载792.8240.16各圆环内的桩数kIpIsαki Ip(1-α) ki Isσz10.1150.0950.01840.079800.1150.0950000.1150.09500单桩沉降计算荷载 Q ( 取长期效应作用下的单桩平均附加荷载)桩端阻力比αm = 2.6 (m = z / L ,L 为桩长 , z 为自承台底算起的计算点的深度 )L桩端阻力比αm = 2.5 (m = z / L ,L 为桩长 , z 为自承台底算起的计算点的深度 )单桩沉降计算荷载 Q ( 取长期效应作用下的单桩平均附加荷载)L00.1140.0950000.1140.0950000.1140.0940020.1130.0940.036160.1579220.1120.0940.035840.1579260.1110.0930.106560.4687280.1070.090.136960.6048140.1020.0870.22848 1.02312150.0960.0830.2304 1.0458260.0890.0780.37024 1.70352300.0750.0690.36 1.7388370.0620.0580.36704 1.80264370.050.0490.296 1.522922.1860810.3059617.19391即上部结构荷载792.8240.16各圆环内的桩数kIpIsαki Ip(1-α) ki Isσz10.1030.0870.016480.0730800.1030.0870000.1030.0870000.1030.0860000.1030.0860000.1030.0860020.1020.0860.032640.1444820.1020.0860.032640.1444860.1010.0850.096960.428480.0970.0830.124160.55776140.0930.080.208320.9408150.0880.0770.21120.9702260.0820.0730.34112 1.59432300.0710.0640.3408 1.6128370.0590.0580.34928 1.80264370.0490.0470.29008 1.460762.043689.7297216.20478即上部结构荷载792.8240.16桩端阻力比αm = 2.8 (m = z / L ,L 为桩长 , z 为自承台底算起的计算点的深度 )单桩沉降计算荷载 Q ( 取长期效应作用下的单桩平均附加荷载)LL桩端阻力比αm = 2.7 (m = z / L ,L 为桩长 , z 为自承台底算起的计算点的深度 )单桩沉降计算荷载 Q ( 取长期效应作用下的单桩平均附加荷载)各圆环内的桩数k Ip Is αki Ip (1-α) ki Isσz10.0940.080.015040.067200.0940.080000.0940.080000.0930.0790000.0930.080000.0930.0790020.0930.0790.029760.1327220.0920.0790.029440.1327260.0910.0780.087360.3931280.0890.0760.113920.51072140.0850.0740.19040.87024150.0810.0710.19440.8946260.0770.0680.32032 1.48512300.0670.0610.3216 1.5372370.0560.0530.33152 1.64724370.0470.0450.27824 1.39861.9129.0694815.11479即上部结构荷载792.8240.16各圆环内的桩数kIpIsαki Ip(1-α) ki Isσz10.0850.0730.01360.0613200.0850.0730000.0850.0730000.0850.0730000.0850.0730000.0850.0730020.0850.0730.02720.1226420.0840.0730.026880.1226460.0840.0720.080640.3628880.0810.0710.103680.47712140.0790.0690.176960.81144150.0750.0660.180.8316260.0710.0630.29536 1.37592300.0630.0570.3024 1.4364370.0540.050.31968 1.554370.0460.0440.27232 1.367521.798728.5234814.20736即上部结构荷载792.8单桩沉降计算荷载 Q ( 取长期效应作用下的单桩平均附加荷载)L桩端阻力比αm = 2.9 (m = z / L ,L 为桩长 , z 为自承台底算起的计算点的深度 )单桩沉降计算荷载 Q ( 取长期效应作用下的单桩平均附加荷载)240.16各圆环内的桩数kIpIsαki Ip(1-α) ki Isσz10.0780.0680.012480.0571200.0780.0680000.0780.0680000.0780.0680000.0780.0680000.0780.0680020.0780.0670.024960.1125620.0770.0670.024640.1125660.0770.0670.073920.3376880.0750.0650.0960.4368140.0730.0640.163520.75264150.070.0620.1680.7812260.0660.0590.27456 1.28856300.0590.0540.2832 1.3608370.0510.0480.30192 1.49184370.0440.0420.26048 1.305361.683688.0371213.3796桩端阻力比αm = 3.0 (m = z / L ,L 为桩长 , z 为自承台底算起的计算点的深度 )L。
5.5 桩基沉降计算
5.5.1 建筑桩基沉降变形计算值不应大于桩基沉降变形允许值。
5.5.2 桩基沉降变形可用下列指标表示:
1 沉降量;
2 沉降差;
3 整体倾斜:建筑物桩基础倾斜方向两端点的沉降差与其距离之比值;
4 局部倾斜:墙下条形承台沿纵向某一长度范围内桩基础两点的沉降差与其距离之比值。
5.5.3 计算桩基沉降变形时,桩基变形指标应按下列规定选用:
1 由于土层厚度与性质不均匀、荷载差异、体型复杂、相互影响等因素引起的地基沉降变形,对于砌体承重结构应由局部倾斜控制;
2 对于多层或高层建筑和高耸结构应由整体倾斜值控制;
3 当其结构为框架、框架-剪力墙、框架-核心筒结构时,尚应控制柱(墙)之间的差异沉降。
式中 s ——桩基最终沉降量(mm);
s′——采用布辛奈斯克解,按实体深基础分层总和法计算出的桩基沉降量(mm);
ψ——桩基沉降计算经验系数,当无当地可靠经验时可按本规范第 5.5.11 条确定;
ψ——桩基等效沉降系数,可按本规范第条确定;
e 5.5.9
m ——角点法计算点对应的矩形荷载分块数;
p ——第 j 块矩形底面在荷载效应准永久组合下的附加压力(kPa);
0 j
n ——桩基沉降计算深度范围内所划分的土层数;
E ——等效作用面以下第i层土的压缩模量(MPa),采用地基土在自重压力至自重压力加附si
加压力作用时的压缩模量;。
桩基沉降计算(13轴交L~G轴 8-CT2G)执行规范:《混凝土结构设计规范》(GB 50010-2010), 本文简称《混凝土规范》《建筑地基基础设计规范》(GB 50007-2011), 本文简称《地基规范》《建筑桩基技术规范》(JGJ 94-2008), 本文简称《桩基规范》-----------------------------------------------------------------------1. 设计资料1.1 桩平面布置图1.2 已知条件(1) 桩参数桩身材料与施工工艺泥浆护壁钻(冲)孔桩桩身混凝土强度等级 C30承载力性状端承摩擦桩截面形状圆形直径(mm) 1600桩长(m) 30.000(2) 计算内容参数(3) 土层参数(m)高(m)(kN/m3)(kN/m3)(MPa)征值(kPa)1.3 计算内容2 计算过程及计算结果2.1 沉降计算方法根据《桩基规范》5.5.6及5.5.14单排桩,应按明德林法计算2.2 计算附加压力(1) 承台底应力承台底面积 : A = 2.200×6.200 = 13.640(m2)承台底埋深 : h = 5.350(m)承台及承台以上土重 : G = γ×h×A = 12.000×5.350×13.640 = 875.688(kN)承台底自重应力 : σc0 = 71.955(kPa)承台底应力 : σ = (N+G)/A = (15183.000+875.688)/13.640 = 1177.323(kPa)(2) 承台底均布压力地基承载力特征值 : f ak = 300.000(kPa) (《桩基规范》5.2.5)承台底均布压力 : P c = ηc×f ak = 0.180×300.000 = 54.000(kPa)(3) 桩顶附加荷载桩身截面积 A p = 2.011(m2)承台净面积 : A净 = A - n×A p = 13.640-2×2.011 = 9.619(m2)各桩桩顶荷载 : Q i = (σ×A-P c×A净)/n = (1177.323×13.640-54.000×9.619)/2 = 7769.637(kN) 各桩桩顶附加荷载 : Q ci = Q i-σc0×A p = 7769.637-71.955×2.011 = 7624.963(kN)2.3 沉降计算(1) 沉降计算公式根据《桩基规范》5.5.15 计算桩基沉降计算深度Z n=+z zc0.20c式中:σz——计算深度处由桩引起的附加应力,按《桩基规范》附录F 采用明德林法计算σzc——计算深度处由承台土压力引起的附加应力,按《桩基规范》附录D 采用角点法计算σc——计算深度处土的自重应力根据《桩基规范》5.5.14 计算沉降(承台底土分担荷载)=∑n=i)+zi zci z iE si= zij Q j(j I p,ij(-1jl2j= zci∑u=k1kip c,ks eeQ E c式中:s ——桩基最终沉降量(mm)m ——以沉降计算点为圆心,0.6 倍桩长为半径的水平面影响范围内的基桩数n ——沉降计算深度范围内土层的计算分层数;分层数应结合土层性质,分层厚度不应超过计算深度的0.3倍σzi——水平面影响范围内各基桩对应力计算点桩端平面以下第i 层土1/2厚度处产生的附加竖向应力之和;应力计算点应取与沉降计算点最近的桩中心点Δz i——第i计算土层厚度(m)E si——第i计算土层的压缩模量(MPa),采用土的自重压力至土的自重压力加附加压力作用时的压缩模量Q j——第j桩在荷载效应准永久组合作用下(对于复合桩基应扣除承台底土分担荷载),桩顶的附加荷载(kN);当地下室埋深超过5m时,取荷载效应准永久组合作用下的总荷载为考虑回弹再压缩的等代附加荷载l j——第j桩桩长(m)A ps——桩身截面面积αj——第j桩总桩端阻力与桩顶荷载之比,近似取极限总端阻力与单桩极限承载力之比I p,ij,I s,ij——分别为第j桩的桩端阻力和桩侧阻力对计算轴线第i计算土层1/2厚度处的应力影响系数,可按《桩基规范》附录F 确定E c——桩身混凝土的弹性模量σzci——承台压力对应力计算点桩端平面以下第i计算土层1/2厚度处产生的应力;可将承台板划分为u个矩形块,可《桩基规范》附录D 采用角点法计算p c,k——第k块承台底均布压力,可按p c,k=ηc,k f ak取值,其中ηc,k为第k块承台底板的承台效应系数,按《桩基规范》表5.2.5 确定;f ak为承台底地基承载力特征值αki——第k块承台底角点处,桩端平面以下第i计算土层1/2 厚度处的附加应力系数,可按《桩基规范》附录D 确定s e——计算桩身压缩ξe——桩身压缩系数,端承型桩取1.0;摩擦型桩,当l/d≤30时,取2/3;l/d≥50时,取1/2;介于两者之间可线性插值ψ——桩基沉降计算经验系数,无当地经验时,可取1.0沉降计算点位置(x,y,z)(m) :(0.000,0.000,-36.800)沉降计算深度z n(m) :9.500沉降计算点附加应力(kPa) :78.431桩端以下各压缩土层(沉降未乘系数) :层号厚度(m) Es(Mpa) 本层沉降(mm)=============================================1 9.191 18.500 32.12 0.310 10.000 0.7=============================================∑ 9.501 32.8沉降计算点土层压缩沉降量(mm) :16.7桩身压缩s e(mm) :2.5沉降计算点最终沉降量(mm) :16.7(3) 角点沉降计算点(x,y,z) 土压缩沉降(mm) 桩身压缩(mm) 最终沉降(mm) 结论 (0.000,-2.000,-6.800) 35.16 2.53 37.69 满足 (0.000,-2.000,-6.800) 35.16 2.53 37.69 满足 (0.000,2.000,-6.800) 35.16 2.53 37.69 满足 (0.000,2.000,-6.800) 35.16 2.53 37.69 满足 (0.000,2.000,-6.800) 35.16 2.53 37.69 满足(0.000,0.000,-6.800) 16.72 2.53 19.25 满足(4) 沉降计算点结果简图-----------------------------------------------------------------------【理正结构设计工具箱软件6.5PB3】计算日期: 2014-11-19 11:27:47。
5.桩基沉降计算采用长期效应组合的荷载标准值进行桩基础的沉降计算。
由于桩基础的桩中心距小于6d ,所以可以采用分层总和法计算最终沉降量。
在荷载效应准永久组合下承台底 竖向荷载设计值kN F 4360= 基底处压力kpa A G F p 3965.35.32025.35.34360=⨯⨯⨯⨯+=+=基底自重压力20 2.040.0d kpa γ=⨯=基底处的附加应力kpa d p p 356403960=-=-=γ 桩端处的附加应力kpa d p p 3560=-=γ桩端平面下的土的自重应力c σ和附加应力z σ(04p z ασ=)计算如下: ①.在z=0时: 18.8218.9919.60.95c i ih σγ==⨯+⨯+⨯∑=226.32kPakpa p bzb l z 35635625.044,25.0,215.0,10=⨯⨯=====ασα ②.在m z 0.1=时:kPa h ii c 245.9219.60.1226.32=⨯+==∑γσ kpa p bzb l z 16.306356215.044,215.0,0,10=⨯⨯=====ασα ③.在m z 2.0=时:kPa h i i c 265.5219.61.0254.92=⨯+==∑γσkpa p bzb l z 16.3513562466.044,2466.0,43.0,10=⨯⨯=====ασα ④.在m z 3.0=时265.52 1.019.6285.12c i ih kPa σγ==+⨯=∑kpap bzb l z 61.3423562406.044,2406.0,645.0,10=⨯⨯=====ασα ⑤.在m z 4.0=时kPa h i i c 304.7219.61.0285.12=⨯+==∑γσkpap bzb l z 94.3293562317.044,2317.0,86.0,10=⨯⨯=====ασα ⑥.在m z 5.0=时kPa h i i c 324.3219.61.0304.72=⨯+==∑γσkpap bzb l z 85.3143562211.044,2211.0,08.1,10=⨯⨯=====ασα ⑦.在m z 6.0=时kPa h i i c 343.9219.61.0324.32=⨯+==∑γσkpap bzb l z 04.29935621.044,21.0,29.1,10=⨯⨯=====ασα ⑧.在m z 7.0=时kPa h i i c 363.5219.61.0343.92=⨯+==∑γσkpap bzb l z 52.2833561991.044,1991.0,5.1,10=⨯⨯=====ασα ⑨.在m z 8.0=时kPa h i i c 383.1219.61.0363.52=⨯+==∑γσkpap bzb l z 42.2683561885.044,1885.0,72.1,10=⨯⨯=====ασα ⑩.在m z 9.0=时kPa h i i c 402.7219.61.0383.12=⨯+==∑γσkpa p bzb l z 32.25635618.044,18.0,94.1,10=⨯⨯=====ασα计算如下表:Z(mm)blbzi α)(mm z i i α1---∑z i i i z z αα)(mPa E si )110(4---⨯=∆i i i i z z Ei p Si αα 0 10.25 01000 1 0.215 0.2494 997.6 997.6 7.0 33.54 2000 1 0.43 0.2466 1972.8 957.2 7.0 32.45 300010.6450.24062887.2914.48.226.514000 1 0.86 0.2317 3707.2 820 8.223.785000 11.080.2211 4422 714.88.220.736000 1 1.29 0.21 5040 618 8.217.917000 1 1.5 0.1991 5774.8 734.8 8.221.308000 1 1.72 0.1885 6032 257.8 8.27.489000 1 2.07 0.18 6480 448 8.212.98'S =196.95mm沉降经验系数 1.5=ψ。