橡胶支座构造图
- 格式:dwg
- 大小:1.09 MB
- 文档页数:1
坡型橡胶支座汇编
桥梁支座的功能是将静载和动载力、制动力和风力传送到桥墩和桥台。
支座的结构必须能满足由交通、温度变化、地震、预应力、收缩徐变等产生的位移和扭转。
由此可见,支座是桥梁中最重要的元件,其质量要求必须是高标准的。
现对一些常见的公路桥梁支座的构造进行简单介绍,如果某些指标与现行规范不符,以现行规范为准。
坡型板式橡胶支座:
随着交通运输业的发展,各种斜桥越来越多,梁桥坡度从1~4%不等,有的特殊桥梁设计坡度甚至达8%左右。
斜桥由于倾斜或桥面逐渐升高,就给支座的设计准则增添了更多的因素,一部分垂直于桥面的作用力作用于支座的剪切面上,如果设计未迎合这些力的需要,支座就会产生过大变形,影响其使用性能和寿命。
坡型板式橡胶支座示意图(图10)
以往对梁体纵坡1%〈1〈3%的桥梁,橡胶支座安装使用时,在梁底与支座之间安臵与桥梁纵破一致的楔形钢板(或楔形混凝土块),或对梁端底部作相应处理,以使支座平臵,防止垂直反作用力的分力对支座的剪切作用,这些方法都给桥梁支座的施工安装工作带来许多麻烦,费工费料,有时处理也不够理想。
坡型支座应运而生。
目前,支座生产厂家可根据设计使用要求,加工制造不同规格、不同坡度、不同弹性模量(形状系数)的坡型板式橡胶支座,
坡型支座安装、施工时只按普通板式橡胶支座的安装方法既可。
无须准备楔块或对梁底做相应处理,省工省料,施工方便
下图为桥梁坡型板式支座(图11)。
设 计 说 明1 总 则〖JPZ 系列盆式橡胶支座〗是同时参照并满足交通行业标准《公路桥梁盆式橡胶支座》(JT/T 391-2009)、欧洲标准《Structural bearings - Part 5: Pot bearings 》(EN 1337-5:2005)及其它相关行业规范(双标准、多规范)研发的桥梁标准构件系列产品,属专利技术成果(ZL 200920245755.2),通过了省部级科技成果鉴定(陕科鉴字[2009]第100号),且已上升为中华人民共和国交通运输行业标准,适用于各类公路、市政道路及轨道交通桥梁。
2 设计依据◆ 《公路桥涵设计通用规范》(JTG D60-2004)◆ 《公路钢筋混凝土及预应力混凝土桥涵设计规范》(JTG D62-2004) ◆ 《公路桥梁抗震设计细则》(JTG/T B02-01-2008) ◆ 《公路桥梁盆式支座》(JT/T 391-2009) ◆ 《铁路桥梁盆式橡胶支座》(TB/T 2331-2004) ◆ 《铁路桥涵设计基本规范》(TB 10002.1-2005) ◆ 《铁路桥梁钢结构设计规范》(TB 10002.2-2005)◆ 《铁路桥涵钢筋混凝土和预应力混凝土结构设计规范》(TB 10002.3-2005) ◆ 《钢结构设计规范》(GB 50017-2003) ◆ 《铁路工程抗震设计规范》(GB 50111-2006)◆ 《客运专线桥梁盆式橡胶支座暂行技术条件》(科技基【2005】101号) ◆ 《客运专线桥梁盆式橡胶支座暂行技术条件补充规定》(科技基【2007】95号) ◆ 《Structural bearings - Part 2: Sliding elements 》(EN 1337-2:2004) ◆ 《Structural bearings - Part 5: Pot bearings 》(EN 1337-5:2005)3 图纸分类3.1 本系列产品设计图根据支座设计水平承载力的不同共分为三册: ☐ 第一册:JPZ (Ⅰ)系列盆式橡胶支座(JPZ (Ⅰ))设计水平承载力为竖向承载力的10%,一般适用于地震动峰值加速度Ag ≤0.10g 地区的桥梁。
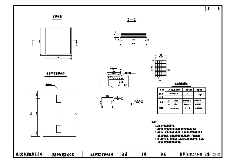
公路桥梁常见支座桥梁支座的功能是将静载和动载力、制动力和风力传送到桥墩和桥台。
支座的结构必须能满足由交通、温度变化、地震、预应力、收缩徐变等产生的位移和扭转。
由此可见,支座是桥梁中最重要的元件,其质量要求必须是高标准的。
现对一些常见的公路桥梁支座的构造进行简单介绍,如果某些指标与现行规范不符,以现行规范为准。
欢迎大家补充。
第一部份常见支座一、公路桥梁板式橡胶支座1、橡胶板式支座性能与特点:板式橡胶支座(GJZ、GYZ系列)由多层橡胶与薄钢板镶嵌、粘合、硫化而成。
该产品有足够的竖向刚度以承受垂直荷载,且能将上部构造的压力可靠地传递给墩台;有良好的弹性以适应梁端的转动;有较大的剪切变形以满足上部构造的水平位移;具有构造简单、安全方便、节省钢材、价格低廉、养护简便、易于更换等特点。
本品有良好的防震作用,可减少动载对桥跨结构与墩台的冲击作用。
下图为桥梁板式橡胶支座(图1)0.jpg板式橡胶支座的结构(图2)2.jpg2、四氟滑板式支座性能与特点:聚四氟乙烯滑板式橡胶支座简称四氟滑板式支座(GJZF4、GYZF4系列),是于普通板式橡胶支座上按照支座尺寸大小粘复一层厚2-4mm的聚四氟乙烯板而成.四氟滑板式支座除具有普通板式橡胶支座的竖向刚度与弹性变形,且能承受垂直荷载及适应梁端转动外,利用聚四氟乙烯板与不锈钢板间的低摩擦系数(μf≤0.08)可使桥梁上部构造水平位移不受限跨度制。
30米的大跨度桥梁、简支梁连续板桥和多跨连续梁桥可作活动支座使用;连续梁顶推、T型梁横移和大型设备滑移可作滑块使用。
下图为四氟滑板式支座(图3)3.jpg板式橡胶支座的设计参数(图4)4.jpg板式橡胶支座力学性能(图5)[attach]11352[/attach]3、球冠圆板式橡胶支座性能与特点:球冠圆板式橡胶支座在平面上各向同性,并以其球冠调节受力状况。
不但适用于一般桥梁,也适用于各种布置复杂、纵横较大的立交桥及高架桥,其坡度使用范围为3~5%,也可根据不同坡度需要调整球冠半径。
公 公路、 市政及 及轨道交 交通工 工程 程建设 设 桥梁 桥梁构件 件通 通用设 设计 计图 J Z 系列 JPZ 系列盆 盆式 式橡 橡胶 胶支 支座 座通 通用 用安 安装 装图 图( 号:JPZ(图号 -Ⅱ) ) 第二 二册 第一 一册 册 共三册 册JPZ-Ⅰ系 系列★ 第二 二册 JPZJ -Ⅱ系 系列 第 册 第三册 JPZ Z-Ⅲ系 系列 列2 2009 年 8 月· ·西安 安 图 纸 目 录 序号 1 2 3 4 5 6 7 8 9 10 11 12 13 14 15 图 号 JPZ-01 JPZ-Ⅱ-01 JPZ-Ⅱ-02 JPZ-Ⅱ-03 JPZ-Ⅱ-04 JPZ-Ⅱ-05 JPZ-Ⅱ-06 JPZ-Ⅱ-07 JPZ-Ⅱ-08 JPZ-Ⅱ-09 JPZ-Ⅱ-10 JPZ-Ⅱ-11 JPZ-Ⅱ-12 JPZ-Ⅱ-13 JPZ-Ⅱ-14图 名 设 计 说 明 JPZ 盆式橡胶支座(JPZ-Ⅱ)安装图固定型系列(一) JPZ 盆式橡胶支座(JPZ-Ⅱ)安装图固定型系列(二) JPZ 盆式橡胶支座(JPZ-Ⅱ)安装图单向型系列(一) JPZ 盆式橡胶支座(JPZ-Ⅱ)安装图单向型系列(二) JPZ 盆式橡胶支座(JPZ-Ⅱ)安装图单向型系列(三) JPZ 盆式橡胶支座(JPZ-Ⅱ)安装图单向型系列(四) JPZ 盆式橡胶支座(JPZ-Ⅱ)安装图单向型系列(五) JPZ 盆式橡胶支座(JPZ-Ⅱ)安装图单向型系列(六) JPZ 盆式橡胶支座(JPZ-Ⅱ)安装图双向型系列(一) JPZ 盆式橡胶支座(JPZ-Ⅱ)安装图双向型系列(二) JPZ 盆式橡胶支座(JPZ-Ⅱ)安装图双向型系列(三) JPZ 盆式橡胶支座(JPZ-Ⅱ)安装图双向型系列(四) JPZ 盆式橡胶支座(JPZ-Ⅱ)安装图双向型系列(五) JPZ 盆式橡胶支座(JPZ-Ⅱ)安装图双向型系列(六)页 次 1~5 6 7 8 9 10 11 12 13 14 15 16 17 18 19 JPZ 系列盆式橡胶支座 图号: JPZ-01设 计 说 明1 总 则JPZ 系列盆式橡胶支座是按照行业标准,同时参照并满足欧洲标准进行设计,适用于各类公 路、 市政道路及轨道交通桥梁。
GPZ(II)盆式橡胶支座系列设计图
中交公路规划设计院
一九九九年十一月二十四日
注:表中尺寸除注明者外,均以毫米为单位
注:表中尺寸除注明者外,均以毫米为单位
注:表中尺寸除注明者外,均以毫米为单位
注:表中尺寸除注明者外,均以毫米为单位
注:表中尺寸除注明者外,均以毫米为单位
注:表中尺寸除注明者外,均以毫米为单位
注:表中尺寸除注明者外,均以毫米为单位
注:表中尺寸除注明者外,均以毫米为单位
注:表中尺寸除注明者外,均以毫米为单位
注:表中尺寸除注明者外,均以毫米为单位
注:表中尺寸除注明者外,均以毫米为单位
注:表中尺寸除注明者外,均以毫米为单位
注:表中尺寸除注明者外,均以毫米为单位
注:表中尺寸除注明者外,均以毫米为单位
注:表中尺寸除注明者外,均以毫米为单位。
注:表中尺寸除注明者外,均以毫米为单位。
注:表中尺寸除注明者外,均以毫米为单位。
注:表中尺寸除注明者外,均以毫米为单位。
HDR高阻尼隔震橡胶支座按功能形式分为固定型隔震支座和滑动型隔震支座,固定型支座位移通过橡胶剪切变形来实现,橡胶的水平剪切能承受较大的水平力,按其连接结构又分为Ⅰ型、Ⅱ型两种类型,通过高阻尼橡胶在水平方向的大位移剪切变形及滞回耗能实现减隔震功能。
Ⅰ型——支座与墩、梁之间采用套筒连接,支座顶面、底面均设预埋钢板,上、下支座板和套筒之间采用锚固螺栓连接,上、下预埋钢板与套筒之间采用配合焊接。
HDR(Ⅰ)高阻尼隔震橡胶支座结构示意图(固定型)Ⅱ型——支座与墩、梁之间采用套筒连接,支座底面不设预埋钢板,底钢板和套筒之间采用锚固螺栓连接,上预埋板与顶钢板之间采用卡榫连接,上预埋钢板与套筒之间采用配合焊接。
HDR(Ⅱ)高阻尼隔震橡胶支座结构示意图(固定型)滑动型支座的产品结构示意图如下:HDR高阻尼隔震橡胶支座结构示意图(滑动型)支座代号示例:HDR(Ⅰ)-D900-G10/8-e168,表示:直径为900mm,橡胶设计剪切模量1.06MPa,设计转角为0.008rad,设计剪切位移量为±168mm的HDR(Ⅰ)圆形固定型高阻尼隔震橡胶支座;省略型号表示为:UUHDR(Ⅰ)-D900-G10UU。
HDR(Ⅱ)-350×400-G8/8-e56,表示:纵桥向尺寸为350mm、横桥向尺寸为400mm,橡胶设计剪切模量0.80MPa,设计转角为0.008rad,设计剪切位移量为±56mm的HDR(Ⅱ)矩形固定型高阻尼隔震橡胶支座;省略型号表示为:UUHDR (Ⅱ)-350×400-G8UU。
HDR-D300-H/8-e100,表示:直径为300mm,设计转角为0.008rad(橡胶设计剪切模量0.64MPa),主滑移方向设计位移量为±100mm的HDR圆形滑动型高阻尼隔震橡胶支座;省略型号表示为:UUHDR-D300-H/8UU。
HDR-350×400-H/8-e150,表示:纵桥向尺寸为350mm、横桥向尺寸为400mm,设计转角为0.008rad(橡胶设计剪切模量0.64MPa),主滑移方向设计位移量为±150mm的HDR矩形滑动型高阻尼隔震橡胶支座;省略型号表示为:UUHDR-350×400-H-e150UU。
公路桥梁板式橡胶支座的合理变形梁支座的作用主要有二点:1、将桥梁荷载(动载及静载)有效传递到桥墩;2、满足桥梁变形需要。
板式橡胶支座的内部结构如图一所示:支座内部是一层钢板一层胶经硫化成型得到的矩形或圆形板状产品,钢板和中间胶层厚度根据支座的尺寸大小不同而不同,具体是按照JT/T4-2004《公路桥梁板式橡胶支座》和JT/T663-2006《公路桥梁板式橡胶支座规格系列》标准制造的。
图一:板式橡胶支座内部结构示意图板式支座在正常使用的情况下,其变形有三种形式:1、剪切变形;2、竖向压缩变形;3转角变形。
支座变形是由于支座受力引起,与支座本身无关。
支座支座的剪切角应不大于35°。
所以支座在使用中应执行此规定,可根据剪切量B来确定:B≤Htan35°=0.7H,如支座高度为63毫米,其最大剪切变形不应大于0.7×63=44毫米。
图二:支座剪切变形示意图支座的竖向压缩变形是由桥梁的竖向荷载引起,由于支座内部结构的特殊性,支座在正常使用情况下会出现图三所示的变形。
当支座在竖向荷载作用时,支座内橡胶层因受压会延径向呈半圆形外鼓,而钢板层则保持原状,所以支座会出现比较均匀的外鼓现象。
此属于支座的正常变形。
当支座偏压或梁体变形时,支座会出现转角变形。
同一支撑系的几个支座可能出现不同程度和形式的变形,这是由于各支座安装位墩台至梁底高度不完全一致引起,通过各支座的不同变形可以使支撑系达到平衡。
如果支座出现不均匀(比如一个方向)外鼓时,往往是由于支座的下支撑面与梁底平面不平行造成的,一般情况下无需调整,因为调整可能产生新的不平衡。
事实上,桥梁之所以采用板式橡胶支座,就是因为其良好的变形性能可以满足桥梁的各种受力和变位。
换句话说,如果支座不能变形就没有必要使用了。
图三:支座竖向压缩变形示意图。