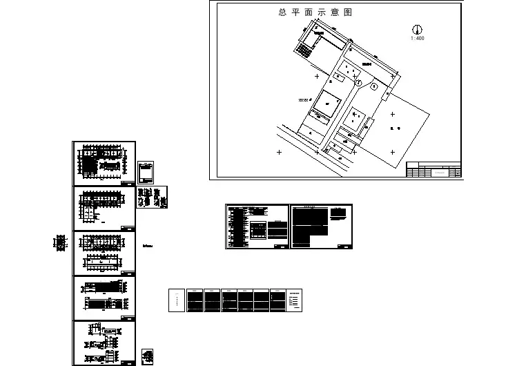
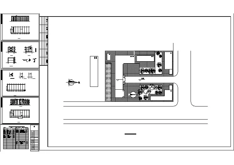
1-10.51.1.1.51.59.14.女下男100023010002600100100750100100100900C-5FM丙-1M-9M-9C-5M-9M-9管井350x11=385010004000R32000残疾人升降平台上坡道i=10%M-1-1.500%%p0.000门斗由二次装修完成98J9多步台阶参734坡道参98J9i=10%上坡道1070一层平面图档案号设计阶段描 图设 计校 对日 期比 例 专业负责人工程负责人审定审 核建 筑电 气给 排 水结 构暖 通下上仪器室实验室门厅办公室电脑室仪器室实验室实验室仪器室仪器室实验室实验室仪器室仪器室实验室电脑室电脑室办公室办公室语言教室语言教室语言准备室办公室办公室卧室办公室小会议室办公室卧室会议室音乐教室音乐图书室办公室图书室18005100所有卫生间较室内楼面低构造柱设置详结施图图中未注明的门垛均为:1.注2.3.130.20..1:100一层平面图 1:100二层平面图 卫生间大样图 1#1:50卫生间大样图 2#1:5005J12拖布池地漏05J12地坎05J12洗面台05J12蹲便器05J1205J12隔断洞 口 尺 寸)高x宽(门 窗 数 量05J4-1 2TC-1815详05J4-1 2TC-1215详05J4-1 1PM-0821参05J4-1 1PM-1021详小雨蓬坡檐见屋顶平面图建筑外门窗抗风压性能分级为二级,气密性能分级为三级,水密性能分级为二级坡度坡向地漏;两种材料的墙体交接处,应根据饰面材质在做饰面前加钉金属网或在施工中加贴玻璃丝网施工中各专业应密切配合,管线交叉处精心施工,本设计未尽之处,均以国家现行有关规范预埋木砖及贴邻墙体的木质面均做防腐处理,露明铁件均做防锈处理;图中所选用标准图中有对结构工种的预埋件、预留洞,如楼梯、平台钢栏杆、门窗、建筑灯具等影响美观的器具须经建设单位与设计单位确认样品后,方可批量安装;卫生洁具、成品隔断由建设单位与设计单位商定,并应与施工配合;建筑外墙0.042W/(m道后再做同室内外部位相同颜色的漆,,楼地面部分执行《建筑地面和《建筑安全玻璃管理规定》外墙喷涂面要求基底抹灰平整,面砖表面色差小,色泽均匀,根据墙面尺寸精心排布面砖。外装修选用的各项材料其材质、规格、颜色等,均由施工单位提供样板,经建设和设计单位楼地面构造交接处和地坪高度变化处,除图中另有注明者外均位于齐平门扇开启面处;内墙面:基底抹灰要求线角分明,表面平整,饰面喷涂均匀,不得流淌,特别做好阴阳屋面保温:均采用聚苯板保温层, 有关构造详图和要求详见山西省工程建设标准设计门窗立面均表示洞口尺寸,门窗加工尺寸要按照装修面厚度由承包商予以调整;各项油漆均由施工单位制作样板,经确认后进行封样,并据此进行验收。木门部 位各专业要求及说明见各专业施工图楼梯栏杆用料做法层次,在垂直面上是以施工先后顺序注写;在水平面上是按实际的上下层次注写0.06建筑节能设计登记表选用作法传热系数周 边七、屋面5.2设计依据节能2.4 2.5 2.3 2.2 4.2 4.4 4.3 3.3 3.2 5.3六、外墙63.1 55.14.1 4 3 2.1 2 1 1.1 1.2施工要求:严格执行屋面防水施工验收规范,所选材料和厂家须现场做防水样品,经设计人员认定后方可大面积施工。楼板上无梁处的墙体均为轻质墙体。14.414.5保温层为水泥膨胀蛭石板,凡设在内隔墙上的门窗洞口均不允许直接打洞开凿,凡需增设的洞口和门窗洞口均应预留,防水材料要求:第一厂家要有部级和山西省推广认定证书,第二要求有独立施工组织能力并水泥砂浆,砂浆中掺聚丙烯胶粉聚苯颗粒保温层外墙表面清理后,满涂专用界面处理砂浆厚抗裂砂浆复合耐碱网布厚高聚物改性沥青卷材(SBS)防水层水泥膨胀珍珠岩找刷外墙涂料两道刷着色涂料保护层弹性底涂、柔性腻子钢筋混凝土楼板现浇钢筋混凝土楼板厚EC聚合物砂浆保护层(内夹玻纤布)楼板底刷混凝土界面处理剂一道《民用建筑设计通则》(GB50352-2005)本工程建筑层数三层:地下一层为架空层,一本工程为山西汇丰源农副产品有限公司办公楼452.30m(,架空层层高m0.81W/(m防火设计的建筑分类为二类;其耐火等级为二级; 内隔墙上的埋件均应预埋,要求位置准确,埋设牢靠。本工程的屋面防水等级为三级,防水层合理使用年限为建筑结构形式为砖混结构,使用年限为内隔墙上的门洞边,阳角部位,柱角均做各层标注标高为完成面标高(建筑面标高),屋面标高为结构面标高;本工程±0.000相当于绝对标高为19kN/m,本工程所有墙体均用粘土实心砖 面层做法同其所在的相应内墙面。为单位,总平面尺寸以具有施工营业执照。防水工程本工程标高以粘土实心砖的容重墙体工程m导热系数为3建设地点:临汾市北城开发区办公楼总建筑面积各为:《屋面工程技术规范》《民用建筑节能设计标准》《建筑设计防火规范》建设单位:山西汇丰源农副产品有限公司本工程设计的主要内容:设计标高项目概况2350.60m2(GBJ16-87)(JBJ26-95)(GB50234-2004));假定标高水泥砂浆护角,高度为1:2.5年10.为单位,其它尺寸以.k)2000,宽120为单位。mm建筑高度 抗震设防烈度为八度;三层为办公~50年,.2.70m;12.45m ;注施工图设计说明现行的国家有关建筑设计规范、规程和规定。甲方同意的本工程设计方案,混凝土柱、梁见屋顶平面图外墙及外露上所标注的位置架空层及墙身大样(GB50096-1999)有关设计文件,《住宅设计规范》设计合同书设计委托书,地形图)胶粉聚苯颗粒聚苯板保温顶棚1(屋面不上人保温外墙面大雨篷做法取消:(244最薄处66851. 厚4)2042. 4. 6. . 2. 652. 5. 4. 3. 7.1各工种密切配合后,确认无误方可施工;位制作样板和选样,经确认后进行封样,卫生间的楼面应低于相邻房间门窗立樘:内外门窗立樘墙中;室外工程(室外设施)外挑檐、雨篷、室外台阶、散水做法见索引标准图集。其它施工中注意事项建筑设备、设施工程门窗玻璃的选用应遵照《建筑玻璃应用技术规程》设有外墙外保温的建筑构造详见索引标准图及外墙详图;门窗选料,颜色,玻璃见门窗表附注,室内装修所采用的油漆涂料见室内外各项露明金属件的油漆为刷防锈漆内装修工程执行《建筑内部装修设计防火规范》1112.112.214.214.11414.3121010.110.210.3油漆涂料工程7.399.19.39.29.47.47.58.38.28.17.28内装修工程外装修工程并据此进行验收。工程做法表";"220mm.0.5%并做GB50222JGJ113:建筑节能设计登记表有关部分,门窗采用气密型门窗,玻璃采用中空玻璃根据民用建筑节能设计标准山西地区实施细则进行设计6.36.46.16.2705J3-1其他详见附表门窗工程-120(首层附加一层加强网布)200坡,最薄处2%厚(80厚)=20kg/m,要求聚苯板密度ρ导热系数为;;,室外干线总长 ΣL24EHR=τq A 。 。N 。 Δt设计热负荷指标采暖设计热负荷 地 面As N采 暖 面 积 体 形 系 数 水泵轴功率 供回水温差 窗 墙 比非 周 边南北东 西q=Q/AQm0.300.300.232mw/m2W0.20CKW .细则限值0.060.230.25西东 设计值三、内墙五、顶棚四、踢脚二、楼面一、地面名 称水泥砂浆压实抹光素水泥浆结合层一遍厚铺地砖铺实拍平钢筋混凝土筏板现浇钢筋混凝土楼板厚铺地砖铺实拍平做 法干硬性水泥砂浆结合层水泥石灰砂浆水泥石灰砂浆水泥砂浆厚釉面砖,白水泥浆擦缝水泥砂浆加水重刷内墙涂料(用户自理)现浇钢筋混凝土楼板刷内墙涂料两道水泥砂浆水泥砂浆打底水泥砂浆抹面厚环氧树脂耐磨涂料刷基层处理剂一遍现浇钢筋混凝土楼板水泥砂浆打底刷内墙涂料二道(用户自理)水泥砂浆找平层刷内墙涂料两道现浇钢筋混凝土楼板刷内墙涂料两道刷建筑胶素水泥浆一遍,配合比为建筑胶:水=水泥石灰膏砂浆打底扫毛水泥石灰膏砂浆抹面水泥石灰砂浆,分两次抹灰满刮建筑胶水泥腻子,打磨平整刷素水泥浆一道(内掺建筑胶)刷素水泥浆一道(内掺建筑胶)水泥砂浆抹面,压实赶光细石混凝土找坡不小于 ,厚聚氨酯防水涂料,面撒黄砂,四周沿墙上翻 高干硬性水泥砂浆101. 除卫生间外均做架空层外均做除卫生间 混合砂浆墙面水泥砂浆顶棚水泥砂浆踢脚混合砂浆顶棚卫生间 其他墙面铺地砖楼面水泥砂浆墙面釉面砖墙面铺地砖楼面卫生间架空层其他楼面卫生间厚1. 1:1:615101020201:2.55厚2. 1:31:0.3:2.51:0.3:35厚5. 3. 4. 55厚厚1. 5. 4. 3. 2. 1. 厚厚厚10155. 1. 4 1. 3. 2. 2. 3. 51~21:21:0.5:32:1:83024181023. 厚1:2.5厚3~4素水泥浆一遍4. 15厚3. 4. 1. 2. 3. 1. 2. 51351:31:1厚1:3厚厚厚厚20101. 2. 1.550157. 6. 5. 4. 3. 2. 251:4C151:21:4部 位水泥砂浆地面类 型架空层厚 度201. 202. 厚1:2水泥浆擦缝七、屋面八、油漆说明:建设单位:1:4建筑胶镶贴最薄处不小于20%水泥浆擦缝,,0.5%30150厚临汾三合锅炉制造有限公司屋 顶外 墙外 门地下室不采暖接触室外空气阳台门下部不采暖窗户地 板楼梯间 隔 墙北东 西南户 门部 位-1附表0.600.551.830.602.73.50.553.52.000.460.490.582.32.32.30.46工程名称:w/(m k)传热系数限值.2w/(m k).22#住宅楼上人木材面金属面屋面4屋面3()名 称工 程 做 法 表类 型屋面2甲方定制甲级防火门1FM-11500x2100山西汇丰源农副��