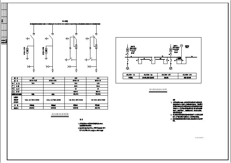
10kV配电装置图图号总号N开关柜外型(宽X深X高)开 关 柜 用 途主\P要\P设\P备\P表开关柜型号10 0.1 0.1333:HXGN15A-12(F)/开 关 柜 编 号LMY-6X6010kv \P 主\P 结\P 线\P 图10kV开关柜排列示意图4G3G2G1G进线柜计量柜压变柜出线柜(315kVA)49(改)39(改)5233VV4G3G2G1G850X850X2200850X850X2200850X850X2200850X850X2200YJV22-8.7/15-3*35mm21FN16A-12R-125A/31.5kAFN16A-12-125A/31.5kAXRNT-12-71A/31.5kALZZBJ9-10A1-50/5A LZZBJ9-12-50/5A RN2-10 0.5AJDZ-10 10/0.1kV 0.2 JDZJ-10HY5WZ-17/4542L6-A-50/5A42L6-V-10kV/100VDXN6-10QLXQ-10进出线电缆:110.2 S2333233331330/513113331YJV22-8.7/15-3*35mm2850X850X220039(改)出线柜(500kVA)5G5G380/530/5850X850X2200总柜646G1380/5316G31.5A3350AYJV22-8.7/15-3*35mm25,变压器室 高压配电室空间净高要求保持5米以上,屋顶不得与车间通道屋顶连通.+0.300+0.300+0.300防火单开门净高2500车间2,1# 2#变压器室安装轴流出风风扇,风扇中心标高+4.000米.4,轴流风扇开孔尺寸按%%c500计算.注意 :1,车间通道必须保证足够的通风.3,高压配电室安装轴流进出风风扇,风扇中心标高+4.000米.+0.000+0.000+0.300净高2600双开带通风栅铁门净高3000双开带通风栅铁门双开带通风栅铁门净高3000净高3000防火双开门车间通道低压配电室2#变压器室1#变压器室高压配电室yljw-tj-001号总号图配电室平面布置图1400净高2500防火单开门开关柜的正面面向防火双开门侧.防火双开门5008007000电缆沟数量111台台台21台台单位型 号编号1G2G3G箱式固定高压开关柜箱式固定高压开关柜箱式固定高压开关柜名 称HXGN15A-12(F)-33HXGN15A-12(F)-64设备一览表HXGN15A-12(F)-525G箱式固定高压开关柜箱式固定高压开关柜4G/6G说明:HXGN15A-12(F)-39(改)开关柜的尺寸为 (宽x深x高) : 850X850X2200开关柜的颜色为 : 国标Z44浅驼色HXGN15A-12(F)-49(改)5006*850=51002#变压器室变压器室1#6G5G3G4G2G1G电缆沟净高3000yljw-tj-002号总号图高压配电室配电装置布置图+0.300窗户730}60}%%C150PVC管,6支6.高压配电室的PVC管埋设具体位置由土建施工单位定,PVC管上沿标高为-0.300米.进}风风扇孔窗户%%c500轴流出风风扇孔接地端预埋接地体50080070004.预埋接地体埋入墙壁之内,与接地网引上线相连.预埋接地体上沿标高为+0.600米,每隔850mm引出一个接地端.1.高压配电室窗户采用塑钢窗,窗户设纱窗,窗户具体尺寸由建筑设计单位选定. 3.基础槽钢的安装允许偏差:不直度<4mm/全长;水平度<4mm/全长;不平行度<5mm/全长. 第二次浇灌混凝土是地面的补充层.砼平地面要求与基础槽钢顶面保持水平.高压配电室地面采用砼平地面,基础槽钢的安装一般要分二次浇灌混凝土:第一次为开关柜槽钢安装基础, 2.注:5.安装轴流进出风扇,中心标高+4.000米,风扇具体位置由建筑设计单位定,轴流进风风扇上方要安装挡雨棚.7.高压配电室空间净高要求保持5米及以上.电缆沟%%C150PVC管,左右各2支8#槽钢A}A}2#变压器室变压器室1#yljw-tj-003号总号图高压配电室基础孔洞布置图变压器室变压器低压侧靠双开门侧.注:1#变压器室高压配变室}双开带通风栅铁门净高3000变压器室配电装置布置图yljw-tj-0042#变压器室号图号总双开带通风栅铁门高压配变室}净高3000低压出线桥架}低压配变室1100450045001250200025001400200010001000125011004500450020002500140010002000125010001250 4.2#变压器室至低压配电室的低压出线桥架具体位置根据现场要求定,但距地面高度不得少于2.5米.桥架宽800mm,高400mm. 8.变压器室空间净高要求保持5.0米及以上.场外电缆沟PVC管上沿标高为-0.400米. 6.1#变压器室储油池至场外电缆沟的PVC管埋设位置具体由土建施工单位定,变压器室PVC管上沿标高为-0.250米, 7.变压器室贮油池中铺设卵石,卵石层高度为700mm,采用50~80mm大小的卵石. 5.储油池至高压配电室的PVC管埋设位置具体由土建施工单位定,变压器室PVC管上沿标高为-0.250米. 第二次浇灌混凝土是地面的补充层.砼平地面要求与基础槽钢顶面保持水平.1.变压器室采用双开通风栅铁门,上下通风之间中心高差大于2.0m.在后墙安装轴流出风风扇,中心标高+4.000米. 3.基础槽钢的安装允许偏差:不直度<4mm/全长;水平度<4mm/全长;不平行度<5mm/全长.变压器室地面采用砼平地面,基础槽钢的安装一般要分二次浇灌混凝土:第一次为变压器槽钢安装基础,注: 2.%%C500轴流出风风扇孔1#变压器室%%c150PVC管,2支B}高压配变室}20#槽钢%%c150PVC管,共3支B}双开带通风栅铁门净高3000%%c150PVC管,2支变压器室基础孔洞布置图yljw-tj-005%%C500轴流出风风扇孔号图号总2#变压器室双开带通风栅铁门高压配变室}C}净高300020#槽钢C}桥架}低压配变室 7.变压器室贮油池中铺设卵石,卵石层高度为700mm,采用50~80mm大小的卵石.注 :%%c150PVC 3支-0.250500-0.30022506.每个电缆沟要求埋设一支镀锌扁铁将各电缆支架连接,镀锌扁铁与主接地网相连.-0.350-0.300-0.400-0.800-0.500680-0.600-0.600C--C变压器基础剖面图770100300干砌块石300300360干砌块石100300770干砌块石120300+0.30020#槽钢统长(居中)负荷总重3吨+0.300+0.300120 3.高压配电室开关柜下电缆沟基础应能承受最大静载 500kg/m2.横梁的具体尺寸由建筑设计单位定. 2.高压配电室开关柜基础应能承受开关柜最大静载 1000kg/m2,最大冲击载荷 1500kg/m2.4.每台变压器基础应能承受最大负荷3000kg/m2.1.基础槽钢敷设应保持平整,每米的不平整度不得大于1mm,并与地面保持水平.5.电缆支架由用户自己制作,要求用热镀锌处理.电缆支架最底层距电缆沟最底层的距离为150mm.120+0.300+0.300负荷总重3吨20#槽钢统长(居中)+0.300300120干砌块石825300100干砌块石250300300干砌块石300100825B--B变压器基础剖面图-0.600-0.600680+0.300+0.000%%c150PVC管6支电缆支架电缆支架800L5X50角钢L5X50角钢630100A-A 高压配电室基础剖面图C20混凝土20厚1:2防水砂浆8#槽钢预埋铁(100X100X3)每隔1米设1处120600580220yljw-tj-006号总号图配电室基础剖面图+0.300+0.000+0#43;0.600米处安装一接地镀锌扁铁,并在正对每台开关柜中心点处焊接一个接地端,A单位规格材料表名称米支支支l=2.5Ml=1.5M-50*8-50*8L50*5l=0.3M-50*8编号图例1234垂直接地体水平接地体接地引上线搭接铁CBC水平接地体%%c13.5孔6020墙体40接地端3,接地网由水平接地体和垂直接地体组成,垂直接地体间距为5米.2,需要对配电室接地电阻进行测量,配电室接地电阻应小于4欧姆,如接地电阻达不到要求,则相应延长接地装置直至达到要求为止.1,需要将原先接地网进行开挖,接地网不符合要求则需要重新敷设主接地网.按此图敷设主接地网.BA1600引出线5020002500接地极安装断面图L50X5说明 :.5,所有接地体均应采用热镀锌防腐,扁铁应竖直敷设4,主接地网水平接地体敷设深度为1.60米, 弯曲半径大于2.5米,均以电焊连接,焊缝长度大于100毫米,至少三面满焊.电缆沟yljw-tj-007号总号图配电室接地网布置图450045001100450045001250200010002500200010002000825300300250125010001250800250015003007703003602000125050005000500050050005005000500045004500700028502000450090023003004500850580600220200022502206005801206301004500850850850850850500850编辑部:ivpinfo@本图纸由浩辰ICAD软件提供技术支持网易 电气 中国电气行业网络家园;因为专业,所以完美网易 NETEASE ==