高压开关柜电气设计
- 格式:doc
- 大小:499.00 KB
- 文档页数:30
高压开关柜的电气设计分析【摘要】高压开关柜是电力系统中至关重要的设备,用于控制和保护电路。
本文首先介绍了高压开关柜的重要性和功能,阐述了其在电力系统中的应用场景。
接着,详细解析了高压开关柜的主要组成部分,电气设计原则,设计要点,以及设计注意事项,强调了在设计过程中需要注意的关键细节和优化方案。
在总结了电气设计的关键要点,并展望了高压开关柜电气设计的未来发展方向。
通过本文的分析和讨论,读者可以深入了解高压开关柜的电气设计,提升对该设备的认识和理解,为电力系统的安全运行和稳定性提供参考。
【关键词】高压开关柜、电气设计、组成部分、原则、要点、注意事项、优化方案、关键要点、未来发展方向1. 引言1.1 概述高压开关柜的重要性高压开关柜作为电力系统中的重要设备,承担着电力传输和配电过程中的重要角色。
其作用在于对电力系统中的高压电流进行控制、分配和保护,确保电力系统运行稳定安全。
高压开关柜在电力系统中的作用不可替代,一旦发生故障可能会导致严重的后果,甚至造成重大的电力事故。
高压开关柜的正常运行对于保障电力系统的安全稳定运行至关重要。
在电网运行过程中,高压开关柜能够实现对电流的控制和分配,保证电气设备的正常运行。
高压开关柜还具有很强的短路保护和过载保护功能,能够及时切断故障电路,避免事故扩大,保护设备和人员的安全。
高压开关柜的设计质量和性能直接影响到电力系统的安全稳定运行。
为了确保高压开关柜的可靠性和安全性,电气设计必须符合一定的原则和标准,同时需要注意设计中的关键要点和注意事项。
只有通过科学合理的电气设计,才能提升高压开关柜的性能,保障电力系统的安全稳定运行。
1.2 介绍高压开关柜的功能和应用场景高压开关柜是电力系统中非常重要的设备,主要负责控制、分配和保护电路的运行。
它通常被安装在供电系统的主要节点,用于传输和分配电能,保障电网的安全稳定运行。
高压开关柜具有多种功能,包括断路、接通、过载保护、短路保护等。
第1章绪论1.1概述称套配电装置又叫成套配电柜,也是以开关为主的成套电器,故也俗称开关柜。
它用于配电系统,作为接受与分配电能之用。
据电压高低,它可分为高压开关柜和低压开关柜两大类:按装置地点的不同,又分户外式与户内式( 10 kv 与以下的多采用户内式);按开关电器是否可以移动,又可分为固定式和手车式。
可见,高压开关柜是成套配电设备的一种,是有由制造厂成套供应的高压配电装置。
在这种封闭或半封闭的柜中可装设各种高压电器、测量仪表、保护电器和控制开关等等。
通常一个柜就构成一个单元回路(必要时也可用两个柜),所以一个柜也就成为一个间隔。
使用时可按设计的主回路方案,选用适合各种电路间隔的开关柜,然后使可组成整个高压配电装置。
也具有占地少、安装使用与维护检修方便,适于大量生产等特点,故应用很广泛。
高压开关柜种类较多,分类方法亦有多种:按断路器的安装方式可分为固定式和手车式两大类;按柜体结构型式可分为开启式与封闭式两种;还可分为一般环境和特殊环境用(后者包括矿用、化工用、高海拔地区用等)。
按电力行业标准DL/T404-1997的定义,高压开关柜(high-voltage switchgear panel)是指由高压断路器、负荷开关、接触器、高压熔断器、隔离开关、接地开关、互感器与站用电变压器,以与控制、测量、保护、调节装置,内部连接件、辅件、外壳和支持件等组成的成套配电装置。
这种装置的内部空间以空气或复合绝缘材料作为介质,用作接受和分配电网的三相电能。
1.2高压开关柜的类型高压开关柜是3-35kV交流金属封闭开关设备的俗称,它是3-35kV电网中最大面积是配电设备。
由于国内外市场需求的日益多样化和国外代以先进技术的不断引进,20世纪80年来。
国内电器制造行业推出了几十种型号的高压开关柜产品,打破了高压开关柜过去几十年一直以少油断路器为主开关的GG-1和有限的几种手车式开关柜的落后局面。
新推出的高压开关柜所配的主开关元件有真空断路器、SF6断路器、负荷开关、接触器和熔断器。
高压开关柜的电气设计相关探讨发表时间:2016-11-07T14:01:11.567Z 来源:《电力设备》2016年第15期作者:何雪王洪妍[导读] 高压开关柜电气设计是维持电力系统正常运行的重要保障。
(1.沈阳西屋电气开关有限公司辽宁沈阳 110034;2.沈阳高压成套开关股份有限公司辽宁沈阳 110034)摘要:高压开关柜电气设计是维持电力系统正常运行的重要保障,直接影响电力生产安全,也是提升电力企业经济效益的关键性前提。
基于此,本文结合高压开关柜的电气设计相关注意事项,为电气设计提供几点优化建议,以供相关研究参考。
关键词:高压开关柜;电气设计;电力系统在社会经济与信息技术的快速发展背景下,电力设备的应用范围也随之不断扩展,为社会生产活动带来了有力的辅助条件。
高压开关作为电力系统的输电发电、能源转换的基本保障,对电路具有控制、保护双重效益,电力等级一般维持在3.6-550kV左右,主要以高压断路器、隔离开关、接地开关、高压负荷开关等为组成部分,也是输电变电设备的重要环节,对电力系统的正常运行具有实质性作用[1]。
在GB/T 11022-2011《高压开关设备和控制设备标准的共用技术要求》中,对开关设备的制造企业提出了明确要求,电力企业需严格遵守国家规定的制造标准,为电力系统和电力设备提供辅助条件,以促使电力系统的正常运行,这已成为当下电力系统建设的实际要求。
一、高压开关柜的电气设计要点1.划分组件设计在高压开关柜的电气设计方面,以组装图和接线图为主的电气系统整体结构示意图是电气设计的参考依据,掌握各个部分的接线位置、接线方式,以协调电力设备的控制系统,避免电力系统出现相关故障。
对于划分组件设计,主要是依据各个电器元件的安装位置来衡量电器控制系统的完整性,注重高压开关设备的整体性能[1]。
为此,设计人员需要依据电力设备的环境位置,组合具备相似功能的元件,分离强弱电控制器、联合接线控制电器设置(减少干扰、接线数量),保障各个相同功能的电气控制仪器不受到元件电流阻碍;但开展电气控制系统的检查、调试工作时,将较易出现损坏和及时调节的元件进行统一安排,注重元件的尺寸、重量(相似度较高的可考虑组合在一起),方便电气控制系统检测效益。
高压开关柜电气设计1. 引言在电力系统中,高压开关柜是至关重要的设备,用于控制和保护电力系统中的高压设备。
高压开关柜的电气设计是确保开关柜正常运行的关键因素之一。
本文将介绍高压开关柜电气设计的基本要点和注意事项。
2. 设计要点高压开关柜的电气设计需要考虑以下要点:2.1 电源选择选择适当的电源是高压开关柜电气设计的第一步。
通常,高压开关柜的电源可以是直流电源或交流电源。
选择电源时需要考虑电压等级、频率、电源控制和稳定性等因素。
2.2 开关柜配置在设计高压开关柜时,需要确定所需的开关组合和配置。
开关柜的配置取决于电力系统中所需的控制和保护功能。
常见的开关配置包括断路器、负荷开关、接地开关等。
2.3 电缆布线正确的电缆布线是保证高压开关柜良好运行的关键。
在电缆布线设计中,需要考虑电缆的尺寸、材料、长度和敷设方式等因素。
合理的电缆布线可以最大限度地提高系统的可靠性和安全性。
2.4 保护装置设计高压开关柜的保护装置设计是确保系统安全和可靠运行的重要环节。
保护装置包括过电流保护、短路保护、地面保护等。
在保护装置设计中,需要合理选择保护装置的类型、设置参数和灵敏度。
2.5 地面设计为了确保高压开关柜的安全性和稳定性,需要进行地面设计。
地面设计包括地床的选择、接地电阻的测量和控制、接地网的布置等。
合理的地面设计可以有效地减少系统的接地电阻,提高系统的运行稳定性。
3. 设计注意事项在进行高压开关柜电气设计时,需要注意以下事项:3.1 安全性安全是高压开关柜电气设计的首要考虑因素。
在设计过程中,需要合理选择安全设备和保护装置,确保操作人员和设备的安全。
同时,还需要合理布局和标识高压开关柜,以便操作人员清楚地了解各个部分的功能和操作方法。
3.2 可靠性高压开关柜是电力系统中重要的设备,对系统的可靠性有重要影响。
在电气设计中,需要选择可靠的开关和保护装置,合理布置电缆和连接方式,以提高系统的可靠性和稳定性。
另外,还需要定期对开关柜进行检测和维护,确保其正常运行。
设施设备Facilities & Equipment引言在10kv高压开关柜的设计过程中,应当将安全原则放在首位,确保其整体系统架构能够实现良好的可靠性,尽可能降低出现致命故障的概率。
同时,还应当结合多种有效的措施,保障操作人员的安全。
为了明确设计细节,应当首先了解10kv高压开关柜的基础作用,并根据其设计需求,了解需要应用的规划方案,为以后的进一步架设打下坚实基础。
1 10kv高压开关柜的基础作用10kv高压开关柜具有重要的应用意义,其属于电力系统正常运行必不可少的部件。
通过应用10kv高压开关柜,能够有效节约运输能源,并控制目标线路的状态,使其能够实现连接、闭合、断开的设计动作[1]。
同时,10kv开关柜还能够调节电力输送的状态,使其处于平衡负载条件下,避免出现过载问题。
除以上功能外,10kv开关柜能够保障系统的正常运行,如果发现架构中存在故障问题,则会第一时间隔离目标区域,使供电环节能够继续运转,降低出现不良情况的概率。
因此,合理应用10kv高压开关柜,能够有效提升电力系统的稳定性,强化安全保障,具有重要的应用意义。
2 10kv高压开关柜的设计方法2.1 安全净距。
为了确保10kv高压开关柜能够达到良好的设计效果,应当重视内部安全净距的规划。
由于元器件本身在距离过紧的条件下可能会产生干扰或连带效应,因此需要重视对开关柜内部的距离设计,确保能够预留安全长度。
按照相关设计细节的要求,若高压开关柜应用空气进行绝缘,且所处区域海拔较高,则需要保证内部连接相能够达到125mm的安全距离。
若海拔高度超过1km,则需要进一步调整绝缘距离的长度,防止其影响开关柜的正常使用。
同时,由于大部分高压配电室的内部空间较小,因此需要重视10kv高压开关柜的绝缘设计,避免完全依赖内部安全距离进行规划。
在这一设计过程中,相关人员可以采用多种有效的措施提高绝缘效果,如热缩材料等。
这种材料以SMC、DMC为主,能够有效提高绝缘能力,使10kv高压开关柜能够在有限的空间内实现安全应用目标。
高压开关柜的电气设计分析1. 引言1.1 背景介绍高压开关柜是电力系统中的重要设备,用于控制、保护和分配电能。
随着电力系统的发展和现代化需求的增加,高压开关柜的电气设计也变得愈发重要。
在电力系统中,高压开关柜承担着保护电气设备、隔离电气设备、控制电气设备等重要功能,因此其电气设计具有极大的影响。
高压开关柜的电气设计需要考虑众多因素,如结构特点、工作原理、基本要求、参数选择与计算、接线设计和保护设计等。
合理的电气设计可以有效提高高压开关柜的性能和可靠性,同时也能够降低设备的能耗和维护成本。
通过对高压开关柜的电气设计分析,可以更好地理解其工作原理和结构特点,为日后的优化设计提供参考。
本文旨在深入探讨高压开关柜的电气设计,并进一步探讨其对设备性能的影响,为其未来的发展提出展望和优化设计方向。
1.2 研究目的研究目的是通过对高压开关柜的电气设计进行分析,探讨其在实际工程中的应用和优化方向。
具体目的包括:1. 深入了解高压开关柜的结构和工作原理,为电气设计提供基础知识和理论支持。
2. 分析电气设计的基本要求,包括安全性、可靠性、经济性等方面,为设计提供指导和依据。
3. 对电气设计参数的选择和计算进行详细研究,探讨不同参数对开关柜性能的影响,为优化设计提供参考。
4. 分析高压开关柜的接线设计和保护设计,探讨如何提高系统的安全性和可靠性。
5. 探讨电气设计对高压开关柜性能的影响,并提出优化设计的方向和未来发展的展望。
通过研究,为高压开关柜的电气设计和应用提供理论基础和实用指导,促进其在电力系统中的广泛应用和发展。
1.3 研究意义研究意义在于提高高压开关柜的性能和可靠性,减少设备损坏和事故发生的可能性,保障电力系统的安全稳定运行。
通过深入分析高压开关柜的电气设计,可以帮助工程师更好地理解设备的结构和工作原理,为设计过程中各项参数的选择和计算提供指导。
通过设计合理的接线方案和保护措施,可以有效降低设备的运行成本,提高设备的使用效率,延长设备的使用寿命。
高压开关柜电气设计高压开关柜是电力系统中必不可少的设备,其作用是控制和保护电力系统的运行。
在设计高压开关柜时,除了机械结构外,电气设计也起着至关重要的作用。
本文将详细介绍高压开关柜电气设计的相关内容。
一、开关柜的电气参数在进行高压开关柜电气设计时,需要了解开关柜的一些基本参数,例如额定电压、额定电流、额定短时耐受电流、额定短时耐受电流时间、额定短路开断电流等。
这些参数都是保证高压开关柜正常运行的基础,也是制定电气设计方案的重要参考。
二、电缆的选型与敷设电缆是高压开关柜中重要的电气元件之一。
在进行电气设计时,应该根据开关柜的额定电压、额定电流和长短距离等因素选定合适的电缆。
此外,在电缆的敷设和走向上也需要考虑清楚,以保证电缆的安全性和可靠性。
三、继电器的选择和配置高压开关柜中常用的继电器有过流继电器、相间接地继电器、压力继电器等。
在进行电气设计时,应该根据开关柜的具体情况选择合适的继电器,并采取合理的配线和接线,以确保继电器的准确、可靠地工作。
四、保护装置的设计与配置保护装置是高压开关柜的重要组成部分,包括过电压保护、过电流保护、接地故障保护等。
在进行电气设计时,应该充分考虑开关柜的保护需求,选择合适的保护装置,并进行正确的接线和调试,以保证开关柜的安全和可靠性。
五、接地装置的设计与配置高压开关柜中的接地装置主要包括接地网和接地开关。
在进行电气设计时,应该根据开关柜的具体情况合理规划接地网,选用适当的接地开关,并进行正确的接线和调试,以保证接地效果和安全性。
六、电气维护与检修高压开关柜的电气设计不仅关系到设备的正常运行,还关系到设备的日常维护和检修。
在进行电气设计时,应该注意设备的易维护性和可检修性,尽量减少电气故障和维护难度,降低维护和检修成本,保证设备的长期稳定运行。
综上所述,高压开关柜电气设计是一个复杂的过程,需要考虑众多的因素。
在进行电气设计时,应该根据开关柜的具体情况,合理选型、合理规划、合理配置,以保证开关柜的稳定运行、良好的保护性能和便于维护的特性。
高压开关柜的电气设计分析一、引言高压开关柜是电力系统中必不可少的设备,其作用是在电力系统中进行高压电路的分、合,保护和控制高压电气设备和电气线路。
在现代电力系统中,高压开关柜已经成为不可缺少的电气设备之一,其电气设计的合理性将直接影响到电气系统的安全稳定运行。
本文将对高压开关柜的电气设计进行深入的分析和探讨。
二、高压开关柜的组成和作用1. 组成高压开关柜通常由断路器、隔离开关、接地开关、辅助电气设备等组成。
2. 作用(1)分、合:高压开关柜可以对高压线路进行分、合操作,保障电气设备的正常运行。
(2)保护:高压开关柜内置有各种保护装置,如过载保护、短路保护等,用于保护电气设备和线路。
(3)控制:通过高压开关柜可以对电气设备和线路进行远程控制和监测。
三、高压开关柜的电气设计要求1. 安全性高压开关柜在设计时需要符合国家电气安全标准,保证高压设备的安全运行。
需要考虑到高压开关柜的使用环境,采取相应的防护措施,确保其安全可靠。
2. 稳定性高压开关柜在长期运行中要保持稳定的性能,不受外界环境的干扰,需要考虑到高压设备的散热、通风等问题,以确保设备的长期稳定工作。
3. 可靠性高压开关柜的电气设计需要考虑到其可靠性,包括设备和线路的绝缘、接地、保护等措施,确保设备在正常工作情况下不会出现故障。
4. 经济性在高压开关柜的电气设计中需要考虑到设备的成本和维护费用,并选择合适的电气设备和线路配置,以保证设备的良好性能和较低的运行成本。
1. 设备选型根据实际工程需要,选择符合要求的断路器、隔离开关、接地开关等设备,根据设备的额定电压、电流等参数进行选择,确保设备的性能符合实际要求。
2. 接地设计在高压开关柜的电气设计中,接地是非常重要的一个环节,需要考虑到接地系统的设计和接地装置的选型,以确保设备的安全可靠运行。
3. 整体布置高压开关柜的整体布置需要考虑到安全、维护和排散热等因素,应合理布置设备和线路,同时保证设备之间的安全距离和通风要求。
高压开关柜的电气设计分析高压开关柜是电力系统中的重要设备,用于控制和保护电力设备和线路。
其电气设计分析主要包括以下几个方面:1. 电气设计指标:高压开关柜的电气设计需要根据具体的使用要求和环境条件制定设计指标,包括额定电压、额定电流、短路电流、工作频率、环境温度等。
这些指标直接影响到开关柜的设计选型和工作性能。
2. 设备配置和布局:根据工程需求和电气设计指标,确定高压开关柜的设备配置和布局。
这包括开关设备的种类和数量、保护装置的设置、接地装置的安装位置等。
合理的设备配置和布局能够提高开关柜的操作便利性和维护性。
3. 主回路电气设计:主回路是高压开关柜的主要组成部分,需要进行电气设计分析。
主回路设计包括电缆选择、导线截面计算、电流互感器和电流传感器的选择、高压开关设备的合理配合等。
电气设计分析需要确保主回路的电气参数满足系统运行的要求。
4. 控制回路电气设计:控制回路是高压开关柜的另一个重要组成部分,用于控制开关设备的运行和保护装置的动作。
控制回路电气设计包括控制电路的图纸设计、控制电路元件的选择和安装、继电器和接触器的选型等。
电气分析需要确保控制回路的电气参数稳定可靠,能够准确地实现开关设备的控制和保护功能。
5. 开关柜的接地设计:高压开关柜的接地设计是电气设计中关键的一部分。
开关柜的金属外壳和设备必须接地,以确保人身安全和设备正常运行。
接地设计包括接地装置的选择和设置、接地线的规格和敷设方式等。
电气设计分析需要确保开关柜的接地系统具有低阻抗、可靠地保证设备的接地。
6. 安全防护和绝缘设计:高压开关柜是高电压设备,其安全防护和绝缘设计至关重要。
安全防护设备包括安全间隔、安全开关和操作机构的配置等;绝缘设计包括绝缘支持、绝缘保护、外绝缘和内绝缘等。
电气设计分析需要确保开关柜具有良好的安全性能和绝缘性能,以确保设备正常运行和人身安全。
高压开关柜的电气设计分析涉及到多个方面的内容,需要根据具体的工程需求和运行要求进行综合考虑,以确保开关柜具有良好的电气性能和安全性能。
浅谈高压开关柜的设计高压开关柜是电力系统中重要的组成部分,是电力设备集成的核心控制设备。
高压开关柜分为多种类型,需要根据不同的使用场景进行设计,以满足不同的需求。
本文将重点探讨高压开关柜的设计,从设计标准、选型、布局、绝缘、安全等方面进行详细解析。
一、设计标准高压开关柜的设计需要遵循一定的标准和规范,以确保设备的可靠性、安全性和性能稳定性。
常用的标准和规范包括国际电工委员会(IEC)、国家标准和行业标准等。
具体来说,应根据不同情境选取不同的标准进行参考和借鉴,并相应地进行设计。
二、选型高压开关柜主要按照额定电压、电流、短路容忍电流等参数进行分类。
在选型时需综合考虑电源配电方案、保护装置和控制系统的设计要求。
因此,在选型前需要进行详细调查和研究,评估设备的性能参数和特性,并综合考虑电力系统的环境特点和要求,以确保选型的正确和可靠。
三、布局高压开关柜的布局是设备设计的重要组成部分,它会直接影响到整个系统的安装、运行和维护。
因此,在设计时需要根据安装环境和使用要求进行详细的布局规划。
一般来说,高压开关柜的布局应符合以下要求:①配电室内易于进行人员通行、操作和维护;②必须满足调试、维护、拆装等需求;③各部分的布局应科学合理,便于操作和维护。
四、绝缘高压开关柜的绝缘是设备设计的重要方面,直接关系到系统的安全和稳定性。
高压开关柜在设计时,应根据使用环境选择合适的绝缘材料和结构,以达到良好的绝缘效果。
一般来说,高压开关柜的绝缘应具备以下特性:①具有耐热、防水、耐高温和抗电弧侵蚀等特点;②符合国家的行业标准和规定。
五、安全高压开关柜的设计安全性是设备设计的核心。
在设计过程中,应充分考虑设备使用环境和要求,选择符合安全规范和标准的控制元件和便于维护保养的设计方式,以确保设备的稳定性和安全性。
此外,高压开关柜各部分的连接一定要保证合理,特别是对于电缆连接,要确保合理的安全间隙,以避免事故和电器短路等问题。
总之,高压开关柜的设计需要综合考虑多个因素,包括设计标准、选型、布局、绝缘和安全等。
高压开关柜的电气设计分析
高压开关柜是电力系统中的重要组成部分,其作用是将电力系统中的大电流进行控制
和分配。
因此,高压开关柜的电气设计是非常重要的,下面将对高压开关柜的电气设计进
行分析。
1. 电气设计原则
(1) 可靠性原则:高压开关柜是电力系统中的关键设备,其可靠性是保证电力系统运
行稳定的重要保证。
(2) 经济性原则:高压开关柜的电气设计应该考虑成本因素,确保在满足设计要求下,尽可能降低成本。
(3) 安全性原则:高压开关柜的电气设计应符合安全规定,并应采取相应的安全保护
措施,确保人员和设备的安全。
(1) 系统参数的确定:包括额定电压、额定电流、频率、短路容量等参数的确定。
(2) 设备选型:根据系统参数和设计需求确定各种设备的型号和规格,包括断路器、
隔离开关、负荷开关、电容器等。
(3) 接线方案的设计:根据系统要求确定高压开关柜的接线方案,包括主路、分支路、转换等。
(4) 电气图纸的编制:电气图纸是高压开关柜电气设计的重要组成部分,包括接线图、原理图、控制图等。
(5) 安全措施的设计:高压开关柜电气设计应根据实际情况采取相应的安全措施,包
括过流保护、过压保护、接地保护等。
4. 结语
高压开关柜的电气设计是保障电力系统运行的重要条件,在电气设计过程中,需要遵
循可靠性、经济性和安全性等原则,根据实际情况确定各种参数和设备,设计合理的接线
方案和电气图纸,并采取相应的安全措施,确保设备和人员的安全。
高压开关柜的电气设计探讨研究发布时间:2023-03-29T03:49:42.031Z 来源:《建筑设计管理》2023年第1期作者:王国晶[导读] 由于科技的不断发展和人们生活水平的提高王国晶37092119870313****摘要:由于科技的不断发展和人们生活水平的提高,开关柜在使用的频率以及使用范围方面都得到了不断的发展,种类也越来越多,其自动化以及智能化的程度不断提高。
对于电力企业来说,高压开关柜中的电气设备稳定是保证电力系统运行正常的前提条件,对于电力生产安全以及企业经济效益方面都有着重要的作用,所以,对高压开关柜做好电气设计是非常重要的。
本文首先介绍了电气设计的基本思路,然后对其中的设计要点进行简单阐述。
关键词:高压开关柜;电气设计;思路;要点前言高压开关柜应用范围广泛,从电力系统的发电到输电、配电都进行着使用,承担着电力能源转换和控制保护作用。
高压开关柜涉及的电压范围也很广,种类也有很多,有可以自动断电保护的高压断路器、承担负荷的高压负荷开关、具有安全保护的高压压力切断开关以及高压操作开关等。
为了更好的提高高压开关柜的使用性能,保障其使用质量以及使用寿命,就需要在进行电气设计的过程中充分考虑其技术特点,采取科学有效措施全面提高设计质量,为保障电力系统的安全稳定运行奠定重要的基础。
1、高压电气开关柜设计的基本思想高压电气开关控制柜的设计的基本思路是利用逻辑思维进行设计的过程,只要采用逻辑控制方法,确保电气安全,符合生产过程要求。
这就是一个很好的设计。
也就是说,进行高压开关柜的设计首先符合设计的工艺原理,其次要保证设计出来的产品具有安全性,可靠性。
最后设计的产品必须符合高压开关柜的国家有关规范的设计要求[1]。
2、设计要点高压开关柜主要是结合电气系统整体结构的相关组装图和接线图设计的。
图中要将示例性组件具体组成部分和各个部分的具体位置以及相应接线方式和行线槽之间的具体关系反映出来。
在设计时,要将装配图以及接线图设计成为完整系统,从而对各个部分的分段基础进行协调。
10kV开关柜电气二次设计标准化摘要:经分析,我国城市电网分为500 kV、220 kV、110 kV三级。
其中,220 kV和110 kV变电站与10 kV电网相联,带有10 kV高压开关箱。
在这些级别中,10 kV开关柜是核心组件之一,对电网安全稳定运行至关重要。
因此,需重视10 kV开关柜在电力工业中的地位。
详细介绍10 kV高压开关柜,以深入了解其功能和在电网运行中的必要性。
同时,探讨10 kV开关柜的电气二次设计流程和设计图纸标准化,为从业人员提供有价值的参考。
关键词:10kv;开关柜;电气二次设计引言随着社会经济的发展,人们对电力质量要求越来越高。
10 kV配电系统是一种非常关键的配电装置,它对整个电网的安全和稳定性有很大的影响。
在当前的供电系统中,10 kV高压开关柜备受欢迎并广泛应用。
在具体的设计过程中,我们务必严格遵守相关的法律法规,以保证它的安全运转,为广大用户提供更高质量的服务。
本文详细阐述了10 kV配电系统中二次电源的相关内容。
一、10kv开关柜的电气二次设计方案的标准化技术规程是确定一次电设计方案的重要依据,当计算机保护装置的设计资料齐全时,进行二次电设计。
具体步骤如下:第一,仔细研读合同内容,包含了用户对二次控制元件的特殊要求,特别是对元件的特殊要求。
依据所做的记录,将所做的解释发送给客户及设计院,并依据有关规范重新设计。
若对方同意,需提供签名的书面证明。
第二,重新完成方案,列举站点对二次部分的特殊要求,并详述需要执行的工作。
如果现场的二级设计对一级设计产生了影响,则应该及时与其取得联络,并提出一级主要装置的列表。
在签署了确定的文件之后,应该执行一份文件的保留。
第三,与一位设计师进行交流,了解提交审核的一次设计方案。
一次方案提交审核,并对二次方案进行了再确认,接着进行二次方案的设计工作。
对于紧急的生产进度,可实行同步作业。
第四,在提交第二次图纸前,积极与设计院和业主联系,了解车站的具体需求,包括直流、交流线路数,供电路数,关键开关数量,同一种类开关柜是否可共用,不同种类开关柜的钥匙是否可共用等,这些信息都需有文字说明。
第1章绪论1.1概述称套配电装置又叫成套配电柜,也就是以开关为主的成套电器,故也俗称开关柜。
它用于配电系统,作为接受与分配电能之用。
据电压高低,它可分为高压开关柜与低压开关柜两大类:按装置地点的不同,又分户外式与户内式( 10 kv 及以下的多采用户内式);按开关电器就是否可以移动,又可分为固定式与手车式。
可见,高压开关柜就是成套配电设备的一种,就是有由制造厂成套供应的高压配电装置。
在这种封闭或半封闭的柜中可装设各种高压电器、测量仪表、保护电器与控制开关等等。
通常一个柜就构成一个单元回路(必要时也可用两个柜),所以一个柜也就成为一个间隔。
使用时可按设计的主回路方案,选用适合各种电路间隔的开关柜,然后使可组成整个高压配电装置。
也具有占地少、安装使用及维护检修方便,适于大量生产等特点,故应用很广泛。
高压开关柜种类较多,分类方法亦有多种:按断路器的安装方式可分为固定式与手车式两大类;按柜体结构型式可分为开启式与封闭式两种;还可分为一般环境与特殊环境用(后者包括矿用、化工用、高海拔地区用等)。
按电力行业标准DL/T404-1997的定义,高压开关柜(high-voltage switchgear panel)就是指由高压断路器、负荷开关、接触器、高压熔断器、隔离开关、接地开关、互感器及站用电变压器,以及控制、测量、保护、调节装置,内部连接件、辅件、外壳与支持件等组成的成套配电装置。
这种装置的内部空间以空气或复合绝缘材料作为介质,用作接受与分配电网的三相电能。
1.2高压开关柜的类型高压开关柜就是3-35kV交流金属封闭开关设备的俗称,它就是3-35kV电网中最大面积就是配电设备。
由于国内外市场需求的日益多样化与国外代以先进技术的不断引进,20世纪80年来。
国内电器制造行业推出了几十种型号的高压开关柜产品,打破了高压开关柜过去几十年一直以少油断路器为主开关的GG-1与有限的几种手车式开关柜的落后局面。
新推出的高压开关柜所配的主开关元件有真空断路器、SF6断路器、负荷开关、接触器与熔断器。
高压开关柜按柜内主元件的安装方式分为固定式与移开式,简称固定柜与手车柜。
移开式高压开关柜又根据手车的位置分落地式与中置式两种。
按安全等级分为铠装式、间隔式与箱式。
按柜内主绝缘介质分为空气绝缘柜与气体绝缘柜(充气柜)。
按柜内主元件的种类分为以下几类:(1)通用型高压开关柜:以空气为主绝缘介质,主开关元件为断路器的成套金属封闭开关设备,既断路器柜。
(2) F—C回路开关柜:主开关元件采用高压限流熔断器(fuse)—高压接触器(contactor)组合电器。
(3)环网柜:主开关元件采用负荷开关或负荷开关—熔断器组合电器,它们常用于环网供电系统,故通常称为环网柜。
1、3 高压开关柜的主要技术参数高压开关柜的主要技术参数有以下几项:(1)额定电压:(2)额定绝缘水平:用1min工频耐受电压(有效值)与雷电冲击耐受电压(峰值)表示;(3)额定频率;(4)额定电流:指柜内母线的最大工作电流;(5) 额定短路就是耐受电流:指柜内母线及主回路的热稳定度,应同时指出“额定短路持续时间”,通常为4s;(6)额定峰值耐受电流:指柜内母线及回路就是动稳定度;纺护等级。
(7)纺护等级。
表1、1为高压开关柜的主要技术参数表1、1 高压开关柜的主要技术参数1、4 高压开关柜的技术发展从20世纪60年代末期起,我国高压开关行业开始自行设计高压开关柜。
自80年代以来,随着引进消化国外产品,技术水平迅速提高,品种也迅速增加到几十种,有间隔式,铠装式、箱式等开关柜:有可移动式,也有固定式柜:在移开式产品中,不仅有落地式,也开发了中置式与双层柜。
同时还开发出在特殊场所,如铁路、矿山使用的开关柜。
目前我国高压开关柜的技术水平可归纳为:(1).产品容量增大。
最大容量为:12kV柜:额定电流4000A,额定短路开断电流63kV。
40、5kV柜:额定电流2500A,额定短路开断电流31、5kV。
(2)、产品品种齐全,能满足严酷条件、高寒、地震地区与矿山、铁道部门使用。
(3)、可靠性提高,符合标准的金属封闭式开关柜逐步替代了老产品。
(4)、应用新工艺装备的技术1)数控钣金加工技术。
已有数百家企业拥有数控加工设备“三大条件”,在此基础上的柔性加工系统,提高了壳体尺寸精度与生产效率。
2)较先进的涂装工艺设备。
喷漆生产与喷粉工艺线使产品防护能力与外观都有较大的提高。
3)专用的母线加工设备。
1、5 本课题的主要任务为了更好的说明高压开关柜我选择了三种类型的高压开关柜(进线柜、电能计量柜、F-C柜)的电气进行设计。
(1)三种开关柜均采用中置移开式结构;(2)进线柜采用真空断路器,其操作机构为电磁操作机构或弹簧操动机构;其测量保护采用传统的继电器/仪表或微机型测量/保护装置;(3) F-C柜为高压电动机控制柜,要求具有相应的控制功能;(4)变电站电压为10kV,进线计算电流为200A,高压母线三相短路电流周期分量为10kV。
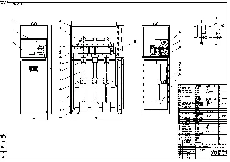
第2章高压开关柜一次接线设计2、1开关柜的总体结构(以中置式真空断路器柜为例)以JYN2-10(Z)高压开关柜为例,其结构可分为柜体与手车两部分。
手车为断路器手车,主要的电器元件有断路器(装在小车上)、接地开关与隔离静触头座等。
柜内由接地的钢板分隔成四个独立的隔室:母线室、手车室、继电器仪表室、电缆室。
柜体的后下侧成为电缆室,安装有电缆与电流互感器。
其上为主母线室。
隔室之间有隔板隔开,以保障检修时的安全。
柜体前面就是继电器室与手车室。
依续工作。
靠推进机构就是装有断路器等的小车在导轨上前后运动。
向内推入能使断路器上下两个隔离动触头插入隔离静触头座完成电路联结;反之,当断路器开断电路后,将小车向外拉出,隔离动、静触头分开,形成明显的隔离间隙,相当于隔离开关的作用。
利用专用的运载车,可将装有断路器的小车方便地推入或拉出柜体。
当断路器出现严重故障或损坏时,同样可使用专用的运载车将断路器小车拉出柜体进行检修。
也可换上备用的断路器小车,推入柜体内继2.1.1基本要求(1)高压开关柜设计,应使得高压开关柜正常运行、监视与维护工作能安全方便的进行,维护工作包括:元件就是检修、试验、故障的寻找与处理;(2)对于额定参数与结构相同而需要替代的元件应能互换;(3)对于可移开部件的高压开关柜,如果可移开部件的额定参数与结构相同则应能互换;(4)应按当地使用条件校验;(5)应力求技术先进与经济合理;(6)选择的新产品均应具有可靠的试验数据,并经正试鉴定合格。
2.1.2主回路方案的确定高压开关柜的主电路也叫一次线路,它就是根据电力系统与供配电系统的实际需要而确定的,每种型号的高压开关柜的主电路方案少则几十种,多则上百种,通常包括以下类别:所用变柜、计量柜、隔离柜、接地手车柜、电容器柜、高压电机控制柜(F-C柜)等。
开关柜主电路方案组合要考虑的问题包括:(1)根据一次系统图及其一次回路工作电流大小以及控制、保护、测量等要求,选择相应主电路方案的开关柜;(2)进出线类型以及开关柜之间的选择。
以JYN2-10(Z)高压开关柜为例进行设计。
2、2真空断路器柜真空断路器柜就是装有真空断路器为主的开关柜,它配有专用的、带有自由脱扣的操动机构,除了作为普通配电保护断路器外,尤其适用于频繁操作及故障较多的场合。
由于真空断路器具有可连续多次操作、开段性能好、灭弧迅速、运行维护简单、灭弧室不需要检修、无爆炸危险及噪声低等良好的技术性能,并且有具有一定的经济性,近年来,在新设计的35kV及以下变电所中得到了广泛的应用。
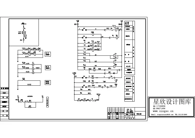
2.2.1 一次接线10kV系统属于中性点不接地式,亦称中性点非有效接地系统。
应采用中性点经消弧线圈接地的运行方式,两相互感器测量A、C相,断路器柜的一次接线,如下图2、1所示。
图2-1真空短路器柜的一次接线图2.2.2 一次电器元件的选择各功能单元主回路的导体(包括主母线与分支母线)与串联的元件(不包括有熔断器连到电压互感器或变压器的短线连接),应考虑该回路各元件参数的配合与该功能单元应能通过所规定的额定电流与动、热稳定电流。
在考虑母线的允许温度或温升时,应根据触头、连接与与绝缘材料接触的金属部分的温度或温升的情况而定。
高压开关柜内一次电器元件类型较多,同一类型的电器元件可选的品种也多,且型式多样,在设计开关柜主电路方案与选用一次电器元件时,要综合考虑开关柜的性能要求、结构与安装布置、操作维护、通用性与电器元件的技术条件、性能参数、外形与安装尺寸等因素。
一.断路器的种类与选择高压开关柜可选用就是断路器包括少油断路器、真空断路器、SF6断路器等。
少油断路器曾经一段时期在高压开关柜中占统治地位,但随着用户对开关电器无油化要求的日益增强,少油断路器的地位让给真空断路器。
少油断路器目前在高压开关柜中用的越来越少。
当然,为降低开关柜的造价,一些用户还就是选用少油断路柜。
SF6断路器价格昂贵,除非有特殊要求的用户(如发电厂),目前一般用户选SF6断路器柜还就是比较少。
所以,目前在高压开关柜中,真空断路器就是主流。
按设计要求选择了真空断路器(ZN-10C/630或ZN12-10I),由于真空断路器具有可连续多次操作、开段性能好、灭弧迅速、运行维护简单、灭弧室不需要检修、无爆炸危险及噪声低等良好的技术性能,并且有具有一定的经济性,近年来,在新设计的35kV及以下变电所中得到了广泛的应用。
但真空断路器不足之处的分段感性负载时产生截流过电压,为限制过电压,对经常分断高压电动机或电弧炉变压器等感性负载的真空断路器必须配置专用的R-C吸收装置或金属氧化物避雷器。
真空断路器及电磁操动机构的参数如下表2、1表2、1 10kV真空断路器技术数据二.电流互感器的种类与选择对于测量与保护用的电流互感器,型号较多,可选LA、LZZB、AS12系列等。
在此选择了LZZB系列的电流互感器。
有关参数如下表2、2。
表2、2 电流互感器的技术数据2.2.3 母线的选择与布置一.母线的类型开关柜中的母线分为两部分:一就是连通各柜的水平母线,称为主母线,起集散电流的作用;二就是各柜内部垂直方向上联接各电器元件的母线,称为分支母线。
母线材料有铝与铜两种。
常用的母线结构形式与矩形、槽形与管形等。
单片矩形导体具有散肤效应系数小、散热条件好、安装简单、连接方便等优点,一般适用于工作电流≤2000A的回路中。
多片矩形导体集肤效应系数比单片导体的大,所以附加损耗增大。
因此载流量不就是随导体片数增加而成倍增加的,尤其就是每相超过三片以上时,导体的集肤效应系数显著增大。
在工程实用中多片矩形导体适用于工作电流≤4000A的回路。
当工作电流为4000A以上时,导体则应选用有利于交流电流分布比较均匀,散热条件好,机械强度较高,安装也不方便。