特斯拉最新电气原理图
- 格式:pdf
- 大小:685.32 KB
- 文档页数:10
特斯拉线圈原理及制作过程讲解注意:此为个人经验,仅供参考,如果不正确请见谅,而且下面参数是以我做的特斯拉线圈参数进行分析。
我开始制作小型特斯拉线圈时,在网上查了很多资料,却发现网上的资料大多数都是讲解制作特斯拉线圈步骤,讲解原理的不多。
在此,我整理了一下网上资料,得出一些原理,为想制作这类特斯拉线圈的同学提供一点参考。
我弄明白的小型火花隙特斯拉线圈有两类,所以重点就说一下这两种啊。
特斯拉线圈工作的原理:当初级线圈LC震荡电路的频率等于次级线圈LC振荡频率时,两线圈发生谐振,这时次级回路的放电端会得到很高的电压,电压击穿空气而放电。
一、第一种火花隙特斯拉线圈:在这个电路中,电源电压为市电220V,经过一个升压变压器将电压升到2100V以上(下面按照2100V计算),然后直接加到主电容C1上(后面解释),主电容在每半个周期内充一次电,最高电压能充到2970V(知道why?),由于打火器及电容并联,所以电容上的电压也加到打火器两端,只要打火器的间隔比较适中,当电压充到最大之时,正好击穿打火器间的空气(理想状况),使打火器开始工作,形成初级LC振荡。
经过初级线圈及次级线圈的耦合(耦合系数一般为0.3,仿真时用到),次级线圈也开始震荡。
如果L1C1=L2C2,测得次级放电球的电压在40000V以上。
大家可能对这个电路有很多问题,下面我来给大家解释一下:问题一:电容有一个特性是——隔直通交,变压器输出2100V的交流电,直接加到电容上,这是不是错的,和我们学的不一样,会不会烧掉电路?回答:没有问题,在此电路中,主电容是很小的,大约0.0235uF,而我们在此用的变压器功率一般700~1000W,输出电压2100V,频率50HZ,这样你可以算一下,经过电容的电流是非常小的,不可能烧掉电路。
打火器正常工作,之后是不是相当于一直短路了,初级回路是怎么振荡的?回答:打火器工作以后,不是一直短路。
如下图:(调节火花隙间隙,假设充电电容电压到2700v,打火器击穿工作)第一段时间,火花隙两端电压不到2700V,电容充电;第二段时间,火花隙两端电压达到2700V以上,火花隙击穿空气开始工作,这段时间内,火花隙相当于短路,初级回路形成LC振荡,其振荡波形在原电压波形基础上叠加。
栏目编辑:高中伟 ******************新能源汽车文/广东 蔡元兵一、感应电动机1.感应电动机介绍感应电动机又称“异步电动机”,即转子置于旋转磁场中,在旋转磁场的作用下,获得一个转动力矩,使转子转动的装置。
转子是可转动的导体,通常呈鼠笼状。
定子是电动机中不转动的部分,主要任务是产生一个旋转磁场。
旋转磁场并不是用机械方法来实现,而是以交流电通于数对电磁铁中,使其磁极性质循环改变,故相当于一个旋转的磁场。
这种电动机并不像直流电动机有电刷或集电环,依据所用交流电的种类有单相电动机和三相电动机之分。
2.感应电动机的工作原理当电动机三相定子绕组(空间相位相差120°)通入三相对称交流电后,将产生一个旋转磁场(一对磁极),当电流经过一个周期变化时,旋转磁场也沿着相同方向旋转一个周期(在空间旋转的角度为360°)。
该旋转磁场在定子和转子之间的气隙中以与电流变化同步的转速n旋转并切割转子绕组,从而在转子绕组中产生感应电流(转子绕组为闭合环路),根据电磁感应定律,载流的转子导体(因感应获得的电流)在定子旋转磁场作用下将产生电磁力,从而在电机转轴上形成电磁转矩,驱动电动机旋转,并且电机旋转方向与旋转磁场方向相同。
这就是性能优异的三相异步电动机的工作原理。
图1所示为感应电动机定子电流与二极旋转磁场一个周期(360°)内的对应关系示意图。
当电动机轴上带有机械负载时,便向外输出机械能。
由于三相异步电动机的转子与定子旋转磁场以相同的方向,不同的转速旋转,存在转速差,因此叫做异步电动机,又称为感应电动机。
汽车中的交流异步电机的转子常采用空心式结构,这种结构简单牢固,适于高速旋转,免维护,且成本较低。
三相异步电机矢量控制调速技术比较成熟,使得异步电机驱动系统具有明显的优势,因此被较早应用于电动大客车的驱动系统,技术相对成熟。
3.感应电动机的特点感应电动机的优点是价格低、体积不大,重量较轻;能较好地适应各种环境;外表坚固,结构紧凑;运行可靠,维护维修方便。
552024/03·汽车维修与保养栏目编辑:高中伟******************(接上期)6.IGBT的概念与结构特性IGBT(Insulated Gate Bipolar Transistor),绝缘栅双极型晶体管是由GTR(双极型三极管)和MOS(绝缘栅型场效应管)组成的复合全控型电压驱动式功率半导体器件,兼有MOSFET(金属-氧化物半导体场效应晶体管)的高输入阻抗和GTR的低导通压降两方面优点。
GTR饱和压降低,载流密度大,但驱动电流较大;MOSFET驱动功率很小,开关速度快,但导通压降大,载流密度小。
IGBT综合了以上两种器件的优点,驱动功率小而饱和压降低。
IGBT由 N+、P、N、N+、P+5层半导体组成,有SiO 2绝缘层,如图24所示,图中黑色箭头代表正电子,白色箭头代表负电子,仅有电子流动的为单极管,有正负电子流动的为双极性管。
图24所示也是一个N沟道增强型绝缘栅双极晶体管结构,N+区称为源区,附于其上的电极称为源极(即发射极E)。
N基极称为漏区。
器件的控制区为栅区,附于其上的电极称为栅极(即门极G)。
沟道在紧靠栅区边界形成。
在C、E两极之间的P型区(包括P+和P-区,沟道在该区域形成),称为亚沟道区(Subchannel region)。
而在漏区另一侧的P+区称为漏注入区(Drain injector),它是IGBT特有的功能区,与漏区和亚沟道区一起形成PNP双极晶体管,起发射极的作用,向漏极注入空穴,进行导电调制,以降低器件的通态电压。
附于漏注入区上的电极称为漏极(即集电极C)。
IGBT开关的作用是通过加正向栅极电压形成沟道,给PNP(原来为NPN)晶体管提供基极电流,使IGBT导通。
反之,加反向门极电压消除沟道,切断基极电流,使IGBT关断。
IGBT的驱动方法和MOSFET基本相同,只需控制输入极N-沟道MOSFET,所以具有高输入阻抗特性。
当MOSFET的沟道形成后,从P+基极注入到N-层的空穴(少子),对N-层进行电导调制,减小N-层的电阻,使IGBT在高电压时也具有低的通态电压。
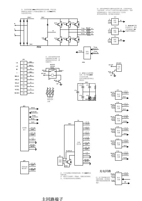
NDC
PDC C35
C75
C70
C74
C76
R24/25/
W/T3
V/T2U/T1T/L3
S/L2R/L1--B +2+1JP1
注:直流母线输入PDC1网络连接到充电回路。
经过充电回路和动力线端子上外接电抗器接口后,回到PDC 网络,为逆变部分供电。
注:采样电阻+线性光耦的电流采样方案,在体积和成本方面有优势。
并且由于小功率应用中输出电流较小,采样电阻损耗也较小。
故在小功率应用中广泛应用。
利用电流采样值,进行输出过流保护。
注:开关电源输出多路隔离电源,作为IGBT 驱动电路电源。
注:通过开关电源中一组输出,检测直流母线电压。
可以提供更好的电压绝缘度。
IU/IV/IW 为输JP2注:C76
为无电感薄膜电容,用于吸收IGBT 开关时的尖峰。
其余为电解直流母线支撑电容。
注:充电电阻和充电继电器构成充电回路。
完成母线电容充电后,继电器闭合。
注:由于制动输出没有电流传感器。
故在驱动
电路中增加短路检查和保护。
压敏电阻吸收电网尖峰
PIM。
512024/02·汽车维修与保养栏目编辑:高中伟******************图16 特斯拉Model S变频器母排正面结构图18 特斯拉Model S变频器母排背面结构图19 IGBT模块图20 特斯拉Model S变频器的IGBT图17 特斯拉Model S变频器其中一相的IGBT功率驱动板结构文/广东 蔡元兵特斯拉Model S驱动系统的结构(接上期)2.特斯拉Model S变频器母排正面结构母排整体嵌件注塑在金属框架紧固为一个总成,扣合进三相功率总成内,集成度相当高。
母线排每侧输出端都连接了3块小的PCB板,是每相的IGBT功率驱动电路板,每块板完全相同,一共3块。
每块PCB 小板上都有两根黄色的铜排线,是将输入的高压电连接到每相的功率板,也就是每相功率板的直流高压输入侧。
图16所示为特斯拉Model S变频器母排正面结构。
3.特斯拉Model S变频率IGBT功率驱动板特斯拉Model S的IGBT功率驱动板一共有3个,每个铝制功率板上配1个IGBT 功率驱动板。
IGBT功率驱动电路的作用主要是将单片机脉冲输出的功率进行放大,以达到驱动IGBT功率器件的目的。
在保证IGBT器件可靠、稳定、安全工作的前提下,IGBT功率驱动电路起到至关重要的作用。
也就是把控制器输出的电平信号,变换成能够可靠驱动IGBT的信号,中间还会有一些隔离、保护的作用。
图17所示为特斯拉Model S变频器其中一相的IGBT功率驱动板结构。
IGBT对驱动电路的要求如下。
(1)提供适当的正反向电压,使IGBT 能可靠地开通和关断。
当正偏压增大时IGBT通态压降和开通损耗均下降,但若UGE过大,则负载短路时其IC随UGE 增大而增大,对其安全不利,使用中选UGEV=15V为好。
负偏电压可防止由于关断时浪涌电流过大而使IGBT误导通,一般选UGE=-5V为宜。
(2)IGBT的开关时间应综合考虑。
快速开通和关断有利于提高工作频率,减小开关损耗。
特斯拉电球的原理全文共四篇示例,供读者参考第一篇示例:特斯拉电球是一种非常具有观赏性和神秘感的科学装置,它产生的闪电放电现象总是能够吸引人们的目光。
特斯拉电球的原理与一般的电场理论有所不同,它利用的是变压器和高频振荡电路产生的高压交变电场来使气体放电,从而形成漂亮的放电效果。
特斯拉电球是在19世纪由克罗地亚物理学家尼古拉·特斯拉发明的。
特斯拉电球内部有一个绝缘的玻璃球,球内装有稀薄的气体,球的底部连接着一个变压器。
当变压器工作时,会产生高频振荡电流,这个高频振荡电流会产生一个变化的电场,使得球内的气体被激发产生放电现象。
特斯拉电球的放电效果取决于气体的种类和压强,当气体放电时,会产生夸张的放电效果。
特斯拉电球的放电现象可以分为几种:1. Corona放电:当特斯拉电球电压较低时,气体在电场的作用下会发生部分放电,形成的光线是弯曲的、紫红色的,这种放电称为corona放电。
这是由电场强度不足引起的。
2. 棒球放电:当特斯拉电球电压继续升高时,气体放电的范围扩大,逐渐形成清晰的光线,整个球都会被电晕包围,这种放电称为ball discharge,也就是我们经常看到的“棒球”放电效果。
特斯拉电球的原理是利用高压电场使气体发生放电,这种放电现象产生的光线色彩迷人,给人以视觉上的享受。
特斯拉电球不仅在科学教育中有重要的应用,还常常被用于装饰和表演等方面。
虽然特斯拉电球实际上并没有太多的实用价值,但其独特的视觉效果却吸引了无数人的眼球。
特斯拉电球的原理是利用高压交变电场使气体发生放电,形成漂亮的放电现象。
特斯拉电球不仅可以用于科学教育和实验室展示,还可以成为家居装饰品和表演道具,其独特的观赏价值使其成为深受人们喜爱的科学玩具。
希望我们能够更加深入地了解特斯拉电球的原理和应用,以更好地欣赏和利用这一科学奇迹。
【字数不足,我再为您继续增加内容,请稍等片刻。
】第二篇示例:特斯拉电球是一种基于射频电磁场现象的科学仪器,由塞尔维亚裔科学家尼古拉·特斯拉发明。
特斯拉线圈套件制作说明安装图文指导首先对照元件清单清点和识别各个元件首先安装4个色环电阻,电路板上每个电阻的安装位置都印刷有阻值,对号入座。
氖气灯泡用于演示无线供电,特斯拉线圈制作成功后,用氖泡靠近次级线圈则会发光。
不用安装到PCB上。
安装独石电容,引脚不分正负极安装电解电容需要注意区分正负极将电解电容器安装到PCB 上,(注:此电解电容用于将声音信号耦合到特斯拉线圈电路中,如果不装,电路也能正常工作,只是不能从线圈中回放出声音)安装电解电容的位置,注意正极一边有个“+”,为空心半圆,负极一边为实心半圆安装两个发光二极管发光二极管长脚为正极,短脚为负极,发光二极管在电路板上的正负极如下图所示负极正极安装三极管和场效应管先用两颗M3*6的螺丝将两个晶体管分别固定在两个散热器上。
在电路板对应安装位置上印有对应晶体管的字符,由于两个晶体管有相同的外形,安装时先确定好,务必对号入座。
安装DC5.5*2.1电源座和3.5mm插孔的音频插座给电路板的四个角装上铜柱安装次级线圈次级线圈是由0.12mm线径的细铜丝在一段2CM直径的PVC管上密绕而成,线圈一端引线长,一端短,短的引线末端有镀锡处理。
如果发现未镀锡,就要先用小刀把末端的绝缘漆刮除,注意动作要轻,避免弄断铜丝。
把次级线圈短引线的一边向下放在电路板对应位置上观察一下,使短引线末端刚好位于电路板字符L2处,以方便焊接。
在随后固定这个次级线圈的时候,做到心中有数,避免固定住以后才发现引线不够长,接不到L2位置上。
用热熔胶,502之类的粘合剂把初级线圈固定在电路板上,再把次级线圈短的一端焊接在L2处。
手工绕制初级线圈把这个粗铜线整平,然后把一端焊接在L1位置处粗铜线围绕次级线圈逆时针绕3圈然后折向下,折下来的一端减去多余的部分,焊接到下图中所示的位置接好以后,调整初级线圈各个部位与次级线圈保持5mm以上的间隔。
间隔太小的话,初级和次级会之间会打火,严重时烧坏次级线圈。
从ModelS到Model3,特斯拉电子电气架构的演变*本文转载自42 号社群成员、汽车电子工程师冷酷的冬瓜(微博:冷酷的冬瓜),转载请注明出处。
突然想把这张图贴上来,致敬下马斯克。
2008 年 2 月,第一辆 Roadster 下线;2012 年 6 月,第一辆Model S(参数|图片) 下线;2015 年 9 月,第一辆Model X(参数|图片) 下线;2017 年 9 月,第一辆Model 3(参数|图片) 下线;2017 年 11 月,第一辆 Semi Truck 和Roadster(参数|图片) 2.0 发布。
在短短...emmm 不对,在长达15 年的时间里,特斯拉以及马斯克创造了一个又一个的神迹,其一举一动、一颦一笑牵动着世界范围内电动车行业业内人士的神经,而社会各界人士更是从性能到实测、从专利到功能、从电池包到热管理、从 Autopilot 到线束...可以说扒得体无完肤,鞭辟入里...但是对隐藏在幕后的载体,电子电气架构,大家可能知之甚少。
架构服务于功能,摸清楚特斯拉架构演变的脉络,或许能一窥其电子设计的精髓。
今天,我们就从特斯拉 Model S、Model X 以及 Model 3 - 分别代表特斯拉量产的三代大众化车型- 分析下特斯拉的电子电气架构的演变。
一、Model S我们先看下基本面(股社区文章看多了...):1、大量使用 CAN/LIN 用作主干网、支干网,速率包括 125kbps、500kbps;Ethernet 也有使用,但仅用于 IC 与 Center Display 之间以及诊断接口;2、较为明显的域划分,包括动力域 PowerTrain、底盘域 Chassis、车身域 Body 以及一路低速容错 Body FT;3、72 个控制器 ECU 节点,其中 44 个 CAN 节点、28 个 LIN 节点与中大型豪华电动轿车相符。
...如果只有上面这些是不是有点平平无奇?我们继续。
追频固态特斯拉线圈详细制作图解在这里我要做的是追频ISSTC,即追频特斯拉线圈(带灭弧),同时教大家怎么做追频SSTC的特点就是不需要调谐,只需要简单的外部调试甚至不需要调试即可直接上电运行第一步我们要了解特斯拉线圈的工作原理然而,这完全没必要,因为大部分做特斯拉的人都没有去完全理解过它的工作原理,因为它们都把心思投入到制作过程中了,楼主我也是,所以,在这里我就不将它的工作原理了,直接进入制作过程!制作流程↓驱动↓↓灭弧↓↓功率桥↓↓整流桥↓↓TC次级↓↓TC初级↓↓调试↓↓完成!第一步:驱动!驱动很重要,如果驱动性能不好,那么可能无法起震,或者乱震,或者烧功率桥(炸管的节奏)电路图登场!!!接着是一大堆的问题,别着急咱慢慢解释,首先是这个玩意↓这个玩意长得有点像运放(运算放大器),但是又不像,只有一个输入端,输出端还带一个圆圈,到底是玩意呢?这个玩意叫反向器那么它的功能是什么呢?它的功能是:输入一个高电压(高电平),输出端就输出一个低电压(低电平),输入一个低电平,就输出一个高电平,即输出信号与输入信号相反。
然后就是这个了↓名字我就直说了,这个叫“与”门有两个输入端和一个输出端功能:当两个输入端全部输入高电平时,输出端输出高电平,输入端其中一个或两个都输入低电平时,输出端输出低电平然后就是这里了↓这个我也不知道是啥,无视就行了接着就是这个部分↓1K电阻的作用是限流,C13(104)电容的作用是隔离,两个二极管的作用是钳位,因为反馈电压一般都达到了上百V,如果没有这两个二极管,那么你的驱动迟早要废!就讲这么多吧,然后就是大显身手的时候了驱动布线,推荐用5*7的洞洞板制作↓每一个接口都已经标注清楚,看不懂请自行想办法有的人想要布线软件,请在回复中告诉我你的邮箱地址即可,由于我的初三狗所以只能在星期六~星期天发接下来就是制作过程了↓大家在焊的时候最好用IC座,然而我没有,所以我用的圆孔排针焊完就是这个样子啦↓焊灭弧输入的接口↓焊完后的样子↓背面↓↓↓没有对比就没有伤害IC登场,大家买的时候建议多买几个,当然,最好不要买到假货。
2019年7月23日消息,据国外媒体报道,电动汽车制造商特斯拉日前提交了一份有关新型布线结构的专利申请,这种模块化布线结构更适用于汽车的自动化组装。
当特斯拉为扩大Model 3产能而引入更多的自动化流程时,机器人在布设长而柔软的汽车线束(汽车电路的连接主体)时遇到了麻烦,特斯拉不得不人工布设汽车线束。
在这个全新的布线体系结构中,子系统将被打包并定义在特定实施例中的一个或多个程序组装。
除了减少所需的布线数量和长度外,创建这些子安装并将它们连接到线路体系结构主干的做法还将能减少总装的组装时间,这对于提高汽车制造过程中的生产率是非常理想的。
这种方法可能还使得汽车的电子元件和系统能够更容易进行升级,因为它不会影响到整个汽车线束。
特斯拉的新型布线系统仍在专利申请过程中,但这种设计很简洁,如果实现的话,可能会帮助特斯拉节省大量的劳动力成本。
据悉,特斯拉已经缩短了其汽车的电线束长度,从Model S的3千米减少到了Model 3的1.5千米,而其最终目标是等到量产Model Y的时候将该长度减少到100米。
据悉,这项技术有望在特斯拉未来推出的2020款紧凑型SUV--Model Y中首次得到应用。
标题:线束系统结构摘要:一种用于汽车的新型线束、电源分配以及通信系统,包括多个设备,其中所属设备连接到具有外护套的主干节段,第一导线设置在外覆层内,第二导线设置在外覆层内,一对内部护套设置在外覆层内并至少包裹住一根导线,作为第一导线和第二导线之间的绝缘层,并且外覆层内也设置了屏蔽部件。
背景技术领域本发明设计一种新型线束、电源和通信分配系统。
更具体地,本发明设计汽车的线束系统。
背景技术传统的汽车线束系统是零散的解决方案。
通常,由不同的线束将每个不同的电气部件连接到一个中央电池或者电源。
每个部件都分配电源,但是通信和信号则需要多个线束。
在一辆车内,线束的总长可达数英里。
这些线束通常由多个不刚性的圆形导体组成。
圆形导体不适合传输电流,并且传统线束不够刚性导致需要采用人力将其组装到汽车上,进而拖慢生产节奏。
A ABBCCD D12345TITLE:LM393 ne555 灭弧板电路REV:1.0Audio-IN J1123LM393U1.132184V+V-L7809U2GNDIN12OUT 3220uC1220uC2DCIN P1129V0.1uC310kR10.47uC44.7n C51MR29V9V22kR34.7kR4 4.7kR5100kR60.1u C61kR7S1NE555PU4G N D1TRIG 2OUT3R S T 4CV 5THRS 6DIS 7V C C 85559V0.1uC710nC850kR8 2.2kR90.47uC9NE555P U5G N D1TRIG2OUT 3R S T 4CV 5THRS 6DIS 7V C C85559V0.1uC1025kR101kR1133nC1110nC121kR121kR131N5819D110nC13330R14LED1MH VoutP212LM393U3.256710kR1510kR169V灭弧频率脉宽调节灭弧信号指示灯直流电源12-24v 音频输入方波音乐模式切换灭弧信号输出接驱动灭弧输入A ABBCCDD12345TITLE:REV:1.0feedbackP3121kR170.1uC1474HC14U6.174HC14U7.21N4148D21N4148D3+5V+5V 74HC14U8.374LS08U9.174LS08U10.1+5V+5VP4120.1uC150.1uC16TC4420U11VDD 1INPUT 2NC 3GND4GND5OUTPUT/26OUTPUT7VDD8TC4420U12VDD 1INPUT 2NC 3GND4GND5OUTPUT/26OUTPUT7VDD80.1u C170.1u C1810uC1910uC201n5819D41n5819D51n5819D61n5819D7+12v+12vVout P5120.1u C217812TU13GNDVI12VO 37805TU14GNDVI12VO 3470uC22470uC23470uC240.1uC25DCin P612VCCVCCVCCLED21kR18+5V+12V接桥式逆变接反馈磁环电源输入灭弧信号输入12345654612315-24V电源指示灯栅极驱动变压器A ABBCCD D12345TITLE:tesla 桥式逆变 半桥电路REV:1.0GDTU15123P712接驱动电路Vout25N120Q113225N120Q21321u275VC261u275VC27L1桥臂电容桥臂电容初级线圈1N4746AD81N4746AD91N4746A D101N4746AD111N5819D121N5819D135u400VC28吸收尖峰电容5.1R195.1R20VCC功率电源这里不要和驱动灭弧电路共地!切记!看清GDT 的方向,接反一个会炸两管!A ABBCCD DTITLE:tesla 桥式逆变 全桥电路REV:1.0GDTU1623in14P812接驱动电路VoutNo.1P912No.2P1012No.3P1112No.4P121225n120Q313225n120Q413225n120Q513225n120Q61321N5819D141N5819D151N5819D161N5819D171N4746A D181N4746AD191N4746A D201N4746AD211N4746A D221N4746AD231N4746A D241N4746AD255.1R21 5.1R225.1R23 5.1R24L2初级线圈No.1P1312No.2P1421No.3P1521No.4P1612VCC5u400vC295u400vC30吸收尖峰电容功率电源这里不要和驱动灭弧电路共地!切记!看清GDT 的同名端接法!左臂接反一个会炸左臂两管,右臂接反一个会炸右臂两管!A ABBCCD DTITLE:功率电源 整流滤波电路REV:1.025A1kVD264123整流桥250V5AFU1220v 50hzP17L N220u450vC310.1u630vC32200k 2WR26VCC功率电源泄压电阻这里和桥式逆变电路共地,切记不得与驱动灭弧电路共地!。
苏联特斯拉线圈原理特斯拉线圈原理可以追溯到19世纪,它早在瓦西里特斯拉创造出他发明的大电流交流发电机时就被发现。
特斯拉线圈原理和其他耗散电势法则一样,可被认为是一种物理学规律。
但在苏联,特斯拉线圈原理的应用得到了特别的重视,特别是在20世纪初,在其被广泛应用到各个领域。
特斯拉线圈原理被用来定义一种可以产生大量电流的发电机,它的结构比较简单,由一个转子和多个线圈组成,而线圈被放置在可转动的磁轴上,磁轴的转动会使线圈构成一个电磁场,而在线圈上通过原位电阻后,线圈充满了电流。
在苏联,由于特斯拉线圈原理的优势,很多电子设备都采用这种原理来设计,包括电机,电磁交换开关,变压器,除颤器,控制器等。
比如,为了提高电机的输出功率,苏联特斯拉线圈电机被广泛应用于矿山的各种机器上,用来提高矿山的效率。
在电子交换开关方面,苏联特斯拉线圈也被广泛应用于矿山,改变矿山电力控制系统的供应。
此外,苏联特斯拉线圈也被用于变压器,在除颤器中,特斯拉线圈电路可以实现快速而精确的控制。
另外,由于苏联特斯拉线圈电路的优势,它也被广泛应用于控制器方面。
苏联特斯拉线圈控制器可用于机械系统的自动控制等,可以实现零故障的操作。
最后,特斯拉线圈原理在苏联的重要地位也不容忽视。
它的应用对苏联工业的发展有巨大的贡献,改善了苏联的生产能力,改善了工业机器的性能,有效提高了苏联电气工程师的工作效率。
特斯拉线圈原理不仅在苏联当时很受学界喜爱,而且在今天依然被广泛应用于各种领域,可以说是一项不朽的技术发明。
总的来说,特斯拉线圈原理在苏联得到了特别的重视,它的应用对苏联工业的发展有很大的作用,从而改变了苏联生产和工业机器的运行方式,使它们受益匪浅。
特斯拉线圈原理也成为当时苏联最重要的发明之一,它的应用至今仍被广泛使用。
特斯拉电磁线圈加热冷却液特斯拉电磁线圈加热冷却液是特斯拉汽车中的一个重要部件。
本文将从原理、作用和使用方面,对特斯拉电磁线圈加热冷却液进行详细介绍。
一、特斯拉电磁线圈的原理特斯拉电磁线圈是一种能够产生高频高压电场的装置,由特斯拉发明并命名。
其原理是在一个闭合的电路中,通过交流电源供电,使得主线圈产生一个强烈的磁场,再通过耦合线圈产生一个高频高压的电场。
特斯拉电磁线圈可以实现无线能量传输、电磁波传导等多种应用。
二、特斯拉电磁线圈加热冷却液的作用特斯拉电磁线圈加热冷却液在特斯拉汽车中的作用主要有两个方面。
首先,它可以对电磁线圈进行冷却,防止过热。
由于电磁线圈在工作过程中会产生大量的热量,如果不及时散热,会导致线圈温度过高,从而影响线圈的性能和寿命。
因此,加热冷却液可以通过传导和对流的方式,将热量带走,保持线圈的适宜工作温度。
特斯拉电磁线圈加热冷却液还可以对电磁线圈进行加热。
在一些特殊的工作环境下,线圈需要达到一定的工作温度才能正常运行,而加热冷却液可以提供热量,使线圈快速达到所需温度。
这对于特斯拉汽车的启动和正常运行非常重要。
三、特斯拉电磁线圈加热冷却液的使用特斯拉汽车采用的电磁线圈加热冷却液通常是一种专用的冷却液,具有良好的导热性能和稳定的化学性质,以确保电磁线圈的正常工作。
使用时,将冷却液注入特定的冷却系统中,通过循环泵将冷却液送至电磁线圈附近,完成对电磁线圈的冷却和加热。
在使用过程中,需要定期检查冷却液的质量和量,确保冷却系统正常运行。
如果发现冷却液的质量下降或者量不足,应及时更换或补充冷却液,以免影响电磁线圈的工作效果。
四、特斯拉电磁线圈加热冷却液的优势与传统的散热方式相比,特斯拉电磁线圈加热冷却液具有以下几个优势:1. 效率更高:通过冷却液的传导和对流,可以更快速地带走线圈产生的热量,提高散热效率。
2. 温度控制更精准:加热冷却液可以根据需要提供热量,使线圈的工作温度能够精确控制,保证线圈在最佳工作状态。