巴歇尔槽全套资料
- 格式:docx
- 大小:54.15 KB
- 文档页数:4
巴歇尔槽(Parshall flume)的原型是文丘里水槽,后者的实验是VM.Cone于1915年在美国的科罗拉多洲开始进行的。
1922年F;.L.Parshall对此进行了根本性的变革,制作了现在通用的巴歇尔槽。
以后又多次重复了水力学实验,制成了尺寸为1英寸到50英寸的各种量水槽。
巴歇尔槽名字是1929年美国土木学会命名的。
此后,英国、瑞士、意大利、印度、阿根廷等许多国家也提出了各种类型的文丘利水槽的设计方案并进行了实验,但巴歇尔槽仍是文丘利水槽中最普及的水槽。
总得来说,巴歇尔槽形状复杂,比堰的价格高,而且为了提高精度要求量水槽的各部分尺寸准确,这是其缺点。
但也有这样一些其它测量装置无法比拟的优点:水位损失小(约为堰的四分之一)、水中即使有固态物质也几乎不沉淀、接近流速的影响小、对下流侧的水位影响比较小等,所以被用来测量农业用水、工业用水等其它液体的流量。
巴歇尔量水槽由上游收缩段、短直喉道和下游扩散段三部分组成。
收缩段的槽底向下游倾斜,扩散段槽底的倾斜方向与喉道槽底相反,其结构如图下图所示。
其它常数项需要实验确定,一般情况如下,F=60cm, G=90cm; K=8cm, N--23cm,x=5cm, y=8cm; E 根据渠道深度而定,高出上游水位0.1-0.2cm,一般可采用1.00米。
量水槽上下游护底长都为槽底高H 的函数:上游护底L,二4H;下游护底L,=(6^-8) H;同时,由于量水槽内流速较大,喉道中水面的波动也很大,直接在槽中测定水位有困难。
因此,在槽壁设置后观测井,安量测水尺。
井底比槽槛要低20-25cm,测井与量水槽可用平置的金属管或混凝土管连接,管子的中心线应高出槽底3cm,上游水尺位于喉道上游距喉道首端((2/3)A处,下游水尺位于喉道末端以上5cm的槽壁处,详细尺寸见图1一1。
上下游水尺零点与槽底高要齐平,观测井要无漏水现象,井中经常理泥沙,井上加盖,避免杂物入内。
用途与明渠流量计(WL-1A 型超声波明渠流量计)配合使用,把明渠内流量的大小转成液位的高低。
注意事项
∙巴歇尔槽的中心线要与渠道的中心线重合,使水流进入巴歇尔槽不出现偏流。
∙巴歇尔槽通水后,水的流态要自由流。
巴歇尔槽的淹没度要小于规定的临界淹没度。
∙巴歇尔槽的上游应有大于5倍渠道宽的平直段,使水流能平稳进入巴歇尔槽。
即没有左右偏流,也没有渠道坡降形成的冲力。
(参见下图)
∙巴歇尔槽安装在渠道上要牢固。
与渠道侧壁、渠底连结要紧密,不能漏水。
使水流全部流经巴歇尔槽的计量部位。
巴歇尔槽的计量部位是槽内喉道段。
巴歇尔槽构造图
最大流量为1440吨每小时采用的巴歇尔槽尺寸(单位:米)类型序号为7
最大流量为1440吨每小时采用的巴歇尔槽参数表。
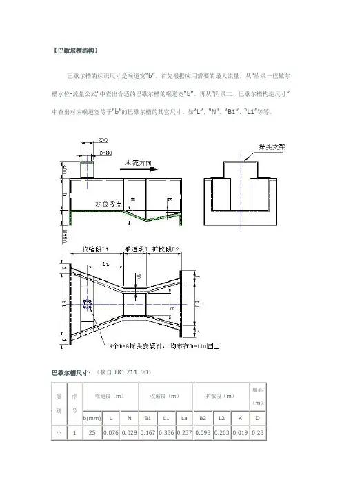
【巴歇尔槽结构】巴歇尔槽的标识尺寸是喉道宽“b”。
首先根据应用需要的最大流量,从“附录一巴歇尔槽水位-流量公式”中查出合适的巴歇尔槽的喉道宽“b”。
再从“附录二、巴歇尔槽构造尺寸”中查出对应喉道宽等于“b”的巴歇尔槽的其它尺寸。
如“L”、“N”、“B1”、“L1”等等。
巴歇尔槽尺寸:(摘自JJG 711-90)【巴歇尔槽安装注意事项】第一步:巴歇尔槽放入明渠中,保持槽子水平,巴歇尔槽的中心线要与渠道的中心线重合,使水流进入巴歇尔槽不出现偏流。
巴歇尔槽通水后,水的流态要自由流。
巴歇尔槽的淹没度要小于规定的临界淹没度。
要求:(1)保持巴歇尔槽下游排放畅通。
不积水,如不畅通。
保持水位差大于或等于30MM。
(2)巴歇尔槽前直段有1-3米的距离缓冲区,缓冲渠应和槽子底部水平,有便于超声波的测量。
(3)必须保证巴歇尔槽下游有水位差,排放畅通,不会积水。
第二步:在巴歇尔槽左右用混凝土浇灌或用砖累起,保证槽子不变形,大槽子内部要有支撑,保证槽子不凸出。
保证水流全部从巴歇尔槽经过。
巴歇尔槽安装一定是要水平。
如果槽子距渠道距离过大,用砖垒砌使槽子和砖距离始终保持50-100毫米,然后用水泥砂浆填满。
要求:巴歇尔槽安装在渠道上要牢固。
与渠道侧壁、渠底连结要紧密,不能漏水。
使水流全部流经巴歇尔槽的计量部位,巴歇尔槽的计量部位是槽内喉道段。
【巴歇尔槽常见安装方式】【巴歇尔槽常用流量范围】┌───────────────────────┐│规格(喉道mm)│流量范围(T/h)├───────────────────────┤│小型1号(b=25)│0.32~20├───────────────────────┤│小型2号(b=51)│0.65~50├───────────────────────┤│小型3号(b=76)│2.77~115├───────────────────────┤│小型4号(b=152)│5.40~400├───────────────────────┤│小型5号(b=228│9.00~903├───────────────────────┤│标准6号(b=250│10.08~900├───────────────────────┤│标准7号(b=300)│12.6~1440├───────────────────────┤│标准8号(b=450)│16.2~2268├───────────────────────┤│标准9号(b=600)│45.0~3060├───────────────────────┤│标准10号(b=750)│90.0~3960├───────────────────────┤│标准11号(b=900)│108.0~4500├───────────────────────┤│标准12号(b=1000)│108.0~5400├───────────────────────┤│标准13号(b=1200)│126.0~7200├───────────────────────┤│标准14号(b=150)│162.0~9000├───────────────────────┤│标准15号(b=1800)│288.0~10800。
标准化废水排放口—巴歇尔堰槽安装使用说明书本文参照了中华人民共和国城镇建设行业标准《城市排水流量堰槽测量标准—巴歇尔堰槽》CJ/T3008.3—1993中的有关条目。
一、概述非满管状态流动的水路称作明渠(Open Channel),测量明渠中水流流量的仪表称作明渠流量计。
明渠流通剖面除圆形外,还有U形、梯形、矩形等多种形状。
水路按其形态分类,各形态如下图所示。
ISO通常称之为满水管为封闭管道,流动是在水泵压力或高位槽位能作用下的强迫流动。
明渠流则是靠水路本身坡度形成的自由表面流动。
满水管路自由表面的明渠自由表面的暗渠满水管路水路部分满水管路敞口明渠(习惯简称明渠)明渠(或非满管)渠道暗明渠(习惯简称暗渠)明渠流量计应用场所有城市供水引水渠、火电厂冷却水引水和排水渠、污水治理流入和排放渠、工矿企业废水排放以及水利工程和农业灌溉用渠道。
本文重点讨论巴歇尔堰槽的安装和流量测量的方法和仪表,不包括较大型的水利工程和农业灌溉用的流量测量方法。
二、量水堰槽的测流量原理明渠内的流量越大,液位越高;流量越小,液位越低(参见图1)。
对于一般的渠道,液位与流量没有确定的对应关系。
因为同样的水深,流量的大小,还与渠道的横截面积、坡度、粗糙度有关。
在渠道内安装量水堰槽(参见图2),由于堰的缺口或槽的缩口比渠道的横截面积小,因此,渠道上游水位与流量的对应关系主要取决于堰槽的几何尺寸。
同样的量水堰槽放在不同的渠道上,相同的液位对应图1 量水堰槽把流量转化成液位流量较小时,水位较低流量较大时,水位较高水位水位直角三角堰直角三角堰水流方向水流方向相同的流量。
量水堰槽把流量转成了液位。
通过测量流经量水堰槽内水流的液位,可以根据相应量水堰槽的水位-流量关系,求出流量。
常用的量水堰槽种类如图2。
图2 常用的量水堰种类量水堰槽的水位—流量关系可以从国家计量检定规程《明渠堰槽流量计》JJG711—1990中查到。
本文摘抄了一些常用的类型附后。
巴歇尔槽尺寸表
巴歇尔槽是一种用于测量液体流量的设备。
它的流量范围从0.3吨/小时到3960吨/小时,使用的渠道宽度和高度分别为200毫米x250毫米到1500毫米x1200毫米,水位范围从15
毫米到750毫米,临界淹没度为0.5%到0.6%。
常用型号规格明渠流量计安装尺寸如上表所示。
巴歇尔槽是一种流量计,用于测量液体的流量。
它的流量范围很广,从0.3吨/小时到3960吨/小时不等。
使用的渠道宽度和高度也有很大的变化范围,从200毫米x250毫米到1500毫米x1200毫米不等。
水位范围从15毫米到750毫米不等,临界淹没度为0.5%到0.6%。
常用型号规格明渠流量计安装尺寸如上表所示。
值得注意的是,巴歇尔槽的安装尺寸和流量参数都有所不同。
安装尺寸涵盖了喉道段、收缩段和扩散段,而流量参数包括C和n值。
这些参数的具体数值如上表所示。
需要注意的是,巴歇尔槽的安装尺寸和流量参数会因型号规格而异。
安装尺寸包括喉道段、收缩段和扩散段,而流量参数包括C和n值。
具体数值可以参考上表。
玻璃钢巴歇尔污水计量槽说明书简介:巴歇尔槽(Parshall flume)的原型是文丘里水槽,后者的实验是VM.Cone于1915年在美国的科罗拉多洲开始进行的。
1922年F;.L.Parshall对此进行了根本性的变革,制作了现在通用的巴歇尔槽。
以后又多次重复了水力学实验,制成了尺寸为1英寸到50英寸的各种量水槽。
巴歇尔槽名字是1929年美国土木学会命名的。
此后,英国、瑞士、意大利、印度、阿根廷等许多国家也提出了各种类型的文丘利水槽的设计方案并进行了实验,但巴歇尔槽仍是文丘利水槽中最普及的水槽。
总得来说,巴歇尔槽形状复杂,比堰的价格高,而且为了提高精度要求量水槽的各部分尺寸准确。
水位损失小(约为堰的四分之一)、水中即使有固态物质也几乎不沉淀、接近流速的影响小、对下流侧的水位影响比较小,所以被用来测量农业用水、工业用水等其它液体的流量。
巴歇尔量水槽由上游收缩段、短直喉道和下游扩散段三部分组成。
收缩段的槽底向下游倾斜,扩散段槽底的倾斜方向与喉道槽底相反。
(见下图)其它常数项需要实验确定,一般情况如下,F=60cm, G=90cm; K=8cm, N--23cm,x=5cm, y=8cm; E根据渠道深度而定,高出上游水位0.1-0.2cm,一般可采用1.00米。
量水槽上下游护底长都为槽底高H的函数:上游护底L,二4H;下游护底L,=(6^-8) H;同时,由于量水槽内流速较大,喉道中水面的波动也很大,直接在槽中测定水位有困难。
因此,在槽壁设置后观测井,安量测水尺。
井底比槽槛要低20-25cm,测井与量水槽可用平置的金属管或混凝土管连接,管子的中心线应高出槽底3cm,上游水尺位于喉道上游距喉道首端((2/3)A处,下游水尺位于喉道末端以上5cm的槽壁处。
上下游水尺零点与槽底高要齐平,观测井要无漏水现象,井中经常理泥沙,井上加盖,避免杂物入内。
用途:与明渠流量计(WL-1A 型超声波明渠流量计)配合使用,(详见下表)把明渠内流量的大小转成液位的高低。
巴谢尔槽
巴歇尔槽(又称巴氏槽),是用于明渠流量测量的辅助设备。
在液体流动过程中,非满管状态流动的水路称作明渠(open channel).
一、材质类型:玻璃钢、PVC、不锈钢、铝合金。
流量越大,相应增加壁厚。
二、选型注意事项:
1. 巴歇尔槽的尺寸与渠道安装有关,请用户根据现场情况而定。
2. 巴歇尔槽的中心线要与渠道的中心线重合,使水流进入巴歇尔槽不出现偏流。
3. 巴歇尔槽通水后,水的流态要自由流。
巴歇尔槽的淹没度要小于规定的临界淹没度。
4. 巴歇尔槽的上游应有大于5倍渠道宽的平直段,使水流能平稳进入巴歇尔槽。
即没有左右偏流,也没有渠道坡降形成的冲力。
(参见下图)
5. 巴歇尔槽安装在渠道上要牢固。
与渠道侧壁、渠底连结要紧密,不能漏水。
使水流全部流经巴歇尔槽的计量部位。
巴歇尔槽的计量部位是槽内喉道段。
说明:以下图形仅供参考,具体尺寸建议按照表格中的3号标准型制作。
三、常用型号规格明渠流量计安装尺寸:(单位:mm)
巴歇尔槽制作完成成品尺寸:。
3 、巴歇尔槽
巴歇尔槽的构造如图二十一。
巴歇尔槽的标识尺寸是喉道宽“b”。
首先根据应用需要的最大流量,从“附录二、巴歇尔槽水位-流量公式”中查出合适的巴歇尔槽的喉道宽“b”。
再从“附录一、巴歇尔槽构造尺寸”中查出对应喉道宽等于“b”的巴歇尔槽的其它尺寸。
如“L”、“N”、“B1”、“L1”等等。
把这些尺寸填入图二十一中右侧的栏目中。
按图二十一加工成形,安装在渠道上,如图二十所示。
巴歇尔槽水位-流量关系一般是形如:Q=C*ha n 的公式。
根据喉道宽“b”,从“附录二、巴歇尔槽水位-流量公式”中找出对应的公式。
逐点代如水位值,求出对应的流量。
本仪表内已预先存储了喉道宽从0.076m~1.8m槽的水位-流量表。
表六、七、八分别是喉道宽为0.025m,0.051m,2.1m巴歇尔槽的水位流量对应关系。
图二十一、巴歇尔槽构造
(注:专业文档是经验性极强的领域,无法思考和涵盖全面,素材和资料部分来自网络,供参考。
可复制、编制,期待你的好评与关注)。
7.5巴歇尔流量槽概要7.5.1流量测量原理1)测量原理:用明渠测流量时,在明渠上安装量水堰槽。
量水堰槽把明渠内流量的大小转成液位的高低。
利用超声波传感器测量量水堰槽内的水位,再按相应量水堰槽的水位-流量关系反算出流量。
7.5.2巴歇尔槽现场安装平面示意图(图1)XH9005-B型COD在线监测仪7.5.3 巴歇尔槽构造(图2)7.5.4巴歇尔槽构造尺寸(表一)5)巴歇尔槽水位-流量公式(表2)1) 根据本企业最大瞬时排水量查“表2”,确定需要选择的流量槽“序号”。
2) 根据所查到的槽号,按槽的最大宽度---“表1”中的“B1”规范排放的渠宽,既排水渠的宽度不能小于“B1”。
3) 量水堰槽的中心线要与渠道的中心线重合,使水流进入量水堰槽不出现偏流。
4) 量水堰槽通水后,水的流态要自由流。
临界淹没度可在表2查得。
既要求流量槽后的排水要通畅。
5) 量水堰槽的上游应有大于5倍渠道宽的平直段,使水流能平稳进入量水堰槽。
即没有左右偏流,也没有渠道坡降形成的冲力。
6) 量水堰槽安装在渠道上要牢固。
与渠道侧壁、渠底连结要紧密,不能漏水。
使水流全部流经量水堰槽的计量部位,量水槽的计量部位是槽内喉道段。
7) 巴歇尔槽水位观测点在距喉道2/3收缩段长位置(图2的La)。
8) 巴歇尔槽安装时应保证图2中水位零点处于水平状态。
9) 浮子采样器可根据现场情况安装的流量槽的上游或下游。
7.7需用户提前准备的物品1)必备:蒸馏水50L,分析纯硫酸3000ml,5000ml大烧杯,玻璃棒500mm。
2)应备:刻度吸管10ml、5ml各一只,吸耳球一只,1000ml、250ml量筒各一只,、洗瓶各一个,容量瓶100ml需4个,防酸手套一付。
8.现场操作8.1准备工作1)整机检查开机前对照产品装箱单检查各部件及配件是否完好、齐全。
如损坏或短缺,应及时修复或更换。
注:不允许带电拆装设备。
2)检查各管路连接是否正确,连接是否可靠,管材是否与要求相符(注意区分氟胶管和硅胶管两种材质)。
附1:巴歇尔槽(马歇尔槽Parshall)
材质
●8mm厚的玻璃纤维不饱和聚酯复合材料(玻璃钢)。
流量越大,相应增加壁厚。
注意事项
●内部尺寸准确。
内表面光滑、平整。
●j的尺寸与渠道安装有关,请用户根据现场情况而定。
●巴歇尔槽的中心线要与渠道的中心线重合,使水流进入巴歇尔槽不出现偏流。
●巴歇尔槽通水后,水的流态要自由流。
巴歇尔槽的淹没度要小于规定的临界淹没度。
●巴歇尔槽的上游应有大于5倍渠道宽的平直段,使水流能平稳进入巴歇尔槽。
即没有
左右偏流,也没有渠道坡降形成的冲力。
(参见下图)
●巴歇尔槽安装在渠道上要牢固。
与渠道侧壁、渠底连结要紧密,不能漏水。
使水流全部
流经巴歇尔槽的计量部位。
巴歇尔槽的计量部位是槽内喉道段。
常用型号规格明渠流量计安装尺寸(单位:mm)。
巴歇尔槽(Parshall flume)的原型是文丘里水槽,后者的实验是VM.Cone于1915年在美国的科罗拉多洲开始进行的。
1922年F;.L.Parshall对此进行了根本性的变革,制作了现在通用的巴歇尔槽。
以后又多次重复了水力学实验,制成了尺寸为1英寸到50英寸的各种量水槽。
巴歇尔槽名字是1929年美国土木学会命名的。
此后,英国、瑞士、意大利、印度、阿根廷等许多国家也提出了各种类型的文丘利水槽的设计方案并进行了实验,但巴歇尔槽仍是文丘利水槽中最普及的水槽。
总得来说,巴歇尔槽形状复杂,比堰的价格高,而且为了提高精度要求量水槽的各部分尺寸准确,这是其缺点。
但也有这样一些其它测量装置无法比拟的优点:水位损失小(约为堰的四分之一)、水中即使有固态物质也几乎不沉淀、接近流速的影响小、对下流侧的水位影响比较小等,所以被用来测量农业用水、工业用水等其它液体的流量。
巴歇尔量水槽由上游收缩段、短直喉道和下游扩散段三部分组成。
收缩段的槽底向下游倾斜,扩散段槽底的倾斜方向与喉道槽底相反,其结构如图下图所示。
其它常数项需要实验确定,一般情况如下,F=60cm, G=90cm; K=8cm, N--23cm,x=5cm, y=8cm; E 根据渠道深度而定,高出上游水位0.1-0.2cm,一般可采用1.00米。
量水槽上下游护底长都为槽底高H 的函数:上游护底L,二4H;下游护底L,=(6^-8) H;同时,由于量水槽内流速较大,喉道中水面的波动也很大,直接在槽中测定水位有困难。
因此,在槽壁设置后观测井,安量测水尺。
井底比槽槛要低20-25cm,测井与量水槽可用平置的金属管或混凝土管连接,管子的中心线应高出槽底3cm,上游水尺位于喉道上游距喉道首端((2/3)A处,下游水尺位于喉道末端以上5cm的槽壁处,详细尺寸见图1一1。
上下游水尺零点与槽底高要齐平,观测井要无漏水现象,井中经常理泥沙,井上加盖,避免杂物入内。
用途与明渠流量计(WL-1A 型超声波明渠流量计)配合使用,把明渠内流量的大小转成液位的高低。
巴歇尔槽安装注意事项1.j的尺寸与渠道安装无关,请用户根据现场情况而定。
2.巴歇尔槽的中心线要与渠道的中心线重合,使水流进入巴歇尔槽不出现偏流。
3. 巴歇尔槽通水后,水的流态要自由流。
巴歇尔槽的淹没度要小于规定的临界淹没度。
4.巴歇尔槽的上游应有大于5-10倍渠道宽的平直段,使水流能平稳进入巴歇尔槽。
即没有左右偏流,也没有渠道坡降形成的冲力。
5. 不能漏水,使水流全部流经巴歇尔槽的计量部位。
巴歇尔槽的计量部位是槽内喉道段。
6. 渠宽400mm,渠深800mm,渠长6000mm,7. 2号巴歇尔槽高460mm,长774mm.宽214mm. 日最大流量1140.48m3。
日最小流量15.55m3。
小时最大流量47.52m3,最小流量0.648m38. 巴歇尔槽安装位置应在渠长的三分之一处(顺着水流的方向,前端为二,后端为一)9. 所有尺寸应为净空尺寸。
附表二2号巴歇尔槽水位2、安装探头超声波明渠流量计的探头可以直接安装在量水堰槽水位观测点的上方。
探头发声的一面要对准水面。
可以用水平尺放在探头上盖上,通过校上盖水平使探头对准水面。
巴歇尔槽水位观测点在距喉道2/3收缩段长位置(如图);晚风轻拂让人醉。
我放下书,望着眼前这个世界,有山,有水,有花,有鸟,有泉……它太诱人了,在这个位置上,只能感到由衷欣喜。
有人说得好,“快乐是一天,悲伤是一天,为什么不快乐地过一天呢?”我不再迷惘,我要在自己位置上演绎人生最美故事,让苦难中总有快乐相随当梅花的幽香随冬天的到来而传出,那么半空中漂泊的雪花,也会依偎这香气,随之飘舞。
当万物凋零,充斥于世界的凄凉席卷而来时,在一个角落里梅花却悄然盛放了,它似乎在告诉世人,它只是缺少一个盛放的机会。
春意回卷大地,生命再次降临与世界的每一角落,清凉的春雨中,流淌着无限的诗意,昨夜的桃花,已经在枝头上开出粉红的花蕊了吧,四角的花瓣,透出淡淡的清香,让人流连忘返,因为这样,所以没有人会去在意路边的小草,也在春天中娇嫩欲滴。
巴歇尔槽全套资料
巴歇尔槽(又称巴氏槽),是用于明渠流量测量的辅助设备。
在液体流动过程中,非满管状态流动的水路称作明渠(open channel),明渠流量计的应用场所有城市供水引水渠、火电厂冷却水引水和排水渠、污水治理流入和排放渠、工矿企业废水排放以及水利工程和农业灌溉用渠道。
一、材质类型:玻璃钢、PVC、不锈钢、铝合金。
流量越大,相应增加壁厚。
二、选型注意事项:
1. 巴歇尔槽的尺寸与渠道安装有关,请用户根据现场情况而定。
2.巴歇尔槽的中心线要与渠道的中心线重合,使水流进入巴歇尔槽不出现偏流。
3. 巴歇尔槽通水后,水的流态要自由流。
巴歇尔槽的淹没度要小于规定的临界淹没度。
4.巴歇尔槽的上游应有大于5倍渠道宽的平直段,使水流能平稳进入巴歇尔槽。
即没有左右偏流,也没有渠道坡降形成的冲力。
(参见下图)
5.巴歇尔槽安装在渠道上要牢固。
与渠道侧壁、渠底连结要紧密,不能漏水。
使水流全部流经巴歇尔槽的计量部位。
巴歇尔槽的计量部位是槽内喉道段。
说明:以下图形仅供参考,具体尺寸按照表格中的1-15号标准型制作。
有特殊要求请订货时说明。
三、常用型号规格明渠流量计安装尺寸:(单位:mm)
巴歇尔槽制作完成成品尺寸:。
巴歇尔槽的介绍及尺寸介绍:巴歇尔槽(Parshall flume)的原型是文丘里水槽,后者的实验是VM.Cone于1915年在美国的科罗拉多洲开始进行的。
1922年F;.L.Parshall对此进行了根本性的变革,制作了现在通用的巴歇尔槽。
以后又多次重复了水力学实验,制成了尺寸为1英寸到50英寸的各种量水槽。
巴歇尔槽名字是1929年美国土木学会命名的。
此后,英国、瑞士、意大利、印度、阿根廷等许多国家也提出了各种类型的文丘利水槽的设计方案并进行了实验,但巴歇尔槽仍是文丘利水槽中最普及的水槽。
总得来说,巴歇尔槽形状复杂,比堰的价格高,而且为了提高精度要求量水槽的各部分尺寸准确,这是其缺点。
但也有这样一些其它测量装置无法比拟的优点:水位损失小(约为堰的四分之一)、水中即使有固态物质也几乎不沉淀、接近流速的影响小、对下流侧的水位影响比较小等,所以被用来测量农业用水、工业用水等其它液体的流量。
巴歇尔量水槽由上游收缩段、短直喉道和下游扩散段三部分组成。
收缩段的槽底向下游倾斜,扩散段槽底的倾斜方向与喉道槽底相反,其结构如图所示。
其它常数项需要实验确定,一般情况如下,F=60cm, G=90cm; K=8cm, N--23cm,x=5cm, y=8cm; E根据渠道深度而定,高出上游水位0.1-0.2cm,一般可采用1.00米。
量水槽上下游护底长都为槽底高H 的函数:上游护底L,二4H;下游护底L,=(6^-8) H;同时,由于量水槽内流速较大,喉道中水面的波动也很大,直接在槽中测定水位有困难。
因此,在槽壁设置后观测井,安量测水尺。
井底比槽槛要低20-25cm,测井与量水槽可用平置的金属管或混凝土管连接,管子的中心线应高出槽底3cm,上游水尺位于喉道上游距喉道首端((2/3)A处,下游水尺位于喉道末端以上5cm的槽壁处,详细尺寸见图1一1。
上下游水尺零点与槽底高要齐平,观测井要无漏水现象,井中经常理泥沙,井上加盖,避免杂物入内。
巴歇尔槽安装注意事项
的尺寸与渠道安装无关,请用户根据现场情况而定;
2.巴歇尔槽的中心线要与渠道的中心线重合,使水流进入巴歇尔槽不出现偏流;
3. 巴歇尔槽通水后,水的流态要自由流;巴歇尔槽的淹没度要小于规定的临界淹没度;
4.巴歇尔槽的上游应有大于5-10倍渠道宽的平直段,使水流能平稳进入巴歇尔槽;即没有左右偏流,也没有渠道坡降形成的冲力;
5. 不能漏水,使水流全部流经巴歇尔槽的计量部位;巴歇尔槽的计量部位是槽内喉道段;
6. 渠宽400mm,渠深800mm,渠长6000mm,
7. 2号巴歇尔槽高460mm,长774mm.宽214mm. 日最大流量;日最小流量;小时最大流量,最小流量
8. 巴歇尔槽安装位置应在渠长的三分之一处顺着水流的方向,前端为二,后端为一
9. 所有尺寸应为净空尺寸;
常用2号巴歇尔槽规格明渠流量计安装尺寸单位:mm
附表二 2号巴歇尔槽水位
2、安装探头
超声波明渠流量计的探头可以直接安装在量水堰槽水位观测点的上方;探头发声的一面要对准水面;可以用水平尺放在探头上盖上,通过校上盖水平使探头对准水面;巴歇尔槽水位观测点在距喉道2/3收缩段长位置如图;。
巴歇尔槽全套资料 Corporation standardization office #QS8QHH-HHGX8Q8-GNHHJ8
巴歇尔槽全套资料
巴歇尔槽(又称巴氏槽),是用于明渠流量测量的辅助设备。
在液体流动过程中,非满管状态流动的水路称作明渠(open channel),明渠流量计的应用场所有城市供水引水渠、火电厂冷却水引水和排水渠、污水治理流入和排放渠、工矿企业废水排放以及水利工程和农业灌溉用渠道。
一、材质类型:玻璃钢、PVC、不锈钢、铝合金。
流量越大,相应增加壁厚。
二、选型注意事项:
1. 巴歇尔槽的尺寸与渠道安装有关,请用户根据现场情况而定。
2.巴歇尔槽的中心线要与渠道的中心线重合,使水流进入巴歇尔槽不出现偏流。
3. 巴歇尔槽通水后,水的流态要自由流。
巴歇尔槽的淹没度要小于规定的临界淹没度。
4.巴歇尔槽的上游应有大于5倍渠道宽的平直段,使水流能平稳进入巴歇尔槽。
即没有左右偏流,也没有渠道坡降形成的冲力。
(参见下图)
5.巴歇尔槽安装在渠道上要牢固。
与渠道侧壁、渠底连结要紧密,不能漏水。
使水流全部流经巴歇尔槽的计量部位。
巴歇尔槽的计量部位是槽内喉道段。
说明:以下图形仅供参考,具体尺寸按照表格中的1-15号标准型制作。
有特殊要求请订货时说明。
三、常用型号规格明渠流量计安装尺寸:(单位:mm)
巴歇尔槽制作完成成品尺寸:
9标准型6003020*1300*12003060
10标准型7503095*1480*12003960
11标准型9003170*1660*12004500
12标准型10003200*1780*12505400
13标准型12003320*2020*12507200
14标准型15003470*2380*12509000
15标准型18003620*2740*125010800
四、安装步骤:
大多数情况下,超声波明渠流量计的计量槽选用巴歇尔槽,他的安装分为以下几个步骤:
1、明渠土建安装准备
在安装前首先察看地形,进水口必须高于出水口,确保有水位差,出水畅通,这是成功安装巴歇尔槽明渠流量计的关键。
巴歇尔计量槽模拟图
2、将巴歇尔槽放入明渠中
要求:(1)巴歇尔槽下游排放口有水位差,泄水畅通,如水位差不够,应垫高巴歇尔槽,增加水位差。
(2)保证巴歇槽前直段有1~3米的距离。
3、加固巴歇尔槽
在巴歇尔槽左右用混凝土浇灌,保证水流全部从巴歇尔槽中经过。
加固时要使巴歇尔槽左右保持水平,防止倾斜,防止变形。
加固时要使巴谢尔槽水流中心线必须和堰槽中心线重合。
4、安装中的几种情况。