福特蒙迪欧5速变速器维修手册
- 格式:pdf
- 大小:11.22 MB
- 文档页数:97
2001款福特蒙迪欧车身一般维修手册 200125 Mondeo维修手册目录发动机-18L 和20L 303-01A第1篇一般信息发动机冷却 303-03燃油供应和控制 18L 或20L 发动机303-04A服务信息附件驱动 303-05一般信息100-00起动系统 303-06识别代码100-01发动机点火-18L 与20L 303-07A顶升100-02发动机排放控制 18L 或20L 303-08A 噪音振动与不平顺100-04 进气分配与滤清 303-12燃油蒸发排放 303-13第2篇底盘发动机电子控制 303-14自动变速器悬架自动变速器 307-01悬架系统-一般信息204-00变速器的冷却 307-02前悬架204-01自动变速器外部控制 307-05后悬架204-02排气系统车轮与轮胎204-04排气系统-一般信息 309-00传动系燃料系统前驱动半轴205-04燃油系统-一般信息 310-00制动系统燃油箱与燃油管 310-01制动系统-一般信息206-00加速控制-除柴油发动机型汽车310-02A前盘式制动器206-03巡航控制 310-03后盘式制动器206-04驻车制动206-05液压制动系统206-06 第4篇电气助力制动206-07空调控制系统防抱死控制 206-09A恒温控制系统-一般信息412-00防抱死控制-牵引力控制 206-09B空气分配与过滤412-01转向系统暖气与通风412-02A转向系统-一般信息211-00辅助加热412-02B动力转向211-02空调412-03转向杆系211-03控制组件412-04转向柱211-04仪表与警告系统仪表板照明413-00第3篇动力系仪表413-01发动机发动机系统-一般信息303-0002200125 Mondeo Taiwan喇叭413-06 第5篇车身与涂装时钟413-07信息与讯息中心413-08 车身仪表与警告装置413-09 车身系统-一般信息 501-00倒车辅助413-13 前端车身板件 501-02蓄电池与充电系统车身关闭装置 501-03充电系统-一般信息414-00 内饰板与饰件 501-05蓄电池414-01 后视镜 501-09发电机与稳压器414-02 座椅 501-10娱乐系统玻璃窗框与机构 501-11娱乐系统-一般信息415-00 仪表板与控制台 501-12音响单元415-01 把手锁闩锁与进入系统 501-14天线415-02 刮水器与洗涤器 501-16扬声器415-03 天窗开启板 501-17视听系统415-07 保险杠 501-19照明乘员安全防护-主动式外部灯光417-01 乘员501-20A内部灯光417-02 乘员安全防护-被动式501-20B日间行驶灯417-04 车身维修-一般信息501-25A电气配置车身维修-防锈501-25B模块通讯网络418-00 车身维修-塑料件维修501-25C模块设置418-01 车身维修-漏水501-25D电子设备组车身维修-风噪音501-25E主动防盗系统 419-01A 车身维修–免喷漆凹陷去除501-25F被动防盗系统 419-01B 车身维修 - 噪音振动与不平顺 501-25G导航系统-VNR 419-07A 车架与固定座导航系统-RNS4 419-07B 整体式车身副车架与固定座 502-00多功能电子控制模块419-10 全车架与车身固定座502-02未获福特汽车公司Ford Werke AG 的事先书面许本手册中的图文说明和规范在手册获准印刷时均为可不得以任何电子或机械的形式包括照相录有效资料为配合持续发展与改进的方针福特汽车影或以任何检索系统翻译或复制本手册的任何部公司保留在不事先通知的情况下随时终止车型生产分修改规范或设计的权利尽管已尽可能使本书臻于完整与正确但对于本手册中的任何错误或疏漏本公司不承担任何责任02200125 Mondeo Taiwan501-00-1 车身系统-一般信息501-00-1501-00 车身系统-一般信息适用车型2001 Mondeo主题页码说明与操作车身 501-00-2诊断与测试车身系统 501-00-3检查与确认 501-00-3故障现象表 501-00-3定点测试 501-00-3组件测试 501-00-3规格规格 501-00-4润滑剂油液密封剂与粘接剂 501-00-4022001 2001 Mondeo501-00-2 车身系统-一般信息501-00-2说明与操作车身022001 2001 Mondeo501-00-3 车身系统-一般信息501-00-3诊断与测试车身系统检查与确认1 操作系统以确认顾客的问题故障现象表2 直观检查是否有明显的机械或电气损坏的迹象3 如果所观察或提出的问题的明显原因已经发定点测现则在进行下一个步骤之前必须先将该原因修正如果可能的话4 若问题无法清楚地看到则需再确认故障现象与组件测试参阅WDSFDS 2000022001 2001 Mondeo501-00-4 车身系统-一般信息501-00-4规格润滑剂油液密封剂与粘接剂项目022001 2001 Mondeo501-02-1 前端车身板件501-02-1501-02 前端车身板件适用车型2001 Mondeo主题页码说明与操作前端车身板件 501-02-2拆卸与安装通风罩格栅 43 230 0 501-02-3翼子板 44 252 0 501-02-4一般程序发动机盖调整 41 213 0 501-02-8规格规格 501-02-13拧紧力矩 501-02-13022001 2001 Mondeo501-02-2 前端车身板件501-02-2说明与操作前端车身板件022001 2001 Mondeo501-02-3 前端车身板件501-02-3拆卸与安装通风罩格栅 43 230 0022001 2001 Mondeo501-02-4 前端车身板件501-02-4拆卸与安装翼子板 44 252 0拆卸注意此程序用于拆卸右侧翼子板拆卸左侧翼子板的程序与此相同1 拆卸前保险杠有关信息请参阅501-192 拆卸前照灯有关信息请参阅417-013 将汽车顶起并支撑有关信息请参阅100-024 拆卸车轮与轮胎有关信息请参阅204-045 拆卸翼子板上的挡泥板1 拆卸固定螺丝2 拆卸固定螺栓两支3 拆卸塑料固定座三个固定座6 拆卸翼子板前方固定螺栓022001 2001 Mondeo501-02-5 前端车身板件501-02-5拆卸与安装续7 拆卸方向灯电气连接器8 拆卸翼子板前隔音板022001 2001 Mondeo501-02-6 前端车身板件501-02-6拆卸与安装续9 从 a 柱上拆卸翼子板内部固定螺栓与翼子板底部固定螺栓10 从 a 柱上拆卸翼子板顶部固定螺栓11 拆卸翼子板边缘螺栓与翼子板护栅开口处的螺栓022001 2001 Mondeo501-02-7 前端车身板件501-02-7拆卸与安装续安装1 依照拆卸的相反程序安装022001 2001 Mondeo501-02-8 前端车身板件501-02-8一般程序发动机盖调整 41 213 01 拆卸水箱护栅2 注意发动机盖必须在闩锁拆卸之后调整3 注意确认风窗玻璃刮水器是在停止位置拆卸刮水器臂提起护盖4 拆卸通风罩饰板022001 2001 Mondeo501-02-9 前端车身板件501-02-9一般程序续5 拆卸共鸣箱与隔音板释放固定夹6 从车身固定座铰部位拆下塑料固定夹放松车身固定座铰链固定螺栓利用车身孔的中央位置锁紧两侧的固定螺栓7 放松发动机盖铰固定螺栓到以手指就可转动为止8 校正发动机盖调整发动机盖使翼子板的边缘与发动机盖的边缘对齐检查左侧与右侧翼子板的间隙线是否平均必要时校正翼子板左侧与右侧的间隙宽度必须一致打开发动机盖与压下发动机盖时左侧与右侧的间隙必须相同022001 2001 Mondeo501-02-10 前端车身板件501-02-10一般程序续9 锁紧两边的发动机盖铰链固定螺栓10 心使用适合的木块支撑发动机盖以避免发动机盖关闭拆卸发动机盖撑杆释放发动机盖撑杆两边的固定夹11 放松车身固定座铰链固定螺栓并将铰链移到最上面的位置锁紧固定螺栓直到铰链固定到位置上12 压下发动机盖的后端来将发动机盖的高度调到翼子板的高度022001 2001 Mondeo501-02-11 前端车身板件501-02-11一般程序续13 锁紧发动机盖后铰链两边的固定螺栓以消除任何移位安装固定夹到两边以预设铰链张力14 安装发动机盖撑杆15 旋入及旋出缓冲止挡橡胶来调整发动机盖前部使与翼子板及前照灯齐平16 注意所有的调整必须在安装闩锁之前完成安装发动机盖闩锁发动机盖闩锁安装后必须使发动机盖关闭时无应力产生并且在左边与右边的间隙必须相等022001 2001 Mondeo501-02-12 前端车身板件501-02-12一般程序续17 安装发动机盖隔音板与共鸣箱18 安装通风罩饰板19 注意确认风窗玻璃刮水器马达在停止位置安装风窗玻璃刮水器臂固定护盖20 安装水箱护栅022001 2001 Mondeo501-02-13 前端车身板件501-02-13规格拧紧力矩说明 Nm lb-ftlb-in翼子板挡泥板固定螺栓 3 – 27翼子板挡泥板固定螺丝 3 – 27翼子板前方固定螺栓7 – 62翼子板内部到 a 柱固定螺栓 7 – 62翼子板内下到 a 柱固定螺栓 7 – 62翼子板内上到 a 柱固定螺栓 6 – 53翼子板边缘螺栓7 – 62翼子板护栅开口处螺栓25 18 –发动机盖铰链到护栅开口处 8 – 71风窗玻璃刮水器臂固定螺母 22 16 –发动机盖铰链到车身固定螺栓 25 18 –发动机盖铰链到发动机盖固定螺栓 25 18 –022001 2001 Mondeo501-03-1 车身关闭装置501-03-1501-03 车身关闭装置适用车型2001 Mondeo主题页码一般程序行李箱盖调整 501-03-2规格规格 501-03-7拧紧力矩 501-03-7022001 2001 Mondeo501-03-2 车身关闭装置501-03-2一般程序行李箱盖调整一般设备4mm 厚的板子1 放松行李箱盖碰锁板固定螺栓2 拆卸行李箱盖开口防水条3 拆卸行李箱盖缓冲止挡器022001 2001 Mondeo501-03-3 车身关闭装置501-03-3一般程序续4 拆卸行李箱盖支撑杆5 调整行李箱盖铰链使行李箱盖铰链对准到车身固定螺栓在铰链孔的中央6 放松行李箱盖与铰链的固定螺栓7 注意确认行李箱盖位于完全关闭的位置在行李箱盖外侧端与后翼子板之间插入4mm 厚的边片来校正行李箱盖8 拆卸4mm 厚的板子022001 2001 Mondeo501-03-4 车身关闭装置501-03-4一般程序续9 心在打开行李箱盖的同时注意勿移动铰链打开行李箱盖并锁紧行李箱盖到铰链的固定螺栓10 放松行李箱盖铰链到车身的固定螺栓11 注意确认行李箱盖在完全关闭的位置在行李箱盖铰链部位往下压使行李箱盖低于后翼子板流线2 mm12 心打开行李箱盖时确认行李箱盖铰链没有移位打开行李箱盖并锁紧行李箱盖铰链到车身固定螺栓022001 2001 Mondeo501-03-5 车身关闭装置501-03-5一般程序续13 安装行李箱盖支撑杆14 安装行李箱盖缓冲止挡器15 安装行李箱盖开口防水条16 完全关闭行李箱盖17 打开行李箱盖并锁紧行李箱盖撞锤板固定螺栓022001 2001 Mondeo501-03-6 车身关闭装置501-03-6一般程序续18 注意确认行李箱盖在完全关闭的位置检查并确认行李箱盖的校正022001 2001 Mondeo501-03-7 车身关闭装置501-03-7规格拧紧力矩说明 Nm lb-ftlb-in车门止挡器到车门柱固定螺栓 23 17 –车门止挡器到车门固定螺栓 6 – 53车门撞锤板固定螺栓28 21 –车门铰链固定螺栓35 26 –行李箱铰链固定螺栓23 17 –后厢盖铰链固定螺栓11 8 –022001 2001 Mondeo501-05-1 内饰板与饰件501-05-1501-05 内饰板与饰件适用车型2001 Mondeo主题页码拆卸与安装A 柱饰板 43 616 0 501-05-2顶衬 43 612 0 501-05-4前车门饰板 501-05-16后车门饰板 501-05-19规格规格 501-05-22拧紧力矩 501-05-22022001 2001 Mondeo501-05-2 内饰板与饰件501-05-2拆卸与安装A-柱饰板 43 616 0拆卸有侧边扰流板的汽车1 注意A-柱饰板使用固定带固定在 A-柱的顶端拆卸 A-柱饰板时必须先将固定带与 A-柱饰板分离拆下A-柱饰板无侧边扰流板的汽车2 拆卸A-柱饰板安装有侧边扰流板的汽车1 检查 A-柱饰板与固定带若 A-柱饰板或固定带有破损现象则将损坏的零件更新2 警告确认A-柱饰板的固定带正确地安装到A-柱饰板上若未遵照指示会造成人员受伤安装A-柱饰板022001 2001 Mondeo501-05-3 内饰板与饰件501-05-3拆卸与安装续无侧边扰流板的汽车3 安装A-柱饰板022001 2001 Mondeo501-05-4 内饰板与饰件501-05-4拆卸与安装顶衬 43 612 0一般设备至少一公尺长的适合引线拆卸所有汽车1 拆下蓄电池负极线其它有关信息请参阅414-012 拆卸 A-柱饰板其它有关信息请参阅本章节A-柱饰板右驾驶汽车3 从手套箱上拆开缓冲器1 打开手套箱可找到缓冲器2 从缓冲器顶部压下使与手套箱分离4 完全打开手套箱将手套箱两侧往中央挤压使手套箱止挡器释放022001 2001 Mondeo501-05-5 内饰板与饰件501-05-5拆卸与安装续5 拆卸手套箱分开铰链左驾驶汽车6 拆卸仪表板下饰板1 拆卸仪表板下饰板固定螺丝2 释放仪表板下饰板固定夹所有汽车7 从中央连接盒 CJB 上拔开室内灯光线束的电气连接器8 系上一条适合的引线到室内灯光线束的电气连接器上022001 2001 Mondeo501-05-6 内饰板与饰件501-05-6拆卸与安装续9 拆开A-柱上的室内灯光线束10 从A-柱上将室内灯光线束拆下11 穿过仪表板将室内灯光线束拉出直到电气连接器与连接的引线露出12 撬开乘客座辅助握把的外盖使固定螺丝露出并拆下辅助握把022001 2001 Mondeo501-05-7 内饰板与饰件501-05-7拆卸与安装续13 移动前安全带肩部高度调整器到最低的位置14 从 B 柱上拆开车门防水密封条15 从 B 柱上拆卸 B 柱上饰板并将饰板移到一边1 从 B 柱下饰板上拆开固定脚2 拆卸螺丝盖3 拆卸固定螺丝16 拆卸遮阳板17 撬开外盖使螺丝露出并拆卸遮阳板固定夹022001 2001 Mondeo501-05-8 内饰板与饰件501-05-8拆卸与安装续有电动天窗开启板的汽车18 拆卸天窗开启板的防水密封条所有汽车19 拆卸顶置式控制台有关信息请参阅501-1220 拆卸车内后视镜电气连接器如配备有电动天窗开启板的汽车。
HW25505T变速器维修手册大同齿轮公司2011年8月目录目录 (2)第一章HW25505T系列变速器的拆装 (3)第一节HW25505T系列变速器的拆装的基本要求 (3)第二节变速箱拆装 (4)2.1从整车上拆卸变速箱总成 (4)2.2 变速箱总成的拆装 (4)2.3轴总成的拆装 (7)2.4后盖总成的分装 (10)2.5小盖总成的拆装 (11)2.6拨叉轴总成的装配 (12)第二章维修注意事项 (14)第三章常见故障及排除 (15)第四章维修工具 (16)第一节专用工具清单 (16)第二节通用工具清单 (16)第一章HW25505T系列变速器的拆装第一节HW25505T系列变速器的拆装的基本要求变速箱拆卸的基本要求如下:○1分解变速箱总成之前,必将变速箱外壳彻底清洗干净;○2变速箱的分解必须在一个清洁的地方进行,避免让灰尘或其它杂物进入变速箱内部,否则会加剧磨损和损坏轴承;○3拆卸轴承要使用专用工具,拆下的轴承要仔细的清洗;○4分解各个分总成时,要把所有零件按拆卸时的顺序放在干净的工作台上,避免零件丢失,又便于装配;○5拆卸卡簧应使用卡簧钳;○6在拆卸零件过程中,一定要注意施加在轴或壳体等零件上力量的大小,请勿野蛮操作,避免损坏零件,有些零件是禁止拆卸的,绝对禁止向正在运转的从动件施加外力。
⑦拆卸某些部件必须使用专用工具,使用专用工具时参考本维修手册及专用工具说明书。
变速箱装配过程中的基本要求:○1熟悉装配要求、所要装的零部件的外观形状,正常的零件装完后所处的位置,防止个别的不合格品的使用。
○2装配前做好零件自检,检查所要装的零件,保证表面的清洁及无明显制造缺陷,尤其重要结合面部不得有毛刺、磕碰伤等,如:油封的配合面及装配时的过渡面,齿轮齿面不得有明显磕碰等。
○3拿零件时要轻拿轻放,不得碰伤零件的表面、尤其是重要结合面。
○4装完零件后,零件表面如果被零铜锤等敲击,要把零件表面上残留的铜屑擦除干净,保证零件表面的清洁。
412-00恒温控制系统-一般信息适用车型:2001 Mondeo主题页码诊断与测试恒温控制系统.................................................................................................................................. 412-00-2工作原理.................................................................................................................................... 412-00-2检查与确认 ................................................................................................................................ 412-00-2自检(仅针对配置电子自动温度控制空调系统的汽车)................................................................... 412-00-2定点测试.................................................................................................................................... 412-00-5一般程序弹簧锁式接头........................................................................................................... (34 639 1) 412-00-26空调(A/C)离合器空气间隙调整................................................................................. (34 628 6) 412-00-28空调(A/C)系统抽空与充加........................................................................................ (34 620 2) 412-00-29冷冻油添加.............................................................................................................. (34 621 1) 412-00-32电子检漏.................................................................................................................. (34 620 7) 412-00-33显像染色检漏........................................................................................................... (34 620 5) 412-00-34真空检漏.................................................................................................................. (34 620 3) 412-00-35空调(A/C)系统冲洗 .................................................................................................. (34 818 1) 412-00-36污染制冷剂处理....................................................................................................... (34 620 9) 412-00-39规格规格.............................................................................................................................................. 412-00-40润滑、油液、密封剂与粘接剂 .................................................................................................. 412-00-40制冷剂容量(当充加时) .............................................................................................................. 412-00-40冷冻油容量 .............................................................................................................................. 412-00-40空调系统冷冻油添加(当更新组件时) ....................................................................................... 412-00-40空调系统(A/C)离合器............................................................................................................... 412-00-40拧紧力矩.................................................................................................................................. 412-00-40恒温控制系统有关线路图与连接器信息,参阅线路图单元:41200。
2001款福特蒙迪欧车身一般维修手册 200125 Mondeo维修手册目录发动机-18L 和20L 303-01A第1篇一般信息发动机冷却 303-03燃油供应和控制 18L 或20L 发动机303-04A服务信息附件驱动 303-05一般信息100-00起动系统 303-06识别代码100-01发动机点火-18L 与20L 303-07A顶升100-02发动机排放控制 18L 或20L 303-08A 噪音振动与不平顺100-04 进气分配与滤清 303-12燃油蒸发排放 303-13第2篇底盘发动机电子控制 303-14自动变速器悬架自动变速器 307-01悬架系统-一般信息204-00变速器的冷却 307-02前悬架204-01自动变速器外部控制 307-05后悬架204-02排气系统车轮与轮胎204-04排气系统-一般信息 309-00传动系燃料系统前驱动半轴205-04燃油系统-一般信息 310-00制动系统燃油箱与燃油管 310-01制动系统-一般信息206-00加速控制-除柴油发动机型汽车310-02A前盘式制动器206-03巡航控制 310-03后盘式制动器206-04驻车制动206-05液压制动系统206-06 第4篇电气助力制动206-07空调控制系统防抱死控制 206-09A恒温控制系统-一般信息412-00防抱死控制-牵引力控制 206-09B空气分配与过滤412-01转向系统暖气与通风412-02A转向系统-一般信息211-00辅助加热412-02B动力转向211-02空调412-03转向杆系211-03控制组件412-04转向柱211-04仪表与警告系统仪表板照明413-00第3篇动力系仪表413-01发动机发动机系统-一般信息303-0002200125 Mondeo Taiwan喇叭413-06 第5篇车身与涂装时钟413-07信息与讯息中心413-08 车身仪表与警告装置413-09 车身系统-一般信息 501-00倒车辅助413-13 前端车身板件 501-02蓄电池与充电系统车身关闭装置 501-03充电系统-一般信息414-00 内饰板与饰件 501-05蓄电池414-01 后视镜 501-09发电机与稳压器414-02 座椅 501-10娱乐系统玻璃窗框与机构 501-11娱乐系统-一般信息415-00 仪表板与控制台 501-12音响单元415-01 把手锁闩锁与进入系统 501-14天线415-02 刮水器与洗涤器 501-16扬声器415-03 天窗开启板 501-17视听系统415-07 保险杠 501-19照明乘员安全防护-主动式外部灯光417-01 乘员501-20A内部灯光417-02 乘员安全防护-被动式501-20B日间行驶灯417-04 车身维修-一般信息501-25A电气配置车身维修-防锈501-25B模块通讯网络418-00 车身维修-塑料件维修501-25C模块设置418-01 车身维修-漏水501-25D电子设备组车身维修-风噪音501-25E主动防盗系统 419-01A 车身维修–免喷漆凹陷去除501-25F被动防盗系统 419-01B 车身维修 - 噪音振动与不平顺 501-25G导航系统-VNR 419-07A 车架与固定座导航系统-RNS4 419-07B 整体式车身副车架与固定座 502-00多功能电子控制模块419-10 全车架与车身固定座502-02未获福特汽车公司Ford Werke AG 的事先书面许本手册中的图文说明和规范在手册获准印刷时均为可不得以任何电子或机械的形式包括照相录有效资料为配合持续发展与改进的方针福特汽车影或以任何检索系统翻译或复制本手册的任何部公司保留在不事先通知的情况下随时终止车型生产分修改规范或设计的权利尽管已尽可能使本书臻于完整与正确但对于本手册中的任何错误或疏漏本公司不承担任何责任02200125 Mondeo Taiwan501-00-1 车身系统-一般信息501-00-1501-00 车身系统-一般信息适用车型2001 Mondeo主题页码说明与操作车身 501-00-2诊断与测试车身系统 501-00-3检查与确认 501-00-3故障现象表 501-00-3定点测试 501-00-3组件测试 501-00-3规格规格 501-00-4润滑剂油液密封剂与粘接剂 501-00-4022001 2001 Mondeo501-00-2 车身系统-一般信息501-00-2说明与操作车身022001 2001 Mondeo501-00-3 车身系统-一般信息501-00-3诊断与测试车身系统检查与确认1 操作系统以确认顾客的问题故障现象表2 直观检查是否有明显的机械或电气损坏的迹象3 如果所观察或提出的问题的明显原因已经发定点测现则在进行下一个步骤之前必须先将该原因修正如果可能的话4 若问题无法清楚地看到则需再确认故障现象与组件测试参阅WDSFDS 2000022001 2001 Mondeo501-00-4 车身系统-一般信息501-00-4规格润滑剂油液密封剂与粘接剂项目022001 2001 Mondeo501-02-1 前端车身板件501-02-1501-02 前端车身板件适用车型2001 Mondeo主题页码说明与操作前端车身板件 501-02-2拆卸与安装通风罩格栅 43 230 0 501-02-3翼子板 44 252 0 501-02-4一般程序发动机盖调整 41 213 0 501-02-8规格规格 501-02-13拧紧力矩 501-02-13022001 2001 Mondeo501-02-2 前端车身板件501-02-2说明与操作前端车身板件022001 2001 Mondeo501-02-3 前端车身板件501-02-3拆卸与安装通风罩格栅 43 230 0022001 2001 Mondeo501-02-4 前端车身板件501-02-4拆卸与安装翼子板 44 252 0拆卸注意此程序用于拆卸右侧翼子板拆卸左侧翼子板的程序与此相同1 拆卸前保险杠有关信息请参阅501-192 拆卸前照灯有关信息请参阅417-013 将汽车顶起并支撑有关信息请参阅100-024 拆卸车轮与轮胎有关信息请参阅204-045 拆卸翼子板上的挡泥板1 拆卸固定螺丝2 拆卸固定螺栓两支3 拆卸塑料固定座三个固定座6 拆卸翼子板前方固定螺栓022001 2001 Mondeo501-02-5 前端车身板件501-02-5拆卸与安装续7 拆卸方向灯电气连接器8 拆卸翼子板前隔音板022001 2001 Mondeo501-02-6 前端车身板件501-02-6拆卸与安装续9 从 a 柱上拆卸翼子板内部固定螺栓与翼子板底部固定螺栓10 从 a 柱上拆卸翼子板顶部固定螺栓11 拆卸翼子板边缘螺栓与翼子板护栅开口处的螺栓022001 2001 Mondeo501-02-7 前端车身板件501-02-7拆卸与安装续安装1 依照拆卸的相反程序安装022001 2001 Mondeo501-02-8 前端车身板件501-02-8一般程序发动机盖调整 41 213 01 拆卸水箱护栅2 注意发动机盖必须在闩锁拆卸之后调整3 注意确认风窗玻璃刮水器是在停止位置拆卸刮水器臂提起护盖4 拆卸通风罩饰板022001 2001 Mondeo501-02-9 前端车身板件501-02-9一般程序续5 拆卸共鸣箱与隔音板释放固定夹6 从车身固定座铰部位拆下塑料固定夹放松车身固定座铰链固定螺栓利用车身孔的中央位置锁紧两侧的固定螺栓7 放松发动机盖铰固定螺栓到以手指就可转动为止8 校正发动机盖调整发动机盖使翼子板的边缘与发动机盖的边缘对齐检查左侧与右侧翼子板的间隙线是否平均必要时校正翼子板左侧与右侧的间隙宽度必须一致打开发动机盖与压下发动机盖时左侧与右侧的间隙必须相同022001 2001 Mondeo501-02-10 前端车身板件501-02-10一般程序续9 锁紧两边的发动机盖铰链固定螺栓10 心使用适合的木块支撑发动机盖以避免发动机盖关闭拆卸发动机盖撑杆释放发动机盖撑杆两边的固定夹11 放松车身固定座铰链固定螺栓并将铰链移到最上面的位置锁紧固定螺栓直到铰链固定到位置上12 压下发动机盖的后端来将发动机盖的高度调到翼子板的高度022001 2001 Mondeo501-02-11 前端车身板件501-02-11一般程序续13 锁紧发动机盖后铰链两边的固定螺栓以消除任何移位安装固定夹到两边以预设铰链张力14 安装发动机盖撑杆15 旋入及旋出缓冲止挡橡胶来调整发动机盖前部使与翼子板及前照灯齐平16 注意所有的调整必须在安装闩锁之前完成安装发动机盖闩锁发动机盖闩锁安装后必须使发动机盖关闭时无应力产生并且在左边与右边的间隙必须相等022001 2001 Mondeo501-02-12 前端车身板件501-02-12一般程序续17 安装发动机盖隔音板与共鸣箱18 安装通风罩饰板19 注意确认风窗玻璃刮水器马达在停止位置安装风窗玻璃刮水器臂固定护盖20 安装水箱护栅022001 2001 Mondeo501-02-13 前端车身板件501-02-13规格拧紧力矩说明 Nm lb-ftlb-in翼子板挡泥板固定螺栓 3 – 27翼子板挡泥板固定螺丝 3 – 27翼子板前方固定螺栓7 – 62翼子板内部到 a 柱固定螺栓 7 – 62翼子板内下到 a 柱固定螺栓 7 – 62翼子板内上到 a 柱固定螺栓 6 – 53翼子板边缘螺栓7 – 62翼子板护栅开口处螺栓25 18 –发动机盖铰链到护栅开口处 8 – 71风窗玻璃刮水器臂固定螺母 22 16 –发动机盖铰链到车身固定螺栓 25 18 –发动机盖铰链到发动机盖固定螺栓 25 18 –022001 2001 Mondeo501-03-1 车身关闭装置501-03-1501-03 车身关闭装置适用车型2001 Mondeo主题页码一般程序行李箱盖调整 501-03-2规格规格 501-03-7拧紧力矩 501-03-7022001 2001 Mondeo501-03-2 车身关闭装置501-03-2一般程序行李箱盖调整一般设备4mm 厚的板子1 放松行李箱盖碰锁板固定螺栓2 拆卸行李箱盖开口防水条3 拆卸行李箱盖缓冲止挡器022001 2001 Mondeo501-03-3 车身关闭装置501-03-3一般程序续4 拆卸行李箱盖支撑杆5 调整行李箱盖铰链使行李箱盖铰链对准到车身固定螺栓在铰链孔的中央6 放松行李箱盖与铰链的固定螺栓7 注意确认行李箱盖位于完全关闭的位置在行李箱盖外侧端与后翼子板之间插入4mm 厚的边片来校正行李箱盖8 拆卸4mm 厚的板子022001 2001 Mondeo501-03-4 车身关闭装置501-03-4一般程序续9 心在打开行李箱盖的同时注意勿移动铰链打开行李箱盖并锁紧行李箱盖到铰链的固定螺栓10 放松行李箱盖铰链到车身的固定螺栓11 注意确认行李箱盖在完全关闭的位置在行李箱盖铰链部位往下压使行李箱盖低于后翼子板流线2 mm12 心打开行李箱盖时确认行李箱盖铰链没有移位打开行李箱盖并锁紧行李箱盖铰链到车身固定螺栓022001 2001 Mondeo501-03-5 车身关闭装置501-03-5一般程序续13 安装行李箱盖支撑杆14 安装行李箱盖缓冲止挡器15 安装行李箱盖开口防水条16 完全关闭行李箱盖17 打开行李箱盖并锁紧行李箱盖撞锤板固定螺栓022001 2001 Mondeo501-03-6 车身关闭装置501-03-6一般程序续18 注意确认行李箱盖在完全关闭的位置检查并确认行李箱盖的校正022001 2001 Mondeo501-03-7 车身关闭装置501-03-7规格拧紧力矩说明 Nm lb-ftlb-in车门止挡器到车门柱固定螺栓 23 17 –车门止挡器到车门固定螺栓 6 – 53车门撞锤板固定螺栓28 21 –车门铰链固定螺栓35 26 –行李箱铰链固定螺栓23 17 –后厢盖铰链固定螺栓11 8 –022001 2001 Mondeo501-05-1 内饰板与饰件501-05-1501-05 内饰板与饰件适用车型2001 Mondeo主题页码拆卸与安装A 柱饰板 43 616 0 501-05-2顶衬 43 612 0 501-05-4前车门饰板 501-05-16后车门饰板 501-05-19规格规格 501-05-22拧紧力矩 501-05-22022001 2001 Mondeo501-05-2 内饰板与饰件501-05-2拆卸与安装A-柱饰板 43 616 0拆卸有侧边扰流板的汽车1 注意A-柱饰板使用固定带固定在 A-柱的顶端拆卸 A-柱饰板时必须先将固定带与 A-柱饰板分离拆下A-柱饰板无侧边扰流板的汽车2 拆卸A-柱饰板安装有侧边扰流板的汽车1 检查 A-柱饰板与固定带若 A-柱饰板或固定带有破损现象则将损坏的零件更新2 警告确认A-柱饰板的固定带正确地安装到A-柱饰板上若未遵照指示会造成人员受伤安装A-柱饰板022001 2001 Mondeo501-05-3 内饰板与饰件501-05-3拆卸与安装续无侧边扰流板的汽车3 安装A-柱饰板022001 2001 Mondeo501-05-4 内饰板与饰件501-05-4拆卸与安装顶衬 43 612 0一般设备至少一公尺长的适合引线拆卸所有汽车1 拆下蓄电池负极线其它有关信息请参阅414-012 拆卸 A-柱饰板其它有关信息请参阅本章节A-柱饰板右驾驶汽车3 从手套箱上拆开缓冲器1 打开手套箱可找到缓冲器2 从缓冲器顶部压下使与手套箱分离4 完全打开手套箱将手套箱两侧往中央挤压使手套箱止挡器释放022001 2001 Mondeo501-05-5 内饰板与饰件501-05-5拆卸与安装续5 拆卸手套箱分开铰链左驾驶汽车6 拆卸仪表板下饰板1 拆卸仪表板下饰板固定螺丝2 释放仪表板下饰板固定夹所有汽车7 从中央连接盒 CJB 上拔开室内灯光线束的电气连接器8 系上一条适合的引线到室内灯光线束的电气连接器上022001 2001 Mondeo501-05-6 内饰板与饰件501-05-6拆卸与安装续9 拆开A-柱上的室内灯光线束10 从A-柱上将室内灯光线束拆下11 穿过仪表板将室内灯光线束拉出直到电气连接器与连接的引线露出12 撬开乘客座辅助握把的外盖使固定螺丝露出并拆下辅助握把022001 2001 Mondeo501-05-7 内饰板与饰件501-05-7拆卸与安装续13 移动前安全带肩部高度调整器到最低的位置14 从 B 柱上拆开车门防水密封条15 从 B 柱上拆卸 B 柱上饰板并将饰板移到一边1 从 B 柱下饰板上拆开固定脚2 拆卸螺丝盖3 拆卸固定螺丝16 拆卸遮阳板17 撬开外盖使螺丝露出并拆卸遮阳板固定夹022001 2001 Mondeo501-05-8 内饰板与饰件501-05-8拆卸与安装续有电动天窗开启板的汽车18 拆卸天窗开启板的防水密封条所有汽车19 拆卸顶置式控制台有关信息请参阅501-1220 拆卸车内后视镜电气连接器如配备有电动天窗开启板的汽车。
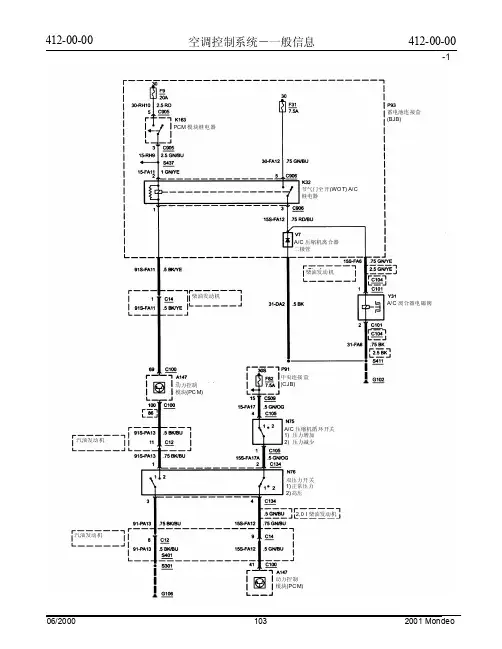
-1蓄电池连接盒(BJB)PCM 模块继电器节气门全开(WOT) A/C 继电器A/C 压缩机离合器 二极管柴油发动机柴油发动机2,0 I 柴油发动机动力控制 模块(PC M)汽油发动机双压力开关 1) 正常压力 2) 高压汽油发动机动力控制 模块(PC M)中央连接盒 (CJB)A/C 压缩机循环开关 1) 压力增加 2) 压力减少A/C 离合器电磁阀-2 手动A/C蓄电池连接盒(BJB)中央连接盒(CJB)中央连接盒(CJB)暖气鼓风机继电器暖气鼓风机马达暖气/A/C控制模块暖气鼓风机串联电阻器暖气/A/C控制模块暖气鼓风机开关0) 关闭1) 低速, I2) 中速, II3) 高速, III4) 最高速, IV-3主灯开关暖气/A/C 控制模块地板出风温度 传感器暖气/A/C 控制 模块数据链路插口 (DLC)暖气/A/C 控制 模块手动A/C再循环风门马达 除雾模式执行器手动A/C-4手动A/C暖气/A/C控制模块空气温度模式执行器仪表板/地板模式执行器蓄电池连接盒(BJB)中央连接盒(CJB)中央连接盒(CJB)暖气鼓风机继电器暖气鼓风机控制模块主灯开关电子自动温度控制(EATC)模块数据链路插口(DLC)自动A/C中央连接盒(CJB) 电子自动温度控制(EATC)模块日照传感器地板排出温度传感器左侧室内温度传感器电子自动温度控制(EATC)模块电子自动温度控制(EATC)模块除雾模式执行器再循环风门马达-8自动A/C 自动A/C-9 自动A/C电子自动温度控制(EATC)模块空气温度模式执行器仪表板/地板模式执行器中央连接盒(CJB) 蓄电池连接盒(BJB)主灯开关0) 关闭1) 驻车2) 近光灯9) 脉冲宽度模块14) 外盖照明15) 按钮照明(部分)手动A/C暖气/A/C 控制模块电子自动温度控制(EATC)模块牵引力控制系统(TCS)解除开关(部分)组合仪表6) 照明选档杆单元4) 照明语音/导航控制单元配备导航系统音响司机侧座椅加热器开关前点烟器(部分)尾门/掀盖释放开关乘客侧座椅加热器开关危险警告闪光器开关(部分)风窗玻璃加热器开关后风窗玻璃加热器开关左位驾驶中央连接盒(CJB)司机侧前车窗(多功能)控制开关左后车窗控制开关3) 照明右后车窗控制开关3) 照明乘客侧前车窗控制开关3) 照明组合仪表与仪表板照明413-00-00 413-00-00-4 右位驾驶中央连接盒(CJB)司机侧前车窗(多功能)控制开关3) 照明右后车窗控制开关3) 照明左后车窗控制开关3) 照明乘客侧前车窗控制开关3) 照明蓄电池连接盒(BJB)主灯开关0) 关闭1) 驻车2) 近光灯9) 脉冲宽度模块中央连接盒(CJB)组合仪表4) 发动机冷却水温度6) 照明20) 前预热指示灯/阻风23) 结冰警告0°C24) 结冰警告4°C42) 检查发动机70) 灯光ON数据链路插口(DLC) 数据链路插口(DLC)组合仪表10) 燃油表14) 低油压61) 低燃油指示器发动机电子控制未使用油箱单元1) 燃油泵2) 燃油表传感器油压开关0) 低油压1) 正常油压汽油发动机-3 蓄电池连接盒(BJB)组合仪表7) 左方向指示灯8) 右方向指示灯36) 安全带指示器通用电子模块(GEM)-116 -4组合仪表 12) ABS13) 低制动油位/手制动 88) 电子制动力分配(EBD)制动油位开关 0) 正常 1) 低ABS 控制模块未使用手制动开关0) 制动完全释放 1) 制动作用-5组合仪表 2) 气囊 3) 充电 5) 车速表汽油发动机通用电子模块(GEM)速度控制模块气囊防护控制 模块(RCM)组合仪表2) 气囊3) 充电5) 车速表2,0 I柴油发动机动力控制模块(PC M)气囊防护控制模块(RCM)未配备燃油式进气加热器配备燃油式进气加热器通用电子模块(GEM)通用电子模块(GEM)进气温度(I AT)传感器进气加热器中央连接盒(CJB)主灯开关0) 关闭1) 驻车2) 近光灯方向指示器开关0) 中性位置1) 远光灯2) 头灯闪光器配备日间行驶灯中央连接盒(CJB)综合仪表9) 远光灯方向指示器开关10) 显示模式开关远光灯继电器中央连接盒(CJB)413-06-00 413-06-00喇叭-1蓄电池连接盒(BJB)喇叭继电器配备单喇叭配备双喇叭时钟弹簧喇叭高音喇叭低音喇叭方向盘/速度控制开关0) 休止1) 鸣响413-07-00 413-07-00时钟-1中央连接盒(CJB)主灯开关组合仪表时钟1) 报警”ON”指示器LED汽油发动机动力控制模块(PC M)蓄电池连接盒 (BJB)点火开关 0) 关闭 1) 附件 2) 运转 3) 起动主灯开关 0) 关闭 1) 驻车 2) 近光灯9) 脉冲宽度模块中央连接盒 (CJB)中央连接盒 (CJB)通用电子模块 (GEM)左牌照灯组合仪表右后灯总成蓄电池连接盒 (BJB)主灯开关 0) 关闭 1) 驻车 2) 近光灯 3) 脉冲宽度模块中央连接盒 (CJB)中央连接盒 (CJB)左牌照灯通用电子模块(GEM)右后灯总成组合仪表中央连接盒(CJB) 蓄电池连接盒(BJB)组合仪表57) 车门未关紧时钟通用电子模块(GEM)左后车门未关紧开关1) 车门关闭2) 车门打开左前车门未关紧开关1) 车门关闭2) 车门打开右后车门未关紧开关1) 车门关闭2) 车门打开右前车门未关紧开关1) 车门关闭2) 车门打开左位驾驶中央连接盒(CJB)蓄电池连接盒(BJB)时钟组合仪表57) 车门未关紧通用电子模块(GEM)右前车门未关紧开关1) 车门关闭2) 车门打开左后车门未关紧开关1) 车门关闭2) 车门打开右后车门未关紧开关1) 车门关闭2) 车门打开左前车门未关紧开关1) 车门关闭2) 车门打开右位驾驶中央连接盒 (CJB)时钟组合仪表36) 安全带指示器数据链路插口(DLC)通用电子模块(GEM)气囊防护控制 模块(RCM)司机侧安全带 扣环开关警告如无维修手册指导,切勿试图诊断或排除气囊电路故障。
福特蒙迪欧5F31J自动变速器技术解析(七)
石家庄;曹利民
【期刊名称】《汽车维修技师》
【年(卷),期】2009(000)005
【摘要】@@ 7.D2挡油路图rnD2挡油路图如图38所示,油压通过减速降压阀(L18)进入减速制动带(Rd/B)油路.由弹簧平衡的油压很低,不足以让减速制动带接合.手动阀(L10)通过换挡阀B(L5),空挡换挡阀(L3)为低挡离合器(LowC)油路提供管路压力.管路压力通过换挡阀C、A(L17、L7)进入2/4/5挡制动器(2-4/B)油路.
【总页数】3页(P22-24)
【作者】石家庄;曹利民
【作者单位】(Missing);(Missing)
【正文语种】中文
【中图分类】U4
【相关文献】
1.福特蒙迪欧5F31J自动变速器技术解析(四) [J], 曹利民
2.福特蒙迪欧5F31J自动变速器技术解析(五) [J], 曹利民
3.福特蒙迪欧5F31J自动变速器技术解析(六) [J], 曹利民
4.福特蒙迪欧5F31J自动变速器技术解析(一) [J], 曹利民
5.福特蒙迪欧5F31J自动变速器技术解析(二) [J], 曹利民
因版权原因,仅展示原文概要,查看原文内容请购买。
目录第一课变速箱说明 (4)第二课动力流 (21)第三课电子控制系统 (48)第四课变速箱维护 (71)第五课变速箱冷却 (73)Mondeo 2.5L采用-5速自排变速箱,此变速箱衍生自Galaxy之5速自排变速箱。
但两变速箱间仍有数个明显差异,故学员信息中对此提供详细说明。
5个前进档和1个倒档之档位由排成二平面三简单式行星齿轮组来达成。
齿轮组可用自动或直接由驾驶者以手动换档模式来换档。
并由一独立变速箱控制单元进行电子控制。
在刚开始一年,此变速箱不作维修设计,但除了各油封、主控制阀体、个别之电磁阀、扭力转换器和变速箱档位(TR)传感器。
本学员信息提供-变速箱之概论。
包含变速箱内各组件、不同档位和动力流程以及变速箱控制系统设计和功能之详细说明。
此外,概论内容亦包含变速箱油冷却系统和外部之控制。
第一课变速箱说明课程目的在完成本单元后,你将可以:․变速箱机械特性。
․油泵的特点。
․概述․本5速自排变速箱由日本的自排变速箱制造厂Jatco TransTechnology所设计。
․它为全自动和电子控制式自排变速箱,设计供前轮驱动车辆用。
․本自排变速箱设计之最大输入扭力为310 Nm。
․它用于Mondeo,配合下列发动机:- 2.5L Duratec․变速比由在两轴上之三行星齿轮组来完成。
各组件之驱动或固定则由4组离合器、3组制动器(含1组制动带和2组制动器)和2组滚子式单向离合器来进行。
․扭力转换器锁定离合器(TCC)可使燃油消耗率最佳化。
由变速箱控制单元视车速和发动机负荷而控制接合。
․变速箱控制单元依照驾驶者个人驾驶风格以计算换档时机。
当时之行驶阻力,如因拖车或行驶上坡/下坡或陡坡之阻力,都会列入计算换档时机之考量内。
․档位可用自动(排档杆位置“D”)或由驾驶者(手动换档模式)来选择。
变速档位或选定档位(手动换档模式)向驾驶者指示于仪表板内。
․在主要电子组件故障状况下,一液压紧急运转程序将对变速箱运作作限制作动。
引擎與變速箱之搭配●1.8/2.0L引擎搭配4F27E自動變速箱,由獨立的自動變速箱控制模組TCM控制(位置在防火墻中央,有隔板遮住)。
●4F27E的內部機械結構、閥體總成都和TIERRA變速箱(FN4AEL)一樣。
●2.0L(8S車款)搭配MTX75手排變速箱。
98年度改進教學計畫Focus2.0實車動力傳輸控制系統整修暨實驗(習)手冊編著自動變速箱FN (4F27E)全自動、電子控制、四速變速箱設計的前輪傳動車輛。
其縮寫代號4F27E的意義為:•4表示4速變速箱。
•F-前輪驅動。
•27-經扭力變換器後最大輸入扭力為270 lb.ft (365 Nm)。
•E-完全電子控制。
●FN4A-EL 或4F27E 和使用於TIERRA的自排變速箱機械結構相同,改為具有『手自排控制』模式。
手自排排檔桿電瓶沒電時KEY插入此孔可移開排檔桿98年度改進教學計畫Focus2.0實車動力傳輸控制系統整修暨實驗(習)手冊編著FN4A-EL自動變速箱特色:●搭載於1.6引擎,由PCM控制。
●具有手自排換檔模式.●ATF為氣冷式冷卻器(1.6).●取消壓力開關.●排檔桿配整合式微動開關感測器.●TR感測器為可變電阻式.●具有斜坡模式功能.FN(4F27E)自動變速箱特色:●搭載於1.8/2.0引擎,由自動變速箱控制模組TCM控制。
●具有手自排換檔模式.●取消車速感測器,使用OSS輸出軸轉速感測器。
●快放模式:當放開油門時不會立即升檔以保持較佳引擎剎車效果。
●下坡模式:下坡踩剎車將會降到較低檔位.●Kick down 模式.手自排自動變速箱特色:●手自排自動變速箱提供了「自動換檔」與「手排換檔」兩種模式,讓車主擁有更多的駕駛舒適與操控樂趣。
●手自排自動變速基本上是從既有自動變速箱的結構上延伸其電子控制部份,只要增加「手自排換檔感測器」、更改模組控制程式。
原有自動變速箱的「機械結構」、「電子控制」、「液壓閥體」等不需變更。
第412-01章恒温控制适用车辆: 2007.50 蒙迪欧目录页次规格规格 ............................................................................................................................................................ 412-01-3说明与操作加热与通风……………………………………………………………………………………………….412-01-4鼓风机马达……………………………………………………………………………………………….412-01-4热交换器…………………………………………………………………………………………………412-01-4蒸发器…………………………………………………………………………………………………….412-01-4恒温控制风箱综述………………………………………………………………………………………412-01-5气流—除霜出风口……………………………………………………………………………………….412-01-6气流—中央出风口/B柱上的通风出口………………………………………………………………….412-01-7气流—足部区域……………………………………………………………………………...................412-01-8控制组件…………………………………………………………………………………………………...412-01-9控制装置,恒温控制—装配有手动温控的车辆…………………………………………………..412-01-9控制装置,恒温控制—装配有自动温控的车辆…………………………………………………. 412-01-9控制装置、恒温控制-装配有用触摸屏操作的DVD导航系统的车辆…………………………….. 412-01-9恒温控制模块-装配有用触摸屏操作的DVD导航系统的车辆…………………………………….. 412-01-10恒温控制风箱综述-装配有手动温控的车辆………………………………………………….. 412-01-10恒温控制风箱综述-装配有自动温控的车辆………………………………………………….. 412-01-11太阳负荷传感器/车内温度传感器-装配有自动温控的车辆……………………... .412-01-12空气分配和滤清………………………………………………….. ……………………………………412-01-13粉尘滤清器………………………………………………….. …………………………………………. 412-01-13空气分配、组合仪表………………………………………………………………………………….. 412-01-13空气分配、乘客厢…………………………………………………………………………………….. 412-01-14空调……………………………………………………………………………...................................... 412-01-15制冷回路……………………………………………………………………………................................ 412-01-15功能……………………………………………………………………………....................................... 412-01-16综述-空调系统……………………………………………………………………………................... 412-01-17检修蒸发器……………………………………………………………………………........................... 412-01-17电子制冷剂压缩机控制阀……………………………………………………………………………....412-01-18拆卸与安装恒温控制风箱…………………………………………………………………………..…412-01-19空调(A/C)压缩机-2.0L Duratec - HE(MI4)/2.3L Duratec - HE(MI4)…………...(34 626 4)412-01-21鼓风机马达……………………………………………………………………………………….412-01-22 鼓风机马达电阻器-左驾、车辆装配有:手动温控……………………………………………….412-01-24环境空气质量传感器—车辆配备冷藏箱………………………………………………(34 674 0)412-01-27 中央调气器空气出口温度传感器………………………………….....…….....…….....…….....……..... 412-01-29 足部区域空气出口温度传感器-车辆上未装配有:导航系统………………………………………412-01-31 进气口混合风门执行器-车辆上配备有冷藏箱………………………………….…….…….…….412-01-32 驾驶员侧温度混合风门执行器…………………………………………………………………………412-01-34 乘客侧温度混合风门执行器-车辆上装配有冷藏箱……………………………..……..……..…….. 412-01-40 粉尘滤清器-左驾………………………………………………………………………………………412-01-42 恒温控制总成-车辆上装配有:手动温控,车辆上未配备导航系统………………………412-01-43 恒温控制总称-车辆上装配有:自动温控,车辆上未配备导航系统…………..…………….412-01-44 贮液干燥器………………………………………………………………………………………………412-01-46 空调(A/C)压缩机至冷凝器出口管线………………………………………………………………412-01-48冷凝器至蒸发器管线…………………………………………………………………………………….. 412-01-50蒸发器出口管线………………………………………………………………………………………….412-01-52恒温控制模块……………………………………………………………………………………………. 412-01-54蒸发器…………………………………………………………………………………………………….. 412-01-56冷凝器…………………………………………………………………………………………………….. 412-01-58空调(A/C)压力传感器…………………………………………………………………………………412-01-61恒温膨胀阀……………………………………………………………………………………………….. 412-01-62鼓风机马达电阻器—左驾,车辆配备双自动温控……………………………………………………412-01-63除霜出风口/进气口混合风门执行器—左驾……………………………………………………………412-01-64蒸发器温度传感器………………………………………………………………………………………412-01-70加热丝—车辆配备自动温控,不配备电子辅助加热…………………………………………………412-01-71进气混合风门执行器—车辆不配备冷藏箱……………………………………………………………412-01-79加热丝—车辆配备手动温控,不配备电子辅助加热…………………………………………………412-01-80分解和组装恒温控制风箱-车辆配备自动温控………………………………………………………..…..….. 412-01-88恒温控制风箱-车辆配备手动温控…………………………………………………………..….. 412-01-93规格说明与操作加热与通风恒温控制风箱由鼓风机马达,粉尘滤清器,热交换器,蒸发器(安装于配备空调(A/C)的车辆上),电子辅助加热器(如有配备)以及各种空气偏转风门构成。
说到福特蒙迪欧也是一款比较经典产品了,产品的延伸线从老款的4AT-5AT-6AT-电子无极可以说是不停在更新换代,当然每一款都称得上经典、耐用。
但是AT的变速箱一直脱离不了的就是换挡不顺畅,一旦达到一定车龄状况后整体的工况和变速箱换挡逻辑性都会降低,维修后针对损坏老化部位进行一定的修复产品完全可以达到再生使用的状态.今天分享的是经典蒙迪欧2.5五速自动变速箱维修(JF506E)常见故障:变速箱型号:JF506E 5速自动装配车型:03--07年蒙迪欧2.5升常见故障:1.换挡冲击;热车升档冲击;低速降档冲击;故障原因:阀体内部磨损性能变差;油压电磁阀性能不良;2.无倒档;倒档报电路元件故障码;故障原因:倒档离合器密封元件老化;相关传感器或线路故障/损坏;3.升3档后耸车;故障原因:阀体内部故障;变矩器锁止离合器磨损工作不良或失效;4.换挡打滑、锁档、车速跑不起来;变速箱油焦糊气味;故障原因:阀体故障;内部密封件老化、泄压;离合器烧毁变速箱外观照.阀体在外人开来那就是两块铝板,但是其精密程度要求极其严格,哪怕是几个C的间距也会引起变速箱的故障发生比如打滑、顿挫等。
所以说阀体的修复就显得需要格外的严格,必须精益求精。
摩擦片工作原理:变速箱电脑控制电池阀,电池阀控制油压进入阀体,阀体再把油打入离合器,实现离合器的换挡工作,油进入离合器,最先顶起来的是活塞,活塞顶起摩擦片才能结合在一起,而活塞泄压,顶的力度不够,继而摩擦片打滑,时间久了就烧了!所以如果说一般配套型号的摩擦片配上去八成还是会出现问题,变速箱内部的胶活塞是安装在离合器两端的,长时间的工作外部的胶圈会随之硬化,密封变差,就会导致离合器泄压,这种问题也是最常见的一种,但是对于密封件一定是需要原厂的,不能节约成本和费用凑活去用,不然后期的使用容易导致漏油,变速箱不能多次分解拆装,性能会降低,所以该花的钱一定要舍得去花哦。
制动带的损坏也是因为磨损较多,属于是常规的易损件。
第三节蒙迪欧自动变速箱一、概述蒙迪欧采用CD4E自动变速器,是一种前轮驱动用4速电控自动变速器,具有下列电气控制功能:•电子压力控制(EPC)以改善换档品质•换档控制•3-2换档正时•滑行制动•变矩器离合器(TCC)自动变速器包含一个带锁定离合器的四元件变矩器以及下列部件:•行星齿轮组•链条驱动•行星齿轮组主减速器•差速器小齿轮和半轴齿轮CD4E液压控制系统有5个电磁阀,可控制:•换档油压(通过管路油压控制)•换档控制(通过换档阀位置的控制)•调节变矩器离合器的作动。
•控制3-2档间的换档。
滑行时的发动机制动。
二、变速器的识别标贴项目说明1 车型号码2 总成号码3 序号(含制造日期)4 零件编号5 条形码三、离合器/制动带元件工作表齿轮2/4中间/超速档制动带前进离合器直接离合器滑行离合器低/倒档离合器倒档离合器前进单向离合器低速单向离合器齿轮R X XD-1 X X OR X OR D-2 X X X OR OR OR D-3 X X X OR OR OR D-4 X X X OR OR OR OR M-2 X X X X OR OR M-1 X X X X XX-传送扭矩,OR-超速档四、CD4E电磁阀操作表五、变速器规格12、容量3、速比4、拧紧力矩六、变速器的拆装1、主减速器,链条驱动,差速器项目说明项目说明1 主减速器齿圈2 最终传动齿圈卡环3 差速器支座no.15轴承4 止推垫圈,no.14(选配)5 车速表驱动齿轮6 差速器壳体7 止推垫圈8 差速器小齿轮9 止推垫圈10 差速器半轴齿轮11 差速器小齿轮轴12 滚销13 主减速器行星齿轮止推垫圈(需用8 片) 14 主减速器行星齿轮间隔环(需用4片)15 主减速器行星齿轮滚针轴承(需用4 片) 16 主减速器行星齿轮(需用4片)17 主减速器小齿轮轴18 主减速器行星齿轮组和行星架19 主减速器小齿轮轴卡环20 驱动链条外盖21 驱动链条22 驱动链轮no.13止推轴承23 驱动链轮24 后驱动链条外壳25 磁铁26 后驱动链条外壳27 驱动链轮no.12轴承28 驱动链轮no.11垫片(选配)29 驱动链轮轴承,no.182、变矩器,变矩器壳,离合器项目说明项目说明1 变矩器2 变矩器毂油封3 导轮支架4 油尺5 加油管6 加油管护圈3、油泵,传感器,离合器项目说明项目说明1 中间和超速档制动带总成2 油泵总成3 油泵支架油封环4 油泵支架油封环(6片)4、选档杆,变速器档位开关项目说明项目说明1 手控杆2 手控杆油封3 手控阀作动杆(Z型杆)4 手控阀掣子摇杆5 手控阀掣子轴6 轴固定销(需用2片)7 手控阀掣子杆作动杆8 变速器档位开关9 手控杆轴油封10 驻车爪轴11 驻车爪回位弹簧12 驻车爪13 驻车爪轴固定器和螺栓14 驻车爪棘轮弹簧15 手控杆总成5、主控制阀体总成项目说明项目说明1 主控制外盖2 主控制外盖垫片3 主控制外盖通风管垫片4 主控制外盖通风管5 主减速器油管油封6 主减速器油管7 主控制主控制总成8 电磁阀体(变速器控制)9 电磁阀体固定夹10 电磁阀体垫片11 油压分流板12 油压分流板垫片13 伺服器本体总承14 中间和超速档伺服器阀塞15 中间和超速档伺服器塞垫片16 伺服器本体分隔板垫片(需用2片)17 伺服器本体分隔板18 手控阀掣子弹簧19 主控制阀体20 电磁体壳体分隔板垫片(需用2片)21 电磁体壳体分隔板22 油路连通板23 油面控制阀24 油面控制阀支架25 变速器壳体26 滤清器和油封27 滤清器循环调节泄放油封28 变速器识别标贴七、自动变速器电控介绍在CD4E变速器中,换档正时,换档油压(管路油压)和变矩器锁定离合器的电磁阀(TCC)等均由动力控制模块(PCM)利用其输入及输出网络来实施电气控制。
蒙迪欧维修手册位置页码/坐标A7 ABS控制模块发动机舱,底部,左侧,后 .............................................................................................................. 3-D 3 A7 ABS控制模块发动机舱,底部,左侧,后 .............................................................................................................. 5-C 1 A11 音响仪表板,控制台........................................................................................................................... ..... 18-D 3 A11 音响仪表板,控制台........................................................................................................................... ..... 20-C 2 A26 天窗单元车顶,前,中央........................................................................................................................... ..... 15-C 2 A26 天窗单元车顶,前,中央........................................................................................................................... ..... 16-C 2 A26 天窗单元车顶,前,中央........................................................................................................................... ..... 17-C 2 A27 速度控制模块发动机舱,后,左侧.......................................................................................................................... 3-B 1 A30 组合仪表仪表板,司机侧........................................................................................................................... ..... 18-E 5 A30 组合仪表仪表板,司机侧........................................................................................................................... ..... 20-C 5 A31 油箱单元汽车车身下方,油箱上.................................................................................................................... 31-B 4 A39 时钟仪表板,中央........................................................................................................................... ......... 18-E 5 A39 时钟仪表板,中央........................................................................................................................... ......... 20-D 5 A40 变速器硬件单元变速器........................................................................................................................... ..................... 49-E 3 A40 变速器硬件单元变速器A42 司机气囊单元方向盘内A43 乘客气囊单元仪表板,手套箱内............................................................................................................................ 18-D 5 A43 乘客气囊单元仪表板,手套箱内............................................................................................................................ 20-E 4 A74 柴油泵单元发动机........................................................................................................................... ..................... 53-A 4 A97 暖气风机控制模块仪表板后方,中央A102 被动式防盗收发器模块转向柱上........................................................................................................................... ................. 30-E 3 A112 通用电子模块(GEM)左A-柱A147 动力控制模块(PCM)发动机隔板上,左侧.......................................................................................................................... 4-D 5位置页码/坐标A147 动力控制模块(PCM)发动机隔板上,左侧A148 电动后视镜折叠模块右A-柱,中央........................................................................................................................... ........ 13-B 3 A149 进气歧管流道控制(IMRC)模块发动机........................................................................................................................... ..................... 51-A 5 A151 天线车顶A157 语音/导航控制单元仪表板,控制台........................................................................................................................... ..... 18-D 2 A157 语音/导航控制单元仪表板,控制台........................................................................................................................... ...... 20-C2 A164 麦克风仪表板,司机侧A172 车门锁单元,司机侧前左前车门底部内........................................................................................................................... ..... 31-E 3 A173 车门锁单元,乘客侧前乘客车门内........................................................................................................................... ............. 31-E 2 A205 电子自动温度控制(EATC)模块仪表板后方,中央............................................................................................................................ 18-B 1 A205 电子自动温度控制(EATC)模块仪表板后方,中央A208 气囊防护控制模块(RCM)控制台........................................................................................................................... ..................... 33-C 5 A225 司机安全带卷收器预紧器司机座椅,右侧,底部A226 乘客安全带卷收器预紧器乘客座椅,左侧,底部A242 侧气囊组件,司机右C-柱上,右位驾驶(RHD) ............................................................................................................ 36-A 4 A242 侧气囊组件,司机左C-柱上,左位驾驶(LHD) ............................................................................................................ 37-E 5 A242 侧气囊组件,司机右C-柱上,右位驾驶(RHD) ............................................................................................................ 38-A 5 A242 侧气囊组件,司机左C-柱上,左位驾驶(LHD) ............................................................................................................ 39-F 5 A242 侧气囊组件,司机右C-柱上,右位驾驶(RHD) ............................................................................................................ 40-B 5 A242 侧气囊组件,司机左C-柱上,左位驾驶(LHD) ............................................................................................................ 41-E 5 A245 侧气囊组件,乘客右C-柱上,左位驾驶(LHD) ............................................................................................................ 36-A 4 A245 侧气囊组件,乘客左C-柱上,右位驾驶(RHD) ............................................................................................................ 37-E 4 A245 侧气囊组件,乘客位置页码/坐标A245 侧气囊组件,乘客左C-柱上,右位驾驶(RHD) ............................................................................................................ 39-F 4 A245 侧气囊组件,乘客右C-柱上,左位驾驶(LHD) ............................................................................................................ 40-B 4 A245 侧气囊组件,乘客左C-柱上,右位驾驶(RHD) ............................................................................................................ 41-E 4 A258 司机胸部侧气囊组件司机座椅A259 乘客胸部侧气囊组件乘客座椅A260 天线,三重尾门内,顶部,中央A275 车门锁单元,左后左后车门内........................................................................................................................... ............. 32-E 3 A276 车门锁单元,右后右后车门内........................................................................................................................................ 32-E 3 A300 暖气/A/C控制模块仪表板后方,中央............................................................................................................................ 12-E 2 B8 节气门位置传感器(TPS)发动机........................................................................................................................... ..................... 48-C 5 B8 节气门位置传感器(TPS)发动机........................................................................................................................... ..................... 49-A 3 B8 节气门位置传感器(TPS)发动机........................................................................................................................... ..................... 51-D 5 B10 发动机冷却水温度(ECT)传感器发动机........................................................................................................................... ..................... 50-B 4 B10 发动机冷却水温度(ECT)传感器发动机B11 车速传感器(VSS)发动机........................................................................................................................... ..................... 50-A 2 B11 车速传感器(VSS)发动机........................................................................................................................... ..................... 52-C 1 B11 车速传感器(VSS)发动机B14 车轮速度传感器,右前轮毂,前,右侧........................................................................................................................... ....... 6-F 2 B15 车轮速度传感器,左前轮毂,前,左....... 6-F 2 B16 车轮速度传感器,右后轮毂,后,右侧........................................................................................................................... ..... 34-F 5 B17 车轮速度传感器,左后轮毂,后,左侧........................................................................................................................... ..... 35-A 1 B22 质量空气流量(MAF)传感器进气系统内........................................................................................................................... ............. 48-B 2 B22 质量空气流量(MAF)传感器位置页码/坐标B22 质量空气流量(MAF)传感器进气系统内........................................................................................................................... ............... 5-D 5 B22 质量空气流量(MAF)传感器进气系统内........................................................................................................................... ............. 52-B 5 B36 转向位置传感器转向柱上B40 排气压力转换器(EPT)传感器发动机........................................................................................................................... ..................... 52-A 4 B41 凸轮轴位置传感器发动机,1,8 I与2,0 I ....................................................................................................................... 50-C 5 B41 凸轮轴位置传感器发动机,2,5 l ............................................................................................................................. ........ 52-F 3 B43 曲轴位置传感器发动机,1,8 I与2,050-D 1 B43 曲轴位置传感器发动机,2,5 l ............................................................................................................................. ........ 52-E 1 B44 变速器涡轮速度传感器变速器........................................................................................................................... ..................... 49-E 3 B45 爆震传感器发动机........................................................................................................................... ..................... 50-E 3 B45 爆震传感器发动机B47 催化器上游热氧传感器(H02S),左排气系统内........................................................................................................................... ............. 51-A 2 B48 催化器上游热氧传感器(H02S),右排气系统内........................................................................................................................... ............. 50-A 1 B48 催化器上游热氧传感器(H02S),右排气系统内........................................................................................................................... ............. 52-A 3 B49 EGR阀位置传感器发动机........................................................................................................................... ..................... 54-A 4 B66 室内温度传感器,左侧仪表板,控制台,左侧.................................................................................................................... 18-F 5 B66 室内温度传感器,左侧仪表板,控制台,左侧B70 大气绝对压力(BAP)传感器仪表板后方,左侧............................................................................................................................ 19-A 4 B70 大气绝对压力(BAP)传感器仪表板后方,左侧............................................................................................................................ 20-A 4 B72 日照传感器仪表板后方,中央............................................................................................................................ 19-D 5 B72 日照传感器仪表板后方,中央............................................................................................................................ 20-C 5 B88 催化器下游热氧传感器(H02S),右发动机........................................................................................................................... ..................... 50-A 3 B88 催化器下游热氧传感器(H02S),右位置页码/坐标B118 侧气囊传感器,右侧右B-柱,底端........................................................................................................................... ........ 34-B 3 B119 侧气囊传感器,左侧左B-柱,底端........................................................................................................................... ........ 35-E 3 B120 变速器档位传感器变速器........................................................................................................................... ..................... 49-D 1 B120 变速器档位传感器变速器B129 油门踏板位置传感器仪表板,司机侧B135 气缸盖温度传感器气缸盖B139 横摆率传感器仪表板后方,控制台,底端 ............................................................................................................ 18-D 2 B139 横摆率传感器仪表板后方,控制台,底端 ............................................................................................................ 20-D 1 B140 主制动压力传感器发动机舱,底端,左侧,后 .............................................................................................................. 3-C 2 B140 主制动压力传感器发动机舱,底端,左侧,后 .............................................................................................................. 5-C 2 B142 进气温度及歧管绝对压力传感器发动机舱,后,左侧.......................................................................................................................... 5-D 2 B203 大气温度传感器发动机舱,前,右侧B213 进气温度(IAT)传感器水箱护罩后方,底端.......................................................................................................................... 9-C 1 B229 前碰撞传感器发动机舱,前,右侧B240 气缸盖温度传感器气缸盖........................................................................................................................... ..................... 54-C 5 B242 座椅乘坐传感器,乘客乘客座椅下方B243 座椅位置传感器,司机司机座椅下方B244 前照灯调平传感器,后车身下方,后轴,左侧,后 ............................................................................................................ 43-D 4 B244 前照灯调平传感器,后车身下方,后轴,左侧,后 ............................................................................................................ 44-C 4 B245 前照灯调平传感器,前车轮弧室,前,左侧B246 出风温度传感器,地板仪表板后方,中央B248 电子节温器发动机........................................................................................................................... ..................... 48-A 3 B248 电子节温器。
福特蒙迪欧变速箱故障如何解决,附维修装配图解福特蒙迪欧,是一款长安福特科技含量最高、制造工艺最精良的旗舰车型,不仅搭载多项创新科技,并在至臻品质、动力系统以及安全性能等方面实现全面提升。
蒙迪欧最早搭载的是4速/5速的手自一体变速箱,在07-10年主要搭载的一款TF-81的爱信6速变速箱。
随着变速箱技术的发展,蒙迪欧在11-12年采用一款高端的6速湿式双离合—MPS6。
13年之后的蒙迪欧主要采用了福特自主研发的一款6速AT变速箱—6F35,近两年来,蒙迪欧的部分车型也在尝试搭载CVT变速箱。
本次维修的是13年福特蒙迪欧2.0T,搭载的是6F35的AT变速箱,车主反馈的问题是变速箱出现异响——齿轮声,声音非常明显,经详细询问,了解到前不久刚更换了变速箱油,且油加的过多,经常提示变速箱高温故障,放油之后便出现了此次故障。
进场后,师傅通过检测数据流,上路试车,并抬车实验检测后,确认故障为:高温损坏变速箱内部易损件,碎屑高速撞击链条齿轮致使结合松旷,出现此问题。
建议维修方案:更换链条齿轮,行星架,内部易损件。
因为车主之前跑过不下5家4S店和维修站,都对此故障判断不准,不敢维修,终于判断出问题后,加上对公司设备、人员等硬件配备信任,车主立马同意进场进行维修。
下面就是车辆车的维修全程:该车拆下变速箱时,一定要用横梁和千斤顶将悬空的发动机固定住,以防掉落。
下一步开始拆解变速箱高温致使易损件烧掉,碎渣打坏链条齿轮全修全保方案,各类需修复配件拆解阀体变扭器再制造车间展示经过师傅们3天的努力,箱子终于维修完毕装车、试车过程就不再赘述,一切顺利,车主满意交车。
变速箱的型号林林总总,但变速箱功能大同小异。
不同的车型,出现的故障表现多有相似,如何准确判断故障,正确的处理故障,需要有多年技术的沉淀。
建议广大车主出现问题不要盲目处理,多转多问,货比多家,专业的维修不仅可以准确的解决问题,也能同比的延长变速箱的使用寿命。
上海新孚美汽车自动变速箱技术服务有限公司,是一家专门致力于汽车自动变速箱维修和再制造业务的企业。
说起来福特车在国内的现状,真的是一个“唉”字不够形容啊,前几天早上刷牙时候,我听广播里说到2018年度,各大汽车厂商基本多都有销量下滑的迹象(哪怕是上汽这样的巨无霸,也下滑了,大家可以去搜搜看)但是这个新闻中最让我吃惊的是福特中国2018年下滑71%,对这个是准确数字,我记得很清楚。
想想我们上学时候,只要讲起来汽车历史,肯定是绕不过福特这个品牌的,简单说起来,就是当年阔过。
但是再看看今天的福特,尤其是在中国,真的是一言难尽。
今天这辆车是2011款的福特蒙迪欧2.0T,装配的6速湿式双离合变速箱(说到这里,多少懂得变速箱的)是的,看着这里的蒙迪欧车友你们记一下,只有上面这三年的2.0t才是这款变速箱,除此之外的车友们可以松口气了这就是传说中的蒙迪欧双离合变速箱的庐山真面目,真的是行业内的噩梦啊,故障多,配件贵现在我们开始拆解,让大家看看里面的构造,看看是不是如大家所想的那样神奇复杂和其他变速箱一样,先把油底壳拿掉最先露出来的就是阀体——整个变速箱档位变化的中心机构,油压控制中心、电脑和阀体在一起,一个是大脑,一个是心脏,都是不好惹的,当然就是一个“贵”字高度概括“盘他”这款双离合变速箱我肯要大书特书也就是阀体电脑很贵,然后就是双离合很容易出问题,而且大问题是冲击等故障,小问题就是漏油,永远漏油,直到17年后,这个问题才因为一个改进的盖子得以彻底解决各个小的口子都是要用肌肤去感受,是否磨损严重,是否有破损。
尤其是油环活塞等很所不懂的朋友变速箱出问题,第一想到的就是齿轮,其实不然,其实自动挡变速箱不论是哪种,要么是没有齿轮,要么是没有齿轮,但是都是很难坏的,非常难坏的仔细看,这个齿轮拿出来还是有点麻烦的,所以要动用专用工具这里要慢慢来,把它拿出来这就是这款神器的变速箱的基本构造,大家看下,也是配件也是很多,比起AT变速箱来说,配件数其实是很少的关于这款变速箱,我们要专门讲到:它最常见的故障——P0796:PCC性能故障或卡滞在关闭位置P0771:SSE性能故障或卡滞在关闭位置P0766:SSD性能故障卡滞在关闭位置P0841:变速箱机械压力传感器开关A 电路范围性能P0846:变速箱压力传感器开关B 电路范围性能P2089:换挡叉A卡滞P2084A:换挡叉B卡滞P2084B 换挡叉C卡滞P284E换挡B未请求运动针对P0771 或P0776单独出现卡滞故障码偶尔发生故障的车子,先用IDS读取数据流如果数据流不正常。
在本冊中之圖例、技術資訊、資料和說明文字,為我們最佳之知識,付印時最正確之資訊。
有關價格、規格、配備和保養說明,Ford 為作永續經營和不停改善之政策而保留不作通知而變更之權利。
本冊之任何部份在未經Ford 授權前,不得以任何形式,如電子、機械、影印、錄音、翻譯或其它方式而重製,儲存於回收裝置內。
本冊雖儘可能作到完整和精確,但若有疏忽和遺漏時,本公司不負任何責任。
维修技术资信网ww w.sy sx zl .c omQQ :車型年份2002.50Mondeo 採用-5速自排變速箱,此變速箱衍生自Galaxy 之5速自排變速箱。
但兩變速箱間仍有數個明顯差異,故學員資訊中對此提供詳細說明。
5前進檔和倒退檔之檔位由排成二平面三簡單式行星齒輪組來達成。
齒輪組可用自動或直接由駕駛者以選擇換檔模式來換檔。
並經由一獨立變速箱控制單元進行電子控制。
在剛開始一年,此變速箱不作維修設計,但除了各油封、主控制閥體、個別之電磁閥、扭力轉換器和變速箱檔位(TR)感知器以外。
本學員資訊提供-變速箱之概論。
包含變速箱內各元件組、不同檔位和動力流程以及變速箱控制系統設計和功能之詳細說明。
此外,概論內容亦包含變速箱油冷卻系統和外部之控制。
本學員資訊區分為數個單元,並依新的Ford 訓練概念設計成自我學習之工具。
各單元之開頭將列出經由該單元學習後可達到之目標。
各單元之結尾將有一組測驗問題,以監測學員之程度。
這些測驗題之解答在學員資訊之後面。
請記得我們的訓練方式僅供作FORD 訓練目的用。
維修和調整作業務必依工作手冊之說明和規格來實施。
請多利用Ford 技術訓練課程提供之訓練課程以得到更多之理論和實務知識。
维修技术资信网ww w.sy sx zl .c omQQ :前言...........................................................................................................................1目錄...........................................................................................................................2單元1-自排變速箱-車輛配備:5速自排變速箱變速箱說明 (7)概述 (7)變速箱橫剖面圖......................................................................................................................10扭力轉換器與扭力轉換器鎖定離合器(TCC) (12)機油泵浦 (13)第1和第2行星齒輪組..........................................................................................................14減速行星齒輪組. (16)離合器和制動帶 (18)差速器總成.............................................................................................................................20主控制閥體.. (22)辨識標籤 (24)變速箱檔位和動力流程 (24)作動概論 (25)變速箱1檔 (26)1檔之動力傳輸路徑...............................................................................................................28變速箱2檔.............................................................................................................................302檔之動力傳輸路徑 (32)维修技术资信网ww w.sy sx zl .c omQQ :變速箱3檔.............................................................................................................................343檔之動力傳輸路徑...............................................................................................................36變速箱4檔.. (38)4檔之動力傳輸路徑 (40)變速箱5檔.............................................................................................................................425檔之動力傳輸路徑 (44)變速箱倒檔 (46)倒檔之動力傳輸路徑 (48)變速箱電子控制系統 (49)概論........................................................................................................................................50變速箱控制單元. (52)換檔方式 (53)CAN 網路資料匯流排之信號傳送 (57)渦輪軸速度(TSS)感知器 (59)中間軸速度感知器..................................................................................................................60輸出軸速度(OSS)感知器.. (61)變速箱油溫度(TFT)感知器 (62)變速箱檔位(TR)感知器...........................................................................................................63選擇換檔開關. (64)停車燈開關 (66)剎車壓力開關 (67)主控制閥體內電磁閥概述.......................................................................................................68主調整閥 (69)维修技术资信网ww w.sy sx zl .c omQQ :PWM 電磁閥-2檔/4檔/5檔制動器......................................................................................70PWM 電磁閥-3檔-5檔離合器. (71)PWM 電磁閥-扭力轉換器鎖定離合器(TCC) (72)換檔電磁閥SSA 、SSB 和SSC (73)換檔電磁閥-減速制動帶.......................................................................................................74換檔電磁閥-空檔接合.. (75)排檔桿鎖定電磁閥 (76)點火鑰匙取出抑制器電磁閥....................................................................................................77儀錶板 (78)通用電子模組(GEM) (79)倒車燈繼電器 (80)變速箱電子控制系統 (80)油位檢查 (81)TR 感知器調整 (82)測驗題.....................................................................................................................83單元2-變速箱冷卻-車輛配備:5速自排變速箱變速箱冷卻 (87)冷卻迴路 (88)測驗題 (90)维修技术资信网ww w.sy sx zl .c omQQ :單元3-自動變速箱外部控制-車輛配備:5速自排變速箱外部控制 (91)排檔拉索 (92)外部控制 (93)排檔桿拉索調整 (94)測驗題解答 (95)维修技术资信网ww w.sy sx zl .c omQQ :目標在完成本單元後,你將可以:˙得到主要元件組件之概念。
˙說明扭力轉換器之設計和功能。
˙說明機油泵浦之設計和功能。
˙說明行星齒輪組之基本設計和功能。
˙說明離合器和制動帶之基本設計和功能。
˙說明差速器總成之設計和功能。
˙說明主控制閥體之基本設計和功能。
˙指出變速箱各位置。
˙說明不同齒輪如何達到變速比。
˙說明各齒輪之傳輸動力流程。
˙指出行星齒輪組各元件接合之離合器和制動帶。
˙辨識變速箱控制系統之元件。
˙指出變速箱控制單元和資料連結接頭(DLC)之安裝位置。
˙說明變速箱控制系統之基本功能和不同換檔方式。
˙說明CAN 資料匯流排之資料交換。
˙指出感知器之安裝位置,並說明其信號如何使用。
˙對主控制閥體之電磁閥作概述。
˙說明各作動器之功能並說明故障時之現象。
维修技术资信网ww w.sy sx zl .c omQQ :概論˙本5速自排變速箱由日本的自排變速箱製造廠Jatco TransTechnology 所設計。
˙它為全自動和電子控制式自排變速箱,設計供前輪驅動車輛用。
˙本自排變速箱設計之最大輸入扭力為310Nm 。
˙它用於Mondeo ,配合下列引擎:- 2.5L Duratec - 2.0L Duratorq TDCi˙變速比由在兩軸上之三行星齒輪組來完成。
各元件之驅動或固定則由4組離合器、3組制動器(含1組制動帶和2組制動器)和2組滾子式單向離合器來進行。
˙扭力轉換器鎖定離合器(TCC)可使燃油消耗率最佳化。
由變速箱控制單元視車速和引擎負荷而控制接合。
˙若車輛在一檔位接合時停下,則變速箱控制系統將使變速箱換檔至空檔(現在只配備於柴油引擎車輛)。