GB91192000国家法兰标准
- 格式:doc
- 大小:301.50 KB
- 文档页数:10
法兰标准 gb9119-2000法兰标准 gb9119-2000是中国国家标准化技术委员会发布的一项标准,主要涉及法兰的设计、尺寸、材料、连接螺栓和密封垫等内容。
该标准适用于在工业和民用领域中使用的法兰连接件,是确保设备和管道连接安全可靠的重要依据。
首先,法兰标准 gb9119-2000对法兰的设计提出了具体要求。
在设计方面,标准规定了法兰的结构形式、连接方式、密封面形状等,以确保法兰在使用过程中具有良好的连接性能和密封性能。
此外,标准还对法兰的尺寸进行了详细规定,包括外径、内径、螺孔尺寸等,以便在生产和安装过程中能够准确匹配。
其次,法兰标准 gb9119-2000对法兰材料的选择和性能要求也进行了规定。
在材料方面,标准要求法兰的材质必须符合特定的化学成分和力学性能要求,以确保法兰在使用过程中具有足够的强度和耐腐蚀性能。
此外,标准还对法兰的表面处理和防护层进行了规定,以延长法兰的使用寿命。
此外,法兰标准gb9119-2000还对法兰的连接螺栓和密封垫进行了详细的要求。
在连接螺栓方面,标准规定了螺栓的材料、强度等级、螺纹尺寸和紧固力要求,以确保法兰连接的牢固性和稳定性。
在密封垫方面,标准要求密封垫的材料、形状和尺寸必须能够确保法兰连接的密封性能,以防止介质泄漏。
总的来说,法兰标准gb9119-2000作为法兰连接件的重要标准,对法兰的设计、尺寸、材料、连接螺栓和密封垫等方面进行了全面而细致的规定,为工业和民用领域中法兰连接件的生产、安装和使用提供了重要的技术支持和保障。
因此,生产和使用单位应当严格按照该标准的要求进行生产和使用,以确保法兰连接的安全可靠。
同时,相关部门和行业组织也应当加强对该标准的宣传和推广,提高生产和使用单位的标准意识,促进法兰连接件行业的健康发展。
GB_T9119-2000《整体铸钢管法兰及盖》是我国现行的整体铸铁(钢)管法兰标准,该标准规定了整体铸铁(钢)管法兰的公称通径、公称压力、螺栓孔直径、螺栓孔数量、螺栓直径和长度、法兰垫片及法兰外圆尺寸等参数。
整体铸法兰是一种采用铸铁(钢)材料一次铸造而成的法兰,其工艺简单,成本较低,适用于低压力或中压力的管路系统。
然而,由于铸铁(钢)材料的限制,整体铸法兰的强度和耐压性能较差,通常只适用于中低压领域。
根据GB_T9119-2000标准的规定,整体铸法兰的公称通径有DN80~DN400共15种规格,公称压力有PN0.1MPa、PN0.6MPa、PN1.0MPa、PN1.6MPa和PN2.5MPa五种等级。
垫片类型包括金属垫片和非金属垫片,垫片材质包括铜、石墨、石棉、橡胶等。
根据实际使用情况,整体铸法兰在使用中存在一定的局限性。
首先,其材料为铸铁(钢),因此材料的强度和耐压性能较低,不适用于高压力的管路系统。
其次,由于铸造工艺的限制,整体铸法兰的制造精度较低,可能导致密封性能不稳定。
此外,由于垫片种类较少,无法满足各种工况下的使用需求。
为了解决这些问题,可以采用其他类型的法兰,如锻钢法兰或锻钢环槽面法兰。
这些法兰采用高强度的锻钢材料,具有较高的强度和耐压性能,适用于高压力的管路系统。
同时,锻钢法兰的制造精度较高,密封性能稳定。
此外,还可以根据实际工况选择合适的垫片类型,提高法兰的使用可靠性。
总之,GB_T9119-2000《整体铸钢管法兰及盖》标准规定了整体铸法兰的参数和要求,但在实际使用中存在一定的局限性。
为了提高法兰的可靠性和适用性,建议采用其他类型的法兰或改进现有工艺,以满足不同领域和工况的需求。
同时,应关注法兰标准的更新和发展,以适应行业技术进步和市场需求的变化。
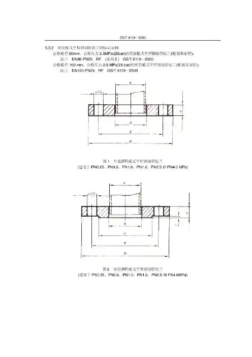
1 范围本标准规定了公称压力PN为0.25、0.6、1.0、1.6、2.5和4.0MPa的平面、突面板式平焊钢制管法兰的型式和尺寸。
本标准适用于公称压力PN0.25~PN4.0MPa的平面、突面板式平焊钢制管法兰。
2 引用标准下列标准所包含的条文,通过在本标准中引用而构成为本标准的条文。
本标准出版时,所示版本均为有效。
所有标准都会被修订,使用本标准的各方应探讨使用下列标准最新版本的可能性。
GB/T 9112—2000 钢制管法兰类型与参数GB/T 9124—2000 钢制管法兰技术条件3 法兰的型式与尺寸3.1 PN0.25、PN0.6、PN1.0、PN1.6、PN2.5和PN4.0MPa平面板式平焊钢制管法兰的型式应符合图1的规定,尺寸应符合表1~表6的规定。
3.2 PN0.25、PN0.6、PN1. 0、PN1.6、PN2.5和PN4.0MPa突面板式平焊钢制管法兰的型式应符合图2的规定,尺寸应符合表1~表6的规定。
4 法兰的技术要求4.1 法兰的技术要求应符合GB/T 9124的规定。
4.2 法兰在不同温度下的最大无冲击工作压力应符合GB/T 9124—2000附录A(标准的附录)的规定。
4.3 法兰的焊接接头型式和坡口尺寸应符合GB/T 9124—2000附录B(提示的附录)的规定。
5 标记5.1 法兰应按公称通径、公称压力、密封面型式代号、配用的钢管系列代号(配用米制管代号为“系列Ⅱ”,配用英制管不标记)和标准编号进行标记。
5.2 法兰密封面的型式代号应符合GB/T 9112的规定。
5.3 标记示例5.3.1 平面板式平焊钢制管法兰的标记示例公称通径100mm、公称压力2.5 MPa(25 bar)的平面板式平焊钢制管法兰(配用米制管):法兰 DN100-PN25 FF (系列Ⅱ) GB/T 9119—2000公称通径80mm、公称压力1.0MPa(10bar)的平面板式平焊钢制管法兰(配用英制管):法兰 DN80-PN10 FF GB/T 9119—2000国家质量技术监督局2000-09-28批准 2001-07-01实施12 5.3.2 突面板式平焊钢制管法兰的标记示例公称通径80mm 、公称压力2.5MPa(25bar)的突面板式平焊钢制管法兰(配用米制管):法兰 DN80-PN25 RF (系列Ⅱ) GB/T 9119—2000公称通径100 mm 、公称压力2.5 MPa(25 bar)的突面板式平焊钢制管法兰(配用英制管):法兰 DN100-PN25 RF GB/T 9119—2000图1 平面(FF)板式平焊钢制管法兰(适用于PN0.25、PN0.6、PN1.0、PN1.6、PN2.5和PN4.0 MPa)图2 突面(RF)板式平焊钢制管法兰(适用于PN0.25、PN0.6、PN1.0、PN1.6、PN2.5和PN4.0MPa)n ×LCB K DAn ×LDfCK d BA3表1 PN0.25 MPa (2.5bar )平面、突面板式平焊钢制管法兰 mm连接尺寸密封面螺栓 钢管外径A法兰内径B公称 通径 DN 系列Ⅰ 系列Ⅱ法兰 外径 D螺栓孔 中心圆 直径 K螺栓 孔径 L数量 n螺纹 规格d f法兰 厚度C系列Ⅰ系列Ⅱ10 15 20 25 32 40 50 65 80 100 125 150 200 250 300 350 400 450 500 600使用PN0.6MPa 法兰尺寸700 711 720 860 810 26 24 M24 772 5 36 715 724 800 813 820 975 920 30 24 M27 878 5 38 817 824 900 914 920 1 075 1 020 30 24 M27 978 5 40 918 924 1 000 1 0161 0201 175 1 120 30 28 M27 1 078 5 42 1 0201 0241 200 1 220 1 375 1 320 30 32 M27 1 295 5 44 1 224 1 400 1 420 1 575 1 520 30 36 M27 1 510 5 48 1 424 1 600 1 620 1 790 1 730 30 40 M27 1 710 5 51 1 624 1 800 1 820 1 990 1 930 30 44 M27 1 918 5 54 1 824 2 0002 0202 1902 1303048M272 1255582 0244 表2 PN0.6 MPa (6bar )平面、突面板式平焊钢制管法兰 mm连接尺寸密封面螺栓 钢管外径A法兰内径B公称 通径 DN系列Ⅰ 系列Ⅱ法兰 外径 D螺栓孔 中心圆 直径 K螺栓 孔径 L数量 n螺纹 规格d f法兰 厚度C系列Ⅰ系列Ⅱ10 17.2 14 75 50 11 4 M10 33 2 12 18 15 15 21.3 18 80 55 11 4 M10 38 2 12 22 19 20 26.9 25 90 65 11 4 M10 48 2 14 27.5 26 25 33.7 32 100 75 11 4 M10 58 2 14 34.5 33 32 42.4 38 120 90 14 4 M12 69 2 16 43.5 39 40 48.3 45 130 100 14 4 M12 78 2 16 49.5 46 50 60.3 57 140 110 14 4 M12 88 2 16 61.5 59 65 76.1 76 160 130 14 4 M12 108 2 16 77.5 78 80 88.9 89 190 150 18 4 M16 124 2 18 90.5 91 100 114.3 108 210 170 18 4 M16 144 2 18 116 110 125 139.7 133 240 200 18 8 M16 174 2 20 141.5 135 150 168.3 159 265 225 18 8 M16 199 2 20 170.5 161 200 219.1 219 320 280 18 8 M16 254 2 22 221.5 222 250 273 273 375 335 18 12 M16 309 2 24 276.5 276 300 323.9 325 440 395 22 12 M20 363 2 24 327.5 328 350 355.6 377 490 445 22 12 M20 413 2 26 359.5 380 400 406.4 426 540 4952216 M20 463228411 430450 457 480 595 550 22 16 M20 518 2 30 462 484 500 508 530 645 600 22 20 M20 568 2 32 513.5 534 600 610 630 755 705 26 20 M24 667 2 36 616.5 634 700 711 720 860 810 26 24 M24 772 5 40 715 724 800 813 820 975 920 30 24 M27 878 5 44 817 824 900 914 920 1 075 1 020 30 24 M27 978 5 48 918 924 1 000 1 0161 0201 175 1 120 30 28 M27 1 078 5 52 1 0201 0241 200 1 220 1 405 1 340 33 32 M30 1 295 5 60 1 224 1 400 1 420 1 630 1 560 36 36 M33 1 510 5 68 1 424 1 600 1 620 1 830 1 760 36 40 M33 1 7105 76 1 624 1 800 1 820 2 045 1 970 39 44 M36 1 918 5 84 1 824 2 0002 0202 2652 1804248M392 1255922 0245表3 PN1.0 MPa (10bar )平面、突面板式平焊钢制管法兰 mm连接尺寸密封面螺栓 钢管外径A法兰内径B公称 通径 DN 系列Ⅰ系列Ⅱ法兰 外径D螺栓孔 中心圆 直径 K螺栓 孔径 L数量 n螺纹 规格d f法兰 厚度C系列Ⅰ系列Ⅱ10 15 20 25 32 40 50 使用PN4.0MPa 法兰尺寸65 80 100 125 150使用PN1.6MPa 法兰尺寸 200 219.1 219 340 295228M20 266224 221.5 222250 273 273 395 350 22 12 M20 319 2 26 276.5 276 300 323.9 325 445 400 22 12 M20 370 2 28 327.5 328 350 355.6 377 505 460 22 16 M20 429 2 30 359.5 380 400 406.4 426 565 5152616M24 480232411 430450 457 480 615 565 26 20 M24 530 2 35 462 484 500 508 530 670 620 26 20 M24 582 2 38 513.5 534 600 610 630 780 725 30 20 M27 682 2 42 616.5 6346 表4 PN1.6 MPa (16bar )平面、突面板式平焊钢制管法兰 mm连接尺寸密封面螺栓 钢管外径A法兰内径B公称 通径 DN 系列Ⅰ 系列Ⅱ法兰 外径 D螺栓孔 中心圆 直径 K螺栓 孔径 L数量 n螺纹 规格d f法兰 厚度C系列Ⅰ系列Ⅱ10 15 20 25 32 40 50使用PN4.0MPa 法兰尺寸65 76.1 76 185 145 18 4 M16 118 2 20 77.5 78 80 88.9 89 200 160 18 8 M16 132 2 20 90.5 91 100 114.3 108 220 180 18 8 M16 156 2 22116 110125 139.7 133 250 210 18 8 M16 184 2 22 141.5 135 150 168.3 159 285 240 22 8M20 2112 24 170.5 161 200 219.1 219 340 2952212 M20 266226 221.5 222250 273 273 405 355 26 12 M24 319 2 28 276.5 276 300 323.9 325 460 410 26 12 M24 370 2 32 327.5 328 350 355.6 377 520 470 26 16 M24 429 2 35 359.5 380 400 406.4 426 580 5253016 M27 480238411 430450 457 480 640 585 30 20 M27 548 2 42 462 484 500 508 530 715 650 33 20 M30 609 2 46 513.5 534 600 610 630 840 770 36 20 M33 720 2 52 616.5 6347表5 PN2.5 MPa (25bar )平面、突面板式平焊钢制管法兰 mm连接尺寸密封面螺栓 钢管外径A法兰内径B公称 通径 DN 系列Ⅰ 系列Ⅱ法兰 外径 D螺栓孔 中心圆 直径 K螺栓 孔径 L数量 n螺纹 规格d f法兰 厚度C系列Ⅰ系列Ⅱ10 15 20 25 32 40 50 65 80 100 125 150使用PN4.0MPa 法兰尺寸200 219.1 219 360 3102612 M24 274232 221.5 222 250 273 273 425 370 30 12 M27 330 2 35 276.5 276 300 323.9 325 485 430 30 16 M27 389 2 38 327.5 328 350 355.6 377 555 490 33 16 M30 448 2 42 359.5 384 400 406.4 426 620 5503616 M33 503246411 430450 457 480 670 600 36 20 M33 548 2 50 462 484 500 508 530 730 660 36 20 M33 609 2 56 513.5 534 600 610 630 845 770 39 20 M36 720 268 616.5 6348 表6 PN4.0 MPa (40bar )平面、突面板式平焊钢制管法兰 mm连接尺寸密封面螺栓 钢管外径A法兰内径B公称 通径 DN系列Ⅰ 系列Ⅱ法兰 外径 D螺栓孔 中心圆 直径 K螺栓 孔径 L数量 n螺纹 规格d f法兰 厚度C系列Ⅰ系列Ⅱ10 17.2 14 90 60 14 4 M12 41 2 14 18 15 15 21.3 18 95 65 14 4 M12 46 2 14 22 19 20 26.9 25 105 75 14 4 M12 56 2 16 27.5 26 25 33.7 32 115 85 14 4 M12 65 2 16 34.5 33 32 42.4 38 140 100 18 4 M16 76 2 18 43.5 39 40 48.3 45 150 110 18 4 M16 84 2 18 49.5 46 50 60.3 57 165 125 18 4 M16 99 2 20 61.5 59 65 76.1 76 185 145 18 8 M16 118 2 22 77.5 78 80 88.9 89 200 160 18 8 M16 132 2 24 90.5 91 100 114.3 108 235 190 22 8 M20 156 2 26116 110125 139.7 133 270 220 26 8 M24 184 2 28 141.5 135 150 168.3 159 300 250268M24 211230 170.5 161200 219.1 219 375 320 30 12 M27 284 2 36 221.5 222 250 273 273 450 385 33 12 M30 345 2 42 276.5 276 300 323.9 325 515 450 33 16 M30 409 2 48 327.5 328 350 355.6 377 580 510 36 16 M33 465 2 55 359.5 380 400 406.4 426 660 585 39 16 M36 535 2 60 411 430 450 457 480 685 610 39 20 M36 560 2 66 462 484 500 508 530 755 670 42 20 M39 615 2 72 513.5 534 600 610 630 890 795 48 20 M45 735 2 84 616.5 634。
gb9119-2000法兰标准GB9119-2000法兰标准。
GB9119-2000法兰标准是中国国家标准化管理委员会发布的一项国家标准,适用于管道和设备上的法兰连接。
该标准的实施对于保障工程质量、提高工程效率具有重要意义。
本文将对GB9119-2000法兰标准的相关内容进行介绍,以便于广大工程技术人员和相关从业人员更好地了解和应用该标准。
首先,GB9119-2000法兰标准规定了法兰的型式和尺寸。
根据标准,法兰的型式包括板式法兰、对焊颈法兰、盲板法兰、螺纹法兰等,每种型式都有相应的尺寸要求。
这些规定的制定是为了保证法兰在不同工程中的互换性和通用性,确保管道和设备的连接牢固可靠。
其次,标准还规定了法兰的材质和标志。
根据标准,法兰的材质应符合相关的材料标准,以保证其在工程中的使用安全性和耐久性。
同时,法兰上应标注相关的标志信息,包括法兰的型式、尺寸、材质等,以便于工程人员进行识别和使用。
此外,标准还对法兰的连接螺栓和密封垫片进行了规定。
螺栓的选择和安装应符合相关的标准要求,以确保法兰连接的紧固可靠。
密封垫片的选择应根据工作介质和工作条件进行合理的选用,以确保法兰连接的密封性能。
最后,标准还对法兰连接的检验和验收进行了规定。
在工程施工中,应对法兰连接进行相关的检验,包括外观检查、尺寸检查、材质检查等,以确保法兰连接的质量符合标准要求。
验收时,应对法兰连接的安装情况、紧固情况、密封情况等进行检查,确保法兰连接的使用安全可靠。
综上所述,GB9119-2000法兰标准是我国管道和设备连接领域的重要标准,其实施对于保障工程质量、提高工程效率具有重要意义。
工程技术人员和相关从业人员应加强对该标准的学习和应用,以确保工程连接的质量和安全。
同时,标准化管理部门和相关单位也应加强对该标准的宣传和推广,以促进标准的全面实施和应用。
希望通过本文的介绍,能够使更多的人了解和重视GB9119-2000法兰标准,推动我国工程连接领域的规范化和标准化发展。