排水管道基础(完整)
- 格式:ppt
- 大小:223.00 KB
- 文档页数:17
135°管道基础(参标准图S460-5)
180°管道基础(参标准图S460-5)
120°管道基础(参标准图95S222-5)
180°管道基础(参标准图95S222-6)
管壁厚度列表
每米钢筋砼管应减去的数量
说明:井径在1500以上扣除砖流槽。
定型井抹面及井周灰土回填(参标准图S231-18-12~16)
***
顶管工程
1、工作坑设置:
A、每50米一工作坑一交汇坑,挖坑放坡1:0.05;
B、对于纯顶管工程或顶距较长的局招标工程,按井划分工作
坑与交汇坑。
2、工作坑、交汇坑挖方计算:
V={S上+S下+√(S上×S下) }×H÷3
4、支撑扣除:
A、管占面积: 3.14×(管半径+管皮)2
B、后背承台占面积: 管高×坑宽
5、工作坑、交汇坑土方均以人工挖方考虑,套用6-700。
当深度大于8M时,每增加1M,按上步预算定额基价×1.12; 6
道路工程
1、道路交叉口斜交面积公式:
接入不同井径应扣除长度(mm)
圆型雨水、污水定型井不同井径所对应井高(S2)
矩形雨水、污水定型井不同井径所对应的井高(S2)
圆型雨水、污水定型井不同井径所对应井高(S460)。
某市政排水管道工程全套资料(全部6道工序)要点1.引言2.云南省市政基础设施现状3.云南省市政基础设施建设的现状4.云南省市政基础设施建设的问题5.云南省市政基础设施建设的对策引言云南省市政基础设施建设是一个重要的议题。
它对于促进经济发展、改善人民生活、提高城市形象等方面都有着重要的作用。
然而,当前云南省市政基础设施建设存在着一些问题,如建设速度慢、投资不足、建设质量不高等。
因此,本文将对云南省市政基础设施建设的现状、问题及对策进行探讨。
云南省市政基础设施现状当前,云南省市政基础设施建设已经取得了一定的成绩。
在道路建设方面,省内各地已经建成了一批高速公路、快速路、城市快速路等,方便了人民出行。
在市政公用设施建设方面,城市供水、供电、供气等设施已经得到了较好的改善。
但是,云南省市政基础设施建设还存在着不少问题。
云南省市政基础设施建设的现状云南省市政基础设施建设已经进入了一个快速发展的时期。
在道路建设方面,各地政府正在积极推进高速公路、快速路、城市快速路等项目的建设。
在市政公用设施建设方面,各地政府也在加大投资力度,改善城市供水、供电、供气等设施。
同时,政府还在积极推进云南省市政基础设施建设的信息化建设,提高基础设施的管理水平。
云南省市政基础设施建设的问题云南省市政基础设施建设存在着一些问题。
首先,建设速度慢,投资不足。
其次,建设质量不高,存在着安全隐患。
再次,基础设施建设与城市规划不协调,存在着浪费现象。
此外,基础设施建设与环境保护不协调,存在着环境污染的问题。
云南省市政基础设施建设的对策为了解决上述问题,XXX需要采取一系列措施。
首先,加大投资力度,提高基础设施建设的速度和质量。
其次,加强基础设施建设与城市规划的协调,避免浪费现象。
再次,加强基础设施建设与环境保护的协调,避免环境污染。
最后,政府需要加强对基础设施建设的监管,确保基础设施建设的质量和安全。
监理抽查数据及情况记录:1.收到施工相应资料共页,收到时间未明确。
排水管道土方开挖及管道基础施工一、管沟开挖及排水基坑开挖由机械施工队负责实施,以挖掘机开挖为主,人工开挖为辅。
1、开挖前应按设计要求进行施工测量放样。
通过坐标点、路中线里程桩放出管道的中线点,在管道纵向定出基坑开挖边线,并测出1.沟槽开挖1)在进行管坑开挖前,利用在全范围进行地下管线探测,如有管线,应设置标志牌标记地下管线的种类位置和埋深,并进行保护,对施工有影响的需报设计和监理工程师进行处理。
2)开挖坑槽前,应向挖掘机司机详细交底,交底内容一般包括挖槽断面、堆土位置,现有地下构筑物情况及施工技术、安全要求等,并指定专人与司机配合,其配合人员应熟悉机械挖土有关安全操作规程,并及时量测槽底高程和宽度,防止超挖。
如超挖,超挖部分应按监理工程师同意的材料回填,并夯压密实。
3)采用挖掘机开槽,人工执平人工配合机械安管。
部分管道施工区域采用放坡开挖,放坡系数拟定为1:0.5~1:1(视土质而定);若遇软弱土层可采取放坡加压砂包的支护方式。
土质较差管段,则采取打设钢板桩加以解决,钢板桩的支护方法详“钢板桩支护方案及技术措施”。
4)管沟开挖时,先进行详细有测量定位并用石灰标示出开挖边线,复测无误后可指挥挖掘机进行开挖,挖掘机一边开挖一边后退,开挖出来的余泥堆土于坑槽外侧,同时组织散体物料运输车外运余泥,堆土坡脚距槽边1.0m以外,堆土高度不超过2.0m,堆土坡度不陡于自然坡度。
5)管沟开挖时,质安人员要加强巡视现场,密切注意周围土体的变形情况及坑槽内可能出现的涌水、涌砂及坑底土体的隆起反弹,一旦发现问题,应立即停止开挖,并知会监理工程师协同处理。
6)开挖至设计管沟底后,可在管沟槽旁边的一侧做一排水小沟,每30m设一集水井,收集管沟底的积水并用泵抽出管沟;雨季时,为防止管沟底土壤受水浸泡,预留人工整平的30.0cm一层的土体应待下一工序进行前方予挖除。
三、管沟底地基处理管沟底成形后,按照设计要求,管道基础须进行地基加固。
混凝土排水管道基础及接口施工说明【图】一、管道基础及接口选用1、开槽法施工的混凝土管道,当地基承载力特征值fak≥100kPa时,宜优先采甩砂石(土弧)基础:当fak<100kPa时,应在满足管道地基支承强度大于管道的土压力、地面车辆荷载、管道自重和管内水重等作用在地基上的总荷载时,宜采用砂石(土弧)基础。
2、采用砂石基础的雨水,污水及合流管道,必须采用柔性接口的混凝土承插口管(包括钢承口管和双插口管)或企口管。
3、采用混凝土基础的雨水、污水及合流管道,可采用刚性接口的混凝土平口管、企口管及承插口管,但埋设在下列地区(场地)时应采用柔性接口:(1)地震设防烈度为8度,设计基本地震加速度为0.20g和0.30g的III、IV 类场地设防区:(2)最高地下水位以下的淤泥类软土地区,粉,细砂地区。
4、采用混凝土基础的管道,对平口管,企口管可采用钢丝网水泥砂浆抹带,现浇混凝土套环等刚性接口:对企口管,承插口管可采用水泥砂浆,膨胀水泥砂浆等刚性接口.但每20~25m管段长度应设置一个柔性接口,柔性接口部位的现浇混凝土基础应用变形缝分离。
5、采用混凝土基础刚性接口的雨水、污水及合流管道,在下列部位管段应设置柔性接口:(1)管道上覆土高度突变对管道上作用的荷载变化较大的部位;(2)管道天然地基与经地基处理(桩基处理,复合地基处理,换土回填处理等)的交接部位;(3)地基土质变化,地基支承强度改变较大的部位;(4)管道与构筑物连接的管段,与相邻管段的接口处;(5)管道与管道,管道与构筑物交叉处,穿越的管段;(6)柔性接口的位置应设置在管道纵向容易出现不均匀沉降的部位,当管道纵向不均匀沉降的范围较大时,应在管段上连续设置一个以上的柔性接口。
6、顶进法施工应根据地层土质采用橡胶圈接口的钢承口管,双插口管或企口管。
7、砂石基础材料一般采用中,粗砂,亦可采用天然级配砂石,级配碎石,石屑等地方材料,但其最大粒径不宜大于25mm。
排水管道敷设专项施工方案(完整版) 文成县城镇管网改造工程——玉壶标段管道敷设施工方案编制单位:XXX编制时间:2016年3月18日目录一、工程概况1.项目概述2.给水管网3.污水管网一、工程概况1.项目概述本工程为文成县城镇管网改造工程——玉壶标镇中心村,涉及面积约247.27公顷,服务人口2.5万4人,共有2500户。
设计施工内容包括污水三级管网及入户管道、雨水管网、给水管道修复等。
设计图纸中坐标系为文成县独立坐标系,高程为85国家高程。
管径、井径以毫米计,除设计图纸中已注明者外。
给水管道所注标高为管中心标高,雨水管道所注标高为管内底标高。
2.给水管网给水管网包括给水主管、配水管道、入户管道、阀门井、室外消火栓、水表井、排气阀、泄水管等。
管径DN300及以上,采用球墨铸铁管;管径DN200采用PE实壁管;管径DN50-DN150采用PE实壁管;接户管DN20采用PPR管。
总长为3168米的雨水管道设有104座雨水检查井。
3.污水管网污水工程主要在已建污水主管网基础上,进行支管及入户管建设,采用开槽法施工。
D300-d400污水管用玻璃钢夹砂管,管道基础用中粗砂基础,管侧及管顶以上0.3m范围内采用细石屑回填。
d300及以上采用砖砌圆形污水井,d225及以下采用315塑料检查井。
若接入支管较多,采用600*600砖砌小方井。
接户管1-2户采用De75-110UPVC平壁管,3-4户采用De160UPVC平壁管不经化粪池直接接出。
卫生间污水接入化粪池采用De160及d225管道,其余污水支管采用d225及以上管道接出。
化粪池的布置按户数不同而定,1-2户布置一个2T,3-4户布置4T玻璃钢化粪池,5-7户布置6T砖砌化粪池,8-10户布置9T混凝土化粪池。
清扫井的直径一般为300mm,砖砌隔油池设有5座。
污水管分段做闭水试验合格后回填,并按照《给水排水管道工程施工及验收规范》GB-2008第182页附录D-D.0.1-0.2条规定执行。
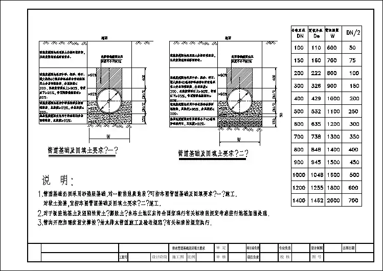
04S516混凝土排水管道基础及接口(高清有效)一、混凝土排水管道基础施工要点1. 基础处理在混凝土排水管道施工前,要对基础进行彻底处理。
清理基础表面的杂物、淤泥,确保基础坚实、平整。
对于软土地基,需进行换填、加固处理,以满足管道承载要求。
2. 基础垫层基础垫层采用砂砾石或碎石,厚度应根据地质条件和管道设计要求确定。
垫层应分层铺设,每层厚度控制在150200mm,压实度达到设计要求。
3. 基础形式混凝土排水管道基础可分为条形基础、筏板基础和桩基础等。
根据管道设计荷载、地质条件和施工条件选择合适的基础形式。
4. 基础施工基础施工时,应严格控制基础标高、中线位置和宽度。
基础混凝土浇筑前,应将基础表面清理干净,并保持湿润。
混凝土浇筑应连续进行,确保基础整体性。
二、混凝土排水管道接口施工要点1. 接口形式混凝土排水管道接口形式主要有平口、企口和承插口等。
根据管道设计要求选择合适的接口形式。
2. 接口材料接口材料应具有高强度、耐腐蚀、密封性能好等特点。
常用接口材料有橡胶圈、沥青玛蹄脂、水泥砂浆等。
3. 接口施工(1)平口接口施工:先将管道放置在基础上,调整管道位置,使管道中线重合。
然后在接口部位涂抹沥青玛蹄脂,将两根管道紧密对接。
(2)企口接口施工:先将管道放置在基础上,调整管道位置,使管道中线重合。
然后在接口部位涂抹水泥砂浆,将两根管道紧密对接。
(3)承插口接口施工:先将承口管道放置在基础上,调整位置,使管道中线重合。
然后在插口管道上涂抹润滑剂,缓慢将插口管道插入承口,直至到位。
4. 接口检查接口施工完成后,应对接口进行检查。
检查内容包括:接口间隙、接口材料填充情况、管道中线位置等。
如有问题,应及时整改。
三、施工注意事项及质量控制1. 施工注意事项(1)在施工过程中,要密切关注天气变化,避免在雨季或恶劣天气条件下进行混凝土浇筑作业。
(2)施工人员应严格按照设计图纸和施工方案进行操作,确保每道工序质量。
(3)施工现场应做好安全防护措施,确保施工人员的人身安全。
混凝土排水管道基础及接口设计详图【图】(一)D=600~3000钢筋混凝土管90°砂石基础说明:1、本图适用于开槽法施工的钢筋混凝土排水管道,设计计算基础支承角2α=60°。
2、按本图使用的钢筋混凝土排水管规格应符合GB/T11836-1999标准。
3、本图适用以下接口型式的管材:(1)采用滑动胶圈接口的承插口管(对于D≤1200的承插口管亦可采用滚动胶圈):(2)采用滑动胶圈接口的企口管;(3)采用滑动胶圈接口的双插口管:(4)采用滑动胶圈接口的钢承口管。
4、砂石基础可选择下列材料,其压实系数要求见基础断面图。
(1)天然级配砂石,其最大牲径不宜大于25;(2)中砂,粗砂;(3)级配碎石,石屑,其最大粒径不宜大于25。
5、如为承插口管,接口处承口下亦应铺设与C1层等厚的砂石基础层。
6、接口橡胶圈的物理力学性能应符合相应标准的规定,并应与管材配套供应。
7、图示开挖边坡,应根据地质报告,管道安装条件确定。
8、管道应敷设在承载能力达到管道地基支承强度要求的原状土地基或经处理,后回填密实的地基上。
9、遇有地下水时,应采取可靠的降水措施,将地下水降至槽底以下不小于0.5m,做到干槽施工。
10、地面堆积荷载不得大于10kN/m²。
(二)D=400~3000钢筋混凝土管120°砂石基础说明:1、本图适用于开槽法施工的钢筋混凝土排水管道,设计计算基础支承角2α=60°。
2、按本图使用的钢筋混凝土排水管规格应符合GB/T11836-1999标准。
3、本图适用以下接口型式的管材:(1)采用滑动胶圈接口的承插口管(对于D≤1200的承插口管亦可采用滚动胶圈):(2)采用滑动胶圈接口的企口管;(3)采用滑动胶圈接口的双插口管:(4)采用滑动胶圈接口的钢承口管。
4、砂石基础可选择下列材料,其压实系数要求见基础断面图。
(1)天然级配砂石,其最大牲径不宜大于25;(2)中砂,粗砂;(3)级配碎石,石屑,其最大粒径不宜大于25。