支撑圈冲压模具设计说明书cad图
- 格式:doc
- 大小:569.50 KB
- 文档页数:22
1. 2. 3.4.5. 6. 7. 8.9.⏹⏹⏹⏹⏹⏹⏹1. 2. 3.4. 5. 6. 7. 8.9.10.⏹⏹⏹⏹⏹⏹⏹⏹⏹⏹⏹⏹⏹⏹⏹⏹⏹⏹⏹⏹⏹⏹⏹⏹⏹⏹⏹⏹⏹⏹⏹(图4-1)。
⏹⏹⏹⏹⏹⏹⏹⏹⏹⏹⏹;表格查询函数,f为数据文件,u为行,v为列;打开数据文件;查列;查行;关闭文件;函数返回查找到的数据;列查询函数,v为查询变量,l为表,i为起始查询列;从第i列开始查询;查询项有字符串或数之分;不符合查询条件时,列数增加1;列数超过20,退出循环,显示出错信息;函数返回列数;行查询函数,u为查询变量,b为表,i为列数;表b中第i个数据;查询项有字符串或数之分;不符合查询条件时,查找下一行;函数返回符合查询要求的行(表的形式);读记录函数,f为数据文件指针;函数以表的形式返回读取的一行数据0 0.8 1.5 3 5 8 1275 (26 20) (30 22) (34 25) (40 28) (47 30) (55 35) 150 (32 22) (36 25) (40 28) (46 32) (55 35) (65 40) 200 (38 25) (42 28) (46 32) (52 36) (60 40) (75 45) 1000 (44 28) (48 30) (52 35) (60 40) (68 45) (85 50)工艺性判别(ii)排样(iii)CAM(iv)模具装配图(vi)模具零件图(vi)模具设计(v)冲裁件图形输入冲裁件尺寸输入(i)⏹⏹⏹⏹⏹⏹⏹⏹⏹⏹⏹⏹⏹⏹⏹⏹⏹⏹Dj =〔D + T l + (1-X) (T u –T l )〕δ=(1/3~1/4)(T u -T l )⏹Dj =〔D +T u + (1-X) (T l –T u )〕⏹Dj =〔D + 0.5(T l + T u )〕序号 类型 尺寸 下差1 A 50.0 -0.2 49.83 0 0.075 49.8682 B 30.0 -0.2 0.0 29.98 -0.05 0 29.9553 A 12.0 0.0 0.1 12.01 0 0.025 12.0234 C 11.0 -0.215 0.215 11 -0.054 0.054 11.05 A 20.0 -0.52 0.0 14 19.532 0 0.13 19.5976 C 40.0 -0.1 0.1 12 40 -0.025 0.025 40.07 B 3.0 0.0 0.22 14 3.198 -0.055 0 3.1718 A 10.0 -0.36 0.0 14 9.676 0 0.09 9.721。
设计任务书左支架是应用在电子、电器产品上的零件,其材料为冷轧钢板(相当于牌号Q195-Q215A),料厚为1mm,大批量生产。
一、冲压工艺性分析图1 左支架该制件形状不对称,结构复杂,本体结构为L形,侧边有一个Z形臂,前端有两个L形臂,所有结构宽度均大于2mm。
因此无悬臂和窄槽,且无尖锐角。
制件上φ3孔与边缘的最小距离b1=11-7=4mm,大于1.5倍的料厚;孔与孔之间的最小=7mm,大于2倍料厚,满足冲裁结构工艺性要求。
距离b2经上述分析,该制件包含L形、Z形和U形三种弯曲结构,其最小弯曲直边长度h=3mm>2t。
Φ3孔距离弯曲变形区的最小距离s=7mm>t+r,因此可以先冲孔后弯曲,弯曲时孔不会发生变形。
从图1可以看出,该制件尺寸精度要求较高,为IT10级,同时要求表面平整无毛刺。
材料Q195-215A,具有高的塑性、韧性和焊接性能,良好的压力加工性能,但强度低,适合冲压成形。
二、弯曲工艺参数计算1.弯曲次数分析该制件包含L形、Z形和U形三种弯曲结构,其中U形和Z形均无弯曲圆角半径,弯曲需增加整形。
L形弯曲时,圆角半径r为0.5mm,大于Q195-215A材料弯=0.1t=0.1mm),因此可以一次弯曲成形。
曲时允许的最小弯曲圆角半径(rmin2.弯曲件展开尺寸计算该制件弯曲分析如图2所示。
包含L形、Z形和U形三种弯曲结构,其中U 形和Z形均无弯曲圆角半径,L形弯曲的圆角半径r=0.5=0.5t。
经上述分析,毛坯展开尺寸按下面的方法分别计算。
图2 弯曲件毛坯展开尺寸分析图(1)U 形,Z 形弯曲展开尺寸计算根据图3,无圆角半径弯曲件的展开长度计算公式为:∑+=knt L L 直 查教材P99页表格3-12得,U 形和Z 形弯曲弯角系数k=0.45。
15.9210.451-3211L u3=⨯⨯+⨯+=)(()15.410.4528.5-167L Z =⨯⨯++=BlLltrL 1L 2t图3无圆角半径弯曲件的展开长度 图4 L 形弯曲件展开尺寸计算(2)L 形弯曲展开尺寸计算根据图4,L 形弯曲件的展开长度计算公式为:()αkt r L L L 21+++=采用无顶板弯曲,查教材P97页表格3-9得,L 形弯曲弯角系数k=0.38。
冲压模具CAD图纸设计目录摘要.............................................................................................2 前言” (3)第一章:引言........................................................................... (5)1.1模具行业的状 (5)1.3冲压工艺的种类 (5)1.2冲压工艺介绍 (5)1.4冲压行业阻力和障碍与突破 (6)第二章止动件的设计............................................................“ (13)2.1 设计题目设计一止动件 (13)2.2冲压件工艺分析 (13)2.3方案及模具结构类型 (14)2.4排样设计 (14)2.5压力与压力中心计算 (15)2.6压力中心 (16)2.7作零件刃口尺寸计算...“ (17)2.8冲床选用 (18)2.9其它模具零件结构尺寸 (19)2.10 冲孔刃口尺寸计算 (19)2.11模具的零件设计与计算 (20)第三章工艺制作 (23)3.1冲压工艺规程 (23)3.2模具制造及参考图………………………………………………………25 设计总结………………………………………………………………………… 35 参考文献…………………………………………………………………………36- 2 -冲压模具设计说明书(止动件设计)前言目的是通过课题的设计研究,培养综合运用各门课程知识的能力,培养独立分析问题和解决问题的能力。
但是,高职学生的毕业设计不能完全等同于本科生,应密切与生产实际相结合,应与培养职业能力相结合,应体现职高的特点。
在指导教师周密安排和精心指导下,这次毕业设计从确定设计课题、拟定设计方案、设计过程到毕业答辩都按照毕业设计工作计划进行。
第1章绪论1.1冲压工艺概述1.1.1 冲压工艺简介冲压是塑性加工的基本方法之一,它是利用安装在压力机上的模具,在室温下对材料施加压力使其产生变形或分离,从而获得具有一定形状、尺寸和精度的制件的一种压力加工方法。
因为它主要用于加工板料制件,所以也称板料冲压。
在机械制造中是一种高效率的加工方式。
冲压广泛应用于金属制品各行业中,尤其在汽车、仪表、军工、家用电器等工业中占有极其重要的地位。
冲压工艺有如下特点:1.能冲压出其它加工方法难以加工或无法加工的形状复杂的零件。
比如,从仪器仪表小型零件到汽车覆盖件、纵梁等大型零件,均由冲压加工完成。
2.冲压件质量稳定,尺寸精度高。
由于冲压加工是有模具成型,模具制造精度高、使用寿命长,故冲压件质量稳定,制件互换性好。
尺寸精度一般可达IT10~IT14级,最高可达到IT6级,有的制件不需要在加工,便可满足装配和使用要求。
3.冲压件具有重量轻、强度高、刚性好和表面粗糙度小等特点。
4.冲压加工生产效率极高,没有其它任何一种机械加工方法能与之相比。
比如,汽车覆盖件这样的大型冲压件的生产效率,可达每分钟数件;高速冲压小型制件,可达每分钟上千件。
5.材料利用率高,一般为70%~85%。
因此冲压件能实现少废料或无废料生产。
在某些情况下,边角余料也可充分利用。
6.操作简单,便于组织生产,易于实现机械化和自动化生产。
对操作工人的技术素质要求不高,新工人经短时培训便能上岗操作。
7.冲压的特点是模具制造时间长、制造成本高,故不适宜于单件小批量生产。
另外,冲压生产多采用机械压力机,由于滑块往复运动快,手工操作时,劳动强度大,易发生事故,故必须特别重视安全生产、安全管理以及采取必要的安全技术措施。
8.冲压模设计需要有很强的想象力与创造力,对于模具的设计者和制造者无论在理论、经验、创造力方面都要有很高的要求。
1.1.2 冲压模具的发展近年来,我国冲压模具水平已有很大提高。
大型冲压模具已能生产单套重量达50多吨的模具。
冲压模具图纸10(模具总装配图图 4 模具装配图11(模具零件图图 5 凸凹模图 6 冲孔凸模图 7 落料凹模板图 8 上模座板图 9 下模座板图 10 上垫板图 11 下垫板图 12 凸模固定板图 13 空心垫板图 14 推件块图 15 卸料板图 16 凸凹模固定板二、模具制造1. 主要模具零件加工工艺过程落料凹模加工工艺过程材料 :Gr12 硬度 : 60 , 64 HRC冲孔凸模加工工艺过程材料: T10A 硬度: 56 , 60HRC凸凹模加工工艺过程材料 :Gr12 硬度 : 60 , 64 HRC凸模固定板加工工艺过程材料 :45# 硬度 : 24 , 28 HRC凸凹模固定板加工工艺过程材料 :45# 硬度 : 24 , 28 HRC卸料板加工工艺过程材料 :45# 硬度 : 24 , 28 HRC上垫板加工工艺过程材料 :T8A 硬度 : 54 , 58 HRC下垫板加工工艺过程材料 :T8A 硬度 : 54 , 58 HRC空心垫板加工工艺过程材料 :45# 硬度 : 24 , 28 HRC上模座加工工艺过程材料 :HT200下模座加工工艺过程材料: HT200推件块加工工艺过程材料 :45# 硬度 : 24 — 28 HRC下面是赠送的保安部制度范本,不需要的可以编辑删除!!!!谢谢! 保安部工作制度一、认真贯彻党的路线、方针政策和国家的法津法觃,按照####年度目标的要求,做好####的安全保卫工作,保护全体人员和公私财物的安全,保持####正常的经营秩序和工作秩序。
二、做好消防安全工作,认真贯彻“预防为主”的方针,教育提高全体人员的消防意识和防火知识,配备、配齐####各个楼层的消防器材,管好用好各种电器设备,确保####各通道畅通,严防各种灾害事故的发生。
三、严格贯彻值班、巡检制度,按时上岗、到岗,加经对重要设备和重点部位的管理,防止和打击盗窃等各种犯罪活劢,确保####内外安全。
摘要本文介绍的模具实例结构简单实用,使用方便可靠。
本套冲压模具的设计不是以复杂模具的设计为主,而主要是对模具设计知识的系统学习和设计的练习,以达到掌握冲压模具设计的基本技能的目的。
首先,对零件做整体的分析。
包括:材料的使用、精度的要求、工序的要求以及成本的要求等。
为了降低成本,对排样方式进行了合理的设计;其次,对零件整体进行工艺设计。
通过工艺目的的设计、工序的顺序设计、压力机的选择等来实现所要达到的要求;再次,想要保证制件精度的要求,就要考虑模具刃口尺寸的计算。
因为刃口是冲制工件的主要工作部分,刃口处的精度就决定了制件的精度,就必须根据公差来进行精确计算。
最后,根据计算出的模具刃口尺寸设计出相应的凸凹模,并且查找资料选择冷冲压模的标准零件,符合标准后,就把凸凹模与其它各零部件进行总体装配。
在确定了模具体闭合高度后,选出合适的压力机在调试校验后并进行试冲加工,以达到符合的标准,最终完成加工。
关键词:冲压模具,冲压工艺,模具设计AbstractThe topic is the chain plate punching blanking compound mold design and the mold of article described an instance is simple and practical, easy to use and is reliable. This mold is not primarily designed to complex design, but mainly on a systematic study of mold design knowledge and practice, in order to achieve the purpose of master the basic skills of stamping mold design.First of all, do a thorough analysis for the parts, which include the using of the material, the requirement of accuracy and the requirement of working procedure and costs and so on. For declining low cost, proceeded the reasonable design to the row kind method. Secondly, do processing design for the whole parts and the purpose by craft designing and order of the working procedure and by the choice of punching machine. Thirdly, consider the calculation of size of the mould cutting edge in order to meet the need of accuracy. Because the cutting edge is the main working part of the punching processing, the accurate cutting edge guarantees the accurate parts. So you needed to tolerance do accurate calculation.Finally, according to the calculated the size of mold cutting edge design the corresponding punch and mold, and find information on selection criteria for cold stamping parts, meet the standards, put the punch and mold with the other components to the overall assembly. In determining the specific mold closed height, select the appropriate press in the debug and test validation washed after processing, to meet compliance standards, the final completion of the processing chain plate.Keywords:composite modulus, stamping process, mold design , punching blanking目录摘要 (1)Abstract (2)目录 (3)第1章绪论 (5)1.1 我国模具技术的现状及发展趋势 (5)1.2 冲压模的现状与发展趋势 (6)1.3 外国模具工业的发展状况 (7)1.4 课题研究的内容 (8)第2章工艺性分析 (9)2.1 零件的分析 (9)2.1.1 冲压件的尺寸精度 (9)2.1.2 生产批量 (9)2.2 工艺方案分析 (10)2.3 模具间隙的确定 (11)2.4 设备的选择 (12)第3章排样设计 (15)3.1 搭边 (17)3.2 送料进距 (17)3.3 条料宽度 (17)3.4 本章小结 (18)第4章模具总体设计 (19)4.1 模具类型的选择 (19)4.2 定位方式的选择 (19)4.3 卸料﹑出件方式的选择 (20)第5章模具的装配和冲裁模具的试冲 (21)5.1 模具的装配 (21)5.2 冲裁模具的试冲 (22)5.3 装配图 (25)结论与展望 (26)致谢 (27)参考文献 (28)第1章绪论1.1 我国模具技术的现状及发展趋势我国模具工业近年来发展很快。
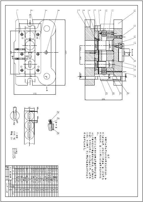
目录一、冲压件综合分析................................ . (2)1、零件图分析 (2)2、冲裁工艺及拉深工艺的审查 (2)二、零件的排样 (3)1、确定修边余量 (3)2、计算毛坯直径 (4)3、计算相对厚度 (4)4、冲裁的排样 (4)5、搭边的计算 (4)6、材料的利用率 (5)三、工艺方案的确定 (6)1、工艺方案的分析 (5)2、工序的组合和顺序确定 (5)四、主要参数设计计算 (6)1、冲裁方式及冲压力的计算 (6)2、拉深次数及拉深力的计算 (7)3、压力机的选择 (8)五、模具主要零部件设计 (8)1.1落料凸、凹模双边间隙 (8)1.2凸、凹模工作部分尺寸 (8)2.1拉深凸、凹模单边间隙 (9)2.2 拉深工件零件结构尺寸和公差的确定 (9)3、模具部件结构设计 (10)六、设计体会 (13)七、参考文献 (14)一、冲压件综合分析1、零件图分析设计题目:支撑圈的拉伸模 原始数据零件名称:支撑圈 生产批量:大批量材 料:08钢,厚度t=0.5mm 零件简图:如图所示零件图2、冲裁工艺及拉深工艺的审查⑴材料:该冲压件的材料为08钢市碳素工具钢,具有良好的可拉深性能。
制件精度要求不高,根据技术要求,由冲裁和拉深即可成型。
⑵零件的拉深工艺性分析:这是一个不带底的阶梯零件,其尺寸精度、各处的圆角半径均符合拉深工艺要求。
该零件为轴对称旋转体拉深件,变形均匀,模具加工工艺性最好。
该零件形状比较简单,可以采用落料-拉深成阶梯和底部冲孔的方案加工。
但是能否一次拉伸达到零件所需要求,需进行计算。
参照冲压手册确定合理的修边余量。
凸凹模工作部分尺寸 由图知工件底部圆角半径mm R 5.1=,所以取拉深凹模的圆角半径mm t Rd 5.15.033=⨯==。
而mm Rd Rp 5.1~9.0)1~6.0(==,现取其为mm 5.1。
这个数值满足拉深件对凸模以及凹模对其圆角半径大小的要求。
冲压模具设计(含全套说明书和CAD图纸)学校代码:10410序号:0398本科毕业论文题目:冲压模具学院:工学院姓名:胡求煜学号: 20050402专业:机械设计制造及其自动化年级:机制051指导教师:胡淑芬二OO九年五月江西农业大学工学院毕业论文〔设计〕课题申报表冲压模具毕业设计材料:08F钢板料厚度:t=1.2mm生产批量:大批量任务:编制冲压工艺方案、设计模具结构图 8·摘要本次毕业设计是完成垫板冷冲压工艺模具设计,采用落料;冲孔工艺。
设计中分析了工件的冲压工艺性,计算了毛坯排样;冲压力,刃口尺寸计算等。
进行了模具总体结构;主要零部件的设计,绘制了落料;冲孔复合模的模具装配图和零部件图。
关键词:冲压工艺模具设计装配图一引言随着我国经济的开展,模具对于现代工业来说是十分重要的,尤其是冲压技术的应用。
在各个经济部门中,几乎都要冲压加工生产,它不仅与整个机械行业密切相关,而且与人们的生活息息相关。
模具,是工业生产的根底工艺装备,在电子、汽车、电机、电器、仪表、家电和通讯等产品中,60%-80%的零部件都依靠模具成形,模具质量的上下决定着产品质量的上下,因此,模具被称之为“百业之母〞。
模具又是“效益放大器〞,用模具生产的最终产品的价值,往往是模具自身价值的几十倍、上百倍。
模具生产的工艺水平及科技含量的上下,已成为衡量一个国家科技与产品制造水平的重要标志,它在很大程度上决定着产品的质量、效益、新产品的开发能力,决定着一个国家制造业的国际竞争力。
改革开放以来,我国模具工业开展迅猛。
1996至2001年间,我国模具工业的产值年平均增长14%左右。
目前,全国共有模具生产厂点1.7万个,从业人员50多万人。
2001年全国模具工业总产值达300亿元人民币,我国模具年产值已位居世界第四。
我国模具工业的技术水平近年来也取得了长足的进步。
大型、精密、复杂、高效和长寿命模具上了一个新台阶。
大型复杂冲模以汽车覆盖件模具为代表,已能生产局部新型轿车的覆盖件模具。
设计项目设计项目示,取修边余量为mm3=δ。
2.2、拉深工序计算:拉深后半成品的大经为:mmddtt58325221=⨯+=+=δ则毛坯的直径为:1214 3.4476m t m m mmD d d h d r=+-=计算相对厚度:0 1.5100100 2.0176mtD⨯=⨯=确定拉深次数:根据48.05.33103==mdh73.15.33581==mtdd0 1.5100100 1.9776mtD⨯=⨯=拉伸系数:33.50.44dm===mmdt581=mD=76mm设计项目五、必要的尺寸计算为了提高模具的寿命和工件质量,方便安装、调整、维修模具,该简单模采用后侧导柱模架。
1、计算毛坯尺寸176239m mmL Dππ==⨯=22269mmLπφπ==⨯=2、排样设计与计算排样方法的确定:根据工件的形状,确定采用无废料排样的方法是不可能做到的,但能采用有废料和少废料的排样方法。
应为是有规则的圆形件,所以采用单排方案。
如图1—3所示,由《冲压工艺与模具设计》表2—13确定搭边值,根据零件形状,两工件间按圆件取搭边值2a mm=,侧边取搭边值12mma=。
图1—3查《冲压工艺与模具设计》表2—14和2—15可取条料宽度公差1mm∆=。
条料与导板之间的间隙01mmb=。
则板料的宽度为:()[]10012762(21)183B ammD b-∆-∆--∆=++∆+⎡⎤⎣⎦=+⨯++=mmL2261=mmL632=B-∆=0183mm-设计项目0.030.03max000()(760.50.74)75.63ddD D xσ+++=-∆=-⨯=min0.02()75.53p dD D Z-=-=图3-2 落料凸模图3-3 落料凹模保证双面间隙值minZ~m axZ=0.1~0.14mm。
4.3 拉深部分该工件要求外形尺寸,因此拉深时以凹模为基准,间隙取在凸模上。
单边间隙 1.1 1.1 1.5 1.65mmZ t==⨯=,23dp mmr r t===/40.190.1900034.59(0.75)(350.750.52)d mm mmD D+∆++==-∆=-⨯000/4/40.1932.26(0.5)(320.50.52)mm mmdp d-∆-∆-==+∆=+⨯=dD设计项目 圆角处的尺寸经分析,其以凸模成形,则以凸模为基准,间隙取在凹模上。
目录一、设计任务 (2)二、零件工艺性分析 (2)三、冲裁工艺方案的确定 (3)四、确定模具总体结构方案 (3)五、零件工艺计算 (3)六、模具零部件结构的确定 (8)七、模具其他零件的设计与计算 (9)八、模具装配图及明细表 (11)九、设计总结 (13)九、设计总结 (13)参考文献 (14)摘要在现代工业生产中,模具是重要的工艺装备之一,它在铸造、锻造、冲压橡胶等生产行业中得到了广泛应用。
由于采用模具进行生产能够提高生产效率,节约原材料,降低成本,并可保证一定的加工质量要求。
金属板料冲压是模具在工业生产中应用广泛的加工形式之一,随着市场竞争日趋加剧,产品质量不断提高,对生产的安全性,操作的方便性等要求也日益提高。
模具作为冲压生产的基本要素,其设计制造技术受到普遍重视。
本次课程设计的内容为垫圈复合模,完成冲孔、落料两道工序。
冲裁是利用模具使板料产生分离的冲压工序,它包括落料、冲孔、切口、整修及精密冲裁等。
模具作为冲压生产的基本要素,其设计制造技术受到普遍重视。
因此学习模具课程,进行模具设计也是适应现代化工业要求的。
此次垫圈的冲裁模具采用倒装结构,由打杆顶出制件;排样方式为直排,由弹性挡料销和导料销定位、导料。
模架为中间导柱圆形模架,压入式模柄。
使用creo2.0、Auto CAD2010等软件绘制相关设计图。
关键词:冲孔;落料;倒装;直排;creo2.0;Auto CAD2010全套图纸,加153893706一、设计任务:如图1所示,工件材料为H62-M ,料厚为1.5mm 。
图1二、零件工艺性分析:1.结构与尺寸分析:零件结构简单,形状对称,零件中部圆孔直径为6.5mm ,满足冲裁最小孔径mm t d 35.19.0min =≥的要求;孔与零件边缘间的最小孔边距为mm9.1625.623.40=-,冲裁件最小孔边距mm t l 95.13.1min =≥,孔边距远大于凸凹模允许的最小壁厚,因此,零件结构满足复合冲裁的要求。
冲压模具CAD前言目录模块一冲裁模具课题1 成型零件课题2 模座课题3 模柄课题4 导向装置课题5 卸料装置课题6 推件、顶件装置课题7 定位装置模块二弯曲模具课题1 成型零件课题2 模座课题3 模柄课题4 导向装置课题5 卸料装置课题6 推件、顶件装置课题7 定位装置模块三拉深模具模块四成型模具模块五汽车覆盖件模具模块二弯曲模具零件名称:支撑板生产批量:中批量材料:10钢料厚:2mm零件图:见图2-0-1图2-0-1课题1 成型零件任务1 凸模1、按照零件图(如图2-1-0)中所注尺寸生成零件的实体造型。
图2-1-02、根据实体生成二维工程图,具体要求如下:①视图采用A3图纸。
②标注尺寸数字为2.5号字。
③技术要求、标题栏及明细栏汉字采用仿宋体,3.5号字。
任务实施:一、三维造型1、创建长方体Step01 单击新建按钮,弹出“新建”对话框,如图2-1-1所示,指定文件名保存到已建好的文件夹中。
图2-1-1 图2-1-2Step02 单击“确定”进入建模环境。
在“特征”工具条中单击“长方体”按钮,弹出长方体“类型”对话框,如图2-1-2所示。
在“尺寸”选项区的长度文本框中输入“50.29”,宽度文本框中输入“48”,高度文本框中输入“50”。
Step03 单击“原点”选项区单击“点构造器”按钮,弹出点类型对话框,如图2-1-3所示。
在“坐标”选项区XC文本框中输入“-25.145”,YC文本框中输入“-24”。
Step04 单击“确定”按钮,返回长方体“类型”对话框,最后单击“确定”按钮,完成长方体的创建,完成结果如图2-1-4所示。
图2-1-3 图2-1-42、创建边倒圆Step05 在“特征操作”工具条中单击“边倒圆”按钮,弹出“边倒圆”对话框,如图2-1-5所示,在“要倒圆的边”选项区Radius1文本框中输入“2”,并选择如图2-1-6所示的两条边,单击“确定”完成R2圆角。
图2-1-5 图2-1-63、创建螺纹孔Step06 在“特征”工具条中单击“孔”按钮,弹出“孔”对话框,如图2-1-7所示,在“类型”选项区下拉菜单中选择“常规孔”,在“方向”选项区孔方向下拉菜单中选择“垂直于面”,在“形状和尺寸”选项区成形下拉菜单中选择“简单”,“尺寸”选项区直径文本框中输入“6.5”,深度文本框中输入“23”,布尔操作“求差”。
支撑圈模具设计说明书支撑圈模具设计说明书1:引言1.1 目的本文档旨在说明支撑圈模具设计的细节和要求,以确保设计符合需求并满足相关标准和法规。
2:范围2.1 产品描述支撑圈模具是用于制造支撑圈的工具,支撑圈广泛应用于各种行业中的设备和机械装配过程中。
2.2 目标受众本文档的目标受众包括设计师、工程师和制造商,以及任何参与支撑圈模具设计和制造过程中的相关人员。
3:设计要求3.1 尺寸和材料支撑圈模具的尺寸必须与最终产品的尺寸一致,应根据实际需求进行设计和制造。
材料选择应符合相关行业标准,并考虑产品使用环境和要求。
3.2 结构和构造支撑圈模具应采用合适的结构和构造,以确保使用过程中的稳定性和可靠性。
模具应易于安装和拆卸,并能够容易地调整和维修。
3.3 操作和控制支撑圈模具设计应考虑操作和控制的方便性。
设计应提供明确的指导和说明,确保操作人员能够正确地使用模具,并且操作过程安全可靠。
3.4 其他要求根据实际需求,支撑圈模具设计可能还需要满足其他特定的要求,例如防护措施、适应特殊环境等。
4:附件本文档附带以下附件:4.1 支撑圈模具设计图纸4.2 材料清单4.3 装配和安装说明4.4 操作手册5:法律名词及注释5.1 模具模具是制造过程中用于制造产品的工具或机器。
它包括形状复杂的金属组件或塑料组件,用于生产具有相同形状和尺寸的产品。
5.2 支撑圈支撑圈是一种用于提供支撑和固定的环形构件。
它常用于各种设备和机械装配中,以保证安全和稳定性。
6:结论本文档详细介绍了支撑圈模具设计的要求和细节,包括尺寸和材料、结构和构造、操作和控制等方面。
附件部分提供了支撑圈模具设计图纸、材料清单、装配和安装说明以及操作手册。
根据法律名词及注释的说明,本文档提供了相关术语的解释和理解。
第1章绪论1.1冲压工艺概述1.1.1 冲压工艺简介冲压是塑性加工的基本方法之一,它是利用安装在压力机上的模具,在室温下对材料施加压力使其产生变形或分离,从而获得具有一定形状、尺寸和精度的制件的一种压力加工方法。
因为它主要用于加工板料制件,所以也称板料冲压。
在机械制造中是一种高效率的加工方式。
冲压广泛应用于金属制品各行业中,尤其在汽车、仪表、军工、家用电器等工业中占有极其重要的地位。
冲压工艺有如下特点:1.能冲压出其它加工方法难以加工或无法加工的形状复杂的零件。
比如,从仪器仪表小型零件到汽车覆盖件、纵梁等大型零件,均由冲压加工完成。
2.冲压件质量稳定,尺寸精度高。
由于冲压加工是有模具成型,模具制造精度高、使用寿命长,故冲压件质量稳定,制件互换性好。
尺寸精度一般可达IT10~IT14级,最高可达到IT6级,有的制件不需要在加工,便可满足装配和使用要求。
3.冲压件具有重量轻、强度高、刚性好和表面粗糙度小等特点。
4.冲压加工生产效率极高,没有其它任何一种机械加工方法能与之相比。
比如,汽车覆盖件这样的大型冲压件的生产效率,可达每分钟数件;高速冲压小型制件,可达每分钟上千件。
5.材料利用率高,一般为70%~85%。
因此冲压件能实现少废料或无废料生产。
在某些情况下,边角余料也可充分利用。
6.操作简单,便于组织生产,易于实现机械化和自动化生产。
对操作工人的技术素质要求不高,新工人经短时培训便能上岗操作。
7.冲压的特点是模具制造时间长、制造成本高,故不适宜于单件小批量生产。
另外,冲压生产多采用机械压力机,由于滑块往复运动快,手工操作时,劳动强度大,易发生事故,故必须特别重视安全生产、安全管理以及采取必要的安全技术措施。
8.冲压模设计需要有很强的想象力与创造力,对于模具的设计者和制造者无论在理论、经验、创造力方面都要有很高的要求。
1.1.2 冲压模具的发展近年来,我国冲压模具水平已有很大提高。
大型冲压模具已能生产单套重量达50多吨的模具。
冲压模具设计装配图1—下模座2、15—销钉3凹模4套5 导柱 6 导套 7 上模座 8卸料板9橡胶10凸模固定板 11—垫板12—卸料螺钉13—凸模14 —模柄 16、17螺钉图2、0、1 冲裁模典型结构与模具总体设计尺寸关系图复合模得基本结构1—凸模;2—凹模;3—上模固定板;4、16—垫板;5—上模座;6—模柄;7—推杆; 8—推块; 9—推销;10—推件块;11、18—活动档料销;12—固定挡料销;13—卸料板14—凸凹模;15—下模固定板;17—下模座;19—弹簧1-下模座;2、5-销钉;3-凹模;4-凸模1-凹模;2-凸模;3-定位钉;4-压料板;5-靠板6-上模座;7-顶杆;8-弹簧; 图3、4、2 L形件弯曲模9、11-螺钉;10-可调定位板1.冲裁间隙过大时,断面将出现二次光亮带。
( × )2.冲裁件得塑性差,则断面上毛面与塌角得比例大。
( × )3.形状复杂得冲裁件,适于用凸、凹模分开加工。
( × )4.对配作加工得凸、凹模,其零件图无需标注尺寸与公差,只说明配作间隙值。
( × )5.整修时材料得变形过程与冲裁完全相同。
( × )6.利用结构废料冲制冲件,也就是合理排样得一种方法。
( ∨ )7.采用斜刃冲裁或阶梯冲裁,不仅可以降低冲裁力,而且也能减少冲裁功。
( × )8.冲裁厚板或表面质量及精度要求不高得零件时,为了降低冲裁力,一般采用加热冲裁得方法进行。
( ∨ )9.冲裁力就是由冲压力、卸料力、推料力及顶料力四部分组成。
( × )10.模具得压力中心就就是冲压件得重心。
( × )11.冲裁规则形状得冲件时,模具得压力中心就就是冲裁件得几何中心。
( × )12.在压力机得一次行程中完成两道或两道以上冲孔(或落料)得冲模称为复合模。
×13.凡就是有凸凹模得模具就就是复合模。
( × )14.在冲模中,直接对毛坯与板料进行冲压加工得零件称为工作零件。