建筑面积案例及习题
- 格式:doc
- 大小:2.28 MB
- 文档页数:32
一建《建筑工程》案例分析专项练习题2016年一建《建筑工程》案例分析专项练习题案例分析题(一)背景资料某市建筑公司承建的供电公司职工培训楼工程,地下一层,地上十二层,建筑面积24000m2,钢筋混凝土框架结构,计划竣工日期为2006年8月8日。
2006年4月28日,市建委有关管理部门按照《建筑施工安全检查标准》(JGJ59-99)等有关规定对本项目进行了安全质量大检查。
检查人员在询问项目经理有关安全职责履行情况时,项目经理认为他已配备了专职安全员,而且给予其经济奖罚等权力,他已经尽到了安全管理责任,安全搞得好坏那是专职安全员的事;在对专职安全员进行考核时,当问到《安全管理检查评分表》检查项目的保证项目有哪几项时,安全员只说到了目标管理、施工组织设计两项;检查组人员在质量检查时,还发现第二层某柱下部混凝土表面存在较严重的蜂窝现象。
检查结束后检查组进行了讲评,并宣布部分检查结果如下:(1)该工程《文明施工检查评分表轶《三宝、四口防护检查评分表》、《施工机具检查评分表》等分项检查评分表(按百分制)实得分分别为80分、85分和80分(以上分项中的满分在汇总表中分别占20分、10分和5分);(2)《起重吊装安全检查》实得分为0分;(3)汇总表得分值为79分。
【问题】1.项目经理对自己应负的安全管理责任的认识全面吗?说明理由。
2.专职安全员关于《安全管理检查评分表》中保证项目的回答还应包括哪几项?3.该工程的混凝土表面的蜂窝现象应该如何处理?4.根据各分项检查评分表的实得分换算成汇总表中相应分项的实得分。
5.本工程安全生产评价的结果属于哪个等级?说明理由。
【参考答案】1.不全面。
因为项目经理对工程项目的安全负全面领导责任。
2.还有安全生产责任制、分部(分项)工程安全技术交底、安全检查和安全教育。
3.应除掉附近不密实的混凝土和突出骨料颗粒,用水清理于净并湿润,再用高一级标号的细石混凝土填补,应振捣密实并养护。
工程造价案例分析模拟真题及答案案例分析题一拟建砖混结构教学楼建筑面积701.71m2,外墙为二砖外墙,M7.5混合砂浆砌筑,其结构形式与已建成的某工程相同,只有外墙厚度不同,其他部分均较为接近。
类似工程外墙为一砖半厚,M5.0混合砂浆砌筑,每平方米建筑面积消耗量分别为:普通粘土砖 0.535千块,砂浆0.24m3,普通粘土砖134.38元/千块,M5.0砂浆148.92元/m3,拟建工程外墙为二砖外墙,每平方米建筑面积消耗量分别为:普通粘土砖0.531千块,砂浆0.245m3,M7.5砂浆165.67元/m3。
类似工程单方造价为583元/m2,其中,人工费、材料费、机械费、间接费和其他取费占单方造价比例,分别为:18%、55%、6%、3%、18%,拟建工程与类似工程预算造价在这几方面的差异系数分别为:1.91、1.03、1.79、1.02和0.88。
问题:1.应用类似工程预算法确定拟建工程的单位工程概算造价。
2.若类似工程预算中,每平方米建筑面积主要资源消耗为:人工消耗4.8工日,水泥225kg,钢材15.8kg,木材0.05m3,铝合金门窗0.2m2,其他材料费为主材费41%,机械费占定额直接费8%,拟建工程主要资源的现行预算价格分别为:人工22.88元/工日,钢材3.2元/kg,水泥0.39元/kg,木材1700元/m3,铝合金门窗平均350 元/m2.拟建工程综合费率24%,应用概算指标法,确定拟建工程的单位工程概算造价。
解题思路:本案例主要考核利用类似工程预算法和概算指标法编制拟建工程概算的方法。
答案:问题1:(1)K=18%×1.91+55%×1.03+6%×1.79+3%×1.02+18%×0.88=1.21拟建工程概算指标=583×1.21=703.51元/m2(2)结构差异额=0.531×134.38+0.245×165.67-(0.535×134.38+0.24×148.92)=4.31元/m2(3)修正概算指标=703.51+4.31=707.82元/m2(4)拟建工程概算造价=拟建工程建筑面积×修正概算指标=701.71×707.82=496684.37元问题2:(1)计算拟建工程单位建筑面积的人工费、材料费、机械费。
建筑面积案例1.计算图示某单层房屋的建筑面积。
【解】建筑面积=外墙勒脚以上结构外围水平面积=(12+0.24)×(5+0.24)=64.14m22.如图所示,求其建筑面积。
学问是异常珍贵的东西,从任何源泉吸收都不可耻。
——阿卜·日·法拉兹【解】(1)底层建筑面积F1=18.24×8.04m2=146.65m2(2)局部二层建筑面积F2=(6+0.24)×(3+0.24)×2m2=40.44m2(3)单层厂房建筑面积=F1+F2=(146.65+40.44)m2=187.09m23.求图所示单层工业厂房高跨部分及低跨部分的建筑面积。
【解】(1)高跨部分建筑面积F1=(24+2×0.12)×(12+0.12+0.2)m2=298.64m2(2)低跨部分建筑面积F2=(24+2×0.12)×(12+6+2×0.12)-F1=(442.14-298.64)m2=143.5m2或 F2=(24+2×0.12)×(6-0.2+0.12)m2=1435m2学问是异常珍贵的东西,从任何源泉吸收都不可耻。
——阿卜·日·法拉兹4.如图所示,计算高低联跨的单层建筑物的建筑面积。
学问是异常珍贵的东西,从任何源泉吸收都不可耻。
——阿卜·日·法拉兹【解】F l(高跨)=(24+O.24×2)×(12+0.25×2)m2=306.00m2F2(低跨)=(24+0.24×2)×(6-0.25+0.24)×2m2=293.27m2F(总面积)=(306.00+293.27)m2=599.27m25.某6层砖混结构住宅楼,2~6层建筑平面图均相同,如图所示。
阳台为不封闭阳台,首层无阳台,其他均与二层相同。
建筑快题设计案例一、题目。
某城市中心拟新建一座小型文化艺术中心,基地位于两条城市支路的交汇处,基地面积为3000平方米,南北长60米,东西宽50米。
周边多为居民区,且有一所小学位于基地西侧约200米处。
要求设计该文化艺术中心,功能需包含展览厅(800平方米)、多功能厅(600平方米,可容纳300人集会)、艺术工作室(共6间,每间100平方米)、公共休息区(300平方米)以及管理办公区(200平方米)等基本功能空间。
1. 请绘制总平面图(比例尺1:500),标注各功能出入口、道路、停车场(要求至少20个停车位)、绿化等。
2. 绘制一层平面图(比例尺1:200),详细表达各功能空间布局、交通流线组织(包括人流和物流)、柱网布置(柱网建议采用8m x 8m或9m x 9m)等内容。
3. 绘制该建筑的主要立面图(任选一个,比例尺1:200),体现建筑风格与周边环境的协调关系。
4. 简单阐述你的设计理念与思路,不超过300字。
二、解析。
1. 总平面图(1:500)功能出入口:考虑到周边多为居民区和小学,展览厅、多功能厅等公共功能空间的出入口应面向城市支路,且要方便人流集散,避免对周边居民生活和小学通行造成干扰。
管理办公区可以设置相对独立的出入口。
艺术工作室的出入口可以相对灵活,但也要考虑与整体人流的关系,方便人员进出。
道路与停车场:在基地内设置环形消防车道,满足消防要求。
停车场可沿基地一侧布置,根据每个停车位约25 30平方米计算(小型汽车标准停车位),20个停车位大约需要500 600平方米的停车区域。
道路的宽度应满足车辆通行和人员疏散要求,一般主干道宽度可设置为7 9米,次干道4 6米。
绿化:在基地周边、停车场周围以及建筑周边设置绿化,起到美化环境、隔离噪音和减少灰尘的作用。
可以种植一些本地的乔木、灌木等。
2. 一层平面图(1:200)功能空间布局:展览厅应具有较好的采光和较大的空间连续性,可设置在建筑的主要位置,方便参观者进入。
案例分析题一【2014年考题】某大型综合商场工程,建筑面积49 500 m2,地下1层,地上3层,现浇钢筋混凝土框架结构,建设投资为22 000.00万元,采用工程量清单计价模式,报价执行《建设工程工程量清单计价规范》(GB 50500—2013),工期自2013年8月1日至2014年3月31日,面向国内公开招标,有6家施工单位通过了资格预审进行投标。
从工程招投标至竣工决算的过程中,发生了下列事件:事件1:市建委指定了专门的招标代理机构。
在投标期限内,先后有A、B、C三家单位对招标文件提出了疑问,建设单位以一对一的形式书面进行了答复。
经过评标委员会严格评审,最终确定E单位中标。
双方签订了施工总承包合同(幕墙工程为专业分包)。
事件2:E单位的投标报价构成如下:分部分项工程费为16 100.00万元,措施项目费为1800.00万元,安全文明施工费为322.00万元,其他项目费为1200.00万元,暂列金额为1000.00万元,管理费10%,利润5%,规费为1%,税金3.413%。
事件3:建设单位按照合同约定支付了工程预付款,但合同中未约定安全文明施工费预支付比例,双方协商按国家相关部门规定的最低预支付比例进行支付。
事件4:E施工单位对项目部安全管理工作进行检查,发现安全生产领导小组只有E单位项目经理、总工程师、专职安全管理人员。
E施工单位要求项目部整改。
事件5:2014年3月30日工程竣工验收,5月1日双方完成竣工决算,双方书面签字确认于2014年5月20日前由建设单位支付未付工程款560万元(不含5%的保修金)给E施工单位。
此后,E施工单位3次书面要求建设单位支付所欠款项,但是截至8月30日建设单位仍未支付560万元的工程款。
随即E施工单位以行使工程款优先受偿权为由,向法院提起诉讼,要求建设单位支付欠款560万元,以及拖欠利息5.2万元、违约金10万元。
问题1. 分别指出事件1中的不妥之处,并说明理由。
案例1:1.背景:某宿舍楼土建工程,建筑面积为15548㎡,全现浇钢筋混凝土结构,地下1层,地上14层。
业主要求承包单位按工料单价法以直接工程费为计算基础的程序进行计算。
计算结果如下:按工程量和工、料、机单价计算,其合价为2274.93万元;各类措施费的合计费率为7.9%,间接费费率为7.0%,利润率为5.0%,税金按国家规定取3.69%。
2.问题(1)简述直接费、间接费、规费和税金的构成。
(2)简述直接工程费、措施费的概念和构成。
(3)请用工料单价法(以直接费为基础)计算本例的建安费用。
答:(1)直接费由直接工程费和措施费构成。
间接费由企业管理费和规费构成。
企业管理费包括:管理人员工资、办公费、差旅交通费、固定资产使用费、工具用具使用费、劳动保护费、工会经费、职工教育经费、财产保险费、财务费、税金、其他。
规费:工程排污费、工程定额测定费、社会保障费(包括养老保险费、失业保险费和医疗保险费)、住房公积金、危险作业意外伤害保险费构成。
税金包括:营业税;城市维护建设税;教育费附加。
(2)直接工程费是指施工过程中耗费的构成工程实体的各项费用。
直接工程费由人工费,材料费和机械使用费构成,它们分别由工程量与相应的单价相乘得到。
措施费是指为完成工程项目施工发生于该工程施工前和施工过程中非工程实体项目的费用。
措施费由下列11(9)种费用构成。
包括:环境保护费、文明施工费、安全施工费、临时设施费、夜间施工增加费、二次搬运费、大型机械设备进出场及安拆费、混凝土、钢筋混凝土模板及支架费、脚手架费、已完工程及设备保护费、施工排水降水费。
案例2:某住宅楼工程层数为10层,檐口高度为30m,建筑面积为5000m2,施工地点在市区,该工程工料机费用为750万元,构件增值税2万元,施工技术和施工组织措施费用共计30万元,无价差,试根据2008湖北省费用定额计算该工程含税工程造价。
解:1.分部分项直接工程费750+2=752 万元2.措施费30万元3.企业管理费(1+2)×7%= 54.74万元4.规费(1+2)×6%= 46.92万元5.利润(1+2)×5%= 39.1万元6.税金(1+2 +3+4+5)×3.69%= 34.05万元7.含税工程造价1-6=956.81万元单位工程费汇总表工程名称:1#宿舍楼建筑工程第1页共 2 页工程名称:1#宿舍楼第2页共 2 页9.某建设项目,建设期为3年,第一年投资6400万元,第二年投资8400万元,第三年投资3200万元,年均投资价格上涨费率为5%,则建设期第一年、第二年的涨价预备费合计为()万元。
一建建筑师实物的案例试卷一、案例分析题(共5题,每题20分)案例一。
某建筑工程,建筑面积108000m²,现浇剪力墙结构,地下3层,地上50层。
基础埋深14.4m,底板厚3m,底板混凝土强度等级为C35/P12。
施工单位制定了底板混凝土施工方案,并选定了某商品混凝土搅拌站。
事件一:底板混凝土浇筑时当地最高大气温度38℃,混凝土入模温度40℃。
在混凝土浇筑12h后采用覆盖一层塑料膜、一层保温岩棉进行保湿保温养护7d。
事件二:在底板混凝土强度达到设计强度的50%时,拆除了部分模板。
事件三:在主体结构施工至第30层时,发现第20层部分柱子混凝土强度达不到设计要求。
经检测鉴定,需对第20层部分柱子进行加固处理,造成直接经济损失30万元。
问题:1. 指出事件一中的不妥之处,并说明理由。
(8分)2. 事件二中拆除部分模板是否妥当?说明理由。
(6分)3. 事件三属于哪类工程质量问题?应如何处理?(6分)案例二。
某新建住宅工程,建筑面积1.5万平方米,地下2层,地上11层,钢筋混凝土剪力墙结构,室内填充墙采用蒸压加气混凝土砌块,水泥砂浆砌筑。
室内卫生间采用聚氨酯防水涂料,水泥砂浆粘贴陶瓷砖。
事件一:项目部在砌筑填充墙前,按照设计要求对基层进行处理,然后进行砌筑。
砌筑过程中,灰缝厚度控制在15mm,采用“三一”砌筑法,同时设置了拉结筋。
事件二:卫生间防水层施工完成后,进行了24小时蓄水试验,未发现渗漏后,开始进行面层陶瓷砖的粘贴。
事件三:在主体结构施工过程中,发现某根框架梁的底部纵筋锚固长度不足,经设计单位核算,可以满足结构安全要求。
问题:1. 事件一中填充墙砌筑有哪些不妥之处?并改正。
(8分)2. 事件二中卫生间防水层蓄水试验有何不妥?正确做法是什么?(6分)3. 针对事件三,项目应如何处理框架梁纵筋锚固长度不足的问题?(6分)案例三。
某写字楼工程,地下1层,地上10层,框架剪力墙结构。
建设单位与施工单位签订了施工总承包合同。
2023年监理工程师之土木建筑监理案例分析练习题(一)及答案大题(共10题)一、某酒店工程,建筑面积28700m2,地下1层、地上15层,现浇筑混凝土框架结构。
建设单位依法进行招标,投标报价执行《建设工程工程量清单计价规范》(GB50500)。
共有甲、乙、丙等8家单位参加了工程投标。
经过公开开标、评标,最终确定甲施工单位中标。
建设单位与甲施工单位按照《建设工程施工合同(示范文本)》签订了施工总承包合同。
合同部分条款约定如下:①本工程合同工期为549d;②本工程采用综合单价计价模式;③包括安全文明施工费的措施费包干使用;④因建设单位责任引起的工程实体设计变更发生的费用予以调整;⑤工程预付款比例为10%(扣除暂列金额)。
工程投标及施工过程中,发生了下列事件。
事件1:在投标过程中,乙施工单位在自行投标总价基础上下浮5%进行报价。
评标小组经过认真核算,认为乙施工单位报价中的实际费用不符合《建设工程工程量清单计价规范》(GB50500)中不可作为竞争性费用条款的规定而给予废标处理。
事件2:甲施工单位投标报价书情况是:土石方工程量650m3,定额单价人工费为8.40元/m3、材料费为12.00元/m3、机械费1.60元/m3。
分部分项工程量清单合价为8200万元,措施费项目清单合价为360万元,暂列金额为50万元,其他项目清单合价为120万元,总包服务费30万元,企业管理费为15%,利润为5%,规费为2.6%,税金为3.41%。
事件3:总监理工程师根据验收记录分析,对某部位隐蔽工程的质量有怀疑,随即指令甲施工单位暂停施工,并要求剥离检验。
该部位隐蔽工程已经过专业监理工程师验收,甲施工单位称:若剥离检验,监理单位需赔偿由此造成的损失并相应延长工期。
事件4:甲施工单位加强对劳务分包单位的日常管理,坚持开展劳务实名制管理工作。
事件5:施工单位随时将建筑垃圾、废弃包装、生活垃圾等常见固体废物按相关规定进行了处理。
事件6:在基坑施工中,由于正值雨季,施工现场的排水费用比中标价中的费用超出3万元。
建筑行业事故案例分析试题及答案[案例1] 某单层工业厂房项目,檐高20m,建筑面积5800m<sup2</sup。
施工单位在拆除顶层钢模板时,将拆下的18根钢管(每根长4m)和扣件运到井字架的吊盘上,5名工人随吊盘一起从屋顶高处下落。
此时恰好操作该机械的人员去厕所未归,一名刚刚招来两天的合同工开动了卷扬机。
在卷扬机下降工程中,钢丝绳突然折断,人随吊盘下落坠地,造成2人死亡、3人重伤的恶性后果。
问题:(1)本工程这起重大事故可定为哪种等级的重大事故?依据是什么?(2)试简要分析造成这起事故的原因。
(3)重大事故发生后,事故发生单位应在24h内写出书面报告,并按规定逐级上报。
重大事故书面报告(初报表)应包括哪些内容?[案例2] 某单身公寓建筑面积32800m<sup2</sup,钢筋混凝土框架结构,箱形基础,地下1层,地上8层。
某一天,按施工进度计划要求正在搭设扣件式钢管脚手架。
安全员检查巡视时发现新购进的扣件表面粗糙,商标模糊,有的已显锈迹。
便向架子工询问,工人说,有的扣件螺栓滑丝,有的扣件一拧,小盖口就裂了。
安全员对此批扣件的质量产生了怀疑。
问题:(1)显然,该项目的脚手架工程存在着安全隐患,那么事故隐患该如何处理?(2)为防止安全事故的发生,请问安全员应如何处理此事?(3)施工安全技术措施包括哪些方面的内容?[案例3] 某六层商住楼,总建筑面积9800.72m<sup2</sup,建筑高度22.55m,框架结构,脚手架采用落地式外脚手架外挂密目安全网,地下为条形基础和独立柱基础。
1999年9月8日,工人甲由办公室去材料库房,经过施工现场时,从六层脚手架上掉下一根长脚手杆,正砸在工人甲的右臂,造成骨折。
问题:(1)请简要分析造成这起事故的原因。
(2)脚手架工程交底与验收的程序是什么?(3)施工现场对安全工作应制定工作目标。
安全管理目标主要包括哪些?[案例4] 某建筑公司中标某酒店工程。
上海市地下室计容建筑面积折算案例咱今儿就唠唠上海地下室计容建筑面积折算这事儿。
一、案例背景。
先来说说有这么一个新建的商住混合项目,就在上海的某个繁华地段。
这个项目呢,地上有高层住宅和商业裙楼,地下规划了好几层地下室,功能那是相当丰富,有停车位、设备用房,还有一些小型的储物间啥的。
二、相关规定与计算依据。
在上海啊,对于地下室计容建筑面积可是有明确规定的。
就像玩游戏得遵循规则一样。
一般来说,如果地下室是用于一些特定的公共服务功能,像消防水池、配电室这些保证整栋楼正常运转的设备用房部分,按照规定可能就不计入计容面积。
但要是有那种可售的储物间或者是部分特殊商业用途的地下室空间,那就得根据一定的比例或者规则来折算计容面积了。
比如说,规定可能提到,地下商业空间如果层高超过一定数值(假设是4.5米),那就要按照一定系数(比如说1.5)来折算计容面积。
为啥呢?因为空间高了,它在一定程度上相当于占用了更多的城市空间资源嘛。
三、具体折算案例。
这个商住混合项目的地下室一层有一部分规划为商业用途的小店面。
这部分店面的建筑面积总共是1000平方米,层高呢,恰好是5米,超过了规定的4.5米。
按照规定的系数1.5来计算,这部分地下室商业店面的计容建筑面积就变成了1000×1.5 = 1500平方米。
再看看地下室的停车区域。
停车区域属于公共服务配套设施,按照规定这部分就不计入计容面积。
所以哪怕这停车区域占了地下室很大一块面积,在计算计容建筑面积的时候,就跟它没关系,就像个隐形的部分一样。
还有设备用房那一块,比如配电室、空调机房这些地方,总共占了地下室面积的200平方米,因为是设备用房,属于保障建筑功能的必要部分,所以这200平方米也不计入计容面积。
四、影响与意义。
这么计算地下室的计容建筑面积有啥意义呢?这对开发商来说可太重要了。
如果没算好,可能就会导致建筑面积超标,要交额外的土地出让金之类的,那可就是白花花的银子往外流啊。
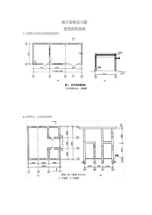
教学案例及习题建筑面积案例1.计算图示某单层房屋的建筑面积。
2.如图所示,求其建筑面积。
3.求图所示单层工业厂房高跨部分及低跨部分的建筑面积。
4.如图所示,计算高低联跨的单层建筑物的建筑面积。
5.某6层砖混结构住宅楼,2~6层建筑平面图均相同,如图所示。
阳台为不封闭阳台,首层无阳台,其他均与二层相同。
计算其建筑面积。
6.求图所示建筑物的建筑面积。
7.求图示深基础做地下架空层的建筑面积。
8.求图示建筑物的建筑面积。
土石方工程1.根据下图,计算人工平整场地工程量。
2.某地槽开挖如下图所示,不放坡,不设工作面,三类土。
试计算其工程量。
3.某工程基础如图所示,现场土质为一般土,室外设计地坪标高为-0.3m,不考虑排水沟和排水井,要求按图计算:1)人工挖地槽工程量。
2)若图中垫层上皮标高改为 1.7m,试计算人工挖地槽工程量(含清单和定额)。
3)计算槽底钎探工程量。
4)计算挖地槽回填土工程,已知混凝土基础工程量为23.61m³,砖基础工程量为17.67m³。
5)已知地面面层厚20mm,垫层厚60mm,计算室内回填土工程量;6)计算余土外运工程量。
4.某独立基础如下图所示,现场土质为一般土,室外设计地坪标高为-0.3m,垫层上皮标高为-1.8m,试计算人工挖土方工程量并计价。
5.某建筑物的基础如下图所示,三类土,计算(1)人工挖地槽工程量(2)砖基础工程量。
6.计算下图挖地槽工程量(土质为一般土)桩基础工程1.某工程用打桩机,打如图4-1所示钢筋混凝土预制方桩,共50根,求其工程量。
2.某工程有30根钢筋混凝土柱,根据上部荷载计算,每根柱下有4根350mm×350 mm方桩,桩长30 m(用2根长15 m方桩用焊接方法接桩),桩顶距自然地坪5 m,采用柴油打桩机打桩,计算桩基础工程量。
砌筑工程1.计算下图所示垫层和砖基础工程量。
2.求图所示的墙体工程量。
3.求图所示的墙体工程量4.某单层建筑物平面如图所示,层高3.6m,净高3.48m,计算高度3.48m,门窗及内外墙体、埋件体积分别见表1、表2。
(要求:计算内外墙身工程量。
)5.某砖混结构2层住宅首层平面图如图a所示,二层平面图如图b所示,基础平面图如图c 所示,基础剖面图如图d所示;钢筋混凝土屋面板上表面高度为6m,每层高均为3m,内外墙厚均为240mm;外墙均有女儿墙,高600mm,厚240mm;预制钢筋混凝土楼板、屋面板厚度均为120mm。
已知内墙砖基础为二层等高大放脚;外墙上的过梁、圈梁体积为2.5m3,内墙上的过梁、圈梁体积为1.5m3;门窗洞口尺寸:C一1为1500mm×1200mm,M一1为900mm ×2000mm,M一2为1000mm×2100mm。
计算以下工程量:(1)砖基础工程量;(2)砖外墙工程量;(3)砖内墙工程量。
6.计算如下图所示砖砌台阶工程量和综合基价。
混凝土及钢筋混凝土工程1.如图所示,共100个柱,求基础工程量。
2如图所示,求现浇钢筋混凝土独立基础工程量及综合基价。
3.如图所示,求满堂有梁基础工程量及综合基价。
4.如图所示,求独立桩承台工程量。
5.某基础尺寸做法如图所示,土为一般土,余土用翻斗车运出,运距200m,地面厚度为10㎝,要求计算基础工程量。
6.如图所示,求井式楼板工程量。
7.如图所示,求无梁板工程量。
8.如图所示,某写字楼全框架结构,现浇楼板。
结构尺寸:框架柱500mm×500mm,主梁(DL)400mm×700mm,连续梁(LL1—LL2)300mm×600mm,楼板厚l20mm,采用混凝土C30(20),水泥42.5级。
配筋与定额含量一致。
底层柱基顶面至楼板上表面5.4m,层高4.8m,2~8层层高均为3.3m。
试计算框架柱和楼板的工程量。
9.如图所示,求现浇钢筋混凝土整体楼梯工程量(已知为四层楼)。
10.如图所示,求有梁式现浇混凝土雨篷工程量。
11.如图所示,求现浇混凝土阳台工程量。
12.某单层厂房采用预制钢筋混凝土工字形牛腿柱22根,柱截面如图所示,计算该厂房柱的制作和安装及灌缝工程量。
屋面、保温工程1.某工厂车间,屋面为钢檩上铺石棉瓦,如图所示,计算瓦屋面工程量。
2.某办公楼屋面24女儿墙轴线尺寸12m×50m,平屋面构造如图示,试计算屋面工程量。
3.保温平屋面尺寸如下图所示,作法如下:空心板上1:3水泥砂浆找平20厚,1:8现浇水泥珍珠岩最薄处60厚,1:3水泥砂浆找平20厚,PVC橡胶卷材防水,要求计算相关工程量。
4.某平屋面轴线尺寸为60×24米。
防水层为SBS改性沥青卷材,防水层上卷250mm; 保温层做法:80厚水泥蛭石块保温层,保温材料找坡,最薄处80mm。
屋面坡度3%,双面设坡度。
计算防水工程量、保温层工程量。
5.试计算图所示地面防潮层的工程量。
防潮层做法如图所示。
装饰工程1.某建筑平面如下图所示,墙厚240mm,室内铺设500mm×500mm中国红大理石,试计算大理石地面的工程量。
门窗表M-11000mm×2000mmM-21200mm×2000mmM-3900mm×2400mmC-11500mm×1500mmC-21800mm×1500mmC-33000mm×1500mm2.图为某工程底层平面图,已知地面为水磨石面层,踢脚线为150mm高水磨石,试求地面的各项工程量。
3.某商店平面如图所示,地面做法:C30细石混凝土找平层60厚,1:2.5白水泥石子水磨石面层20mm厚,15mm×2mm铜条分隔,距墙柱边300mm范围内按纵横1m宽分格。
计算地面工程量。
4.某二层楼房,双跑楼梯平面图如图所示,顶面铺花岗石板(未考虑防滑条),水泥砂浆粘贴。
计算工程量。
5.某学院办公楼入口台阶如图所示,花岗石贴面,试计算其台阶工程量。
【解】工程量=(4+0.3×2)×(0.3×2+0.3)+(3.0-0.3)×(0.3×2+0.3)=4.6×0.9+2.7×0.9=6.57(m2)6.某工程如图所示,内墙面抹1:2水泥砂浆底,1:3石灰砂浆找平层,麻刀石灰浆面层,共20mm厚。
内墙裙采用1:3水泥砂浆打底(19厚),1:2.5水泥砂浆面层(6厚),计算内墙面抹灰工程量。
M:1000mm×2700mm共3个;C:1500mm×1800mm共4个7.某二层砖混结构宿舍楼,首层平面图如图所示,已知内外墙厚度均为240mm,二层以上平面图除M2的位置为C2外,其他均与首层平面图相同,层高均为3m,楼板和屋面板均为混凝土现浇板,厚度为130mm,女儿墙顶标高6.60m,室外地坪为-0.5m,混凝土地面垫层厚度为60mm,楼梯井宽度为400mm。
门窗框外围尺寸及材料见下表。
计算以下装饰工程量:(1)水泥砂浆外墙抹灰工程量;(2)水泥砂浆内墙抹灰工程量。
门窗代号尺寸备注门窗代号尺寸备注C11800×1800木M1纤维板C21750×1800铝合金M22000×2400铝合金C31200×1200木•8.某工程现浇井字梁顶棚如图所示,麻刀石灰浆面层,计算工程量。
9.预制钢筋混凝土板底吊不上人型装配式U型轻钢龙骨,间距450mm×450mm,龙骨上铺钉中密度板,面层粘贴6m厚铝塑板,尺寸如图所示,•计算顶棚工程量。
10.某三级天棚尺寸如图所示,钢筋混凝土板下吊双层楞木,•面层为塑料板,计算顶棚工程量。
11.某住宅用实木镶板门45樘,洞口尺寸如图所示,刷底油一遍,计算实木镶板门制作、安装工程量,并确定定额项目。
12.某单位车库如图所示,安装遥控电动铝合金卷闸门(带卷筒罩)3樘。
门洞口:3700mm ×3300mm,卷闸门上有一活动小门:750mm×2000mm,试计算车库卷闸门工程量。
•13.某家庭套房平面,如图所示。
门M-1为防盗门(居中立樘),门M-2、门M-5的门扇为实木镶板门扇(凸凹型),门M-3、门M-4的门扇为实木全玻门扇(网格式)。
M-1:800mm×2000mm;M-2:800mm×2000mm;M-5:750mm×2000mm。
实木门框断面50mm×100mm。
试计算防盗门的工程量及安装工程量,实木门M-2、M-5的工程量及制作安装工程量。
•••••••••••14.如图a所示,起居室的门洞M-4:3000mm×2000mm,设计做门套装饰。
筒子板构造:细木工板基层,柚木装饰面层,厚30mm。
筒子板宽300mm;贴脸构造:80mm宽柚木装饰线脚。
试计算筒子板、贴脸的清单工程量。
15.某工程如图所示尺寸,地面刷过氯乙烯涂料,•三合板木墙裙上润油粉,刷硝基清漆六遍,墙面、顶棚刷乳胶漆三遍(光面),计算工程量。
16.某工程如图所示,内墙抹灰面满刮腻子二遍,贴对花墙纸;挂镜线刷底油一遍,调合漆二遍;挂镜线以上及顶棚刷仿瓷涂料二遍,计算工程量.17.如图所示,某办公楼二层房间(不包括卫生间)及走廊地面整体面层工程。
1:2.5水泥砂浆面层厚25mm,素水泥浆一道;1:3水泥砂浆找平层厚30mm;水泥砂浆踢脚线高150mm。
外墙为37墙(偏轴),内墙为24墙(中轴),计算相关项目的工程量。