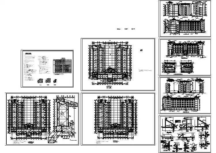
A轴立面图轴立面图轴立面图轴立面图3.3.3.3.1:10095J05 25/12,27/13( 93J801)( 93J801)11.色彩编号:注:冰白色外墙面砖闽1协外墙22.建筑色4-079金盏黄色外墙面砖面砖做法详未标明处均为 10-182建筑色协400560立面放大图95J05 25/12,27/13色彩编号:注:1.2.21冰白色外墙面砖( 93J801)协( 93J801)协1闽建筑色建筑色外墙10-182未标明处均为 面砖做法详金盏黄色外墙面砖4-07911:10080不锈钢管%%c10@50A-A6.400不锈钢管1:10A80400560801180%%c101001002002001:20剖面图6.800排气扇位置7.200400400200211.注:2.95J05 25/12,27/13冰白色外墙面砖色彩编号:4-079金盏黄色外墙面砖面砖做法详未标明处均为 10-182外墙建筑色闽1协( 93J801)( 93J801)建筑色协1:10095J05 25/12,27/13冰白色外墙面砖10-182未标明处均为 面砖做法详金盏黄色外墙面砖4-079色彩编号:建筑色外墙建筑色注:1.12.2( 93J801)( 93J801)协1闽协1:100本层灭火器配置场所的危险等级本层所需的灭火器的灭火级别每具灭火器最小配置灭火级别为 ,Q=0.7X650/20=22.8A为轻危险级;火灾种类为 类,3AA为轻危险级;火灾种类为 类,本层灭火器配置场所的危险等级A本层所需的灭火器的灭火级别每具灭火器最小配置灭火级别为 ,Q=0.7X593/20=20.8A3A每具灭火器最小配置灭火级别为 ,本层灭火器配置场所的危险等级本层所需的灭火器的灭火级别3AQ=0.7X523/20=18.3A为轻危险级;火灾种类为 类,A楼面变形缝做法详闽下排洞口底标高为600上排洞口底标高为@300X1