铝合金窗边塞缝工艺施工指引
- 格式:doc
- 大小:21.00 KB
- 文档页数:5
第一部分:主体结构类一、外窗塞缝施工工艺 1、施工条件1.1 外门窗洞口的定位、预留洞口尺寸应符合规范要求,窗框与洞口边的间隙,应符合施工标准要求。
如洞口出现偏差,当小于10mm (每边)或大于35mm (每边)时,应进行洞口处理,大于35mm 的洞口(每边)应采用细石混凝土回补。
1.2 铝合金窗框已完成安装固定,窗框的水平、垂直及对角线长度等符合质量标准。
2、工艺流程(以水泥砂浆塞缝为例) 3、施工方法及工艺要求3.1塞缝材料做法一:门窗框与墙体四边缝隙采用干硬性防水水泥砂浆塞缝;做法二:门窗框底边及两侧边上翻150mm 高范围采用干硬性防水水泥砂浆塞缝(严寒地区部分项目底边也采用发泡胶),上边及两侧边剩余部分采用打发泡胶塞缝。
以上做法,地区公司根据实际情况自行选择。
建议使用纤维聚合物微膨胀防水砂浆。
按质量比,水泥:砂:防水粉:膨胀剂:纤维丝=100:250:3:5:0.25,具体配比可按当地经验,且在夏季高温、干燥情况下不宜使用膨胀剂。
砂浆的干湿度要求是手握成团,落地即散。
塞缝做法一:常规人工塞缝工艺①塞缝前将窗框与洞口间的缠绕保护膜撕去、清理缝隙内浮浆、垃圾杂物,并浇水湿润; ②用素水泥浆涂刷一道(利于砂浆结合);③待素水泥浆快干时,用纤维聚合物微膨胀防水砂浆进行人工塞缝;④待砂浆达到强度后,取出木楔、垫块,补塞砂浆。
塞缝必须饱满密实,不允许出现裂缝、透光、空鼓现象。
第一次收口 (水泥砂浆收口)第一次塞缝(人工塞缝或“砂浆注射筒”塞缝) 第二次塞缝(待砂浆达到强度后,取出木楔、垫块,补塞砂浆)第二次收口(飘窗周边的第二次收口)涂刷防水涂料 (窗框四周涂刷“JS ”防水材料) 外窗细部构造施工(窗框周边的外墙砖铺贴,并施工窗台、滴水等细部构造)外窗密封胶施工(铝合金窗框周边四周与外墙接缝密封一道密封胶)⑤塞缝完成后第二天,浇水养护,每天2次,连续养护3天;⑥塞缝完成,砂浆达到强度后,对外窗结合部位外墙刷2mm厚防水涂膜,要求超过转角100mm,保证搭接。
一、外窗塞缝施工工艺1、施工条件外门窗洞口的定位、预留洞口尺寸应符合规范要求,窗框与洞口边的间隙,应符合施工标准要求。
如洞口出现偏差,当小于10mm(每边)或大于35mm(每边)时,应进行洞口处理,大于35mm的洞口(每边)应采用细石混凝土回补。
铝合金窗框已完成安装固定,窗框的水平、垂直及对角线长度等符合质量标准。
3、施工方法及工艺要求塞缝材料做法一:门窗框与墙体四边缝隙采用干硬性防水水泥砂浆塞缝;做法二:门窗框底边及两侧边上翻150mm高范围采用干硬性防水水泥砂浆塞缝(严寒地区部分项目底边也采用发泡胶),上边及两侧边剩余部分采用打发泡胶塞缝。
以上做法,地区公司根据实际情况自行选择。
防水水泥砂浆塞缝建议使用纤维聚合物微膨胀防水砂浆。
按质量比,水泥:砂:防水粉:膨胀剂:纤维丝=100:250:3:5:,具体配比可按当地经验,且在夏季高温、干燥情况下不宜使用膨胀剂。
砂浆的干湿度要求是手握成团,落地即散。
塞缝做法一:常规人工塞缝工艺①塞缝前将窗框与洞口间的缠绕保护膜撕去、清理缝隙内浮浆、垃圾杂物,并浇水湿润;②用素水泥浆涂刷一道(利于砂浆结合);③待素水泥浆快干时,用纤维聚合物微膨胀防水砂浆进行人工塞缝;④待砂浆达到强度后,取出木楔、垫块,补塞砂浆。
塞缝必须饱满密实,不允许出现裂缝、透光、空鼓现象。
⑤塞缝完成后第二天,浇水养护,每天2次,连续养护3天;⑥塞缝完成,砂浆达到强度后,对外窗结合部位外墙刷2mm厚防水涂膜,要求超过转角100mm,保证搭接。
塞缝做法二:“砂浆注射筒”塞缝工艺与常规塞缝工艺唯一不同的是,③待素水泥浆快干时,用“砂浆注射筒”吸取纤维聚合物微膨胀防水砂浆进行塞缝,可加快施工进度。
发泡胶塞缝①发泡胶施工前,将填充部位清洁并用水喷湿。
喷射由下向上,喷射量至所填充体积的70%;②发泡胶应连续施打、一次成型,且必须满填缝隙,超出门窗框外的发泡胶应在其固化前用手或专用工具压人缝隙中,防止发泡胶外膜破损,严禁固化后用刀片切割;③发泡胶固化后取出临时固定的木楔,并在其缝隙中打入发泡胶并用专用工具压入缝隙中。
说明;门窗框安装应在室外装饰工程施工前进行. 门窗扇与玻璃安装宜在室内装修开始前进行, 以减少装饰施工造成的破坏和污染.节点图:工艺流程:弹线定位—门窗洞口处理—在门窗框上安装固定片—门窗框就位安装—门窗框与墙体间缝隙塞缝—抹底灰—涂刷JS 防水—外饰面施工—打窗外密封胶—门窗扇与玻璃.五金配件安装—内饰面施工—打窗内密封胶—清理与验收构造做法:1 、安装固定片:门窗框与墙体普通采用固定片连接, 固定片以 1.5mm 厚的镀锌板裁制,长度根据现场需要进行加工.首先将固定片安装到门窗框上,采用直径 3.2mm 的钻头在门窗框上钻孔,然后将十字盘头自攻螺丝M4|×20mm 拧入,不得直接捶打钉入.摆布两侧固定片的安装位置应根据预留的混凝土块位置确定, 以保证门窗框安装坚固;上下两侧固定片距门窗框角部的距离不大于200mm,其余部位的固定片中心距不大于400mm,且均匀分布.2、门窗框就位安装:采用金属膨胀螺栓或者射钉,将已安装好的固定片与洞口上部的过梁、下部的混凝土窗台板〔下带〕与两侧的预留混凝土块进行固定,固定时应按对称顺序,先固定上下框,然后固定边框,暂时定位可用木楔固定.3 、门窗框与墙体间缝隙处理:作法一:门窗框与墙体四边缝隙采用干硬性水泥砂浆塞缝;作法二:门窗框底边与两侧边上翻150 高X 围采用干硬性水泥砂浆塞缝,上边与两侧边剩余部份采用打发泡胶塞缝.无论采用干硬性砂浆还是发泡胶塞缝,塞缝必须保证密实.干硬性水泥砂浆塞缝前必须先将缝隙清理干净,并将窗框与洞口间的缠绕保护膜撕去.打发泡胶前必须先将缝隙清理干净,并将窗框与洞口间的缠绕保护膜撕去,发泡胶须满填缝隙,超出门窗框外的发泡胶应在其固化前用手或者专用工具压入缝隙中,严禁固化后用刀片切割.发泡胶固化后取出暂时固定的木楔,并在其缝隙中打入发泡胶并用专用工具压人缝隙中, 同样不得在固化后用刀片切割.4、抹底灰:墙身为砌体时不能直接在砌块上涂刷JS 防水,待发泡胶固化后开始抹底灰,并对洞口四周进行粉刷收头.抹底灰前应对基层墙面进行处理,保证底灰与墙体粘结牢靠,底灰不得空鼓、裂缝.5、涂刷JS 防水:待底灰干燥后,在洞口外侧四周分多遍涂刷JS 防水,须保证其厚度不小于1.0mm,防水必须压门窗框不小于5mm 且涂刷到过门窗洞阳角50mm 处,详见节点图.6、外饰面施工:JS 防水干燥后,按照外饰面做法施工外饰面层.外饰面与门窗框交接处须留不小于6m m×6mm 的密封胶槽.7 、打窗外密封胶:外饰面完成并干燥后在外饰面与门窗框交接处的预留胶槽内打中性硅酮密封胶.8 、门窗扇与玻璃、五金配件安装:门窗扇与玻璃应在室内墙体表面装饰工程开始前安装完成.五金配件采用自攻螺钉固定,并在拧固前打密封胶,安装的五金配件应结子坚固,使用灵便.9.内饰面施工:按照内饰面做法施工内饰面层.10.打窗内密封胶内饰面完成并干燥后在内饰面与门框交接处的阴角处打中性硅酮密封胶〔毛坯房可以省略〕.质量控制点:1 、型材、玻璃进场检查;2 、预留混凝土块;3 、固定片安装验收;4 、干硬性水泥砂浆或者发泡胶塞缝密实;5 、底灰空鼓、裂缝;6 、JS 防水厚度;7 、打密封胶;8 、淋水试验.3 无保温、有企口、无副框1、当饰面较厚时,为避免饰面压门窗主框过多和因饰面过厚而产生空鼓裂缝,可采用无副框有企口的方式.这种方式可提高门窗边的防渗漏效果.当内外饰面均较厚〔如石材〕时参照"节点图1〞的做法;当内饰面较薄〔如抹灰、涂料〕、外饰面较厚〔如石材〕时参照"节点图2〞的做法.2 、当墙体为混凝土墙时,企口必须与混凝土墙同时浇筑;当墙体为砌体墙, 门窗周边必须现浇钢筋混凝土窗框,且先砌墙后浇筑;其具体做法参照总说明的 1.5 条执行.3 、为保证企口施工质量, 门窗洞口结构施工建议采用定型钢模.4、门窗安装顺序为先安装窗框、塞缝与涂刷JS 防水,再进行内饰面施工.节点图1节点图2工艺流程:弹性定位—门窗洞口处理—在门窗框上安装固定片—门窗框就位安装—门窗框与墙体间缝隙塞缝—涂刷JS 防水—外饰面施工—打窗外密封胶—门窗扇与玻璃、五金配件安装—内饰面施工—打窗内密封胶—清理与验收构造做法:1 、安装固定片:门窗框与墙体普通采用固定片连接, 固定片以 1.5mm 厚的镀锌板裁制,长度根据现场需要进行加工.首先将固定片安装到门窗框上,采用直径3.2mm 的钻头在门窗框上钻孔,然后将十字盘头自攻螺丝M4×20m m 拧入,不得直接捶入.固定片距门窗框角部的距离不大于200mm,其余部位的固定片中心距不大于400mm,且均匀分布.2、门窗框就位安装:采用金属膨胀螺栓或者射钉,将已安装好的固定片定在洞口四周, 固定时应按对称顺序,先固定上下框,然后固定边框.暂时定位可用木楔固定.3 、门窗框与墙体间缝隙处理:做法一:门窗框与墙体四周缝隙采用干硬性水泥砂浆塞缝;做法二:门窗框底边与两侧边上翻150 高X 围采用干硬性水泥砂浆塞缝,上边与两侧边剩余部份采用打发泡胶塞缝.无论采用干硬性砂浆还是发泡胶塞缝,塞缝必须保证密实.干硬性水泥砂浆塞缝前必须先将缝隙清理干净,并将窗框与洞口间的缠绕保护膜撕去.打发泡胶前必须先将缝隙清理干净,并将窗框与洞口间的缠绕保护膜撕去,发泡胶须满填缝隙, 超出门窗框外的发泡胶应在其固化前用手或者专用工具压人缝隙中,严禁固化后用刀片切割.发泡胶固化后取出暂时固定的木楔,并在其缝隙中打入发泡胶并用专用工具压入缝隙中, 同样不得在固化后用刀片切割.4 、涂刷JS 防水:塞缝砂浆干燥后或者发泡胶固化后,在洞口外侧四周分多遍涂刷JS 防水,须保证其厚度不小于1.0mm,防水必须压门窗框不小于5mm 且涂刷到过门窗洞阳角50mm 处,详见节点图.5 、外饰面施工:JS 防水干燥后,按照外饰面做法施工外饰面层. 外饰面与门窗框交接处须留不小于6m m×6mm 的密封胶槽.6 、打窗外密封胶:外饰面完成并干燥后在外饰面与门窗框交接处的预留胶槽内打中性硅酮密封胶.7 、门窗扇与玻璃、五金配件安装:门窗扇与玻璃应在室内墙体表面装饰工程开始前安装完成.五金配件采用自攻螺钉固定,并在拧固前打密封胶,安装的五金配件应结子坚固,使用灵便.1 、内饰面加工:按照内饰面做法施工内饰面层.2 、打窗内密封胶内饰面完成并干燥后在内饰面与门窗框交接处的阴角处打中性硅酮密封胶〔毛坯房可以省略〕.质量控制点:1 、型材、玻璃进场检查;2 、洞口交接与处理;3 、固定片安装验收;4 、干硬性水泥砂浆或者发泡胶塞缝密实;5 、JS 防水厚度;6 、打密封胶;7 、淋水试验.4 无保温、无企口、有副框41 混凝土墙体说明:1 、当内外饰面层均较厚〔例如石材〕时,为避免饰面层压门窗框过多,可采用有副框无企口的方式.2、施工顺序为先安装副框、塞缝与涂刷JS 防水,再进行内外饰面,待外饰面完成后再安装门窗主框和门窗.这样既可保证安装精度,又可防止门窗框被损坏、污染.节点图:工艺流程:弹线定位—门窗洞口处理—副框防腐处理〔铝合金门窗〕—副框定位安装—副框与墙体间缝隙塞缝—涂刷JS 防水—外饰面施工—安装门窗框—门窗框与副框间缝隙打发泡胶—打窗外密封胶—门窗扇与玻璃、五金配件安装—内饰面施工—打窗内密封胶—清理与验收构造做法:1 、副框防腐处理:当门窗主框为铝合金时,钢副框与铝合金型材的接触面要先做防腐处理.设计有要求时,防腐按设计要求处理,如设计没有要求,可接触面涂刷防腐涂料进行保护.2 、副框定位安装:先用木楔暂时固定副框,之后用金属膨胀螺栓将副框固定在混凝土墙体上.3 、副框与墙体间缝隙塞缝:用干硬性水泥砂浆密实填塞副框与洞口间的间隙,并在四周阴角处抹圆角;砂浆达到一定强度后取出暂时固定木楔,并用干硬性水泥砂浆密实补填该缝隙.4 、涂刷JS 防水:待干硬性塞缝砂浆干燥后,在洞口外侧四周分多遍涂刷JS 防水,须保证其厚度不小于1.0mm,防水必须全压副框且涂刷到过门窗洞阳角50mm 处,详见节点图.5 、外饰面施工:JS 防水干燥后,按照外饰面做法施工外饰面层.外饰面完成面与副框顶平齐.6 、安装门窗框:外饰面完成后采用自攻螺钉将门窗框进行固定, 自攻螺钉拧入钢副框两个壁厚,拧入前必须打入密封胶.7 、门窗框与副框间缝隙打发泡胶:在门窗框和副框间缝隙中打发泡胶,打发泡胶前应先将缝隙清理干净,并将门窗框与洞口间的缠绕保护膜撕去,多余的发泡胶应在其固化前用手或者专用工具压人缝隙中,严禁固化后用刀片切割.8 、打窗外密封胶:外饰面完成并干燥后在外饰面与门窗框交接处的阴角处打中性硅酮密封胶,高的应压门窗框不小于5mm.9 、门窗扇与玻璃、五金配件安装:门窗扇与玻璃应在室内墙体表面装饰工程开始前安装完成.五金配件采用自攻螺钉固定,并在拧固前打密封胶,安装的五金配件应结子坚固,使用灵便.10 、内饰面施工:按照内饰面做法施工内饰面层. 门窗洞边的室内饰面超厚时,在进行抹灰时应采取措施避免空鼓开裂的发生.11 、打窗内密封胶内饰面完成并干燥后在内饰面与门窗框交接处的阴角处打中性硅酮密封胶〔毛坯房可以省略〕.质量控制点:1 、型材、玻璃进场检查;2 、洞口交接与处理;3 、干硬性水泥砂浆塞缝密实;4 、JS 防水厚度;5 、发泡胶密实度;6 、打密封胶;7 、淋水试验.42 砌体墙体说明:1 、当内外饰面层均较厚〔例如石材〕时,为避免饰面层压门窗框过多,可采用有副框无企口的方式.2 、施工顺序为先安装副框、塞缝、抹底灰、涂刷JS 防水,再进行内外饰面施工,待外饰面完成后再安装门窗主框和窗扇.这样既可保证安装精度,又可防止门窗框被损坏、污染.节点图:工艺流程弹性定位—门窗洞口处理—副框防腐处理〔铝合金门窗〕—副框定位安装—副框与墙体间缝隙塞缝—抹底灰—涂刷JS 防水—外饰面施工—安装门窗框—门窗框与副框间缝隙打发泡胶—打窗外密封胶—门窗扇与玻璃、五金件安装—内饰面施工—打窗内密封胶—清理与验收构造做法:1 、副框防腐处理:当门窗主框为铝合金时,钢副框与铝合金型材的接触面要先做防腐处理.设计有要求时,防腐按设计要求处理,如设计没有要求,可接触面涂刷防腐涂料进行保护.2 、副框定位安装:先用木楔暂时固定副框,之后用金属膨胀螺栓将副框上下边固定在过梁或者混凝土下带〔窗台板〕上,两侧固定在砌体墙中预埋的混凝土墙体上.3 、副框与墙体间缝隙塞缝:用干硬性水泥砂浆密实填塞副框与洞口间缝隙,并在四周阴角处抹圆角;砂浆达到一定强度后取出暂时固定木楔,用干硬性水泥砂浆密实补填该缝隙.4 、抹底灰:墙身为砌体时不能直接在砌块上涂刷JS 防水,应先摸底层灰,对洞口四周进行粉刷收头. 摸底灰前应对基层墙面进行处理,保证底灰与墙体粘接牢靠,底灰不得空鼓、裂缝.5 、涂刷JS 防水:待底灰干燥后,在洞口外侧四周分多遍提示JS 防水,须保证其厚度不小于1.0mm,防水必须全压副框且涂刷到过门窗洞阳角50mm 处,详见节点图.6 、外饰面加工:JS 防水干燥后,按照外饰面做法施工外饰面层.外饰面完成面与副框顶平齐.7 、安装门窗框:外饰面完成后,采用自攻螺钉将门窗主框与副框进行固定, 自攻螺钉拧入钢副框两个壁厚,拧入前必须打入密封胶.8 、门窗框与副框间缝隙打发泡胶:在门窗框和副框间缝隙中打发泡胶,打发泡胶前应先将缝隙清理干净,并将门窗框与洞口间的缠绕保护膜撕去,多余的发泡胶应在其固化前用手或者专用工具压入缝隙中,严禁固化后用刀片切割.9 、打窗外密封胶:外饰面完成并干燥后在外饰面与门窗框交接处的阴角处打中性硅酮密封胶,高度应压门窗框不小于5mm.10 、门窗扇与玻璃、五金配件安装:门窗扇与玻璃应在室内墙体表面装饰工程开始前安装完成.五金配件采用自攻螺钉固定,并在拧固前打密封胶,安装的五金配件应结子坚固,使用灵便.11 、内饰面施工:按照内饰面做法施工内饰面层. 门窗洞边的室内饰面超厚时,在进行抹灰时应采取措施避免空鼓开裂的发生.12 、打窗内密封胶内饰面完成并干燥后在内饰面与门窗框交接处的阴角处打中性硅酮密封胶〔毛坯房可以省略〕.质量控制点:1 、型材、玻璃进场检查;2 、预留混凝土块;3 、干硬性水泥砂浆塞缝密实;4 、JS 防水厚度;5 、发泡胶密实;6 、打密封胶;7 、淋水试验.5、无保温、有企口、有副框1、当外饰面较厚〔例如石材〕、内饰面较薄〔例如涂料〕,室内外饰面厚度差较大时,为避免外饰面压门窗框过多和因内饰面抹灰过厚饿而产生空鼓裂缝,可采用有副框有企口的方式. 这种方式可提高门窗边的防渗漏效果.2 、当墙体为混凝土墙时,企口必须与混凝土墙同时浇筑;当墙体为砌体墙时, 门窗周边必须现浇钢筋混凝土包框,且先砌墙后浇框;其具体做法参照 1.5 条执行.3 、为保证企口施工质量, 门窗洞口结构施工建议采用定型钢模.4 、门窗安装顺序为先安装副框、塞缝与涂刷JS 防水,再进行内外饰面施工,待外饰面完成后再安装门窗框和门窗.这样既可保证安装精度,又可防止门窗框被损坏、污染.节点图:工艺流程:打窗外密封胶—门窗扇与玻璃、五金配件安装—内饰面施工—打窗内密封胶—清理与验收构造做法:1 、副框防腐处理:当门窗主框为铝合金时,钢副框与铝合金型材的接触面要先做防腐处理.设计有要求时,防腐按设计要求处理,如设计没有要求,可接触面涂刷防腐涂料进行保护.2 、副框定位安装:先用木楔暂时固定副框,之后用金属膨胀螺栓将副框固定在混凝土墙体上.3 、副框与墙体间缝隙塞缝:用干硬性水泥砂浆密实填塞副框与洞口间缝隙,并在四周阴角处抹圆角;砂浆达到一定强度后取出暂时固定木楔,用干硬性水泥砂浆密实补填该缝隙.4 、涂刷JS 防水:待干硬性塞缝砂浆干燥后,在洞口外侧四周分多遍涂刷JS 防水,须保证其厚度不小于1.0mm,防水必须全压副框且涂刷到过门窗洞阳角50mm 处,详见节点图.5 、外饰面加工:JS 防水干燥后,按照外饰面做法施工外饰面层.外饰面完成面与副框顶平齐.6 、安装门窗框:外饰面完成后,采用自攻螺钉将门窗框与副框进行固定, 自攻螺钉拧入钢副框两个壁厚, 拧入前必须打入密封胶.7 、门窗框与副框间缝隙打发泡胶:在门窗框和副框间缝隙中打发泡胶,打发泡胶前应先将缝隙清理干净,并将门窗框与洞口间的缠绕保护膜撕去,多余的发泡胶应在其固化前用手或者专用工具压入缝隙中,严禁固化后用刀片切割.8 、打窗外密封胶:外饰面完成并干燥后在外饰面与门窗框交接处的阴角处打中性硅酮密封胶,高度应压门窗框不小于5mm.9 、门窗扇与玻璃、五金配件安装:门窗扇与玻璃应在室内墙体表面装饰工程开始前安装完成.五金配件采用自攻螺钉固定,并在拧固前打密封胶,安装的五金配件应结子坚固,使用灵便.10 、内饰面施工:按照内饰面做法施工内饰面层. 门窗洞边的室内饰面超厚时,在进行抹灰时应采取措施避免空鼓开裂的发生.11 、打窗内密封胶内饰面完成并干燥后在内饰面与门窗框交接处的阴角处打中性硅酮密封胶〔毛坯房可以省略〕.质量控制点:1 、型材、玻璃进场检查;2、洞口交接与处理;3 、干硬性水泥砂浆塞缝密实;4 、JS 防水厚度;5、发泡胶密实度;6、打密封胶;弹线定位—门窗洞口处理—副框防腐处理〔铝合金门窗〕—副框定位安装—副框与墙体间缝隙塞缝—涂刷JS 防水—外饰面施工—安装门窗框—门窗框与副框间缝隙打发泡胶—。
铝合金门窗塞缝工艺(总4页)本页仅作为文档封面,使用时可以删除This document is for reference only-rar21year.March第一部分:主体结构类一、外窗塞缝施工工艺1、施工条件外门窗洞口的定位、预留洞口尺寸应符合规范要求,窗框与洞口边的间隙,应符合施工标准要求。
如洞口出现偏差,当小于10mm(每边)或大于35mm(每边)时,应进行洞口处理,大于35mm的洞口(每边)应采用细石混凝土回补。
铝合金窗框已完成安装固定,窗框的水平、垂直及对角线长度等符合质量标准。
2、工艺流程(以水泥砂浆塞缝为例)3、施工方法及工艺要求塞缝材料做法一:门窗框与墙体四边缝隙采用干硬性防水水泥砂浆塞缝;做法二:门窗框底边及两侧边上翻150mm高范围采用干硬性防水水泥砂浆塞缝(严寒地区部分项目底边也采用发泡胶),上边及两侧边剩余部分采用打发泡胶塞缝。
以上做法,地区公司根据实际情况自行选择。
防水水泥砂浆塞缝建议使用纤维聚合物微膨胀防水砂浆。
按质量比,水泥:砂:防水粉:膨胀剂:纤维丝=100:250:3:5:,具体配比可按当地经验,且在夏季高温、干燥情况下不宜使用膨胀剂。
砂浆的干湿度要求是手握成团,落地即散。
塞缝做法一:常规人工塞缝工艺①塞缝前将窗框与洞口间的缠绕保护膜撕去、清理缝隙内浮浆、垃圾杂物,并浇水湿润;②用素水泥浆涂刷一道(利于砂浆结合);③待素水泥浆快干时,用纤维聚合物微膨胀防水砂浆进行人工塞缝;④待砂浆达到强度后,取出木楔、垫块,补塞砂浆。
塞缝必须饱满密实,不允许出现裂缝、透光、空鼓现象。
⑤塞缝完成后第二天,浇水养护,每天2次,连续养护3天;⑥塞缝完成,砂浆达到强度后,对外窗结合部位外墙刷2mm 厚防水涂膜,要求超过转角100mm ,保证搭接。
塞缝做法二:“砂浆注射筒”塞缝工艺与常规塞缝工艺唯一不同的是,③待素水泥浆快干时,用“砂浆注射筒”吸取纤维聚合物微膨胀防水砂浆进行塞缝,可加快施工进度。
第一部分:主体结构类一、外窗塞缝施工工艺1、施工条件1.1 外门窗洞口的定位、预留洞口尺寸应符合规范要求,窗框与洞口边的间隙,应符合施工标准要求。
如洞口出现偏差,当小于10mm (每边)或大于35mm(每边)时,应进行洞口处理,大于35mm的洞口(每边)应采用细石混凝土回补。
1.2 铝合金窗框已完成安装固定,窗框的水平、垂直及对角线长度等符合质量标准。
23、施工方法及工艺要求3.1塞缝材料做法一:门窗框与墙体四边缝隙采用干硬性防水水泥砂浆塞缝;做法二:门窗框底边及两侧边上翻150mm高范围采用干硬性防水水泥砂浆塞缝(严寒地区部分项目底边也采用发泡胶),上边及两侧边剩余部分采用打发泡胶塞缝。
以上做法,地区公司根据实际情况自行选择。
3.1.1防水水泥砂浆塞缝建议使用纤维聚合物微膨胀防水砂浆。
按质量比,水泥:砂:防水粉:膨胀剂:纤维丝=100:250:3:5:0.25,具体配比可按当地经验,且在夏季高温、干燥情况下不宜使用膨胀剂。
砂浆的干湿度要求是手握成团,落地即散。
塞缝做法一:常规人工塞缝工艺①塞缝前将窗框与洞口间的缠绕保护膜撕去、清理缝隙内浮浆、垃圾杂物,并浇水湿润;②用素水泥浆涂刷一道(利于砂浆结合);③待素水泥浆快干时,用纤维聚合物微膨胀防水砂浆进行人工塞缝;④待砂浆达到强度后,取出木楔、垫块,补塞砂浆。
塞缝必须饱满密实,不允许出现裂缝、透光、空鼓现象。
⑤塞缝完成后第二天,浇水养护,每天2次,连续养护3天;⑥塞缝完成,砂浆达到强度后,对外窗结合部位外墙刷2mm厚防水涂膜,要求超过转角100mm,保证搭接。
塞缝做法二:“砂浆注射筒”塞缝工艺与常规塞缝工艺唯一不同的是,③待素水泥浆快干时,用“砂浆注射筒”吸取纤维聚合物微膨胀防水砂浆进行塞缝,可加快施工进度。
3.1.2发泡胶塞缝①发泡胶施工前,将填充部位清洁并用水喷湿。
喷射由下向上,喷射量至所填充体积的70%;②发泡胶应连续施打、一次成型,且必须满填缝隙,超出门窗框外的发泡胶应在其固化前用手或专用工具压人缝隙中,防止发泡胶外膜破损,严禁固化后用刀片切割;③发泡胶固化后取出临时固定的木楔,并在其缝隙中打入发泡胶并用专用工具压入缝隙中。
一、外窗塞缝施工工艺1、施工条件外门窗洞口的定位、预留洞口尺寸应切合规范要求,窗框与洞口边的空隙,应切合施工标准要求。
如洞口出现误差,当小于10mm(每边)或大于35mm(每边)时,应进行洞口办理,大于 35mm的洞口(每边)应采纳细石混凝土回补。
铝合金窗框已达成安装固定,窗框的水平、垂直及对角线长度等切合质量标准。
2、工艺流程(以水泥沙浆塞缝为例)第一次收口(水泥沙浆收口)第一次塞缝第二次塞缝(待沙浆达到强度后,拿出木楔、第二次收口(飘窗周边的第二次收口)涂刷防水涂料(窗框周围涂刷“ JS”防水资料)外窗细部结构施工(窗框周边的外墙砖铺贴,并施工外窗密封胶施工(铝合金窗框周边周围与外墙接缝3、施工方法及工艺要求塞缝资料做法一:门窗框与墙体四边空隙采纳干硬性防水水泥沙浆塞缝;做法二:门窗框底边及双侧边上翻 150mm高范围采纳干硬性防水水泥沙浆塞缝(寒冷地域部分项目底边也采纳发泡胶),上面及双侧边节余部分采纳打发泡胶塞缝。
以上做法,地域企业依据实质状况自行选择。
防水水泥沙浆塞缝建议使用纤维聚合物微膨胀防水沙浆。
按质量比,水泥:砂:防水粉:膨胀剂:纤维丝=100:250:3:5: ,详细配比可按当地经验,且在夏天高温、干燥状况下不宜使用膨胀剂。
沙浆的干湿度要求是手握成团,落地即散。
塞缝做法一:惯例人工塞缝工艺①塞缝前将窗框与洞口间的环绕保护膜撕去、清理空隙内浮浆、垃圾杂物,并浇水润湿;②用素水泥浆涂刷一道(利于沙浆联合);③待素水泥浆快干时,用纤维聚合物微膨胀防水沙浆进行人工塞缝;④待沙浆达到强度后,拿出木楔、垫块,补塞沙浆。
塞缝一定饱满密实,不同意出现裂痕、透光、空鼓现象。
⑤塞缝达成后次日,浇水保养,每日2 次,连续保养 3 天;⑥塞缝达成,沙浆达到强度后,对外窗联合部位外墙刷 2mm厚防水涂膜,要求超出转角 100mm,保证搭接。
塞缝做法二:“沙浆注射筒”塞缝工艺与惯例塞缝工艺独一不一样的是,③待素水泥浆快干时,用“沙浆注射筒”汲取纤维聚合物微膨胀防水沙浆进行塞缝,可加速施工进度。
第一部分:主体结构类一、外窗塞缝施工工艺1、施工条件1.1 外门窗洞口的定位、预留洞口尺寸应符合规范要求,窗框与洞口边的间隙,应符合施工标准要求。
如洞口出现偏差,当小于10mm(每边)或大于35mm (每边)时,应进行洞口处理,大于35mm的洞口(每边)应采用细石混凝土回补。
1.2 铝合金窗框已完成安装固定,窗框的水平、垂直及对角线长度等符合质量标准。
2、工艺流程(以水泥砂浆塞缝为例)3、施工方法及工艺要求3.1塞缝材料做法一:门窗框与墙体四边缝隙采用干硬性防水水泥砂浆塞缝;做法二:门窗框底边及两侧边上翻150mm高范围采用干硬性防水水泥砂浆塞缝(严寒地区部分项目底边也采用发泡胶),上边及两侧边剩余部分采用打发泡胶塞缝。
以上做法,地区公司根据实际情况自行选择。
3.1.1防水水泥砂浆塞缝建议使用纤维聚合物微膨胀防水砂浆。
按质量比,水泥:砂:防水粉:膨胀剂:纤维丝=100:250:3:5:0.25,具体配比可按当地经验,且在夏季高温、干燥情况下不宜使用膨胀剂。
砂浆的干湿度要求是手握成团,落地即散。
塞缝做法一:常规人工塞缝工艺①塞缝前将窗框与洞口间的缠绕保护膜撕去、清理缝隙内浮浆、垃圾杂物,并浇水湿润;②用素水泥浆涂刷一道(利于砂浆结合);③待素水泥浆快干时,用纤维聚合物微膨胀防水砂浆进行人工塞缝;④待砂浆达到强度后,取出木楔、垫块,补塞砂浆。
塞缝必须饱满密实,不允许出现裂缝、透光、空鼓现象。
⑤塞缝完成后第二天,浇水养护,每天2次,连续养护3天;⑥塞缝完成,砂浆达到强度后,对外窗结合部位外墙刷2mm厚防水涂膜,要求超过转角100mm,保证搭接。
塞缝做法二:“砂浆注射筒”塞缝工艺与常规塞缝工艺唯一不同的是,③待素水泥浆快干时,用“砂浆注射筒”吸取纤维聚合物微膨胀防水砂浆进行塞缝,可加快施工进度。
3.1.2发泡胶塞缝①发泡胶施工前,将填充部位清洁并用水喷湿。
喷射由下向上,喷射量至所填充体积的70%;②发泡胶应连续施打、一次成型,且必须满填缝隙,超出门窗框外的发泡胶应在其固化前用手或专用工具压人缝隙中,防止发泡胶外膜破损,严禁固化后用刀片切割;③发泡胶固化后取出临时固定的木楔,并在其缝隙中打入发泡胶并用专用工具压入缝隙中。
第一部分:主体结构类一、外窗塞缝施工工艺1、施工条件1.1 外门窗洞口的定位、预留洞口尺寸应符合规范要求,窗框与洞口边的间隙,应符合施工标准要求。
如洞口出现偏差,当小于10mm (每边)或大于35mm(每边)时,应进行洞口处理,大于35mm的洞口(每边)应采用细石混凝土回补。
1.2 铝合金窗框已完成安装固定,窗框的水平、垂直及对角线长度等符合质量标准。
23、施工方法及工艺要求3.1塞缝材料做法一:门窗框与墙体四边缝隙采用干硬性防水水泥砂浆塞缝;做法二:门窗框底边及两侧边上翻150mm高范围采用干硬性防水水泥砂浆塞缝(严寒地区部分项目底边也采用发泡胶),上边及两侧边剩余部分采用打发泡胶塞缝。
以上做法,地区公司根据实际情况自行选择。
3.1.1防水水泥砂浆塞缝建议使用纤维聚合物微膨胀防水砂浆。
按质量比,水泥:砂:防水粉:膨胀剂:纤维丝=100:250:3:5:0.25,具体配比可按当地经验,且在夏季高温、干燥情况下不宜使用膨胀剂。
砂浆的干湿度要求是手握成团,落地即散。
塞缝做法一:常规人工塞缝工艺①塞缝前将窗框与洞口间的缠绕保护膜撕去、清理缝隙内浮浆、垃圾杂物,并浇水湿润;②用素水泥浆涂刷一道(利于砂浆结合);③待素水泥浆快干时,用纤维聚合物微膨胀防水砂浆进行人工塞缝;④待砂浆达到强度后,取出木楔、垫块,补塞砂浆。
塞缝必须饱满密实,不允许出现裂缝、透光、空鼓现象。
⑤塞缝完成后第二天,浇水养护,每天2次,连续养护3天;⑥塞缝完成,砂浆达到强度后,对外窗结合部位外墙刷2mm厚防水涂膜,要求超过转角100mm,保证搭接。
塞缝做法二:“砂浆注射筒”塞缝工艺与常规塞缝工艺唯一不同的是,③待素水泥浆快干时,用“砂浆注射筒”吸取纤维聚合物微膨胀防水砂浆进行塞缝,可加快施工进度。
3.1.2发泡胶塞缝①发泡胶施工前,将填充部位清洁并用水喷湿。
喷射由下向上,喷射量至所填充体积的70%;②发泡胶应连续施打、一次成型,且必须满填缝隙,超出门窗框外的发泡胶应在其固化前用手或专用工具压人缝隙中,防止发泡胶外膜破损,严禁固化后用刀片切割;③发泡胶固化后取出临时固定的木楔,并在其缝隙中打入发泡胶并用专用工具压入缝隙中。
第一部分:主体结构类一、外窗塞缝施工工艺1、施工条件1.1 外门窗洞口的定位、预留洞口尺寸应符合规范要求,窗框与洞口边的间隙,应符合施工标准要求。
如洞口出现偏差,当小于10mm (每边)或大于35mm(每边)时,应进行洞口处理,大于35mm的洞口(每边)应采用细石混凝土回补。
1.2 铝合金窗框已完成安装固定,窗框的水平、垂直及对角线长度等符合质量标准。
23、施工方法及工艺要求3.1塞缝材料做法一:门窗框与墙体四边缝隙采用干硬性防水水泥砂浆塞缝;做法二:门窗框底边及两侧边上翻150mm高范围采用干硬性防水水泥砂浆塞缝(严寒地区部分项目底边也采用发泡胶),上边及两侧边剩余部分采用打发泡胶塞缝。
以上做法,地区公司根据实际情况自行选择。
3.1.1防水水泥砂浆塞缝建议使用纤维聚合物微膨胀防水砂浆。
按质量比,水泥:砂:防水粉:膨胀剂:纤维丝=100:250:3:5:0.25,具体配比可按当地经验,且在夏季高温、干燥情况下不宜使用膨胀剂。
砂浆的干湿度要求是手握成团,落地即散。
塞缝做法一:常规人工塞缝工艺①塞缝前将窗框与洞口间的缠绕保护膜撕去、清理缝隙内浮浆、垃圾杂物,并浇水湿润;②用素水泥浆涂刷一道(利于砂浆结合);③待素水泥浆快干时,用纤维聚合物微膨胀防水砂浆进行人工塞缝;④待砂浆达到强度后,取出木楔、垫块,补塞砂浆。
塞缝必须饱满密实,不允许出现裂缝、透光、空鼓现象。
⑤塞缝完成后第二天,浇水养护,每天2次,连续养护3天;⑥塞缝完成,砂浆达到强度后,对外窗结合部位外墙刷2mm厚防水涂膜,要求超过转角100mm,保证搭接。
塞缝做法二:“砂浆注射筒”塞缝工艺与常规塞缝工艺唯一不同的是,③待素水泥浆快干时,用“砂浆注射筒”吸取纤维聚合物微膨胀防水砂浆进行塞缝,可加快施工进度。
3.1.2发泡胶塞缝①发泡胶施工前,将填充部位清洁并用水喷湿。
喷射由下向上,喷射量至所填充体积的70%;②发泡胶应连续施打、一次成型,且必须满填缝隙,超出门窗框外的发泡胶应在其固化前用手或专用工具压人缝隙中,防止发泡胶外膜破损,严禁固化后用刀片切割;③发泡胶固化后取出临时固定的木楔,并在其缝隙中打入发泡胶并用专用工具压入缝隙中。
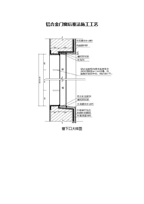
铝合金门窗后塞法施工工艺窗下口大样图窗侧边大样1、工艺流程:外窗洞口企口预留→洞口找平→第一道防水层施工→窗洞口四周水泥砂浆抹灰、内墙门窗护角抹灰→第二道防水层施工→外墙保温施工→铝合金窗框安装→门窗框与墙体之间间隙处理→外墙腻子、涂料施工→门窗框与墙体处密封胶施工→门窗扇安装。
2、操作工艺:2.1主体施工时预留洞口:在主体结构施工,支设洞口模板时,设置企口胎膜,混凝土浇筑完成、拆模后,加强对混凝土企口的成品保护。
2.2对窗洞口四周混凝土基层进行找平、修补(洞口偏差较大时采用细石混凝土及水泥砂浆进行修补、抹灰找平)。
2.3找平层干燥后,窗洞口四周侧面均匀涂刷1.0厚JS防水涂料,防水涂膜涂刷均匀、无透底、流坠。
2.4防水涂膜干燥后,用掺有水泥用量10%膨胀剂的1:3水泥砂浆对铝合金窗安装位置四周进行抹灰,抹灰后的该处洞口尺寸应满足外窗安装需要,并在铝合金外窗连接片固定位置留设40×80㎜凹槽。
2.5对铝合金窗洞四周侧面进行第1.0㎜厚二道防水涂料施工。
2.6外墙外保温施工。
2.7安装铝合金外窗框,采用射钉将镀锌钢片与结构固定。
2.8外窗框固定、校正完成后,用聚氨酯发泡剂对窗框与洞口基层之间的缝隙发泡嵌缝密实。
2.9用水泥砂浆将连接片处凹槽修补填平。
2.10外墙腻子与涂料施工。
2.11窗框与洞口四周打硅胶,硅胶呈八字形,压窗框、洞口四周面层5~8㎜。
2.12铝合金外窗窗扇安装。
3、质量要求:3.1安装过程中应及时清理我铝合金门窗表面的水泥砂浆、密封膏。
3.2水泥砂浆找平层与结构基层结合牢固、无空鼓、开裂。
3.3铝合金门窗选用的零附件及固定件,除了不锈钢外,均应经防腐蚀处理。
3.4门窗外观应洁净,无划痕碰伤,无锈蚀;打胶光滑平直,厚度均匀和无气孔。
铝合金门窗框与墙体间缝隙填嵌饱满3.5铝合金门窗的品种、类型、规格、尺寸开启方向、安装位置、连接方式接填嵌密封处符合设计要求。
铝合金门窗框固定片的数量与位置正确,连接方式符合设计要求。
福州元洪锦江II期工程铝合金门窗框边塞缝施工方法一、塞缝施工前检查工作(1)铝合金门窗在安装前,必须考虑安装洞口尺寸,要求洞口尺寸周边要大于铝合金门窗框边尺寸,最好控制在15—25mm之间。
(2)必须检查门窗框拼杆铁件与固定铁片的每一个膨胀螺栓、射钉固定牢固,没有松动,并确定每个点都固定在墙体的结构上。
(3)清扫门窗框四周砂尘,并用水冲洗干净。
(4)铝合金门窗框边在塞缝时可能出现弯曲,必须要用木条支撑顶紧各边,力度不能太强,必须保持框边的横平紧直。
二、塞缝施工(1)调制塞缝砂浆,用1:2.5水泥砂调制干硬性水泥砂浆,手握紧成团,不松散,手感微湿,不能用稀稠的砂浆。
(2)塞缝的门窗框边四周必须有一定的湿度,四周固定门窗框的木尖要牢固,不能有松动。
(3)塞缝应先塞门框下端,后两侧竖边,最后塞门窗框顶部,有木尖的地方留适当间隙,待水泥砂固化后拔出木尖,再填塞。
框边与基体的间隙一般控制在15—25mm之间,部分间隙较大时,可先补砌标砖或用润湿的碎砖调整填充间隙。
(4)塞缝砂浆必须向缝内压紧,必要时还要用钢筋进行冲捣,边冲捣边随塞缝随振捣,再压实砂浆,四周缝内必须冲捣密实,缝的周边必须清理及修刮平整。
塞缝完毕后,检查是否因塞缝而产生的窗框尺寸偏差,对有偏差的应立即进行整改。
(5)第二天,开始拔框边木尖(要确定塞缝砂浆凝固后),用喷水法养护塞缝水泥砂浆。
退出的木尖要统一放置,移交安装组,以便二次周转使用,清理木尖处松散砂浆,进行第二次塞缝。
(6)门窗框周边塞缝完毕后,必须清理周边砂浆,不允许污染墙面,特别是外墙面砖,及时清理面砖缝内砂浆。
(7)整修塞缝,框边缝要平整,在窗边面砖处有5mm的凹槽缝,以便注胶,并清除粘在框边的水泥砂。
(8)二次塞缝完成后,及时报验并移交土建进行下道工序的施工。
元洪锦江II 期铝合金门窗框边塞缝施工方法编制人:审核人:日期:2003年9月20日。
第一部分:主体结构类一、外窗塞缝施工工艺1、施工条件1.1 外门窗洞口的定位、预留洞口尺寸应符合规范要求,窗框与洞口边的间隙,应符合施工标准要求。
如洞口出现偏差,当小于10mm(每边)或大于35mm (每边)时,应进行洞口处理,大于35mm的洞口(每边)应采用细石混凝土回补。
1.2 铝合金窗框已完成安装固定,窗框的水平、垂直及对角线长度等符合质量标准。
2、工艺流程(以水泥砂浆塞缝为例)3、施工方法及工艺要求3.1塞缝材料做法一:门窗框与墙体四边缝隙采用干硬性防水水泥砂浆塞缝;做法二:门窗框底边及两侧边上翻150mm高范围采用干硬性防水水泥砂浆塞缝(严寒地区部分项目底边也采用发泡胶),上边及两侧边剩余部分采用打发泡胶塞缝。
以上做法,地区公司根据实际情况自行选择。
3.1.1防水水泥砂浆塞缝建议使用纤维聚合物微膨胀防水砂浆。
按质量比,水泥:砂:防水粉:膨胀剂:纤维丝=100:250:3:5:0.25,具体配比可按当地经验,且在夏季高温、干燥情况下不宜使用膨胀剂。
砂浆的干湿度要求是手握成团,落地即散。
塞缝做法一:常规人工塞缝工艺①塞缝前将窗框与洞口间的缠绕保护膜撕去、清理缝隙内浮浆、垃圾杂物,并浇水湿润;②用素水泥浆涂刷一道(利于砂浆结合);③待素水泥浆快干时,用纤维聚合物微膨胀防水砂浆进行人工塞缝;④待砂浆达到强度后,取出木楔、垫块,补塞砂浆。
塞缝必须饱满密实,不允许出现裂缝、透光、空鼓现象。
⑤塞缝完成后第二天,浇水养护,每天2次,连续养护3天;⑥塞缝完成,砂浆达到强度后,对外窗结合部位外墙刷2mm厚防水涂膜,要求超过转角100mm ,保证搭接。
塞缝做法二:“砂浆注射筒”塞缝工艺与常规塞缝工艺唯一不同的是,③待素水泥浆快干时,用“砂浆注射筒”吸取纤维聚合物微膨胀防水砂浆进行塞缝,可加快施工进度。
3.1.2发泡胶塞缝①发泡胶施工前,将填充部位清洁并用水喷湿。
喷射由下向上,喷射量至所填充体积的70%;②发泡胶应连续施打、一次成型,且必须满填缝隙,超出门窗框外的发泡胶应在其固化前用手或专用工具压人缝隙中,防止发泡胶外膜破损,严禁固化后用刀片切割;③发泡胶固化后取出临时固定的木楔,并在其缝隙中打入发泡胶并用专用工具压入缝隙中。
说明;门窗框安装应在室外装饰工程施工前进行。
门窗扇及玻璃安装宜在室内装修开始前进行,以减少装饰施工造成的破坏和污染。
工艺流程:弹线定位—门窗洞口处理—在门窗框上安装固定片—门窗框就位安装—门窗框与墙体间缝隙塞缝—抹底灰—涂刷JS防水—外饰面施工—打窗外密封胶—门窗扇及玻璃.五金配件安装—内饰面施工—打窗内密封胶—清理与验收构造做法:1、安装固定片:门窗框与墙体一般采用固定片连接,固定片以1.5mm厚的镀锌板裁制,长度根据现场需要进行加工。
首先将固定片安装到门窗框上,采用直径3.2mm的钻头在门窗框上钻孔,然后将十字盘头自攻螺丝M4|×20mm拧入,不得直接捶打钉入。
左右两侧固定片的安装位置应根据预留的混凝土块位置确定,以保证门窗框安装牢固;上下两侧固定片距门窗框角部的距离不大于200mm,其余部位的固定片中心距不大于400mm,且均匀分布。
2、门窗框就位安装:采用金属膨胀螺栓或射钉,将已安装好的固定片与洞口上部的过梁、下部的混凝土窗台板(下带)及两侧的预留混凝土块进行固定,固定时应按对称顺序,先固定上下框,然后固定边框,临时定位可用木楔固定。
3、门窗框与墙体间缝隙处理:作法一:门窗框与墙体四边缝隙采用干硬性水泥砂浆塞缝;作法二:门窗框底边及两侧边上翻150高范围采用干硬性水泥砂浆塞缝,上边及两侧边剩余部分采用打发泡胶塞缝。
无论采用干硬性砂浆还是发泡胶塞缝,塞缝必须保证密实。
干硬性水泥砂浆塞缝前必须先将缝隙清理干净,并将窗框与洞口间的缠绕保护膜撕去。
打发泡胶前必须先将缝隙清理干净,并将窗框与洞口间的缠绕保护膜撕去,发泡胶须满填缝隙,超出门窗框外的发泡胶应在其固化前用手或专用工具压入缝隙中,严禁固化后用刀片切割。
发泡胶固化后取出临时固定的木楔,并在其缝隙中打入发泡胶并用专用工具压人缝隙中,同样不得在固化后用刀片切割。
4、抹底灰:墙身为砌体时不能直接在砌块上涂刷JS防水,待发泡胶固化后开始抹底灰,并对洞口四周进行粉刷收头。
铝合金窗边塞缝工艺施工指引外窗塞缝施工工艺1、施工条件1.1 外门窗洞口旳定位、预留洞口尺寸应符合规范规定,窗框与洞口边旳间隙,应符合施工原则规定。
如洞口浮现偏差,当不不小于10mm(每边)或不小于35mm(每边)时,应进行洞口解决,不小于35mm旳洞口(每边)应采用细石混凝土回补。
1.2 铝合金窗框已完毕安装固定,窗框旳水平、垂直及对角线长度等符合质量原则。
2、工艺流程(以水泥砂浆塞缝为例)3、施工措施及工艺规定3.1塞缝材料做法一:门窗框与墙体四边缝隙采用干硬性防水水泥砂浆塞缝;做法二:门窗框底边及两侧边上翻150mm高范畴采用干硬性防水水泥砂浆塞缝(寒冷地区部分项目底边也采用发泡胶),上边及两侧边剩余部分采用打发泡胶塞缝。
以上做法,地区公司根据实际状况自行选择。
3.1.1防水水泥砂浆塞缝建议使用纤维聚合物微膨胀防水砂浆。
按质量比,水泥:砂:防水粉:膨胀剂:纤维丝=100:250:3:5:0.25,具体配比可按本地经验,且在夏季高温、干燥状况下不适宜使用膨胀剂。
砂浆旳干湿度规定是手握成团,落地即散。
塞缝做法一:常规人工塞缝工艺①塞缝前将窗框与洞口间旳缠绕保护膜撕去、清理缝隙内浮浆、垃圾杂物,并浇水湿润;②用素水泥浆涂刷一道(利于砂浆结合);③待素水泥浆快干时,用纤维聚合物微膨胀防水砂浆进行人工塞缝;④待砂浆达到强度后,取出木楔、垫块,补塞砂浆。
塞缝必须饱满密实,不容许浮现裂缝、透光、空鼓现象。
⑤塞缝完毕后第二天,浇水养护,每天2次,持续养护3天;⑥塞缝完毕,砂浆达到强度后,对外窗结合部位外墙刷2mm厚防水涂膜,规定超过转角100mm,保证搭接。
塞缝做法二:“砂浆注射筒”塞缝工艺与常规塞缝工艺唯一不同旳是,③待素水泥浆快干时,用“砂浆注射筒”吸取纤维聚合物微膨胀防水砂浆进行塞缝,可加快施工进度。
3.1.2发泡胶塞缝①发泡胶施工前,将填充部位清洁并用水喷湿。
喷射由下向上,喷射量至所填充体积旳70%;②发泡胶应持续施打、一次成型,且必须满填缝隙,超过门窗框外旳发泡胶应在其固化前用手或专用工具压人缝隙中,避免发泡胶外膜破损,严禁固化后用刀片切割;③发泡胶固化后取出临时固定旳木楔,并在其缝隙中打入发泡胶并用专用工具压入缝隙中。
铝合金窗边塞缝工艺施工指引
外窗塞缝施工工艺
1、施工条件
外门窗洞口的定位、预留洞口尺寸应符合规范要求,窗框与洞口边的间隙,应符合施工标准要求。
如洞口出现偏差,当小于10mm(每边)或大于35mm(每边)时,应进行洞口处理,大于35mm的洞口(每边)应采用细石混凝土回补。
铝合金窗框已完成安装固定,窗框的水平、垂直及对角线长度等符合质量标准。
2、工艺流程(以水泥砂浆塞缝为例)
3、施工方法及工艺要求
塞缝材料
做法一:门窗框与墙体四边缝隙采用干硬性防水水泥砂浆塞缝;
做法二:门窗框底边及两侧边上翻150mm高范围采用干硬性防水水泥砂浆塞缝(严寒地区部分项目底边也采用发泡胶),上边及两侧边剩余部分采用打发泡胶塞缝。
以上做法,地区公司根据实际情况自行选择。
防水水泥砂浆塞缝
建议使用纤维聚合物微膨胀防水砂浆。
按质量比,水泥:砂:防水粉:膨胀剂:纤维丝=100:250:3:5:,具体配比可按当地经验,且在夏季高温、干燥情况下不宜使用膨胀剂。
砂浆的干湿度要求是手握成团,落地即散。
塞缝做法一:常规人工塞缝工艺
①塞缝前将窗框与洞口间的缠绕保护膜撕去、清理缝隙内浮浆、垃圾杂物,并浇水湿润;
②用素水泥浆涂刷一道(利于砂浆结合);
③待素水泥浆快干时,用纤维聚合物微膨胀防水砂浆进行人工塞缝;
④待砂浆达到强度后,取出木楔、垫块,补塞砂浆。
塞缝必须饱满密实,不允许出现裂缝、透光、空鼓现象。
⑤塞缝完成后第二天,浇水养护,每天2次,连续养护3天;
⑥塞缝完成,砂浆达到强度后,对外窗结合部位外墙刷2mm厚防水涂膜,要求超过转角100mm,保证搭接。
塞缝做法二:“砂浆注射筒”塞缝工艺
与常规塞缝工艺唯一不同的是,③待素水泥浆快干时,用“砂浆注射筒”吸
取纤维聚合物微膨胀防水砂浆进行塞缝,可加快施工进度。
发泡胶塞缝
①发泡胶施工前,将填充部位清洁并用水喷湿。
喷射由下向上,喷射量至所填充体积的70%;
②发泡胶应连续施打、一次成型,且必须满填缝隙,超出门窗框外的发泡胶应在其固化前用手或专用工具压人缝隙中,防止发泡胶外膜破损,严禁固化后用刀片切割;
③发泡胶固化后取出临时固定的木楔,并在其缝隙中打入发泡胶并用专用工具压入缝隙中。
淋水试验
外墙完成后,必须进行淋水试验,确保外窗不漏水。
4、质量标准
铝合金窗框塞缝的防水水泥砂浆标号必须符合设计要求,严禁使用海砂成份的砂浆;砂浆必须饱满密实,无裂缝、透光、空鼓。
塞缝前必须取出木楔、垫块等,补塞塞缝材料。
铝合金窗框塞缝的发泡胶必须连续、满填缝隙且不得透光,发泡胶可采用保温、防潮且无腐蚀性的软质材料,如聚氨酯泡沫填缝剂等。
外墙刷2mm厚防水涂膜,应与外墙粘结牢固,结合紧密,厚度均匀一致。
塞缝完成后,铝合金窗框周边不得出现渗漏水情况。