主要项目施工方法与技术措施方案
- 格式:doc
- 大小:112.00 KB
- 文档页数:28
房建工程主要施工方案与技术措施一、测量定位建筑工程的测量放线工作是建筑施工的先导工序,要保证建筑的垂直度,几何形状、截面尺寸符合施工规范及设计要求,需要建立较高精度的测量控制网作为施工放样的依据,根据该楼的地理环境测量放线。
由富有经验的技术人员组成测量小组,为本工程提供测量服务。
建立测量设备管理制度,所有测量仪器均要经过校验后方可投入使用,采用预放、精放的方法进行多道复核,确定平面控制轴线,依据现场实际情况选取定位基准点,基础结构采用“外控法”进行平面网络控制。
主体结构采用“内控法”完成,利用激光铅垂仪测设。
测量施工方法如下:(1)根据建设单位提交的轴线控制点和水准点,测定出纵横各轴线,建立测量控制网,设置引桩,并做好引桩的保护工作,以确保轴线控制准确。
依据设计图纸对基础施工各条轴线进行复核无误后,进行平面控制轴线的布设,在施工中应加强测量放线工作,严格控制轴线尺寸。
(2)主体结构施工测量竖向控制采用“外控”和“内控”两种方法并用,相互校核,以保证测量准确无误。
1.外控法施工测量要点如下:(1)随框架柱主体结构层施工,用经纬仪将建筑大角处的主轴线投测到框架柱上,并弹出墨线用红漆标注。
每层放线时,由此向楼层投点控制。
(2)在±0.000 以下施工中,利用已建立的控制网点作为基础施工放样的依据,利用首级控制网点为依据进行核验。
(3)主体放线定位,对原轴线位置进行复核、校对,对原坐标轴有水准点进行校对,使原点复位正确,轴线方位闭合,做到允许的误差比规范要求缩小一个级别。
2.内控法施工测量要点如下:(1)±0.000以下结构完成后将确定的内控点以钢板标志固定在混凝土上。
即在一层底板预埋300mm×300mm×8mm 定位钢板,将控制点引测至钢板上用钢针刻划“十”字。
作为基准点,首层以上各层在基准点的正上方相应位置预留洞200mm×200mm(通视孔)用激光铅直仪和经纬仪配合将控制点逐层投递到楼层。
主要工程项目的施工方案方法与技术措施主要工程项目的施工方案、方法与技术措施在工程施工过程中起到了至关重要的作用。
它们是为了保证工程质量,确保施工过程的安全和高效进行而制定的一系列具体措施。
下面将以房屋建筑工程为例,讨论主要工程项目的施工方案、方法与技术措施。
首先,施工方案是指为了实现工程施工目标而制定的一系列具体步骤和方法。
房屋建筑工程施工方案的制定应考虑工程的特点、条件和要求。
例如,在房屋建筑工程中,施工方案包括基坑开挖、地基处理、混凝土浇筑、结构封顶等方面的具体步骤和方法。
施工方案应确保每个施工步骤的顺利进行,并对可能出现的风险和问题进行充分预判和应对措施。
其次,施工方法是指在施工过程中采用的具体操作方法和步骤。
在房屋建筑工程中,施工方法主要包括土方开挖、混凝土浇筑、砌筑、安装等方面的方法。
施工方法应综合考虑工程条件、材料特性、人力和设备资源等因素进行选择和设计。
例如,在混凝土浇筑过程中,可以采用人工振捣或机械振捣的方法,根据具体情况选择合理的施工方法,以确保混凝土的均匀浇筑和密实性。
此外,技术措施是为了解决工程施工过程中出现的技术问题和风险而采取的具体措施。
在房屋建筑工程中,常常需要采取一些技术措施来保证工程质量和安全。
例如,在浇筑混凝土的过程中,可以采用防止温度裂缝的技术措施,如在混凝土浇筑后及时进行保温和湿润,以减缓混凝土的温度升高和收缩;又如在施工过程中,可以采用通风和防尘措施,以确保施工环境的洁净和安全。
总之,主要工程项目的施工方案、方法与技术措施起到了至关重要的作用。
它们是确保工程施工过程的安全、高效和质量的关键措施。
在制定施工方案时,需要充分考虑工程条件、要求和规范,以确保每个施工步骤的顺利进行。
在选择施工方法时,需要考虑工程特点、材料特性和资源条件等因素,以选择合理的操作方法。
在采取技术措施时,需要充分了解工程风险和问题,并采取相应的措施进行预防和应对。
只有在施工方案、方法与技术措施的合理设计和实施下,才能确保工程施工的安全和质量。
风电项目主要施工方案及技术措施一、引言随着可再生能源的重要性日益凸显,风电作为其中的重要组成部分,在全球范围内得到了广泛的应用和推广。
为确保风电项目的顺利实施,并保证项目的高效运行,本文将重点探讨风电项目的主要施工方案及技术措施。
二、主要施工方案1.前期准备在进行风电项目前期准备时,需要进行详细的工程规划和设计。
首先是选址和场地评估,确定适合兴建风电场的地点,并进行环境评估,确保项目符合当地的环境保护要求。
其次,还需要进行风资源评估和勘测,以确定适当的风机类型和布局。
有了这些基础工作的支持,以后的施工才能更加顺利。
2.风机制造与基础施工风机是风电项目的核心组成部分,其制造质量对项目的安全运行具有至关重要的影响。
因此,在风机的制造过程中,需要严格按照设计要求进行,并进行质量检测和验收。
同时,基础施工也是不可忽视的一环,需要确保基础的坚固和稳定,以支撑风机的运行。
3.风机安装与调试风机安装是风电项目中关键的环节,需要遵照相关安装手册进行操作。
在安装过程中,要严格把控操作流程和标准,同时确保安全措施的有效落实,以避免意外事件的发生。
安装完成后,还需要进行调试和验收,确保风机的性能和运行正常。
4.电网接入与输电线路建设电网接入是风电项目实现发电并并网的关键步骤。
在施工中,需要与当地电力公司紧密合作,按照相关标准和规范进行接入,并进行联调测试以确保电力的安全传输。
同时,输电线路的建设也是重要环节之一,需要选择合适的线材和杆塔,确保输电线路的可靠性和稳定性。
三、技术措施1.质量管控在风电项目的施工过程中,质量管控是至关重要的一环。
首先,需建立质量管理体系,明确施工过程中的各项质量要求和标准。
其次,要建立相应的质量检测与验收机制,对各个施工阶段进行检测和评估,确保施工质量的合格。
同时,还需加强施工人员的技术培训,提高他们的质量意识和专业素养。
2.安全管理风电项目的施工涉及到许多高空、高压等危险环境,因此安全管理至关重要。
配水管网工程主要项目施工方法及技术措施一、施工工艺流程图二、测量放线1.组织测量技术人员按规划局提供的测量控制点进行复测,复核无误后建立工程测量控制网,对工程进行点面相结合的测量控制。
2.进行施工放样测量,定出管道中线及阀井位置并定出水准基准点作为整个工程的控制点。
每次测量均要闭合,严格控制闭合误差。
3.井面标高应平路面。
三、土方工程1.本工程的土方工程施工主要包括:1.1原有沥青砼路面、砼路面锯缝;1.2破除原有混凝土路面;1.3土方开挖;1.4土方回填。
由于此工程位于00区几江城区,B线位于长风路、银康路、江洲大道,C线位于江洲大道,地下管线资料不明,根据现场实线际情况,符合机械开挖条件的情况时机械开挖,不符合机械开挖条件时人工开挖。
沟槽开挖前应要求各有关管线部门提供地下管线情况,并结合人工勘察,确认无误后方可进行施工。
当发现管位置后应做好清晰的标志以保护好地下管线。
2.破除原有沥青路面、混凝土路面:本工程管线位于沥青路面、混凝土路面车行道下,为保护原有路面的完整性,破除路面前应在路面上进行定位放线,定出管线位置,道路切割机根据弹线位置进行路面切割,最后用小型反铲挖掘机(带风炮头)根据切割位置进行破除。
3.本工程的沟槽最大深度约为1.5米,根据施工规范规定不考虑放坡。
施工前仔细了解土质情况,分析施工期间的边坡稳定性,同时弄清楚地下管线的走向、埋深,提前制定保护措施,再精确测设边线。
在开挖前,沟槽的断面、开挖的次序和堆土的位置由现场施工员向司机及土方工详细交底。
在挖土过程中管理人员应在现场指挥并应经常检查沟槽的净空尺寸和中心位置,确保沟槽中心偏移误差符合规范要求。
4.沟槽检查验收沟槽开挖完成应进行自检,检查项目和允许误差见下表-1。
自检合格后应马上通知监理进场进行检查验收,验收合格后方能进入下一工序的施工。
四、基础施工1.管网设置于地基面上,不作基础。
所有支墩下地基应为稳定的密实土或岩石地基,承载力不小于150KPa。
标识标牌主要工程项目施工方案与技术措施一、概述标识标牌是建筑施工中的一项重要工作,它可以帮助人们识别和辨认建筑物、设备和区域,起到非常重要的指示作用。
而在标识标牌的施工过程中,我们也需要采取相关的技术措施和施工方案,确保标牌质量和施工效果,这也是保障施工安全和顺利进行的关键一步。
二、施工前准备在进行标识标牌施工前,我们需要对相关的准备工作做好规划和安排,为施工奠定良好的基础。
1.工程设计在进行施工前,我们需要进行细致的工程设计,因为标识标牌的材质和样式等都需要在施工前进行确定。
而工程设计也是针对实际工程要求的一项规划和指导,可以帮助我们在施工中更加准确、高效地完成相关的工作。
2.材料准备在标识标牌施工前,我们需要先准备好所需要的材料。
不同的标牌需要使用不同的材料,比如说路牌需要使用铝板、塑料板等材质,而机房标牌需要使用不易褪色的聚酯纤维材料。
不同种类和规格的标牌所需要的材料也有所不同,我们需要根据工程设计要求和实际情况进行材料准备。
三、施工方案在进行标识标牌的施工时,我们需要根据工程设计图纸和实际情况进行施工方案的制定和安排,以确保施工效果和工程质量。
1.施工顺序在进行施工时,我们需要根据工程建设的实际情况,确定标识标牌的施工顺序。
一般来说,我们需要先进行标识标牌的定位和确定,以及施工区域的清理和整理。
然后再进行标牌的制作和组装,最后对标牌进行检查和确认。
2.施工方式标识标牌的施工方式主要包括手工制作、机器打印和喷涂等几种方式。
在进行标牌制作时,我们需要根据工程设计要求和实际情况选择最合适的制作方式。
例如,对于一些需要大量生产的标牌,我们可以采用机器打印或喷涂的方式进行,这样可以提高工作效率和标牌的一致性。
3.安装方式在对标识标牌进行安装时,我们需要根据标牌的材质和工程要求选择合适的安装方式。
比如说,对于需要固定在建筑物中的标牌,我们需要使用膨胀螺栓或藏头式螺栓进行固定,以确保标牌的稳固性和安全性。
施工组织方案与主要技术方法施工组织方案(Construction organization plan)是指在建筑施工过程中,根据项目的具体情况,制定和确定的组织和管理施工工作的方案。
合理的施工组织方案能够有效地提高施工效率,确保工程质量和安全,并提前预防和解决施工中的问题。
一、施工组织方案的制定过程1.项目分析:对工程项目进行全面的分析,包括项目的规模、施工环境、工期要求等。
通过分析和评估,确定施工组织的基本方法和原则。
2.工程布置:根据项目要求和现场条件,合理布置各项工程设施和施工区域。
包括临时设施建设、施工区划、道路交通组织等。
3.作业程序:制定构筑物各部分的施工过程和工序安排,确定施工的先后顺序和时间安排,以避免工序间的冲突和交叉。
4.施工机械和材料采购:根据项目的需要,合理配置和选用施工机械和材料。
并制定相应的采购计划和供应商选择方案。
5.人力资源安排:根据施工进度和工种需求,合理安排和分配人力资源,确保施工人员的数量和质量。
6.质量控制和安全管理:制定施工质量检查和控制措施,确保工程质量的合格。
同时,制定施工安全管理措施,预防和处理施工中的安全事故。
7.监理和协调:与监理单位进行沟通和协调,及时解决施工中的技术和质量问题,确保施工按照合同要求进行。
1.施工进度计划法:根据工程项目的特点和工期要求,编制详细的施工进度计划。
通过合理安排施工工序和时间,协调各项施工任务的完成。
2.优化施工工艺:通过对施工过程的分析和优化,提高施工效率和节约施工成本。
包括采用新技术、新材料和新设备,提高施工效果和工艺质量。
3.预制装配取代传统施工:采用预制装配建造方法,将构件在工厂预制好后,再运到现场组装,可大大缩短施工周期,提高施工效率。
4.信息化管理:应用信息技术,通过施工管理软件进行施工计划和进度的跟踪和控制,在实时监控下,及时发现和解决问题。
5.安全技术措施:采取合理的安全防护措施,确保施工人员的人身安全。
第一章施工技术方案和措施第一节基础工程一、基础施工方案或方法(一)土方开挖方案1、施工准备1)施工前熟悉施工图纸,认真确定槽底标高。
施工前依据规划院给定定位桩点或引桩放出基槽边线,并通知监理验线。
2)施工前观测降水井内水位情况,水位应低于槽底标高0.5m以上,并且水位上涨平稳,无上涌现象,方可具备开槽条件。
3)检查水准点是否引至现场并且准确有效。
2、土方开挖1)土方开挖时坑底设置出土坡道,以保证出土效率,挖出的土方现场预留足够的回填土,余土运至场地东侧建设方指定的存土区域。
2)开挖基槽前,合理确定开挖顺序和分层开挖深度,遵循原则。
从上到下分层分段依次进行。
3)基槽底部200mm高无扰动土采用人工挖土,对局部超挖的部分要用砂、碎石或混凝土填充。
4)当土方开挖快接近基底标高时,在基槽上放出基底标高控制线,控制线采用红色油漆进行标注。
挖掘机开始使用平刮方式进行挖土,现场配合测量人员随时配合挖掘机测量挖土的标高,避免土方超挖。
5)基槽随开挖随安排专人在已开挖处,用脚手管(油漆刷50cm 红白格间距)及密目网封严,对基槽四周进行围挡,高度不低于1.5m,以防发生人员坠槽事故。
在适宜的地方设置上下槽通道,通道宽度不小于3m,并在两侧设护栏,且高度不低于1.5m,用密目网封严。
3、土方外运1)工程采用明挖顺施法施工,开挖出的土石方用于回填部分存于现场内,剩余部分均存放于建设方指定区域内。
2)为保证运输过程不影响场区清洁,对敏感的扬尘和泥水问题要做好合理的安排,切实的解决,防止运输车辆漏、掉泥土。
3)工程场内运输时,在运输车辆出本标段施工区域前,将车辆用高压水在洗车槽冲洗干净,确认车体和车轮清洁,再经严格检查并登记后,方可放行,同时加强职工教育,使整个外运弃土工作在文明施工的指导下井然有序的进行。
4)运输车辆进出施工现场路口,设专人统一指挥,及时疏散行人和交通车辆在保障市内交通顺畅的同时,确保外运弃土工作的顺利进行。
主要施工方法与技术、新技术、新工艺等使用及预期效果(一)采用新技术新工艺技术措施先进的施工技术、施工工艺、新型材料的使用和技术创新,是优质高效地完成工程任务,创造过程精品、保证工程质量,加快工程进度、缩短施工周期,极其有效地降低工程造价,完全实现建筑物设计风格和使用功能的关键之所在。
结合本工程特点,我们将在施工过程中广泛推广使用科技成果,计划将建设部推广的十项新技术中的绝大部分应用到本工程上。
除此之外,我们还将结合本工程施工实践,努力探索新的施工技术,总结新的施工工艺,开发更多的专利技术。
1、推广应用新技术、新工艺的组织机构(1)为有计划、有步骤的开发和推广应用新技术,实现计划制定的目标,在工程开工之初,成立领导小组和工作小组。
(2)领导小组由公司总工程师为组长,项目经理为副组长,为推广应用新技术、新工艺提供决策和资源支持。
(3)工作小组由项目经理为组长,项目总工程师为副组长,项目副经理、项目部门负责人以及有关指定分包商项目经理为组员,进行推广应用新技术工作的策划、实施与总结。
2、本工程中推广应用新技术、新工艺在施工期间,对工程技术难点组织攻关;同时,根据施工需要,充分推广应用新技术、新工艺,采用先进合理的技术措施和现代化管理手段,提高质量、缩短工期、降低消耗。
3、建筑节能和环保应用技术(1)本工程的填充墙体采用了加气混凝土砌块等轻质材料,节约了土地资源和能源,满足了环境保护的要求,由于其自重轻,具有很好的保温、隔热、隔音性能,提高了结构的安全性和经济性。
外墙保温采用挤塑聚苯板,具有很好的保温性能。
(2)铝合金门窗采用中空玻璃,具有很好的保温性能。
(3)计算机推广、应用和信息化管理技术在本工程的施工过程中,计算机技术的应用是项目管理最为先进高效的现代化管理手段,不仅可以极大地提高效率,具有准确性、可靠性、可变更调整性和可追溯性,可以有效而且有序地对工程的每一环节进行指挥、管理和监控,从而达到加快工程进度、保证工程质量、降低工程造价的目的。
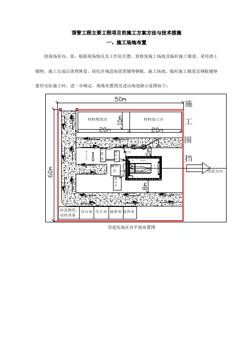
顶管工程主要工程项目的施工方案方法与技术措施一、施工场地布置因现场有沟、渠,根据现场情况及工作坑位置,需修筑施工场地及临时施工辅道,采用渣土铺垫,施工完成后清理恢复,绿化区域进场道需铺垫钢板。
施工场地、临时施工辅道及钢板铺垫量待实际施工时,进一步确定。
场地布置图及进出场道路示意图如下:顶进坑场区内平面布置图封门接收坑场区内平面布置图二、施工顺序的总体安排1、技术准备我公司将立即组织人员进场边筹建边进行施工前期的各项技术准备工作。
在项目经理的组织下,各部门及时主动与业主、设计院、监理公司、安全质量检查监督站等单位取得联系。
同时由项目总工程师组织进行图纸会审、测量复核、施工方案编制等工作,开工前建立健全工程洽商通道及变更设计通知和原材料的检验工作和做好向监理工程师的材料报验、资料报审工作。
施工前期的各项技术准备工作流程如下:(1)图纸会审在获得施工图纸及相关施工文件后,及时组织工程部人员进行图纸会审。
主要审核构筑物类别及其技术、经济、环境条件;结构类型和结构形式;平面位置、高程、结构尺寸;使用材料及设备的品名、规格、质量标准;工程地质、水文、气象条件、施工方法、施工程序和施工措施及工程质量等,从而达到了解设计意图,领会设计精神,掌握设计的技术标准,主要的技术条件和设计原则,以及新材料、新工艺的运用。
对设计图纸中的漏、缺、差、错等事通过工程洽商渠道及时与设计人取得联系,完善设计文件,使设计更加符合施工现场的实际,确保施工安全、工程质量和按期完成工程任务。
(2)控制测量导线网的建立接桩后,及时组织人员进行现场踏勘,根据线路的大致走向,在设计提供的控制桩基础上,按需要加密布桩,测量复核加密导线网的精度及复核设计提供的导线精度是否能满足设计文件及施工规范地要求,避免出现大及重大的测量事故。
根据复测的结果,对线路中心线进行布桩测量,查看在平面及纵断面上是否与设计文件相符合,并在监理工程师旁站的情况下对开工有影响的原地面进行测绘,做好原始资料备查。
重大工程项目的施工方案、方法和技术措施第一路基1、开挖路基开挖顺序和开挖方法应与其他施工工序相协调,保护历史文物和绿化,不得破坏和干扰邻近设施及其正常使用。
1、土方开挖采用挖掘机进行,开挖采用“水平分层、垂直分段、两端同步、阶梯开挖”的方法施工,辅以人工修补。
挖出的土方直接用于附近的填土路段,不能使用的土方运至弃土场。
道砟运输通道与开挖面应合理布置,使道砟运输、排水和开挖互不干扰,保证开挖顺利进行。
执行。
土方开挖应按图纸自上而下进行,不得随意开挖或超挖。
在开挖过程中,必须注意对地下管线、电缆和其他图中未显示的结构的保护。
一旦发现上述情况,应立即停止操作,直至指令处理完毕。
2、爆破施工开挖(1) 爆破施工a、挖掘工作面,清除地表杂物并覆盖土层。
乙。
孔位布置:根据设计要求,公布开挖轮廓和各炮孔孔位,并编号。
木板上一一标明孔深、直径、方向和倾角大小。
丙。
钻孔:钻孔是爆破质量环的重要组成部分。
钻孔严格按照爆破设计的位置、方向和角度进行,先慢后快。
在钻孔过程中,必须注意防止卡钻、漏钻、漏钻和误钻。
充电前要检查孔位、深度、倾角是否符合设计要求,孔内是否有堵塞物,孔壁是否有石块,孔内是否有积水。
d .装药:严格按照设计的炸药种类、规格、数量进行装药。
e .爆孔封堵:爆孔封堵长度大于最小阻力线,封堵材料为2/3沙子和1/3粘土。
f .爆破网铺设:在铺设网前检查起爆设备的质量、数量、分段、数量和分类,严格按设计铺设网络,并严格遵守《爆破安全规程》中关于起爆方式的规定”。
经检查,确认情况良好,起爆点位于安全区域。
克。
起爆:网络检测无误,防护工程检查无误,正常情况下,当事人得到警戒,指挥员可在规定时间内下令起爆。
爆轰采用非电爆轰。
h .在规定的时间间隔完成安全检查和爆破,安全检查无误后,方可进行机械施工。
我。
总结分析:爆破后,全面检查爆破效果,综合评价技术指标是否合理,进一步确认出露岩石结构、产状、地质结构、岩石物理力学性质,综合分析岩石单耗,使有良好的爆破记录,聘请经验丰富的爆破专家进行分析总结,优化下一个周期的爆破作业。
公路工程主要工程项目的施工组织方案方法和技术措施公路工程的主要工程项目包括路基工程、路面工程、桥梁工程和隧道工程等。
针对这些工程项目,施工组织方案、方法和技术措施都起到至关重要的作用,下面将详细介绍。
一、路基工程的施工组织方案、方法和技术措施:1.施工组织方案:根据路基地质和工程要求,确定施工工序、作业面积和相互关系,制定合理的施工计划,确保施工进度和质量。
2.施工方法:路基工程包括原地修筑、边倒填、边挖填等方法,根据不同地段选择合适的施工方法,确保施工效率和质量。
3.技术措施:采用机械化施工,提高工作效率;加强土质资料的勘察和试验分析,合理选择土方开挖和填充的方式;采取有效的排水措施,防止积水影响工程质量和进度。
二、路面工程的施工组织方案、方法和技术措施:1.施工组织方案:根据道路类型和交通量,确定施工工序和作业面积,合理安排施工进度,确保施工质量和交通的顺畅。
2.施工方法:路面工程包括沥青路面和水泥混凝土路面等,根据不同的基层条件和交通要求,选择合适的施工方法,确保路面平整、耐久。
3.技术措施:采用合适的摊铺机械,保证路面平整度和密实度;按照要求进行施工分区,确保路面质量和交通的顺畅;选用合适的沥青或水泥混凝土材料,提高路面的耐久性。
三、桥梁工程的施工组织方案、方法和技术措施:1.施工组织方案:根据桥梁类型和结构特点,确定桥台、墩和桥面梁的施工工序和作业面积,制定合理的施工计划,确保施工进度和质量。
2.施工方法:桥梁工程包括预制和现浇两种方法,根据桥梁的跨度和施工条件,选择合适的施工方法,确保桥梁的稳定性和安全性。
3.技术措施:加强桥梁施工前的勘察和试验,确保桥梁的承载能力和稳定性;采用防水、防腐等措施,延长桥梁的使用寿命;采用适当的施工工艺,保证桥面梁的准确安装和调整。
四、隧道工程的施工组织方案、方法和技术措施:1.施工组织方案:根据隧道长度和断面形状,确定施工面积和工序,制定合理的施工计划,确保施工进度和质量。
主要施工方案与技术措施1. 引言在进行施工工程时,确定主要施工方案和技术措施对项目的顺利进行至关重要。
本文将讨论主要施工方案与技术措施的制定过程,并分别介绍具体的方案和措施。
通过科学合理地选择和实施这些方案和措施,可以提高施工的效率和质量,确保项目的按时完成。
2. 主要施工方案2.1 施工进度计划施工进度计划是项目管理的核心工具之一。
通过合理编制施工进度计划,可以合理安排施工工序和资源,确保施工的按时进行。
这可以提高施工效率,减少项目的延期风险。
同时,在编制施工进度计划时要考虑到各种风险因素,合理安排相应的时间预留,以应对可能出现的问题。
2.2 施工组织设计施工组织设计是确定施工队伍和人员分工、协作关系的重要环节。
通过合理设计施工组织,可以提高施工效率,并确保不同工种之间的协作顺畅。
在施工组织设计中,需要考虑到施工队伍的规模和结构,以及各个施工工序之间的关系,从而合理分配工作量和资源。
2.3 施工方法选择施工方法的选择对项目的顺利进行起到关键作用。
根据不同的施工工序和实际情况,选择合适的施工方法可以提高工作效率和质量。
在选择施工方法时,需要考虑到施工的时间、地点、环境等因素,并综合考虑成本和风险。
通过科学合理地选择施工方法,可以降低施工的风险和成本,提高项目的效益。
3. 技术措施3.1 安全措施在施工过程中,安全是至关重要的。
制定科学合理的安全措施可以保障工人的人身安全,防止工地事故的发生。
安全措施包括但不限于:建立安全管理制度,进行安全培训,配备必要的安全防护设施,实行现场安全检查等。
通过全面落实安全措施,可以确保施工过程的安全可靠,减少人员伤亡和财产损失。
3.2 质量控制措施保证施工质量是工程施工的重要目标之一。
制定科学有效的质量控制措施可以提高工程质量,确保施工的可靠性和耐久性。
质量控制措施包括但不限于:建立质量管理制度,制定详细的施工工艺和质量检查标准,进行严格的质量检验和监控等。
通过全面落实质量控制措施,可以保证项目的质量达到设计要求,减少工程质量问题的发生。
第四节、主要工程项目的施工方案、施工方法与技术措施一、路基工程施工方案、施工方法(一)路基开挖1、土方开挖施工工艺流程如下图所示2所有准备工作做好后推土机、反铲挖掘机开进开挖区开始清除表面腐植土。
(1)、土方开挖采用反铲配自卸汽车台阶倒退法施工。
采用自上而下法分层开挖。
地下水位以下部份基坑开挖时,基坑排水采用设置集水井(坑)、开挖排水沟网,将基坑水集中排到集水井(坑),再用潜水泵或小型抽水机将水抽走排出开挖工作面以外。
与此同时,基坑边坡设置临时支护措施,采用打木桩或槽钢桩进行支挡,以防止发生滑坡填埋基坑的事故。
(2)、运输出碴在现场用反铲挖掘机挖出的土石碴,有符合路基填筑要求的,直接运至路基需回填处或堆料备用,有多余的或含有其它有害杂质的土石碴,则将其用汽车运到指定的弃碴场弃掉。
(二)路基填筑(1)、施工分段为便于各个工序流水作业,根据本工程的特点,在每座结构物间为一施工段。
(2)、土料的选定及运输①本标段回填土主要是利用较好开挖料,不足部分从取土场开采。
②本标段土料场在使用前对土料场进行复查、规划。
(3)、试验路段填筑正式填筑前,用路填料铺筑长度不小于100m(全幅路基)的试验路段,现场试验进行到能有效地使该种填料达到规定的压实度为止,试验时记录压实设备的类型、最佳组合方式;碾压遍数及碾压速度、工序;每层材料的松铺厚度、材料的含水量等,试验结果报经监理工程师批准后,即可作为该种填料施工时控制的依据。
(4)、路堤填筑压实①基底表土处理基底表土处理包括清除表土和碾压基底。
路堤填筑前,将路基范围内原地面表层的腐植土、草皮等全部清除。
路堤基底表层土清除后,进行晾晒、碾压并取样试验。
验收合格后,才能进行填土施工。
②土方填筑施工方法本工程路基土料填筑按作业内容分为:铺土、压实、质检三个工序。
土方填筑压实施工工艺艺流程如下图所示。
土料运至工作面卸料后,用推土机和平地机整平,铺土厚度由碾压试验确定,但不能超过30cm 。
办公楼装饰装修项目施工方案与技术措施方案一、项目施工方案1.1项目概况本项目为一座办公楼的装饰装修工程,包括室内装修和外立面装修。
室内装修主要包括墙面装修、地面装修、天花板装修、家具和灯光安装等;外立面装修主要包括立面装修、玻璃幕墙制作安装、外墙涂料施工等。
1.2施工组织1.2.1建立项目施工组织机构和施工团队,明确各责任人的职责和工作任务。
1.2.2编制详细的施工计划,确定施工进度和工期目标,并进行有效的沟通和协调。
1.2.3按照施工计划,统筹安排材料和人力资源,确保施工进度和质量的达标。
1.3施工准备1.3.1组织施工人员进行施工前的安全培训,提高施工人员的安全意识和技能水平。
1.3.2对施工现场进行全面检查和清理,确保施工现场安全、整洁。
1.3.3准备施工所需的材料和设备,确保施工正常进行。
1.4施工工艺与方法1.4.1室内装修的墙面装修采用石膏板与涂料相结合的方法,保证墙面平整、美观。
1.4.2室内装修的地面装修采用地板铺设的方法,保证地面平整、耐磨。
1.4.3室内装修的天花板装修采用石膏板吊顶的方法,保证天花板平整、吊顶美观。
1.4.4室内装修的家具和灯光安装采用精细安装的方法,保证安装质量和细节要求。
1.4.5外立面装修的立面装修采用玻璃幕墙制作和安装的方法,保证立面美观、结构稳定。
1.4.6外立面装修的外墙涂料施工采用喷涂工艺的方法,保证涂层平整、色彩鲜艳。
1.5施工质量控制1.5.1建立质量控制检查制度,对施工过程中的关键节点进行检查和验收。
1.5.2对施工过程中的材料和设备进行抽样检测,确保质量符合要求。
1.5.3对施工过程中的人员进行技术指导和培训,提高施工质量和效率。
1.5.4建立质量档案管理制度,对施工过程中的质量资料进行整理和保存。
2.1安全措施2.1.1在施工现场设置明显的安全警示标识,提醒施工人员注意安全。
2.1.2确保施工人员佩戴相关的个人防护装备,如安全帽、安全鞋、手套等。
第一章施工方案与技术措施(完整的投标文件)
一、总则
本文档为我公司针对某项目的施工方案与技术措施在投标文件中的完整内容,旨在全面阐述我公司对于该项目的实施方案和技术措施,确保项目顺利进行。
二、项目概况
本项目位于XX地区,总建筑面积为XXX平方米,主要包括XXX工程内容,要求完成时间为XX年XX月。
项目具有重要意义,对于当地经济和社会发展具有积极作用。
我公司深知责任重大,将竭尽全力确保项目按时高质量完成。
三、施工方案
1.施工组织设计
我公司将成立专门的项目组,由技术精湛的工程师和熟练的施工队伍组成,合理分工,密切配合,确保施工进度和质量。
2.施工流程
根据项目要求,制定详细的施工计划,并分阶段实施。
严格遵守工程进度,及时调整施工计划,确保项目能够顺利完工。
3.安全生产
我公司将严格遵守相关安全生产法规,加强安全教育和培训,落实安全防护措施,杜绝任何安全事故的发生,确保施工过程安全可靠。
四、技术措施
1.材料选用
我公司将严格选用符合国家标准的优质建材,确保工程质量稳定可靠。
2.施工工艺
我公司将采用先进的施工工艺和技术手段,提高施工效率,保障施工质量。
3.质量控制
我公司将建立严格的质量控制体系,从施工前期到竣工阶段,对工程质量进行全程管控,确保项目符合要求。
五、总结
我公司本着以人为本、诚信经营的原则,将以最高标准、最优质服务为您提供完善的施工方案和技术措施。
我们期待与贵公司的合作,共同致力于项目的成功完成,实现双赢局面。
以上为我公司施工方案与技术措施的投标文件内容,希望对贵公司有所帮助,期待与贵公司的合作。
公路工程主要工程项目的施工方案方法与技术措施1.桥梁工程:-施工方案:根据桥梁的类型和跨度大小,选择适当的施工方法,如下沉法、支撑架法、推进法等。
设计详细的施工流程,合理安排材料调运和施工队伍的工作。
-技术措施:根据设计要求和现场实际情况,合理选择桥梁施工技术,保证施工质量。
采取防腐、防火等措施,确保桥梁的耐久性和安全性。
2.高架路段工程:-施工方案:根据地质条件和施工路段的形状,选择合适的施工方法,如舱壁法、桥梁推进法和启发式法等。
制定详细的施工计划,合理安排施工的时间和工程进度。
-技术措施:密切关注施工过程中的挡土墙变形、桩基沉降和现场围护结构的稳定性。
采用合适的地基处理技术,如加固土、泥浆平衡注浆和超前排水等,保证路基的稳定性和安全性。
3.隧道工程:-施工方案:根据隧道的地质条件和施工要求,选择合适的施工方法,如掘进法、切割法和盾构法等。
优化隧道布置方案,合理控制施工过程中的风险。
-技术措施:确保隧道施工过程中的安全性和质量,采用合适的支护措施,如钢支撑、锚杆和地质雷达等。
对于地层有水问题的隧道,采取适当的泵水和防水措施,保证隧道的干燥和稳定。
4.路面工程:-施工方案:根据路面的类型和厚度,选择合适的施工方法,如摊铺法、压实法和喷射法等。
制定科学的施工顺序和施工计划,确保施工效率和质量。
-技术措施:采用合适的路面材料和施工机械,进行路面的铺装和压实。
根据施工情况进行调整和修正,保证路面的平整度和耐久性。
5.边坡工程:-施工方案:根据边坡的高度、坡度和地质条件,选择合适的施工方法,如挖台阶法、植被法和加固法等。
制定详细的边坡稳定计划,合理安排施工过程中的各项工作。
-技术措施:根据边坡的具体情况,采取合适的边坡加固技术,如喷射混凝土、钢筋网片和挡墙等。
进行边坡的监测和维护,及时采取相应的措施,保证边坡的稳定性和安全性。
以上是公路工程主要工程项目的施工方案方法与技术措施的一些常见内容。
具体的施工方案和技术措施应根据实际情况进行详细设计和规划,并在施工过程中根据实际需求进行相应的调整和改进。
智能照明系统工程主要工序的施工方法及技术措施1.1、预埋钢管及预留孔洞➢ 施工工艺流程:➢ 配管阶段采用小流水作业:在未正式配管前,先根据图纸预制出定尺钢管,两端套好丝,其中一些根据图纸相应煨好来回弯,并与接线盒用锁母牢固,一旦土建条件具备,立即进行配合工作。
若预制的定尺钢管配合过程中出现长度不够或稍长时,则用适当的活接头(事先预制)补充。
➢ 配合施工中,电气专业人员必须随工程进度密切配合土建工程作好预埋或预留孔洞,桥架的通过处,电箱的位置处,都应与土建配合预留好,注意加强检查,绝不能有遗漏。
在顶(底)板上配管要特别注意土建和其它专业的留洞,严禁从预留洞中穿过,在此基础上沿最近路线敷设,保证弯曲倍数和离表面净距不小于15mm 。
➢ 敷设于多尘和潮湿场所的电线管路、管口、管子连接处均应作密封处理。
➢暗配的电线管路宜沿最近的路线敷设,并应减少弯曲;埋入墙或混凝土内的管子,离表面的净距不应小于15mm。
➢进入配电箱、接线箱盒的电线管路,应排列整齐,一孔一管,箱盒不得开长孔,不得用电、气焊开孔。
➢一般管径在20mm以下时,用手搬煨管器,管径为25mm 以上时,使用液压煨弯器。
➢切断管子时可使用钢锯、砂轮锯切断,断口处平齐不可歪斜,管口刮铣光滑,无毛刺。
➢埋地的电线管路不宜穿过设备基础,在穿过建筑基础时,应加保护管。
➢KBG导管采用紧定式专用接头连接,并利用专用拧紧扳手拧紧。
➢钢管安装时,无弯时30m,有一个弯时20m,有二个弯时15m,有三个弯时8m,应加装过路接线盒,无法加装接线盒时,可加大一号管径。
➢穿越外墙的钢管必须焊止水片并做等电位连接,埋入土层的钢管做沥清油麻防腐处理。
➢变形缝处理做法:变形缝两侧各预埋一个接线箱,先把管的一端固定在接线箱上,另一侧接线箱底部的垂直方向开长孔,其孔径长宽度尺寸不小于被接入管直径的2倍。
两侧连接好补偿跨接地线。
➢跨接地线应采用专用接地卡子,做机械式连接。
1.2、钢管明敷设➢钢管明敷工艺流程:➢明配管弯曲半径一般不小于管外径6倍。
主要项目施工方案第一节、流水段划分流水段划分既要考虑现浇砼工程的模板配置数量、周转次数及每日砼的浇筑量,也要考虑流水段材料和工程量的均衡程度和塔式起重机每台班的效率,具体流水段划分规划如下:一、底板按后浇带的分划分为四个流水段。
二、地下室结构横向分为四个流水段,筒体为一单独流水段,穿插在横向流水施工中,不占用工期。
三、主体结构竖向分为三个流水段,筒体为一单独施工段,穿插在竖向流水段中,不占用工期。
地下室、首层至四层及地上筒体段结构施工,先施工筒体及柱分项,后施工梁板分项。
第二节、测量放线一、根据图纸及现场实际情况,对各流水段进行网状控制,兼顾+0.000以上施工,测试控制轴线2轴、3轴、9轴、15轴、19轴、B 轴、E轴、J轴、M轴;根据测绘院提供水准点向施工现场引高程控制点,距离基坑至少15m。
控制点放样采用方向交汇法,按照导线施测,所有控制点设专人保护,且每月复核一次,使用前必须进行校核。
二、采用电子经纬仪,用采用方向交汇法投测各轴线的两端点测设轴线。
三、钢尺量距时要求采用标准拉力50N,季节复检时,根据气温情况进行温度校正。
对悬空和倾斜测量,应在满足限差要求的情况下视具体情况考虑垂直及倾斜改正。
要求每层轴线距离用引测轴线法进行校对。
四、标高抄测采用S2水准仪,视距差控制在20mm,均以控制水准点作后视,并作往返闭合。
五、楼梯间放线扣除面层部分,放出详细平面、标高及砼面层控制线;以控制轴线及上下贯通线控制垂直偏差,外墙立面窗口两侧控制线从上到下弹通线,逐层上引控制。
六、所有测量仪器及工具定期由区以上技术监督局鉴定,合格后方可使用。
七、沉降观测:(由建设单位直接委托有资质单位)沉降观测点按施工图设计位置布置。
当浇筑完底板砼,即在底板上埋设临时观测点,待观测点稳定后及时进行观测,地下室施工完后,将临时观测点移至+0.000时,按规定埋设永久性观测点,然后每施工一层,复测一次,直至竣工。
工程竣工后,第一年观测四次,第二年观测二次,第三年观测一次,至下沉量不大于1mm/100d停止观测。
沉降观测点等级按三等,观测方法为二等水准测量。
(具体详见《施工测量方案》)第三节、降水护坡工程一、止水、降水工程根据勘测报告,本工程现场地下水位在现有地面1.0米左右,基坑的开挖和基础的施工采取降水或止水措施,由于本工程北面五层民房距地下室外墙只有3米,东面、南面、西面地下室外墙都紧靠市政道路边,采取井点降水,可能引起周边构筑物的下沉开裂和倾斜,只能采用深层水泥搅拌桩止水幕帏,搅拌桩深10m、桩径¢500。
二、护坡工程根据场地周围情况,考虑现场情况,在建筑物东、南、西三侧采用土钉墙支护,肥槽按45cm考虑。
主楼北侧采用抗滑护坡桩支护。
护坡桩桩径为¢1000mm,桩长约17m,桩距2m,连梁顶标高-1.20m(连梁尺寸600×400mm),设一道预应力锚杆,位于-4.00m处,两桩一锚,倾斜角15°。
连梁以上砌240mm砖墙(75°倾角),每隔3m设370mm砖垛,回填土密实,砖墙上返300mm。
土钉墙采用垂直边坡,土钉直径100mm,倾角10°,面层12-15cm 厚C20砼,配筋ф20、ф22,φ8@200×200(面层),注浆水灰比为0.5,压力0.3-0.5Mpa。
地下室降水可能引起地面沉降和支护位移,特在变形影响范围之外设观测基准点,在护坡桩连梁上每侧设三点,按“一稳定,三固定”原则定期进行观测,发现问题及时上报,以便采取有效措施,观测至地下室结构施工完毕。
三、具体详见《基坑降水支护方案》。
第三节、土方工程一、土方开挖1、为了利用红线现有市政道路作为土方运输临时道路,降低土方运输在场的运输困难,本工程土方开挖分三个施工段平行开挖:第一施工段A段(范围为7轴~15轴之间与B轴7轴交点至16轴H轴交点以北部分);第二施工段B段(范围为7轴以西与A轴~M轴之间部分);第三施工段C段(范围为B轴7轴交点至16轴H轴交点以东部分)。
每施工段拟采用4台日本PC300型挖掘机进行土方开挖,开挖深度7.8m的分三步开挖,第一步挖深3.0m挖至-3.0m处,第二步挖深3.0m挖至-6.0m处;第三挖深1.5m挖至-7.5m处,所有基坑开挖最后留300mm厚由人工开挖。
2、土方开挖必须在地下水位已降至基底标高0.5m以下进行,土方外运暂定8Km运距,运输配40辆自卸汽车。
3、土方开挖严禁超挖,对于超挖部分用与垫层相同标号的砼浇筑至设计标高。
二、钎探采用测绘局指定的标准穿心锤,钎探点以梅花型布置,钎探深度按设计要求做好记录,请甲方、监理、设计、勘察、监督站等有关单位联合验槽,遇有持力层与勘察不符的,立即与有关方面制定处理措施,进行地基处理,经检查合格后方可进行下道工序。
三、土方回填本工程回填土有房心回填和室外回填,回填土采用粘土或粗砂,回填土应分层回填夯实,分层回填厚度为200~250mm,采用蛙式打夯机夯实,每层夯打不少于四遍,蛙式打夯机不能夯打的地方由人工夯夯实。
回填土密实度应达到设计要求的94%和97%,环刀取样部位在每层厚度的2/3处。
(具体详《土方工程施工方案》)。
第四节、垫层混凝土一、基槽验收合格后,即可进行砼垫层施工,垫层厚100mm,其侧模板采用50×100mm方木,垫层平面尺寸为底板结构尺寸每边各增加100mm,垫层砼强度等级为C15,采用平板振动器拖平振实,砼随浇筑随压平抹光,转角处抹成圆角。
若基底土质含水率较高,需采用“铺塑法”施工垫层,既在浇筑砼前铺设塑料布,浇筑砼过程不得弄破塑料布,其目的起到防潮及防止返潮作用,保证垫层含水率低于9%,缩短凉底时间,保证底板防水砼的施工。
二、垫层砼强度达到1.2Mpa后,砌筑底板边、独立基础及条形基础砖胎模。
砖胎模面和顶面抹20mm厚1:3水泥砂浆找平层,转角抹成圆角。
第五节、防水工程一、本工程地下室底板防水为结构自防水C30S6砼,地下室外墙防水以结构自防水C30S6砼及SBS改性沥青防水卷材双重设防,四周均为外贴法,采用热熔法施工。
SBS改性沥青防水卷材施工搭接宽度短边不小于150mm,长边不小于100mm,第一层与第二层接缝错开不小于1/3幅宽。
二、屋面防水采用2mm厚三元乙丙卷材防水,施工时采用双层错缝铺贴三、卫生间防水采用1.5mm厚聚氨脂涂料防水层,阴阳角处附加层采用粘贴玻璃无纺布,防水层上卷250mm高。
四、屋面防水及卫生间防水施工完成后,需进行48小时的蓄水实验。
第六节、钢筋工程一、对每批进场材料严格验收,必须符合GB5024-2002、GB1499-1998及JGJ95-2003规定,按规范取样送检,试验合格后方可使用。
二、放样:设专职技术员放样,细部出大样图,放样严格按设计要求03G101、GB50204-2002规定执行。
钢筋配料单经审核无误后方可下料,施工过程中注意设计变更、洽商,掌握施工中结构变化情况。
三、加工:组织加工人员学习规范及标准,详细进行技术及下料原则交底,要工人做到心中有数。
四、放线:其中顶(底)板钢筋绑扎完毕后弹出墙柱位置边线。
五、定位:在梁板筋绑扎完毕后,按以上第四条中放好的边线,在顶板筋上绑扎牢固附加筋,在墙柱主筋上绑扎牢固附加筋(附加筋注意控制好立筋间距及保护层),两附加筋绑扎点绑扎牢固。
六、垫块:每层按设计要求及GB50204-2002要求计算出保护层厚度后绘图标注。
底板垫块采用50mm与底板同强度的细石砼块垫块,楼板采用15mm与楼板同强度的砼垫块,其余部位垫块采用硬塑料H 型、环型垫块,严格验收及领取使用程序,不合格品严禁使用。
七、交叉部位钢筋采用十字兜扣绑扎。
八、为防止浇筑砼时墙柱钢筋缩,墙筋加工定型梯子筋,柱筋加工柱箍予以固定。
九、每次浇完砼,绑扎钢筋前清理干净钢筋上的杂物;水、电、空调、暖通预留、预埋与土建协商,不得随意断筋;确需断筋时,要焊接处必须增设附加筋,严禁与结构主筋焊接。
十、基础底板钢筋绑扎基础底板钢筋主要为Ф25规格钢筋,上部钢筋在支座1/3范围连接,下部钢筋在距中支座1/3范围连接。
各受力钢筋之间的接头位置应相互错开,在任一接头中心至长度为钢筋直径的35倍区段范围,有接头的受力钢筋截面不得超过受力钢筋总截面面积的50%。
底板钢筋绑扎时先清理好细石砼保护层,根据墙体轴线弹好墙体、门窗洞口位置线,底板为双层钢筋,底板下层钢筋验收合格后,再进行上层钢筋的绑扎,为了确保上层钢筋的标高和水平位置,同时考虑到钢筋由于自重而产生弯曲变形,底板上层钢筋采用Ф22钢筋制成马凳作支撑,支撑间距≤1.5m,梅花型布置。
十一、墙体钢筋绑扎修整预埋钢筋,根据所弹墙体位置线对钢筋进行调整、理直、除锈、清理污染物,位移偏差大的按小于15°角调整至正确位置。
墙体钢筋均为双向双排钢筋,水平筋在外、竖筋在,水平筋锚入邻墙或暗柱、端柱48d,绑扎接头搭接长度为40d,错开间距不小于500mm。
门窗洞口加固筋与墙体钢筋同时绑扎,钢筋位置要符合设计要求。
十二、柱钢筋绑扎调整施工缝处钢筋后,计算整柱箍筋数量,按箍筋接口循环开口错开方式套入主筋,柱钢筋最低机械接头点距楼板面750mm,连接好后划箍筋位置线;主筋上安装环型塑料垫块以确保保护层厚度准确,绑扎梁钢筋前应按设计预留好柱核心箍筋;穿好梁钢筋后,调整核心箍筋位置并绑扎。
十三、梁板钢筋绑扎1、主次梁钢筋同时配合施工,次梁下部、上部钢筋分别置于主梁下部、上部钢筋之上,梁板下部接头位置在距支座L/3范围,上部钢筋接头在跨中L/3范围,梁箍筋绑扎前在主筋上划好箍筋间距线,梁纵筋绑扎接头范围箍筋按@100mm加密。
2、板筋绑扎:清理模板上的杂物,弹好钢筋间距线,先绑下部钢筋,待管线安装后再绑上部钢筋,板的纵向受拉筋锚固长度为38d,钢筋排距采用马凳钢筋控制,双向板的长跨下部钢筋置于短跨下部钢筋之上。
板筋绑扎前在模板上逐根弹上纵横钢筋位置线。
3、箍筋开口方向错开:过梁箍筋开口方向两道一循环,暗柱箍筋开口方向四道一循环,暗柱距地50mm为第一根箍筋位置,;过梁距洞边50mm为第一根箍筋位置,往墙锚固方向100mm再绑扎一根箍筋。
4、顶板钢筋距梁(或墙)边50mm为第一根钢筋位置;墙体水平筋距地50mm为第一根钢筋位置;墙体竖筋距暗柱筋50mm为第一根钢筋位置。
5、墙体均绑扎钢筋梯子凳(间距800mm,采用的钢筋直径大于墙体竖筋2mm)以确保墙体厚度和保护层厚度,梯子凳横向钢筋端面涂防锈漆。
6、下部钢筋弯钩向上,上部钢筋弯钩向下,均不得平躺。
十四、钢筋保护层基础底板下钢筋采用与底板砼同强度的细石砼块做垫块,+0.000以下外墙钢筋采用环形塑料垫块确保保护层厚度,顶板采用与顶板同强度的砼垫块确保板筋保护层厚度。