水工隧洞混凝土防渗漏措施
- 格式:doc
- 大小:26.00 KB
- 文档页数:6
有压引水隧洞衬砌混凝土防渗漏施工技术【内容提要】有压引水隧洞衬砌混凝土的防渗漏是一项极其严格谨密的工艺措施,这是因为引水隧洞的水头高差大,运行时洞内压力大。
它既不能让洞外山体的岩层裂隙水向洞内渗透,又要防止运行后的洞内压力水向洞外渗透,扩展到衬砌体外的岩层裂隙中去。
因此衬砌混凝土的渗漏,除影响到构造本身外,还影响到洞外厂房山体边坡的稳定。
本文介绍了有压引水隧洞衬砌混凝土防渗漏施工方法和技术要点。
【关键词】引水隧洞衬砌混凝土渗水裂缝处理1 前言有压引水隧洞衬砌混凝土的防渗漏是一项极其严格谨密的工艺措施,这是因为引水隧洞的水头高差大,运行时洞内压力大。
它既不能让洞外山体的岩层裂隙水向洞内渗透,又要防止运行后的洞内压力水向洞外渗透,扩展到衬砌体外的岩层裂隙中去。
因为衬砌混凝土的渗漏,除影响到构造本身外,还影响到洞外厂房山体边坡的稳定。
在黑水河柳坪水电站2#、3#引水隧洞净空直径达9m的单心圆形断面的有压引水隧洞衬砌混凝土施工中,认真执行衬砌浇筑工序,精心设置和加强伸缩缝及施工接缝的防渗漏工艺水平;在衬砌后的回填灌浆、固结灌浆中,分别采用纯水泥浆液,水泥浆+水玻璃双浆液,以及在必要时掺入一定比例的附加剂等注浆方法;在压注浆过程中严格把握各道工艺流程和强化工序控制,使洞内衬砌混凝土工程到达设计要求的防渗漏的效果。
2 施工特点〔1〕针对性强,工序严密。
衬砌混凝土抗渗固结强度高,对复杂地质条件下的有压引水隧洞和其它水工隧洞衬砌抗渗漏均适用。
〔2〕衬砌与岩体固结严密,抗渗漏效果显著。
注入的浆液通过与经高压水冲洗干净的岩层缝隙严密结合,使其与衬砌体一起,形成一个环衬砌体周圈达数米的帷幕层,有力抗击洞内外高压水的渗透。
〔3〕操作工艺简单,质量容易控制。
施工不需要大型注压浆设备和特殊注压浆材料,只要按操作工艺严密控制,即能到达应有的效果,满足水工隧洞抗渗漏的要求。
3 适用X围本施工方法对有动力承压水的衬砌混凝土,以及岩层破碎抗渗漏条件要求高的衬砌混凝土均可适用。
水工混凝土建筑物渗漏处理措施水工混凝土建筑物是一种常见的建筑形式,广泛应用于水利工程、水电站、码头等工程中。
然而,在长期使用中,这些建筑物往往会出现一些渗漏问题,如果不及时处理,会给工程带来严重的后果。
本文将介绍水工混凝土建筑物渗漏处理的几个常用措施。
措施一:堵漏堵漏是一种常见的渗漏处理方法,主要是通过堵住渗漏点或重新加固渗漏部分,达到消除渗漏的目的。
堵漏方法有以下几种:1.1 补漏补漏是一种简单有效的堵漏方法,它通常是以沥青、水泥、石膏等材料填充渗漏处,直接将漏洞或裂缝封堵。
1.2 堵漏胶堵漏胶是指一些专门为水工混凝土建筑物设计的高强度堵漏胶水,通常具有高黏度、快干、耐水等特点,可直接涂覆在渗漏处。
1.3 特种地下堵漏剂特种地下堵漏剂是一种专门用于混凝土渗漏治理的地下堵漏材料。
它是一种非常渗透、黏结能力强的物质,能够有效地填充混凝土内部微孔、裂缝和渗漏孔道。
措施二:改善外部环境由于水工混凝土建筑物往往是建在复杂的环境下,往往受到地下水、地震、风雨等外部因素的影响,因此,改善外部环境是一种非常必要的渗漏处理措施,具体措施如下:2.1 加强地基处理水工混凝土建筑物的地基是支撑整个建筑物的基础,因此地基一旦被水侵蚀或者因为地震引起的地基沉降等问题就会导致建筑物出现倾斜、裂缝等渗漏问题。
为此,加强地基处理,采取一些加固和支撑措施往往是必要的。
2.2 完善排水系统水工混凝土建筑物周围的排水系统是预防渗漏问题的关键所在。
当地下水位过高或者雨水积聚过多时,就会导致建筑物渗漏。
因此,改善排水系统、加强排水能力,防止雨水滞留是非常重要的。
2.3 防止地震地震是引起建筑物倾斜、破裂的主要因素之一。
因此,采取地震措施,加强建筑物的耐震能力,防止地震引起的渗漏是很有必要的。
措施三:加强维修养护加强水工混凝土建筑物的维修养护也是预防渗漏问题的重要措施。
经常检查、维护建筑物,明确建筑物的弱点,及时处理已经出现的问题,对于保障建筑物的正常使用、延长建筑物的寿命都具有十分重要的意义。
水工混凝土建筑物渗漏处理措施随着现代化建筑技术的不断发展,水工混凝土建筑物在各个领域得到了广泛应用。
这种建筑物具有耐久性、抗压能力强、防水性能好等优点,但是在实际使用过程中,出现渗漏问题也是不可避免的。
因此,水工混凝土建筑物的渗漏处理措施也变得至关重要。
一、水工混凝土建筑物渗漏原因水工混凝土建筑物出现渗漏问题,主要是由于以下原因:1. 施工不当。
施工过程中若无严格的操作规程和质量控制,容易造成施工不规范,产生裂缝、空鼓等质量问题,影响防水效果。
2. 材料使用不当。
水工混凝土建筑物内的材料质量直接影响防水效果,若使用质量不过关的材料或者材料存放不当,也容易造成渗漏现象。
3. 自然因素。
水工混凝土建筑物的防水层长时间受到雨水、雪水等自然因素的侵蚀、波动或者地下水位变化等都会产生渗漏问题。
二、水工混凝土建筑物渗漏处理方法1. 预防性措施预防渗漏是最重要的一环,其核心是对施工工艺和材料实施全面监管。
在施工之前,必须对工程质量进行严格把关,确保材料及其配合比例、施工工艺都符合国家相关标准。
在施工过程中要对指标进行严格监控,并制定科学的监控方案。
同时,针对建筑物所处环境特点,进行贴合性的工程设计,以避免环境因素的影响。
2. 修补型措施若已出现渗漏现象,必须立即采取过渡性措施防止水泄漏造成持续性的损害。
这种措施包括进行“水疗”,即在渗漏的地方进行清洗、处理、加固,在严密加固防水层后,进行后期施工。
但这种方法对防堤、中水易渗漏的情况和持续时间较长的情况不适用。
3. 去壳挖填补漏这种措施适用于裂缝较小区域,其主要内容是将裂缝部分混凝土全部挖除,并使用新的混凝土代替原有的混凝土进行修补。
这种方法虽然费时费力,但对于大面积的裂缝维修最为合适。
4. 预应力法加固方法当渗漏情况是由于混凝土强度不够,接受的荷载超过了其极限时,治理采用预应力法加固最为适当。
这种方法可以加强构件的负荷能力,增加整个建筑物的耐久性和稳定性。
5. 埋地防水层加固如果建筑物的防水层已成为渗漏的原因,需要重新强化防水层。
水工结构混凝土施工质量控制及防渗措施一、水工结构混凝土施工分析水工结构防渗施工中混凝土的施工质量是较为重要的工序,因此在施工中应注意以下一些关键环节。
1、施工用混凝土配合比混凝土的配合比是保证施工用混凝土质量及其形成构件强度的关键因素,实际施工中应当根据不同部位和构件的强度等选择相应的水灰比,从而获得不同的坍落度和强度,因此水工结构混凝土施工时应严格控制水灰比例。
无论是试验室得到的混凝土配合比还是设计中建议采纳的配合比,都必须在工程开始之前进行现场的实验性复核,以保证混凝土的配合比适应工程的实际需求。
配合比的控制应该是监理工程师在混凝土施工前进行现场原材料的取样,和取样单一同交付试验室进行混凝土配合比设计,并进行实验性配比。
完成后试验室应形成具体的配合单和性能说明,确保各个性能指标满足工程需求后方可以指导现场混凝土的配合和浇筑。
尤其是第一次实验的配合比应当进行实际浇筑的试验和检定,对其性能进行实地的检验。
混凝土拌制前应进行砂石含水率的测定,根据结果进行原材料的调整和配合比确定。
含水率测试结果和施工配合比通知单应做到每个班次进行检查。
2、混凝土混合当前,一般的工程项目混凝土拌制常采用自动搅拌站拌和的方式。
因此在施工的时候应对自动拌合设备进行检查,确保其运行良好。
对拌合过程进行控制的要求是自动拌合工作站的计时系统正常工作,以此控制混凝土的搅拌时间。
混凝土搅拌站和其计量器具应该定期进行检验校正,保证计量仪器准确,检查时间间隔不能超过一个月;随时检测的是混凝土拌合过程中各种原材料的配合比和工作记录情况,其检查的间隔为4小时。
3、混凝土的施工浇筑水工结构混凝土施工中应控制混凝土的铺料,做到、来料时应当进行均匀的铺平,厚度应控制在30~50cm;平仓的时候应进行分散处理,这样是为了防止大骨料的过度集中而影响构件强度。
另外,在浇筑进行时,应当注意的是对混凝土的振捣工序,这个工序将直接影响混凝土浇筑的质量,振捣时直到混凝土不再继续下沉,表面不出现大的气泡为止,拔出振捣棒的时候应当缓慢进行,工作中应注意操作的顺序和振捣点布置均匀,避免漏振或者振捣不足。
隧道渗漏水治理措施及方法1.降低渗透压力:渗漏水的主要原因是地下水通过隧道岩体或接缝进入隧道,因此降低渗透压力是治理渗漏水的重要方法之一、可以采用灌浆、注浆、加固等方式,在隧道壁面形成一层渗透不进的屏障,阻止水分的进入。
2.加固隧道结构:通过新建加固层或进行隧道结构补强,提高隧道的抗水能力和抗渗透能力。
加固材料通常采用混凝土、喷射混凝土、纤维增强材料等,根据渗漏水的具体情况选择合适的加固方式。
3.密封隧道接缝:隧道的接缝是渗漏水的主要入口,需要进行密封处理。
可以采用胶粘剂、填充料等材料进行填充和封堵,确保接缝处无渗漏。
4.排水系统的建设:通过建设排水系统,及时排除隧道内的积水和渗漏水,减少水分对隧道结构的侵蚀和损害。
排水系统可以包括排水管道、排水井、排水泵等设施,根据隧道的具体情况设计和建设。
5.监测和预警系统的建设:建设监测和预警系统,及时监测和发现隧道渗漏水的情况,提前采取措施防止事故的发生。
监测系统可以包括水位监测仪、温度监测仪、压力监测仪等设备,预警系统可以包括声光报警设备、自动控制设备等,形成一套完整的防治措施。
6.隧道环境的改善:通过改善隧道内的环境条件,减少渗漏水的发生和影响。
可以采用通风、降温、除湿等措施,调整隧道内的湿度和温度,降低渗漏水的发生概率。
7.定期检查和维护:隧道渗漏水治理是一个持续性的工作,定期进行检查和维护非常重要。
检查可以包括对隧道壁面、接缝、排水系统等进行检测和评估,及时发现问题并进行维修处理。
以上是常用的隧道渗漏水治理措施及方法,具体的应用需要根据实际情况进行选择与调整。
隧道渗漏水治理是一项复杂的工程,需要专业的团队和设备来实施和操作,以确保治理效果和隧道的安全使用。
水工混凝土建筑物渗漏处理一、水工混凝土建筑物渗漏的原因分析1.变形缝渗漏成因分析所谓变形缝就是指伸缩缝、沉降缝以及抗震缝的统称。
对于水工混凝土建筑物而言,它的变形缝需要具备以下的特点:可以满足建筑物不同部分之间的变形和变位需求,使其相互之间的作用力无法传递;变形缝中的止水结构要有优秀的水密性能,在规定的压力范围内不会出现渗漏现象;使用的止水材料要有优良的耐久性。
通常变形缝止水结构出现渗漏主要是由于设计、施工、材料三个方面的因素引起的。
在设计方面,由于变形缝的尺寸设计不合适,其中的密封止水材料的长久伸缩率根本无法符合变形缝形变的要求;在施工方面,主要是由于止水带的位置出现偏移、磅上存在蜂窝孔洞、止水带的焊接存在不严密的位置、密封材料与硅面之间出现脱离的现象等;在止水材料方面,由于止水材料出现老化现象,原有的弹性消失,止水材料上出现开裂等现象。
2、渗漏裂缝的成因分析对于硅这种材料而言,如果其所受的拉应力高于其抗拉强度,或者其拉伸变形大于其极限拉伸变形,那么磅就会出现裂缝。
一般碎裂缝按照其深度的不同可以分为表层、深层以及贯穿裂缝三种。
如果从其产生的原因进行划分,可以分为温度、干缩、钢筋锈蚀、超载、碱骨料反应裂缝等。
对于渗透裂缝的成因分析需要从结构设计、硅材料、施工、管理使用等多个方面的影响进行。
二、水工混凝土建筑物裂缝渗透的处理措施1.表面处理根据裂缝出现位置的不同,可以利用水泥砂浆、防水快凝浆或环氧砂浆来对裂缝处的表面进行相应的涂抹、粘补。
对于那些渗透量较大的,但是不会对建筑物的正常使用产生重大影响的漏水裂缝,通常可以利用埋管导渗或钻管导渗等方式进行处理。
埋管导渗方法就是顺着漏水裂缝的方向,在建筑物的混凝土表面凿出一个上面小下面大形状的槽,然后在渗漏较为集中的位置进行引水管的埋设,利用棉絮对裂缝进行填塞,使水集中从引水管排走,然后利用快凝灰浆对凿出的槽口进行封闭回填,并将引水管进行堵塞。
钻孔导渗的方法就是在渗漏裂缝的一侧钻一定数量的斜孔,保证孔穿过裂缝面,从而将渗透水从钻孔中引出,接下来对裂缝进行相应的封闭处理。
科技资讯科技资讯S I N &T N OLOGY I N FORM TI ON 2008N O.01SCI ENC E &TEC HNO LO GY I N FO RM A TI ON 建筑科学全断面砼衬砌埋藏式水工隧洞,在砼浇筑结束后,外水压力迅速升高,并直接作用于衬砌砼上,导致砼薄弱面渗水,尤其是特殊的隧洞结构断面的衬砌,必须将底板和边顶拱分开施工,对形成的施工缝止渗防治是十分重要的。
1水工隧洞工程特性某永久性水工隧洞采用城门洞形砼衬砌,全长1917米。
标准段过水断面为6m ×7m ,衬砌厚度为(0.8~1.26)m 。
双层配筋、衬砌单元分块长度为12m 。
衬砌砼标号R28、300、D 150、S8。
该处地质状况为:以中粗粒闪长斜云花岗岩为主,整体呈块状结构,属Ⅱ类围岩。
该隧洞的进口段长为144米(计12个标准单元块),衬砌形成为矩形。
砼衬砌分底板和边顶拱两次施工。
底板施工时,由于设计限制分缝位置必须在底板以上90厘米,因此在底板施工时就必须设置一部分吊脚模板进行部分边墙的施工。
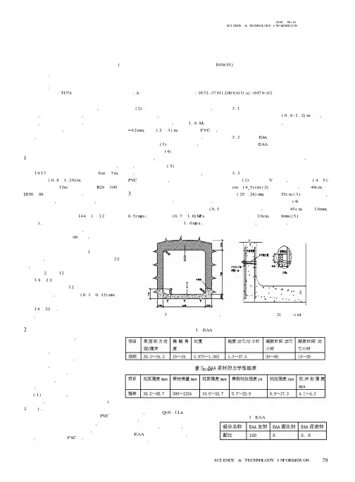
详细分缝位置见图1。
边顶拱砼依次浇筑完,在第一块边顶拱砼完成后的第22天,边墙与底板接触位施工缝面出现潮湿印迹。
当第2到第12块边顶拱砼在衬砌完成后的第18~22天之间都分别出现了同样的情况。
最后整个进口共12个单元块都相继产生了施工缝渗水,缝宽一般在(0.1~0.33)m m 之间。
可见砼衬砌与围岩间形成的外水压力时间在18~22天,而此时的砼强度未能达到理想值,外水压力的存在对浇筑的砼不利。
2产生渗水的原因分析及防治措施施工缝面位置较低,边、顶拱砼开仓前冲仓后会有少量的积水和一些细小的渣子难以彻底清除,再加上砼入仓前的砂浆摊铺往往也难以全部覆盖老砼面,结合面振捣不密实等因素的存在,使该部位成为一个较为薄弱的地方。
针对这些问题,采用“先引导”、“后排水”的方法,取得了一定的效果。
其具体做法:(1)底板浇筑时,对于边、顶拱岩壁有渗水的洞段,在施工缝面上预留一个纵向槽(如图2所示),位置设在外层钢筋与岩壁之间。
隧道的渗漏水防治一直是隧道建设和运营中一个重要环节。
隧道渗漏水问题的存在会给隧道的安全和可靠性带来严重威胁,因此必须采取有效措施来进行防治。
本文将介绍几种常见的隧道渗漏水防治方法。
一、地下水位降低法地下水位降低法是一种常见的隧道渗漏水防治方法。
该方法通过人工或自然排除地下水,从而减少水与隧道的接触,从根本上解决渗漏问题。
具体操作包括:在隧道开挖过程中进行排水;设置地下排水系统,引导地下水流动到其他区域;埋设排水井,通过抽水机将地下水抽出等。
这些措施可以有效地降低地下水位,减少渗漏水的进入,从而保证隧道的安全运营。
二、隧道混凝土涂层防水法隧道混凝土涂层防水法是一种经济实用的渗漏水防治方法。
该方法通过在隧道内壁涂覆一层防水材料,阻止渗漏水的进入。
常用的防水材料有聚合物涂料、聚合物水泥、聚氨酯等。
涂层的厚度和质量需要根据实际情况进行设计和选择,以确保防水效果。
此外,隧道混凝土涂层防水法还可以提高隧道的耐久性和抗冻性,延长隧道的使用寿命。
三、隧道渗漏水堵漏法隧道渗漏水堵漏法是一种有效的防治渗漏水的方法。
该方法通过在渗漏处进行补漏,填塞破损部位或裂缝,阻止渗漏水的进一步扩散。
具体操作包括:使用防水材料填充渗漏处;钻孔注浆,将固化剂注入渗漏部位;喷涂防水材料等。
此外,隧道渗漏水堵漏法还可以提高隧道结构的强度和稳定性,增强渗漏部位的抵抗能力。
四、隧道渗漏水排泵法隧道渗漏水排泵法是一种常用的渗漏水防治方法。
该方法通过设置排水系统,将渗漏水抽出隧道,避免其积聚和蔓延。
排泵系统可以通过抽水机、泵站等设备实现,确保渗漏水的及时排出。
此外,隧道渗漏水排泵法还可以降低地下水位,减轻渗漏压力,提高隧道的稳定性和安全性。
综上所述,隧道的渗漏水防治是隧道建设和运营中不可忽视的问题。
地下水位降低法、隧道混凝土涂层防水法、隧道渗漏水堵漏法和隧道渗漏水排泵法是几种常见的防治方法。
隧道建设和管理者应根据具体情况选择合适的方法,并加强监测和维护工作,以确保隧道的安全和可靠运行。
水工隧洞混凝土防渗漏措施水工隧洞是指用于引水、排水或供水的地下通道,常用于地下水资源开发、水利工程建设和水资源利用等场合。
隧洞工程的长期可靠性和安全性是设计和施工过程中需要特别关注的重要问题之一、防渗漏是水工隧洞工程中的核心问题,关系到隧洞的稳定性和运行效果。
为了防止水工隧洞的渗漏问题,通常采取以下几种措施:1.正确地选择隧洞的地质环境。
在进行隧洞工程前,需要进行详细的地质勘察和地质测试,选择地质条件好、岩石紧密、水渗透性小的地层作为隧洞所在地。
合理的场地选择可以降低渗漏的风险。
2.设计合理的隧洞断面和衬砌结构。
隧洞的断面设计应遵循水流力学原理,合理确定水流速度和流量,并进行相应的水力计算。
衬砌结构应使用防渗混凝土,并根据渗漏风险进行适当的加固和防水处理。
3.进行隧洞围岩的预处理工作。
在施工前,可以采取地质钻探和现场地质勘测等手段,了解隧洞围岩的地质情况,预测并减少渗透水的数量。
对于渗透水多的地层,可以采取填塞、深钻和注浆等方法来密实围岩,降低渗漏的风险。
4.加强隧洞的排水工程。
在施工过程中,需要采取有效的排水措施,及时排除施工现场的积水。
对于已经运行的隧洞,应定期检查和维护排水系统,确保排水通畅,及时排除隧洞内部积水的风险。
5.进行有效的渗透控制和防水处理。
根据隧洞的具体情况,可以选择防水层材料,并进行防水处理。
常用的防渗措施有:使用水泥浆或聚合物材料修复表面裂缝;采用环氧树脂和聚合物丙烯酸盐等防水涂料来进行喷涂;使用防水卷材进行覆盖等。
除了以上措施外,还需要注意隧洞施工过程中的质量控制,确保隧洞的设计和施工过程符合相关标准和规范。
此外,定期进行隧洞内部的检查和维护工作,及时发现和修复可能存在的渗漏问题,提高隧洞的运营效率和安全性。
在实际的水工隧洞工程中,以上各项措施可以根据具体情况进行组合使用,以最大限度地降低隧洞的渗漏风险。
不同的隧洞工程有不同的要求,因此在进行设计和施工前,需要充分了解和研究隧洞的特点和地质环境,制定合理的防渗漏方案,并根据实际情况进行调整和改进。
防止隧道渗漏水七大措施越来越深入,其中隧道的渗漏水就是目前设计、施工的重点和难点,隧道一旦出现渗漏水,它就直接影响着工程的主体结构质量以及使用安全。
下面就介绍防止隧道渗漏水七大招,保证隧道施工质量及安全。
采取光面爆破方案,确保开挖面圆顺这是搞好隧道不渗不漏的基础,光面爆破搞不好,极易带来:①拱部回填困难,一旦不密实,易形成水囊;②岩面凹凸不平,喷射砼难以找平;③铺设防水板困难等问题,因而在施工中,严格按照光面爆破工艺要求进行操作。
严把注浆止水、防水关需要进行注浆加固的止水地段,特别是富水地段、破碎围岩地段,严格按照注浆设计进行施工,贯彻以防为主,防排结合,综合治理的原则,确保注浆防水的质量达到止水效果,基本实现注浆段无线流,初步形成初期支护外的止水环,为安全开挖创造条件,为隧道防水创造条件。
严把小导管注浆关采用短台阶法施工时,严格执行管超前、严注浆、短开挖、强支护、快封闭、勤测量的施工原则,认真做好初期支护,特别是初期支护背后的回填注浆,做到渗漏水无线流,否则在严重渗漏水处打孔、下管补充注浆,直至符合要求。
该项工作务必做到平行作业,分段进行,做好一段,初验一段,否则,将不允许做二次衬砌。
⑴施工前根据工程地质和水文地质条件,通过试验后,再进行注浆。
⑵根据预注浆范围、地质条件和地下水情况,为确保注浆加固堵水效果,选择合理的注浆参数和浆液配比。
⑶注浆过程中,严格控制注浆压力,防止出现结构变形、串浆等现象。
⑷注浆结束后,采用径向钻孔的方法,对注浆效果进行检查、分析和判断。
把住喷射混凝土防水关⑴喷射混凝土采用湿喷技术。
⑵喷射混凝土采用复喷方式,第一次喷射封面,支立格栅,挂网后再复喷,并埋入检测喷射混凝土厚度的标识钢筋,以检查喷设混凝土的厚度。
⑶在喷射混凝土施工前28天,把场地布置图、机具、混合料配合比资料报监理审批,审批后再实施。
⑷原材料称量允许偏差(按重量比):水泥、速凝剂2%,砂石3%。
⑸搅拌时间:喷射混凝土采用强制式拌合机分次投料,搅拌时间不少于2 min。
浅谈水工隧洞混凝土防渗漏措施论文【关键词】水工隧洞混凝土渗漏处理措施水工隧洞在砼衬砌完成后,地下四周裂隙水被封闭于砼衬砌外,使其形成较高的水头压力,经常会在衬砌砼的薄弱部位渗出而影响构筑物的平安使用。
如何进行防渗处理也是水工隧洞施工中常常遇到的问题。
一、渗漏缘由分析全断面砼衬砌埋藏式水工隧洞,在砼浇筑结束后,由于山体内地下水的渗流通道被封堵,形成较高的外水压力,使衬砌砼在施工缝、变形缝的薄弱位置产生渗漏。
这是由于:在砼浇筑时没有实行有效的排水措施(如设置排水廊道、打排水孔等)进行外水导排减压。
在砼衬砌完成后,因各种缘由回填和固结灌浆不行能马上进行时,当衬砌砼水化热完成后,衬砌与岩体之间实际存在一个较大的空隙。
当围岩外水压力梯度尚缺乏以形成新的渗流通道时,外压力事实上是渗透水在围岩和衬砌中产生的体积力。
此时的外水压力快速上升,并直接作于衬砌砼上,导致砼薄弱面渗水,而影响衬砌结构的平安。
二、处理措施施工缝面作为新、老砼的结合部因其所处位置较低,而在缝面的处理上准时实行了冲毛或凿毛工艺,但由于现场条件的限制还存在肯定的问题,比方边、顶拱砼开仓前冲仓后会有少量的积水和一些细小的渣子难以彻底去除,再加上砼入仓前的砂浆摊铺往往也难以全部掩盖老砼面、结合面振捣不密实等等因素的存在,使该部位成为一个较为薄弱的地方。
况且边、顶拱砼浇完以后其强度增长还需要肯定的.时间,在此时间内,外水压力快速增加必定从该处渗出。
针对这一问题,采纳“先引导”、“后排水”的方法,取得了肯定的效果。
先引导的目的是在未进行二次砼浇筑时,预先设置导水孔,制造导排外水减压的条件。
后排水是在二次浇筑砼后,使无规的渗漏水通过引导水管变为有规的卸压排水导流,使二次浇筑有足够的强度增长时间,确保砼的质量,最终通过注浆封闭导水孔到达止渗的目的,其详细作法如下。
1.底板浇筑时,对于边、顶拱岩壁有渗水的洞段,在底板砼施工时,在施工缝面上预留一个纵向槽,预留槽的位置设在外层钢筋与岩壁之间,并且留出6cm的钢筋爱护层。
水工混凝土建筑物的渗漏处理措施
水工商品混凝土建筑物的渗漏在水工建筑物各种损坏现象当中属于比较常见的
一大病害,按其发生的部位不同,可分为建筑物本身渗漏、基础渗漏、底板与基
础接触面渗漏以及侧绕渗漏等几种。
根据淮海农场多年来的实践经验对于上述各种渗漏的处理可采取如下措施。
一、裂缝渗漏的处理
根据裂缝发生的原因及其结构影响的程度,渗漏量大小和集中分散等情况,分别采取以下处理措施:
1.表面处理
根据裂缝所在的部位,可用水泥砂浆、防水快凝砂浆以及环氧砂浆等对裂缝部位的表面进行涂抹,粘补,嵌补以及喷浆修补等。
对于裂缝渗漏量较大,但不影响建筑物正常使用的漏水裂缝,可采用埋管导渗或钻孔导渗。
埋管导渗即沿漏水裂缝在商品混凝土表面凿成上小下大的槽形,并在渗漏集中的部位埋设引水铁管,然后用棉絮沿裂缝填塞,使漏水集中从引水铁管排水,再用快凝灰浆或防水快凝砂浆迅速回填封闭槽口,最后把引水管封堵。
水工混凝土构筑物防渗漏技术措施1.1.1.1.1塑性裂缝预防措施采取技术措施,优化混凝土配比,严格控制混凝土单位用水量在170kg/m3以下,水灰比控制在0.5以下,在满足泵送和浇筑要求时,宜尽可能减少坍落度,一般地坍落度控制在120~160mm;添加良好的掺合料,改善工作和易性并能减少沉陷,如使用I级粉煤灰;混凝土浇筑时,控制布料速度并分层浇筑,不允许由一点或几点集中下灰形成堆积,振捣不足或漏震;混凝土充分振捣密实并防止过振,在变截面、预埋管(件)、止水带等处严格控制分层浇筑、振捣。
并在混凝土浇筑1~1.5小时后,混凝土尚未凝结并接近铺摊后层混凝土之前,对混凝土实施二次振捣,在混凝土终凝前对表面赶光压实;1.1.1.1.2温度裂缝预防措施对于大体积混凝土,其形成的温度应力与其结构尺寸相关,在一定尺寸范围内,混凝土结构尺寸越大,内部温度越高,内外温度梯度越大,裂缝产生的危险性也越大,这就是大体积混凝土易产生温度裂缝的主要原因。
其出现裂缝最根本的措施就是采取措施控制混凝土内部和表面的温度差。
对于大体积混凝土基础能自由活动一般约束小,对于水池长墙结构其下根部和基础牢固地嵌固在一起,其活动受到约束,在温度变形作用裂缝产生较基础严重。
1)混凝土原材料和配合比的选用⑴水泥品种选择和水泥用量控制大体积钢筋混凝土引起裂缝的主要原因是水泥水化热的大量积聚并难于散发,使混凝土出现早期升温快且高和后期降温,产生内部和表面的温差。
降低温度的措施是选用低热或掺用混合材较多的普通硅酸盐水泥。
再有,可充分利用混凝土后期强度,以减少水泥用量。
在水泥的选用上,采用低热即低细度、低C3S、C3A含量的水泥。
并选用低碱水泥。
并控制水泥进场温度低于60℃,防止将热量引入混凝土带来附加热量。
⑵掺加掺合料混凝土中掺入一定数量的优质粉煤灰,不但能代替部分水泥,而且由于粉煤灰颗粒呈球状具有滚珠效应,起到润滑作用,可改善混凝土拌合物的流动性、粘聚性和保水性,改善可泵性。
浅谈水工隧洞混凝土防渗漏措施摘要:混凝土缺陷是水工建筑物经常发生的事,灌浆技术是水利工程中基础处理的重要方法和手段,在大坝坝基防渗、岸坡处理及输水洞围岩处理中得到了广泛应用,特别是隧洞岩石比较破碎,岩石存在较大裂隙、漏水通道,造成灌浆吸浆量较大或有承压水,灌浆不能屏浆,使灌浆效果达不到设计要求。
实际中应根据具体情况采取不同的措施,以达到预期效果,满足建筑物的安全稳定与防渗要求。
关键词:水工隧洞混凝土渗漏处理措施
中图分类号:tv672+.1文献标识码:a 文章编号:
引言:
水工隧洞在砼衬砌完成后,地下周围裂隙水被封闭于砼衬砌外,使其形成较高的水头压力,常常会在衬砌砼的薄弱部位渗出而影响构筑物的安全使用。
如何进行防渗处理也是水工隧洞施工中经常遇到的问题。
1工程概况
闹德海水库是一座防洪滞沙、农田灌溉、城市供水等综合利用的大(ⅱ)型水库,是辽河一级支流柳河上唯一已建的大型控制性工程。
始建于1942年,历经了三次加固与改建,依据水利部大坝安全管理中心坝函[2005]989号文,对闹德海水库进行第四次加固。
本次加固内容为上游增设检修门槽、坝下消能工、左右岸帷幕灌浆及输水洞回填与固结灌浆等项目。
由于辽西地区连续干旱少雨,
1994年10月,开始向阜新市提供工业和生活供水。
为保证阜新市供水,经过对水库多年泥沙资料的研究与探讨,水库从2001年起全年蓄水,水库在较高水位运行时间大大加长。
输水洞位于大坝右岸上游80米处,内径为3米砼衬砌隧洞,砼衬砌厚度0.3m,长407米,洞内水放空后,在桩号0+55~0+80处洞底板有涌水,呈上升泉状,水中夹砂,其它部位有不同程度的渗漏点等。
2坝址区地质条件
闹德海水库坝址区地貌属波状起伏的剥蚀低丘,地表风积物较厚,植被不发育,以黄土状粉砂、粉土为主,一般厚约10~20m,地面高程约194~200m。
左岸基岩面高程为182.21~188.33m,右岸基岩面高程为188.14~192.94m。
基岩面最低高出库水位5m左右,在库水位附近的岩体一般为强~弱风化,透水性较强,节理较发育。
左岸分布的f6、f7断层于岸坡上有渗流点出露,节理较发育;走向ne35°~50°的一组节理,微张,无充填或钙质、铁质充填。
坝端基岩岩性主要为灰色~红褐色凝灰质安山岩,岩芯取获率低,破碎,多呈碎块状,仅局部呈短柱状,岩石脆,吸水性较强,易软化,节理较发育。
坝端基岩以弱透水为主,局部为中等透水,左岸最大透水率10.5lu,右岸最大透水率11.3lu。
坝址区地下水类型主要为基岩裂隙水和第四系孔隙潜水;基岩裂隙水含水层广泛分布于两岸安山岩或集块岩中。
而孔隙潜水含水层主要分布于河谷砂卵砾石中及两岸第四系松散堆积层中。
3渗漏的现状
输水洞洞壁有裂缝渗水,表现为局部潮湿或间断性滴水;砼衬砌伸缩缝处渗漏滴水及在桩号0+55~0+80处洞底板有涌水,呈上升泉状,量较大,且水中夹有细砂。
3.1水工隧洞工程特性
某永久性水工隧洞采用城门洞形和矩形砼衬砌,全长1917米。
标准段过水断面为6×7m,衬砌厚度为0.8~1.26m。
双层配筋、衬砌单元分块长度为12m。
衬砌砼标号r28、300、d150、 s8。
该处地质状况为:以浅灰色中粗粒闪长斜云花岗岩为主,整体呈块状结构,属ⅱ类围岩。
沿洞向陡倾裂隙较为发育,裂隙面平直稍粗,闭合裂隙居多。
充填物主要为绿帘石、风化碎屑等。
小断裂较多,nw 倾向陡倾节理与ne倾向缓倾节理发育。
绝大多数为微风化岩体,该洞段地下水较为富集,雨季洞壁局部明显可见无压渗水。
该隧洞的进口段长为144米(计12个标准单元块),衬砌形成为矩形,四个角上有半径为50厘米的1/4圆弧。
砼衬砌分底板和边顶拱两次施工,先浇底板,后浇边顶。
底板施工时,由于设计限制分缝位置必须在底板以上90
厘米,因此在底板施工时就必须设置一部分“吊脚模板”进行部分边墙的施工。
详细分缝位置见图1。
由于通道条件的限制,边顶拱砼施工只有在底板全部完成以后才能进行,第一块边顶拱砼浇筑完后,紧接着开始第二、三块的施工,在第一块边顶拱砼完成后的第22天,边墙与底板接触位施工缝面出现潮湿印迹。
当第2到第12块边顶拱砼在衬砌完成后的第18天—22天之间都分别出现了
同样的情况。
最后整个进口共12个单元块都相继产生了施工缝渗水,缝宽一般在0.1—0.33mm之间。
可见砼衬砌与围岩间形成的外水压力时间在18~22天,而此时的砼强度未能达到理想值,外水压力的存在对浇筑的砼不利。
4处理措施
施工缝面作为新、老砼的结合部因其所处位置较低,而在缝面的处理上及时采取了冲毛或凿毛工艺,但由于现场条件的限制还存在一定的问题,比如边、顶拱砼开仓前冲仓后会有少量的积水和一些细小的渣子难以彻底清除,再加上砼入仓前的砂浆摊铺往往也难以全部覆盖老砼面、结合面振捣不密实等等因素的存在,使该部位成为一个较为薄弱的地方。
况且边、顶拱砼浇完以后其强度增长还需要一定的时间,在此时间内,外水压力迅速增加必然从该处渗出。
针对这一问题,采用“先引导”、“后排水”的方法,取得了一定的效果。
先引导的目的是在未进行二次砼浇筑时,预先设置导水孔,创造导
排外水减压的条件。
后排水是在二次浇筑砼后,使无规的渗漏水通过引导水管变为有规的卸压排水导流,使二次浇筑有足够的强度增长时间,确保砼的质量,最后通过注浆封闭导水孔达到止渗的目的,其具体作法如下。
4.1底板浇筑时,对于边、顶拱岩壁有渗水的洞段,在底板砼施工时,在施工缝面上预留一个纵向槽,预留槽的位置设在外层钢筋与
岩壁之间,并且留出6cm的钢筋保护层。
如果边墙没有足够的超挖空间,则凿除部分岩石,以保证该槽的形成。
在纵向槽的底部与模板
之间埋设一根pvc管作为导排水管。
在进行边顶拱浇筑时,纵向槽内填充碎石,表面用镀锌铁皮封盖。
边顶拱浇筑完毕,要及时通开该pvc管,以保证排水的畅通。
4.2裂缝渗水的处理方法
对于缝宽△<2mm的裂缝,在裂缝表面采用pcs-3柔性抗冲磨涂料进行表面封堵处理。
对于缝宽2mm<△<4mm的裂缝,采用凿槽,嵌填gbw遇水膨胀橡胶条,用柔性聚合物水泥砂浆回填。
对于缝宽△>4mm的裂缝,采用开槽嵌填柔性止水密封材料,用聚合物水泥砂浆表面覆盖,内部进行化学灌浆处理。
化学灌浆作为混凝土内部的第一道防水,可沿裂缝开凿深约4cm的u形槽,槽内嵌填柔性防水密封材料,灌浆孔一般采用斜孔布置。
嵌填材料采用gb柔性止水密封条作为第二道防水,为保护嵌缝材料,在距槽口表面约3cm的槽内用聚合物水泥砂浆覆盖。
最后在表面涂刷1cm厚的pcs柔性防水涂料作为第三道防水。
4.3伸缩缝渗水的处理方法
伸缩缝渗水处理方法是沿缝凿宽30cm,深15cm的矩形槽,将凿开并清洗干净的砼表面涂刷聚合物粘接剂,用聚合物水泥砂浆抹平槽底面,如果渗水,先用堵漏粉进行堵漏,如果有局部射水点,需要打排水孔,并安装临时排水管。
安装三元乙丙板复合gb的止水带,并用不锈钢压板条及膨胀螺栓固定止水带,涂砂浆界面剂,回填配好的聚合物水泥砂浆,将聚合物水泥砂浆沿中部切缝,以适应
结构缝的自由变形,表面抹平,表面涂刷加强型pcs柔性防水涂料。
5结束语:
引红济石调水工程引水隧洞和斜井交叉段工程地质与水文地质条件复杂,且处在透水岩层中,且交叉段洞室断面较大,两洞室交角小,是隧道开挖施工中的难点。
引水隧洞交叉段开挖支护施工的顺利完成,为隧洞提前进洞与早日贯通提供了条件,确保了工程进度,施工方案经济合理,效果显著。
总之,灌浆与缺陷处理应参考同类工程的实践和灌浆试验成果进行。
结合工程的具体情况,采取一种或多种措施进行处理,才能达到预期的效果。
参考文献:
[1]王仲何.不良地质地层中隧洞施工方法[z].
[2]辽宁省水利水电勘测设计研究院《闹德海水库除险加固工程技术要求》.
[3]乌效鸣,胡郁乐,李粮纲.导向钻进与非开挖辅管技术[m].中国地质大学出版社,2004-10-01.。