型钢对接标准
- 格式:docx
- 大小:57.60 KB
- 文档页数:12
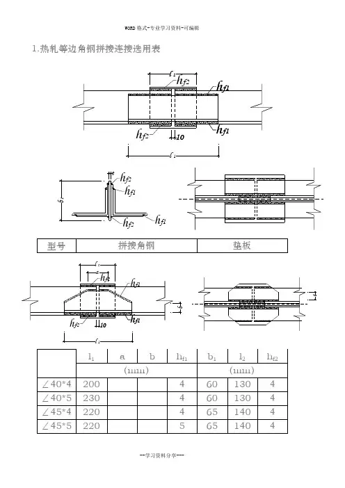
1.热轧等边角钢拼接连接选用表l 2h f2h f210l 1t h f1 h f1b1h f2h f1h f2h f1l 2ah f2hf1bh f210hf1l 1b 拼接角钢垫板型号l 1a b h f1b1l 2h f2〔 mm〕〔 mm〕∠ 40*42004601304∠ 40*52304601304∠ 45*42204651404∠ 45*52205651404∠ 45*62206651404∠ 50*42404701504∠ 50*52305701504∠ 50*62406701504∠ 56*42604801604∠ 56*52605801604∠ 56*83306801604∠ 63*42904851704∠ 63*52905851704∠ 63*62906851704∠ 63*83706851805∠ 63*103508851805∠ 70*43204901804∠ 70*53205901804∠ 70*63206901804∠ 70*73706901905∠ 70*84106901905∠ 75*53405951605∠ 75*63506951605∠ 75*73906952005∠ 75*84406952005∠ 75*104108952005∠ 80*536051002105∠ 80*637061002105∠ 80*742061002105∠ 80*846061002206∠ 80*1044081002206∠ 90*641061102006∠ 90*746061102006∠ 90*852*********∠ 90*1049081102306∠ 90*12480101102306∠ 100*645061202106∠ 100*751061202106∠ 100*858061202506∠ 100*1054081202506∠ 100*12530101202506∠ 100*14520121202908∠ 100*16470141202908∠ 110*756061302206∠ 110*863061302206∠ 110*1059081302206∠ 110*12570101302706∠ 110*14560121302708∠ 125*87201803061452906∠ 125*106701803081452906∠ 125*1265018030101453406∠ 125*1464018030121453408∠ 140*107501803081702708∠ 140*1272018030101702708∠ 140*1471018030121703108∠ 140*1664018030141703108∠ 160*108501803081903508∠ 160*1282018030101903508∠ 160*1480018030121903908∠ 160*1673018030141903908∠ 180*1292018040102104308∠ 180*1490018040122104308∠ 180*1681018040142104308∠ 180*1890018040142104308∠ 200*1499018040122304608∠ 200*1690018040142304608∠ 200*1899018040142304608∠ 200*20108018040142304608∠ 200*24127018040142304608注:①拼接角钢采用被拼接角钢相同的型号。
技术说明本标准按《钢结构设计规范》GB50017-2003,《锅炉钢结构技术条件》J B/T1620-1993综合编制。
本标准适用于本公司承制的工业与民用钢结构及一般构筑物钢结构工程。
型钢接头所用钢材的材质与被连接型钢相同。
型钢接头焊接材料:材质为Q235B时,用E43系列焊材;材质为Q345B时,用E50系列焊材。
特殊情况按设计要求。
焊缝质量标准按《钢结构工程施工质量验收规范》GB50205-2001的要求。
对接焊缝采用全焊透的坡口形式,无加强板的对接焊缝为一级,有加强板处对接焊缝清根焊透后磨平,再贴紧加强板焊接。
对接焊缝全焊透坡口形式,当δ﹤16㎜时,采用单面V行坡口,当δ≧16㎜时,采用双面V行坡口。
超长构件在分段时的现场拼接接头形式应按图纸设计要求执行。
第1页第一章角钢拼接1,角钢接头采用加强板进行对接的方式,对接焊缝清根焊透后磨平,再贴紧加强板焊接。
2,对接焊缝及拼接加强板尺寸应按图1及表1的规定。
注:1,V行坡口背向加强板,加强板覆盖处焊缝磨平图1 2,当δ≧16㎜时,采用双面V行坡口。
表1:角钢对接加强板规格角钢规格. A.B.t . 单重(kg).焊缝高度K .L50及小于L50 不采用加强板L56 70 30 6 4L63 80 35 6 4L70 100 40 6 4L75 100 40 6 5L80 100 45 6 5L90 100 50 6 5L100 100 60 6 5L110 100 65 6 5L125 100 70 6 6L140 120 80 8 6L160 120 100 8 6L180 140 120 8 6L200 140 140 8 6第 2 页第二章槽钢拼接1,槽钢接头采用腹板加强板进行对接的方式,腹板对接焊缝须清根焊透后磨平,再贴紧加强板焊接,翼缘必须焊透并达到一级焊缝标准。
注:1,V行坡口背向加强板,加强板覆盖处焊缝磨平图2 2,当δ≧16㎜时,采用双面V行坡口。
型钢拼接和对接标准1主题内容和适用范围未标准规定了用钢板焊接型钢的几何尺寸、角焊缝高度和型钢对接的结构型式及对接要求本标准适用于用钢板焊接的型钢及对接型钢的制造。
2引用标准JIS G3192 热扎型钢的形状、尺寸、重量及其允许偏差GB/T 706 热扎工字钢尺寸、外形、重量及其允许偏差SG1403 型钢焊接接头的坡口及锁口尺寸SG0801 锅炉栓焊钢结构制造技术条件3技术要求3.1除设计图样有规定外,型钢拼接时的坡口尺寸应符合SG1403标准的规定。
3.2除下列要求外,其它制造要求按SG0801标准。
3.3钢板焊接型钢(如图1)3.3.1焊接型日钢的外形尺寸参照日本标准JISG3192,工字钢的外形尺寸参照国家标准GB/T706。
3.3.2H型钢与工字钢拼接时所采用的材质应和原设计材料具有相同的等级。
B—翼板宽度Tw—腹板厚度Tf—翼板厚度Wh—焊缝高度3.3焊接型H型钢的规格和几何尺寸如表1表13 型钢的对接3.4.1型钢的对接优先采用有加强板的对接型式,当产品因为结构原因而不允许采用加强板时,允许采用插入的对接型式,如图2b所示。
3.4.2翼缘拼接焊缝(与腹板接合处)应磨平后,再与腹板焊接。
3.4.3所有型钢拼接时,被加强板覆盖的对接焊缝应采用保证能全焊透的坡口形式。
焊后表面磨平后再焊加强板。
3.4.4插入的对接型钢,其对极为焊缝应100%UT及100%MT检查合格,在拼接的十字焊缝处除坡口外,还应开圆弧缺口(R=200mm),并修磨至圆滑。
角焊缝高度按表1。
3.4.5除设计图样有规定外,拼接加强板的尺寸应按图2及表3-6的规定。
3.4.6H型钢作为立柱使用时,可取消腹板加强板件号2,但柱腹板对接焊缝需X射线或超声波检查合格;H型钢作为钢梁使用时,可取消翼板加强件号1,但梁翼板对接焊缝需X射线或超声波检查合格。
3.4.7所有的对接焊缝均应进行100%UT检查合格。
对接焊缝后需热处理的厚度按SG0801的规定。
型钢拼接和对接标准1主题内容和适用范围未标准规定了用钢板焊接型钢的几何尺寸、角焊缝高度和型钢对接的结构型式及对接要求本标准适用于用钢板焊接的型钢及对接型钢的制造。
2引用标准JIS G3192 热扎型钢的形状、尺寸、重量及其允许偏差GB/T 706 热扎工字钢尺寸、外形、重量及其允许偏差SG1403 型钢焊接接头的坡口及锁口尺寸SG0801 锅炉栓焊钢结构制造技术条件3技术要求3.1除设计图样有规定外,型钢拼接时的坡口尺寸应符合SG1403标准的规定。
3.2除下列要求外,其它制造要求按SG0801标准。
3.3钢板焊接型钢(如图1)3.3.1焊接型日钢的外形尺寸参照日本标准JISG3192,工字钢的外形尺寸参照国家标准GB/T706。
H—型钢高度h—腹板高度B—翼板宽度Tw—腹板厚度Tf—翼板厚度Wh—焊缝高度3.3焊接型H型钢的规格和几何尺寸如表13 型钢的对接,当产品因为结构原因而不允许采用加强板时,允许采用插入的对接型式,如图2b所示。
3.4.2翼缘拼接焊缝(与腹板接合处)应磨平后,再与腹板焊接。
,被加强板覆盖的对接焊缝应采用保证能全焊透的坡口形式。
焊后表面磨平后再焊加强板。
,其对极为焊缝应100%UT及100%MT检查合格,在拼接的十字焊缝处除坡口外,还应开圆弧缺口(R=200mm),并修磨至圆滑。
角焊缝高度按表1。
,拼接加强板的尺寸应按图2及表3-6的规定。
,可取消腹板加强板件号2,但柱腹板对接焊缝需X射线或超声波检查合格;H型钢作为钢梁使用时,可取消翼板加强件号1,但梁翼板对接焊缝需X射线或超声波检查合格。
一、中国标准热扎H型钢GB/T 11263-1998宽、中、窄翼缘H型钢截面尺寸、截面面积、理论重量和截面特性冷弯内卷边槽钢(GB6723-86)。
WORD 整理版型钢拼接和对接标准主题内容和适用范围1未标准规定了用钢板焊接型钢的几何尺寸、角焊缝高度和型钢对接的结构型式及对接要求本标准适用于用钢板焊接的型钢及对接型钢的制造。
引用标准2 JIS G3192 热扎型钢的形状、尺寸、重量及其允许偏差GB/T 706 热扎工字钢尺寸、外形、重量及其允许偏差SG1403 型钢焊接接头的坡口及锁口尺寸SG0801 锅炉栓焊钢结构制造技术条件3技术要求3.1 标准的规定。
SG1403 除设计图样有规定外,型钢拼接时的坡口尺寸应符合3.2 SG0801 标准。
除下列要求外,其它制造要求按 3.3 )钢板焊接型钢(如图 1 焊接型日钢的外形尺寸参照日本标准JISG3192,工字钢的外形尺寸参照国3.3.1家标准GB/T706。
3.3.2H 型钢与工字钢拼接时所采用的材质应和原设计材料具有相同的等级。
H—型钢高度h—腹板高度B—翼板宽度Tw—腹板厚度Tf —翼板厚度Wh —焊缝高度 3.3 焊接型H 型钢的规格和几何尺寸如表11 表H*B*Tw* 规格(备Wh H B h Tw Tf Tf 注)H150*150*8*12150 8 126150 12 658 6 200 H200*100*5.5*8 1001845 10 194H94*150*6*9 174150 66200H200*200*8*12 176 200 812176 204 12 12 200 H200*204*12*12 8 232 124H248*121*5*8 2486 85H250*125*6*9 250 230 12556 1012 6 H244*175*7*11 244 220 1758 68 12 200250 H250*200*8*12 226 14H250*250*9*14250 222250108优质参考资料.WORD 整理版H250*250*14*1255 14 14 250 222 4106 8294 200270 H294*200*8*12 12H294*302*12*1 294270 12 2302 12 8H298*110*5.5* 5 6449 2988282 8H300*150*6.5* 645095 300280 10H300*300*10*1 83005300268 10 16H300*305*15*110 530026816 16 3058312H340*250*9*14 14 10 250 340H341*348*10*1 344816 10 312 348610 174 346 326H346*174*6*9 65 12 6 3268175H350*175*7*11 350H350*350*12*1 20350 9350310 12 8H388*402*15*110 16 516 356 388402H394*398*11*18 839118 398 12 35812 199 8 372 H396*199*7*11396 6 14 8H400*200*8*13 400 3726 200H390*300*10*1 3586 39010 8 16 300H400*400*13*210 1360 400 14 20 400H100*408*21*212 20 360 40020 1408H414*105*18*210 18 28 358 8414405H428*407*20*312 428203585354072 表备hWh Tw Tf BH 规格注17612 6 2001008120a176 812 200 120b 10210222 250 125a 6 8 11614222 61410118 250125b130a 300 268 126 10 16 816 810 328136a 360 13618 8136b 12 328 138 360 400 18 364 12 140a 142 810 18 144 400140b 14 36418 150 414 812 450 145a10 14 414 450 18 145b 15210 22 560 14 156a 16651610 16156b516 560168 223型钢的对接 3.4.1 型钢的对接优先采用有加强板的对接型式,当产品因为结构原因而不允许采用加强板时,允许采用插入的对接型式,如图2b 所示。
H型钢拼接和对接标准及重量(汇编)型钢拼接和对接标准1 主题内容和适⽤范围未标准规定了⽤钢板焊接型钢的⼏何尺⼨、⾓焊缝⾼度和型钢对接的结构型式及对接要求本标准适⽤于⽤钢板焊接的型钢及对接型钢的制造。
2 引⽤标准JIS G3192 热扎型钢的形状、尺⼨、重量及其允许偏差 GB/T 706 热扎⼯字钢尺⼨、外形、重量及其允许偏差 SG1403 型钢焊接接头的坡⼝及锁⼝尺⼨ SG0801 锅炉栓焊钢结构制造技术条件 3 技术要求3.1 除设计图样有规定外,型钢拼接时的坡⼝尺⼨应符合 SG1403标准的规定。
3.2 除下列要求外,其它制造要求按 SG0801标准。
3.3 钢板焊接型钢(如图 1)3.3.1 焊接型⽇钢的外形尺⼨参照⽇本标准 JISG3192,⼯字钢的外形尺⼨参照国家标准 GB/T706。
3.3.2H 型钢与⼯字钢拼接时所采⽤的材质应和原设计材料具有相同的等级。
3.3焊接型 H 型钢的规格和⼏何尺⼨如表 11规格( H*B*Tw* Tf )H h B Tw Tf Wh备注H150*150*8*12 150 126 150 8 12 6H200*100*5.5*8 200 184 100 6 8 5H94*150*6*9 194 174 150 6 10 5H200*200*8*12 200 176 200 8 12 6H200*204*12*12 200 176 204 12 12 8H248*121*5*8 248 232 124 6 8 5H250*125*6*9250 230 125 6 10 5H244*175*7*11 2442201758126H —型钢⾼度 B —翼板宽度Tf —翼板厚度h —腹板⾼度 Tw —腹板厚度 Wh —焊缝⾼度3 型钢的对接3.4.1 型钢的对接优先采⽤有加强板的对接型式,当产品因为结构原因⽽不允许采⽤加强板时,允许采⽤插⼊的对接型式,如图2b 所⽰。
型钢接头标准及理论重量表Document serial number【UU89WT-UU98YT-UU8CB-UUUT-UUT108】技术说明本标准按《钢结构设计规范》GB50017-2003,《锅炉钢结构技术条件》JB/T1620-1993综合编制。
本标准适用于本公司承制的工业与民用钢结构及一般构筑物钢结构工程。
型钢接头所用钢材的材质与被连接型钢相同。
型钢接头焊接材料:材质为Q235B时,用E43系列焊材;材质为Q345B 时,用E50系列焊材。
特殊情况按设计要求。
焊缝质量标准按《钢结构工程施工质量验收规范》GB50205-2001的要求。
对接焊缝采用全焊透的坡口形式,无加强板的对接焊缝为一级,有加强板处对接焊缝清根焊透后磨平,再贴紧加强板焊接。
对接焊缝全焊透坡口形式,当δ﹤16㎜时,采用单面V行坡口,当δ≧16㎜时,采用双面V行坡口。
超长构件在分段时的现场拼接接头形式应按图纸设计要求执行。
第1页第一章角钢拼接1,角钢接头采用加强板进行对接的方式,对接焊缝清根焊透后磨平,再贴紧加强板焊接。
2,对接焊缝及拼接加强板尺寸应按图1及表1的规定。
注:1,V行坡口背向加强板,加强板覆盖处焊缝磨平图1 2,当δ≧16㎜时,采用双面V行坡口。
表1:角钢对接加强板规格角钢规格 .A.B.t .单重(kg) .焊缝高度K .L50及小于L50不采用加强板L56703064 L63803564 L701004064L751004065L801004565L901005065L1001006065L1101006565L1251007066L1401208086L16012010086L180********L20014014086说明:不等边角钢的加强板按等边角钢等同肢宽选用。
第 2 页第二章槽钢拼接1,槽钢接头采用腹板加强板进行对接的方式,腹板对接焊缝须清根焊透后磨平,再贴紧加强板焊接,翼缘必须焊透并达到一级焊缝标准。
h型钢拼接规范H型钢是一种常用的结构钢材,广泛应用于建筑、桥梁、机械制造等领域。
在使用H型钢进行拼接时,需要遵循一定的规范,以确保拼接结构的安全性和可靠性。
下面是H型钢拼接规范的主要内容。
1. 拼接方法H型钢的拼接方法包括对接焊接、角焊接和螺栓连接。
根据具体情况选择拼接方法,并遵循相关规范进行施工。
对接焊接是常用的拼接方式,可以采用手工电弧焊接或自动焊接。
2. 拼接准备在进行H型钢拼接前,需要对材料进行检查和准备。
检查H 型钢的质量证书、型号和规格是否符合要求;清除连接面的浮锈和脏物,确保焊缝的质量;根据连接件的要求,进行尺寸的调整和修整。
3. 焊接前的预处理在焊接前需要进行预处理。
首先,要对接触面进行除锈处理,保证焊缝的质量。
其次,对焊缝进行坡口处理,使焊接面达到理想的形状。
坡口的形状和尺寸应符合设计要求,并进行焊缝准备。
4. 焊接工艺在焊接时,应根据材料的种类和厚度选择合适的焊接电流、电压、速度和焊接材料。
焊接层间距和层数应符合设计和规范要求。
对于厚度大于40mm的材料,应采用多道焊接和预热的方式进行。
5. 焊缝控制焊缝的质量是拼接结构安全性和可靠性的关键,要使用合适的焊接工艺和焊接材料进行控制。
焊缝应遵循规范要求,焊缝的形状、尺寸、质量应符合相关标准,焊缝的检验应按规定进行。
6. 螺栓连接若采用螺栓连接方式进行H型钢的拼接,要选用合适的螺栓和螺母,并按规范要求进行施工。
螺栓的选择应符合相关标准,螺栓的紧固力应达到要求,螺栓连接件的数量和布置应满足结构的要求。
7. 拼接后的检验在完成拼接后,要对焊缝进行检验,以确保焊接质量符合要求。
对接焊缝可以采用目视检验、X射线检验、超声波检验等方法进行;对于螺栓连接,要检查螺栓紧固力是否符合要求。
8. 拼接后的防护完成拼接后,还需进行防护工作。
对焊缝进行防腐,防止氧化和腐蚀;对螺栓连接进行紧固,防止松动。
此外,还需对拼接之后的结构进行防火、防震等安全措施的加固和处理。
技术说明本标准按《钢结构设计规范》GB50017-2003,《锅炉钢结构技术条件》JB/T1620-1993综合编制。
本标准适用于本公司承制的工业与民用钢结构及一般构筑物钢结构工程。
型钢接头所用钢材的材质与被连接型钢相同。
型钢接头焊接材料:材质为Q235B时,用E43系列焊材;材质为Q345B 时,用E50系列焊材。
特殊情况按设计要求。
焊缝质量标准按《钢结构工程施工质量验收规范》GB50205-2001的要求。
对接焊缝采用全焊透的坡口形式,无加强板的对接焊缝为一级,有加强板处对接焊缝清根焊透后磨平,再贴紧加强板焊接。
对接焊缝全焊透坡口形式,当δ﹤16㎜时,采用单面V行坡口,当δ≧16㎜时,采用双面V行坡口。
超长构件在分段时的现场拼接接头形式应按图纸设计要求执行。
第1页第一章角钢拼接1,角钢接头采用加强板进行对接的方式,对接焊缝清根焊透后磨平,再贴紧加强板焊接。
2,对接焊缝及拼接加强板尺寸应按图1及表1的规定。
注:1,V行坡口背向加强板,加强板覆盖处焊缝磨平图1 2,当δ≧16㎜时,采用双面V行坡口。
表1:角钢对接加强板规格角钢规格 .A.B.t .单重(kg) .焊缝高度K .L50及小于L50不采用加强板L56703064 L63803564说明:不等边角钢的加强板按等边角钢等同肢宽选用。
第 2 页第二章槽钢拼接1,槽钢接头采用腹板加强板进行对接的方式,腹板对接焊缝须清根焊透后磨平,再贴紧加强板焊接,翼缘必须焊透并达到一级焊缝标准。
2,对接焊缝及拼接加强板尺寸应按图2及表2的规定。
注:1,V行坡口背向加强板,加强板覆盖处焊缝磨平图2 2,当δ≧16㎜时,采用双面V行坡口。
表2:槽钢对接加强版规格槽钢规格 .A.B.t .单重(kg) .焊缝高度K .小于[14不采用加强板[14a [14b14010065 [16a [16b16012065 [18a [18b18012065 [20a [20b20014065 [22a [22b22015085 [25a [25b25016085 [28a [28b [28c 28018085[32a [32b [32c32022085[36a [36b [36c36024086[40a [40b [40c400280108说明:轻型槽钢的加强板参本表使用。
h型钢焊接搭接标准H型钢焊接搭接标准。
H型钢是一种常用的结构钢材料,广泛应用于建筑、桥梁、机械制造等领域。
在使用H型钢进行焊接时,需要严格遵守相关的焊接搭接标准,以确保焊接质量和结构安全。
本文将介绍H型钢焊接搭接的标准要求和注意事项。
首先,对于H型钢的焊接搭接,必须符合国家标准和行业规范的要求。
在进行焊接前,需要对焊接材料、焊接工艺、焊接设备等进行严格的检查和确认,确保符合相关标准要求。
同时,还需要对焊接人员进行培训和资质认证,确保具备焊接作业的技能和资质。
其次,对于H型钢的焊接接头,需要按照相关标准要求进行准备和加工。
焊接接头的准备包括对焊缝的几何形状、尺寸、坡口形式等进行设计和加工,确保焊接接头符合相关标准要求。
在进行焊接前,还需要对焊接接头进行清洁和除毛刺处理,确保焊接接头表面光洁,无杂质和污染。
在进行H型钢的焊接搭接时,需要严格控制焊接工艺参数,确保焊接质量。
焊接工艺参数包括焊接电流、焊接电压、焊接速度、焊接温度等,需要根据具体的焊接材料和厚度进行合理的设定,确保焊接接头的质量和性能。
同时,还需要对焊接过程中的焊接变形、残余应力等进行控制,避免对结构安全产生影响。
此外,对于H型钢的焊接搭接,还需要进行焊后检测和评定。
焊后检测包括对焊接接头的外观质量、尺寸偏差、焊缝缺陷等进行检测和评定,确保焊接接头符合相关标准要求。
同时,还需要对焊接接头进行力学性能测试和非破坏检测,确保焊接接头的强度、韧性等性能符合设计要求。
综上所述,H型钢的焊接搭接标准是保证焊接质量和结构安全的重要保障。
在进行H型钢的焊接搭接时,需要严格遵守相关标准要求,对焊接材料、焊接工艺、焊接接头等进行严格控制和检测,确保焊接质量和结构安全。
只有这样,才能保证H型钢结构的安全可靠,为工程建设提供坚实的保障。