党政机关公文格式,pdf
- 格式:docx
- 大小:37.51 KB
- 文档页数:19
附件1:主要行政公文格式1.适用文种:请示、意见、报告、议案[如涉密和紧急程度,按以下格式标注:秘密等级、保管期限、★、紧急程度:3号黑体]机密★×年特急[发文机关标识字号:小标宋,字号不大于14×21㎜。
其上可标注藏文]××××××文件[发文字号:3号仿宋。
用六角括号,序号不编虚位][“签发人”:3号仿宋,签发人姓名:3号楷体]××字〔200×〕××号签发人:×××[红色反线156㎜][标题:2号小标宋,红色反线下空2行]××××××××关于××××××××的请示县人民政府:[正文:3号仿宋]××××××××××××××××××××××××××××××××××××××××××××××××××××××××××××××××××××××××××××××××××××××××××××××××××××××××××××××××××××××××××××××××××××××××。
最新党政机关公文格式(上行文)第一篇:最新党政机关公文格式(上行文)份号密级★期限紧急程度某某县某某某某某某局文件某某字〔201X〕XX号签发人:某某某标题受文机关:正文………………………………………………………………………………………………………………………………………………………………………………………………………………………………………………………………………………………………………………………………………………………………………………………………………………………………………………………………………………………………………………………………………………………………………………………………………………………………………………………………………………………………………………………………………………………………………………………………………………………………………………………………………………。
某某县某某某某某某某某某局201X年XX月XX日(附注)抄送:某某县某某某某某某某某局,某某县某某某某某某某某所。
某某县某某某某某某某某某局 201X年XX月XX日印发第二篇:最新党政机关公文格式(上行文)份号密级★期限紧急程度某某县某某某某某某局文件某某字〔201X〕XX号签发人:某某某标题受文机关:正文………………………………………………………………………………………………………………………………………………………………………………………………………………………………………………………………………………………………………………………………………………………………………………………………………………………………………………………………………………………………………………………………………………………………………………………………………………………………………………………………………………………………………………………………………………………………………………………………………………………………………………………………………………。
党政机关最新公文格式一、设置页面(一)A4型纸,成品幅面尺寸为210mm×297mm,版心尺寸为156mm×225mm(二)页边距分别设置如下:上3.7厘米、下3.5厘米、左2.8厘米、右2.6厘米。
(三)在“版式”里设置页脚边界为2.5厘米。
(四)选择“文档网格”附签,单击“字体设置”,设置“中文字体”为“仿宋”,“字号”为“三号”。
(五)选择“文档网格”附签,选中“指定行和字符网格”,设置“每行”为“28”个字符,“每页”为“22”行。
(不用单独设置行距,等同于已经设置行距为28磅)二、设置页码(一)选择“插入”菜单,选择“页码”;(二)设置“位置”为“页脚中间”;(三)在页面页脚部分双击“页码”,选择“修改页码”,“样式”定位半角数字“1,2,3……”;(四)放大页码边框,选择“开始”菜单里的排版居中将页码放到页码边框中间位置,将页码设为四号宋体,在页码两边加上全角单横杆,横杆分别和页码数字空出半角空格。
三、设置发文字号发文字号由机关代字、年份和序号组成。
发文字号用三号仿宋字体,居中排布;年份、序号用阿拉伯数码标识;年份应标全称,用六角括号“﹝﹞”括入。
四、设置附件标识公文附件是正文内容的组成部分,与正文具有同等效力。
在正文下空1行左空2字位置编排“附件”二字,后标全角冒号和附件名称。
如有顺序号,使用阿拉伯数字标注,附件名称后不加标点符号。
五、设置发文机关署名、成文时间单一机关制发公文的成文日期以负责人签发的日期为准,联合行文以最后签发机关负责人签发日期为准。
不加盖印章的公文,单一机关行文时,在正文下空1行右空2字编排发文机关署名,在发文机关署名下1行编排成文日期,成文日期首字比发文机关署名首字右移2 字,成文日期用阿拉伯数字将年、月、日标全。
六、设置印发机关和印发时间标识版记中的分隔线与版心等宽,分隔线用粗线,末条分隔线与公文最后一面的版心下边缘重合。
印发机关和印发日期一般用4号仿宋体字,编排在末条分隔线之上,印发机关左空一字,印发日期右空一字,用阿拉伯数字将年、月、日标全,年份应标全称,月、日不编虚位(即不编01),后加“印发”二字。
党政机关公文格式党政机关公文格式党政机关公文格式(建议做文字工作的收藏)为提高党政机关公文的规范化、标准化水平,2016年6月29日,国家质量监督检验检疫总局、国家标准化管理委员会发布了《党政机关公文格式》国家标准(GB/T 9704-2016)。
该标准于2016年7月1日起正式实施。
此标准是对国标《国家行政机关公文格式》(GB/T 9704-1999 )的修订,对公文用纸、印刷装订、格式要素、式样等作出了具体规定。
特别是将党政机关公文用纸统一为国际标准A4型,首次统一了党政机关公文格式要素的编排规则,使党政机关公文的表现形式更加规范。
公文格式1 范围本标准规定了党政机关公文通用的纸张要求、排版和印制装订要求、公文格式各要素的编排规则,并给出了公文的式样。
本标准适用于各级党政机关制发的公文。
其他机关和单位的公文可以参照执行。
使用少数民族文字印制的公文,其用纸、幅面尺寸及版面、印制等要求按照本标准执行,其余可以参照本标准并按照有关规定执行。
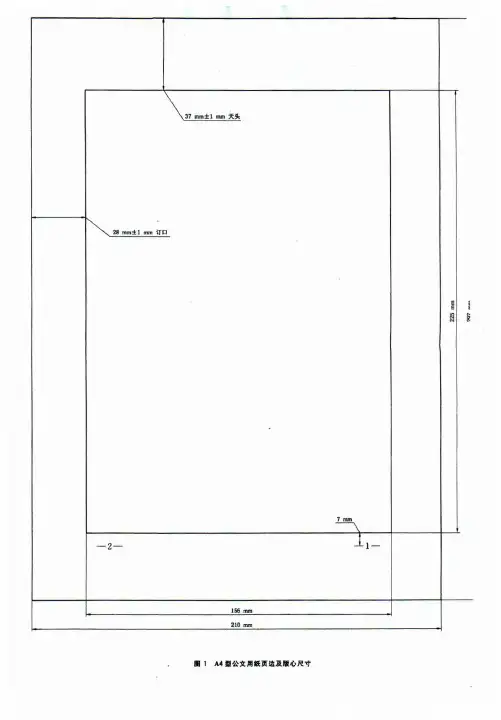
(略)5 公文用纸幅面尺寸及版面要求5. 1 幅面尺寸公文用纸采用GB/T 148中规定的A4型纸,其成品幅面尺寸为:210 mm×297 mm.5.2 版面5.2.1 页边与版心尺寸公文用纸天头(上白边)为37 mm±1 mm,公文用纸订口(左白边)为28mm±1mm,版心尺寸为156 mm×225 mm.5.2.2 字体和字号如无特殊说明,公文格式各要素一般用3号仿宋体字。
特定情况可以作适当调整。
5.2.3 行数和字数一般每面排22行,每行排28个字,并撑满版心。
特定情况可以作适当调整。
5.2.4 文字的颜色如无特殊说明,公文中文字的颜色均为黑色。
6 印制装订要求6. 1 制版要求版面干净无底灰,字迹清楚无断划,尺寸标准,版心不斜,误差不超过1 mm.6.2 印刷要求双面印刷;页码套正,两面误差不超过2mm.黑色油墨应当达到色谱所标BL100%,红色油墨应当达到色谱所标Y80%、M80%.印品着墨实、均匀;字面不花、不白、无断划。
党政机关公文的格式规范党政机关公文的格式规范《党政机关公文处理工作条例》(以下简称《条例》)规定“公文一般由份号、密级和保密期限、紧急程度、发文机关标志、发文字号、签发人、标题、主送机关、正文、附件说明、发文机关署名、成文日期、印章、附注、附件、抄送机关、印发机关和印发日期、页码等组成”,从18个方面规范了党政机关公文格式各要素。
这里结合实际工作,为大家梳理一下其中涉及的规范性问题。
下面是店铺为大家整理的党政机关公文的格式规范,欢迎参考~党政机关公文的格式规范1. 公文份号标注要规范。
份号即公文印制的顺序号,涉密公文标注份号有利于加强公文的管理,便于掌握公文的去向。
按照《条例》规定,公文份号在公文首页左上角用阿拉伯数字标注。
涉密文件可标虚位,一般标四至六位,如果是两位数的文件共20号,则从0001号开始编码,一直编排到0020号;如果是四位数的文件共2012号,则从000001号开始编码,一直编排到002012号。
2. 密级和保密期限标注要规范。
高标密级或低标密级都会给文件的使用和管理带来不便,因此要本着实事求是、利于保密的原则,合理把握和确定密级和保密期限。
密级和保密期限都要标注在公文首页的左上角,用阿拉伯数字标注。
例如:秘密1年、机密3年、绝密长期。
3. 紧急程度标注要规范。
这是公文送达和办理的时限要求。
公文的紧急程度要在公文首页左上角标注。
不能将正常运行的公文随意标注为“急件”。
现在有些部门上报的公文,不急的公文却标注了紧急程度,缓急程度标注过高,给上级领导机关增加了压力,带来了不必要的麻烦。
4. 发文机关标志要规范。
这是由发文机关全称或者规范化简称加“文件”二字组成,此类文件是机关或部门的大头文件,一般是指上报或下发的政策性文件;文件头也可以使用发文机关全称或者规范化简称,文号编在版头下方红线以下,一般用函类公文较多。
要取消一些部门“发文机关名称加括号并标注文种”的文件标题格式,例如:××××厅(通知)、××××局(批复)等,统一采用发文机关全称加“文件”二字或者发文机关规范化简称形式,再根据文件内容确定使用的文种。
竭诚为您提供优质文档/双击可除党政机关公文格式pdf篇一:20xx最新版党政机关公文格式(含式样)党政机关公文格式gb/t9704—20xx目次前言1范围2规范性引用文件3术语和定义4公文用纸主要技术指标5公文用纸幅面尺寸及版面要求5.1幅面尺寸5.2版面5.2.1页边与版心尺寸5.2.2字体和字号5.2.3行数和字数5.2.4文字的颜色6印制装订要求6.1制版要求6.2印刷要求6.3装订要求7公文格式各要素编排规则7.1公文格式各要素的划分7.2版头7.2.1份号7.2.2密级和保密期限7.2.3紧急程度7.2.4发文机关标志7.2.5发文字号––1––7.2.6签发人7.2.7版头中的分隔线7.3主体7.3.1标题7.3.2主送机关7.3.3正文7.3.4附件说明7.3.5发文机关署名、成文日期和印章7.3.5.1加盖印章的公文7.3.5.2不加盖印章的公文7.3.5.3加盖签发人签名章的公文7.3.5.4成文日期中的数字gb/t9704—20xx7.3.5.5特殊情况说明7.3.6附注7.3.7附件7.4版记7.4.1版记中的分隔线7.4.2抄送机关7.4.3印发机关和印发日期7.5页码8公文中的横排表格9公文中计量单位、标点符号和数字的用法10公文的特定格式10.1信函格式10.2命令(令)格式10.3纪要格式11式样––2––gb/t9704—20xx前言本标准按照gb/t1.1—20xx给出的规则起草。
本标准根据中共中央办公厅、国务院办公厅印发的《党政机关公文处理工作条例》的有关规定对gb/t9704—1999《国家行政机关公文格式》进行修订。
本标准相对gb/t9704—1999主要作如下修订:a)标准名称改为《党政机关公文格式》,标准英文名称也作相应修改;b)适用范围扩展到各级党政机关制发的公文;c)对标准结构进行适当调整;d)对公文装订要求进行适当调整;e)增加发文机关署名和页码两个公文格式要素,删除主题词格式要素,并对公文格式各要素的编排进行较大调整;f)进一步细化特定格式公文的编排要求;g)新增联合行文公文首页版式、信函格式首页、命令(令)格式首页版式等式样。
公文格式标准党政机关公文格式标准:《党政机关公文格式》GB/T 9704-20121. 公文用纸幅面尺寸及版面要求1. 1 幅面尺寸公文用纸采用A4型纸。
1.2 版面1.2.1 页边与版心尺寸公文用纸天头(上白边)为37 mm±1 mm,订口(左白边)为28mm±1mm,版心尺寸为156 mm×225 mm。
1.2.2 字体和字号如无特殊说明,公文格式各要素一般用3号仿宋体字。
特定情况可以作适当调整。
1.2.3 行数和字数一般每面排22行,每行排28个字,并撑满版心。
特定情况可以作适当调整。
1.2.4 文字的颜色如无特殊说明,公文中文字的颜色均为黑色。
2. 公文格式各要素编排规则2.1 公文格式各要素的划分标准将版心内的公文格式各要素划分为版头、主体、版记三部分。
公文首页红色分隔线以上的部分称为版头;公文首页红色分隔线(不含)以下、公文末页首条分隔线(不含)以上的部分称为主体;公文末页首条分隔线以下、末条分隔线以上的部分称为版记。
页码位于版心外。
2.2版头2.2.1 份号如需标注份号,一般用6位3号阿拉伯数字,顶格编排在版心左上角第一行。
2.2.2 密级和保密期限如需标注密级和保密期限,一般用3号黑体字,顶格编排在版心左上角第二行;保密期限中的数字用阿拉伯数字标注。
2.2.3 紧急程度如需标注紧急程度,一般用3号黑体字,顶格编排在版心左上角;如需同时标注份号、密级和保密期限、紧急程度,按照份号、密级和保密期限、紧急程度的顺序自上而下分行排列。
2.2.4 发文机关标志由发文机关全称或者规范化简称加“文件”二字组成,也可以使用发文机关全称或者规范化简称。
发文机关标志居中排布,上边缘至版心上边缘为35mm,推荐使用小标宋体字,颜色为红色,以醒目、美观、庄重为原则。
联合行文时,如需同时标注联署发文机关名称,一般应当将主办机关名称排列在前;如有“文件”二字,应当置于发文机关名称右侧,以联署发文机关名称为准上下居中排布。
机关公文格式设置规范本方法根据《党政机关公文格式国家标准》(GB/T9704-2012),结合我局实际制定。
具体内容如下:一、办公软件要求适用于微软OFFICE—WORD文字处理软件。
永中OFFICE文字处理软件可参照使用。
二、页面设置 1.选择“文件”——“页面设置”选择“页边距”附签,上:3.7厘米,下:3.5厘米,左:2.8厘米,右:2.6厘米。
2.选择“纸张”附签,“纸张大小”设成“A4”。
3.选择“版式”附签,将“页眉和页脚”设置成“奇偶页不同”,在该选项前打“√”,“页脚”设置成“2.5厘米”。
4.选择“文档网格”附签,“字体设置”,“中文字体”设置为“仿宋”;“字号”设置成“三号”,单击“确定”按钮。
5.进入“文档网格”附签,选中“指定行网格和字符网格”,将“每行”设置成“28”个字符;“每页”设置成“22”行。
然后单击“确定”按钮,这样就将版心设置成了以三号仿宋体为标准、每页22行、每行28个汉字的国家标准。
三、插入页号 1.选择“插入”——“页码”,“位置”设置为“页面底端(页脚)”,“对齐方式”设置为“外侧”。
2.然后单击“格式”按钮,“数字格式”设置为-1-,-2-,-3-显示格式,单击“确定”按钮,再次单击“确定”按钮完成页码设置。
3.双击页码,选中页码(包括左右两条短线),将页码字号设置成“四号”;字体为宋体的阿拉伯数字;奇数页的页码设置成右空一个汉字,偶数页的页码设置成左空一个汉字。
四、文号制作 1.平行文或下行文号:文号——三号仿宋、居中显示,编排在发文机关标识下空二行位置。
2.上行文文号:文号——三号仿宋字体、左空一个字的距离;签发人——三号仿宋字体;签发人姓名——三号楷体、右空一个字的距离,编排在发文机关标识下空二行位置。
注:文号一定要使用六角符号。
六角符号插入方法:选择“插入”——“符号”——“符号”附签,找到六角符号后,将光标置于准备插入的地方,单击“插入”按钮即可。
《党政机关公文格式》(GB/T 9704-2012)1.单击word文件下拉菜单,打开“页面设置”高级选项,选择“页边距”选项卡,将页边距设置为:上“3.7厘米”、下“3.5厘米”、左“2.8厘米”、右“2.6厘米”;方向为“纵向”;页码范围“普通”。
选择“纸张”选项卡,纸张大小选择“A4”;选择“版式”选项卡,“页眉和页脚”设置中,设置成“奇偶页不同”,距边界页脚设置为“2.8厘米”;页面垂直对齐方式为“顶端对齐”,单击确定。
2.单击格式下拉菜单,打开“段落”高级选项,选择“缩进和间距”选项卡,“缩进”设置为“首行缩进、2字符”,“行距”设成“固定行距、28.2磅”,确定;单击格式下拉菜单,打开“字体”高级选项,选择“字体”选项卡,“中文字体”设置为“仿宋”、字形“普通”、字体“三号”,确定。
(根据使用者习惯可以用仿宋或者仿宋GB2312)3.单击插入下拉菜单,打开“图片”→“艺术字”高级选项,选择普通版式(左上角第一个),字体选择“方正小标宋GBK”输入发“文机关名称+文件”。
在艺术字框上单击右键,打开“设置艺术字格式”高级选项。
选择“颜色与线条”选项卡,填充颜色选“红色”,线条选“无线条颜色”;选择“大小”选项卡,在尺寸和旋转中,“高度”设置为“2.64厘米”,“宽度”设置为“15.6厘米”;选择“版式”选项卡,“环绕方式”选“浮于文字上方”,“水平对齐”选“居中”,点击“高级”按钮,打开高级选项,选择“图片位置”选项卡,“水平对齐”选“居中”相对于“页边距”;“垂直对齐”中,绝对位置设为“页边距”、下侧“3.5厘米”;“选项”中“对象随文字移动”不选,确定。
4.单击插入下拉菜单,选择“图片”→“自选图形”,打开绘图菜单栏(文档底脚),按住shift键随意画一根直线。
双击直线,弹出“自选图形格式”复选框,选择“颜色与线条”选项卡,颜色设置成“红色”,虚实选“实线”,线型选“2.25磅”;选择“大小”选项卡,在尺寸和旋转中,高度设置为“0厘米”,宽度设置为“15.6厘米”;选择“版式”选项卡,“环绕方式”选“浮于文字上方”,“水平对齐”选“居中”,点击“高级”按钮,打开高级复选框,选择“图片位置”选项卡,“水平对齐”选“居中”相对于“页边距”;“垂直对齐”选绝对位置“页边距”下侧“9.6厘米”;“选项”选择“允许重叠”和“表格单元格中的版式”两项。
最新国家标准公文格式(2013年)标题(2号小标宋体)发文对象:(标题下一行顶格,3号仿宋)X X X X X X X X X X(正文3号仿宋体字)一、X X X(黑体)X X X X X X X X X X(正文3号仿宋体字)(一)X X X(楷体)X X X X X X X X X X(正文3号仿宋体字)1.X X X仿宋X X X X X X X X X X(正文3号仿宋体字)(1)X X X仿宋X X X X X X X X X X X(正文3号仿宋体字)附件:1.X X X(正文下一行右空两字)2.X X X单位名称(附件下两行居成文日期中)成文日期(右空四字,用阿拉伯数字)(联系人:……;联系电话:……)(如有附注,居左空二字加圆括号编排在成文日期下一行。
)(说明)1.标题:一般用2号小标宋体字,分一行或多行居中排布;回行时,要做到词意完整,排列对称,长短适宜,间距恰当,标题排列应当使用梯形或菱形。
2.正文:一般用3号仿宋体字,每个自然段左空二字,回行顶格。
文中结构层次序数依次可以用“一、”“(一)”“1.”“(1)”标注;一般第一层用黑体字、第二层用楷体字、第三层和第四层用仿宋体字标注。
3.附件:如有附件,在正文下空一行左空二字编排“附件”二字,后标全角冒号和附件名称。
如有多个附件,使用阿拉伯数字标注附件顺序号(如“附件:1. XXXXX”);附件名称后不加标点符号。
附件名称较长需回行时,应当与上一行附件名称的首字对齐。
附件应当另面编排,并在版记之前,与公文正文一起装订。
“附件”二字及附件顺序号用3号黑体字顶格编排在版心左上角第一行。
附件标题居中编排在版心第三行。
4.发文机关署名:单一机关行文时,在正文(或附件说明)下空一行右空二字编排发文机关署名,在发文机关署名下一行编排成文日期,首字比发文机关署名首字右移二字,如成文日期长于发文机关署名,应当使成文日期右空二字编排,并相应增加发文机关署名右空字数。
本文部分内容来自网络整理,本司不为其真实性负责,如有异议或侵权请及时联系,本司将立即删除!== 本文为word格式,下载后可方便编辑和修改! == 党政机关公文格式(党政机关,公文,格式)第1篇第2篇第3篇第4篇第5篇更多顶部目录∙第一篇:党政机关公文处理注意事项∙第二篇:201X党政机关公文处理变化∙第三篇:党政机关公文格式∙第四篇:党政机关公文格式对比∙第五篇:党政机关公文格式模板∙更多相关范文正文第一篇:党政机关公文处理注意事项党政机关公文处理注意事项一、页边距:顶部为37mm,底部为35mm,订口(左部边距)28mm,右部为26mm。
二、字号:居中排布,年份应用六角括号“ ?? ”括入。
三、签发人:如需加签发人的,字号应居左并空一个字,签发人后加全角冒号,居右空一个字,“签发人”三字应用三号仿宋字,签发人姓名用三号楷体字。
四、主体:标题一般用2号小标宋体,标题排列应用梯形或菱形。
正文一般用3号仿宋,每个自然段左空2个字,内容的一级标题用黑体字,二级标题用楷体字。
五、发文机关和日期:发文机关和日期用4号仿宋字,日期用阿拉伯数字标明。
第二篇:201X党政机关公文处理变化《党政机关公文处理工作条例》:七个变化,九个细节201X年4月6日,中共中央办公厅、国务院办公厅联合印发了《党政机关公文处理工作条例》(以下简称《条例》),同时废止了1996年中办印发的《中国共产党机关公文处理条例》和201X年国务院印发的《国家行政机关公文处理办法》(以下简称办法)。
《条例》的发布施行,对推进党政机关公文处理工作科学化、制度化、规范化将发挥重要作用。
与《办法》对比,《条例》中出现了许多新的变化,主要表现在以下七个方面:一、公文处理的概念更加科学《办法》规定?公文处理是指公文的办理、管理、整理(立卷)、归档等一系列相互关联、衔接有序的工作?,《条例》中按照公文办理的工作流程关联、衔接有序的工作环节,简洁明了,?拟制?包括了?起草、审核、签发?三个环节(《办法》中隶属于发文办理),同时将整理(立卷)、归档划归至公文办理范畴。
竭诚为您提供优质文档/双击可除党政机关公文格式,pdf
篇一:gbt9704-20xx党政机关公文格式
目次
前言
1范围
2规范性引用文件
3术语和定义
4公文用纸主要技术指标
5公文用纸幅面尺寸及版面要求
5.1幅面尺寸
5.2版面
5.2.1页边与版心尺寸
5.2.2字体和字号
5.2.3行数和字数
5.2.4文字的颜色
6印制装订要求
6.1制版要求
6.2印刷要求
6.3装订要求
7公文格式各要素编排规则
7.1公文格式各要素的划分
7.2版头
7.2.1份号
7.2.2密级和保密期限
7.2.3紧急程度
7.2.4发文机关标志
7.2.5发文字号
7.2.6签发人
7.2.7版头中的分隔线
7.3主体
7.3.1标题
7.3.2主送机关
7.3.3正文
7.3.4附件说明
7.3.5发文机关署名、成文日期和印章7.3.5.1加盖印章的公文
7.3.5.2不加盖印章的公文
7.3.5.3加盖签发人签名章的公文
7.3.5.4成文日期中的数字
gb/t9704—20xx
7.3.5.5特殊情况说明b
7.3.6附注
7.3.7附件
7.4版记
7.4.1版记中的分隔线
7.4.2抄送机关
7.4.3印发机关和印发日期
7.5页码
8公文中的横排表格
9公文中计量单位、标点符号和数字的用法
10公文的特定格式
10.1信函格式
10.2命令(令)格式
10.3纪要格式
11式样
—2—gb/t9704—20xx
前言
本标准按照gb/t1.1—20xx给出的规则起草。
本标准根据中共中央办公厅、国务院办公厅印发的《党政机关公文处理工作条例》的有关规定对gb/t9704—1999
《国家行政机关公文格式》进行修订。
本标准相对gb/t9704—1999主要作如下修订:
a)标准名称改为《党政机关公文格式》,标准英文名称也作相应修改;
b)适用范围扩展到各级党政机关制发的公文;
c)对标准结构进行适当调整;
d)对公文装订要求进行适当调整;
e)增加发文机关署名和页码两个公文格式要素,删除
主题词格式要素,并对公文格式各要素的编排进行较大调整;
f)进一步细化特定格式公文的编排要求;
g)新增联合行文公文首页版式、信函格式首页、命令(令)格式首页版式等式样。
本标准中公文用语与《党政机关公文处理工作条例》中的用语一致。
本标准为第二次修订。
本标准由中共中央办公厅和国务院办公厅提出。
本标准由中国标准化研究院归口。
本标准起草单位:中国标准化研究院、中共中央办公厅秘书局、国务院办公厅秘书局、中国标准出版社。
本标准主要起草人:房庆、杨雯、郭道锋、孙维、马慧、张书杰、徐成华、范一乔、李玲。
本标准代替了gb/t9704—1999。
gb/t9704—1999的历次版本发布情况为:
——gb/t9704—1988。
gb/t9704—20xx
—3—
党政机关公文格式
1范围
本标准规定了党政机关公文通用的纸张要求、排版和印制装订要求、公文格式各要素的编排规则,并给出了公文的式样。
本标准适用于各级党政机关制发的公文。
其他机关和单位的公文可以参照执行。
使用少数民族文字印制的公文,其用纸、幅面尺寸及版面、印制等要求按照本标准执行,其余可以参照本标准并按照有关规定执行。
2规范性引用文件
下列文件对于本标准的应用是必不可少的。
凡是注日期的引用文件,仅所注日期的版本适用于本标准。
凡是不注日期的引用文件,其最新版本(包括所有的修改单)适用于本标准。
gb/t148印刷、书写和绘图纸幅面尺寸
gb3100国际单位制及其应用
gb3101有关量、单位和符号的一般原则
gb3102(所有部分)量和单位
gb/t15834标点符号用法
gb/t15835出版物上数字用法
3术语和定义
下列术语和定义适用于本标准。
3.1
字word
标示公文中横向距离的长度单位。
在本标准中,一字指一个汉字宽度的距离。
3.2
行line
标示公文中纵向距离的长度单位。
在本标准中,一行指一个汉字的高度加3号汉字高度的7/8的距离。
4公文用纸主要技术指标
公文用纸一般使用纸张定量为60g/m2~80g/m2的胶版印刷纸或复印纸。
纸张白度80%~90%,横向耐折度≥15次,不透明度≥85%,ph值为7.5~9.5。
5公文用纸幅面尺寸及版面要求
5.1幅面尺寸
公文用纸采用gb/t148中规定的a4型纸,其成品幅面尺寸为:210mm×297mm。
gb/t9704—20xx
—4—
5.2版面
5.2.1页边与版心尺寸
公文用纸天头(上白边)为37mm±1mm,公文用纸订口(左白边)为28mm±1mm,版心尺寸为156mm×225mm。
5.2.2字体和字号
如无特殊说明,公文格式各要素一般用3号仿宋体字。
特定情况可以作适当调整。
5.2.3行数和字数
一般每面排22行,每行排28个字,并撑满版心。
特定情况可以作适当调整。
5.2.4文字的颜色
如无特殊说明,公文中文字的颜色均为黑色。
6印制装订要求
6.1制版要求
版面干净无底灰,字迹清楚无断划,尺寸标准,版心不斜,误差不超过1mm。
6.2印刷要求
双面印刷;页码套正,两面误差不超过2mm。
黑色油墨
应当达到色谱所标bl100%,红色油墨应当达到色谱所标y80%、m80%。
印品着墨实、均匀;字面不花、不白、无断划。
6.3装订要求
公文应当左侧装订,不掉页,两页页码之间误差不超过4mm,裁切后的成品尺寸允许误差±2mm,四角成90o,无毛茬或缺损。
骑马订或平订的公文应当:
a)订位为两钉外订眼距版面上下边缘各70mm处,允许误差±4mm;
b)无坏钉、漏钉、重钉,钉脚平伏牢固;
c)骑马订钉锯均订在折缝线上,平订钉锯与书脊间的距离为3mm~5mm。
包本装订公文的封皮(封面、书脊、封底)与书芯应吻合、包紧、包平、不脱落。
7公文格式各要素编排规则
7.1公文格式各要素的划分
本标准将版心内的公文格式各要素划分为版头、主体、版记三部分。
公文首页红色分隔线以上的部分称为版头;公文首页红色分隔线(不含)以下、公文末页首条分隔线(不含)以上的部分称为主体;公文末页首条分隔线以下、末条分隔线以上的部分称为版记。
页码位于版心外。
gb/t9704—20xx
—5—
篇二:最新《党政机关公文格式》国家标准
附件1
《党政机关公文格式》
gb/9704-20xx
20xx-07-01实施
目次
前言
1范围
2规范性引用文件
3术语和定义
4公文用纸主要技术指标
5公文用纸幅面尺寸及版面要求5.1幅面尺寸
5.2版面
5.2.1页边与版心尺寸
5.2.2字体和字号
5.2.3行数和字数
5.2.4文字的颜色
6印制装订要求
6.1制版要求
6.2印刷要求
6.3装订要求
7公文格式各要素编排规则
7.1公文格式各要素的划分
7.2版头
7.2.1份号
7.2.2密级和保密期限
—2—
7.2.3紧急程度
7.2.4发文机关标志
7.2.5发文字号
7.2.6签发人
7.2.7版头中的分隔线
7.3主体
7.3.1标题
7.3.2主送机关
7.3.3正文
7.3.4附件说明
7.3.5发文机关署名、成文日期和印章7.3.5.1加盖印章的公文
7.3.5.2不加盖印章的公文
7.3.5.3加盖签发人签名章的公文
7.3.5.4成文日期中的数字
7.3.5.5特殊情况说明
7.3.6附注。