料仓隔墙设计计算书原版
- 格式:docx
- 大小:12.71 KB
- 文档页数:2
料仓隔墙设计计算书一、工程概况根据本标段混凝土使用地为乐平互通式立体交叉、龙眼园高架桥、三花路高架桥、太院高架桥、芦泡涌大桥、卫东高架桥及涵洞和附属工程,为满足混凝土质量和施工需求,结和现场实际施工情况现于西二环MK62+50位置的线路右侧建立混凝土拌和站,共占地约11000m2。
料仓8个约2800m2,拟设置两座拌和楼,HZS120型,每座拌和楼每小时理论产量可达120m³。
按拌合站配料要求,不同粒径、不同品种分仓存放,不得混堆或交叉堆放,分料仓应采用50cm砼砌筑,2.5m高,采用水泥砂浆抹面,料仓内硬化C20砼浇筑20cm。
隔墙底部采用与之同宽的砼条形基础。
二、设计参数挡墙高度H=2.5m,挡墙厚度B=50cm,墙身采用C25砼浇筑成。
基础采用C25浇筑成的条形基础。
C25混凝土抗压强度设计值fc=mm2,混凝土抗拉强度设计值ft= (N/mm2),混凝土弹性模量Ec=28000 (N/mm2), 砼强度系数βc=。
初步设计:条形基础采用500mm×400mm的C25砼浇筑,即b=500mm。
取挡墙钢筋混凝土:25~26KN/M3;每米挡墙荷载N=××25=m。
初步考虑条形基础底部承载力为200KPa。
即:b=500mm,h=400mm,考虑保护层ca=35mm,得h0=h-ca=365mm。
三、条形基础计算1、配筋计算(1)、主筋验算取受弯钢筋为4@φ16,得As=804mm2,N=4,φ=16mm;ρ=As/(b*h0)=804/(500*365)=%受拉钢筋为4@φ12,得Asy=452mm2,Ny=4,φy=12mm;ρy=Asy/(b*h0)=452/(500*365)=%得ξ=ρ*fy/(α1*fc)=<ξb=…………………(α1=)得受压区高度x=ξ*h0=*365=18mm<2ca,满足要求。
4@φ124@φ16图1 条形基础配筋示意图图1 条形基础配筋示意图(箍筋按照构造进行配筋,计算如下)(2)、箍筋计算如上图1所示进行配筋,初步考虑为2道箍筋,采用φ10@150mm进行布置。
精心整理料仓隔墙设计计算书一、工程概况根据本标段混凝土使用地为乐平互通式立体交叉、龙眼园高架桥、三花路高架桥、太院高架桥、芦泡涌大桥、卫东高架桥及涵洞和附属工程,为满足混凝土质量和施工需求,结和现场实际施工情况现于西二环MK62+50位置的线路右侧建立混凝土拌和站,共占地约11000m2。
料仓8个约2800m2,ρ=As/(b*h0)=804/(500*365)=0.44%受拉钢筋为4@φ12,得Asy=452mm2,Ny=4,φy=12mm;ρy=Asy/(b*h0)=452/(500*365)=0.25%得ξ=ρ*fy/(α1*fc)=0.049<ξb=0.55…………………(α1=1.00)得受压区高度x=ξ*h0=0.049*365=18mm<2ca,满足要求。
图1条形基础配筋示意图图1条形基础配筋示意图(箍筋按照构造进行配筋,计算如下)(2)、箍筋计算如上图1所示进行配筋,初步考虑为2道箍筋,采用φ10@150mm进行布置。
即S=150mm,N=2,φ=10mm;得:实际配筋率ρsv=Nsv1/Sb=0.209%>ρsvmin=4*ft/fyv=0.145%,满足最小配筋率要求。
2、软弱地基承载力验算a、设计条件考虑基础长度L=13000mm,基础底面宽度B=500mm,基础高度为h=400mm,荷载Fk=N=2.5×0.5×γ,下层b、计算pkpcpzpcz3条形基础抗弯承载力Mu=α1*fc*b*h0^2*ξ*(1-0.5*ξ)+fy*Asy*(h0-ca))/1000000=79.6KN*mMu>N=2.5×0.5×25=31.25KN/m,满足隔墙自身受力要求。
需要的承载力为Ny=Mu*b=39.8Kpa<地基承载力N=200Kpa,满足地基承载力要求。
四、挡墙计算相关参数:查得砂堆积密度1.4~1.7吨/立方,碎石堆积1.4~1.5吨/立方。
料仓隔墙设计计算书原版Document number:PBGCG-0857-BTDO-0089-PTT1998料仓隔墙设计计算书一、工程概况根据本标段混凝土使用地为乐平互通式立体交叉、龙眼园高架桥、三花路高架桥、太院高架桥、芦泡涌大桥、卫东高架桥及涵洞和附属工程,为满足混凝土质量和施工需求,结和现场实际施工情况现于西二环MK62+50位置的线路右侧建立混凝土拌和站,共占地约11000m2。
料仓8个约2800m2,拟设置两座拌和楼,HZS120型,每座拌和楼每小时理论产量可达120m3。
按拌合站配料要求,不同粒径、不同品种分仓存放,不得混堆或交叉堆放,分料仓应采用50cm砼砌筑,2.5m高,采用水泥砂浆抹面,料仓内硬化C20砼浇筑20cm。
隔墙底部采用与之同宽的砼条形基础。
二、设计参数挡墙高度H=2.5m,挡墙厚度B=50cm,墙身采用C25砼浇筑成。
基础采用C25浇筑成的条形基础。
C25混凝土抗压强度设计值fc=mm2,混凝土抗拉强度设计值ft= (N/mm2),混凝土弹性模量Ec=28000 (N/mm2), 砼强度系数βc=。
初步设计:条形基础采用500mm×400mm的C25砼浇筑,即b=500mm。
取挡墙钢筋混凝土:25~26KN/M3;每米挡墙荷载N=××25=m。
初步考虑条形基础底部承载力为200KPa。
即:b=500mm,h=400mm,考虑保护层ca=35mm,得h0=h-ca=365mm。
三、条形基础计算1、配筋计算(1)、主筋验算取受弯钢筋为4@φ16,得As=804mm2,N=4,φ=16mm;ρ=As/(b*h0)=804/(500*365)=%受拉钢筋为4@φ12,得Asy=452mm2,Ny=4,φy=12mm;ρy=Asy/(b*h0)=452/(500*365)=%得ξ=ρ*fy/(α1*fc)=<ξb=…………………(α1=)得受压区高度x=ξ*h0=*365=18mm<2ca,满足要求。
计算书CALCULATION DOCUMENT工程编号:工程名称:项目名称:设计阶段:设计专业:计算内容:专业负责人:计算人:校对人:审核人:日期:________________________________________________________________________________ 3D3S 此处填写设计单位名称Name of the design company here目录1 设计依据 (1)2 计算简图、几何信息 (1)3 荷载与组合 (2)3.1 节点荷载 (3)3.2 单元荷载 (3)3.3 其它荷载 (4)3.4 荷载组合 (4)4 内力位移计算结果 (5)4.1 内力 (5)4.1.1 内力包络及统计 (5)4.2 位移 (10)5 设计验算结果 (13)5.1 设计验算结果图及统计表 (13)5.2 设计验算结果表 (17)附录 (17)1 设计依据《钢结构设计规范》(GB50017-2003)《建筑结构荷载规范》(GB50009-2012)《建筑抗震设计规范》(GB50011-2010)《建筑地基基础设计规范》(GB50007-2011)《钢结构焊接规范》(GB50661-2011)《钢结构高强度螺栓连接技术规程》(JGJ82-2011)2 计算简图、几何信息计算简图(圆表示支座,数字为节点号)单元编号图各单元信息如下表:注:等肢单角钢的2、3轴分别对应u、v轴3 荷载与组合结构重要性系数: 1.003.1 节点荷载3.2 单元荷载1) 工况号: 0*输入的面荷载:室内轻质隔墙轻钢龙骨水泥纤维板防火墙做法参考:12mm厚水泥纤维板+150mm系列龙骨+100mm厚岩棉(100kg/m3)+12mm厚水泥纤维板水泥板密度2000kg/m3水泥板重量=2000kg/m3*0.024m=48kg/m2岩棉100kg/m3岩棉重量=100kg/m3*0.1m=10kg/m2龙骨及其他荷载27kg/m2合计:(48+10+27)kg/m2注:85kg/m2为恒载面荷载室内隔墙风荷载较小,考虑为恒载其他荷载部分。
拌合站水泥仓稳定计算一、设计资料1、根据厂家提供数据可知:(1)每个水泥仓 自重150t+=;(2)水泥仓单个轴向力值为2200kN;(3)结构适用于风荷载为1kPa 。
二、计算公式1 .地基承载力P/A=σ≤0σP — 水泥仓单腿重量 kNA — 水泥仓单腿有效面积mm2σ— 基础受到的压应力 MPa0σ— 混凝土容许的应力 MPa采用C25混凝土浇筑地基基础,25C σ=25MPa 。
2.风荷载强度W=0321W K K KW 0— 基本风压值 Pa206.11v W =按11级飓风平均风速 s m v /30=来计算K 1、K 2、K 3—风荷载系数,查表分别取、、3.基础抗倾覆计算K c =M 1/ M 2=P1×1/2×基础宽/ P2×受风面×20≥,即满足要求 M 1— 抵抗弯距 kN •mM 2— 抵抗弯距 kN •mP1—水泥仓与基础自重 kNP2—风荷载 kN三、结构验算1、基础承载力计算根据上面的计算公式,已知静荷载P=1582kN ,计算面积A=×106mm 2。
当满载时为最不利荷载:MPa A P129.01025.1215826=⨯==地基σ2、风荷载强度计算风荷载强度计算:0321W K K K W ⋅⋅⋅=其中 基本风压:Pa v W 5.5626.1306.1220===风载体形系数:K 1=风压高度变化系数:K 2=地形、地理变化系数,按一般平坦空旷地区取K 3=W=×××=<1MPa3、储蓄罐支腿处混凝土承压性根据力学计算公式,已知的水泥仓,单腿受力P=,承压面积为335mm ×335mm 。
P/A=(335mm ×335mm )= MPa ≤25MPa满足受压要求。
4、基础抗倾覆计算Kc =M1/ M2=P1×1/2×基础宽/ P2×受风面×20=1582××××20/1000) =>满足抗倾覆要求。
板模板(扣件式)计算书计算依据:1、《建筑施工模板安全技术规范》JGJ162-20082、《建筑施工扣件式钢管脚手架安全技术规范》JGJ 130-20113、《混凝土结构设计规范》GB 50010-20104、《建筑结构荷载规范》GB 50009-20125、《钢结构设计规范》GB 50017-2003一、工程属性模板设计平面图模板设计剖面图(模板支架纵向)模板设计剖面图(模板支架横向)四、面板验算W=bh2/6=1000×15×15/6=37500mm3,I=bh3/12=1000×15×15×15/12=281250mm4承载能力极限状态q1=0.9×max[1.2(G1k +(G2k+G3k)×h)+1.4×Q1k ,1.35(G1k+(G2k+G3k)×h)+1.4×0.7×Q1k]×b=0.9×max[1.2×(0.1+(24+1.1)×0.12)+1.4×2.5,1.35×(0.1+(24+1.1)×0.12)+1.4×0.7×2.5] ×1=6.511kN/mq1静=0.9×[γG(G1k +(G2k+G3k)×h)×b] =0.9×[1.2×(0.1+(24+1.1)×0.12)×1]=3.361kN/mq1活=0.9×(γQ Q1k)×b=0.9×(1.4×2.5)×1=3.15kN/mq2=0.9×1.2×G1k×b=0.9×1.2×0.1×1=0.108kN/mp=0.9×1.4×Q1k=0.9×1.4×2.5=3.15kN正常使用极限状态q=(γG(G1k +(G2k+G3k)×h))×b =(1×(0.1+(24+1.1)×0.12))×1=3.112kN/m计算简图如下:1、强度验算M1=0.1q1静L2+0.117q1活L2=0.1×3.361×0.252+0.117×3.15×0.252=0.044kN·m M2=max[0.08q2L2+0.213pL,0.1q2L2+0.175pL]=max[0.08×0.108×0.252+0.213×3.15×0.25,0.1×0.108×0.252+0.175×3.15×0.25]=0.168kN·mM max=max[M1,M2]=max[0.044,0.168]=0.168kN·mσ=M max/W=0.168×106/37500=4.487N/mm2≤[f]=15N/mm2满足要求!2、挠度验算νmax=0.677ql4/(100EI)=0.677×3.112×2504/(100×10000×281250)=0.029mm ν=0.029mm≤[ν]=L/250=250/250=1mm满足要求!五、小梁验算11k2k3k1k1k+(G2k+G3k)×h)+1.4×0.7×Q1k]×b=0.9×max[1.2×(0.3+(24+1.1)×0.12)+1.4×2.5,1.35×(0.3+(24+1.1)×0.12)+1.4×0.7×2.5]×0.25=1.682kN/m因此,q1静=0.9×1.2×(G1k+(G2k+G3k)×h)×b=0.9×1.2×(0.3+(24+1.1)×0.12)×0.25=0.894kN/mq1活=0.9×1.4×Q1k×b=0.9×1.4×2.5×0.25=0.787kN/mq2=0.9×1.2×G1k×b=0.9×1.2×0.3×0.25=0.081kN/mp=0.9×1.4×Q1k=0.9×1.4×2.5=3.15kN计算简图如下:1、强度验算M1=0.125q1静L2+0.125q1活L2=0.125×0.894×1.22+0.125×0.787×1.22=0.303kN·m M2=max[0.07q2L2+0.203pL,0.125q2L2+0.188pL]=max[0.07×0.081×1.22+0.203×3.15×1.2,0.125×0.081×1.22+0.188×3.15×1.2]=0.776kN·mM 3=max[q 1L 12/2,q 2L 12/2+pL 1]=max[1.682×0.22/2,0.081×0.22/2+3.15×0.2]=0.632kN·mM max =max[M 1,M 2,M 3]=max[0.303,0.776,0.632]=0.776kN·m σ=M max /W=0.776×106/64000=12.117N/mm 2≤[f]=15.444N/mm 2 满足要求! 2、抗剪验算V 1=0.625q 1静L+0.625q 1活L =0.625×0.894×1.2+0.625×0.787×1.2=1.261kN V 2=0.625q 2L+0.688p =0.625×0.081×1.2+0.688×3.15=2.228kN V 3=max[q 1L 1,q 2L 1+p]=max[1.682×0.2,0.081×0.2+3.15]=3.166kN V max =max[V 1,V 2,V 3]=max[1.261,2.228,3.166]=3.166kNτmax =3V max /(2bh 0)=3×3.166×1000/(2×60×80)=0.989N/mm 2≤[τ]=1.782N/mm 2 满足要求! 3、挠度验算q =(γG (G 1k +(G 2k +G 3k )×h))×b=(1×(0.3+(24+1.1)×0.12))×0.25=0.828kN/m 挠度,跨中νmax =0.521qL 4/(100EI)=0.521×0.828×12004/(100×9350×256×104)=0.374mm ≤[ν]=L/250=1200/250=4.8mm ;悬臂端νmax =ql 14/(8EI)=0.828×2004/(8×9350×256×104)=0.007mm ≤[ν]=2×l 1/250=2×200/250=1.6mm 满足要求!六、主梁验算主梁类型钢管 主梁截面类型(mm)Φ48×3.5 主梁计算截面类型(mm) Ф48×3 主梁抗弯强度设计值[f](N/mm 2) 205 主梁抗剪强度设计值[τ](N/mm 2) 125 主梁截面抵抗矩W(cm 3) 4.49 主梁弹性模量E(N/mm 2) 206000 主梁截面惯性矩I(cm 4) 10.78 主梁计算方式 三等跨连续梁 可调托座内主梁根数2主梁受力不均匀系数0.61、小梁最大支座反力计算q1=0.9×max[1.2(G1k +(G2k+G3k)×h)+1.4Q1k,1.35(G1k+(G2k+G3k)×h)+1.4×0.7×Q1k]×b=0.9×max[1.2×(0.5+(24+1.1)×0.12)+1.4×1.5,1.35×(0.5+(24+1.1)×0.12)+1.4×0.7×1.5]×0.25=1.421kN/mq1静=0.9×1.2×(G1k +(G2k+G3k)×h)×b=0.9×1.2×(0.5+(24+1.1)×0.12)×0.25=0.948kN/mq1活=0.9×1.4×Q1k×b=0.9×1.4×1.5×0.25=0.472kN/mq2=(γG(G1k +(G2k+G3k)×h))×b=(1×(0.5+(24+1.1)×0.12))×0.25=0.878kN/m 承载能力极限状态按二等跨连续梁,R max=1.25q1L=1.25×1.421×1.2=2.131kN按悬臂梁,R1=1.421×0.2=0.284kN主梁2根合并,其主梁受力不均匀系数=0.6R=max[R max,R1]×0.6=1.279kN;正常使用极限状态按二等跨连续梁,R'max=1.25q2L=1.25×0.878×1.2=1.317kN按悬臂梁,R'1=q2l1=0.878×0.2=0.176kNR'=max[R'max,R'1]×0.6=0.79kN;计算简图如下:主梁计算简图一2、抗弯验算主梁弯矩图一(kN·m)σ=M max/W=0.697×106/4490=155.219N/mm2≤[f]=205N/mm2满足要求!3、抗剪验算主梁剪力图一(kN)τmax=2V max/A=2×3.299×1000/424=15.562N/mm2≤[τ]=125N/mm2 满足要求!4、挠度验算主梁变形图一(mm)跨中νmax =1.499mm ≤[ν]=1200/250=4.8mm 悬挑段νmax =0.625mm ≤[ν]=2×200/250=1.6mm 满足要求! 5、支座反力计算 承载能力极限状态 图一支座反力依次为R 1=4.375kN ,R 2=6.497kN ,R 3=6.497kN ,R 4=4.375kN七、可调托座验算满足要求!八、立柱验算剪刀撑设置普通型 立柱顶部步距h d (mm) 900 立柱伸出顶层水平杆中心线至支撑点的长度a(mm)200顶部立柱计算长度系数μ11.386非顶部立柱计算长度系数μ2 1.755 钢管截面类型(mm) Φ48×3.5 钢管计算截面类型(mm) Ф48×3 钢材等级Q235 立柱截面面积A(mm 2) 424 立柱截面回转半径i(mm) 15.9 立柱截面抵抗矩W(cm 3)4.49抗压强度设计值[f](N/mm 2)205顶部立柱段:l01=kμ1(h d+2a)=1×1.386×(900+2×200)=1802mm非顶部立柱段:l0=kμ2h =1×1.755×1500=2632mmλ=max[l01,l0]/i=2632.5/15.9=165.566≤[λ]=210满足要求!2、立柱稳定性验算根据《建筑施工扣件式钢管脚手架安全技术规范》JGJ130-2011,荷载设计值q1有所不同:小梁验算q1=1×[1.2×(0.5+(24+1.1)×0.12)+1.4×0.9×1]×0.25 = 1.369kN/m同上四~六步计算过程,可得:R1=4.214kN,R2=6.258kN,R3=6.258kN,R4=4.214kN顶部立柱段:l01=kμ1(h d+2a)=1.217×1.386×(900+2×200)=2192.791mmλ1=l01/i=2192.791/15.9=137.911查表得,φ=0.362不考虑风荷载:N1 =Max[R1,R2,R3,R4]/0.6=Max[4.214,6.258,6.258,4.214]/0.6=10.43kN f=N1/(ΦA)=10430/(0.362×424)=67.953N/mm2≤[f]=205N/mm2满足要求!考虑风荷载:M w=1×γQφcωk×l a×h2/10=1×1.4×0.9×0.2×1.2×1.52/10=0.068kN·mN1w=Max[R1,R2,R3,R4]/0.6+M w/l b=Max[4.214,6.258,6.258,4.214]/0.6+0.068/1.2=10.486kN f=N1w/(φA)+ M w/W=10486/(0.362×424)+0.068×106/4490=83.463N/mm2≤[f]=205N/mm2满足要求!非顶部立柱段:l0=kμ2h =1.217×1.755×1500=3203.753mmλ=l0/i=3203.753/15.9=201.494查表得,φ1=0.179不考虑风荷载:N=Max[R1,R2,R3,R4]/0.6+1×γG×q×H=Max[4.214,6.258,6.258,4.214]/0.6+1×1.2×0.15×10. 4=12.302kNf=N/(φ1A)=12.302×103/(0.179×424)=162.09N/mm2≤[σ]=205N/mm2满足要求!考虑风荷载:M w=1×γQφcωk×l a×h2/10=1×1.4×0.9×0.2×1.2×1.52/10=0.068kN·mN w=Max[R1,R2,R3,R4]/0.6+1×γG×q×H+M w/l b=Max[4.214,6.258,6.258,4.214]/0.6+1×1.2×0. 15×10.4+0.068/1.2=12.358kNf=N w/(φ1A)+M w/W=12.358×103/(0.179×424)+0.068×106/4490=177.973N/mm2≤[σ]=205N/mm2满足要求!九、高宽比验算根据《建筑施工扣件式钢管脚手架安全技术规范》JGJ130-2011 第6.9.7:支架高宽比不应大于3H/B=10.4/6=1.733≤3满足要求,不需要进行抗倾覆验算!十、立柱地基基础验算f ak 140kPa满足要求!。
料仓隔墙设计计算书一、工程概况根据本标段混凝土使用地为乐平互通式立体交叉、龙眼园高架桥、三花路高架桥、太院高架桥、芦泡涌大桥、卫东高架桥及涵洞和附属工程,为满足混凝土质量和施工需求,结和现场实际施工情况现于西二环MK62+50位置的线路右侧建立混凝土拌和站,共占地约11000m2。
料仓8个约2800m2,拟设置两座拌和楼,HZS120型,每座拌和楼每小时理论产量可达120m³。
按拌合站配料要求,不同粒径、不同品种分仓存放,不得混堆或交叉堆放,分料仓应采用50cm砼砌筑,2.5m高,采用水泥砂浆抹面,料仓内硬化C20砼浇筑20cm。
隔墙底部采用与之同宽的砼条形基础。
二、设计参数挡墙高度H=2.5m,挡墙厚度B=50cm,墙身采用C25砼浇筑成。
基础采用C25浇筑成的条形基础。
C25混凝土抗压强度设计值fc=11.9N/mm2,混凝土抗拉强度设计值ft=1.27 (N/mm2),混凝土弹性模量Ec=28000 (N/mm2), 砼强度系数βc=1.00。
初步设计:条形基础采用500mm×400mm的C25砼浇筑,即b=500mm。
取挡墙钢筋混凝土:25~26KN/M3;每米挡墙荷载N=2.5×0.5×25=31.25KN/m。
初步考虑条形基础底部承载力为200KPa。
即:b=500mm,h=400mm,考虑保护层ca=35mm,得h0=h-ca=365mm。
三、条形基础计算1、配筋计算(1)、主筋验算取受弯钢筋为4@φ16,得As=804mm2,N=4,φ=16mm;ρ=As/(b*h0)=804/(500*365)=0.44%受拉钢筋为4@φ12,得Asy=452mm2,Ny=4,φy=12mm;ρy=Asy/(b*h0)=452/(500*365)=0.25%得ξ=ρ*fy/(α1*fc)=0.049<ξb=0.55…………………(α1=1.00)得受压区高度x=ξ*h0=0.049*365=18mm<2ca,满足要求。
料仓隔墙设计计算手册原版文件编码(GHTU-UITID-GGBKT-POIU-WUUI-8968)料仓隔墙设计计算书一、工程概况根据本标段混凝土使用地为乐平互通式立体交叉、龙眼园高架桥、三花路高架桥、太院高架桥、芦泡涌大桥、卫东高架桥及涵洞和附属工程,为满足混凝土质量和施工需求,结和现场实际施工情况现于西二环MK62+50位置的线路右侧建立混凝土拌和站,共占地约11000m2。
料仓8个约2800m2,拟设置两座拌和楼,HZS120型,每座拌和楼每小时理论产量可达120m3。
按拌合站配料要求,不同粒径、不同品种分仓存放,不得混堆或交叉堆放,分料仓应采用50cm砼砌筑,2.5m高,采用水泥砂浆抹面,料仓内硬化C20砼浇筑20cm。
隔墙底部采用与之同宽的砼条形基础。
二、设计参数挡墙高度H=2.5m,挡墙厚度B=50cm,墙身采用C25砼浇筑成。
基础采用C25浇筑成的条形基础。
C25混凝土抗压强度设计值fc=11.9N/mm2,混凝土抗拉强度设计值ft=1.27(N/mm2),混凝土弹性模量Ec=28000(N/mm2),砼强度系数βc=1.00。
初步设计:条形基础采用500mm×400mm的C25砼浇筑,即b=500mm。
取挡墙钢筋混凝土:25~26KN/M3;每米挡墙荷载N=2.5×0.5×25=31.25KN/m。
初步考虑条形基础底部承载力为200KPa。
即:b=500mm,h=400mm,考虑保护层ca=35mm,得h0=h-ca=365mm。
三、条形基础计算1、配筋计算(1)、主筋验算取受弯钢筋为4@φ16,得As=804mm2,N=4,φ=16mm;ρ=As/(b*h0)=804/(500*365)=0.44%受拉钢筋为4@φ12,得Asy=452mm2,Ny=4,φy=12mm;ρy=Asy/(b*h0)=452/(500*365)=0.25%得ξ=ρ*fy/(α1*fc)=0.049<ξb=0.55…………………(α1=1.00)得受压区高度x=ξ*h0=0.049*365=18mm<2ca,满足要求。
1:仓段计算1.1:直段:(一)受力分析(标准值)直段高H=8.7m 直径D=6m H/D=8.7/6=1.45 接近1.5 ,且D>4m,可按深仓理论计算。
仓顶荷载:袋式除尘器:424kg,其它等共600kg~kg/m仓顶自重1211kg~65kg/m。
壁板:δ=4 31.4kg/m2δ=5 39.25kg/m2u:贮料与摩擦系数,k:侧压力系数k=tg(450-φ/2)s:仓顶到计算截面距离p:水力半径Cn:水平压力修正系数Cv:垂直压力修正系数。
r:贮料密度.1.6t/m3=15.68KN/m3(二、) 壁板厚度及横劲1、区段A:高度(0~.1.25m)a、壁板厚度:P环=18.12KN/m P压=18.12KN/m取δ=4mmσ切=[(18.12/9.8)x100]/(0.4x100)=46.2kg/cm2σ法σ总=b、横劲r2)径向力:Nφ=(1.5x3.037)/(2sin9o)=14.56 KN/m环向力:Nθ=1.5x3.037xcos9o ctg9o=28.41 KN/m环向拉力:T=14.56x3xcos9o=43.14 KN=4.4T取[10 A=12.74Cm2λ=4402/12.74=345kg/ cm22、区段:Ca、壁板厚度:P环=92.43KN/m P压=3.73+37.74=41.47KN/m取δ=5mmσ切=[(92.43/9.8)x100]/(0.5x100)=188.7kg/cm2σ法=[(41.47/9.8)x100]/(0.5x100)=84.63kg/cm2σ总=207kg/cm2<1700 kg/cm2b、横劲环向力P环=80.67KN/m N环=100.84KN/m取[10 A=12.74Cm2λ=(100.84x1000)/(9.8x12.74)=807kg/ cm23、区段:Da、壁板厚度:P环=103.5KN/m P压=4.29+49.36=53.65KN/m取δ=6mmσ切=[(103.5/9.8)x100]/(0.6x100)=176kg/cm2σ法=[(53.65/9.8)x100]/(0.6x100)=91.24kg/cm2σ总=198kg/cm2<1700 kg/cm2b、横劲环向力P环=92.43KN/m N环=113.22KN/m取[14 A=18.51Cm2 λ=(113.22x1000)/(9.8x18.51)=624.15kg/ cm21.2、锥段:法向拉力:P N=ξP V ξ=cos2α+ksin2α=0.5 k=0.3333 α=60o 环向拉力:N P=P N ctgαl=38.838 l斜拉力:Nmin=(l ctgαl/2){P V+[ r(sinα)/(3 l2) ] (l3- l13 )}吊挂设备引起的斜拉力忽略+34.8x152+2x48.1x402=579698 cm4W=7246 cm3λ跨中=(36.27x100000)/7246=500kg/ cm2 2;排架2.1:荷载1、贮料:350t自重:21.682t附属物重:1.5t2、风载:W=ΒZ U s U z W o=51kg/m2W O基本风压35kg/m2(北京地区十年一遇最大风力)U s<0.7U z=1.14βZ =1.83自振周期T=0.56+0.4x10-3(h2/D)h=19.75mD=6mT=0.586s>0.25s所以考虑风振系数βZ =1+[(ξυφZ)/ U z ]=1+[(1.88x0.755x0.665)/ 1.14 ]=1.83 风载作用点:S=6x8.7x(8.7/2+4.81)+(6+0.4)x(4.841/20x(4.841x2/3)=480+50=530A=6x8.7=6.4x4.841/2=67.69Z=7.8m风载P=51xA=51x67.69=3452kg2.2;内力:1、立柱:N1=(350+21682+1.5)/4=93.3t用L80x8 A=12.3 cm2λ=2675/1.57=217 kg/ cm2<250 kg/ cm2②N压=1.726t λ=424.3/2.44=174>150φ=0.932 λ=1726/(0.232x12.3)=605 kg/ cm23、连接件:①斜撑螺栓:M20 精制螺栓抗剪承载力4.241t/个3x4.241t=12.723t②立站:M36 地脚螺栓抗剪承载力8.99t/个4x8.99t=35.96t。
第三届湖北省“结构设计大赛”设计方案设计人:张学强、侯金穗、徐立一、 料仓装料部分: <一>形状尺寸1、形状:采用直圆筒状主装料仓,如图所示:2、图中圆筒部分高h1,圆台状部分高h2,其中 h1、 h2由以下过程计算体积:kg mm kg V 6010410039≥⨯⨯-mm 70021≤+h h mm 2002≤h()V h h ≥⨯⨯⨯+++⨯⨯22212460200602004200ππ3、考虑到料仓稳定性,结构体重心较低,圆台倾斜角较小,结合上述计算,最优方案为:mm h 4972= mm h 1181≥4、又考虑到料仓内部加固的箍竹片会占据一定体积,所以使上部略大于计算理论值,最终确定料仓尺寸为:mm h 5501= mm h 1202= <二>加固方法1、圆筒部采用内部竖直方向装配竹片,外部横向加环形竹箍固定的方式。
2、圆台部分采用圆筒部分向内部弯折延续,并且在折点内侧环箍加固及下部外侧环箍加固的方式。
3、为使下部形成圆台状,应将竹片加工成向下部逐渐变窄的尖竹片。
4、弯折处细部结构如图所示:5、安装有环箍部位竹片受力如图所示:<三>竹片加工规格及数据计算1、由于圆筒部分向上部受力越来越小,并且由竹片箍紧,所以主要承力部分为圆台状部分,下面就圆台状部分荷载及稳定性作具体计算分析。
2、圆筒及圆台部分共由N根竹片组成,圆筒部分每根竹片宽度为D,圆台下端宽度为d由几何关系有:mm 200⨯=πNDmm 60d ⨯=πN3、考虑竖直方向荷载,忽略料仓内壁对物料的摩擦力,每根竹片平均分摊荷载1p ,弯折区域总荷载P1满足以下关系:11p P N =⨯ 并且P1在竹片上呈梯形状分布,如图所示:4、忽略物料颗粒之间的摩擦力,圆台底部承受荷载为P2,每根竹片承受竖直向下的集中荷载p2,则满足以下关系:22p P N =⨯5、由几何关系有:kg 6020060221⨯=Pkg 6021=+P P6、P1大小呈梯形分布,在计算端点力矩时可将其看作直接作用于中点,由折点静力(力矩) 平衡条件得:0mm 200-mm 35mm 7012=⨯⨯⎪⎭⎫⎝⎛+⨯⎪⎭⎫ ⎝⎛F N P N P则水平距离中心x 处的弯矩为:Fx p x p x xx M ⨯-⨯+⨯⨯⎪⎭⎫ ⎝⎛-=720270007212021xm 10720x 114.5-54x 49000x 546-14000x 54612016-32⋅⨯⎪⎪⎭⎫ ⎝⎛⨯+⨯⨯=N N可得mm 29x =时弯矩值最大,此时m 426.01max ⋅⨯=N NM 此处的最大正应力为: ZW M maxmax =σ62λ∇=Z W其中 : λ为竹片厚度d 2970d+⨯-=∇D 又由: a 60maxMP ≤σ 得 : ≥λ0.34mm所以选用0.35mm 厚的竹片,而考虑到在弯矩最大处的安全性,所以在此处外侧额外加一环箍(图中为受力f 处)用以保护结构。
拌合站水泥仓计算书-CAL-FENGHAI.-(YICAI)-Company One1拌合站水泥仓稳定计算一、设计资料1、根据厂家提供数据可知:(1)每个水泥仓 自重150t+=;(2)水泥仓单个轴向力值为2200kN;(3)结构适用于风荷载为1kPa 。
二、计算公式1 .地基承载力P/A=σ≤0σP — 水泥仓单腿重量 kNA — 水泥仓单腿有效面积mm2σ— 基础受到的压应力 MPa0σ— 混凝土容许的应力 MPa采用C25混凝土浇筑地基基础,25C σ=25MPa 。
2.风荷载强度W=0321W K K KW 0— 基本风压值 Pa 206.11v W =按11级飓风平均风速 s m v /30=来计算K 1、K 2、K 3—风荷载系数,查表分别取、、3.基础抗倾覆计算K c =M 1/ M 2=P1×1/2×基础宽/ P2×受风面×20≥, 即满足要求 M 1— 抵抗弯距 kN •mM 2— 抵抗弯距 kN •mP1—水泥仓与基础自重 kNP2—风荷载 kN三、结构验算1、基础承载力计算根据上面的计算公式,已知静荷载P=1582kN ,计算面积A=×106mm 2。
当满载时为最不利荷载:MPa A P 129.01025.1215826=⨯==地基σ 2、风荷载强度计算风荷载强度计算:0321W K K K W ⋅⋅⋅=其中 基本风压: Pa v W 5.5626.1306.1220=== 风载体形系数:K 1=风压高度变化系数:K 2=地形、地理变化系数,按一般平坦空旷地区取K 3=W=×××=<1MPa3、储蓄罐支腿处混凝土承压性根据力学计算公式,已知的水泥仓,单腿受力P=,承压面积为335mm ×335mm 。
P/A=(335mm ×335mm )= MPa ≤25MPa满足受压要求。
料仓隔墙设计计算手册原版文件编码(GHTU-UITID-GGBKT-POIU-WUUI-8968)料仓隔墙设计计算书一、工程概况根据本标段混凝土使用地为乐平互通式立体交叉、龙眼园高架桥、三花路高架桥、太院高架桥、芦泡涌大桥、卫东高架桥及涵洞和附属工程,为满足混凝土质量和施工需求,结和现场实际施工情况现于西二环MK62+50位置的线路右侧建立混凝土拌和站,共占地约11000m2。
料仓8个约2800m2,拟设置两座拌和楼,HZS120型,每座拌和楼每小时理论产量可达120m3。
按拌合站配料要求,不同粒径、不同品种分仓存放,不得混堆或交叉堆放,分料仓应采用50cm砼砌筑,2.5m高,采用水泥砂浆抹面,料仓内硬化C20砼浇筑20cm。
隔墙底部采用与之同宽的砼条形基础。
二、设计参数挡墙高度H=2.5m,挡墙厚度B=50cm,墙身采用C25砼浇筑成。
基础采用C25浇筑成的条形基础。
C25混凝土抗压强度设计值fc=11.9N/mm2,混凝土抗拉强度设计值ft=1.27(N/mm2),混凝土弹性模量Ec=28000(N/mm2),砼强度系数βc=1.00。
初步设计:条形基础采用500mm×400mm的C25砼浇筑,即b=500mm。
取挡墙钢筋混凝土:25~26KN/M3;每米挡墙荷载N=2.5×0.5×25=31.25KN/m。
初步考虑条形基础底部承载力为200KPa。
即:b=500mm,h=400mm,考虑保护层ca=35mm,得h0=h-ca=365mm。
三、条形基础计算1、配筋计算(1)、主筋验算取受弯钢筋为4@φ16,得As=804mm2,N=4,φ=16mm;ρ=As/(b*h0)=804/(500*365)=0.44%受拉钢筋为4@φ12,得Asy=452mm2,Ny=4,φy=12mm;ρy=Asy/(b*h0)=452/(500*365)=0.25%得ξ=ρ*fy/(α1*fc)=0.049<ξb=0.55…………………(α1=1.00)得受压区高度x=ξ*h0=0.049*365=18mm<2ca,满足要求。
钢仓仓壁计算书一 基本参数(一) 水力半径6 1.5 m 44n d ρ===,石灰粉容重312 kN/m γ=,35ϕ=︒, 摩擦系数4.0=μ(对钢板),11 1.83 1.56n n h d ==>,为深仓, 侧压力系数2235tan (45)tan (45)0.27122k ϕ︒=︒-=︒-=。
(二) 仓及石灰粉重量计算仓内体积:2222231112211ππ(R )π311π(330.30.3) 4.8361.22m 33V R h R h =++=⨯⨯+⨯+⨯+⨯=仓壁体积:()()=-+-=22221122212π31πh R R h R R V()()()22222231π 3.008311π 3.008 3.0080.3080.308330.30.3 4.8 2.06m 3⎡⎤⨯-⨯+⨯+⨯+-+⨯+⨯=⎣⎦石灰粉重量:112361.224334.64kN G V γ==⨯=粉煤灰仓重量:278.5 2.06161.71kN G V γ==⨯=仓故总重量为G =4334.64+161.71=4496.35 kN二 仓壁部分受力计算(一) 受力计算1 计算深度S 处,石灰粉作用于仓壁单位面积上的水平压力标准值按下式计算:/0.40.27111/1.512 1.5(1e )(1e )0.4kS hk P μργρμ--⨯⨯⨯=-=⨯-212 1.50.547125.695 kN/m 0.4⨯=⨯= 2 计算深度S 处,石灰粉作用于仓壁单位水平面上的竖向压力标准值按下式计算: /0.40.27111/1.5212 1.5(1e )(1e )94.82kN/m 0.40.271kS vk P k μργρμ--⨯⨯⨯=-=⨯-=⨯ 3 计算深度S 处,石灰粉作用于仓壁单位周长上的总摩擦力标准值按下式计算: () 1.5(121194.82)55.77kN/m fk vk q S P ργ=-=⨯⨯-=(二) 结构设计1 深仓仓壁按承载能力极限状态设计时,考虑下列组合:(1) 作用于仓壁单位面积上的水平压力的基本组合(设计值):21.3 1.3 2.026.69569.41k N /m h h h k P C P ==⨯⨯= (2) 作用于仓壁单位周长的竖向压力的基本组合(设计值):① 无风荷载参与组合时:∑++=Q ik i fk f gk v q q C q q ψ4.13.12.1其中, 21π394.826.53k N /m 2π3gk q ⨯⨯+==⨯⨯ 55.77 k N /m fk q = 24.0π3 6 kN/m 2π3Qik q ⨯⨯==⨯⨯ 故 1.2 6.53 1.3 1.155.77 1.4 1.0695.99kN/m v q =⨯+⨯⨯+⨯⨯=② 有风荷载参与组合时:()1.2 1.3 1.40.6v gk f gk Wk Qik q q c q q q =++⨯+∑故 1.2 6.53 1.3 1.155.77 1.40.6(63)95.15kN/m v q =⨯+⨯⨯+⨯⨯+=2 焊接钢板筒仓不设加劲肋时,仓壁可按一下规定进行强度计算:(1) 在水平压力作用下,按轴心受拉构件进行计算:3222t 69.41626.0310 kN/m 26.03N/mm 215 N/mm 220.008h n P d f t σ⨯===⨯=<=⨯ (2) 在竖向压力作用下,按轴心受压构件进行计算: 3222c 95.9911.99910 kN/m 12.0N/mm 215 N/mm 0.008v q f t σ===⨯=<= (3) 在水平压力及竖向压力共同作用下,按下式进行折算应力计算: ()()222222zs t c t c 26.031226.031233.67N/mm 215 N/mm f σσσσσ=+-=+--⨯-=<=3 钢板筒仓在竖向轴压力作用下,仓壁应按下述方法进行稳定计算:(1) 无风荷载参与组合时, 2c 12/N mm σ=无风REt k p cr c =≤σσ 其中, 3388p 1100110080.0972π2π3000t k R ⨯⎛⎫⎛⎫=== ⎪ ⎪⎝⎭⎝⎭,故 32cr p 2061080.09753.29 N/mm 3000Et k R σ⨯⨯==⨯=(2) 有风荷载参与组合时,风荷载计算应力如下:a. 211s 1010 m 1.17 1.020.6 kN/m z gz h w μμβ=====,,,,222s 1020 m 1.63 1.0 2.00.6 kN/m z gz h w μμβ=====,,,, 故21110 2.0 1.0 1.380.6 1.656 kN/m k gz s z w w βμμ=⨯⨯⨯==222202.0 1.0 1.630.6 1.956k N /m k g z s z w w βμμ=⨯⨯⨯== 211 1.656 1.956 1.806kN/m 22k k k w w w ++=== 作用于仓中心的水平风力 1.806612130.03kN k F w D H =⋅⋅=⨯⨯= 风作用于仓底的弯矩12130.03780.2 kN m 22H M F =⋅=⨯=⋅ b. 仓的抗弯截面模量计算如下: 基本参数:外径D =6.016 m ,厚度t =0.008 mm ,内径d =6.0 m ,6.0000.9976.016d D α===抗弯截面模量为 343430.1(1)0.1 6.016(10.997)0.26 m W D α=-=⨯⨯-=c. 风荷载产生的应力为22780.23000.76 kN /m 3.00 N /mm 0.26M W σ===风=d. 22c cr c 12315N/mm 53.29 N/mm σσσσ=+=+=<=风无风故风荷载作用下稳定性满足要求。
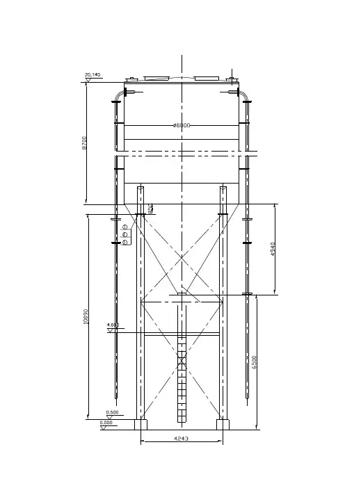
料仓悬臂挡料墙设计1.概况本工程骨料调节料仓仓壁采用悬臂式挡土墙结构,4级建筑物,墙高6.5m,埋深0.5m。
其位于松绑水电站右岸,承担NO1、NO2两座拌合楼临时储料。
料仓底部设置地弄作为供料通道。
其型号尺寸如下图:挡料墙尺寸图2.设计依据2.1 主要设计规范及参考资料1)《水工挡土墙设计规范》(SL379-2007);2)《水工混凝土结构设计规范》(SL191-2008);3)《水工建筑物荷载设计规范》(DL5077-1997);2.2 地质条件2.3设计参数1)悬臂式挡土墙为钢筋混凝土结构,结构和强度计算采用以下数据,土压力荷载分项取1.2,设置排水孔,根据本工程特点,可不考虑水压力作用。
2)地基容许承载力[R]=500kN/m2;基底摩擦系数f=0.4;墙后填料12;为砂砾石料,内摩擦角33.5°,重度16.5kN/m3;抗滑稳定系数Kt15。
抗倾稳定系数K3)混凝土采用C20,各项强度指标如下:110MPa;fc96MPa,ft钢筋采用HRB335级,各项强度指标如下:fy300MPa。
3.挡料墙稳定性计算3.1土压力计算按假想墙背计算得到:第1破裂角: 31.6°,判断是否存在第二破裂面,计算后发现第二破裂面存在:第2破裂角=17.7 °。
Ea=290.63kN/m,Ex=180.42kN/m, Ey=227.84kN/m,作用点高度Zy=2.65m。
墙身截面积=11.48m2,重量=189.47kN/m,重心距前趾水平距离=2.26m整个墙踵上的土重=111.75(kN) 重心前趾水平距离=1.36m3.2稳定性验算1) 滑动稳定性验算基底摩擦系数= 0.400滑移力= 180.42(kN) 抗滑力=558.45(kN)滑移验算满足: Kc =1.238>1.200 。
2) 倾覆稳定性验算相对于墙趾点,墙身重力的力臂Zw=1.402 (m)相对于墙趾点,墙踵上土重的力臂Zw1=2.39 (m)相对于墙趾点,Ey的力臂 Zx=3.01 (m)相对于墙趾点,Ex的力臂 Zy=2.650(m)验算挡土墙绕墙趾的倾覆稳定性倾覆力矩= 478.79(kN.m) 抗倾覆力矩= 1350.82(kN.m)倾覆验算满足: K0 = 2.82> 1.500 。
图1 条形根底配筋示意图
图1 条形根底配筋示意图〔箍筋按照构造进行配筋,计算如下〕
〔2〕、箍筋计算
如上图1所示进行配筋,初步考虑为2道箍筋,采用φ10@150mm进行布置。
即S=150mm,N=2,φ=10mm;
得:实际配筋率ρsv=Nsv1/Sb=0.209%>ρsvmin=4*ft/fyv=0.145%,满足最小配筋率要求。
2、软弱地基承载力验算
a、设计条件
考虑根底长度L=13000mm,根底底面宽度B=500mm,根底高度为h=400mm,荷载Fk=N=2.5×0.5×25=31.25KN/m,地基承载力特征值fak=200Kpa,地基承载力深度修正系数ηd=1.2,根底砼容重γc=25kN/m,软弱下卧层埋置深度dz初步考虑为2.0m,根底埋置深度为0.5m。
第一层土〔持力层上面〕土层厚度d1=500mm,第一层土的重度γ1=18kN/m^3,持力层土的重度γ2=18kN/m^3,下层土〔软弱下卧层〕压缩模量Es2=4Mpa,地下水埋深dw=1.5m。
b、计算
根据以上条件,可得下卧层顶面以上平均重度γm=15.5KN/m;
软弱下卧层顶面处经深度修正后地基承载力特征值faz=200+1.2*15.5〔2-0.5〕=227.9kPa
根底自重Gk = Gk1 + Gk2= γc * Vc =γc * L * B * h+γ1 * L * B * ( d - h)=76.7KN。
Es1/Es2=1.75
根底埋深比拟浅,取地基扩散角取0。
pk = (Fk + Gk) / A=16.61KPa;
pc =γ1 * d1 + γ2 * (d - d1)=9.00KPa;
pz=L*B*(pk-pc)/[(B+2*z*tanθ)*(L+2*z*tanθ)]=7.61KPa;
pcz =γm * dz=31kpa;
pz + pcz =38.61<faz=227.90 kpa,满足要求。
3、承载力计算
根据上述计算:
条形根底抗弯承载力Mu=α1*fc*b*h0^2*ξ*(1-0.5*ξ)+fy*Asy*(h0-ca))/1000000=79.6KN*m
Mu> N=2.5×0.5×25=31.25KN/m,满足隔墙自身受力要求。
需要的承载力为Ny= Mu*b=39.8Kpa<地基承载力N=200Kpa,满足地基承载力要求。
四、挡墙计算
相关参数:1.4~1.7吨/立方,碎石堆积1.4~1.5吨/立方1.7吨/立方,堆积高度为2.5m,支挡高度为1.25m,长度为1.5m,宽度为30cm,每隔3m布置一个。
挡墙做法如下列图所示。
图2 挡墙构造示意图
根据挡墙的构造图,可得在装满材料时的受力示意图如下:
图3挡墙受力示意图
主动土压力系数:
根据力矩平衡方程得:
每延米主动土压力大小:
Ea1=26.03KN〔砂压力〕
按照每3m布置一道支档墙,换算成集中荷载进行转换计算,带入到力矩平衡方程中就可以得到
Ea1*3*2.5*2/3=F*1.25/2
可得F=208.24KN
按照挡墙不滑移进行计算,可得支挡墙的力矩平衡,支挡墙底部长度L=1.5m考虑,由平衡公式可得:
qL2/2=F*1.25/2
可得支挡墙底部均布荷载为q=185.1KN/m
地基承载力NZ=qA=83.3MPa<N=200Kpa,满足承载力抗滑移要求。