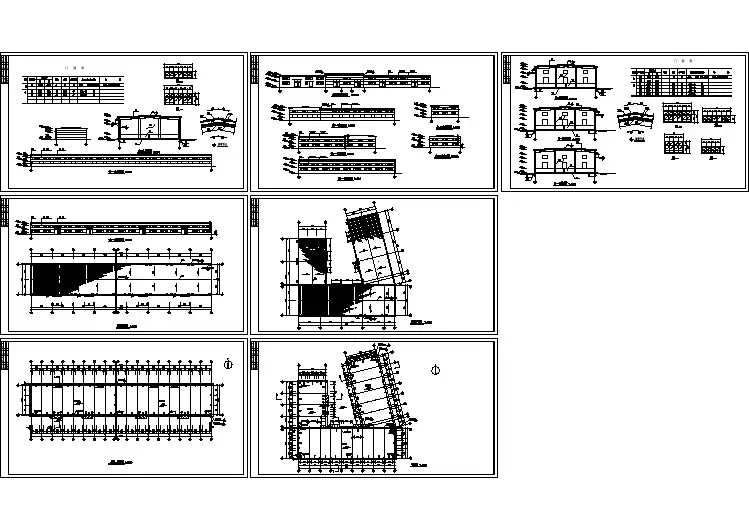
G20本图构 件 名 称强度等级最大氯离子含量%%P0.000标高以下构件最大水胶比(%%%)最大碱含量(kg/m2)骨料最大粒径(mm)%%P0.000标高以上柱%%P0.000标高以上梁、板注:混凝土强度等级应按立方体抗压强度标准值确定。环境类别板、墙、壳梁、柱、杆一a二b三1520254020253550注:(1)混凝土强度等级不大于C25时,表中保护层厚度数值应增加5mm;(2)基础中钢筋的保护层厚度应从垫层顶面算起,且不小于40mm。ab3040门窗过梁详图表LoA备 注钢筋号钢筋h3300<Lo≤42003002400<Lo≤33003001500<Lo≤2400Lo≤15002502501222326@2002143001221821236@2002402313216@2006@20028212210180120注:(1)表中做法仅用于门窗过梁上无其它荷载作用的门窗过梁,当门窗过梁上有其它荷载时,其过梁另见详图。 (2)过梁位置及标高见建筑施工图。 (3)本图表中钢筋为过梁预制时用,如果实际使用中支座长度"A"不能达到时改成现浇,且表中 钢筋改成同 钢筋。21构件类型板梁、拱、壳悬臂构件构件跨度(m)≤2>2,≤8>8≤8>8-达到设计的混凝土立方体抗压强度标准值的百分率(%%%)≥50≥75≥100≥75≥100≥100CL-1CL-1CL-1CL-1CL-1CL-1CL-2CL-2CL-2CL-2CL-2CL-2CL-2CL-2CL-2CL-2CL-2CL-2CL-2CL-2CL-2CL-2CL-2CL-2CL-2CL-2CL-1CL-1CL-1CL-1CL-1结 构 设 计 总 说 明(普通钢筋混凝土框架及基础部分)1 工程概况2.6 主要设计规范与规程《建筑结构可靠度设计统一标准》(GB 50068-2001)《建筑工程抗震设防分类标准》