钢筋混凝土箱涵
- 格式:docx
- 大小:16.18 KB
- 文档页数:2
钢筋混凝土箱涵在现代的基础设施建设中,钢筋混凝土箱涵是一种常见且重要的结构形式。
它广泛应用于道路、铁路、水利等工程领域,发挥着不可或缺的作用。
钢筋混凝土箱涵,简单来说,就是一个由钢筋和混凝土制成的空心箱体结构。
它通常是长方形或正方形的截面,内部为中空,用于通水、排水、过人或者过车等。
其结构坚固,能够承受较大的荷载和外部压力。
从设计的角度来看,钢筋混凝土箱涵的设计需要综合考虑多个因素。
首先是流量的大小,这决定了箱涵的尺寸和横截面面积,以确保水或其他流体能够顺畅通过,不会造成堵塞和积水。
其次是荷载情况,包括车辆荷载、行人荷载以及可能的堆积荷载等,这些都直接影响到箱涵的结构强度和稳定性。
此外,地质条件也是一个重要的考量因素。
不同的地质条件会对箱涵的基础设计产生影响,比如在软弱地基上,就需要采取特殊的基础处理措施,以防止不均匀沉降导致箱涵结构的破坏。
在施工过程中,钢筋混凝土箱涵的制作有着严格的要求和规范。
首先是钢筋的布置和绑扎。
钢筋就像是箱涵的“骨架”,要按照设计要求进行精确的布置和牢固的绑扎,以保证在混凝土浇筑后能够有效地承受拉力和压力。
混凝土的浇筑也是关键环节之一。
混凝土的配合比要经过严格的试验和计算,以确保其强度和耐久性符合设计要求。
浇筑过程中要注意振捣密实,避免出现蜂窝、麻面等质量缺陷。
箱涵的模板安装也至关重要。
模板不仅要保证箱涵的形状和尺寸准确,还要具有足够的强度和刚度,以承受混凝土浇筑时的压力而不变形。
而且,模板的表面要光滑平整,这样浇筑出来的混凝土表面才会光滑美观。
施工中的每一个环节都需要严格的质量控制。
从原材料的检验,到施工过程中的旁站监督,再到成品的验收,每一步都不能马虎。
只有这样,才能确保钢筋混凝土箱涵的质量和安全性。
钢筋混凝土箱涵在使用过程中也需要定期的维护和检查。
比如,要检查混凝土表面是否有裂缝、剥落等现象,钢筋是否有锈蚀,以及箱涵内部是否有淤积和堵塞等。
对于发现的问题,要及时进行修复和处理,以延长箱涵的使用寿命。
钢筋混凝土箱涵施工方案1. 引言钢筋混凝土箱涵是一种常用的道路桥梁结构,用于解决水流通过公路、铁路等交通路线时的排水问题。
本文将介绍钢筋混凝土箱涵的施工方案,包括施工准备、施工步骤、安全注意事项等。
2. 施工准备在开始施工前,需要做好一系列的准备工作,如下所示:2.1 材料准备钢筋混凝土箱涵的施工需要准备的材料主要包括:钢筋、水泥、砂石、水、模板等。
在准备材料时,需要检查材料的质量和数量是否符合设计要求。
2.2 施工设备准备施工过程中所需的设备包括:混凝土搅拌机、模板支撑系统、起重设备等。
在施工前,应检查这些设备的工作状态和安全性,确保设备能正常运行。
2.3 施工方案准备根据施工图纸和设计要求,制定详细的施工方案,包括施工步骤、工期计划、施工人员配备等。
3. 施工步骤本节将介绍钢筋混凝土箱涵的施工步骤,包括基坑开挖、箱涵安装、模板支撑、钢筋绑扎、混凝土浇筑等。
3.1 基坑开挖首先,根据设计要求,在施工现场进行基坑开挖。
开挖的深度和尺寸应与设计要求一致,开挖后应进行清理工作,确保基坑内部干净整洁。
3.2 箱涵安装在基坑开挖完毕后,可以开始进行箱涵的安装。
首先,根据设计要求,将箱涵吊装至基坑内,并进行调整和对齐。
在安装过程中,需要保证箱涵的水平度和垂直度。
3.3 模板支撑箱涵安装完成后,需要进行模板支撑工作。
根据设计要求,搭建模板支撑系统,以保证混凝土浇筑时的准确性和稳定性。
3.4 钢筋绑扎在进行混凝土浇筑之前,需要进行钢筋绑扎工作。
根据设计要求,将钢筋正确地绑扎在箱涵内部,并确保钢筋的位置和数量符合设计要求。
3.5 混凝土浇筑在完成钢筋绑扎后,可以进行混凝土浇筑。
根据设计要求,使用混凝土搅拌机将混凝土运送至施工现场,并进行浇筑。
浇筑时应注意混凝土的均匀性和密实度。
4. 安全注意事项在进行钢筋混凝土箱涵施工时,需要注意以下安全事项:4.1 人员安全施工现场应设置警示标志,严禁无关人员进入施工区域。
施工人员应统一着装,佩戴好安全帽、安全鞋等个人防护装备,严禁穿拖鞋等不安全的服装。
钢筋混凝土箱涵管涵工程施工工艺施工顺序:土方开挖→C35钢筋混凝土整板函基→C35钢筋混凝土台身、台帽→C35钢筋混凝土板→身后采用石屑回填→台板顶用小型碎石(粒径不大于10cm)回填至路基底→涵洞两侧毛石挡土墙和毛石砌筑护坡。
钢筋在现场统一制作,现场绑扎;混凝土由搅拌站搅拌,用混凝土罐车运送到施工现场。
(一)土方工程施工工艺1、采用挖掘机开挖两边坡按1:0。
5取值,基础开挖底宽为涵洞混凝土基础宽度两边各加0。
5m施工作业空间,既底宽为8.44m。
上口开挖线宽可根据现场地形进行计算。
2、基础开挖到离基底约有5~10cm时,则采用人工修整。
确保不扰动基底地质层。
人工修整完后,对基底轴线、高程、平面尺寸进行自检,然后报驻地办验收,并对基底进行承载力试验,根据涵洞施工图要求该涵洞的地基基本承载力要达到{σ}≥200Kpa,若基底承载力小于设计基底承载力,则上报监理给予处理.3、具体土方施工工艺见本章→第二节→土方开挖和回填施工方案沟槽部分。
(二)基础施工方法1、测量:基底验槽合格后,测量人员用全站仪放样出涵洞中心轴线、边线,并安装基础模板。
2、立模:基础模板采用木胶板,一次成形,每节立模长度为3m.基础模板宽7.44m,厚1。
0m。
为了防止模板受到混凝土内应力的影响而变形,保证涵洞基础的线形与美观,在模板纵向每50cm加竖向肋骨一根,横向因为高度只有一米,所以就在上中下各加一条横向肋骨。
两侧模板采用对拉螺栓对拉,并用顶托支撑.模板内涂刷脱模剂并安装严密,严禁使用废机油。
3、沉降缝:涵洞每6m设置沉降缝1道,按设计位置设置,做到两端竖直、平整,上下贯通,沉降缝的填塞符合设计及规范要求。
4、混凝土浇筑:基础采用C30混凝土现浇而成。
当混凝土到现场时,检查其坍落度、均匀性等指标,合格后方可使用。
砼振捣采用插入式振捣器,砼振捣应充分密实为止。
密实的标志是混凝土停止下沉,不再冒出气泡,表面呈现平坦、泛浆现象为止。
钢筋混凝土箱涵施工工艺及方法一、箱涵施工工艺流程测量放样→沟槽开挖→C15混凝土垫层→钢筋制作安装→模板支设→混凝土浇筑→回填。
二、施工方法1、测量放样(1)施工前做好各班组的技术交底工作,组织各工种负责人熟悉施工图纸,了解施工现场的实际情况,做好职工的安全、质量意识教育。
(2)组织挖机等大型机具进场,并进行检修和试用,确保无故障后,方投入施工中。
(3)组织钢筋、水泥、管子、砂石等材料的进场工作,并做好原材料的抽检试验和混凝土的级配试验。
(4)根据设计图纸的座标网和控制点,依照工程测量的测量方法,正确做好施工前管道的轴线放样和测量工作,并做好相应的保护桩。
(5)做好施工区域内的施工便道工作。
2、沟槽开挖基坑开挖时,挖掘机采用侧向开挖或退挖的开挖方式,即挖掘机向前进方向挖土,自卸车等运泥工具停靠在机身侧面,与挖掘机开挖路线平行。
最后一层挖到基坑底0.2m以上,剩余土方采用人工开挖,控制超挖,防止对基底扰动;各段各层开挖时按1:1放坡开挖。
3、垫层浇筑在槽底开挖清理到位后,应用经纬仪定出箱涵轴线、水平仪测设出高程后立模,模板支撑一定要牢固。
模板内的杂物,积水清理干净,模板的缝隙应填塞严密,并涂刷脱模剂。
自检合格后报监理工程师,监理确认后方可进行垫层浇筑。
4、钢筋的加工及绑扎(1)下料。
根据设计要求由项目部技术人员出具钢筋下料单交由钢筋班组,根据下料单标明的型号、尺寸对钢筋进行下料,下料采用钢筋切断机完成。
(2)加工。
钢筋下料完成后,根据设计图纸标明的钢筋弯曲形状的要求对下料钢筋进行弯曲加工,采用弯曲机械为钢筋弯曲机。
(3)焊接。
焊接采用单(双)面电弧焊接,焊接长度应不小于10(5)倍的钢筋直径。
(4)绑扎。
根据作用部位的需求,将已加工好的钢筋运至施工现场,按施工图纸的要求将各种钢筋摆放到位,每一钢筋交叉处用扎丝固定,绑扎要牢固。
5、模板安装模板全部采用钢模板。
根据建筑物的结构尺寸进行工地现场制作下料,创平、拼接、加固等过程,直至达到设计要求。
目录1编制依据及编制原则 (1)1.1编制依据 (1)1.2编制原则 (1)2工程概况 (1)2.1工程特点 (1)2.2气候特征 (1)2.3工程数量 (2)3施工配置 (3)3.1人员配置 (3)3.2材料配置 (4)3.3机械配置 (5)4工期安排 (6)5箱涵施工 (6)5.1 施工准备 (7)5.2 施工工艺 (7)6质量标准 (13)6.1涵洞总体实测项目 (13)6.2钢筋施工允许误差 (13)6.3模板施工允许误差 (14)6.4箱涵浇筑实测项目 (14)6.5一字墙、八字墙实测项目 (15)7质量保证措施 (16)7.1人员保证措施 (16)7.2机械保证措施 (16)7.3材料保证措施 (16)7.4制度保证措施 (17)7.5技术保证措施 (18)7.6质量管理机构框图 (19)7.7质量保证体系框图 (20)8水、环保措施 (21)8.1施工水、环保管理体系框图 (21)8.2环境保护措施 (23)8.3水质保护措施 (23)8.4噪声控制 (23)9进度保证措施 (25)10雨季施工措施 (26)11安全保证措施 (27)11.1安全管理组织机构 (27)11.2安全保证体系 (28)11.3安全保证措施 (28)1编制依据及编制原则1.1编制依据1.招标文件、两阶段施工图设计及施工组织设计;2.公路工程质量检验评定标准、公路桥涵施工技术规范、公路设计规范等公路桥涵相关的施工和验收规范;3.施工调查及现场踏勘;4.公司拥有的科技成果、施工工艺、施工方法成果、机械机具设备、管理水平、技术装备以及多年积累的类似工程施工经验。
5.相关法律、法规对水土保持、环境保护、安全管理的规定。
1.2编制原则1、根据工程实际情况,制定切实可行的施工方案,确保施工目标的圆满实现。
2、合理布置施工现场,尽量减少工程消耗,降低生产成本。
3、积极采用、推广新工艺、新技术和新材料,增加产品的科技含量。
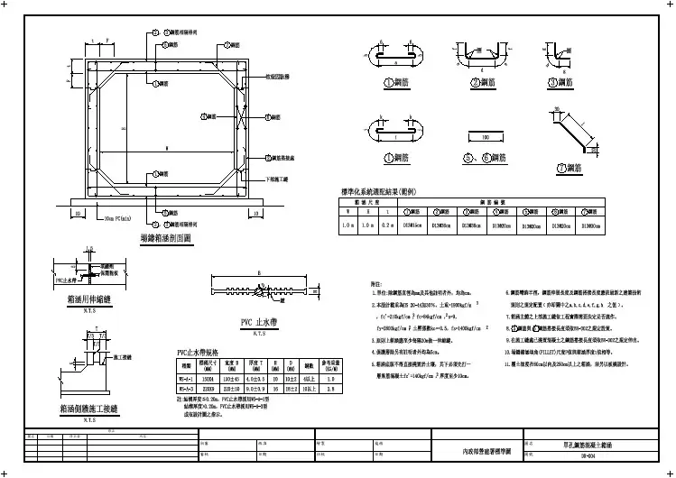
设计说明四、钢筋混凝土箱涵(一) 主要材料:1、混凝土:涵身、帽石、牛腿及搭板为C30砼;洞口八字墙身为C25砼;基础均为C15砼。
2、钢筋:采用R235、HRB335钢筋,其性能应分别符合GB13013-91和GB1499-98的规定。
3、其他材料:洞口铺砌及截水墙为M7.5浆砌片石;基础垫层采用碎石垫层,台背均回填石粉。
(二) 设计要点1、箱涵按整体闭合框架解算内力。
顶、底板按受弯构件计算(不计轴向力影响),侧墙按偏心受压构件计算。
涵身纵向配筋率按不少于0.3%设置。
2、涵身荷载涵身所受恒载包括涵身自重、涵身侧面及其顶面填土的作用,而不计箱涵底板上面的流水(过水箱涵)。
涵身承受活载的考虑,当涵顶填土高度小于0.5米时按45角扩散车轮荷载,并计入冲击力;当涵顶填土高度大于0.5米时按30角扩散车轮荷载,且不计入冲击。
活载通过填土引起土侧压力,按涵身全长范围内的破坏棱体上的荷载换算成等代均布土层厚度计算。
3、温度应力按升温10℃及降温10℃分别考虑,并考虑了底板、侧墙与顶板分期浇筑时混凝土的收缩影响,此项按降温10℃考虑。
4、斜涵涵身的计算,视作正交箱涵与简化计算。
计算跨径与箱涵长度方向垂直(主筋的布设也按此方向)。
斜涵两端各取一个梯形的斜布钢筋区,在此区段内的钢筋间距呈锐角一边的主筋布置原则与涵身中部相同,而呈钝角的一边钢筋间距则缩小一半。
5、涵顶填土高度小于0.5m时视作明涵。
明涵需要设置搭板,在箱涵涵身设置牛腿。
搭板荷载对明涵的作用,按搭板长的0.7倍跨径的简支梁,一端支承在箱涵的牛腿上,计算其应有的恒、活载对箱涵的效应。
(三) 施工要点:1、施工前,首先对图纸各部分尺寸和数量进行仔细、认真的校核,确信无误后,才能进行模板加工、钢材下料以及定型产品的定购,以避免造成不必要的损失。
现场实际放样后,箱涵位置、夹角、高程、方向若与实际情况有出入(如:位置、夹角偏离路中、高程过高或过低),应及时与监理工程师及设计代表联系,以便进行变更设计。
钢筋混凝土箱涵施工工艺流程钢筋混凝土箱涵的施工工艺流程包括以下步骤:1. 施工前准备:根据设计图纸,结合现场实际地形、地质情况,对箱涵的位置、方向、基地尺寸、高程等进行复核、定位。
同时,清除障碍物、平整场地,根据实际情况做好地面防排水工作。
施工现场需配备足够的动力设备,试验室应做好各种砼、砂浆配合比及原材料试验。
2. 基础施工:基坑开挖:采用人工配合机械开挖,先用机械开挖至离基底标高、基础位置边线位置10-20cm处,然后改用人工开挖至基底位置。
开挖过程中,通过控制桩确保基坑方位、尺寸、符合设计要求,并通过测定标高控制好开挖深度。
基底应避免超挖,已经超挖或松动部分,需将松动部分清除。
基底处理:基坑挖到设计标高后,如遇基底地基承载力不符合设计要求时,需经设计、监理单位同意后,按要求采取加固处理措施。
当地基承载力满足设计要求时,将挖至标高的基底用人工修凿整平,报请现场监理工程师验收合格后,开始放样施工基础。
3. 钢筋绑扎与模板支设:在浇筑基础前,需要先进行钢筋的加工和绑扎工作,然后支设模板。
对于较大的箱涵,一般先浇筑底板和侧壁的下半部分,再绑扎侧壁上部和顶板钢筋,支好内外模后,再浇筑侧壁上半部分和顶板。
4. 混凝土浇筑:完成钢筋绑扎和模板支设后,开始进行混凝土的浇筑工作。
一般采用分块或分段的方式进行浇筑。
待混凝土达到设计要求的强度后,进行拆模。
5. 盖板施工:在箱涵的顶部,需要安装盖板并浇筑混凝土。
盖板施工完成后,进行填塞封闭盖板缝、沉降缝等收尾工作。
6. 回填土:在所有施工完成后,在箱涵两侧同时回填土。
以上是钢筋混凝土箱涵的施工工艺流程,供您参考。
具体施工步骤可能会根据实际情况有所调整。
钢筋混凝土箱涵施工方案1. 引言钢筋混凝土箱涵是道路、铁路和水利工程中常用的交通隧道结构。
本文档旨在提供一份详细的施工方案,以保证钢筋混凝土箱涵的安全和有效完成。
2. 工程概述本工程涉及的钢筋混凝土箱涵是用于道路改建项目中的涵洞结构。
设计要求为承载道路交通,经济实用,具备良好的水密性和抗渗性。
钢筋混凝土箱涵的总长为100米,宽度为10米,高度为8米。
3. 施工流程3.1 前期准备•确定施工现场,清理现场杂物,并搭建临时施工设施•修整施工场地,确保平整,并设置施工标杆•确定施工人员和施工班组,进行认真的安全教育和培训3.2 地基处理•根据设计要求,进行地基处理,清除泥浆和松散土层•将地基夯实,确保地基承载力满足要求•进行灌注桩或钢筋混凝土桩的施工,增加地基的稳定性和承载力3.3 基础施工•根据设计要求,施工箱涵的基础•进行沉箱灌注,确保基础的稳定性和强度•进行基础的固结处理,避免基础沉降3.4 壁板施工•分段施工壁板,并使用一致的浇筑模板•在浇筑前,清理模板并涂抹脱模剂,以确保浇筑后易于脱模•在壁板模板安装后,进行钢筋的安装和绑扎•混凝土的浇筑应根据设计要求,确保混凝土的均匀浇筑,并通过振捣来排除空气和水分3.5 顶板施工•壁板浇筑完成后,进行顶板的施工•顶板的施工与壁板类似,包括模板安装、钢筋安装和混凝土的浇筑•在浇筑完成后,进行养护,以确保混凝土的强度和耐久性3.6 后期处理•混凝土浇筑完成后,进行顶部和侧面的抹灰,以增加箱涵的美观性和保护层•检查施工质量,确保符合设计要求•清理施工现场,并进行必要的维护和保养4. 安全措施•在施工过程中,全面执行安全生产措施,确保施工现场的安全•对施工人员进行严格的安全教育和培训,提高安全意识•使用合格的施工设备和工具,并定期检查和维护•严格遵守施工现场管理规定,确保施工现场整洁有序•加强现场巡视和监理,及时发现和解决安全隐患5. 质量控制•严格按照设计要求进行施工•对施工材料进行检查和验收,确保材料质量合格•施工过程中进行严格的质量检查,及时发现和纠正问题•定期进行工程质量检测和评估,确保工程质量符合要求•做好施工记录和档案,以备验收和追溯6. 结束语本文档旨在提供一份详细的钢筋混凝土箱涵施工方案。
钢筋混凝土箱涵施工方案一、施工流程:测量放线—基坑开挖—施工放样—基底垫层施工—放样—底板钢筋绑扎—底板模板支设—底板砼浇筑—侧墙钢筋绑扎—墙身模板支设—顶板模板支设—顶板钢筋绑扎—墙身、顶板砼浇筑—砼养护—模板拆除—防水处理、沉降缝处理。
二、前期准备1、技术准备:开工前做好施工资料的准备工作,组织技术人员认真熟悉施工图纸,组织图纸会审及三级技术交底,力求将图纸中的问题在施工前进行澄清;制定详细的分项工程施工方案,建立各阶段施工跟踪记录档案,做好技术交底和建立测量控制及测量放线工作,根据图纸提交材料、构件采购及加工计划。
2、施工用电、用水:施工用水在现场打井接至施工区域。
施工用电从指定地点变压器及发电机接通临时用电配电箱,在配电箱下一级设置移动电闸箱,供电系统采用两级漏电保护,确保安全用电。
三、施工工艺1、土方开挖(1)基坑开挖:根据土质进行基坑开挖,基坑分为四段开挖,按箱涵沉降缝分段施工, 有利基坑防护、抽水及清底的工作。
采用挖掘机开挖,基坑边坡坡度1:0.5。
(2)基础底处理采用80cm厚碎石充填压实,30cmC15褥垫层。
30cmC15混凝土垫层。
根据工程的结构形式,砼箱涵采用两次浇筑。
底板与侧墙交接处距底板以上180cm设置施工缝。
施工缝中间放遇水膨胀橡胶止水条,在沉降缝处加钢边式止水带,以防止漏水。
(3)基础开挖从箱涵左边(北面)进行施工,开挖的弃土石可堆放箱涵的西侧。
利用左边的弃土石充填形成施工平台、材料般运便道、施工便道,材料堆放在右边南岸。
(4)严格控制平面位置、断面尺寸和标高,严禁扰动基底。
土质基坑开挖放坡1:0.5,采用挖掘机开挖,人工配合,预留30cm厚人工清基,挖掘机配合人工开挖。
弃土石、材料及机具堆放设置在距坑顶边缘1.0~2.0m外的地方,且不小于基坑深度,以减少压力振动,保证基坑边坡稳定性。
基槽底部必须留置300mm×300mm的排水沟,以便排出沟底存在的地下水和雨水,保证基础开挖符合设计图纸要求及规范有关规定。
钢筋砼箱涵工程施工方法一、箱涵结构概述箱涵内部截面尺寸为4.4m×4.4m×3,垫层为100厚C10砼,底板、侧壁及顶板为550厚C30钢筋砼,抗渗等级W6,抗冻等级F150。
二、箱涵施工工艺流程箱涵基槽放样及标高控制→开挖箱涵基槽→基槽垫层控制导线及标高放样→基槽清底至设计标高→垫层砼浇筑→底板控制导线及标高放样→底板模板和钢筋安装→底板砼浇筑→箱涵控制导线及标高放样→侧墙模板和钢筋安装→侧墙砼浇筑→顶板模板和钢筋安装→顶板砼浇筑→箱涵隐蔽验收三、箱涵垫层施工1、箱涵垫层施工应在基槽验收合格后进行,施工前应做好控制导线及标高放样工作,检查基槽的尺寸、基底标高及表面平整度。
2、垫层底板为80厚,宽度4.11m,施工时可按照由一端向另一端推进整体浇筑的方法,施工时应按照两个底板伸缩缝且≤50m留置施工缝。
3、砼垫层的施工控制按照箱涵底板砼施工方法。
四、箱涵底板、侧墙及顶板施工(一)、模板工程1.材料:模板工程中所采用的模板及支承架材料选用组合钢模板及Φ48×3.0钢管;异型模板选用优质红松在木工棚制作,排架柱模板选用覆膜竹塑模板;闸墩圆头定型模板采用角钢桁架及5mm厚钢板制成。
利用Φ16钢筋作为对拉螺杆,海绵条作为嵌缝材料,钢模板采用WL型脱模剂,木模板采用石蜡作为脱模剂。
所选用的钢模板以P6015和P3015钢模板为主,适当配以相应小模板进行配模;八字腋角模板采用定型整体钢模板;钢模板均为正规厂家按照相关标准生产的合格产品。
作为支撑材料的Φ48×3.0钢管,必须顺直,无挠曲变形,满足支模的刚度要求。
利用海绵条对模板拼缝进行处理,以保证拼缝严密,无漏浆现象。
2.模板进场检验及堆放:模板进场时要对模板及各种配件进行以下几项检验:模板必须尺寸准确、板面平整光滑、无凹陷、褶皱或其它表面缺陷;肋板支承必须齐全;模板必须有足够的强度和刚度;产品具有出厂合格证;各种配件齐全,质量合格。
目录1编制依据及编制原则 (1)1.1编制依据 (1)1.2编制原则 (1)2工程概况 (1)2.1工程特点 (1)2.2气候特征 (1)2.3工程数量 (2)3施工配置 (3)3.1人员配置 (3)3.2材料配置 (4)3.3机械配置 (5)4工期安排 (6)5箱涵施工 (6)5.1 施工准备 (7)5.2 施工工艺 (7)6质量标准 (13)6.1涵洞总体实测项目 (13)6.2钢筋施工允许误差 (13)6.3模板施工允许误差 (14)6.4箱涵浇筑实测项目 (14)6.5一字墙、八字墙实测项目 (15)7质量保证措施 (16)7.1人员保证措施 (16)7.2机械保证措施 (16)7.3材料保证措施 (16)7.4制度保证措施 (17)7.5技术保证措施 (18)7.6质量管理机构框图 (19)7.7质量保证体系框图 (20)8水、环保措施 (21)8.1施工水、环保管理体系框图 (21)8.2环境保护措施 (23)8.3水质保护措施 (23)8.4噪声控制 (23)9进度保证措施 (25)10雨季施工措施 (26)11安全保证措施 (27)11.1安全管理组织机构 (27)11.2安全保证体系 (28)11.3安全保证措施 (28)1编制依据及编制原则1.1编制依据1.招标文件、两阶段施工图设计及施工组织设计;2.公路工程质量检验评定标准、公路桥涵施工技术规范、公路设计规范等公路桥涵相关的施工和验收规范;3.施工调查及现场踏勘;4.公司拥有的科技成果、施工工艺、施工方法成果、机械机具设备、管理水平、技术装备以及多年积累的类似工程施工经验。
5.相关法律、法规对水土保持、环境保护、安全管理的规定。
1.2编制原则1、根据工程实际情况,制定切实可行的施工方案,确保施工目标的圆满实现。
2、合理布置施工现场,尽量减少工程消耗,降低生产成本。
3、积极采用、推广新工艺、新技术和新材料,增加产品的科技含量。
钢筋混凝土箱涵2.1基础处理采用人工配合机械开挖,开挖前注意做好防排水设施,开挖按变形缝设置跳槽开挖,必要时做好临时支护工作。
基底须整平夯实,并做基底承载力检测,若达不到150Kpa,则需换填碎石或砂砾。
基底满足设计要求承载力后,按设计要求立模施作混凝土垫层。
2.2底板及侧墙钢筋绑扎在垫层上测量放线并画出钢筋布置大样及立模边线,然后绑扎底板及侧墙钢筋,绑扎侧墙钢筋时在外侧用钢管搭设临时支架以防钢筋笼变形。
钢筋主筋保护层为3㎝(墙身钢筋靠内模侧绑双峰式垫块),底板下层筋保护层为4㎝,钢筋锚固长度为35d,搭接长度为42d,钢筋搭接接头百分率不大于25%。
2.3内支撑及内模施工内支撑采用φ50钢管搭设,纵横向布距不大于1m,竖向布距不大于1.2 m,顶部用可调托撑顶纵梁,纵梁上布置横梁,横梁上为顶模。
内支撑的横向钢管应与内侧模在横竖带节点处用钢管卡子连接(内外模的横竖带均采用双根钢管),起到横向内支撑作用。
内模采用1.5㎡的大平面模板制作,表面要求光洁无错台,模板接缝加贴密封胶条。
2.4绑扎顶板钢筋、立外模顶板钢筋底垫双峰式垫块,严格按规范及设计要求绑扎,支撑箍筋应适当予以点焊,保证上层钢筋网片不变形。
外模采用普通钢模板组拼,外模的固定采用φ16拉杆内外对拉,并以圆木或钢管辅助支顶。
2.5混凝土浇注混凝土采用商品混凝土。
灌注入仓采用吊车配合下料漏斗进行,振捣采用插入式振捣棒。
2.6变形缝处理箱涵涵身每隔10~18米设变形缝一圈(包括基础),凡地基土质发生变化以及地基填挖交界处,均设置变形缝,缝宽2~3㎝。
变形缝橡胶止水带采用QZ5—400型橡胶止水带。
箱涵在变形缝设置处,外围砼应加厚一圈,加厚尺寸为25㎝。
在变形缝设置处内侧镶嵌3㎝厚油浸软木板,外侧填塞止水密封膏。
为了保证整个变形逢竖直且在一个截面上,立模堵头处须立分离式两块模板(夹紧止水带),并与内外模板以螺丝杆连接,油浸木板对应中空管处用胶粘贴在堵头钢模上。
钢筋砼箱涵施工组织设计钢筋混凝土箱涵施工组织设计一、项目概况钢筋混凝土箱涵是一种常见的交通设施,用于道路或者铁路等交通工程中的涵洞建设。
本文将详细介绍钢筋混凝土箱涵施工组织设计的内容,包括施工方案、施工工艺、施工流程、施工机械设备、安全措施等。
二、施工方案1. 施工目标确保钢筋混凝土箱涵施工质量,按照设计要求进行施工,保证施工进度和安全。
2. 施工条件考虑到施工地点的地质条件、气候条件、交通条件等,制定相应的施工方案。
3. 施工方法采用开挖法进行施工,包括地面开挖、箱涵安装、回填和修复等步骤。
三、施工工艺1. 地面开挖根据设计要求,进行地面开挖,确保开挖尺寸和坡度符合要求。
2. 箱涵安装将预制的钢筋混凝土箱涵运输到施工现场,进行箱涵的安装和连接。
确保箱涵的水平度和稳定性。
3. 回填和修复完成箱涵安装后,进行回填和修复工作,将土方回填到箱涵周围,并进行压实处理。
四、施工流程1. 施工准备组织施工人员,准备施工机械设备,检查施工材料的质量和数量。
2. 地面开挖按照施工方案进行地面开挖,确保开挖尺寸和坡度符合要求。
3. 箱涵安装将预制的钢筋混凝土箱涵运输到施工现场,进行箱涵的安装和连接。
4. 回填和修复完成箱涵安装后,进行回填和修复工作,将土方回填到箱涵周围,并进行压实处理。
5. 施工验收对施工质量进行验收,确保施工符合设计要求。
五、施工机械设备1. 挖掘机用于地面开挖和回填作业,确保开挖和回填的效率和质量。
2. 起重机用于箱涵的安装和连接,确保安装过程中的安全和稳定。
3. 压实机用于土方回填后的压实处理,确保回填土方的稳定性。
六、安全措施1. 安全培训对施工人员进行安全培训,提高他们的安全意识和操作技能。
2. 安全防护设置施工现场的安全警示标志,保证施工现场的安全。
3. 监测和预警安装监测设备,对施工过程进行实时监测,并设置预警机制,确保施工安全。
七、总结钢筋混凝土箱涵施工组织设计是确保施工质量和安全的重要环节。
钢筋混凝土箱涵在现代基础设施建设中,钢筋混凝土箱涵是一种常见且重要的结构形式。
它广泛应用于道路、铁路、水利等工程领域,发挥着排水、通道、跨越等重要作用。
钢筋混凝土箱涵,顾名思义,主要由钢筋和混凝土这两种材料构成。
钢筋提供了抗拉强度,增强了结构的承载能力和韧性;混凝土则提供了抗压强度,使得箱涵能够承受上部的荷载和外部的压力。
先来说说混凝土。
混凝土是由水泥、骨料(如砂、石子)、水以及外加剂等按照一定比例混合搅拌而成。
水泥是混凝土中的胶凝材料,与水发生化学反应后形成胶凝体,将骨料紧密地粘结在一起。
骨料则起到骨架的作用,增强混凝土的强度和稳定性。
在选择混凝土材料时,需要考虑其强度等级、耐久性、工作性能等因素。
高强度的混凝土能够承受更大的荷载,但成本也相对较高。
同时,为了提高混凝土的耐久性,防止其在恶劣环境下受到侵蚀和破坏,通常会添加一些外加剂,如减水剂、引气剂等。
而钢筋在箱涵中的作用同样不可小觑。
钢筋的种类繁多,常见的有热轧钢筋、冷轧钢筋等。
根据箱涵的受力情况,合理布置钢筋的位置和数量是确保结构安全的关键。
在受拉区域,需要配置较多的钢筋以承受拉力;在受压区域,钢筋的配置相对较少,但也起到一定的增强作用。
钢筋的连接方式也有多种,如焊接、机械连接和绑扎连接等,选择合适的连接方式对于保证钢筋的受力性能至关重要。
钢筋混凝土箱涵的设计需要综合考虑多个因素。
首先是荷载,包括静荷载(如箱涵自身的重量、填土的重量)和动荷载(如车辆行驶产生的荷载)。
其次是地质条件,不同的地质情况对箱涵的基础设计有很大影响。
例如,在软弱地基上,需要采取加强基础处理的措施,以防止不均匀沉降。
再者,箱涵的尺寸和形状也需要根据实际使用需求和施工条件来确定。
一般来说,箱涵的截面形状有矩形、圆形、拱形等,每种形状都有其特点和适用范围。
在施工过程中,钢筋混凝土箱涵的制作通常分为现场浇筑和预制拼装两种方式。
现场浇筑的优点是整体性好,但施工周期较长,受天气等因素影响较大。
中铁十局集团有限公司
宁绩高速公路路基第四合同段箱涵首件制
7 Φ16钢筋T 34.273 8 φ12钢筋T 4.37 原材料进场后经检验合格并得到总监办批复,方可使用。
五、施工工艺
(一)、计划工期K19+370钢筋混凝土盖板涵的施工计划工期为:2011年6月5日~2011年7月20日。
(二)、基础开挖及基坑清理在开挖基坑前,基坑两侧先挖临时排水沟,以降低基坑水位,以免让地表水或地下水浸湿基底土质。
基坑开挖须放坡(1:0.5),且每侧多挖80cm的支模空间和基底排水沟位臵。
排水沟应留在基础以外,且在低洼处挖集水井,用水泵抽走。
防止积水浸泡基底、降低基底承载力。
开挖前用白灰撒出基础开挖线,施工中严格按照基础开挖线进行开挖。
基坑开挖采用机械开挖,人工清底。
先用挖掘机挖至设计标高以上20cm处,再由人工开挖整平。
基坑开挖完毕后,及时进行基底标高、平面位臵和地基承载力的检测,地基承载力不小于设计值,检验合格后进入下道工序,如地基承载力不满足要求,做换填处理或与监理及设计单位联系确定处理方案,以满足施工和设计要求。
(三)、模板安装在基础开挖施工完成后,进行测量放线恢复轴线,开始模板安装,模板使用钢管支撑,用对拉杆拉紧,拉杆外套PVC管。
内模清理干净后涂刷脱模剂,钢模板及其配件成品必须经检验合格后方可使用。
模板安装时严格控制结构尺寸,防止模板移位和凸出,钢管安装在密实的地基基础上,防止不均匀沉降。
模板安装完毕后,对其结构尺寸、平面位臵、顶部标高、节点联系及纵、横向稳定性进行检查。
模板施工完成检测合格后进行下道工
中铁十局集团有限公司宁绩高速公路路基第四合同段箱涵首件制序。
(四)、箱涵混凝土浇筑1、拌制与运输箱涵基础采用C15混凝土浇筑,涵身采用C30混凝土浇筑。
采用我自建拌合站拌制,(拌制混凝土配料时,各种材料计量器需经过计量复核。
对骨料的含水量,随着天气变化经常检验,据以调整骨料和水的用量,保证混凝土的水灰比及和易性与混凝土设计配合比相同),运输方式采用混凝土罐车运输,途中应以2~4r/min的慢速进行搅动,运至现场后进行塌落度检测,混凝土塌落度应控制在10mm~30mm。
2、混凝土浇筑浇筑混凝土前,将模板内的杂物和积水清理干净。
并对支架、模板进行检查,并做好记录,符合设计要求后方可浇筑。
浇筑时以吊车或人工的方式送入模板内。
混凝土浇筑时应分层浇筑,每层保持在30cm左右,混凝土从高处直接倾卸时,其自由倾落度不宜超过2 m,以不发生离析为度,若倾落高度超过2m,应通过串筒、溜管或振动溜管等设施下落。
3、混凝土振捣混凝土振捣采用插入式振捣器,振捣应密实、连续,振捣棒竖直插入,快插慢拔,每次振捣时间控制在30s左右,振捣时应注意,振动
中铁十局集团有限公司宁绩高速公路路基第四合同段箱涵首件制器与侧模应保持50~100mm的距离;插入下层混凝土50~100mm;每一处振动完毕后应边振动边徐徐提出振动棒;振动过程中,避免振动棒碰撞模板、钢筋,振捣时严禁过振和漏振。
当混凝土停止下沉,不再冒出气泡,表面呈现为平坦、泛浆,可停止混凝土的振捣。
此过程应严格控制混凝土的标高。
(五)、混凝土拆模与养生1、拆模模板拆除应遵循先支后拆,后支先拆的顺序,拆时严禁抛扔。
拆模时间不宜过早,应在混凝土强度能保证其表面及棱角不至因拆模而受损坏时方可拆除。
拆除模板时,不允许用猛烈地敲打和强扭等方法进行。
模板拆除后,应维修整理,分类妥善存放。
2、养生在混凝土浇筑完毕达到初凝后开始进行洒水养生,并用养生布进行覆盖。
养生时间为7d,并且在养生期间不得受水的冲刷侵袭。
(六)、沉降缝设臵沉降缝的设臵目的:是避免结构物因荷载或地基承载力不均匀而发生不均匀沉陷,产生不规则
的多处裂缝,而使结构物破坏。
K19+370箱涵沉降缝设臵:涵台台身的沉降缝沿涵长方向每隔6m设臵一道,共12道,沉降缝的方向应与路线方向平行。
沉降缝防水措施如下:在基础顶面以下填嵌沥青木板或沥青砂,并在流水面边缘以1:3水泥砂浆填塞,深度约为15cm。
在基础顶面以上,接缝外侧以热沥青浸制麻筋填塞,深度约为5cm,内侧以水泥砂浆填塞,深度约为15cm,中间空隙填以粘土。