最新11J122 外墙内保温建筑构造汇总
- 格式:doc
- 大小:209.50 KB
- 文档页数:6
建筑构造图集墙体——外墙内保温窗上口窗下口窗侧口接缝阴角阳角1内外墙交接处木踢脚线踢脚防水轻质隔墙与外墙交接外墙外保温窗上口窗侧口2窗下口阳角阴角3条板内隔墙条板直角连接条板丁字连接双层条板连接条板与结构梁连接双层条板与结构梁双层条板与结构墙4夹心保温墙勒脚窗侧口窗上口窗下口女儿墙阴角5轻钢龙骨内隔墙与墙固定与墙固定隔声做法内隔墙交接与地面固定6与吊顶交接(有防火要求到顶)门框隔声门框与钢梁连接点支玻璃幕墙上封顶下封底7层间梁房间间隔伸缩缝转角转角侧封边8全玻璃幕墙上封顶下封底侧封边转角转角侧面9铝合金单板幕墙上封顶下封底侧封边转角变形缝10上封顶下封底侧封口转角上封顶下封底侧封口转角石材幕墙上封顶下封底侧封边转角墙体节能构造聚苯板薄抹灰阳角阴角勒脚(地下保温层)女儿墙檐沟窗上口窗下口阳台阳台变形缝屋面—坡屋面平瓦屋面檐口平瓦屋面檐沟平瓦屋面屋脊平瓦屋面天沟平瓦屋面管道平瓦屋面变形缝沥青波形瓦檐口沥青波形瓦檐沟沥青波形瓦硬山沥青波形瓦悬山沥青波形瓦泛水沥青波形瓦变形缝防水卷材泛水防水卷材变形缝防水卷材屋脊种植屋面管道种植屋面屋脊种植屋面泛水种植屋面内天沟种植屋面变形缝种植屋面斜天沟玻璃采光顶梁系点支式梁系点支式桁架点支式拱形隐框拱形隐框拱形隐框轮辐式拉杆A节点轮辐式拉杆拱形拉杆明框单坡明框单坡明框单坡明框单坡明框双坡隐框单坡隐框单坡隐框单坡隐框双坡典型构造1典型构造2平屋面不上人屋面铺块材上人屋面架空隔热屋面倒置式屋面女儿墙檐沟檐口女儿墙压顶泛水天沟变形缝屋面人孔管道穿屋面排气管刚性防水屋面三级刚性防水屋面二级刚性防水屋面有隔气层种植屋面蓄水屋面楼地面—地下建筑防水构造楼底板外墙顶板施工缝施工缝外墙变形缝顶板变形缝底板变形缝顶板后浇带底板后浇带穿墙管双墙底板楼地面—整体面层现浇水磨石彩色耐磨混凝土楼地面—整体树脂面层、地毯聚氯乙烯板橡胶板双层地毯楼地面—块材面层陶瓷锦砖钛金不锈钢覆面砖玻璃板面层楼地面—木材面层双层长条硬木地板强化复合木面层楼地面—不发火、防静电等不发火水泥砂浆不发火细石混凝土不发火沥青砂浆防静电活动面层耐油细石混凝土低温热水地板辐射采暖建筑装修—玻璃应用防火玻璃隔断门玻璃地板玻璃地板建筑装修—隔断隔断墙与墙体连接隔断墙水平连接附墙式隔断墙中间附墙式隔断墙水平连接附墙式隔断墙与墙体附墙式隔断墙与楼板内装修—铝合金吊顶明架方板吊顶明架金属方板吊顶暗架金属方板吊顶彩色涂层钢板门窗50系列平开窗70系列中悬窗、上悬窗90系列地弹簧门塑料门窗下框塑料门窗侧框保温墙体侧框上框组合窗拼接木门窗侧口(混凝土墙)侧口(用于石膏板隔墙)侧口(轻隔墙)上口门侧口窗侧口窗上口。
技术作图必备图集总结技术作图必备图集总结构造图集总结1铝合金玻璃幕墙(2005年技术作图考试石材幕墙构造2009年铝合金幕墙)2外墙内保温建筑构造3外墙外保温建筑构造a外墙外保温建筑构造一(七种类型外墙外保温复合墙体构造及各类墙体各部位常用节点详图和全国各地区保温、隔热层厚度选用表) b外墙外保温建筑构造二 2003年局部修改版4混凝土小型空心砌块墙体建筑构造a混凝土小型空心砌块墙体建筑构造b混凝土小型空心砌块墙体建筑构造(承重混凝土小型空心砌块墙体建筑构造)c框架结构填充小型空心砌块墙体建筑构造(框架结构非承重填充墙体建筑构造)5建筑幕墙a点支玻璃幕墙(立柱式、桁架式、拉杆式、拉索式、自平衡式)b全玻璃幕墙(吊挂、吊挂点支式、座地、座地点支式)c铝合金单板框架幕墙(铝合金单板)d铝塑复合板框架幕墙(铝塑复合板)e蜂窝结构框架幕墙(蜂窝结构)f石材框架幕墙(天然石材)6内隔墙建筑构造a轻钢龙骨内隔墙(适用于各种面板的轻钢龙骨体系的非承重内隔墙)b预制轻钢龙骨内隔墙(特制异形轻钢龙骨与硅酸钙板在工厂中预制成板材现场组装的非承重内隔墙)c轻质条板内隔墙(各种材料制成的轻质条板适用于非承重内隔墙)d 轻集料空心砌块内隔墙(连锁式固定砌块砌筑的非承重内隔墙)e石膏砌块内隔墙(石膏砌块空心、实心砌筑的非承重内隔墙建筑构造)f蒸压加气混凝土砌块建筑构造(屋面保温外、内墙体的填充保温地面保温等处的构造做法。
)7砖墙建筑构造烧结多孔砖与普通砖、蒸压类砖 (本图集适用于以粘土、页岩、煤矸石或粉煤灰为主要原料经焙烧而成的多孔砖分DM 型和KPI型和普通砖、蒸压灰砂砖和粉煤灰砖墙建筑构造。
) 8坡屋面建筑构造a坡屋面建筑构造一(以块瓦、油毡瓦、钢板彩瓦为瓦材屋面结构层为现浇钢筋混凝土板防水等级为Ⅱ、Ⅲ级的坡屋面建筑构造) b坡屋面建筑构造二 (包括钢檩条、木檩条的有檩体系坡屋面建筑构造)9平屋面建筑构造a平屋面建筑构造一(坡度2%~10%的平屋面或小坡度屋面建筑构造)b平屋面建筑构造二(坡度2% 5%的刚性防水屋面、种植屋面、蓄水屋面建筑构造。
振华万象温泉旅游度假项目保温节能施工方案编制:审核:审批:湖南省建筑工程集团总公司2016年7月目录一、编制依据: (1)二、工程概况 (1)三、建筑节能构造做法 (1)四、施工准备 (3)五、施工工艺流程及相关技术要求 (3)六、质量管理 (6)七、安全保证措施 (9)八、环境保护措施 (10)九、消防管理措施 (11)一、编制依据:1、振华万象温泉旅游度假项目建筑节能设计说明及变更通知单。
2、《外墙内保温建筑构造》11J1223、《蒸压加气混凝土砌块建筑构造》03J1044、《屋面工程施工质量验收规范》GB50207-2012。
5、《建筑装饰装修工程质量验收规范》GB50210-20136、《建筑工程施工质量验收统一标准》GB50300-2013二、工程概况本工程场地原始地貌属喀斯特中低山斜坡貌,原为振华集团厂房,东侧为振华集团新天动力有限公司,南侧为132国道,西侧为云锦路、新天大道(北段)。
本项目总占地面积36113㎡,总建筑面积46091㎡,拟建物包括1#酒店、2#酒店综合楼及室内温泉馆。
1#酒店包括塔楼(20层及17楼),裙楼(3层),整体地下室(2层);2#酒店综合楼包括塔楼(9层),裙楼(3层),游泳馆(1层),轴线1—3右侧有地下室(2层),轴线1—3左侧无地下室,两栋楼通过地下室连成整体,均为框架-抗震墙结构;室内温泉馆为钢结构球连接网架结构。
为科学的指导本工程外墙内保温分项工程施工并保证按时完成,特编制该分项工程施工方案。
三、建筑节能构造做法依据建筑节能设计要求,本工程采用外墙内保温,倒置式屋面等节能。
外墙内保温采用200加气块混凝土砌块,外墙及热桥部分保温层采用20厚水泥复合保温砂浆。
四周内墙面及各楼层靠外墙内楼板延伸300mm保温部位、屋面保温,结合工程实际情况,相关部位节能构造做法如下:1.建筑楼层外墙四周内部保温部位的墙面保温做法a基层清理,刷界处理面剂一道b保温层,采用20mm厚水泥复合保温砂浆c抹底层抗裂砂浆,厚3mmd贴耐碱玻纤网格布e抹面层抗裂柔性腻子,厚3mm2.屋面保温构造做法a.原结构板清理干净、湿润后做找坡层,坡度按建设单位、监理单位确认的找坡及屋面分缝图纸;b.粘贴防水卷材层2道(3.0+1.5mm厚自粘性防水卷材)C.20mm厚1:2.5水泥砂浆保护层压实、清光,养护3天,晾干投后方可施工保温层;D.35mm厚挤塑性聚苯乙烯保温板,用防水油膏采用点粘法粘贴,要求满铺,拼缝严密,排水口汇水区范围不贴保温板。
一、编制依据(1)《居住建筑节能设计标准》DB13(J)185-2015(2)《12系列建筑标准设计图集》DBJT02-81-2013(3)圣林华府住宅小区项目一期工程10、11、12、13#楼施工图纸二、工程概况工程名称:圣林华府住宅小区项目一期工程10、11、12、13#楼及A、BC 区车库,建设地点:该工程位于河北省高碑店市,具体位于永和大街东侧、永昌路南侧。
建设单位:运城市泰森房地产开发有限公司,设计范围:本设计为土建、给水,排水、采暖、电气施工图设计。
装修按国家规定只承担一般装修;特殊装修需另行委托设计;本工程建筑内部装修及用料均应符合现行国家标准《建筑内部装修设计防火规范GB50222-95》及《民用建筑工程室内环境污染控制规范GB50325-2013》,该工程10#楼地下2层、地上11层,5944.36㎡; 11#楼地下2层、地上17层,13324.63㎡; 12#楼地下2层、地上11层,5944.36㎡; 13#楼地下2层、地上17层,13363.38㎡;A区车库地下一层,7013.24㎡;BC区库地下一层14763.0㎡;总计:60352.97㎡,层高:地下二层层高为3.0m,地下一层层高为3.0m;地上层高均为3.0m,建筑结构形式为剪力墙结构,民用建筑工程设计等级为二级,耐火等级为二级(地下室为一级)本地区抗震设防烈度为7度;地下防水等级为Ⅱ级(配电室的防水等级为Ⅰ级);建筑耐久年限为50年。
工程质量目标:合格工程。
砌筑工程的主要部位为地下室内隔墙、地面以上外墙、内隔墙等。
砌块采用蒸压加气混凝土砌块,砌块强度等级为A3.5,地下室砌筑砂浆为M5水泥砂浆,蒸压加气混凝土砌块使用粘结剂砌筑。
三、施工准备3.1材料及主要机具:3.1.1:保温材料【改性EPS板】:应符合设计改性EPS聚笨板A2级的要求,材料进场后必须经监理单位检验保温板的外观、尺寸等是否为1200mm、600mm或600*600mm厚度为90mm、100mm、130mm。
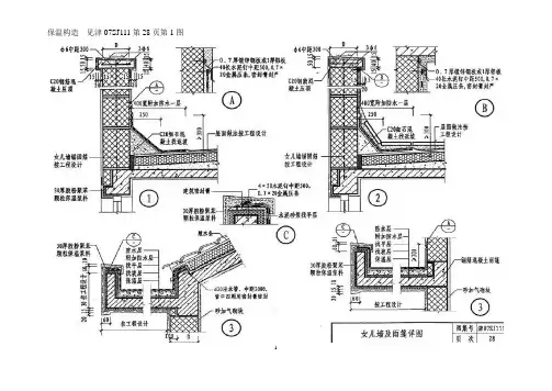
11J122外墙内保温建筑构造11J122:外墙内保温建筑构造图集编号11J122图集名称外墙内保温建筑构造定价49.00 元开本16 开主编单位o中国建筑标准设计研究院本图集修编代替03J122《外墙内保温建筑构造》,其适用于夏热冬冷地区、夏热冬暖地区的外墙内保温工程,也适用于严寒和寒冷地区采用外墙内外复合保温的民用建筑和工业建筑,以及既有建筑节能改造的保温工程。
图集内容包括五种外墙内保温系统:1.复合板内保温系统2.保温板内保温系统3.保温砂浆内保温系统4.喷涂硬泡聚氨酯内保温系统5.玻璃棉、岩棉、喷涂硬泡聚氨酯龙骨内保温系统。
图集主要包括:说明、选用表、性能表、立面示意图、构造节点详图及附录等内容。
本图集具有以下几方面特点:1. 根据新制定的《外墙内保温工程技术规程》(报批稿)对原图集进行修编,内容符合新规程要求。
2. 补充和调整了部分构造做法,取消了原图集中钢丝网架聚苯板内保温等做法,增加了无机保温板、保温砂浆等新构造、新材料,使墙体的防火、保温、隔声等性能得到进一步的提高。
3. 图集内容充实、条理清楚、选用方便,能够满足设计和施工的需要。
备注替代03J122目录目录1总说明3名词解释9A-复合板内保温系统复合板内保温系统说明A-1窗口节点构造A-5平面转角节点A-7踢脚保温节点A-9复合板内保温系统保温层厚度选用表A-10B-保温板内保温系统保温板内保温系统说明B-1窗口节点构造B-5平面转角节点B-7踢脚、楼梯间及地下室顶板保温B-9保温板内保温系统保温层厚度选用表B-10C-保温砂浆内保温系统保温砂浆内保温系统说明C-1窗口节点构造C-5平面转角节点C-6踢脚、地下室顶板保温C-7保温砂浆内保温系统保温层厚度选用表C-8D-喷涂硬泡聚氨酯内保温系统喷涂硬泡聚氨酯内保温系统说明D-1窗口节点构造D-4平面转角节点D-5踢脚、地下室顶板保温D-6喷涂硬泡聚氨酯内保温系统保温层厚度选用表D-7 E-玻璃棉、岩棉、喷涂硬泡聚氨酯龙骨内保温系统玻璃棉、岩棉、喷涂硬泡聚氨酯龙骨内保温系统说明E-1窗口节点构造(轻钢龙骨)E-5平面转角节点(轻钢龙骨)E-6窗口节点构造(断热龙骨)E-7平面转角节点(断热龙骨)E-9玻璃棉、岩棉、喷涂硬泡聚氨酯龙骨内保温系统保温层厚度选用表E-10通用节点窗帘杆安装节点F-1窗台板、窗套节点F-2凸窗保温详图F-3洗池、脸盆安装详图F-4座便器水箱、吊柜安装详图F-5暖气片、开关盒、管卡安装详图F-6阳角接缝构造F-7外墙热桥的保温构造措施F-8附录外墙内保温主要材料性能指标附录1-1墙体的传热系数和热惰性指标限值附录2主要城市所处气候分区附录3外墙平均传热系数计算附录4相关技术资料样张网友推荐网友【yyl2004】点评:现在的开发商比较喜欢外保温,一是经济效益,增加建筑面积,另外,避免热量中的热桥,但是技术性能要求没有外墙外侧应用那么严格,造价较低,而且升温(降温)比较快,适合于间歇性采暖的房间使用。
外墙保温工程施工方案(内保温)工程名称:****项目文件编号:****发布日期:执行日期:目录一、工程概况 (1)1.1 工程概况和特点 (1)1.2 分部工程/构造概况 (1)1.3 施工平面布置 (2)1.4 施工要求及技术保证条件 (2)1.5 各参建单位 (3)二、编制依据 (3)2.1 编制依据 (3)2.2 编制人员 (4)2.3 发放范围 (4)三、施工计划 (4)3.1 施工进度计划 (4)3.2 材料与设备计划 (4)3.3 试验计划 (5)3.4 劳动力计划 (5)四、深化设计 (5)五、施工工艺技术 (8)5.1 施工工艺参数 (8)5.2 XPS复合板 (9)5.3 无机水泥发泡板 (11)5.4 检查要求 (13)六、施工安全保证措施 (16)6.1 组织保证措施 (16)6.2 技术措施 (17)七、施工管理及作业人员配备和分工 (20)7.1 施工管理人员 (20)7.2 专职安全管理人员 (20)八、验收要求 (20)8.1 验收标准 (20)8.2 验收程序 (21)8.3 验收内容 (21)8.4 验收人员 (25)九、应急处置措施 (25)9.1 应急组织机构 (25)9.2 预案启动条件 (26)9.3 应急事件及其应急措施 (26)9.4 应急物资准备 (30)十、保温界面图 (31)一、工程概况1.1 工程概况和特点(1)基本概况(2)特点分析1.2 分部工程/构造概况耐碱玻纤网布孔径5mm×5mm,宽度1000mm,耐碱玻纤网≥130g/m2饰面层满刮3厚底基防裂腻子分遍刮平+无机瓷釉涂料两遍(不含厨卫)1#~6#栋外墙(XPS复合板)建筑做法一览表工序建筑做法(从内至外)(客餐厅、卧室)基层钢筋混凝土墙体基面清理,素水泥浆一道甩毛找平层10厚石膏砂浆保温层40mm厚B1级XPS夹心复合板抹面层5厚聚合物抗裂砂浆耐碱玻纤网布孔径5mm×5mm,宽度1000mm,耐碱玻纤网≥130g/m2饰面层两遍腻子刮白7#、8#栋外墙(无机水泥发泡板)建筑做法一览表工序建筑做法(从内至外)基层墙面基层界面处理,刷界面砂浆一道找平层5厚1:2.5界面砂浆无机水泥发泡板50mm厚A级无机发泡水泥板抹面层5mm聚合物抗裂砂浆耐碱玻纤网布孔径5mm×5mm,宽度1000mm,耐碱玻纤网≥130g/m2饰面层满刮3厚底基防裂腻子分遍刮平+无机瓷釉涂料两遍1.3 施工平面布置施工平面布置图及说明1.4 施工要求及技术保证条件1.5 各参建单位二、编制依据2.1 编制依据2.2 编制人员2.3 发放范围三、施工计划3.1 施工进度计划3.2 材料与设备计划(1)材料配置计划(2)机械设备配置计划3.3 试验计划3.4 劳动力计划四、深化设计为保证保温工程细部施工质量,对各细部节点应进行深化设计,具体细部节点标准作法如下所示:1 门窗洞口保温板排列(无机保温板)门窗四角及洞口处应采用整块保温板粘贴,粘贴前先在保温板上裁切出门窗四角及洞口形状。
01变形缝99浙J35 变形缝04CJ01-1变形缝建筑构造(一)04CJ01-2变形缝建筑构造(二)04CJ01-3变形缝建筑构造(三)02节能图集02J121-1外墙外保温建筑构造(一)99(03)J121-2外墙外保温建筑构造(二)-2003修改版06J121-3外墙外保温建筑构造(三)03J122外墙内保温建筑构造06J908-7既有建筑节能改造(一)06J123《墙体节能建筑构造》06J204屋面节能建筑构造06J908-2 公共建筑节能构造06J506-1建筑外遮阳(一)06J607-1建筑节能门窗(一)06J908-6太阳能热水器选用与安装06J908-1公共建筑节能构造-严寒和寒冷地区06J908-2公共建筑节能构造-夏热冬冷和夏热冬暖地区03景观图集03J012-1环境景观03J012-2环境景观--绿化种植设计04J012-3环境景观--亭廊架之一园林景观设计详细图集详细图集(1) 04楼地面2000浙J37建筑地面01J304楼地面建筑构造03J502-3室内(楼)地面及其它构造装饰06J305重载地面、轨道等特殊楼地面05幕墙03J103-2~7建筑幕墙(合订本)03J103-5铝塑板幕墙03J113轻质条板内隔墙06楼梯栏杆2001浙J43楼梯99SJ403楼梯建筑构造02(03)J401钢梯(2003年局部修改版)02(03)J401栏杆02J404-1电梯自动扶梯自动人行道03J402钢筋混凝土螺旋梯06J403-1楼梯栏杆栏板(一)05zj401楼梯栏杆07门窗60系列推拉铝合金窗(1)60系列推拉铝合金窗(2)60系列推拉铝合金窗(3)60系列推拉铝合金窗(4)70系列平开铝合金窗浙J23-95木质防火门浙J2-93木门(一)99浙J5PVC塑料门窗02J611-1钢、钢木大门02J611-2轻质推拉钢大门02J611-3电动上翻门;电动转折提升门;电动垂直提升门;电动推拉大门;电动平开大门03J611-4铝合金、彩钢、不锈钢夹芯大门03J609 防火门窗03J603-2 铝合金节能门窗03J601-2 木门窗03J601-3模压门04J601-1 木门窗04CJ02飞机库大门05J623-1钢天窗架建筑构造05J621-3通风天窗05J621-1天窗05J623-1 钢天窗架建筑构造04J631门、窗、幕墙窗用五金附件09J602-2 彩色涂层钢板门窗08排气道2002浙J44住宅变压式排气道02J916-1住宅排气道(一)02J916-2住宅排气道(二)复合式垂直集中排气系统07J916-1住宅排气道(一)2006浙J44住宅变压式排气道2007浙J58住宅变压气三防排气道09室外02J331 地沟及盖板02J003室外工程03J001围墙大门03J926建筑无障碍设计03J501-2钢筋混凝土雨棚建筑构造04J008挡土墙(重力式衡重式悬臂式)05J909工程做法05J927-1汽车库(坡道式)建筑构造08J927-2机械式汽车库建筑构造06J106挡雨板及栈台雨棚07J306 窗井、设备吊装口、排水沟、集水坑08J332、08G221砌体地沟10人防地下室96J333-1建筑防腐蚀构造08J333建筑防腐蚀构造02J301 地下建筑防水构造05J2地下工程防水人防工程建筑大样图集05SFJ10《人民防空地下室设计规范》图示07FJ01《防空地下室建筑设计示例》07FJ02《防空地下室建筑构造》07FJ03《防空地下室防护设备选用》07FJ05防空地下室移动柴油电站08FJ06防空地下室施工图设计深度要求及图样RFJ01-2008人民防空工程防护设备选用图集11道路93J007-1道路93J007-2道路93J007-3道路93J007-4道路93J007-5道路93J007-6道路93J007-7道路93J007-8道路12卫生间02J915 公共建筑卫生间99浙J36卫生间配件及洗池07J920 城市独立式公共厕所-YJF13屋面99J201-1平屋面建筑构造99(03)J201-1平屋面建筑构造(一)-2003年局部修改版99浙J14平屋面2005浙J15瓦屋面00J202-1坡屋面建筑构造00SJ202 建筑坡屋面构造01J202-2 坡屋面建筑构造(有檩)01J925-1压型钢板、夹芯板屋面及墙体建筑构造02S101矩形给水箱03J201-2平屋面建筑构造(二)03J203平屋面改坡屋面建筑构造05CJ04合成树脂(复合塑料)瓦屋面建筑构造06J925-2压型钢板、夹芯板屋面及墙体建筑构造(二)00SJ202 建筑坡屋面构造房屋渗漏修缮技术规程钢结构屋面放水图籍14装修03J113轻质条板内隔墙03J502-1内装修-轻钢龙骨内(隔)墙装修及隔断03J502-2内装修-室内吊顶03J502-3内装修-室内(楼)地面及其他装修构造06J505-1外装修(一)15地方性传统建筑,小城镇建筑03J922-1地方传统建筑(徽州地区)05SJ917-1小城镇住宅通用(示范)设计--北京地区05SJ917-2小城镇住宅通用(示范)设计--辽宁抚顺地区05SJ917-3小城镇住宅通用(示范)设计--青海西宁地区05SJ917-4小城镇住宅通用(示范)设计--陕西西安地区05SJ917-5小城镇住宅通用(示范)设计--浙江绍兴地区05SJ917-6小城镇住宅通用(示范)设计--福建福州地区05SJ917-7小城镇住宅通用(示范)设计--广东东莞地区05SJ917-8小城镇住宅通用(示范)设计--重庆地区05SJ917-9小城镇住宅通用(示范)设计--广西南宁地区05SJ918-2传统特色小城镇住宅(泉州地区)05SJ918-3传统特色小城镇住宅(丽江地区)05SJ918-4传统特色小城镇住宅(山西晋中地区)05SJ918-5传统特色小城镇住宅(新疆地区)05SJ918-6传统特色小城镇住宅(东北地区)05SJ918-8传统特色小城镇住宅(浙江嘉兴、台州地区)其它图集03J930-1 住宅建筑构造07SJ924木结构住宅04J101砖墙建筑构造(烧结多孔砖与普通砖、蒸压砖)04J923-1老年人居住建筑02J503-1 常用建筑色05SJ810建筑实践教学及见习建筑师图册06CJ05蒸压轻质砂加气混凝土(AAC)砌块和板材建筑构造.建筑设计防火规范图示全国民用建筑工程设计技术措施节能专篇-建筑05SJ807+民用建筑工程设计常见问题分析及图[1].民用建筑工程施工图设计深度图样..。
几种外墙内保温构造的施工方法北京市建筑节能示范小区位于安定门外北四环路安慧立交桥东南侧,建筑面积13.2万m2,共l 8个栋号。
该小区建筑节能项目比较齐全,采取了包括外墙、门窗、屋面、地面、管道等多方面的节能措施。
其中外墙内保温是重点研究开发的项目,共3种类型、10余种作法,现介绍如下。
第1章石膏保温复合板施工石膏保温复合板是在现场拼装的外墙内保温复合技术基础上,为改善石膏龙骨部位保温效果和便于施工安装,将原现场用石膏龙骨填保温层粘结石膏板的作法,发展为工厂预制加工成保温复合板,改为由现场直接粘贴的一道工序,减少了现场施工工序,操作方便,节约劳动力,有利于加快工程进度。
该工程先采用的是聚苯槽形复合板。
将纸面石膏板两边扳边成700mm宽槽形板,再将20mm厚自熄性聚苯板与槽形石膏板粘成整块复合板,运至施工现场后,用粘结剂将复合板粘于已冲筋的墙上,并使保温层与墙面保持20mm厚空气层。
其构造详见图7-15-1。
这种复合板虽然使用简便,但由于板边是直角边,极易产生裂缝。
为了最大限度地缩小内保温复合墙体的热桥,在小区中的另一栋住宅楼采用了聚苯复合型保温板构造(图7-15-2)。
900mm宽聚苯复合型保温板较槽形复合板具有接缝少,墙体热桥小,消耗石膏板量少等优点。
但施工时要求更严格。
板与墙面粘结处的冲筋应采用竖筋,以保证粘结后墙面的刚度。
存放时必须码放整齐,垫块间距不得大于400mm,且不宜码放太高,以防板面变形。
为合理控制保温复合板的造价,保证大面积外墙内保温施工的顺利进行,可采用35mm厚、表观密度80~100kg/m3的岩棉板材作保温材料,并于1988年4月在示范小区7号楼进行了岩棉复合板的试验。
岩棉板系无机高效保温材料,保温性能很好,货源充足,价格较聚苯板低。
通过7号楼安装及后期测试,肯定了岩棉复合板的优点,并在亚运村工程中大面积推广应用。
6号楼采用900mm宽玻璃棉聚苯龙骨型复合板,用聚苯条作龙骨,纵向每隔600mm固定一道聚苯龙骨,聚苯龙骨规格(mm)为50×900×30,或100×2400×30,用玻璃棉作高效保温材料。
外墙无机玻化微珠砂浆施工方案一、本方案编制依据1、居住建筑节能保温隔热工程质量验收规程DB51/5033-20052、外墙外保温建筑构造10J1213、外墙外保温工程技术规程JGJ144-20084、外墙内保温建筑构造11J1225、建筑保温砂浆标准GB/T200473-20066、有关外保温工程招标文件二、工程概况:本项目位于安徽芜湖仓津桥西北角,本工程地下室采用钢筋混凝土结构,上部为现浇钢筋混凝土剪力墙结构;主楼建筑抗震设防类别为丙类,建筑结构安全等级为二级,抗震等级的烈度为六度,框架抗震等级为三级,抗震墙抗震等级为三级;设计使用年限50年,耐火等级一级,防水等级一级,建筑物高度1,2;地下室总建筑面积:平方米、1楼平方米、2楼平方米;建设单位:芜湖东方蓝海置业有限公司设计单位:机械工业第一设计研究院勘察单位:安徽省城建设计研究院监理单位:安徽建大项目管理有限公司施工单位:安徽省第二建筑工程公司三、施工组织机构四、材料要求及材料配制一材料要求1、玻化中空微珠优质珍珠岩经高温玻化膨胀形成的中空微珠,具有一定粒度、级配,专用于配制玻化中空微珠干粉砂浆的轻骨料;主要技术指标2、玻化微珠外墙外保温保温浆料性能指标3、界面砂浆性能指标4、抗裂砂浆性能指标5.耐碱网格布性能指标二、玻化微珠保温砂浆材料配制1、界面砂浆的配制按干粉料:水=4:1的比例用搅拌机均匀搅拌成浆状;2、玻化微珠保温砂浆浆料配制按玻化微珠保温砂浆干粉:水=1: 的比例先将水加入搅拌器中,再将玻化微珠保温砂浆干粉料放入搅拌机中,搅拌3-5min,使浆料成均匀膏状,即可使用;浆料必须随配随用,配置好的浆料应在2小时内用完,落地灰随收随用;3、抗裂砂浆的配制按干粉料:水=4:1的比例,先将水加入搅拌机中,再将抗裂砂浆干粉料倒入搅拌机中,搅拌5min,使其搅拌均匀,静放5min即可使用;砂浆随配随用,配制好的砂浆在2h内用完;五、作业条件1、基层墙体经主体工程验收达到质量标准要求;2、基层表面应将表面浮灰、油污等清理干净,大于10mm的凸出部分应剔凿清理干净,凹部分用1:3水泥砂浆找平;3、外墙面上的门窗框、设备安装完毕,并预留出保温层厚度;4、施工机具、运输设备应齐全,并运行正常;5、夏季施工应避免阳光暴晒;6、玻化微珠保温砂浆施工方案要经监理建设单位批准方可实施;六、构造要求1、1-2mm界面砂浆作界面处理抹低槽的不需要2、20厚1:3水泥砂浆找平3、50厚玻化微珠保温砂浆分层施工;4、6厚聚合物抗裂砂浆压入耐碱玻钎网格布;5、外墙涂料饰面层;七、工艺流程1、玻化微珠保温砂浆外墙外保温工程工艺流程为:基层墙面清理→吊垂直、套方、弹抹灰厚度控制线→涂刷界面剂→做灰饼→抹玻化微珠保温砂浆→保温层验收→抹抗裂砂浆同时压入耐碱网格布→验收;八、施工要点一玻化微珠保温砂浆外墙外、内保温施工1、基层墙面处理:先用钢丝刷清理基层墙面浮灰、油渍等,再用软刷清扫干净,门、窗框四周应用保温砂浆分层塞密实,保温层包裹窗框尺寸10mm左右;2、吊垂直、套方、弹抹灰厚度控制线:根据保温层厚度要求弹出抹灰控制线;3、涂刷界面砂浆:用滚筒或扫帚蘸取界面砂浆均匀涂刷于墙面,不得漏涂,拉毛不宜太厚,约1-2mm,配好的料注意防晒避风,一次配好的料在可操作时间内用完;抹低槽的墙面无需刷界面剂4、做灰饼,大阳角用稍干的无机保温砂浆做灰饼和大角;5、抹玻化微珠保温砂浆玻化微珠保温砂浆应在界面砂浆固化前分数遍成活有低槽的墙面以水泥砂浆上强度为宜;用配制好的无机保温砂浆用铁抹子压抹,抹灰厚度为15mm左右,使砂浆均匀密实覆盖墙面;玻化微珠保温砂浆抹上墙面与墙粘住后,不宜反复赶压;抹灰厚度在30mm时应分两次抹涂,待上一遍抹灰硬化后即可进行下一遍抹灰;最后一遍抹灰厚度达到灰饼厚度,并用大杠搓平;门窗洞口垂直度平整度达到规范规定要求后,再在表面进行找平压实;6、保温层验收抹完保温层后,用检测工具进行检查,保温层应垂直、平整、阴阳角方正、顺直,对不符合要求的表面,应进行修补;7、抹抗裂砂浆同时压入耐碱网格布在保温层固化干燥后,用铁抹子在保温层上抹抗裂砂浆厚度要求2-3mm,不得漏抹,在刚抹好的砂浆上用铁抹子压入裁好的耐碱网格布,要求耐碱网格布竖向铺贴并全部压入抗裂砂浆内;耐碱网格布不得有干贴现象,粘贴饱满率应达到100%,塔接宽度不应小于80mm两层塔接网布之间要布满抗裂砂浆,严禁干茬塔接;在窗口角处洞口应45度斜向铺一道耐碱网格布,耐碱网格布尺寸宜为400mm×300mm8、施工注意事项1操作地点环境最低温度不低于5度,风力不大于6级,雨天不能施工;2保温砂浆和抗裂砂浆必须由专业生产厂家严格按照专业配方配制的袋装材料,施工时按照要求加水搅拌,不需添加任何添加剂,配制好的砂浆要即时用完;3采用机械搅拌方法不得强制性搅拌,确保搅拌时间,保证施工质量;4施工现场唯一加的就是水,必须严格控制对水的计量,确保水灰比正确;5严禁使用过时灰;6产品运到工地注意防水、防潮,材料贮存期为三个月;冬季施工注意防冻;每次施工完毕后,要及时清洗施工工具和搅拌器材,以免影响下次使用;九、成品保护1、施工完毕后注意成品保护,墙面避免磕碰及水冲浸泡;2、门窗框、管道上残余的砂浆清理干净;移动吊篮,翻拆架子应防止破坏已抹好的墙面,门窗洞口,边、垛宜采取保护措施,其它工种作业时应不得污染或破坏墙面,严禁踩踏窗口;十、质量保证措施建立一个强有力的质量保证组织机构,定期开展质量统计分析,掌握工程质量动态;全面控制各分部、分项工程质量,并严格执行相关的国家规范、标准,按施工图和设计要求进行施工;1、建立由项目经理直接负责,技术负责人现场指导,质检员现场监督,班组自检、互检的质量保证体系;2、制定项目各级管理人员,施工人员质量管理责任制,签订质量管理合同;把每个工序,每个部位的施工质量要求,控制目标,分解到每个管理人员和操作人员;3、建立全员质量意识,贯彻谁管生产,谁管质量,谁管施工,谁负责施工,谁负责质量,谁负责操作的原则,实行工程质量负责制制度;4、制定项目质量管理奖惩条例,岗位职责与工资挂钩;5、按图施工,做好技术交底,并履行签字手续对施工难点先做好样板,再全面开展;6、施工过程中严格按施工工艺和质量要求进行,每分部、分项工程完工后均应进行验收,不合格的坚决做到整改完善,并经复验达到优良方可进行下道工序施工;7、在施工过程中发现质量问题,应及时查找原因,对责任人进行教育处理,并及时采取预防、纠正措施;8、实行作业人员互检,自检,班组复检,项目部抽检的原则;各项指标均合格再报监理验收;9、坚持班前教育,班后总结,强化员工质量意识;10、选用优质施工工具,减少施工误差,提高施工质量;杜绝不合格项进入下道工序;11、做好隐蔽工程及中间验收工作,组织质量验收;十一、安全文明保证措施1、安全文明保证方针:坚持安全第一,预防为主的方针,建立健全的安全保障体系,明确安全责任目标,对职工经常进行安全生产教育,定期开展安全生产培训,掌握一定的安全生产知识;2、安全文明施工目标:不发生重大安全事故,控制小事故发生率为零;3、安全生产管理体系:为确保承诺的工程工期和安全文明施工生产目标的实现,将组织所有的现场施工人员学习和掌握安全操作规程和有关安全生产条例,成立了以项目经理为首的安全生产管理小组;配备了专职安全人员;建立了详细的安全管理体系:a.实行项目经理安全负责制:项目经理为安全第一责任人,对整个工程的安全全面负责;b.施工负责人是安全直接责任人;在组织施工的同时也对整个工程的安全直接负责;c.专职安全员是安全直接负责人;主管整个工程的安全管理工作;对整个工程安全负责;d.项目部经理、技术负责人、施工员必须是安全委员会成员,并对施工安全负责;e.认真贯彻执行国家有关安全生产法规,建筑施工安全规程等,同时结合本工程特点,制定安全生产制度和奖励条例,并认真执行;f.安全员每天深入施工现场的每一个作业面巡视,对安全设备脚手架,安全防护网等安全防护设备,安全保护用品的使用,设备运行情况以及现场施工作业人员对安全规程的遵守情况进行检查和实施安全有效的监督;g.对各种施工机械的操作必须明确责任人,专机专人使用保管,操作人员必须持上岗证;h.施工前完成安全教育,安全教育一个月组织一次;建立定期的安全检查,安全会议制度,及时消除隐患;i.特殊工种的专业人员必须取得劳动监察部门核发的安全操作合格证,坚持持证上岗;j.参与本项目的施工人员必须签订安全协议,并作出安全保证,现场施工人员要定期进行身体体检,进入施工现场之前要戴安全帽,高空作业人员必须系好安全带;k.施工现场所有电器设备的安全、防护、操作与维护必须符合施工现场临时用电技术规范规定要求,有醒目的电气安全标志;保证有正确可靠的接地及接零保护措施;所有电缆、用电设备的安装、维修、拆除必须由专业电工完成;l.施工现场明确划分用火作业区、易燃可燃材料堆场、仓库、废品集中站和生活区域;并配备充足的灭火器材;m.积极参与业主及监理组织的安全检查活动,服从安全生产规定,团结一致,把工地安全工作搞好;n.严格遵守施工的有关规定,对建筑垃圾及时清理到指定的地点堆放,并及时清运出场,保证施工场地的清洁和施工道路的畅通;o.严格按业主划定的临时围界,实行封闭式管理,临建布置整齐,有序、遵纪守法,文明施工;十二、技术资料及工程验收一、主控项目1、玻化微珠保温砂浆墙体保温工程所用材料品种、性能和配合比应符合要求;检验方法:检查产品质量合格证明文件、进场验收纪录、现场抽样实验报告和施工纪录;2、保温层厚度及保温系统的构造和细部做法应符合建筑节能设计要求;检验方法:钢针插入和尺量检查,观察检查;3、保温层与基层墙体以及各构造层之间必须粘接牢固,无脱层、空鼓及裂缝,面层无粉化、起皮、爆灰等现象;检验方法:观察检查、用小锤轻击和检查基层墙体与界面砂浆的拉伸粘接强度检验报告;二、一般项目1、耐碱网格布应铺压严实,不得有空鼓、褶皱、翘曲、外露等现象,搭接宽度不应小于100mm;加强部位的耐碱网格布的做法应符合设计的要求;检验方法:观察检查;2、保温层表面应平整、洁净,接茬平整、光滑,线角顺直、清晰,毛面纹路均匀一致;检验方法:观察检查;3、边角表面应光滑、平顺,门窗框与墙体间缝隙填塞密实,表面平整;检验方法:观察检查;4、孔洞、槽、盒位置和尺寸正确,表面整洁、洁净,管道后面平整; 检验方法:用钢尺检查和观察检查;5.保温层和抹面层的允许偏差量及检验方法应符合下表的规定;允许偏差及检验方法:东方龙城12地块思文苑外墙无机玻化微珠砂浆施工方案安徽省第二建筑工程公司时间:2017年 6月 20 日施工组织设计/专项施工方案报审表工程名称:芜湖东方龙城12-3号地块一标段编号:注:本表一式三份,项目监理机构、建设单位、施工单位各一份一般性专项施工方案审批表分公司审批。
xxxxxx项目目录一、编制依据 (1)二、工程概况 (2)三、施工准备 (2)1、技术准备 (2)2、工机具的准备 (3)3、施工现场准备 (3)四、施工方法 (3)1、构造做法 (3)2、工艺流程: (3)3、施工要求: (3)五、成品保护 (6)六、质量保证措施 (6)1、制度确保质量 (6)2、从现场确保质量 (7)八、安全文明保证措施 (7)1、安全管理总体方针 (7)2、安全管理工作内容: (8)3、文明管理工作内容: (8)九、技术资料及工程验收 (8)1、主控项目 (8)2、一般项目 (8)3、允许偏差及检验方法 (9)一、编制依据1、建筑施工图;2、外墙内保温建筑构造图集11J122;3、建筑施工手册(第五版);4、《外墙内保温施工技术规程》 JGJT261—2011 ;第 1 页共9 页5、建筑工程施工质量验收统一标准》GB50300-2013;6、《建筑节能工程施工质量验收规范》GB50411-2007;7、《民用建筑热工设计规范》GB50176—93.二、工程概况1、xxxx工程位于xxxx,北侧与全国重点文物保护单位xxx隔路相邻,东侧与xxx学院相邻,南侧有xx河流流过。
本工程(一期建筑)主要是由地面广场、下沉广场、商业街、剧场、影院等功能构成的综合性建筑,总建筑面积xxxx㎡.本工程由xxxxx公司建设开发,xxxxx监理,xxxxx设计。
我司主要承建影院、剧院和商业部分,其中影院和商业部分结构设计总高度为12.9m,剧院主要由前厅剧场和后场艺术学校组成,结构设计高度为21。
2m和16。
8m,结构形式均为框架结构。
其中剧院艺校外墙保温做法为外墙内保温,外墙砌体材料为多孔砖和空心砖,结构楼层分为地下室、一层、4。
45m夹层、二层、三层。
2、外墙内保温材料:A、EPS聚苯乙烯泡沫板,规格为1200mm×600mm×50mm、平头式,阻燃型,容重20±2kg/m3,导热系数≦0.039w/m。
建筑图集目录0类总图及室外工程1.03J001 围墙大门2.12J003 室外工程3.93J007-1 道路4.93J007-2 道路5.93J007-3 道路6.93J007-4 道路7.93J007-5 道路8.93J007-6 道路9.93J007-7 道路10.93J007-8 道路11.04J008 挡土墙(重力式、衡重式、悬臂式)12.03J012-1 环境景观-室外工程细部构造13.03J012-2 环境景观-绿化种植设计14.04J012-3 环境景观-亭、廊、架之一15.10J012-4 环境景观-滨水工程1类墙体16.15J101砖墙建筑、结构构造17.05J102-1 混凝土小型空心砌块墙体建筑构造18.02J102-2 框架结构填充小型空心砌块墙体建筑构造19.97J103-1 铝合金玻璃幕墙20.03J103-2~7 建筑幕墙21.07J103-8 双层幕墙22.03J104 蒸压加气混凝土砌块建筑构造23.13J104 蒸压加气混凝堵土砌块、板材构造24.06J106 挡雨板及栈台雨篷25.07J107 夹心保温墙建筑构造26.01ZJ110-1 瓷面纤维增强水泥墙板建筑构造27.08SJ110-2 预制混凝土外墙挂板28.03J111-1 轻钢龙骨内隔墙29.03J111-2 预制轻钢龙骨内隔墙30.03J112 中空内模金属网水泥内隔墙31.10J113-1 内隔墙-轻质条板(一)32.04J114-1 轻集料空心砌块内隔墙33.04J114-2 石膏砌块内隔墙34.10J121 外墙外保温建筑构造35.11J122 外墙内保温建筑构造36.06J123 墙体节能建筑构造2类屋面37.12J201 平屋面建筑构造38.09J202-1 坡屋面建筑构造(一)39.03J203 平屋面改坡屋面建筑构造40.06J204 屋面节能建筑构造41.07J205 玻璃采光顶42.14J206 种植屋面建筑构造3类楼地面43.10J301 地下建筑防水构造44.12J304 楼地面建筑构造45.06J305 重载地面、轨道等特殊楼地面46.07J306 窗井、设备吊装口、排水沟、集水坑47.02J331、08J332 地沟及盖板(2009合订本)48.08J332 08G221 砌体地沟49.08J333 建筑防腐蚀构造50.86J334 湿陷性黄土地区室内捡漏管沟4类梯51.02J401、02(03)J401 钢梯(含2003年局部修改版)52.03J402 钢筋混凝土螺旋梯53.15J403-1 楼梯栏杆栏板(一)54.13J404 电梯、自动扶梯、自动人行道5类装修55.07J501-1 钢雨篷(一)-玻璃面板56.03J501-2 钢筋混凝土雨蓬57.13J502-1 内装修-墙面装修58.12J502-2 内装修-室内吊顶59.02J503-1 常用建筑色60.07SJ504-1 隔断隔断墙(一)61.06J505-1 外装修(一)62.06J506-1 建筑外遮阳(一)63.07SJ507 轻钢龙骨布面石膏板、布面洁净板隔墙及吊顶64.11J508 建筑玻璃应用构造-栏板隔断底板吊顶水下玻璃档烟垂壁6类门窗及天窗65.04J601-1 木门窗66.03J601-2 木门窗(部品集成式)67.03J601-3 模压门68.04J602-1 实腹钢门窗69.09J602-2 彩色涂层钢板门窗70.13J602-3 不锈钢门窗71.02J603-1 铝合金门窗72.03J603-2 铝合金节能门窗73.07J604 未增塑聚氯乙烯(PVC-U)塑料门窗74.01SJ-606 住宅门75.06J607-1 建筑节能门窗(一)76.12J609 防火门窗77.04J610-1 特种门窗-变压器室钢门窗、配变电所钢大门、防射线门窗、冷藏库门、保温门、隔声门78.02J611-1 钢、钢木大门79.02J611-2 轻质推拉钢大门80.02J611-3 压型钢板及夹芯板大门81.03J611-4 铝合金、彩钢、不锈钢夹芯板大门82.01J618-2 轻质新型钢天窗83.05J621-1 天窗-上悬钢天窗、中悬钢天窗、平天窗84.09J621-2 电动采光排烟天窗85.05J621-3 通风天窗86.99J622-187.98J622-288.96J622-389.91J622-490.96J622-591.94J622-692.05J623-1 钢天窗架建筑构造93.94J623-2 π钢筋混凝土天窗架建筑构造94.07J623-3 天窗挡风板及挡雨片95.05J624-1 百叶窗(一)96.04J631 门、窗、幕墙窗用五金附件8类设计图示97.09J801 民用建筑工程建筑施工图设计深度图样98.09J802 民用建筑工程建筑初步设计深度图样99.06SJ803 民用建筑工程室内施工图设计深度图样100.05J804 民用建筑工程总平面初步设计、施工图设计深度图样101.06SJ805 建筑场地园林景观设计深度及图样102.05SJ806 民用建筑工程设计互提资料深度及图样-建筑专业103.05SJ807 民用建筑工程设计常见问题分析及图示-建筑专业104.05SJ810 建筑实践教学及见习建筑师图册105.13J811-1 改《建筑设计防火规范》图示(2015年修改版)106.06SJ812 《高层民用建筑设计防火规范》图示107.06SJ813 《民用建筑设计通则》图示108.12J814 《汽车库、修车库、停车场设计防火规范》图示109.13J815 《住宅设计规范》图示110.13J816 救灾物资储备库标准设计样图111.13J817 老年养护院标准设计样图112.14J818 儿童福利院标准设计样图113.14J819 社区老年人日间照料中心标准设计样图9类综合项目114.07J901-1 实验室建筑设备(一)115.07J901-2 实验室建筑设备(二)116.06J902-1 医疗建筑门、窗、隔断、防X射线构造117.07J902-2 医疗建筑固定设施118.07J902-3 医疗建筑卫生间、淋浴间、洗池119.09SJ903-1 中小套型住宅优化设计120.00J904-1 智能化示范小区设计121.07J905-1 防火建筑构造(一)122.08J907 洁净厂房建筑构造123.06J908-1 公共建筑节能构造-严寒、寒冷地区124.06J908-2 公共建筑节能构造-夏热冬冷、夏热冬暖地区125.09J908-3 建筑围护结构节能工程做法及数据126.10J908-5 建筑太阳能光伏系统设计与安装127.06J908-6 太阳能热水器选用安装128.06J908-7 既有建筑节能改造(一)129.05J909 工程做法130.05J910-1 钢结构住宅(一)131.05J910-2 钢结构住宅(二)132.08J911 建筑专业设计常用数据133.07J912-1 变配电所建筑构造134.12J912-2 常用设备用房(锅炉房、冷(热)源机房、柴油发电机房、水泵房) 135.13J913-1 公共厨房建筑设计与构造136.14J913-2 住宅厨房137.14J914-2 住宅卫生间138.02J915 公用建筑卫生间139.07J916-1 住宅排气道(一)140.05SJ917-1 小城镇住宅通用(示范)设计—北京地区141.05SJ917-2 小城镇住宅通用(示范)设计—辽宁抚顺地区142.05SJ917-3 小城镇住宅通用(示范)设计—青海西宁地区143.05SJ917-4 小城镇住宅通用(示范)设计—陕西西安地区144.05SJ917-5 小城镇住宅通用(示范)设计—浙江绍兴地区145.05SJ917-6 小城镇住宅通用(示范)设计—福建福州地区146.05SJ917-7 小城镇住宅通用(示范)设计—广东东莞地区147.05SJ917-8 小城镇住宅通用(示范)设计—重庆地区148.05SJ917-9 小城镇住宅通用(示范)设计—广西南宁地区149.05SJ918-1 传统特色小城镇住宅(徽州地区)150.05SJ918-2 传统特色小城镇住宅(泉州地区)151.05SJ918-3 传统特色小城镇住宅(丽江地区)152.05SJ918-4 传统特色小城镇住宅(山西晋中地区)153.05SJ918-5 传统特色小城镇住宅(新疆伊犁、吐鲁番、喀什、和田地区)154.05SJ918-6 传统特色小城镇住宅(东北地区)155.05SJ918-7 传统特色小城镇住宅(北京地区)156.05SJ918-8 传统特色小城镇住宅(浙江嘉兴、台州地区)157.05SJ919 小城镇住宅建筑构造158.07J920 城市独立式公共厕所159.03J922-1 地方传统建筑(徽州地区)160.04J923-1 老年人居住设计161.07SJ924 木结构住宅162.01J925-1 压型钢板、夹芯板屋面及墙体建筑构造163.06J925-2 压型钢板、夹芯板屋面及墙体建筑构造(二)164.08J925-3 压型钢板、夹芯板屋面及墙体建筑构造(三)含压型铝合金板165.12J926 无障碍设计166.05J927-1 汽车库(坡道式)建筑构造167.08J927-2 机械式汽车库建筑构造168.13J927-3 机械式停车库设计图册169.08SJ928 社区卫生服务中心和服务站170.10J929 乡镇卫生院建筑标准设计样图171.11J930 住宅建筑构造172.08J931 建筑隔声与吸声构造173.10J932 农村中小学校标准设计样图174.08J933-1 体育场地设施(一)175.13J933-2 体育场地设施(二)176.11J934-1 《中小学校设计规范》图示177.11J934-2 中小学校场地与用房178.11J935 幼儿园建筑构造与设施179.14J936 变形缝建筑构造180.11SJ937-1(1)181.11SJ937-1(2)182.14J938 抗爆、泄爆门窗及屋盖、墙体建筑构造183.15J939-1 装配式混凝土结构住宅建筑设计示例(剪力墙结构)184.09J940 皮带运输机通廊建筑构造10类参考图185.04CJ01-1 变形缝建筑构造(一)186.04CJ01-2 变形缝建筑构造(二)187.04CJ01-3 变形缝建筑构造(三)188.04CJ02 飞机库大门189.07CJ03-1 轻钢龙骨石膏板隔墙、吊顶190.05CJ04 合成树脂(复合塑料)瓦屋面建筑构造191.06CJ05 蒸压轻质砂加气混凝土(AAC)砌块和板材建筑构造192.06CJ06-1 开窗机(一)193.13CJ06-2 开窗机(二) 消防联动智能开窗机194.06CJ07 改性膨胀珍珠岩外墙保温建筑构造-XR无机保温材料195.07CJ08 医院建筑施工图实例196.07CJ09 防水透汽膜建筑构造——特卫强防水透汽材料197.07CJ10 聚合物水泥防水涂料建筑构造——RG防水涂料198.07CJ11 铝塑复合板幕墙建筑构造——“加铝”开放式幕墙系统199.07CJ12 节能铝合金——蓝光系列200.08CJ13 钢结构镶嵌ASA板节能建筑构造201.08CJ14 水泥基自流平楼地面建筑构造202.07CJ15 波形沥青瓦、波形沥青防水板建筑构造203.10CJ16 挤塑聚苯乙烯泡沫塑料板保温系统建筑构造204.08CJ17 快速软帘卷门透明分节门滑升门卷帘门205.09CJ18 钢框轻型屋面板206.09CJ19 高强薄胶泥粘贴面砖及石材构造207.09CJ20 钢骨架轻型板208.10CJ21 喷涂高分子橡胶沥青防水涂料建筑构造-MCT喷涂速凝防水涂料209.11CJ23-1 自粘防水材料建筑构造(一)210.12CJ23-2 自粘防水材料建筑构造(二)211.11CJ24 高强度中空采光板门窗212.11CJ25 ZL轻质砂浆内外组合保温建筑构造213.11CJ26 房屋建筑工程施工工法图示(一)214.11CJ27 铝塑共挤节能门窗215.11CJ28216.14CJ29 VTF与TDF集成防水、保温体系建筑构造217.11CJ30 矿物纤维喷涂保温、吸声构造218.11CJ31 TF无机保温砂浆外墙保温构造219.11CJ32 住在太阳能热水系统选用及安装220.11CJ33 通风采光天窗221.12CJ34 陶粒泡沫混凝土砌块墙体构造222.12CJ35 珍珠岩吸声板吊顶与墙面构造-崔申珍珠岩吸声板223.13CJ36 威达屋面防水系统建筑构造224.13CJ37225.14CJ38 不同地域特色村镇住宅设计资料226.13CJ39 混凝土密封固化楼地面227.13CJ40-1 建筑防水系统构造(一)228.13CJ40-2 建筑防水系统构造(二)229.13CJ40-3 建筑防水系统构造(三)230.13CJ40-4 建筑防水系统构造(四)231.13CJ40-5 建筑防水系统构造(五)232.13CJ40-6 建筑防水系统构造(六)233.13CJ41 GFZ聚乙烯丙纶增强复合防水构造234.13CJ42235.13CJ43 建筑陶瓷薄板和轻质陶瓷板工程应用(幕墙、装修)236.13CJ44237.13CJ45 HBL聚氨酯板保温系统建筑构造238.14CJ46 钢构轻型复合板239.13CJ47 建筑构造—普瑞玛、英纬系列产品240.13CJ48 JL无机轻集料砂浆保温系统建筑构造241.14CJ49242.14CJ50243.14CJ51 JY硬泡聚氨酯复合板外墙外保温建筑构造244.15CJ52245.14CJ54246.14CJ56 钢构轻墙板247.14CJ57 钢边框保温隔热轻型板248.14CJ58249.14CJ59250.15CJ62-1251.15CJ63252.15CJ64-1作废253.04J101 砖墙建筑构造(烧结多孔砖与普通砖、蒸压砖)254.99(03)J121-2 外墙外保温建筑构造(二)255.03J122 外墙内保温建筑构造256.06J121-3 外墙外保温建筑构造(三)257.99(03)J201-1 平屋面建筑构造(一)258.03J201-2 平屋面建筑构造(二)259.00(03)J202-1 坡屋面建筑构造(一)260.02J301 地下建筑防水构造261.01J304、01(03)J304 楼地面建筑构造262.02J404-1 电梯自动扶梯自动人行道263.06J403-1 楼梯栏杆栏板(一)264.03J502-1~3 内装修265.03J609 防火门窗266.04J621-2 电动采光排烟天窗267.04J801 民用建筑工程建筑施工图设计深度图样268.05J802 民用建筑工程建筑初步设计深度图样269.05SJ811 《建筑设计防火规范》图示270.03J930-1 住宅建筑构造271.01SJ913 住宅厨房272.01SJ914 住宅卫生间273.03J926 建筑无障碍设计结构图集目录1类制图规则1.C101-1 混凝土主体结构平法通用设计2.11G101-1 混凝土结构施工图平面整体表示方法制图规则和构造详图(现浇混凝土框架、剪力墙、梁、板)3.11G101-2 混凝土结构施工图平面整体表示方法制图规则和构造详图(现浇混凝土板式楼梯)(2012更正)4.11G101-3 混凝土结构施工图平面整体表示方法制图规则和构造详图(独立基础、条形基础、筏形基础及桩基承台)5.12G101-4 混凝土结构施工图平面整体表示方法制图规则和构造详图(剪力墙边缘构件)6.13G101-11 G101系列图集施工常见问题答疑图解7.03G102 钢结构设计制图深度和表示方法8.11SG102-3 钢吊车梁系统设计图平面表示方法和构造详图9.09G103 民用建筑工程结构施工图设计深度图样10.09G104 民用建筑工程结构初步设计深度图样11.05SG105 民用建筑工程设计互提资料深度及图样-结构专业12.15G107-1 装配式混凝土结构表示方法及示例(剪力墙结构)13.13SG108-11 建筑结构设计规范应用图示(地基基础)14.05SG109-1 民用建筑工程设计常见问题分析及图示-结构专业-设计原则15.05SG109-2 民用建筑工程设计常见问题分析及图示-结构专业-砌体结构16.05SG109-3 民用建筑工程设计常见问题分析及图示-结构专业-混凝土结构17.05SG109-4 民用建筑工程设计常见问题分析及图示-结构专业-钢结构和空间网格结构18.05SG110 建筑结构实践教学及见习工程师图册19.07SG111-1 建筑结构加固施工图设计表示方法20.07SG111-2 建筑结构加固施工图设计深度图样21.06G112 建筑结构设计常用数据22.12G112-1 建筑结构设计常用数据23.08SG115-1 钢结构施工图参数表示方法制图规则和构造详图24.09SG117-1单层工业厂房设计示例(一)25.08G118 单层工业厂房设计选用(上册)26.08G118 单层工业厂房设计选用(下册)27.07G120 工程做法(自重计算)28.12SG121-1 施工图加固设计总说明(混凝土结构)29.13SG121-2 施工图结构设计总说明(多层砌本房屋)2类构筑物30.04G211 砖烟囱31.05G212 钢筋混凝土烟囱32.08SG213-1 钢烟囱(自立式30~60m )33.08G221 砌体地沟(建筑、结构合订本)3类混凝土构件34.04SG307 现浇钢筋混凝土板式楼梯35.14SG308 混凝土后锚固连接36.04SG309 钢筋焊接网混凝土楼板与剪力墙构造37.15G310-1~2 装配式混凝土连接节点构造38.13SG311-1 混凝土结构加固构造39.08SG311-2 混凝土结构加固构造(地基基础及结构整体加固改造)40.14G312 幼儿园、中小学校家具家电设备抗震连接构造41.12ZG313钢筋混凝土过梁42.04G314 钢筋混凝土折线形屋架43.04G320 钢筋混凝土基础梁44.04G321 钢筋混凝土连系梁45.13G322-1~4 钢筋混凝土过梁46.04G323-1 钢筋混凝土吊车梁(工作级别A6)47.04G323-2 钢筋混凝土吊车梁(工作级别A4、A5)48.04G325 吊车轨道联结及车挡(适用于混凝土结构)49.11G329-1~3 建筑物抗震构造详图50.14G330-1 混凝土结构剪力墙边缘构件和框架柱构造钢筋选用(剪力墙边缘构件、框支柱)51.14G330-2 混凝土结构剪力墙边缘构件和框架柱构造钢筋选用(框架柱)52.06SG331-1 混凝土异形柱结构构造(一)53.05SG332 小城镇建筑结构构件及构造54.08SG333 预制混凝土外墙挂板55.10SG334 钢筋混凝土抗风柱56.05G335 单层工业厂房钢筋混凝土柱57.11G336-2 柱间支撑(柱距7.5米)58.04G337 吊车梁走道板59.05SG343 现浇混凝土空心楼盖60.04G353-1、04G353-2、04G353-3、04G353-4、04G353-5、04G353-6钢筋混凝土屋面梁61.05G359-1~4(2005年合订本)悬挂运输设备轨道62.07SG359-5 悬挂运输设备轨道63.08SG360 预应力混凝土空心方桩64.04G361 预制钢筋混凝土方桩65.04G362 钢筋混凝土结构预埋件66.03G363 多层砖房钢筋混凝土构造柱抗震节点详图67.13SG364 预制清水混凝土看台板68.15G365-1 预制混凝土剪力墙外墙板69.15G365-2 预制混凝土剪力墙内墙板70.15G366-1 桁架钢筋混凝土叠合板-60mm厚底板71.15G367-1 预制钢筋混凝土板式楼梯72.15G368-1 预制钢筋混凝土阳台板、空调板及女儿墙73.03G372 钢筋混凝土雨蓬4类预应力混凝土构件74.05SG408 SP预应力空心板75.99ZG408(附册一) SP预应力空心板技术手册76.99ZG408(附册二) SP板/砌块居住建筑设计指南77.10SG409 预应力混凝土管桩78.04G410-1 1.5m×6.0m预应力混凝土屋面板(预应力混凝土部分)79.04G410-2 1.5m×6.0m预应力混凝土屋面板(钢筋混凝土部分)80.05G414-1~5 预应力混凝土工字形屋面梁81.04G415-1 预应力混凝土折线形屋架(预应力筋为钢绞线跨度18m~30m)82.04G426 6m后张法预应力混凝土吊车梁83.06SG429 后张预应力混凝土结构施工图表示方法及构造详图84.06SG432-1 预应力混凝土双T板(坡板宽度2.4m)85.08SG432-3 预应力混凝土双T板(坡板宽度3.0m)86.03SG435-1 预应力混凝土圆孔板(预应力钢筋为螺旋肋钢丝,跨度2.1m-4.8m)87.03SG435-2 预应力混凝土圆孔板(预应力钢筋为螺旋肋钢丝,跨度4.8m-7.2m)88.06SG439-1 预应力混凝土叠合板(50mm、60mm实心底板)89.13G4405类钢结构、钢与混凝土组合结构90.06SG501 民用建筑钢结构防火构造91.08SG510-1 轻型屋面平行弦钢屋架(圆钢管、方钢管)92.05G511 梯形钢屋架93.05G512 钢天窗架94.05G513 钢托架95.05G514-1 12m实腹式钢吊车梁轻级工作制(A1~A3) Q235钢96.05G514-2 12m实腹式钢吊车梁中级工作制 (A4、A5) Q235钢97.05G514-3 12m实腹式钢吊车梁中级工作制 (A4、A5) Q345钢98.05G514-4 12m实腹式钢吊车梁重级工作制(A6~A7) Q345钢99.05G515 轻型屋面梯形钢屋架100.06SG515-1 轻型屋面梯形钢屋架(圆钢管、方钢管)101.06SG515-2 轻型屋面梯形钢屋架(剖分T型钢弦杆)102.05G516 轻型屋面钢天窗架103.05G517 轻型屋面三角形钢屋架104.06SG517-1 轻型屋面三角形钢屋架(圆钢管、方钢管)105.06SG517-2 轻型屋面三角形钢屋架(剖分T型钢弦杆)106.02SG518-1、02(04)SG518-1 门式刚架轻型房屋钢结构(无吊车)(2004年局部修改版)107.04SG518-2 门式刚架轻型房屋钢结构(有悬挂吊车)108.04SG518-3 门式刚架轻型房屋钢结构(有吊车)109.07SG518-4 多跨门式刚架轻型房屋钢结构(无吊车)110.01SG519、01(04)SG519 多、高层民用建筑钢结构节点构造详图(2004年局部修改版)111.03SG519-1 多、高层建筑钢结构节点连接(次梁与主梁的简支螺栓连接;主梁的栓焊拼接)112.04SG519-2 多、高层建筑钢结构节点连接(主梁的全栓拼接)113.03SG520-1实腹式钢吊车梁(中轻级工作制A1~A5 Q235钢跨度6.0m、7.5m、9.0m) 114.03SG520-2实腹式钢吊车梁(中轻级工作制A1~A5 Q345钢跨度6.0m、7.5m、9.0m) 115.08SG520-3 钢吊车梁(H型钢工作级别A1~A5)116.11G521-1 钢檩条117.11G521-2 钢墙梁118.05SG522 钢与混凝土组合楼(屋)盖结构构造119.04SG523 型钢混凝土组合结构构造120.06SG524 钢管混凝土结构构造(圆钢管、矩形钢管)121.05G525 吊车轨道联结及车挡(用于钢吊车梁)122.07SG526 户外钢结构独立柱广告牌123.07SG528-1 钢雨篷(一)124.06SG529-1 单层房层钢结构节点构造详图(工字形截面钢柱柱脚连接)125.07SG531 钢网架结构设计126.10SG533 钢抗风柱127.11SG534 带水平端斜钢梯(45°)128.12SG535 实腹钢梁混凝土柱6类砌体结构129.03SG610-1 建筑结构隔震构造详图130.09SG610-2 建筑结构消能减震(振)设计131.15G611 砖墙建筑、结构构造132.04G612砖墙结构构造(烧结多孔砖与普通砖、蒸压类砖)133.05G613 混凝土小型空心砌块墙体结构构造134.12G614-1砌体填充墙结构构造135.10SG614-2砌体填充墙构造详图(二)(与主体结构柔性连接)136.03SG615 配筋混凝土砌块砌体建筑结构构造137.05SG616 混凝土小型砌块块型尺寸138.07SG617 夹心保温墙结构构造139.08SG618-1农村民宅抗震构造详图(砖结构房屋)140.08SG618-2农村民宅抗震构造详图(木结构房屋)141.08SG618-3农村民宅抗震构造详图(生木结构房屋)142.08SG618-4 农村民宅抗震构造详图(石结构房屋)143.09SG619-1 房屋抗震加固(一)(中小学校舍抗震加固)144.12SG619-2 房屋抗震加固(二)(医疗建筑抗震加固)145.12SG619-3 房屋建筑抗震加固(三)(单层工业厂房、烟囱、水塔)146.11SG619-4 房屋建筑抗震加固(四)(砌体结构住宅抗震加固)147.13SG619-5 房屋建筑抗震加固(五)(公共建筑抗震加固)148.12SG620 砌体结构设计与构造7类水泥制品149.02ZG710 发泡水泥复合板150.03SG715-1 蒸压轻质加气混凝土板(NALC)8类地基与基础151.05SG811 条形基础152.06SG812 桩基承台153.10SG813 钢筋混凝土灌注桩154.11SG814 建筑基坑支护结构构造9类建筑施工155.12G901-1 混凝土结构施工钢筋排布规则与构造详图现浇混凝土框架剪力墙梁板156.12G901-2混凝土结构施工钢筋排布规则与构造详图板式楼梯157.12G901-3 混凝土结构施工钢筋排布规则与构造详图独基条基筏基桩基158. 11SG902-1 常用构造三维节点详图159.13SG903-1 混凝土结构常用施工详图(现浇砼板、非框架梁配筋构造)160.14SG903-2 混凝土结构常用施工详图(现浇混凝土框架柱、梁、剪力墙配筋构造)161.12SG904-1 型钢混凝土钢筋排布及构造详图162.13SG905-1~2 房屋建筑工程施工工艺图解—模板工程163.15G909-1 钢结构连接施工图示(焊接连接)164.14G910 高强钢筋应用技术图示10类参考图165.06CG01 蒸压轻质砂加气(AAC)混凝土块材及板材连接构造166.05CG02 钢结构设计图实例—多、高层钢结构房屋167.08CG03 轻型钢结构设计实例168.06CG04 钢结构设计图示例—单层工业厂房169.06CG08 悬挂运输设备轨道设计计算170.08CG09 建筑震害分析及实例图解171.08CG10 配筋混凝土砌块砌体建筑结构设计计算示例172.09CG11 钢框轻型屋面板173.09CG12 钢骨架轻型板174.13CG12-1175.11CG13-1 房屋建筑工程施工工法图示(一)176.14CG14 钢构轻型复合板177.14CG15 钢构轻墙板178.14CG16179.14CG22 钢边框保温隔热轻型板180.15CG25 轻质芯模混凝土叠合密肋楼板作废181.03G101-1 现浇混凝土框架、剪力墙、框架-剪力墙、框支剪力墙结构182.03G101-2 现浇混凝土板式楼梯183.04G101-3 筏型基础184.04G101-4 现浇混凝土楼面与屋面板185.08G101-5 箱型基础和地下室结构186.06G101-6 独立基础、条形基础、桩基承台187.08G101-11 G101系列图集施工常见问题答疑图解188.04G103 民用建筑工程结构施工图设计深度图样189.05G104 民用建筑工程结构初步设计深度图样190.04SG308 混凝土后锚固连接构造191.06SG311-1 混凝土结构加固构造(总则及构件加固)192.03G322-1 钢筋混凝土过梁(烧结普通砖)193.03G322-2 钢筋混凝土过梁(烧结多孔砖砌体)194.03G322-3 钢筋混凝土过梁(混凝土小型空心砌块砌体)195.03G322-4 钢筋混凝土过梁(混凝土小型空心砌块夹心墙)196.03G329-1建筑物抗震构造详图197.04G329-2建筑物抗震构造详图(单层砌体房屋)198.04G329-3建筑物抗震构造详图(砖墙楼房)199.04G329-4建筑物抗震构造详图(小砌块墙楼房)200.04G329-5建筑物抗震构造详图(配筋砖砌体楼房)201.04G329-6建筑物抗震构造详图(局部框架房屋)202.04G329-7建筑物抗震构造详图(砖排架房屋)203.04G329-8建筑物抗震构造详图(钢筋混凝土柱单层厂房)204.04SG330 混凝土结构剪力墙边缘构件和框架柱构造钢筋选用205.05G336 柱间支撑206.03SG409 预应力混凝土管桩207.01SG515轻型屋面梯形钢屋架(上)208.01SG515轻型屋面梯形钢屋架(中)209.01SG515轻型屋面梯形钢屋架(下)210.05SG521-1钢檩条钢墙梁(冷弯薄壁卷边槽钢檩条)211.05SG521-2钢檩条钢墙梁(冷弯薄壁斜卷边Z形钢檩条)212.05SG521-3钢檩条钢墙梁(高频焊接薄壁H型钢檩条)213.05SG521-4钢檩条钢墙梁(冷弯薄壁卷边槽钢、高频焊接薄壁H型钢墙梁) 214.10SG521-1~2钢檩条钢墙梁(更正内容)215.03SG611 砖混结构加固与修复216.02SG614 框架结构填充小型空心砌块结构构造217.06SG614-1 砌体填充墙结构构造218.06G901-1 现浇混凝土框架、剪力墙、框架-剪力墙219.09G901-2 现浇混凝土框架、剪力墙、框架-剪力墙、框支剪力墙结构220.09G901-3 筏形基础、箱形基础、地下室结构、独立基础、条形基础、桩基承台221.09G901-4 现浇砼楼面与屋面板222.09G901-5 现浇混凝土板式楼梯其他图集1.02DT-101门式刚架轻型房屋钢结构标准图集主结构分册2.02DT-102门式刚架轻型房屋钢结构标准图集檩条墙梁分册3.02DT-103门式刚架轻型房屋钢结构标准图集支撑分册4.02DT-104门式刚架轻型房屋钢结构标准图集标准件分册5.HG/T 21544-2006 预埋件通用6.HG/T 21545-2006 柱脚螺栓(锚栓)通用图7.HG 21542-92单轨、悬挂吊车梁通用图8.HG/T 21613-96钢梯及钢栏杆通用图地方图集1.98浙G1 G2 G3 预应力空心板2.99浙J35屋面变形缝图集3.2000浙G26轻型钢结构门式钢架4.2000浙J37建筑地面5.2001浙J43楼梯6.2002浙G22先张法预应力混凝土管桩7.2002浙J42阳台及空调隔板建筑构造8.2004浙G20沉管灌注桩9.2004浙G23钻孔灌注桩10.2004浙G24承台11.2010浙G35预应力离心混凝土空心方桩12.2010浙J7铝合金门窗。
西南11J312楼地面一、概述二、设计原则满足使用功能和使用寿命的要求,保证楼地面的平整、牢固、耐磨、防滑、防水、隔声、隔热等性能。
合理选择楼地面的结构形式和材料种类,考虑楼地面的荷载、变形、裂缝等影响因素,保证楼地面的安全和经济。
符合美观和卫生的要求,选择适合建筑风格和使用功能的颜色、花纹、质感等,保持楼地面的清洁和整洁。
三、构造要求基层:基层是楼地面与基础或上部结构之间的连接层,其作用是承受并传递楼地面荷载,提供平整和稳定的支承面,增强楼地面与基础或上部结构之间的粘结力。
基层应按照图集中规定的厚度、强度、平整度等要求施工,并应做好防水处理。
附属构件:附属构件是指与楼地面配套使用的边缘条、踢脚线、阴阳角等构件,其作用是保护楼地面边缘,增加楼地面的完整性和美观性。
附属构件应按照图集中规定的材料、尺寸、形式等要求施工,并应与楼地面协调一致。
四、材料选择水泥混凝土:水泥混凝土是由水泥、骨料和水按一定比例拌合而成的一种建筑材料,具有高强度、高刚度和高耐久性,适用于承受较大荷载的楼地面基层。
水泥混凝土施工时应注意控制配合比、拌合均匀、振实密实、保养养护等。
瓷砖:瓷砖是由粘土或其他无机非金属材料经高温烧成的一种建筑材料,具有硬度高、耐磨性好、防水性强、色彩丰富等特点,适用于各种类型的楼地面面层。
瓷砖施工时应注意选择合适的规格、花纹、颜色,按照图纸要求进行划线、铺贴、填缝等。
地板:地板是指由木材或其他人造板材制成的一种建筑材料,具有质轻、隔声、隔热、舒适等特点,适用于住宅或办公等场所的楼地面面层。
地板施工时应注意选择合适的品种、规格、颜色,按照图纸要求进行划线、铺装、固定等。
五、施工注意事项施工前应仔细检查图纸和现场条件,确认楼地面的结构形式、材料种类、尺寸标高等是否符合要求,如有不符合或不清楚的地方,应及时与设计人员或监理人员沟通协调。
施工过程中应按照图集中规定的施工方法和技术要求进行操作,遵守施工安全规范,防止发生事故或质量问题。
xxxxxx项目目录一、编制依据 (2)二、工程概况 (2)三、施工准备 (2)1、技术准备 (3)2、工机具的准备 (3)3、施工现场准备 (3)四、施工方法 (3)1、构造做法 (4)2、工艺流程: (4)3、施工要求: (4)五、成品保护 (9)六、质量保证措施 (10)1、制度确保质量 (10)2、从现场确保质量 (10)八、安全文明保证措施 (11)1、安全管理总体方针 (11)2、安全管理工作内容: (11)3、文明管理工作内容: (11)九、技术资料及工程验收 (11)1、主控项目 (11)2、一般项目 (12)3、允许偏差及检验方法 (12)第 1 页共12 页一、编制依据1、建筑施工图;2、外墙内保温建筑构造图集11J122;3、建筑施工手册(第五版);4、《外墙内保温施工技术规程》 JGJT261-2011 ;5、建筑工程施工质量验收统一标准》GB50300-2013;6、《建筑节能工程施工质量验收规范》GB50411-2007;7、《民用建筑热工设计规范》GB50176-93。
二、工程概况1、xxxx工程位于xxxx,北侧与全国重点文物保护单位xxx隔路相邻,东侧与xxx学院相邻,南侧有xx河流流过。
本工程(一期建筑)主要是由地面广场、下沉广场、商业街、剧场、影院等功能构成的综合性建筑,总建筑面积xxxx㎡。
本工程由xxxxx公司建设开发,xxxxx监理,xxxxx设计。
我司主要承建影院、剧院和商业部分,其中影院和商业部分结构设计总高度为12.9m,剧院主要由前厅剧场和后场艺术学校组成,结构设计高度为21.2m和16.8m,结构形式均为框架结构。
其中剧院艺校外墙保温做法为外墙内保温,外墙砌体材料为多孔砖和空心砖,结构楼层分为地下室、一层、4.45m夹层、二层、三层。
2、外墙内保温材料:A、EPS聚苯乙烯泡沫板,规格为1200mm×600mm×50mm、平头式,阻燃型,容重20±2kg/m3,导热系数≦0.039w/m.k。
国家建筑标准设计名称及编号表序号编号GJBT- 标准设计号标准设计名称备注1 1169 11J122 外墙内保温建筑构造代替03J1222 1170 11J935 幼儿园建筑构造与设施新编3 1174 11G101-1 混凝土结构施工图平面整体表示方法制图规则和构造详图(现浇混凝土框架、剪力墙、梁、板)代替03G101-104G101-44 1175 11G101-2 混凝土结构施工图平面整体表示方法制图规则和构造详图(现浇混凝土板式楼梯)代替03G101-25 1176 11G101-3 混凝土结构施工图平面整体表示方法制图规则和构造详图(独立基础、条形基础、筏形基础及桩基承台)代替04G101-308G101-506G101-66 1178 11G329-1 建筑物抗震构造详图(多层和高层钢筋混凝土房屋)代替03G329-17 1179 11G329-2 建筑物抗震构造详图(多层砌体房屋和底部框架砌体房屋)代替04G329-204G329-304G329-404G329-68 04SG307 现浇钢筋混凝土板式楼梯9 G322-1~4 (2004年合订本)钢筋混凝土过梁10 03G322-1 钢筋混凝土过梁(烧结普通砖)11 06SG331-1 混凝土异形柱结构构造(一)1201SG51901(04)SG519多、高层民用建筑钢结构节点构造详图多、高层民用建筑钢结构节点构造详图(2004年局部修改版)13 03SG519-1 多、高层建筑钢结构节点连接(次梁与主梁的简支螺栓连接;主梁的栓焊拼接)14 02SG614 框架结构填充小型空心砌块结构构造15 06SG614-1 砌体填充墙结构构造。
11J122外墙内保温
建筑构造
11J122:外墙内保温建筑构造
图集编号
11J122
图集名称
外墙内保温建筑构造
定价
49.00 元
开本
16 开
主编单位
o中国建筑标准设计研究院
本图集修编代替03J122《外墙内保温建筑构造》,其适用于夏热冬冷地区、夏热冬暖地区的外墙内保温工程,也适用于严寒和寒冷地区采用外墙内外复合保温的民用建筑和工业建筑,以及既有建筑节能改造的保温工程。
图集内容包括五种外墙内保温系统:
1.复合板内保温系统
2.保温板内保温系统
3.保温砂浆内保温系统
4.喷涂硬泡聚氨酯内保温系统
5.玻璃棉、岩棉、喷涂硬泡聚氨酯龙骨内保温系统。
图集主要包括:说明、选用表、性能表、立面示意图、构造节点详图及附录等内容。
本图集具有以下几方面特点:
1. 根据新制定的《外墙内保温工程技术规程》(报批稿)对原图集进行修编,内容符合新规程要求。
2. 补充和调整了部分构造做法,取消了原图集中钢丝网架聚苯板内保温等做法,增加了无机保温板、保温砂浆等新构造、新材料,使墙体的防火、保温、隔声等性能得到进一步的提高。
3. 图集内容充实、条理清楚、选用方便,能够满足设计和施工的需要。
备注
替代03J122
目录
目录1
总说明3
名词解释9
A-复合板内保温系统
复合板内保温系统说明A-1
窗口节点构造A-5
平面转角节点A-7
踢脚保温节点A-9
复合板内保温系统保温层厚度选用表A-10
B-保温板内保温系统
保温板内保温系统说明B-1
窗口节点构造B-5
平面转角节点B-7
踢脚、楼梯间及地下室顶板保温B-9
保温板内保温系统保温层厚度选用表B-10
C-保温砂浆内保温系统
保温砂浆内保温系统说明C-1
窗口节点构造C-5
平面转角节点C-6
踢脚、地下室顶板保温C-7
保温砂浆内保温系统保温层厚度选用表C-8
D-喷涂硬泡聚氨酯内保温系统
喷涂硬泡聚氨酯内保温系统说明D-1
窗口节点构造D-4
平面转角节点D-5
踢脚、地下室顶板保温D-6喷涂硬泡聚氨酯内保温系统保温层厚度选用表D-7 E-玻璃棉、岩棉、喷涂硬泡聚氨酯龙骨内保温系统
玻璃棉、岩棉、喷涂硬泡聚氨酯龙骨内保温系统说明E-1
窗口节点构造(轻钢龙骨)E-5
平面转角节点(轻钢龙骨)E-6
窗口节点构造(断热龙骨)E-7
平面转角节点(断热龙骨)E-9玻璃棉、岩棉、喷涂硬泡聚氨酯龙骨内保温系统保温层厚度选用表E-10
通用节点
窗帘杆安装节点F-1
窗台板、窗套节点F-2
凸窗保温详图F-3
洗池、脸盆安装详图F-4
座便器水箱、吊柜安装详图F-5
暖气片、开关盒、管卡安装详图F-6
阳角接缝构造F-7
外墙热桥的保温构造措施F-8
附录
外墙内保温主要材料性能指标附录1-1
墙体的传热系数和热惰性指标限值附录2
主要城市所处气候分区附录3
外墙平均传热系数计算附录4
相关技术资料
样张
网友推荐
网友【yyl2004】点评:
现在的开发商比较喜欢外保温,一是经济效益,增加建筑面积,另外,避免热量中的热桥,但是技术性能要求没有外墙外侧应用那么严格,造价较低,而且升温(降温)比较
快,适合于间歇性采暖的房间使用。
图集提供了各种保温材料,呵呵,具体的内容买书详细了解。